Скачать Серия ИИ-04-6 Выпуск 2. Железобетонные диафрагмы толщиной 140 мм. Рабочие чертежиДата актуализации: 01.01.2021
|
| Обозначение: | Серия ИИ-04-6 |
| Обозначение англ: | Series ИИ-04-6 |
| Статус: | не действует |
| Название рус.: | Выпуск 2. Железобетонные диафрагмы толщиной 140 мм. Рабочие чертежи |
| Дата добавления в базу: | 01.09.2013 |
| Дата актуализации: | 01.01.2021 |
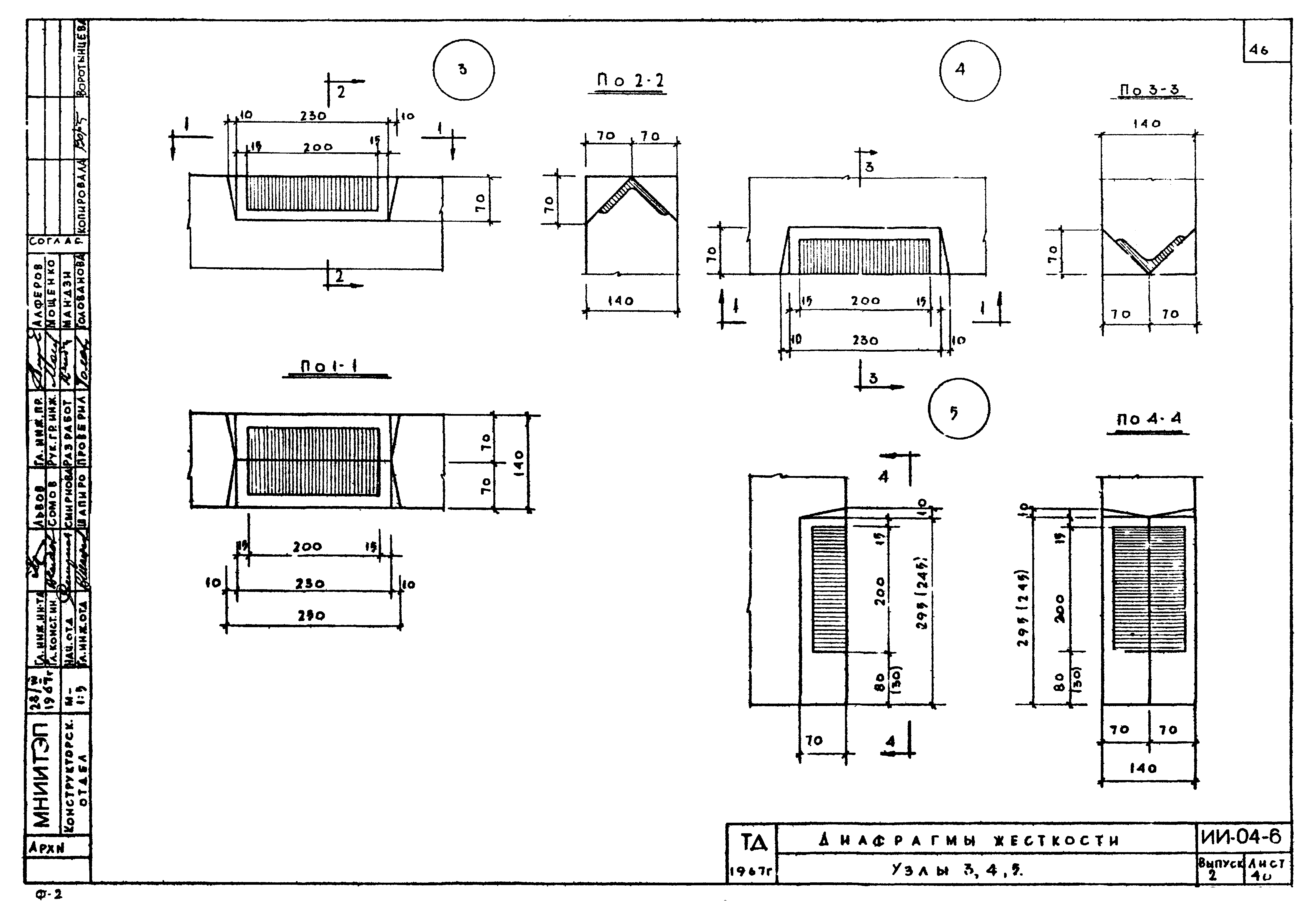
| Оглавление: | Перечень серии и выпусков Содержание выпуска Пояснительная записка Номенклатура Общий вид и армирование диафрагмы жесткости В-28-29 Общий вид и армирование диафрагм жесткости B-41-29 Общий вид и армирование диафрагм жесткости В-26-29 Общий вид и армирование диафрагм жесткости В-28-33 Общий вид и армирование диафрагмы жесткости В-28-38 Общий вид и армирование диафрагмы жесткости В-20-38 Общий вид и армирование диафрагмы жесткости В-26-38 Общий вид и армирование диафрагмы жесткости В-28-42 Общий вид и армирование диафрагмы жесткости ВЦ-28-23 Общий вид и армирование диафрагмы жесткости ВЦ-41-23 Общий вид и армирование диафрагмы жесткости ВЦ-26-23 Общий вид и армирование диафрагмы жесткости ВЦ-28-28 Общий вид и армирование диафрагмы жесткости ВЦ-28-32 Общий вид и армирование диафрагмы жесткости BЦ-20-32 Общий вид и армирование диафрагмы жесткости ВЦ-26-32 Общий вид и армирование диафрагмы жесткости ВЦ-28-37 Арматурные сетки С-8, С-9 Арматурные сетки С-10, С-11 Арматурные сетки C-12, C-13 Арматурные сетки C-14, C-15 Арматурные сетки С-16, С-17 Арматурные сетки C-18, C-19 Арматурные сетки С-20, C-21 Арматурные сетки С-22, С-23 Арматурные сетки С-24, C-25, С-26 Арматурные сетки С-27, С-28 Арматурные сетки С-29, С-30 Арматурные сетки C-31, С-32 Арматурные сетки С-33, С-34 Арматурные сетки C-35, С-36 Арматурные каркасы К-10, К-11, К-12 Арматурные каркасы К-13, К-14, К-15, подъемная петля ПП-2, отдельный стержень ОС-2 Арматурные каркасы К-16, К-17, К-18, К-19 Закладная деталь МД-1 Узлы 1,2 Узлы 3,4,5 Узлы 6,7,8,9,10 Узлы 11,12,13,14 |
| Разработан: | МНИИТЭП |
| Утверждён: | 30.10.1967 Государственный комитет по гражданскому строительству и архитектуре при Госстрое СССР (164) |
| Издан: | ЦИТП Госстроя СССР (CITP, Gosstroy (USSR) 1967 г. ) |

















































