Скачать Типовой проект 902-2-178 Альбом IX. Нестандартизированное оборудование. Затвор щитовой 1200х2000 (из ТП 902-2-179)Дата актуализации: 01.01.2021
|
| Обозначение: | Типовой проект 902-2-178 |
| Обозначение англ: | 902-2-178 |
| Статус: | не действует |
| Название рус.: | Альбом IX. Нестандартизированное оборудование. Затвор щитовой 1200х2000 (из ТП 902-2-179) |
| Дата добавления в базу: | 01.09.2013 |
| Дата актуализации: | 01.01.2021 |
| Дата введения: | 27.10.1972 |
| Дата окончания срока действия: | 01.01.1986 |
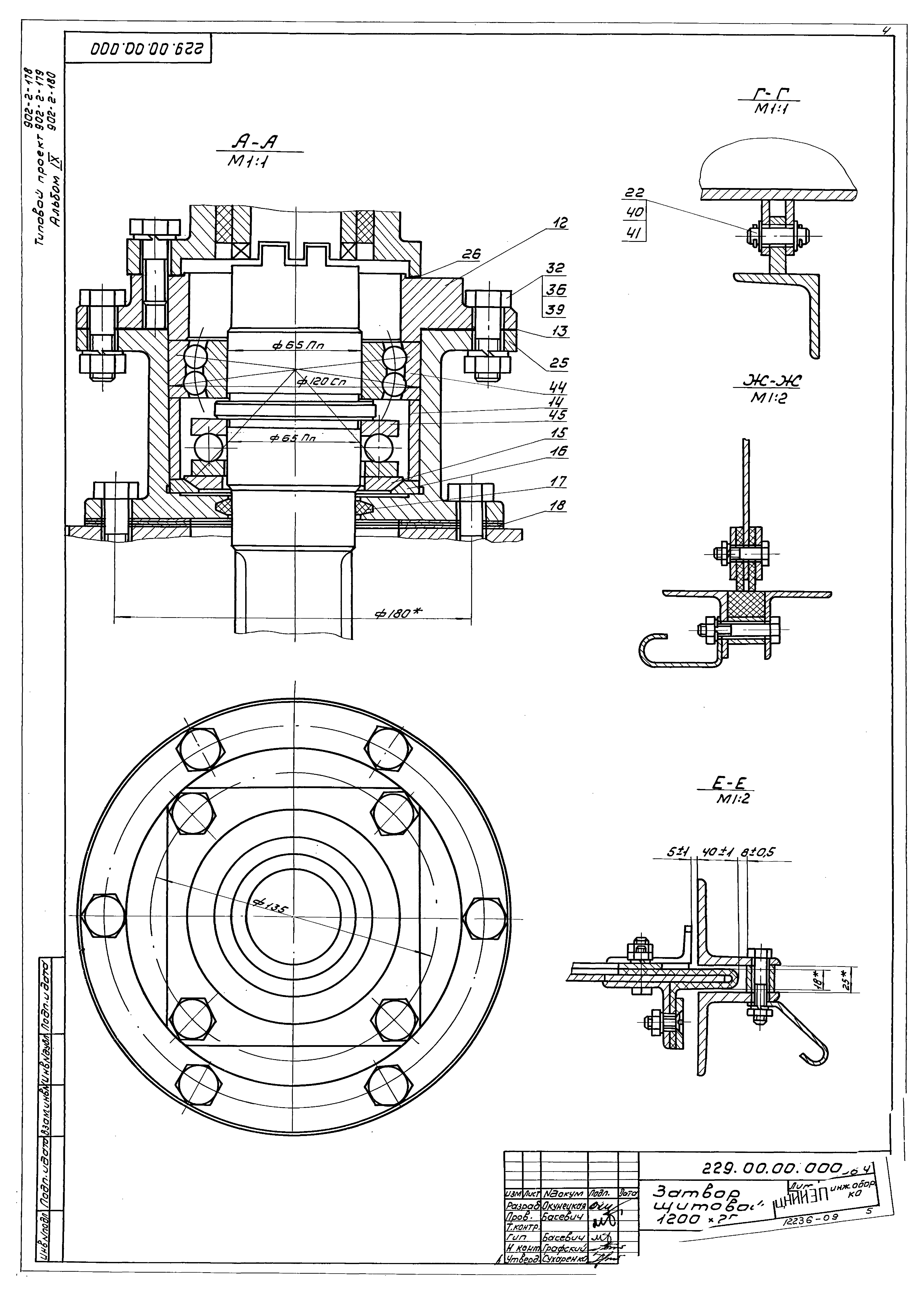
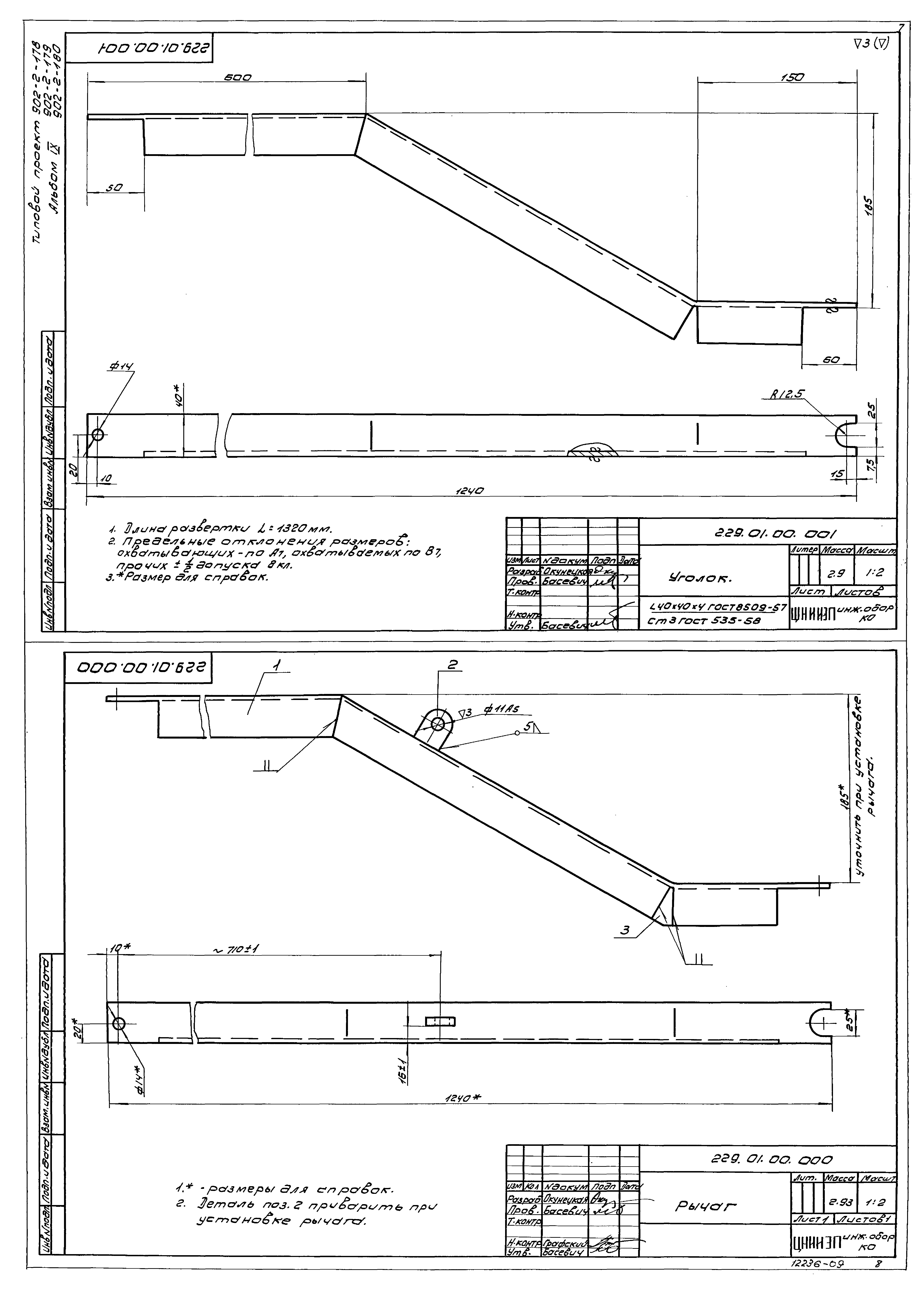
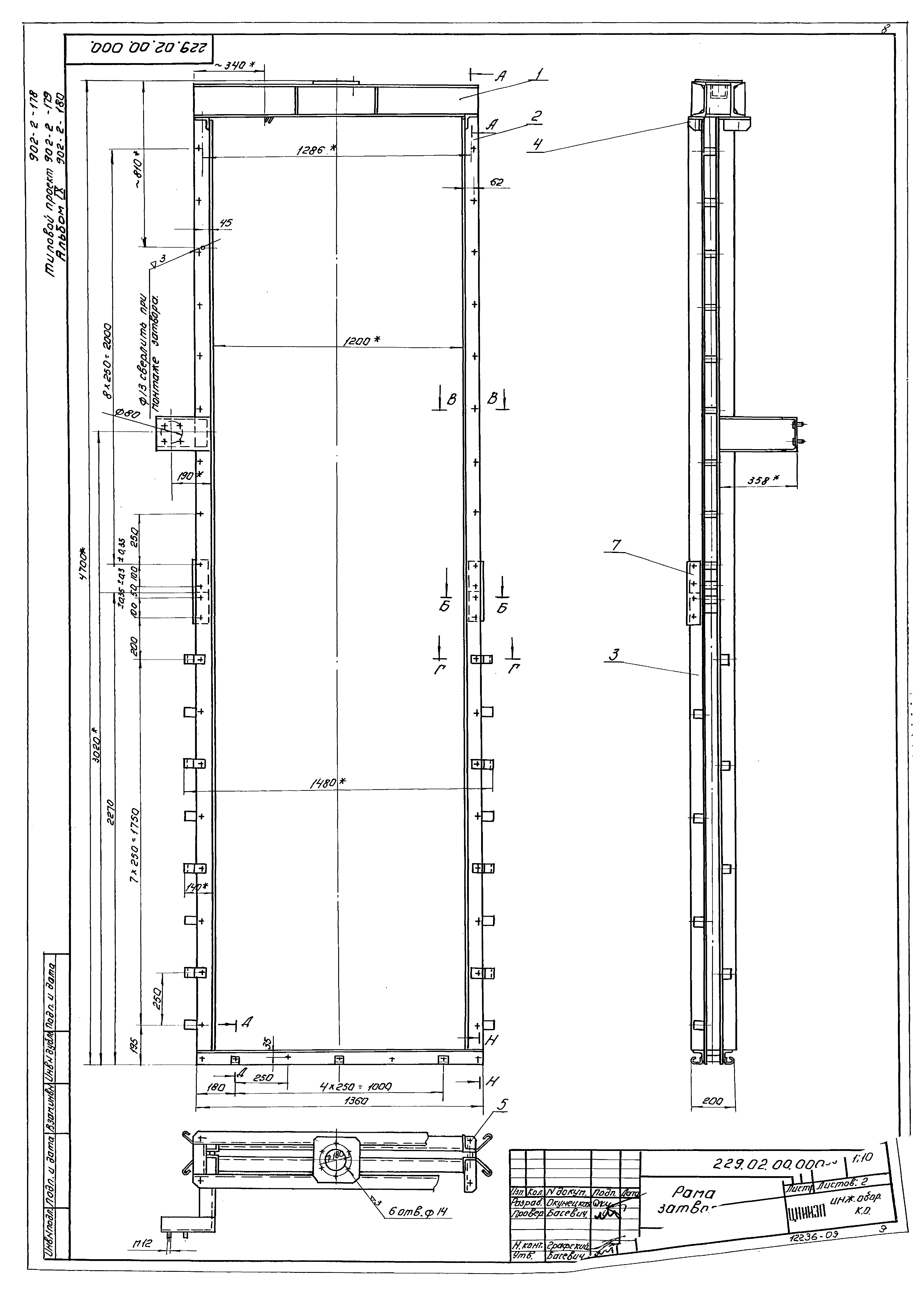
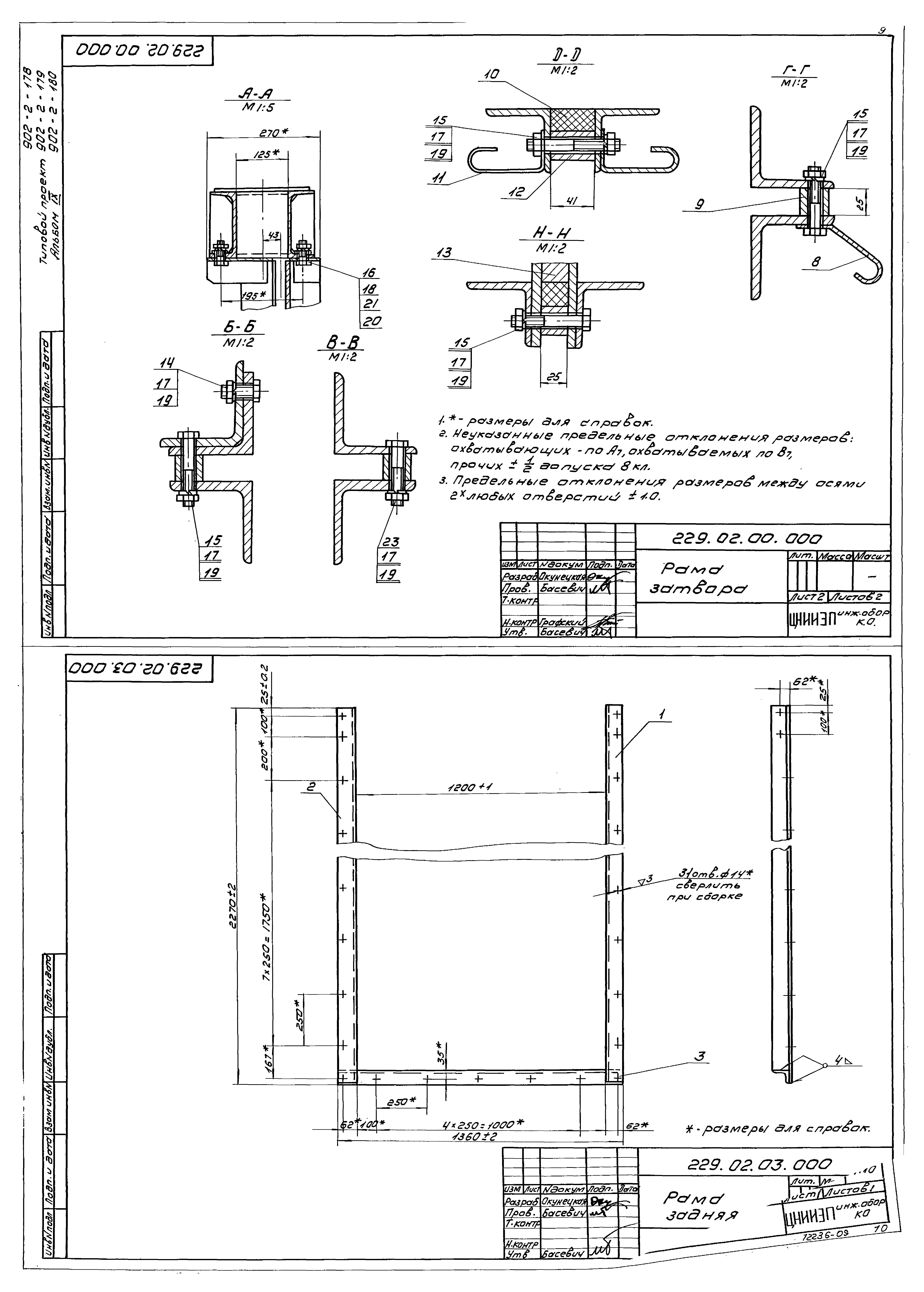
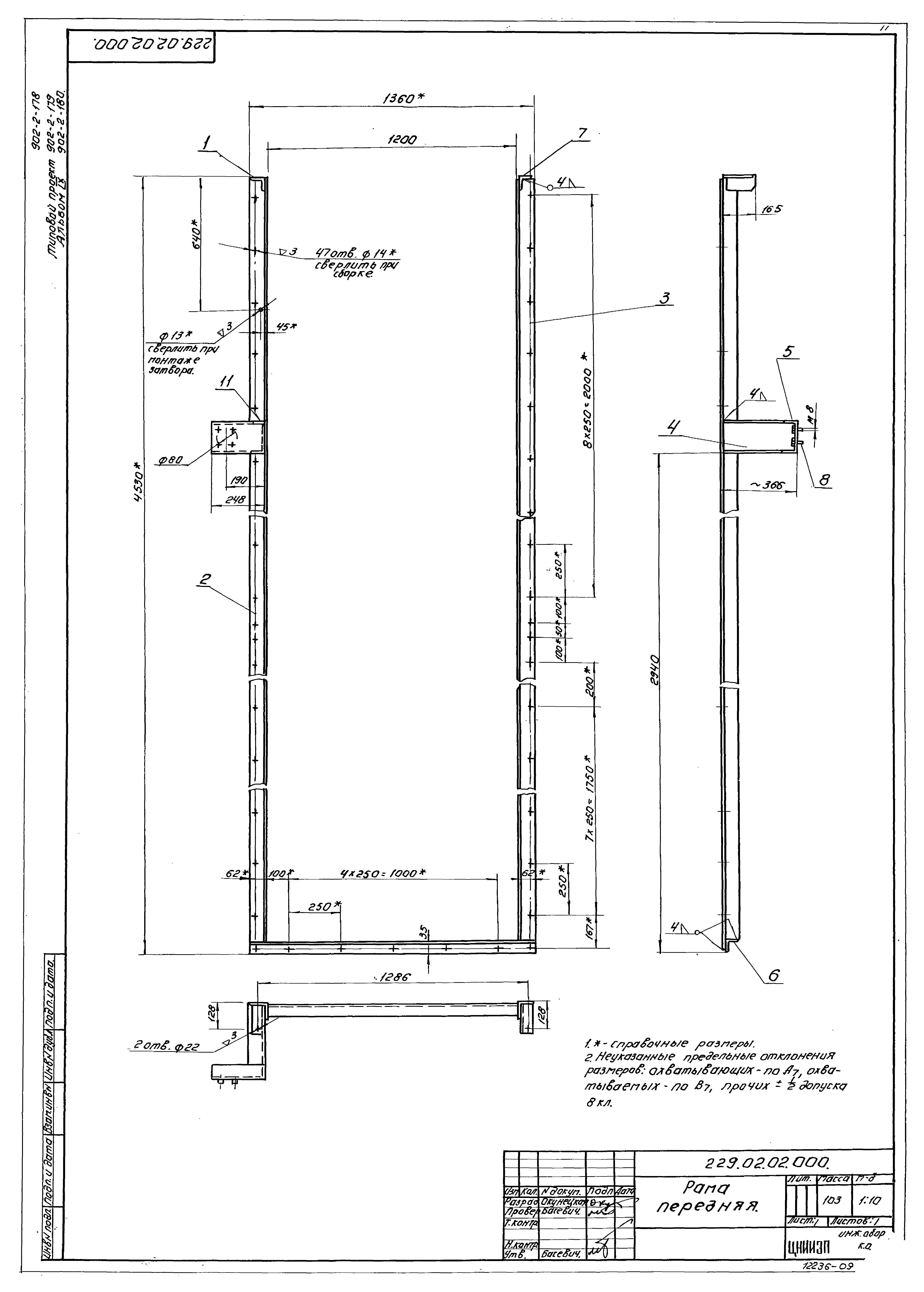
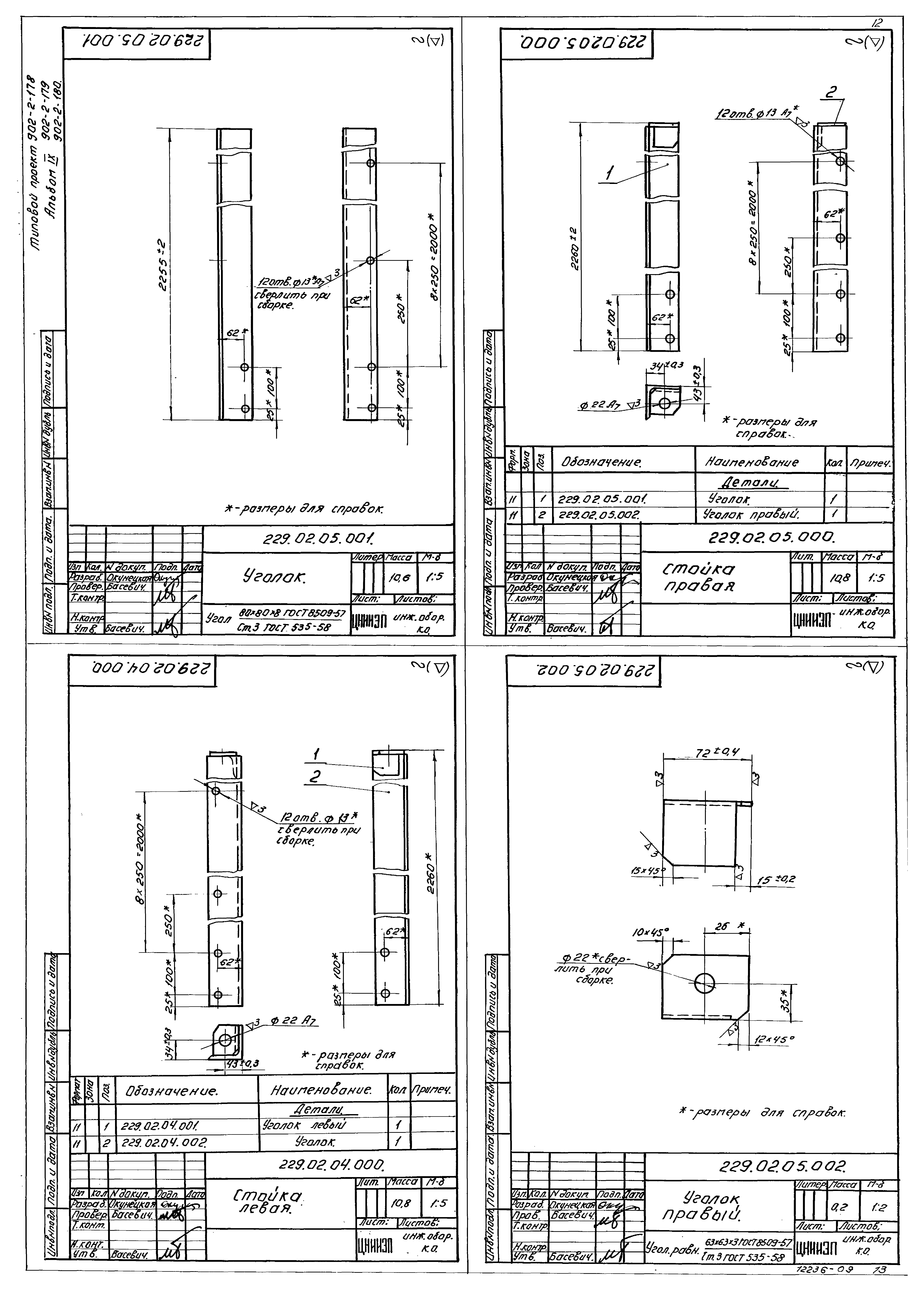
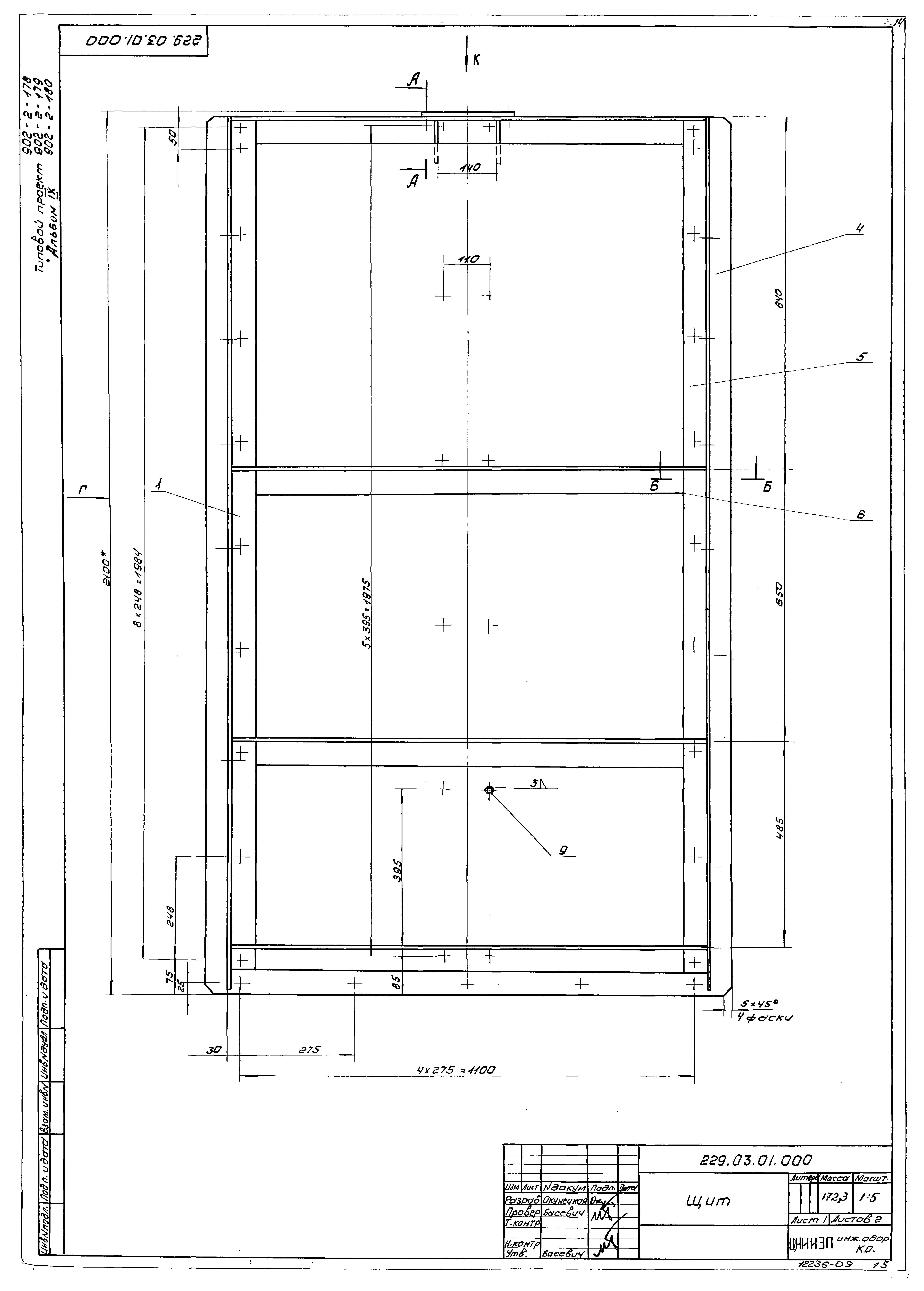
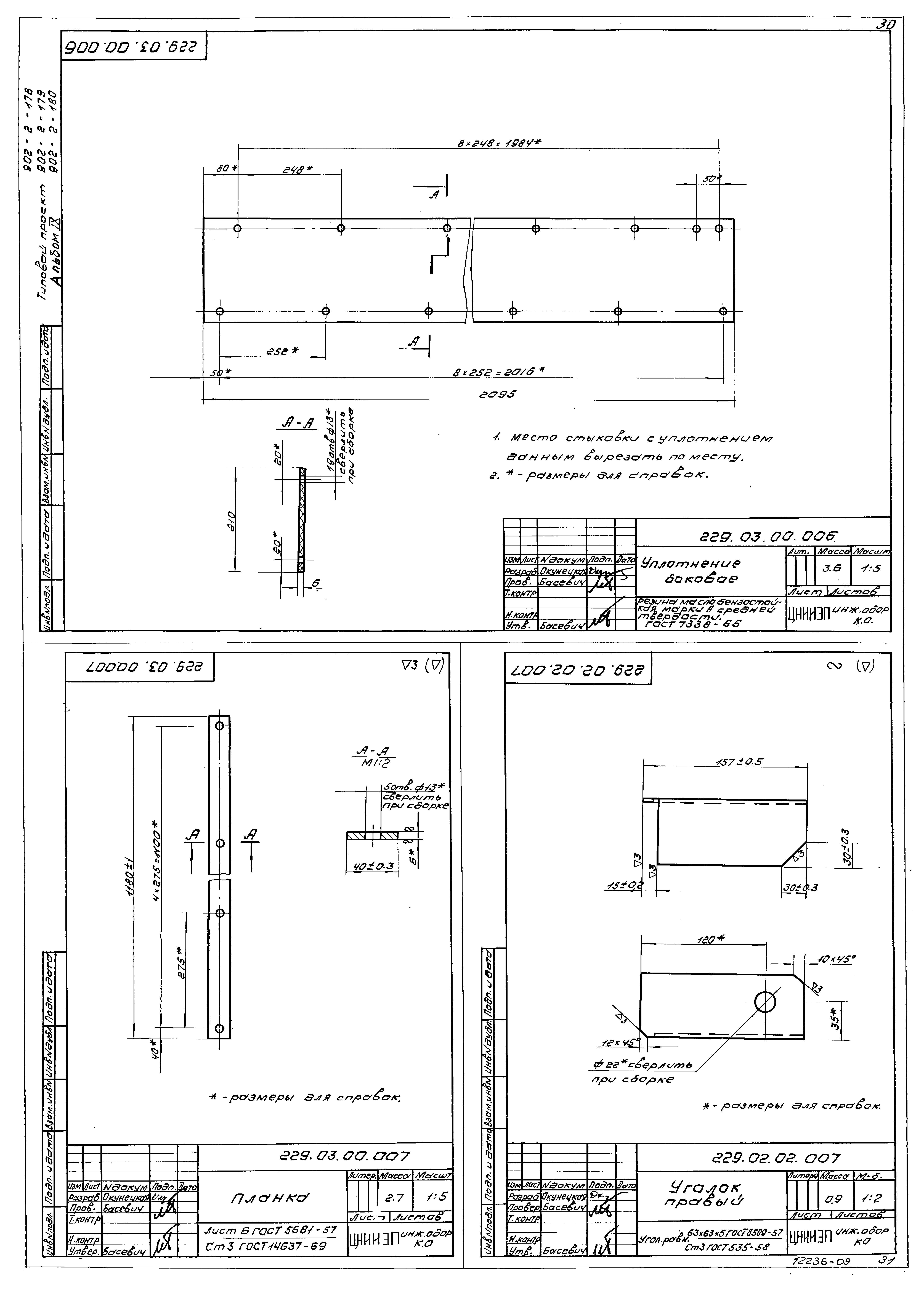
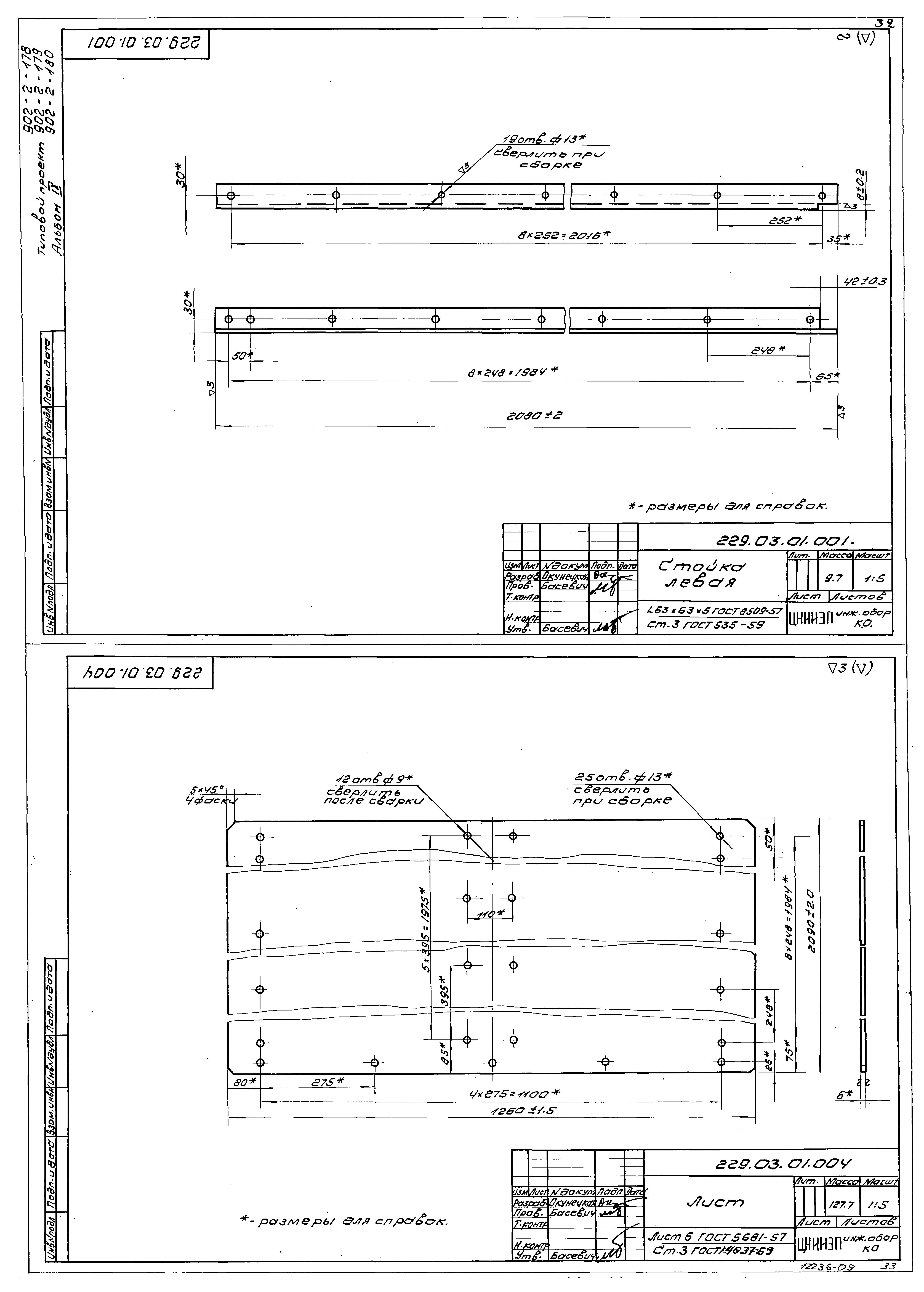
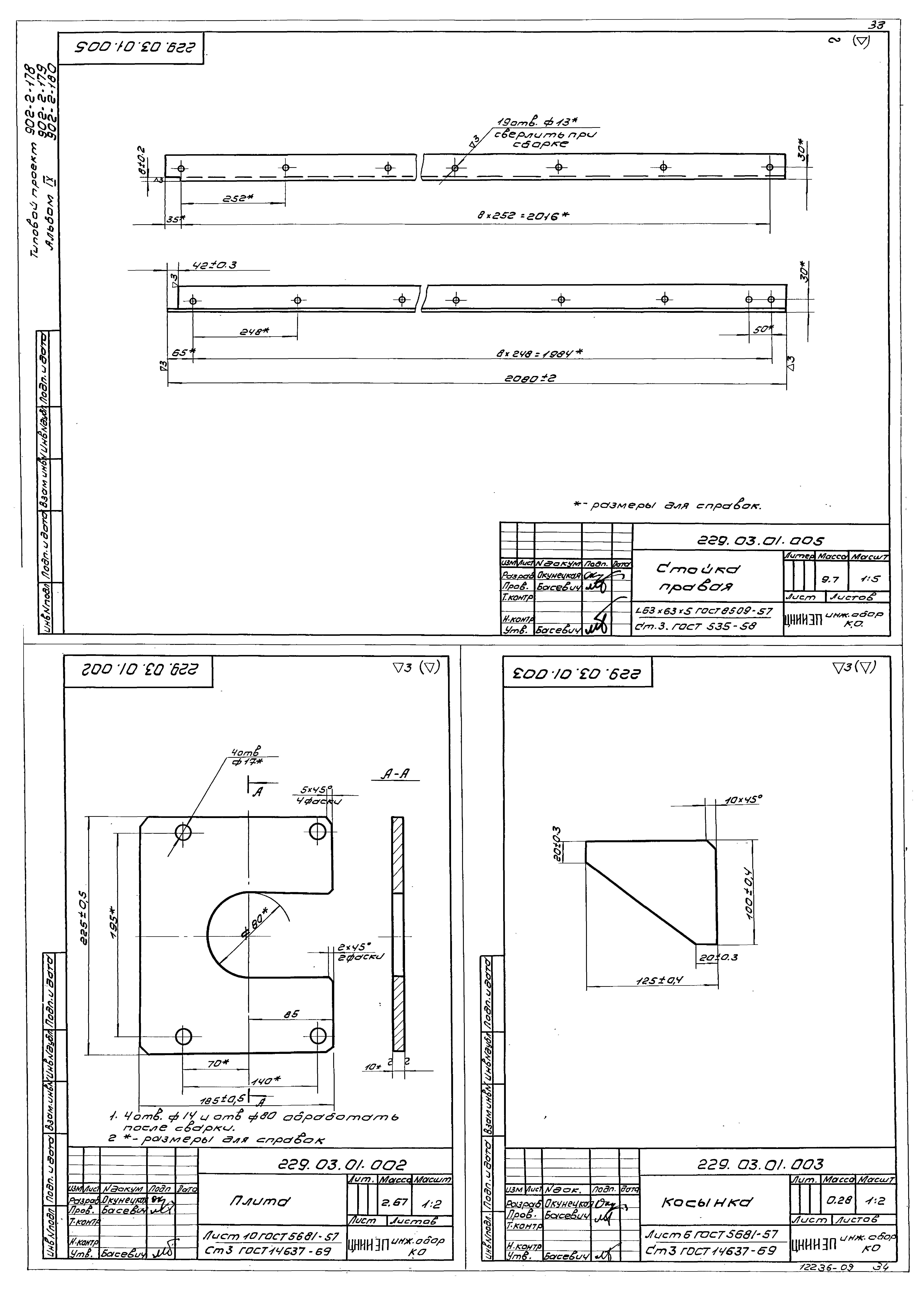
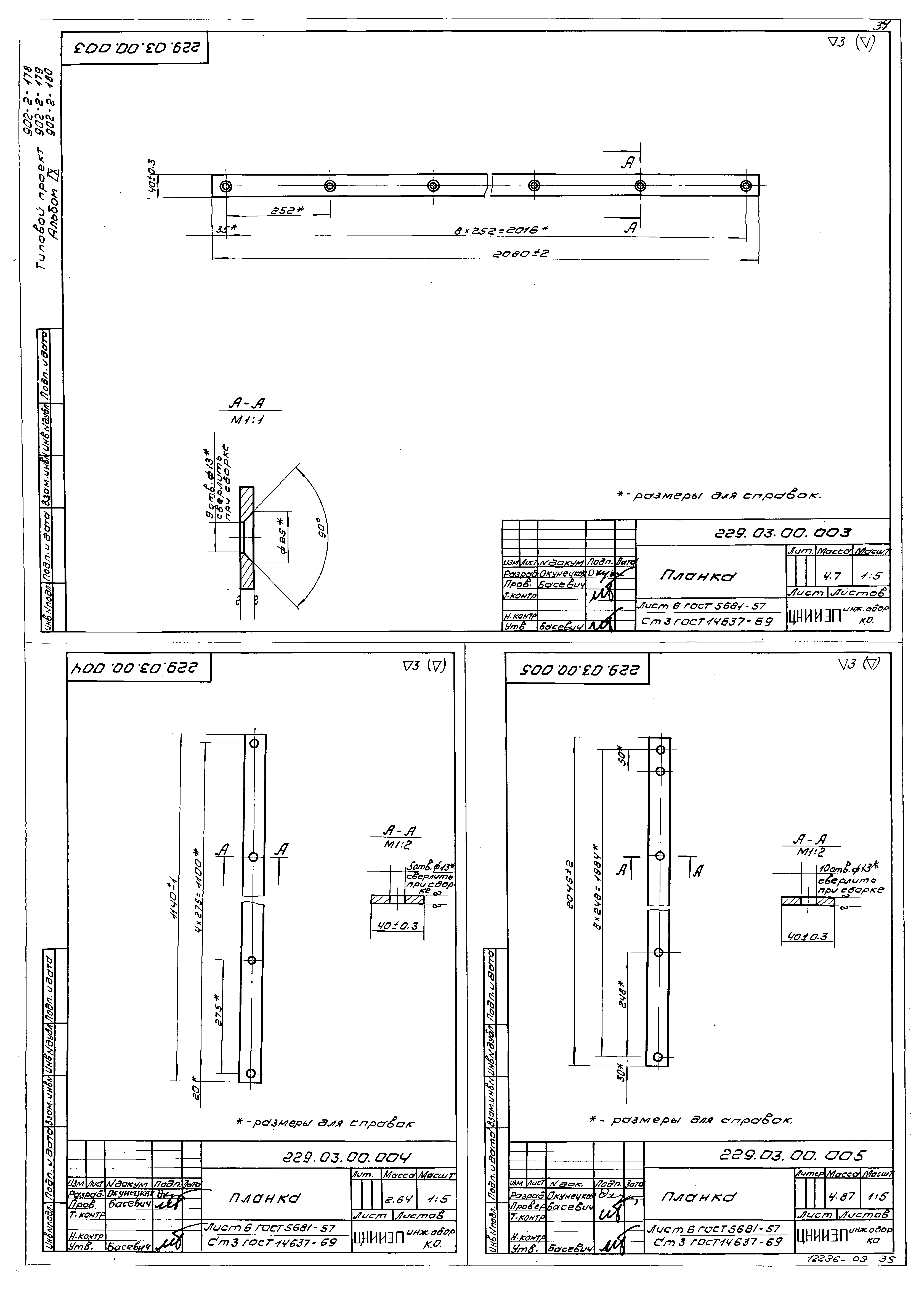
| Оглавление: | Титульный лист Содержание альбома 229.00.00.000 Затвор щитовой 1200х2000 229.01.00.000 Рычаг 229.01.00.001 Уголок 229.02.00.000 Рама затвора 229.02.03.000 Рама задняя 229.02.01.000 Рама верхняя 229.03.00.000 Щит в сборе 229.02.02.000 Рама передняя 229.02.05.001 Уголок 229.02.05.000 Стойка правая 229.02.05.002 Уголок правый 229.02.04.000 Стойка правая 229.03.00.000 Щит в сборе 229.03.01.000 Щит 229.03.02.000 Кожух 229.03.01.007 Косынка 229.03.02.002 Заглушка 229.03.02.001 Кожух 229.04.00.003 Палец 229.04.00.002 Втулка 229.04.00.001 Корпус 229.04.00.000 Гайка 229.05.00.000 Кронштейн 229.05.00.002 Бобышка 229.05.00.001 Ребро 229.06.00.000 Полуось 229.06.00.002 Плита 229.06.00.001 Ось 229.07.00.000 Звездочка t=15,875 z=21 229.07.01.000 Звездочка 229.08.00.000 Ручка 229.09.00.000 Звездочка t=15,875 z=14 229.08.01.001 Планка 229.08.01.000 Планка 229.08.01.002 Бобышка 229.08.00.001 Ручка 229.00.00.003 Прокладка 229.00.00.008 Прокладка 229.01.00.003 Вставка 229.01.00.002 Ушко 229.02.01.001 Швеллер 229.02.01.002 Ребро 229.02.01.005 Трубы 229.02.01.004 Плита 229.02.00.003 Втулка распорная 229.02.00.006 Планка 229.02.01.006 Ушко 229.02.00.005 Полоса анкерная 229.02.02.004 Швеллер 229.02.02.001 Уголок левый 229.02.02.006 Уголок нижний 229.02.02.005 Швеллер 229.02.02.002 Уголок левый 229.02.02.003 Уголок правый 229.02.04.001 Уголок левый 229.02.04.002 Уголок 229.02.03.002 Уголок левый 229.02.03.001 Уголок правый 229.02.00.007 Прокладка 229.02.00.002 Полоса анкерная 229.02.00.001 Накладка 229.02.00.004 Уплотнение 229.03.00.006 Уплотнение боковое 229.02.02.007 Уголок правый 229.03.00.007 Планка 229.03.01.006 Уголок 229.03.00.002 Уплотнение данное 229.03.00.001 Ограничитель 229.03.01.001 Стойка левая 229.03.01.004 Лист 229.03.01.005 Стойка правая 229.03.01.003 Косынка 229.03.01.002 Плита 229.03.00.003 Планка 229.03.00.005 Планка 229.03.00.004 Планка 229.05.00.003 Основание 229.09.00.002 Звездочка 229.09.00.001 Втулка 229.07.01.002 Звездочка 229.07.00.001 Втулка 229.07.01.001 Втулка 229.00.00.001 Штанга 229.00.00.009 Рукав 229.00.00.015 Штырь 229.00.00.002 Крышка 229.00.00.017 Прокладка 229.07.01.003 Планка 229.00.00.004 Втулка 229.00.00.005 Кольцо верхнее 229.00.00.007 Кольцо сальниковое 229.00.00.006 Кольцо нижнее 229.00.00.013 Ось 229.00.00.014 Пружина 229.00.00.011 Шайба 229.00.00.012 Прокладка 229.00.00.016 Корпус 229.00.00.000 Затвор щитовой 1200х1200. Спецификация 229.01.00.000 Рычаг. Спецификация 229.02.03.000 Рама задняя. Спецификация 229.02.00.000 Рама затвора. Спецификация 229.03.02.000 Кожух. Спецификация 229.03.01.000 Щит. Спецификация 229.03.00.000 Щит в сборе. Спецификация 229.02.01.000 Рама верхняя. Спецификация 229.02.02.000 Рама передняя. Спецификация 229.04.00.000 Гайка. Спецификация 229.05.00.000 Кронштейн. Спецификация 229.09.00.000 Звездочка t=15,875 z=14. Спецификация 229.07.01.000 Звездочка. Спецификация 229.07.00.000 Звездочка t=15,875 z=21. Спецификация 229.08.00.000 Ручка. Спецификация |
| Разработан: | ЦНИИЭП инженерного оборудования |
| Утверждён: | 27.10.1972 Госгражданстрой (Gosgrazhdanstroy 205) |
| Заменяет собой: |
|













































