Скачать Типовой проект 214-1-260.83 Альбом I. Архитектурно-строительные и технологические чертежиДата актуализации: 01.01.2021
|
| Обозначение: | Типовой проект 214-1-260.83 |
| Обозначение англ: | 214-1-260.83 |
| Статус: | не определен законодательством |
| Название рус.: | Альбом I. Архитектурно-строительные и технологические чертежи |
| Дата добавления в базу: | 01.09.2013 |
| Дата актуализации: | 01.01.2021 |
| Дата введения: | 15.03.1984 |
| Дата окончания срока действия: | 30.06.2003 |
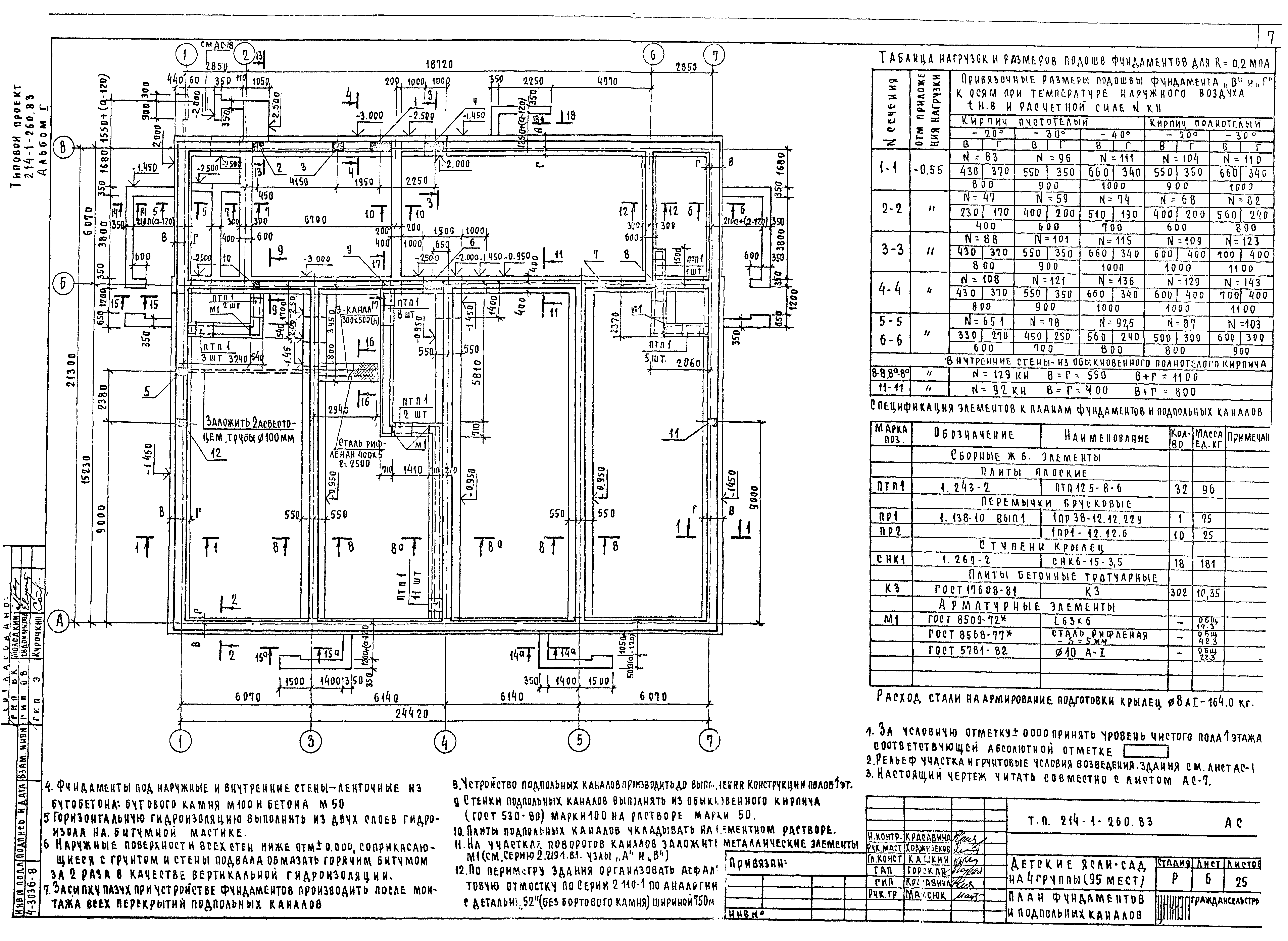
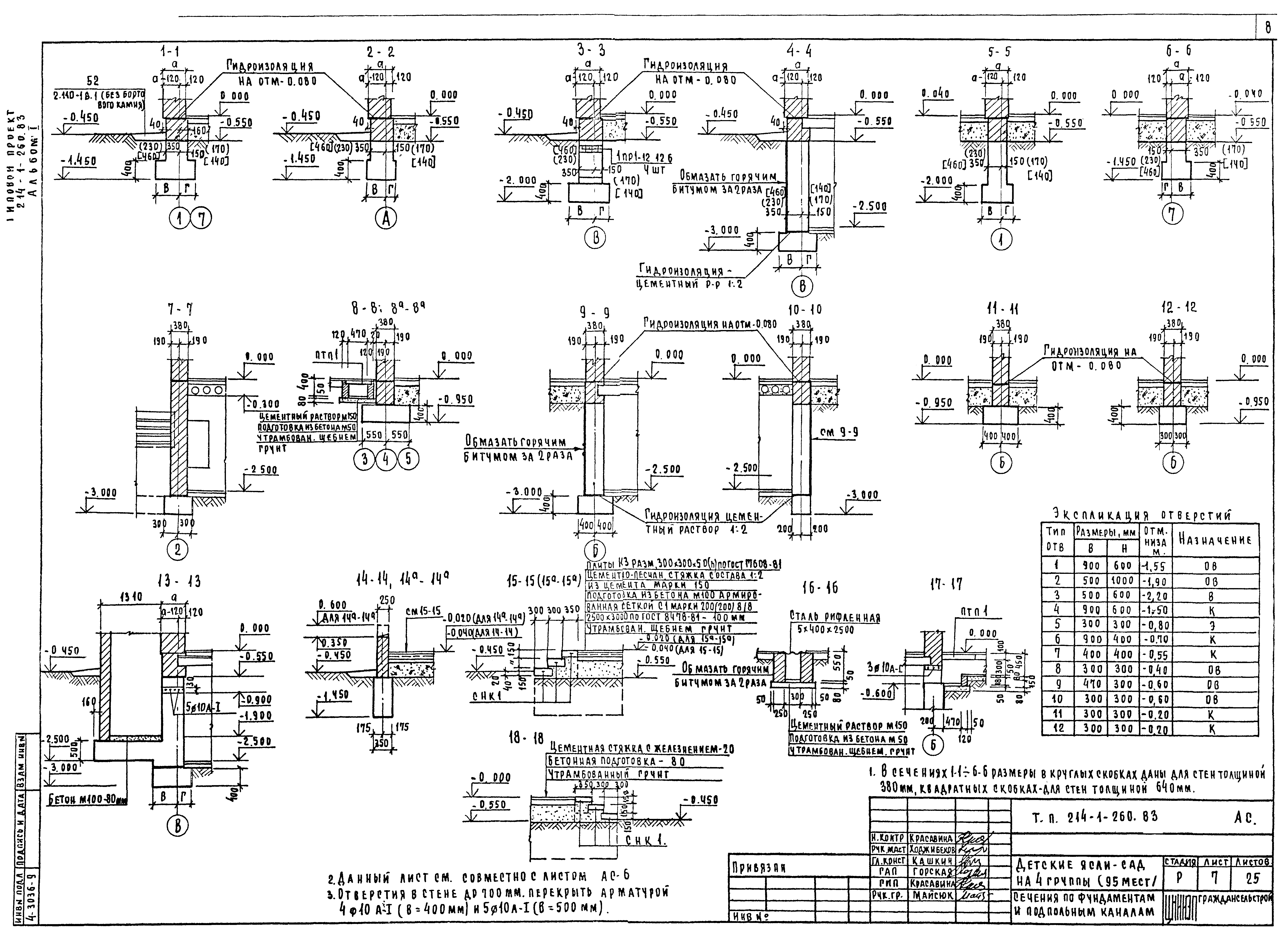
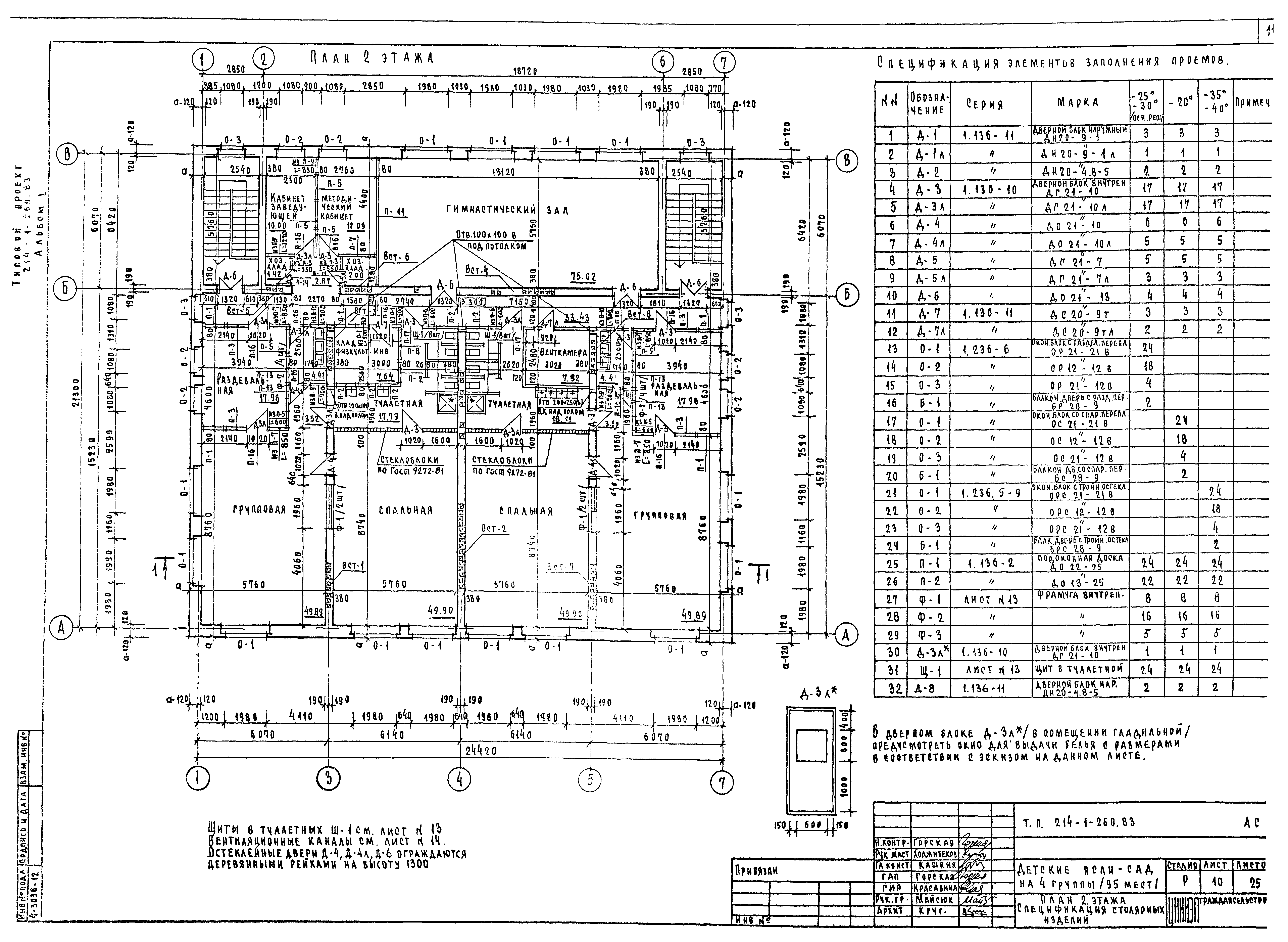
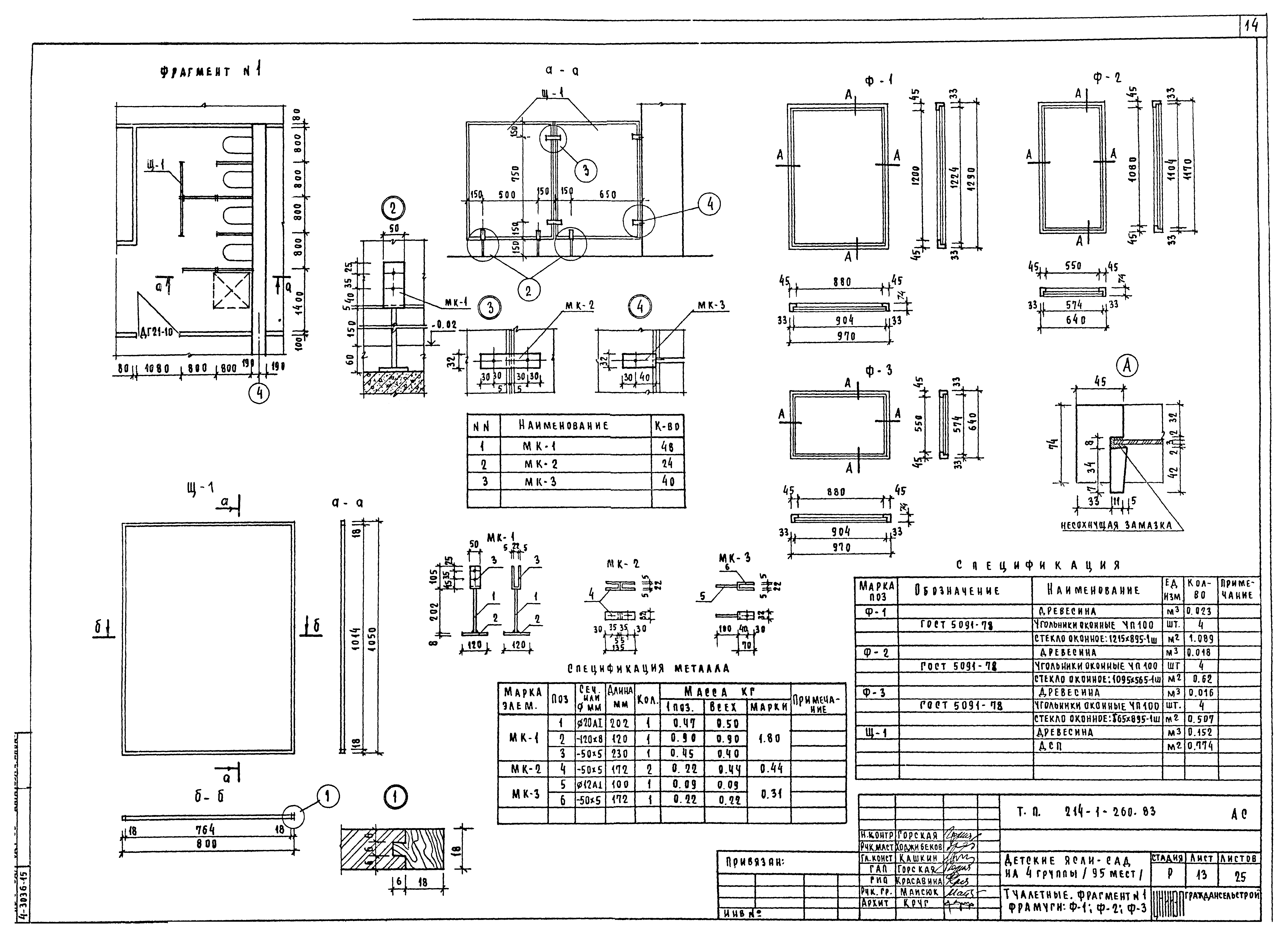
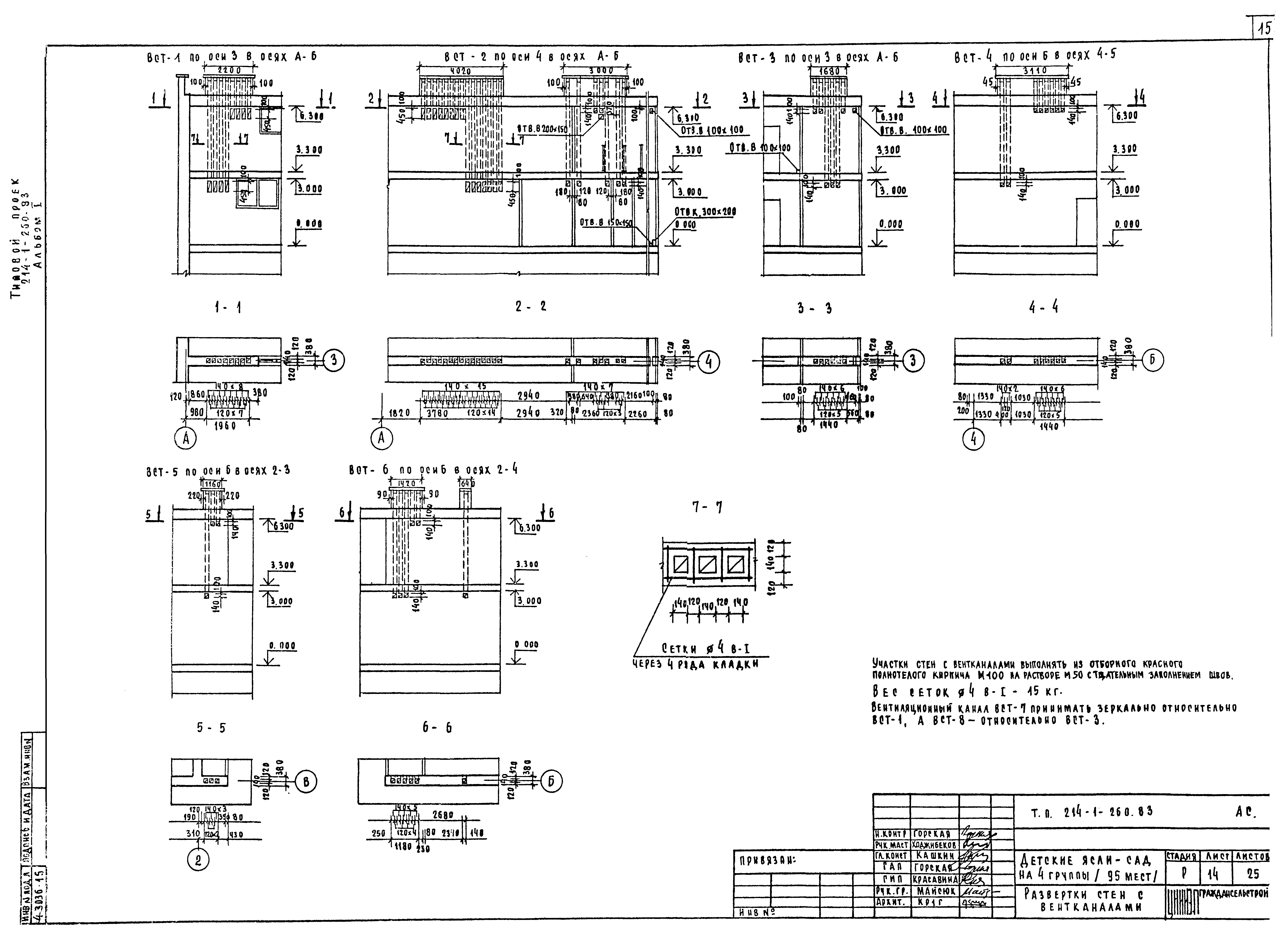
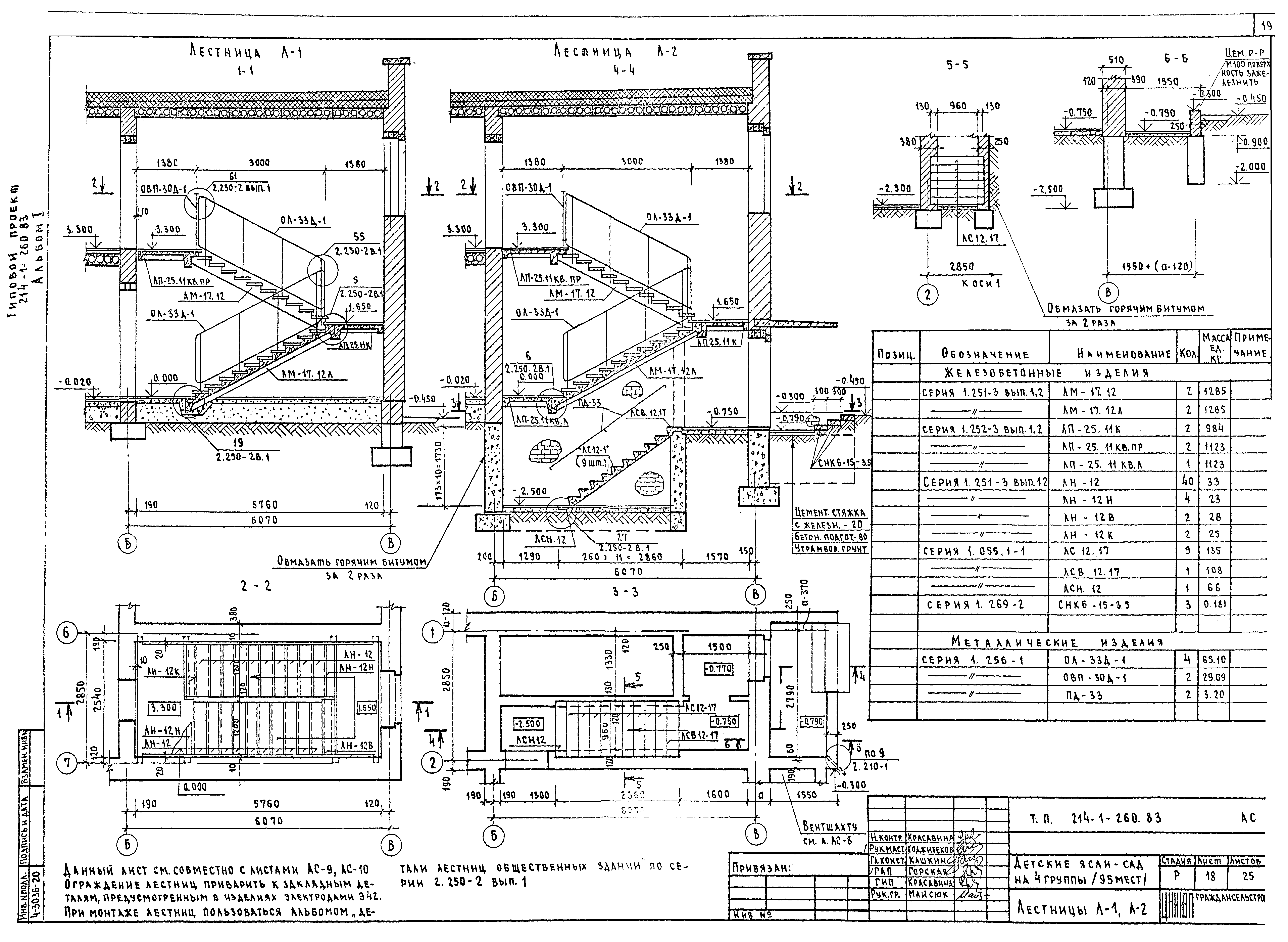
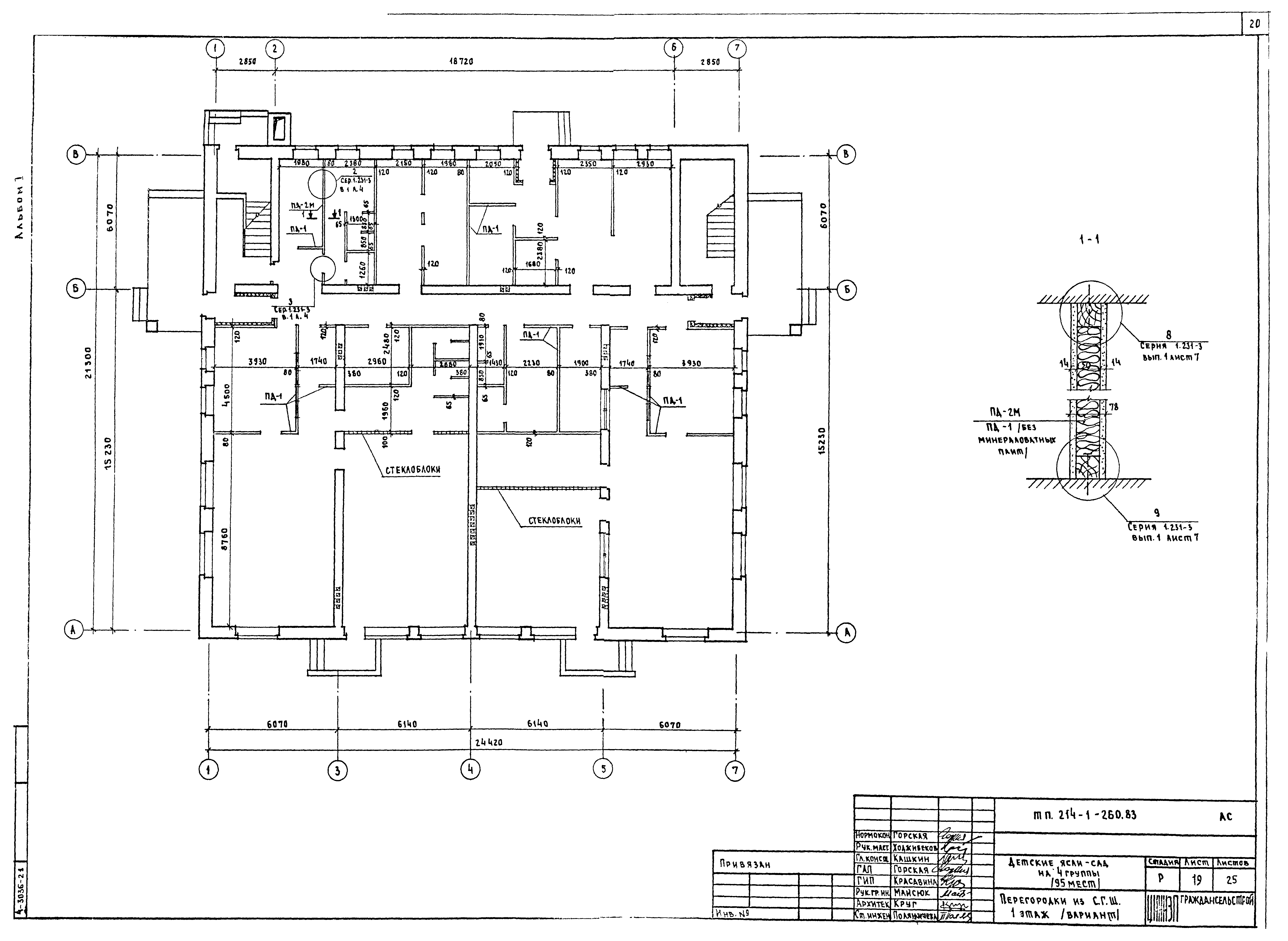
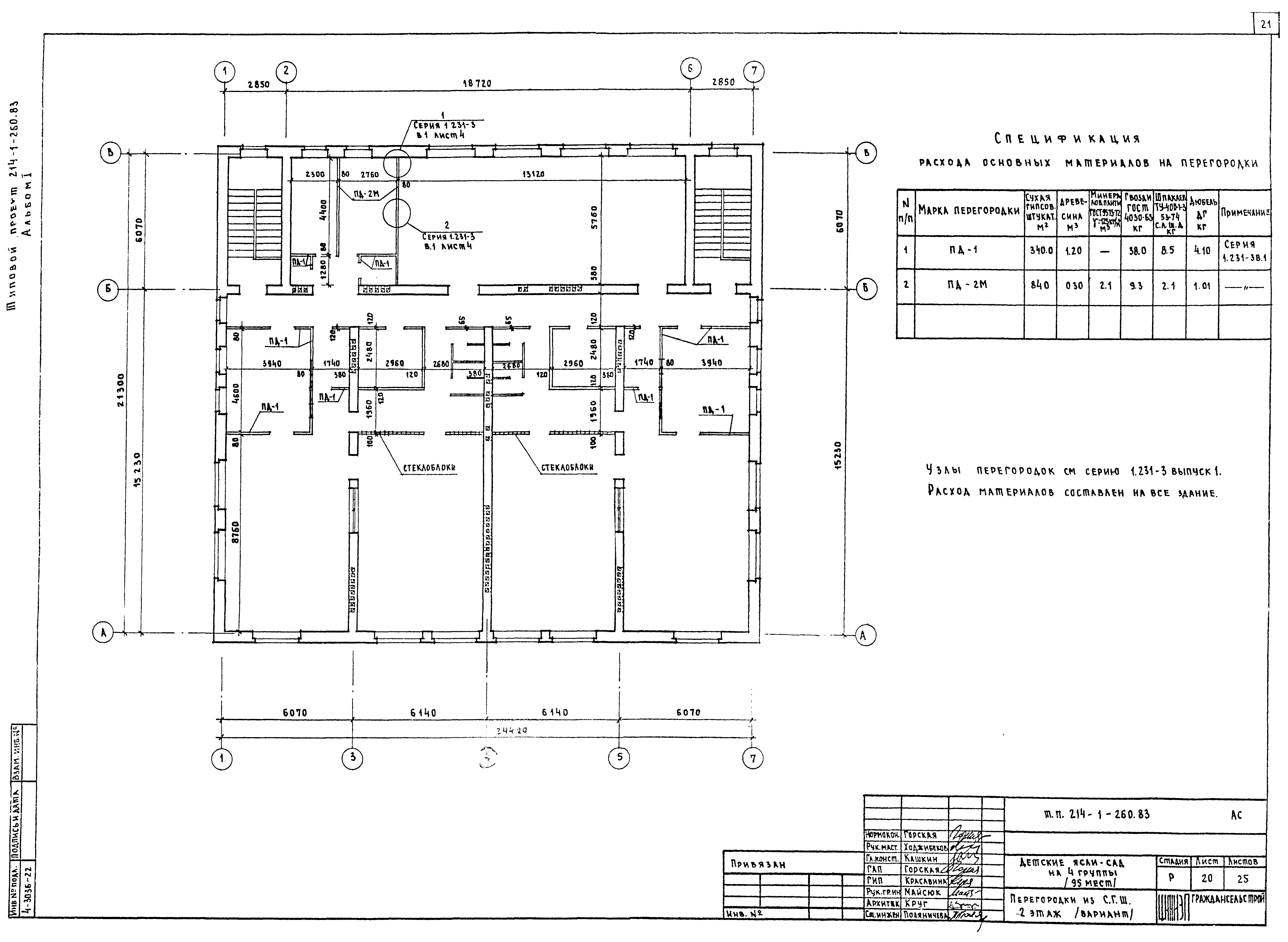
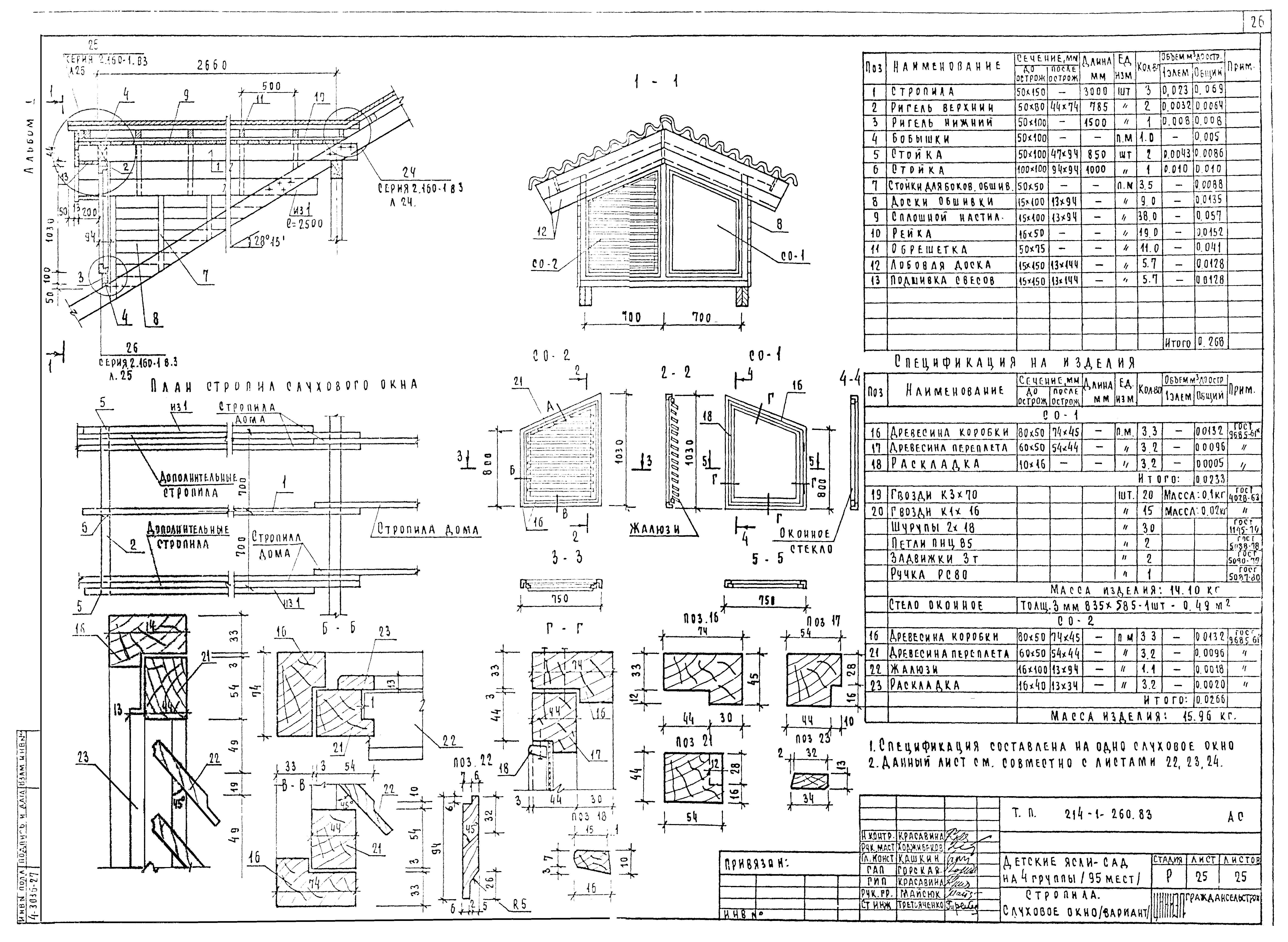
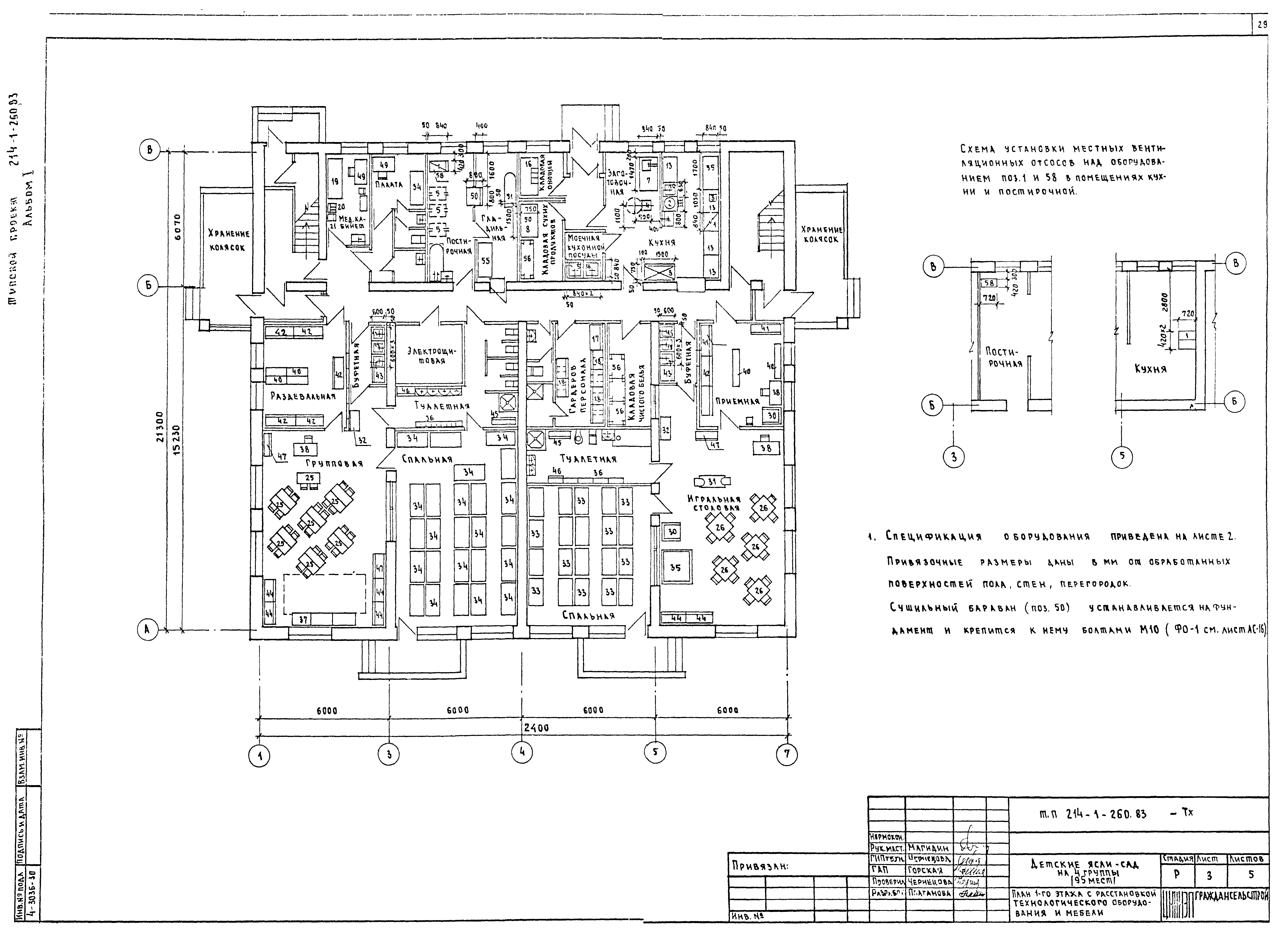
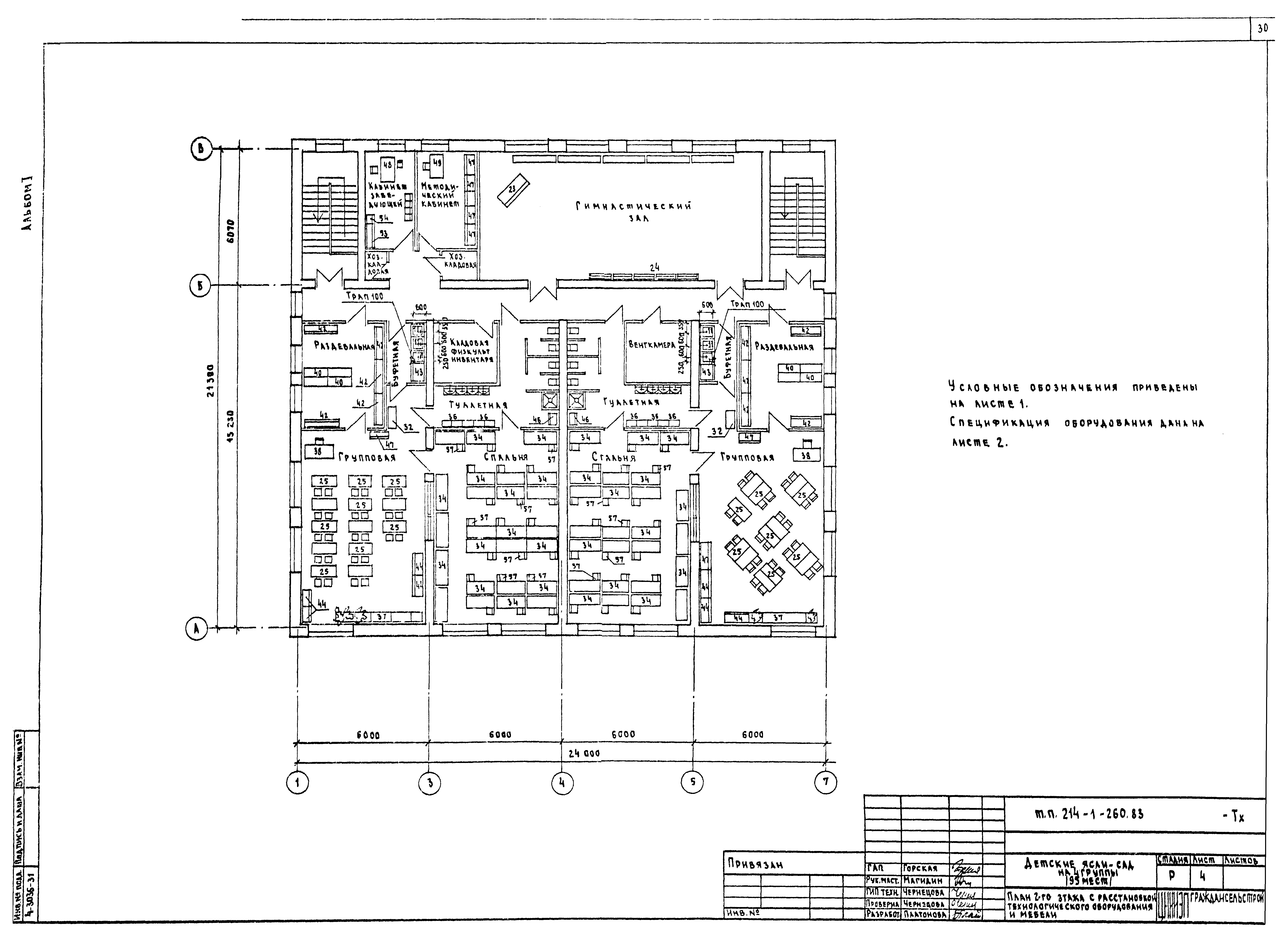
| Оглавление: | Чертежи марки АС Обложка Титульный лист Общие данные (начало) Общие данные (продолжение) Общие данные (окончание) План фундаментов и подпольных каналов Сечения по фундаментам и подпольным каналам Венткамера План 1 этажа. План подвала План 2 этажа. Спецификация столярных изделий Разрез 1-1. Деталь ограждения радиаторов Фасады 1-7,А-В,7-1 Туалетные. Фрагмент № 1. Фрамуги: Ф-1,Ф-2,Ф-3 Развертки стен с вентканалами План перемычек. Ведомость перемычек Схемы расположения элементов перекрытия, покрытия и перекрытия над подвалом План кровли. Монолитные участки УМ-1,УМ-2 Лестницы Л-1,Л-2 Перегородки из с г.ш. 1 этажа (вариант) Перегородки из с г.ш. 2 этажа (вариант) Фасады 1-7,А-В,7-1 (вариант с чердачной крышей) Стропила. План. Разрез 1-1 (вариант) Стропила. Разрезы 2-2-5-5. План кровли (вариант) Стропила. Узлы 4-9 (вариант) Стропила. Слуховое окно (вариант) Чертежи марки ТХ Спецификация технологического оборудования и мебели План 1 этажа с расстановкой технологического оборудования и мебели План 2 этажа с расстановкой технологического оборудования и мебели Привязка сантехнических и электротехнических подводов к оборудованию |
| Разработан: | ЦНИИЭП граждансельстрой |
| Утверждён: | 05.11.1982 Госгражданстрой (Gosgrazhdanstroy 297) |






























