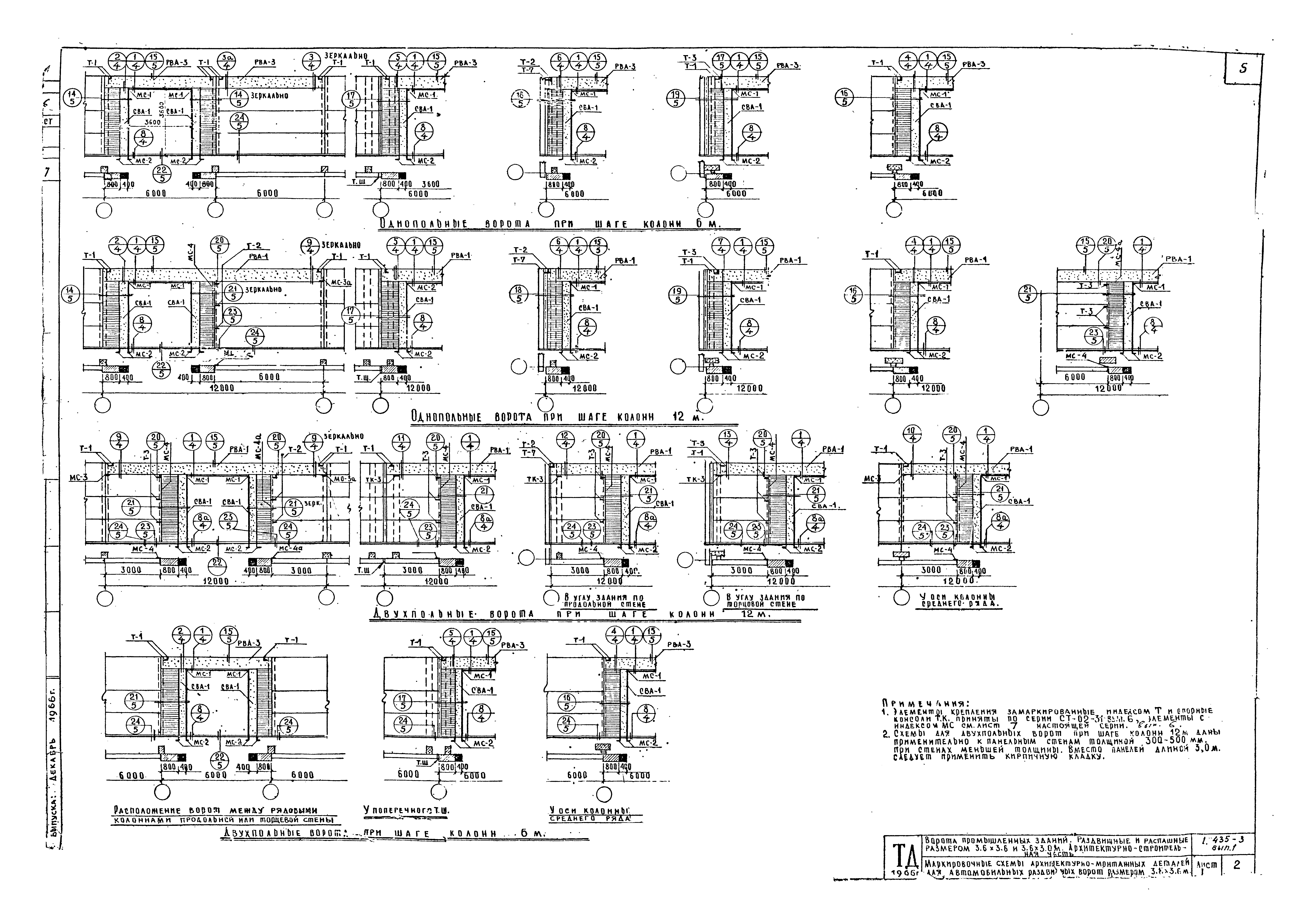
Скачать Серия 1.435-3 Выпуск 1. Архитектурно-строительная часть. Рабочие чертежиДата актуализации: 01.01.2021 Серия 1.435-3
Выпуск 1. Архитектурно-строительная часть. Рабочие чертежи| Обозначение: | Серия 1.435-3 | | Обозначение англ: | Series 1.435-3 | | Статус: | не действует | | Название рус.: | Выпуск 1. Архитектурно-строительная часть. Рабочие чертежи | | Дата добавления в базу: | 01.09.2013 | | Дата актуализации: | 01.01.2021 | | Дата введения: | 01.09.1969 | | Дата окончания срока действия: | 01.10.1977 | | Разработан: | ЦНИИпромзданий
| | Утверждён: | 25.04.1969 Госстрой СССР (Государственный комитет Совета Министров СССР по делам строительства) (USSR Gosstroy 55)
|
       
|