Скачать Типовой проект 274-20-144.85 Альбом II. Изделия железобетонные заводского изготовления. Изделия монолитных железобетонных конструкций. Изделия металлические. Изделия разныеДата актуализации: 01.01.2021
|
| Обозначение: | Типовой проект 274-20-144.85 |
| Обозначение англ: | 274-20-144.85 |
| Статус: | не определен законодательством |
| Название рус.: | Альбом II. Изделия железобетонные заводского изготовления. Изделия монолитных железобетонных конструкций. Изделия металлические. Изделия разные |
| Дата добавления в базу: | 01.09.2013 |
| Дата актуализации: | 01.01.2021 |
| Дата введения: | 08.10.1985 |
| Дата окончания срока действия: | 30.06.2003 |
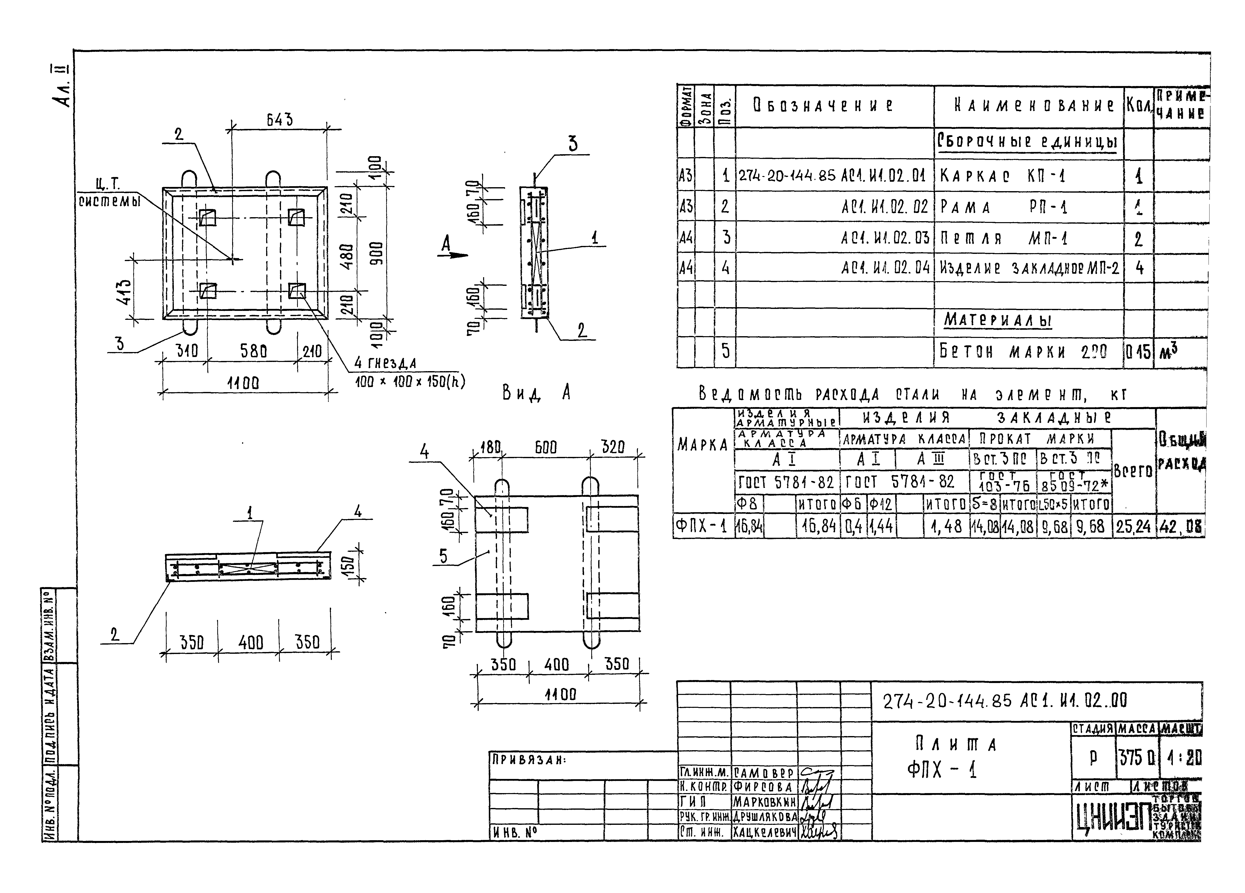
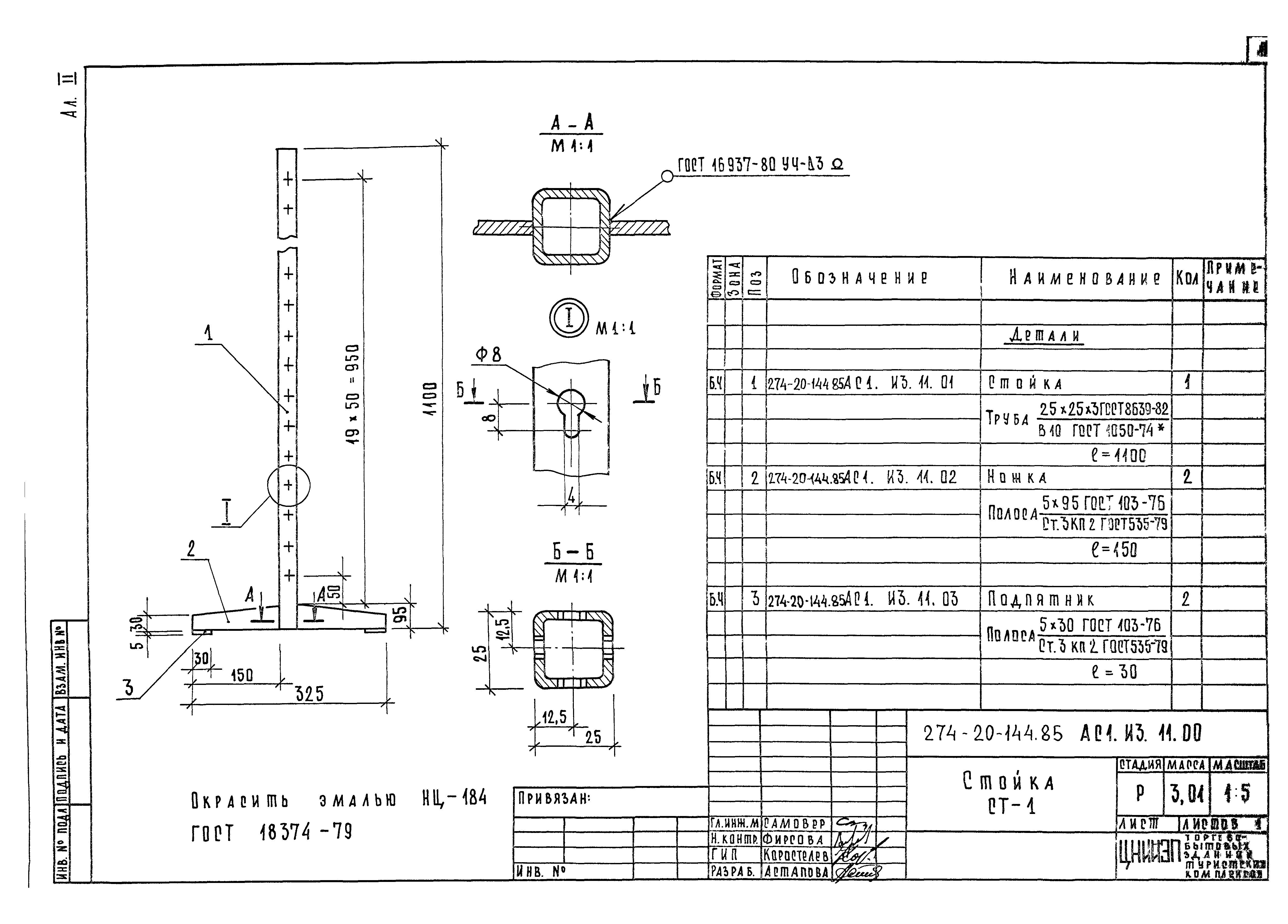
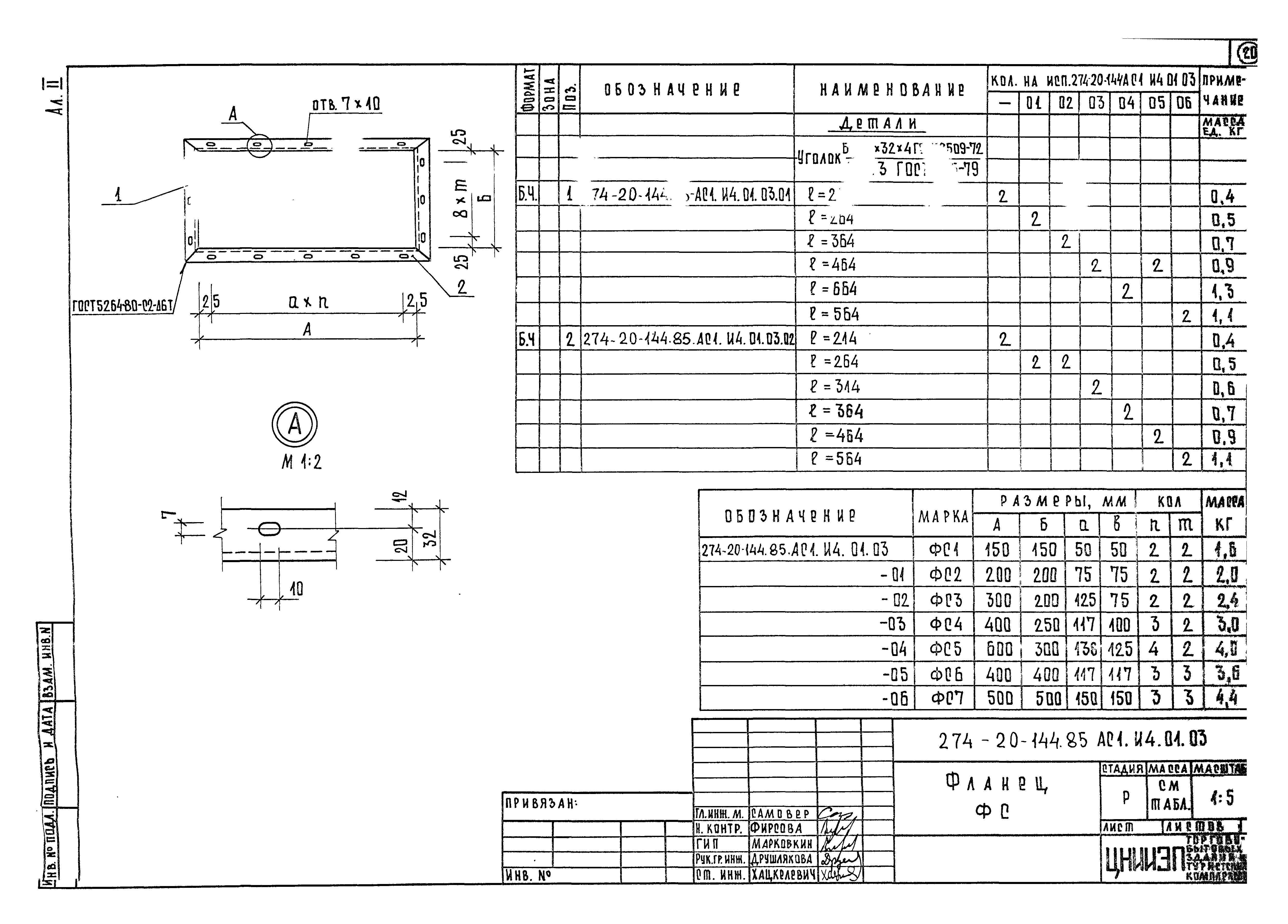
| Оглавление: | Содержание альбома 274-20-144.85 АС1.И1.01.00 Колонна 2КД3.33-1,2-1; 2КД3.33-1,2-2; 2КД3.33-1,2-3 274-20-144.85 АС1.И1.02.00 Плита ФПХ-1 274-20-144.85 АС1.И2.01.00 Каркас плоский К-1 274-20-144.85 АС1.И3.01.00 Рама (Р-1, Р-2, Р-3, Р-4, Р-5, Р-6) 274-20-144.85 АС1.И3.02.00 Изделие закладное М3 274-20-144.85 АС1.И3.03.00 Рама (Р-7, Р-8) 274-20-144.85 АС1.И3.04.00 Анкер А-1 274-20-144.85 АС1.И3.05.00 Анкер А-2 274-20-144.85 АС1.И3.06.00 Кронштейн (КР-1, КР-2) 274-20-144.85 АС1.И3.07.00 Крышка КЛ-1 274-20-144.85 АС1.И3.08.00 Анкер АК-1 274-20-144.85 АС1.И3.09.00 Крышка (КЛ-2, КЛ-3, КЛ-4) 274-20-144.85 АС1.И3.10.00 Изделие закладное (М1, М2, М4) 274-20-144.85 АС1.И3.11.00 Стойка СТ-1 274-20-144.85 АС1.И4.01.00 Звено асбестоцементного воздуховода |
| Разработан: | ЦНИИЭП торгово-бытовых зданий и туристских комплексов |
| Утверждён: | 06.03.1968 Госгражданстрой (Gosgrazhdanstroy 43) |




















