Скачать ОСТ 108.023.107-85 Турбины гидравлические горизонтальные капсульные. Типы, основные параметры и размерыДата актуализации: 01.01.2021
|
| Обозначение: | ОСТ 108.023.107-85 |
| Обозначение англ: | OST 108.023.107-85 |
| Статус: | не действует |
| Название рус.: | Турбины гидравлические горизонтальные капсульные. Типы, основные параметры и размеры |
| Дата добавления в базу: | 01.09.2013 |
| Дата актуализации: | 01.01.2021 |
| Дата введения: | 01.01.1986 |
| Дата окончания срока действия: | 01.07.1990 |
| Область применения: | Стандарт распространяется на горизонтальные капсульные поворотно-лопастные осевые гидравлические турбины (капсульные гидротурбины). Стандарт устанавливает типы капсульных гидротурбин, зоны их применения по напорам, диаметры рабочих колес и основные параметры. |
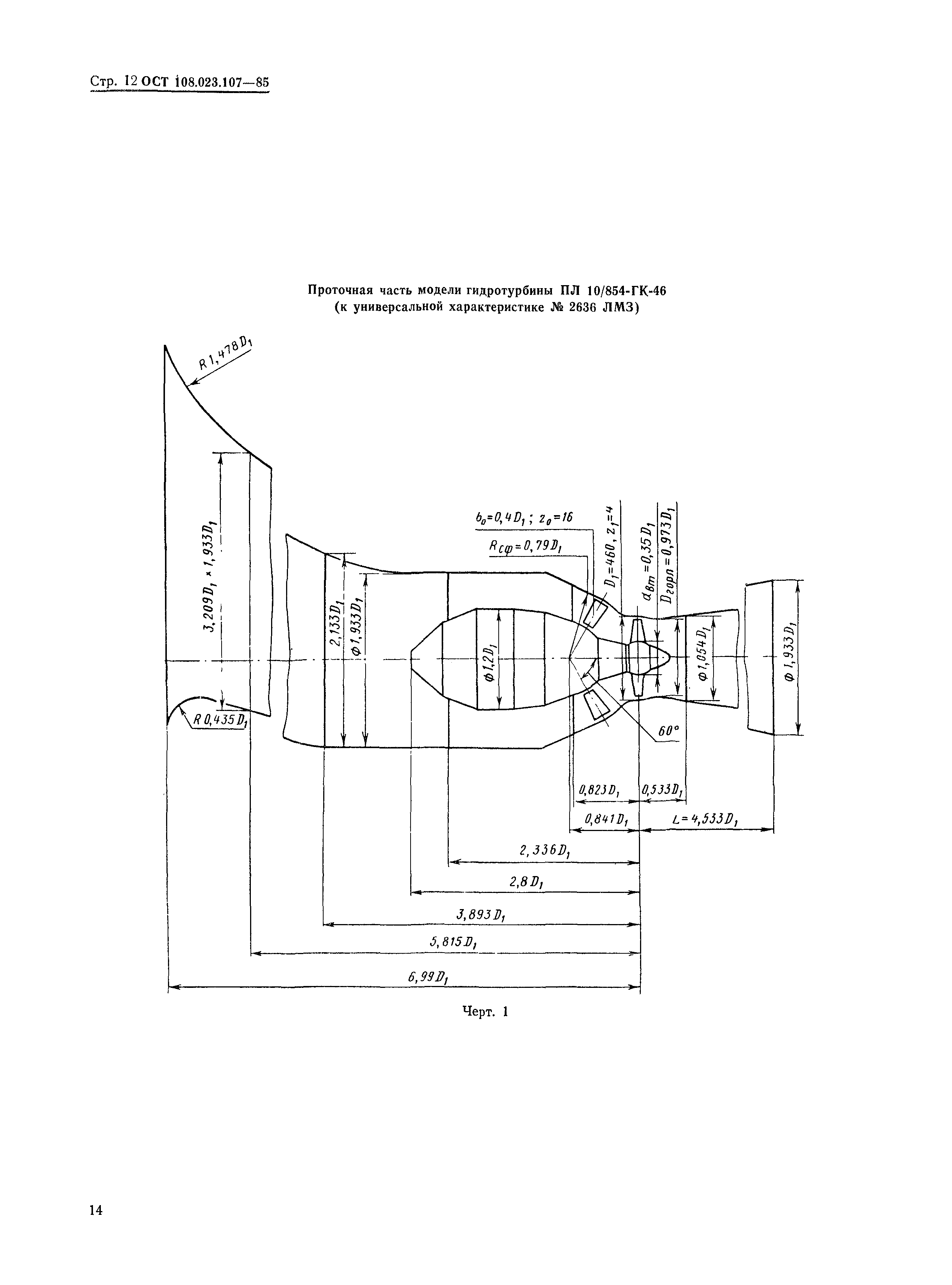
| Оглавление: | 1. Типы и размеры 2. Основные размеры Приложение 1 (рекомендуемое). Расчет эксплуатационных характеристик гидротурбин Приложение 2 (рекомендуемое). Универсальные и разгонные характеристики модельных гидротурбин |
| Разработан: | НПО ЦКТИ |
| Утверждён: | 08.04.1985 Министерство энергетического машиностроения (Ministry of Energy Machinery Manufacturing СЧ-002/2741) |
| Принят: | Министерство энергетики и электрификации СССР (USSR Ministry of Energy and Electrical Power ) |
| Заменяет собой: |
|





































