Скачать Типовой проект 902-1-139.88 Альбом 2. Технология производства. Внутренний водопровод и канализация. Отопление и вентиляция (из ТП 902-1-136.88)Дата актуализации: 01.01.2021
|
| Обозначение: | Типовой проект 902-1-139.88 |
| Обозначение англ: | 902-1-139.88 |
| Статус: | не определен законодательством |
| Название рус.: | Альбом 2. Технология производства. Внутренний водопровод и канализация. Отопление и вентиляция (из ТП 902-1-136.88) |
| Дата добавления в базу: | 01.09.2013 |
| Дата актуализации: | 01.01.2021 |
| Дата введения: | 19.07.1988 |
| Дата окончания срока действия: | 30.06.2003 |
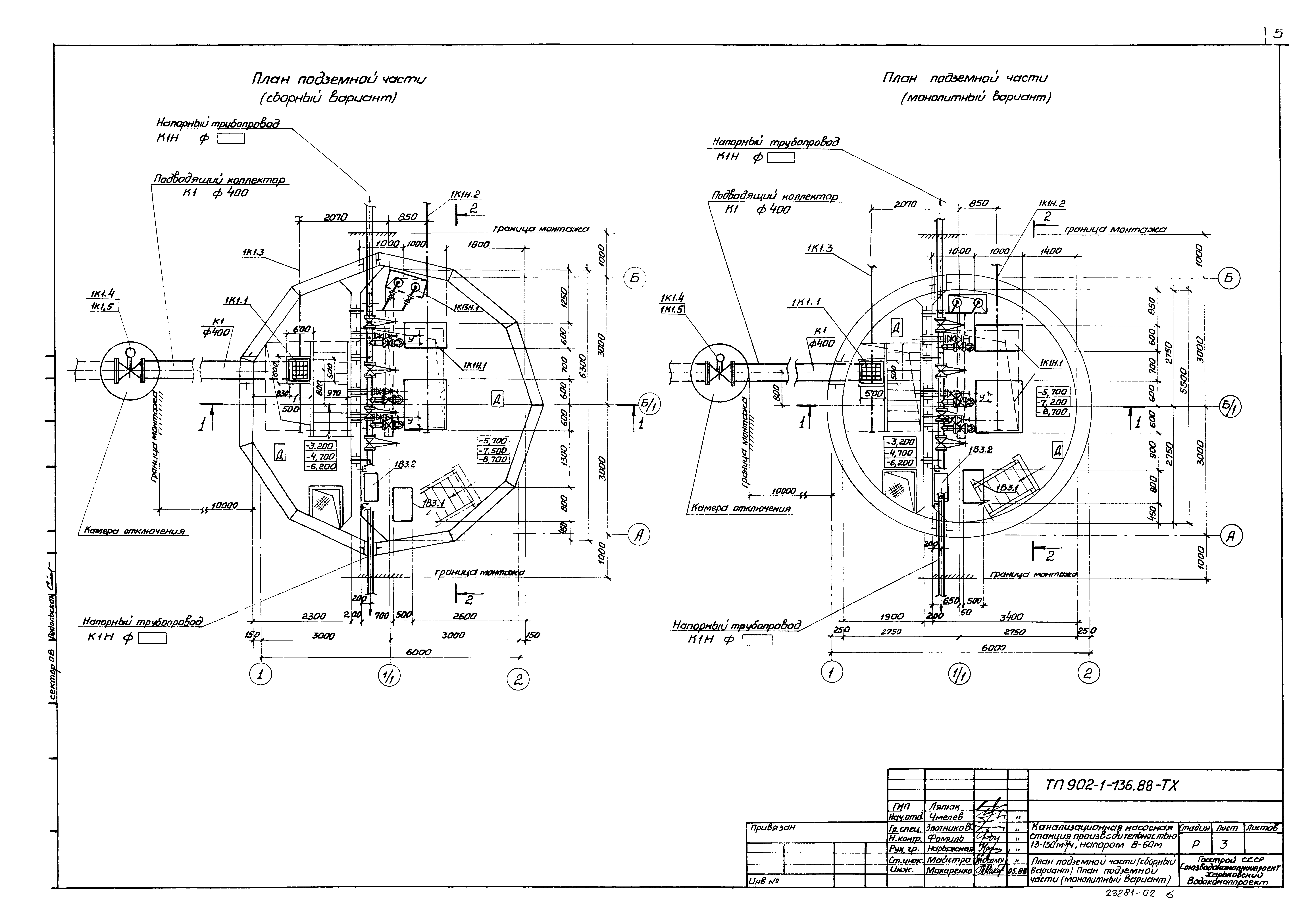
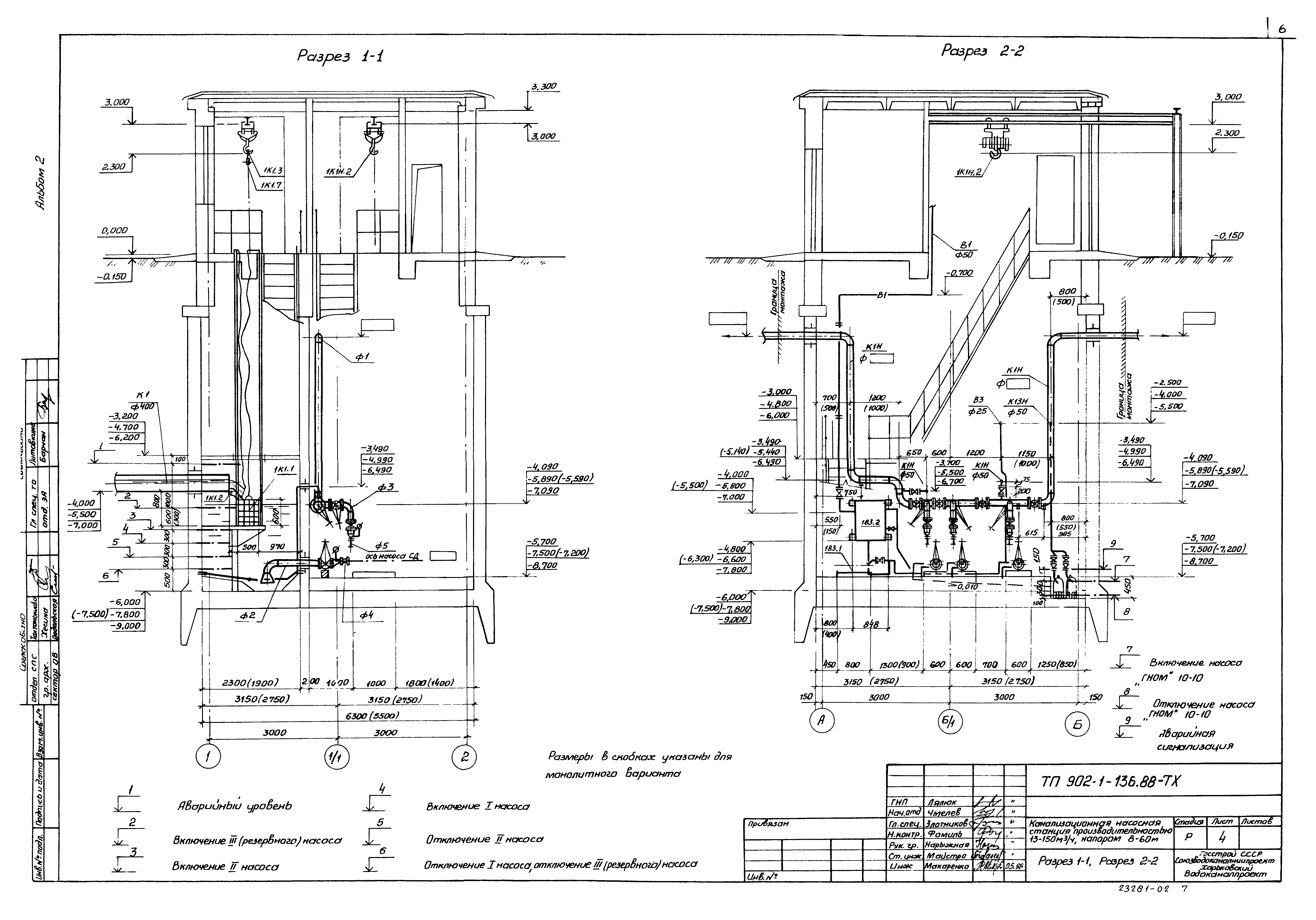
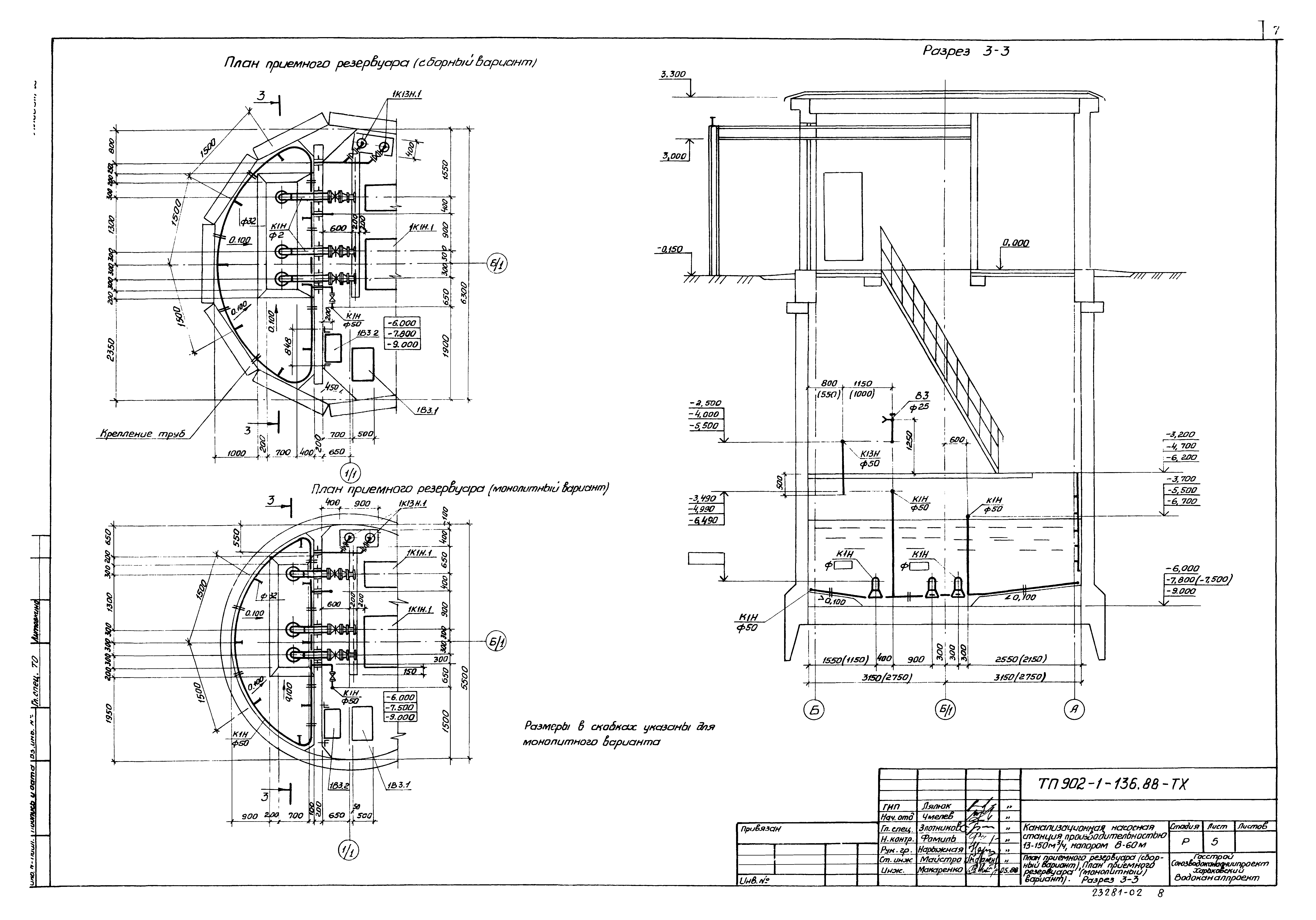
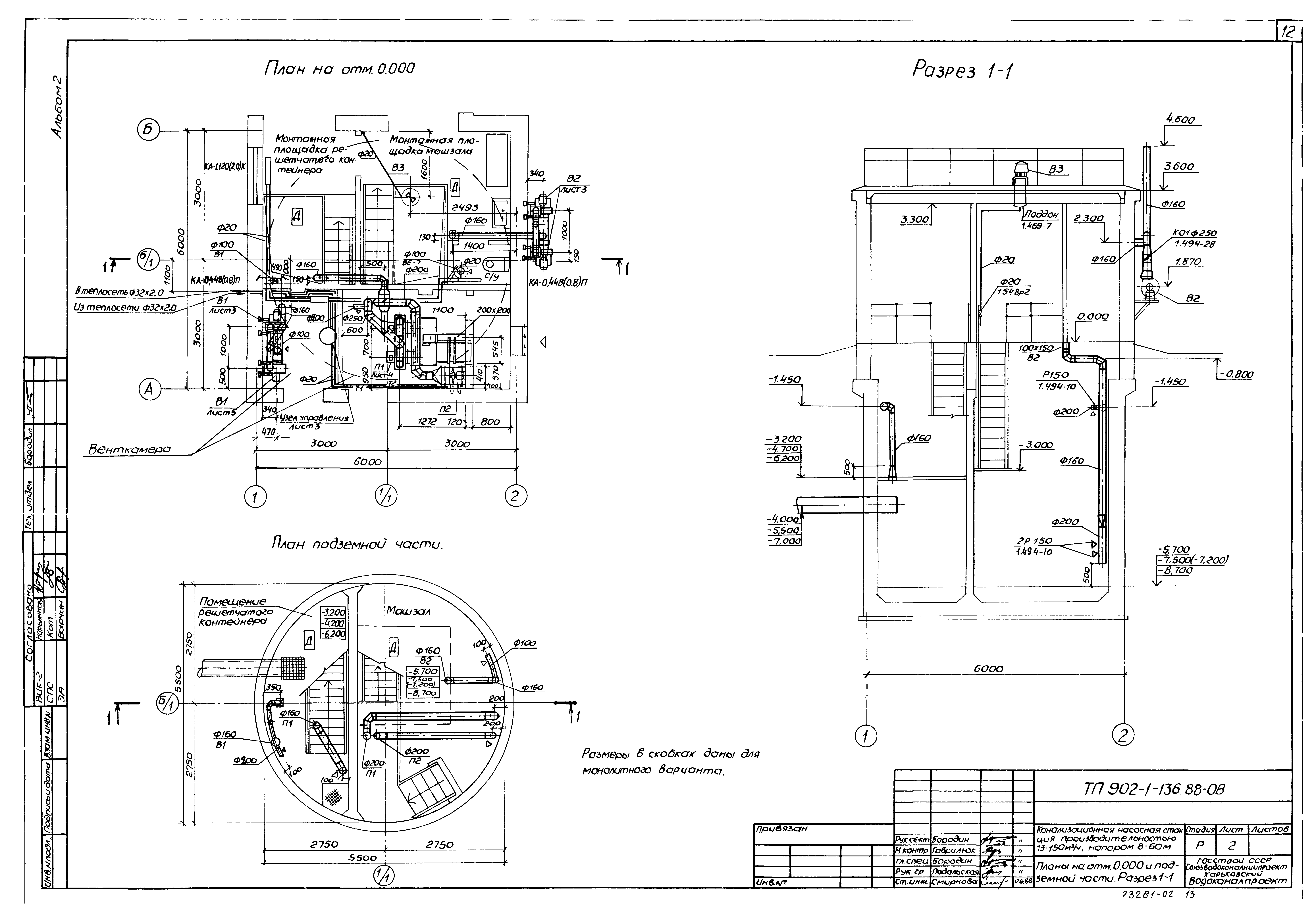
| Оглавление: | Технология производства ТХ Общие данные План подземной части (сборный вариант). План подземной части (монолитный вариант) Разрез 1-1. Разрез 2-2 План приемного резервуара (сборный вариант). План приемного резервуара (монолитный вариант). Разрез 3-3 Схемы системы 1К1Н План машинного зала с системой ВЗ. Схемы систем 1ВЗ, 1К13, 1К13Н Внутренний водопровод и канализация ВК Общие данные. План на отм. 0.000. Схемы систем В1,К1 Отопление и вентиляция ОВ Общие данные План на отм. 0.000 и подземной части. Разрез 1-1 Схемы систем отопления, теплоснабжения установки П1, узла управления, систем П1, П2, В1, В2, В3, ВЕ1 Установка систем П1,П2 Установка систем В1,В2 |
| Разработан: | Харьковский Водоканалпроект |
| Утверждён: | 19.07.1988 Госстрой СССР (Государственный комитет Совета Министров СССР по делам строительства) (USSR Gosstroy 46) |
| Заменяет собой: |
















