Скачать Типовой проект 902-1-143.88 Альбом 2. Технология производства. Внутренний водопровод и канализация. Отопление и вентиляция (из ТП 902-1-142.88)

Дата актуализации: 01.01.2021

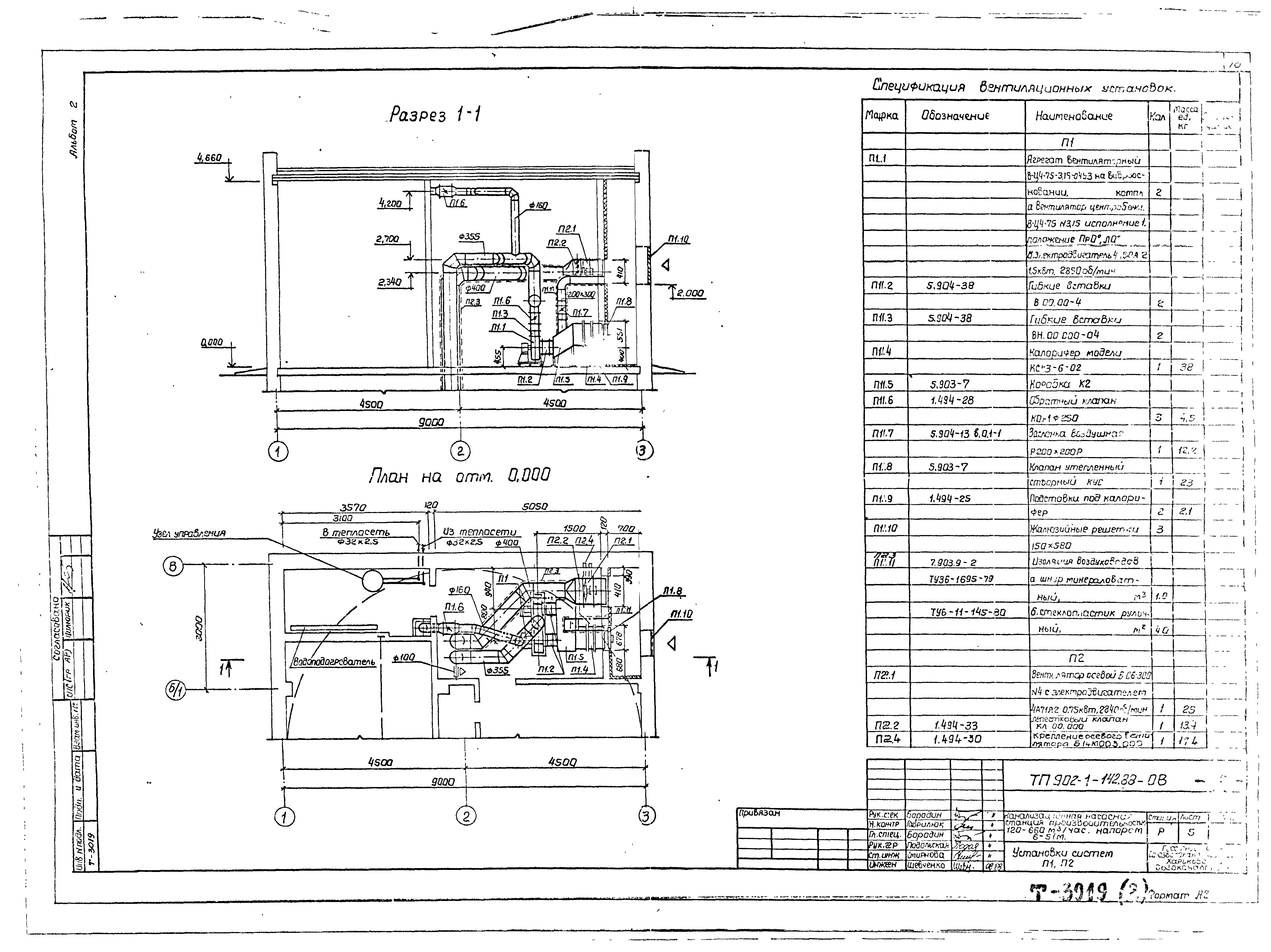
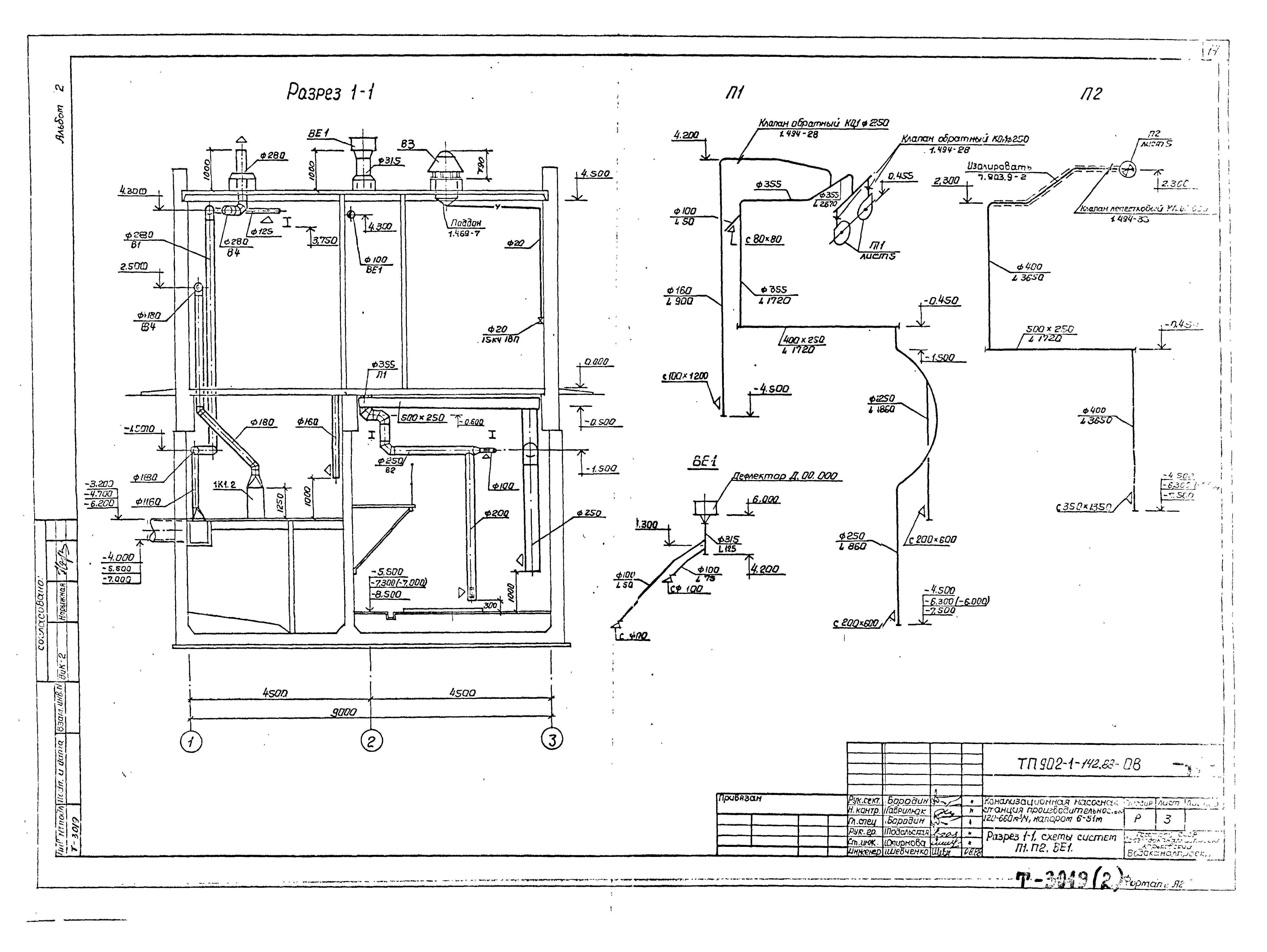
Типовой проект 902-1-143.88

Альбом 2. Технология производства. Внутренний водопровод и канализация. Отопление и вентиляция (из ТП 902-1-142.88)

Обозначение: Типовой проект 902-1-143.88
Обозначение англ: 902-1-143.88
Статус:не определен законодательством
Название рус.:Альбом 2. Технология производства. Внутренний водопровод и канализация. Отопление и вентиляция (из ТП 902-1-142.88)
Дата добавления в базу:01.09.2013
Дата актуализации:01.01.2021
Дата введения:09.08.1988
Дата окончания срока действия:30.06.2003
Разработан: Харьковский Водоканалпроект
Утверждён:09.08.1988 Госстрой СССР (Государственный комитет Совета Министров СССР по делам строительства) (USSR Gosstroy 53)
Типовой проект 902-1-143.88Типовой проект 902-1-143.88Типовой проект 902-1-143.88Типовой проект 902-1-143.88Типовой проект 902-1-143.88Типовой проект 902-1-143.88Типовой проект 902-1-143.88Типовой проект 902-1-143.88Типовой проект 902-1-143.88Типовой проект 902-1-143.88Типовой проект 902-1-143.88Типовой проект 902-1-143.88Типовой проект 902-1-143.88Типовой проект 902-1-143.88Типовой проект 902-1-143.88Типовой проект 902-1-143.88Типовой проект 902-1-143.88