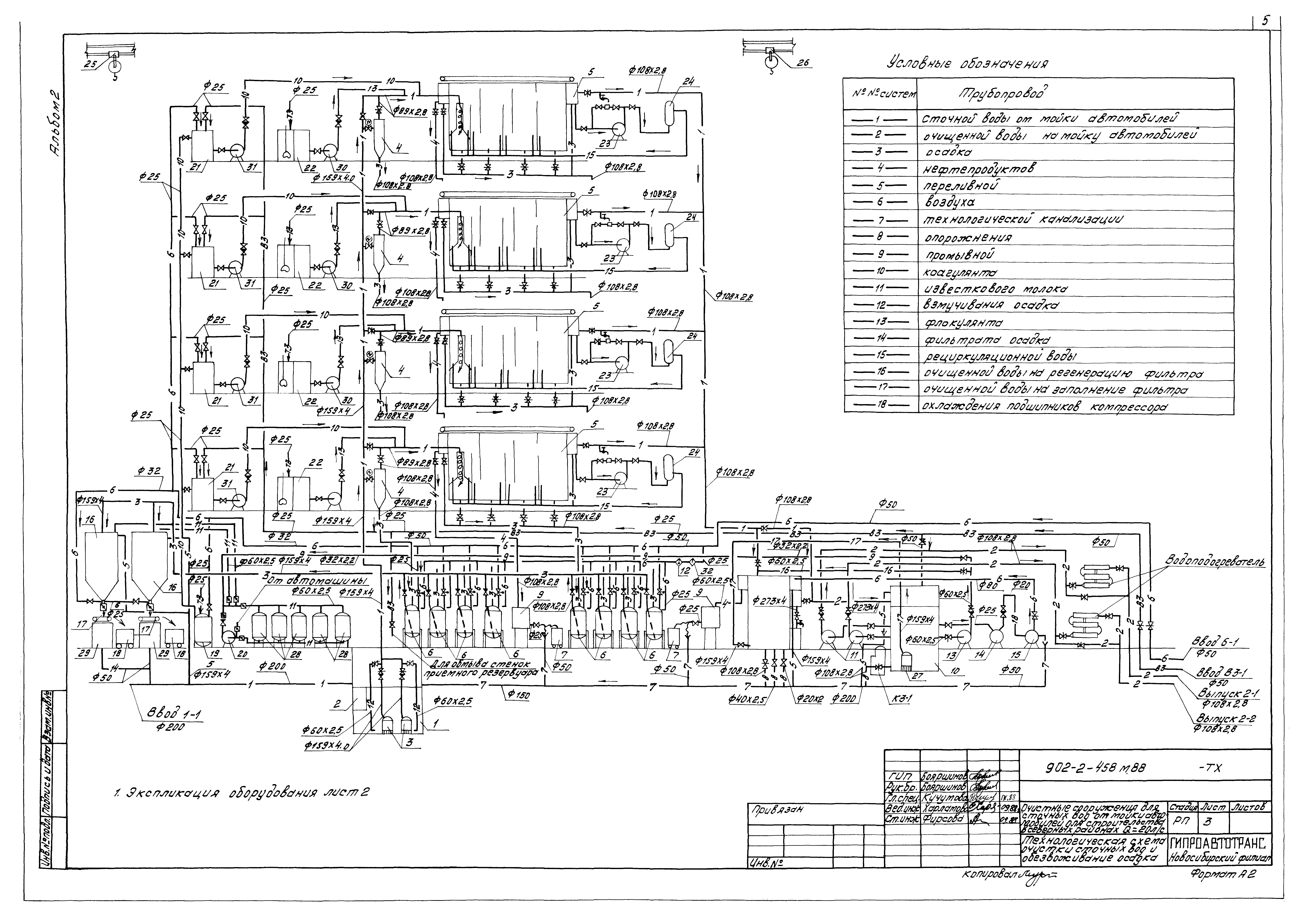
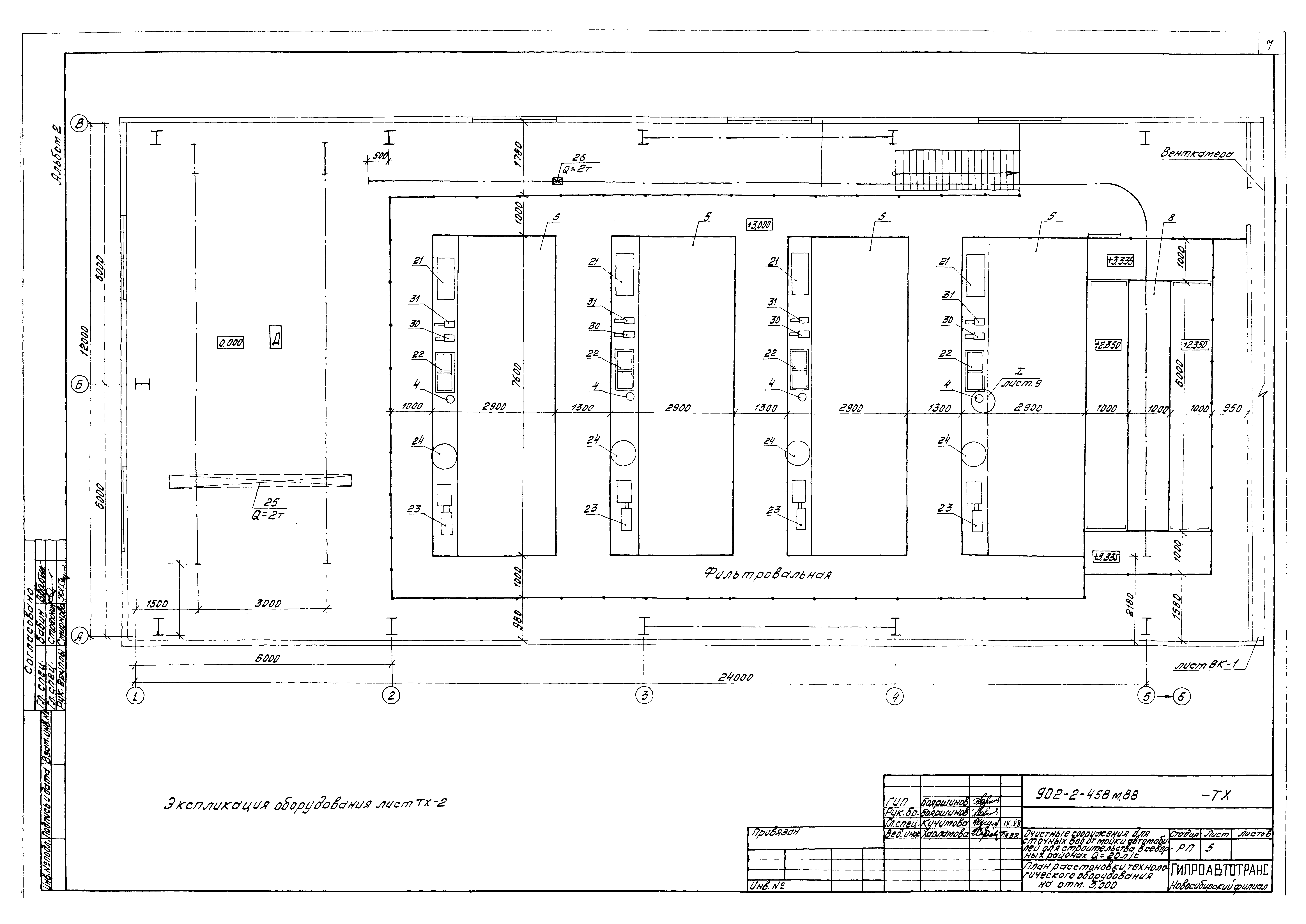
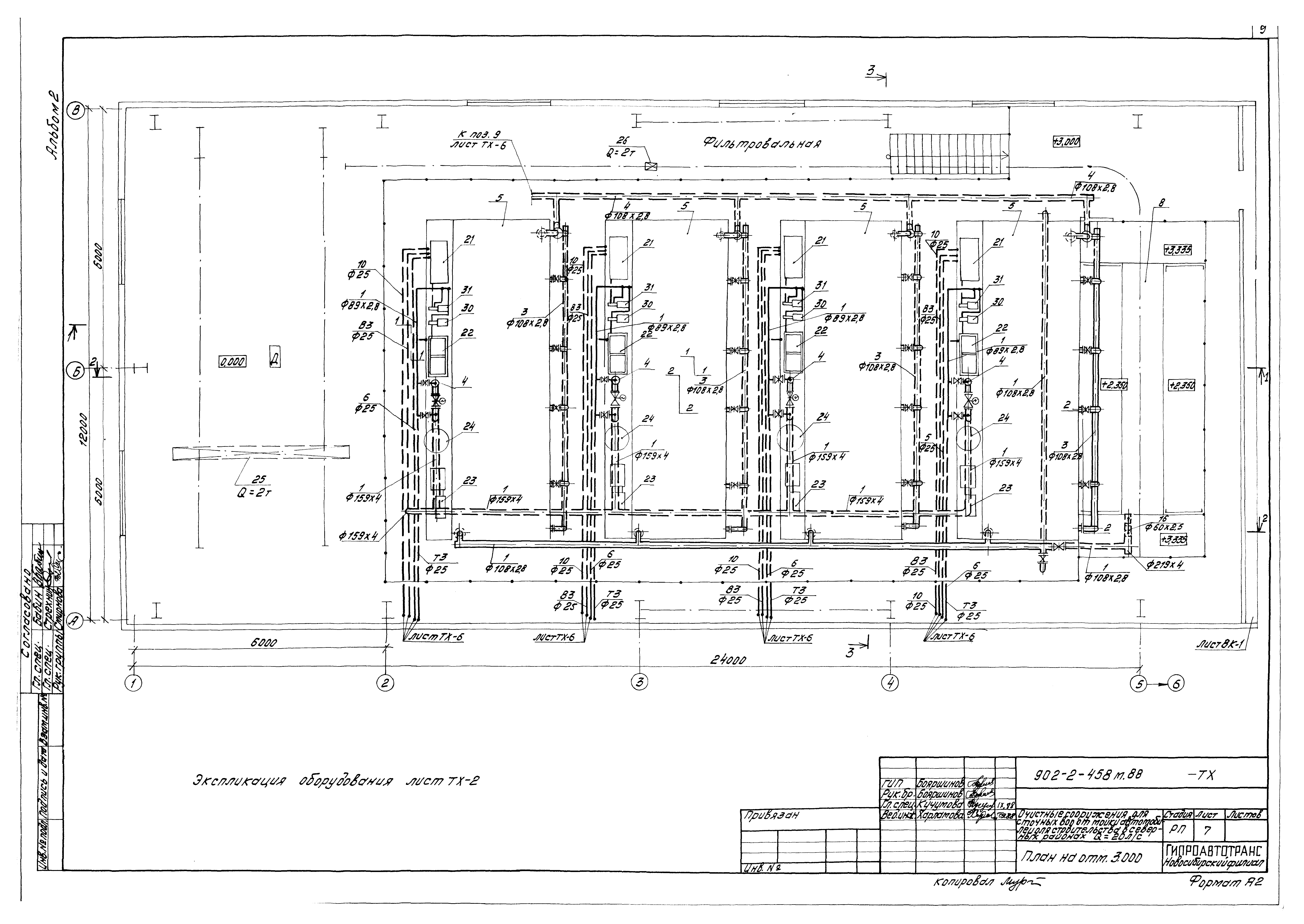
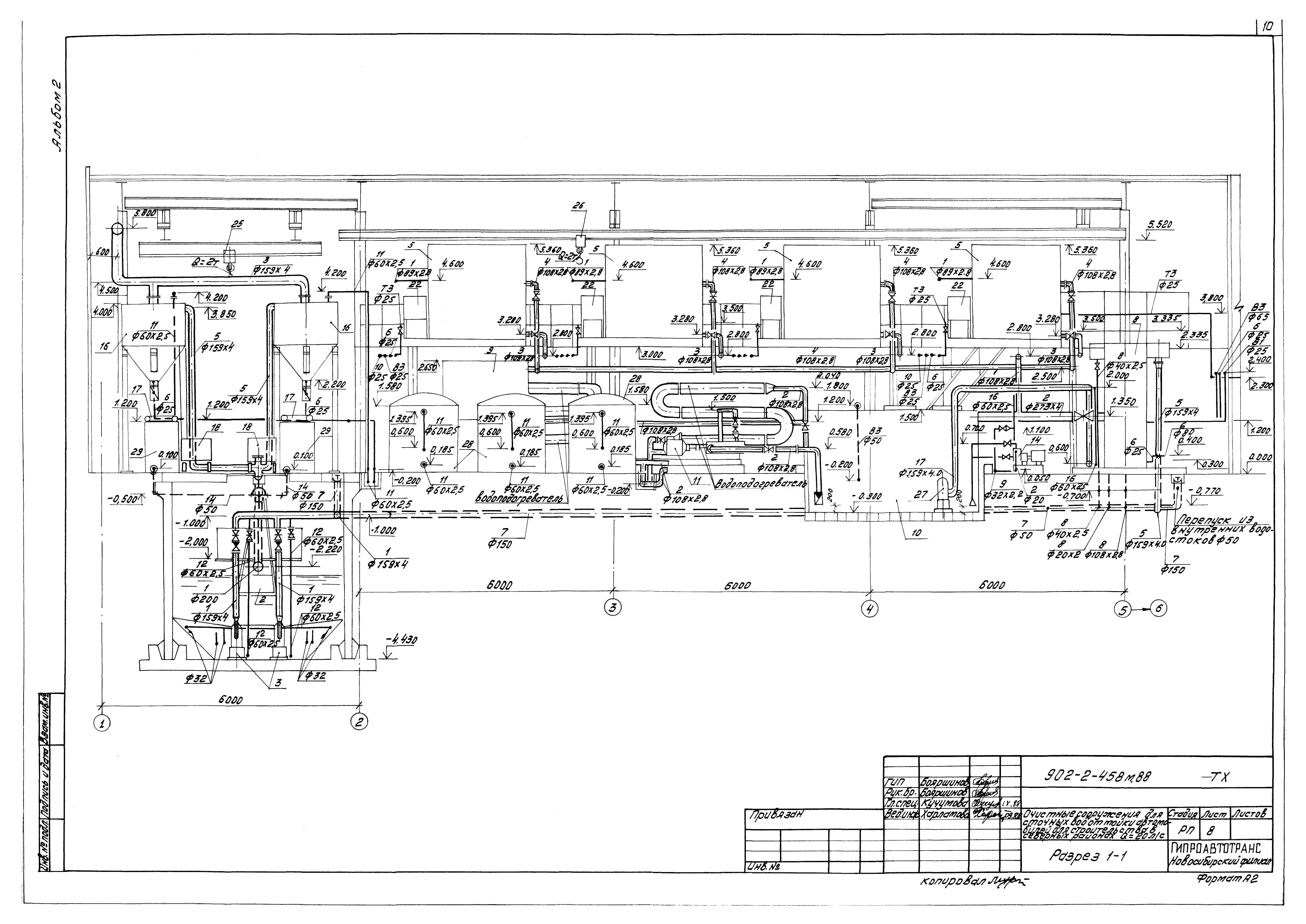
Скачать Типовой проект 902-2-458м.88 Альбом 2. Технология производства. Внутренний водопровод и канализация. Эскизные чертежи общих видов нетиповых конструкцийДата актуализации: 01.01.2021
|
| Обозначение: | Типовой проект 902-2-458м.88 |
| Обозначение англ: | 902-2-458м.88 |
| Статус: | не определен законодательством |
| Название рус.: | Альбом 2. Технология производства. Внутренний водопровод и канализация. Эскизные чертежи общих видов нетиповых конструкций |
| Дата добавления в базу: | 01.09.2013 |
| Дата актуализации: | 01.01.2021 |
| Дата введения: | 01.09.1988 |
| Дата окончания срока действия: | 30.06.2003 |
| Разработан: | Новосибирский филиал Гипроавтотранса |
| Утверждён: | 01.09.1988 Минавтотранс РСФСР (Russian Federation Minavtotrans 9) |































