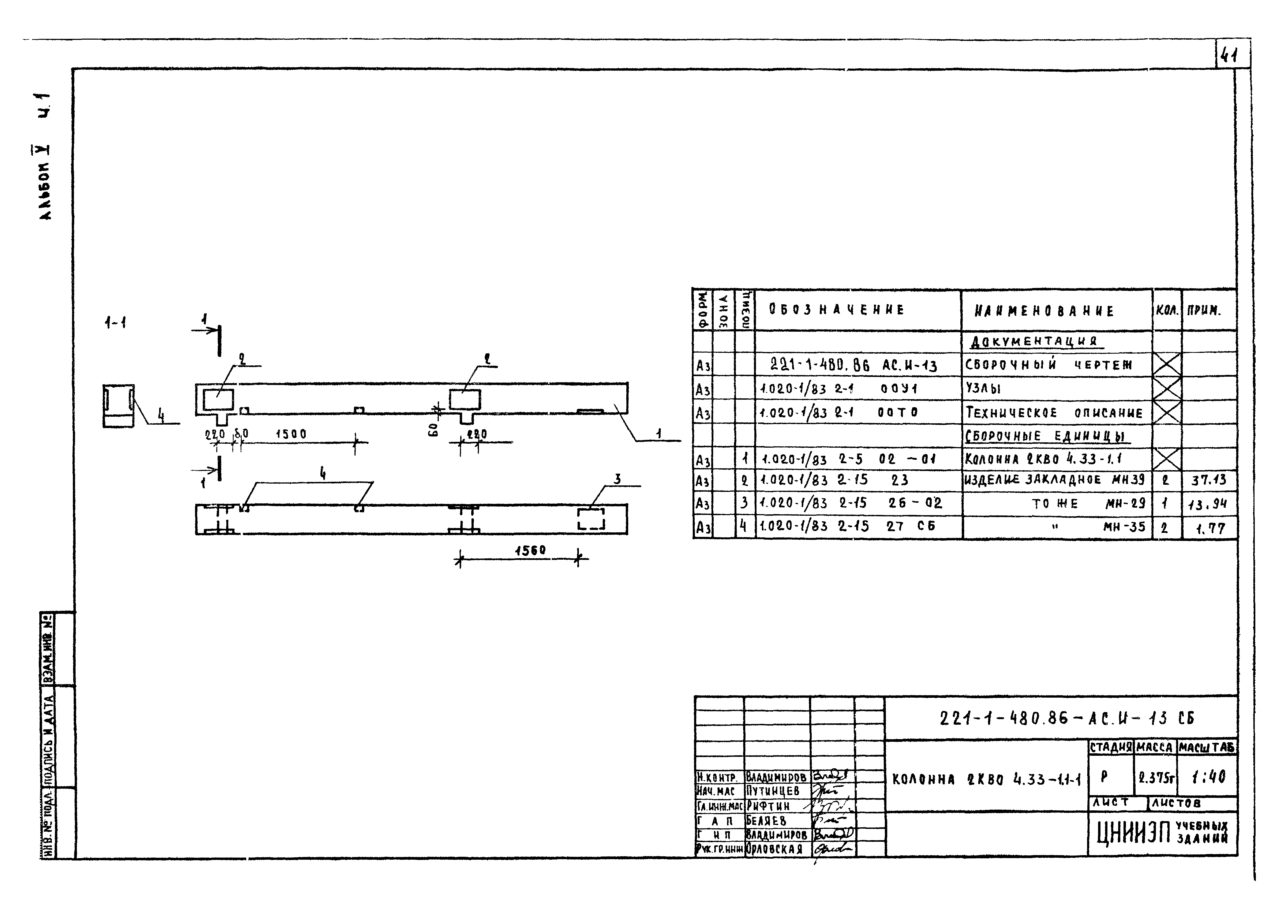
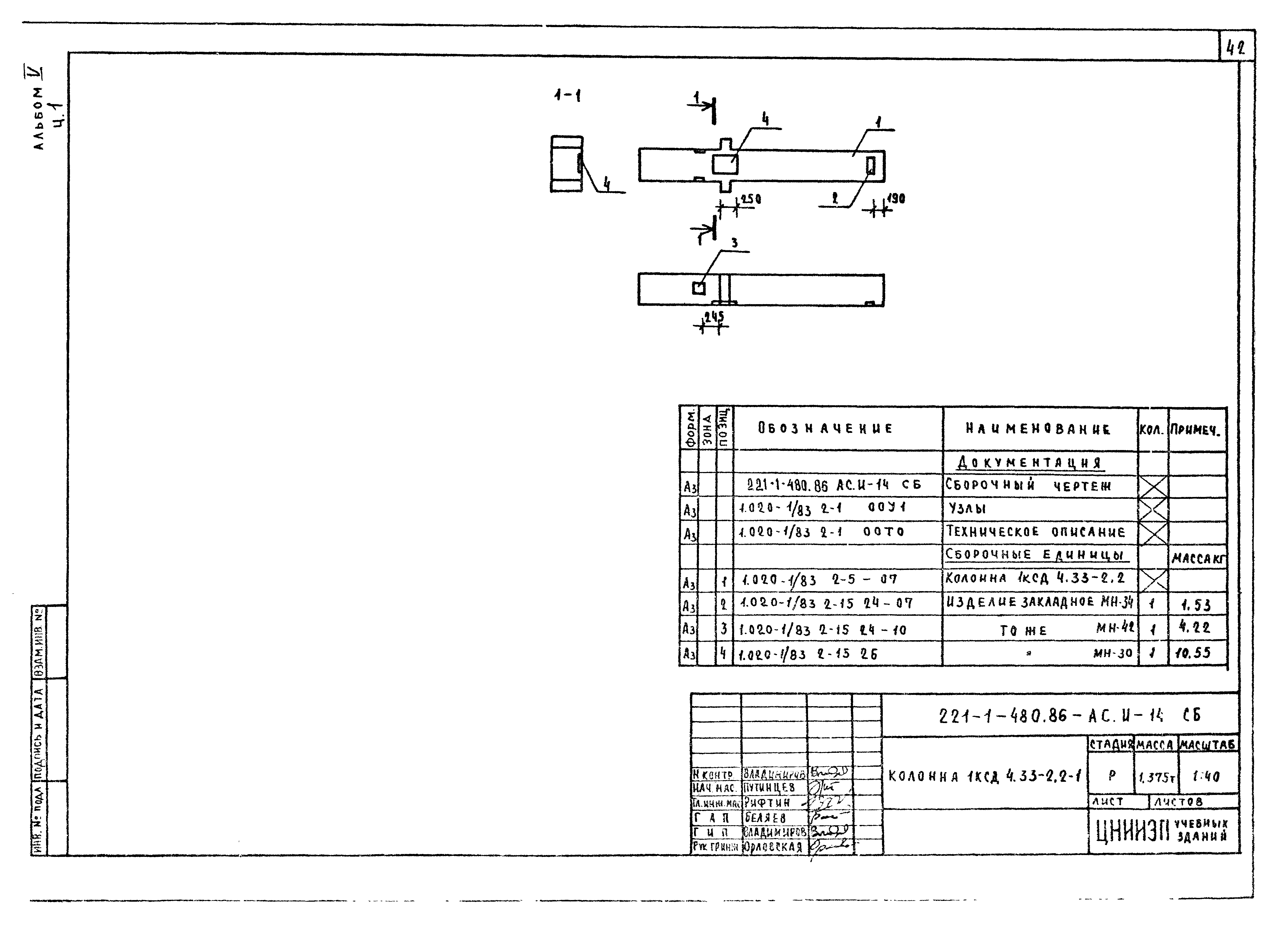
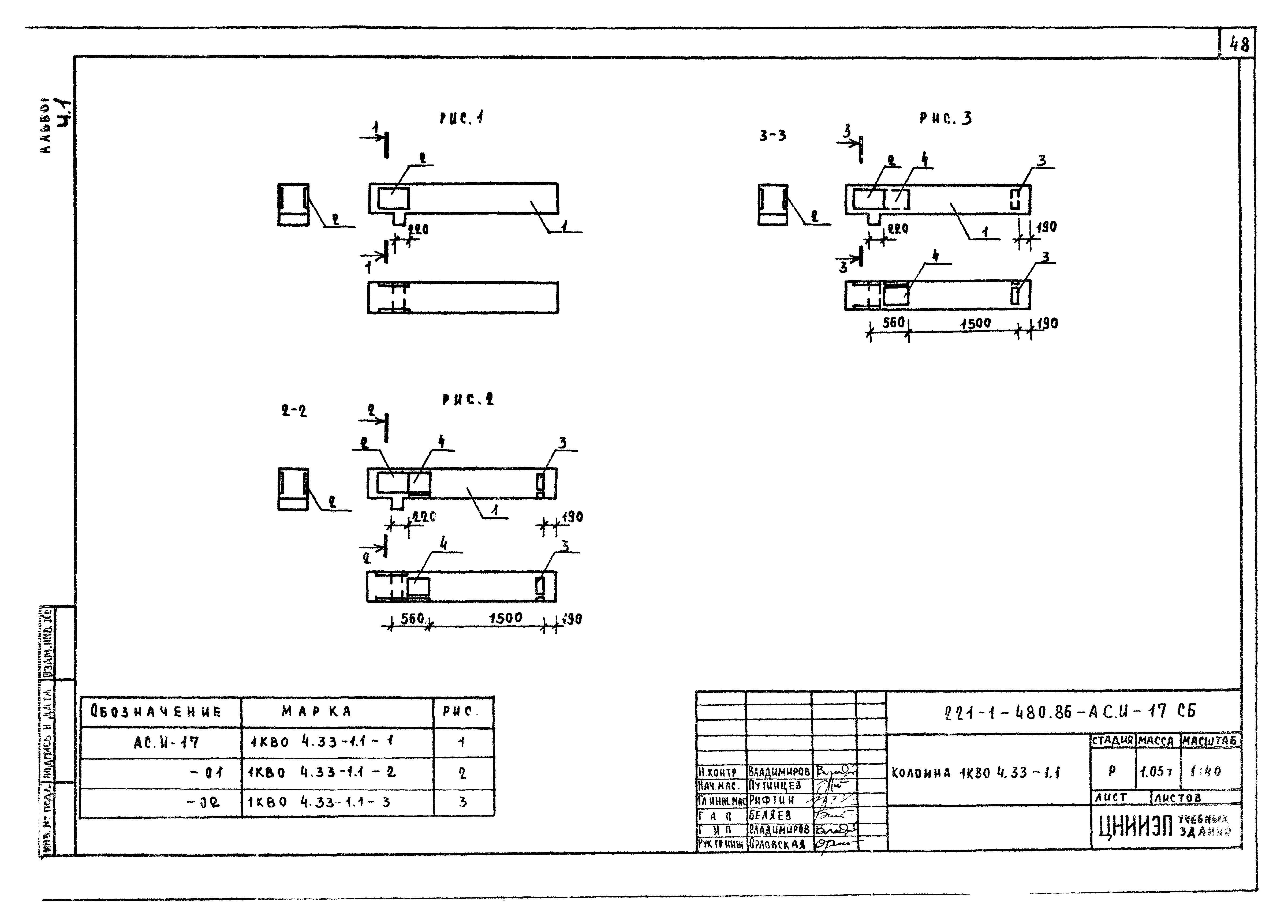
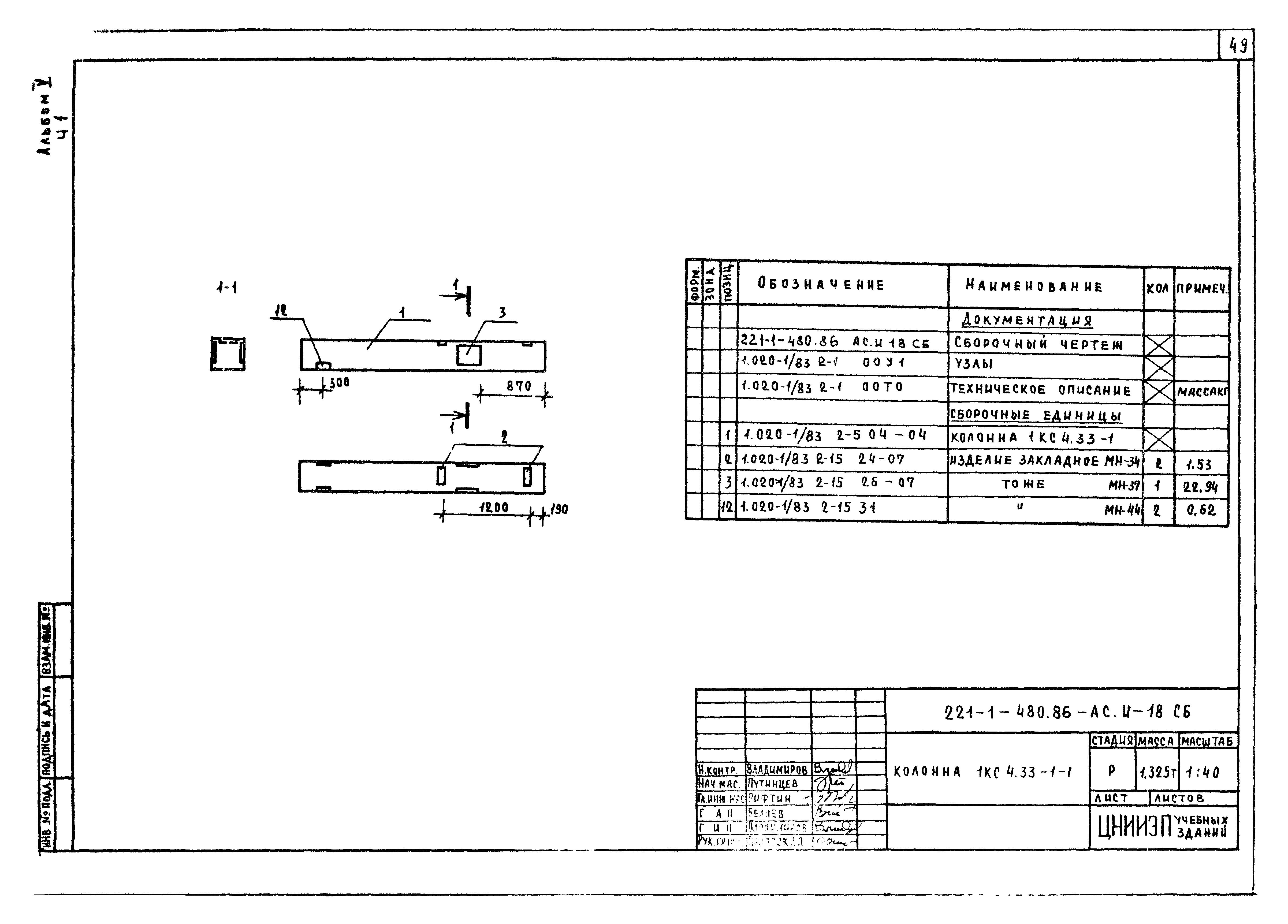
Скачать Типовой проект 221-1-480.86 Альбом V. Часть 1. Изделия заводского изготовленияДата актуализации: 01.01.2021 Типовой проект 221-1-480.86
Альбом V. Часть 1. Изделия заводского изготовления| Обозначение: | Типовой проект 221-1-480.86 | | Обозначение англ: | 221-1-480.86 | | Статус: | действует | | Название рус.: | Альбом V. Часть 1. Изделия заводского изготовления | | Дата добавления в базу: | 01.09.2013 | | Дата актуализации: | 01.01.2021 | | Дата введения: | 29.04.1986 | | Разработан: | ЦНИИЭП учебных зданий Госгражданстроя
| | Утверждён: | 23.11.1984 Госгражданстрой (Gosgrazhdanstroy 347)
|
                                                          
|