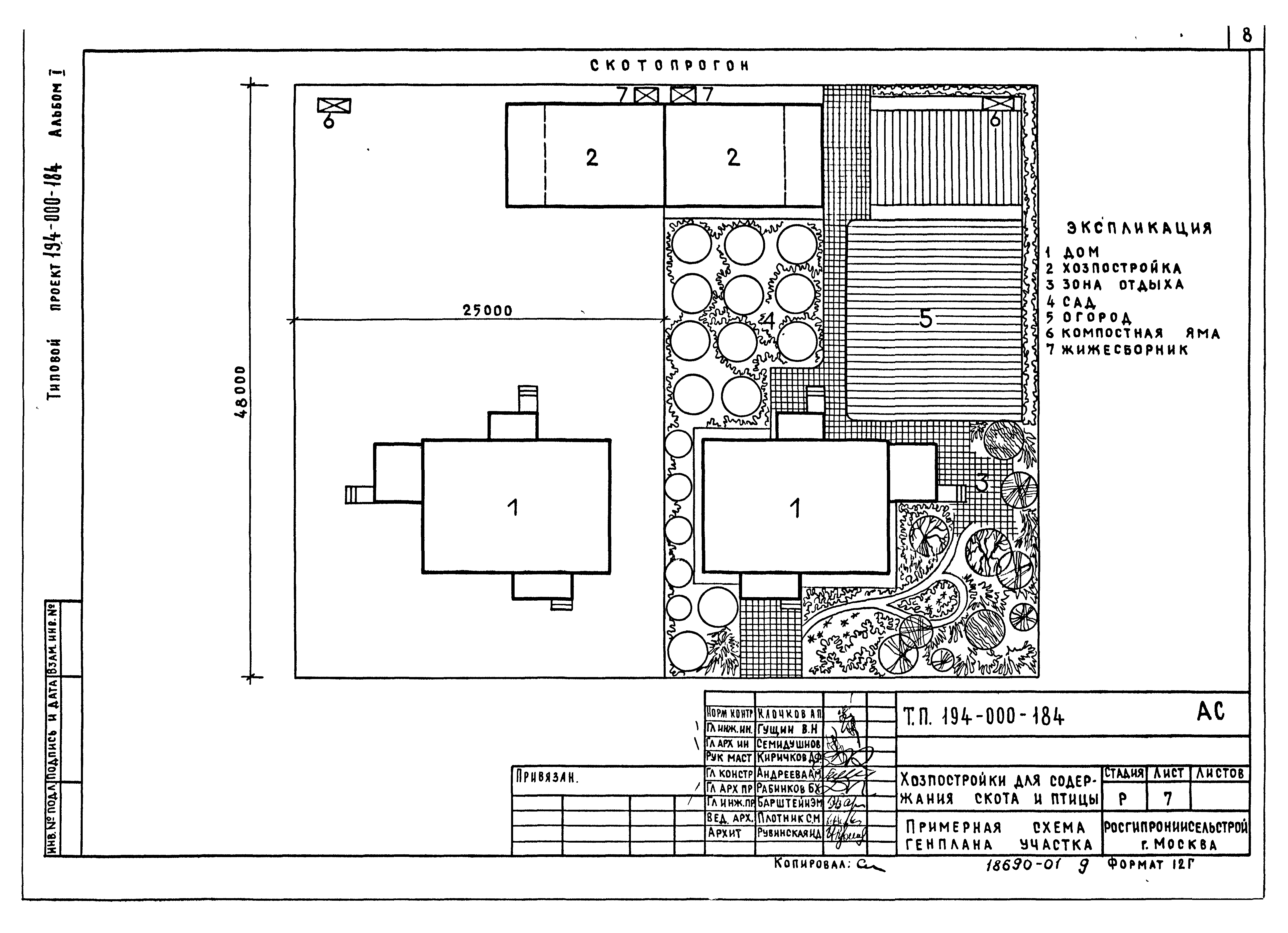
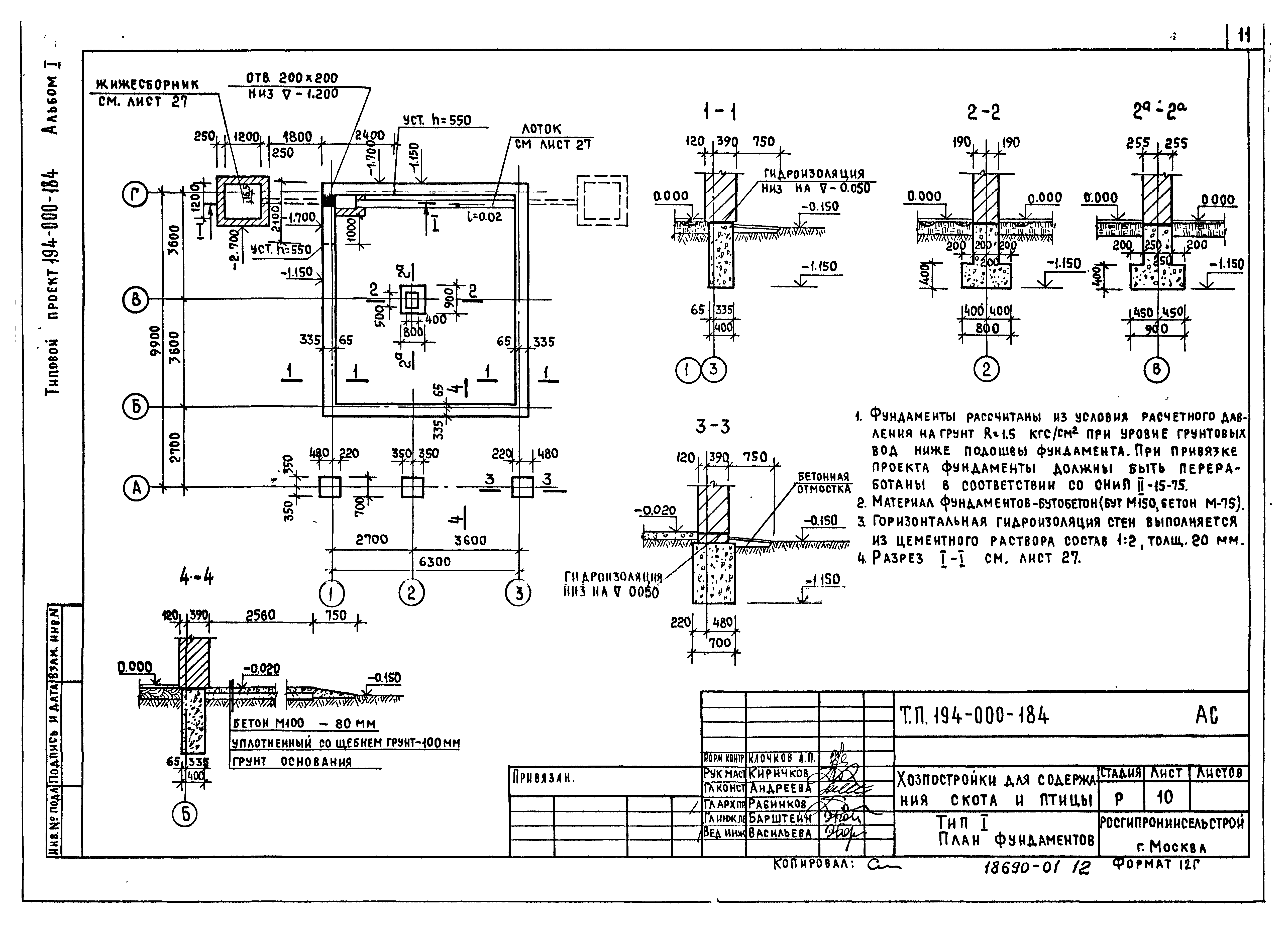
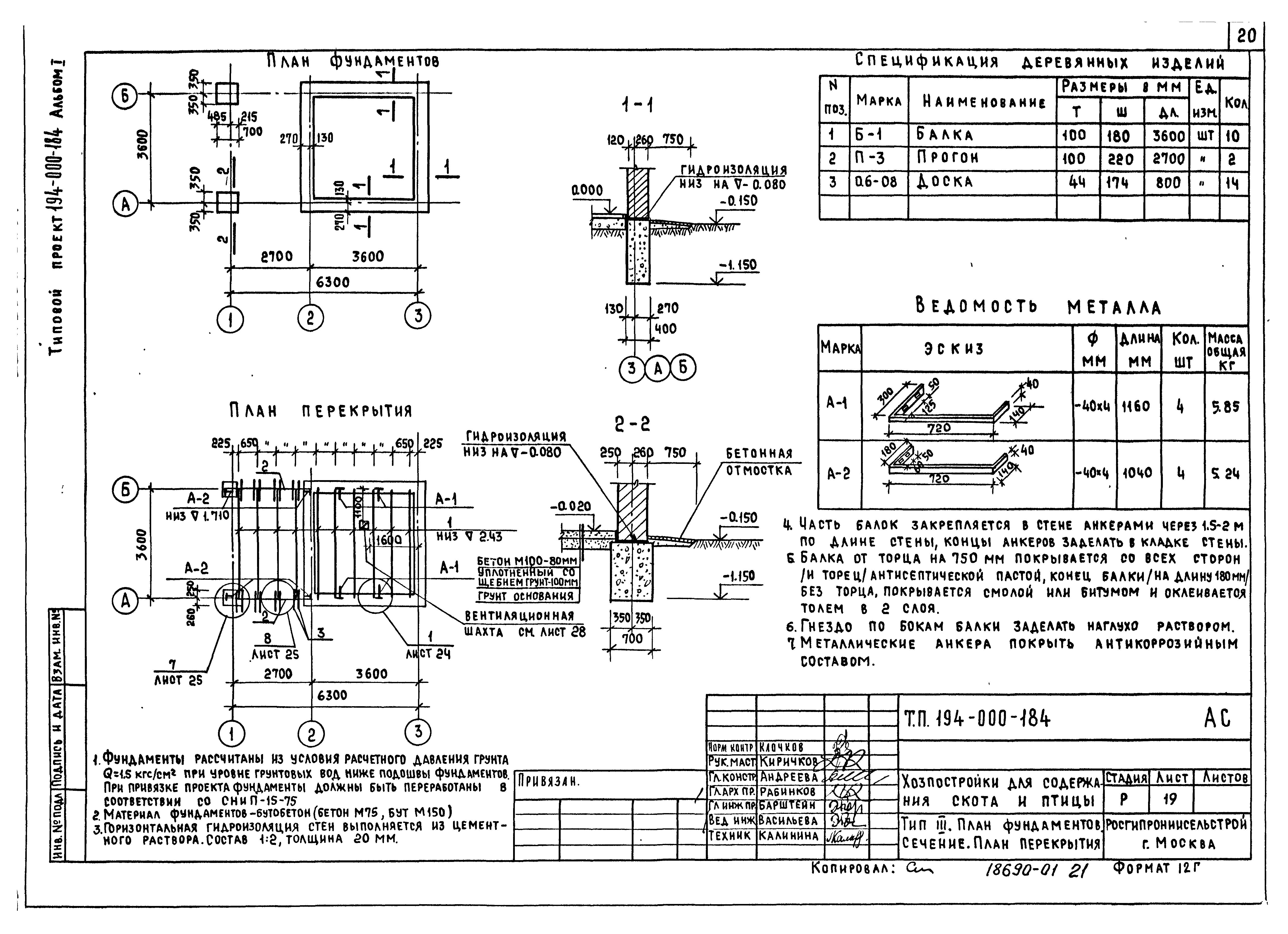
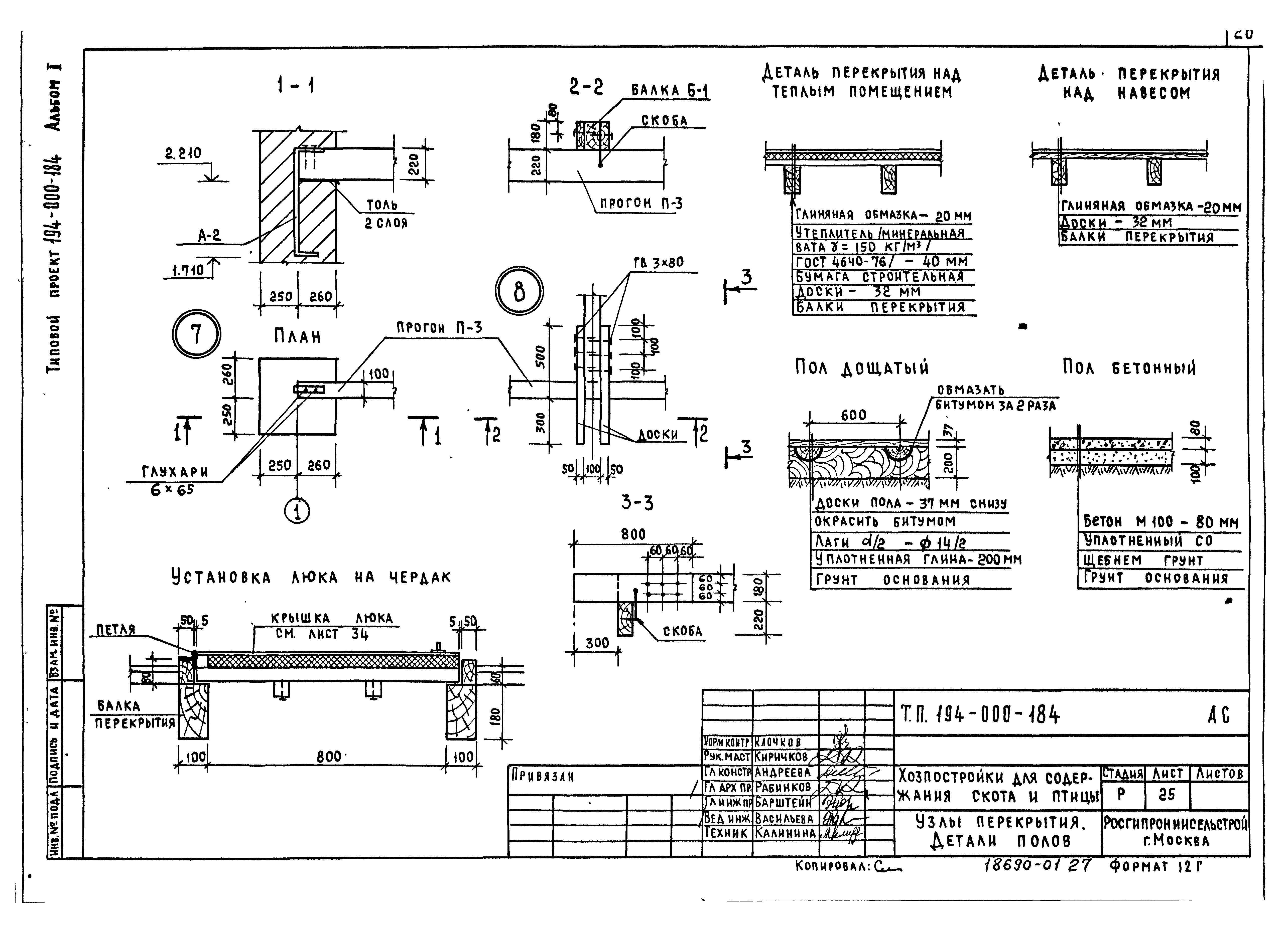
Скачать Типовой проект 194-000-184 Альбом I. Архитектурно-строительные решения, электроснабжениеДата актуализации: 01.01.2021 Типовой проект 194-000-184
Альбом I. Архитектурно-строительные решения, электроснабжение| Обозначение: | Типовой проект 194-000-184 | | Обозначение англ: | 194-000-184 | | Статус: | не определен законодательством | | Название рус.: | Альбом I. Архитектурно-строительные решения, электроснабжение | | Дата добавления в базу: | 01.09.2013 | | Дата актуализации: | 01.01.2021 | | Дата введения: | 18.01.1983 | | Дата окончания срока действия: | 30.06.2003 | | Разработан: | Росгипрониисельстрой
| | Утверждён: | 14.12.1979 Госстрой РСФСР (Russian Federation Gosstroy 98)
|
                                      
|