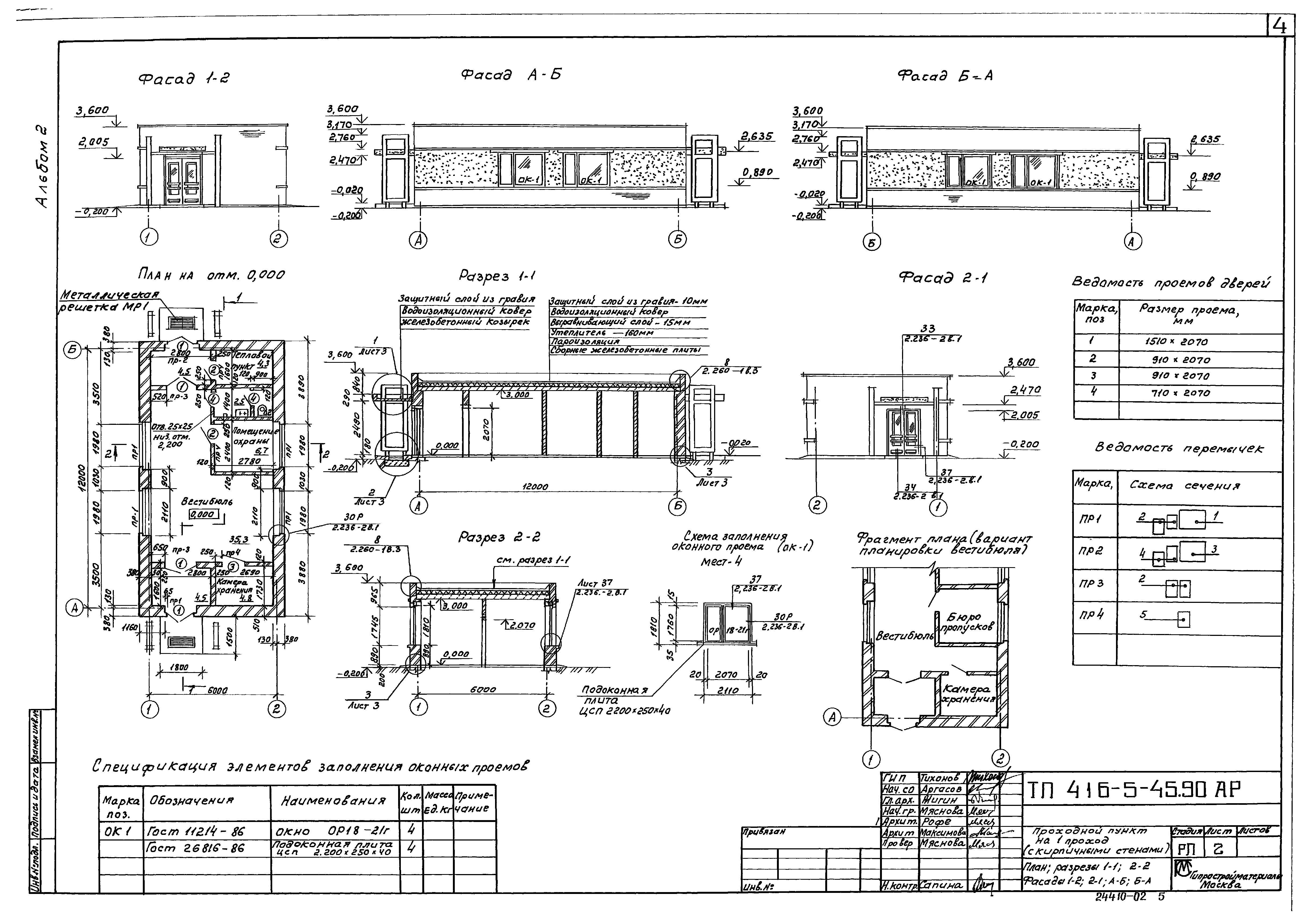
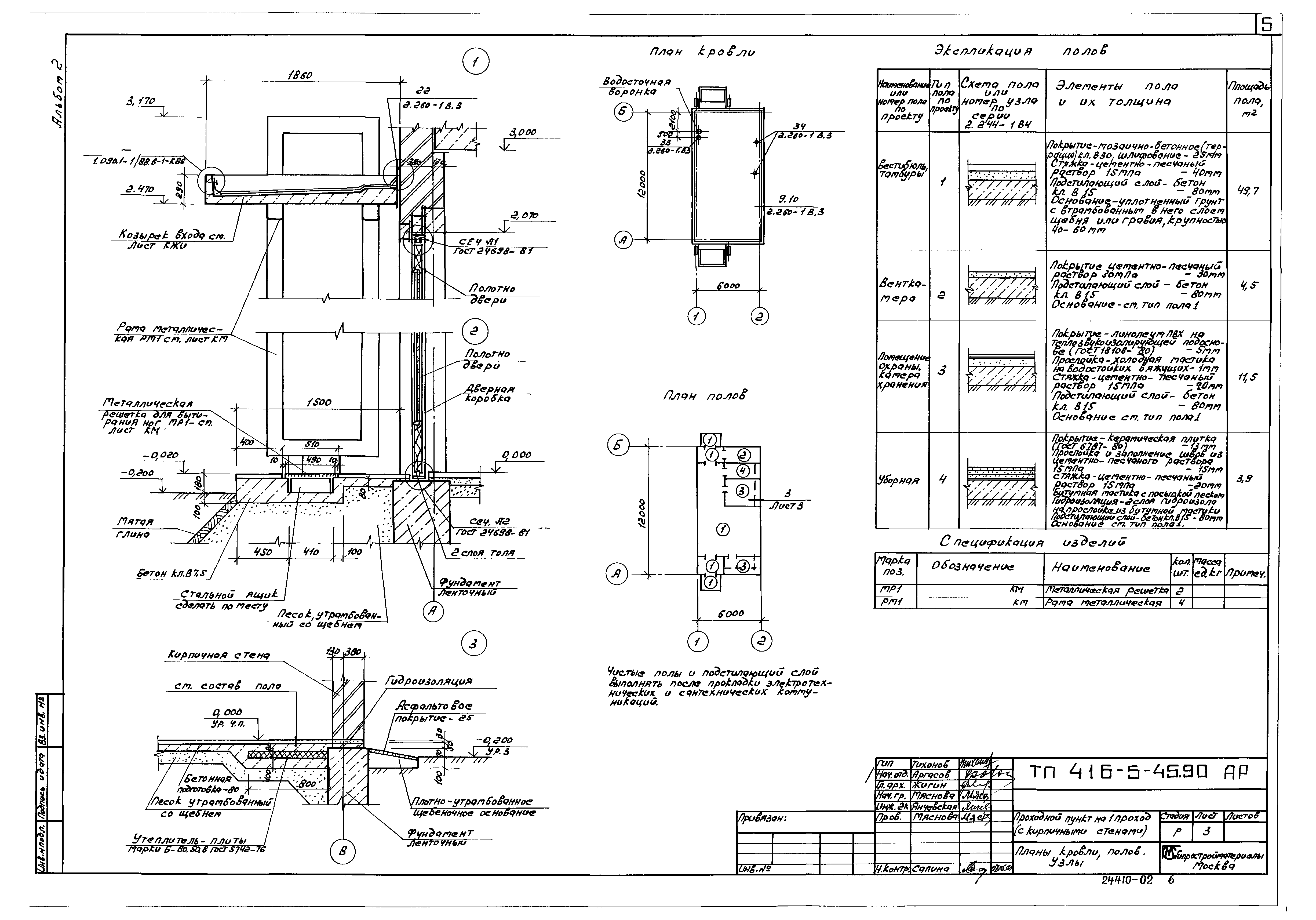
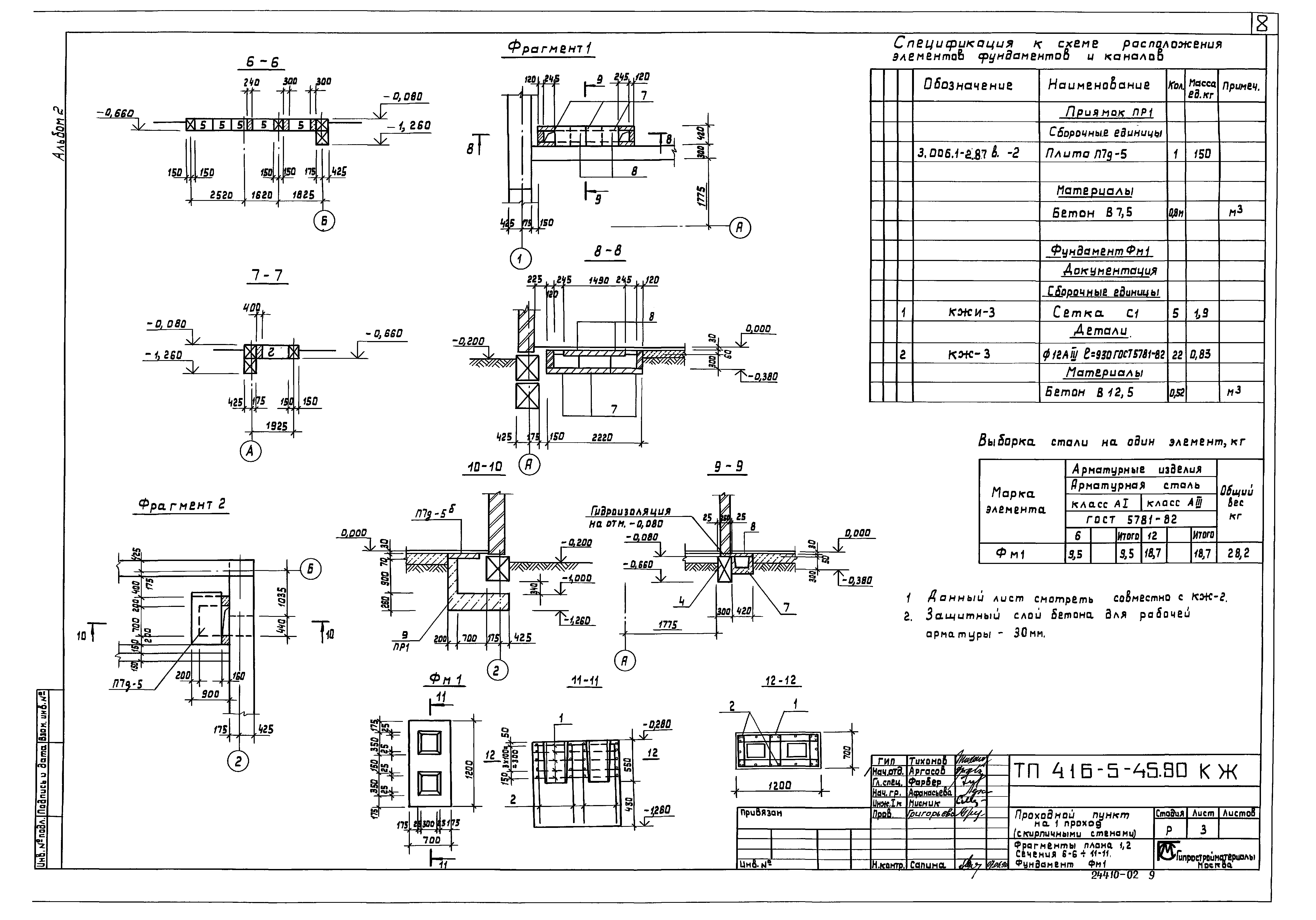
Скачать Типовой проект 416-5-45.90 Альбом 2. Архитектурные решения. Конструкции железобетонные. Строительные изделия. Организация строительстваДата актуализации: 01.01.2021
|
| Обозначение: | Типовой проект 416-5-45.90 |
| Обозначение англ: | 416-5-45.90 |
| Статус: | не определен законодательством |
| Название рус.: | Альбом 2. Архитектурные решения. Конструкции железобетонные. Строительные изделия. Организация строительства |
| Дата добавления в базу: | 01.09.2013 |
| Дата актуализации: | 01.01.2021 |
| Дата введения: | 29.11.1990 |
| Дата окончания срока действия: | 30.06.2003 |
| Разработан: | Гипростройматериалы |
| Утверждён: | 29.11.1990 Главпроект Госстроя СССР (17) |











