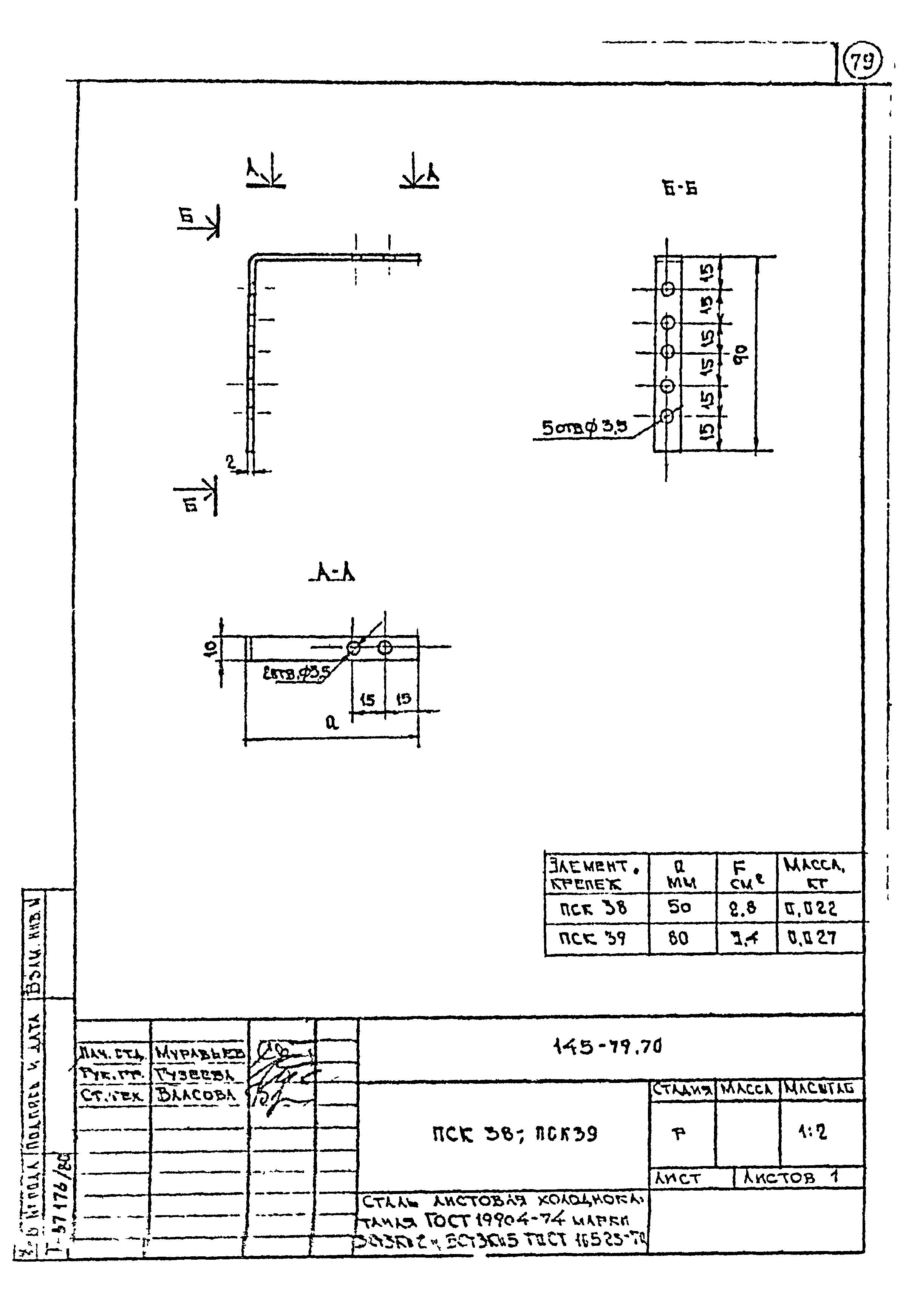
Скачать Шифр 145-79 Ограждающие конструкции производственных зданий, изготовление которых предусмотрено на Первоуральском заводе комплектных металлоконструкций (на импортном оборудовании) Минтяжстроя СССР. Ж/общая номенклатура стальных профилей. НоменклатураДата актуализации: 01.01.2021 Шифр 145-79
Ограждающие конструкции производственных зданий, изготовление которых предусмотрено на Первоуральском заводе комплектных металлоконструкций (на импортном оборудовании) Минтяжстроя СССР. Ж/общая номенклатура стальных профилей. Номенклатура| Обозначение: | Шифр 145-79 | | Обозначение англ: | 145-79 | | Статус: | не действует | | Название рус.: | Ограждающие конструкции производственных зданий, изготовление которых предусмотрено на Первоуральском заводе комплектных металлоконструкций (на импортном оборудовании) Минтяжстроя СССР. Ж/общая номенклатура стальных профилей. Номенклатура | | Дата добавления в базу: | 01.09.2013 | | Дата актуализации: | 01.01.2021 | | Разработан: | ЦНИИпромзданий
| | Утверждён: | 01.01.1980 Госстрой СССР (Государственный комитет Совета Министров СССР по делам строительства) (USSR Gosstroy )
|
                                                                              
|