Скачать Типовой проект 211-1-297.84 Альбом II. Санитарно-технические чертежиДата актуализации: 01.01.2021
|
| Обозначение: | Типовой проект 211-1-297.84 |
| Обозначение англ: | 211-1-297.84 |
| Статус: | действует |
| Название рус.: | Альбом II. Санитарно-технические чертежи |
| Дата добавления в базу: | 01.09.2013 |
| Дата актуализации: | 01.01.2021 |
| Дата введения: | 07.12.1984 |
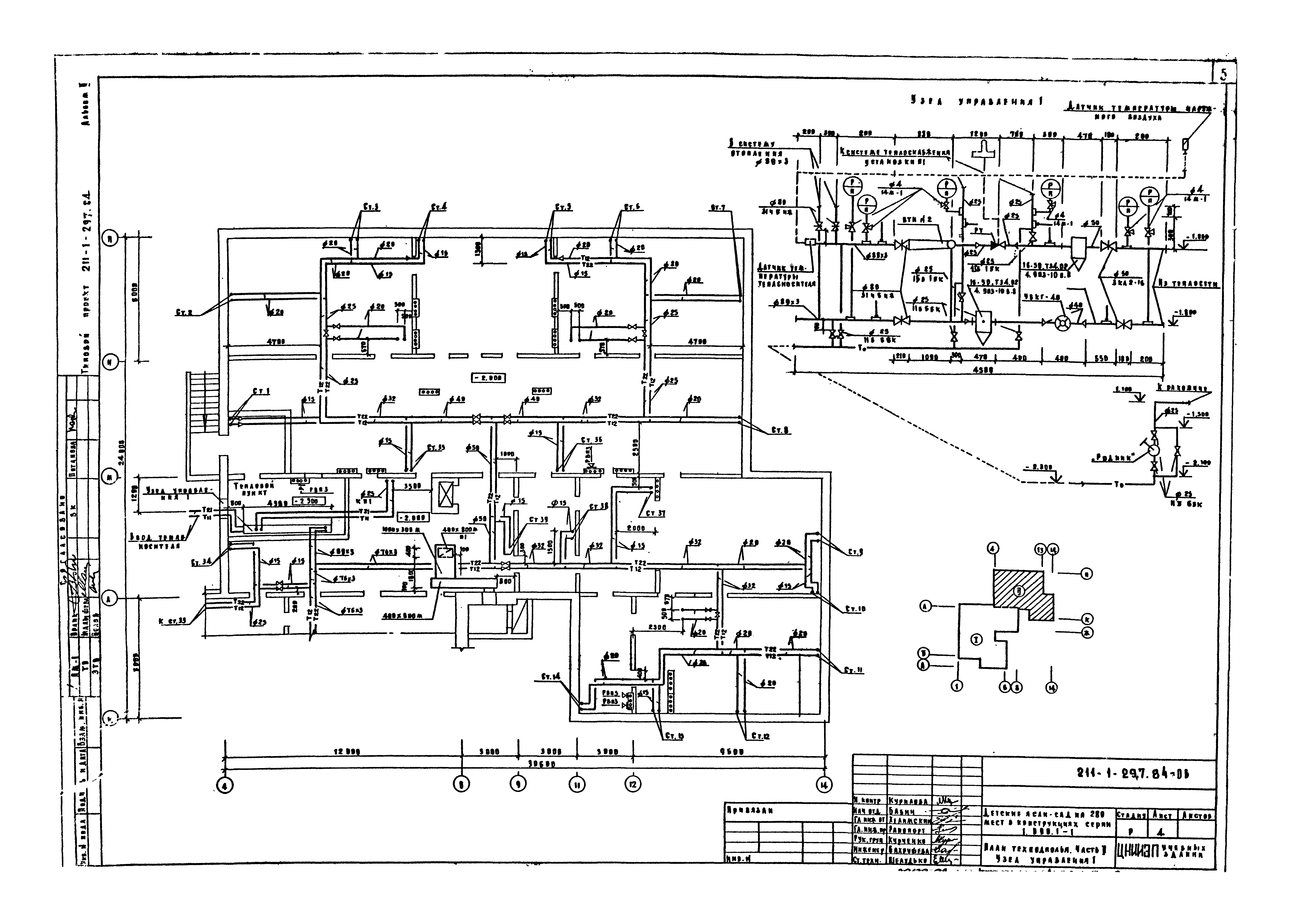
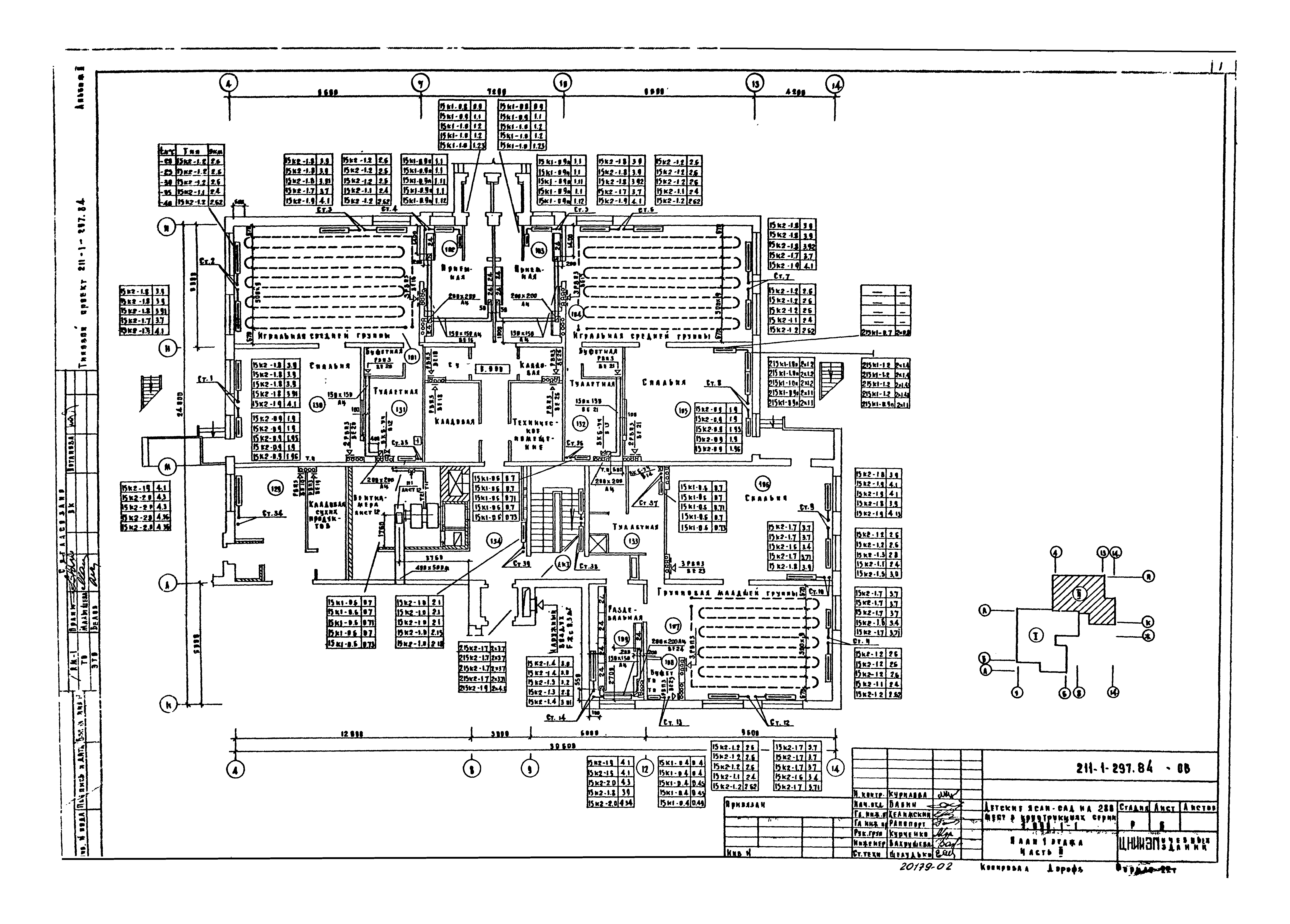
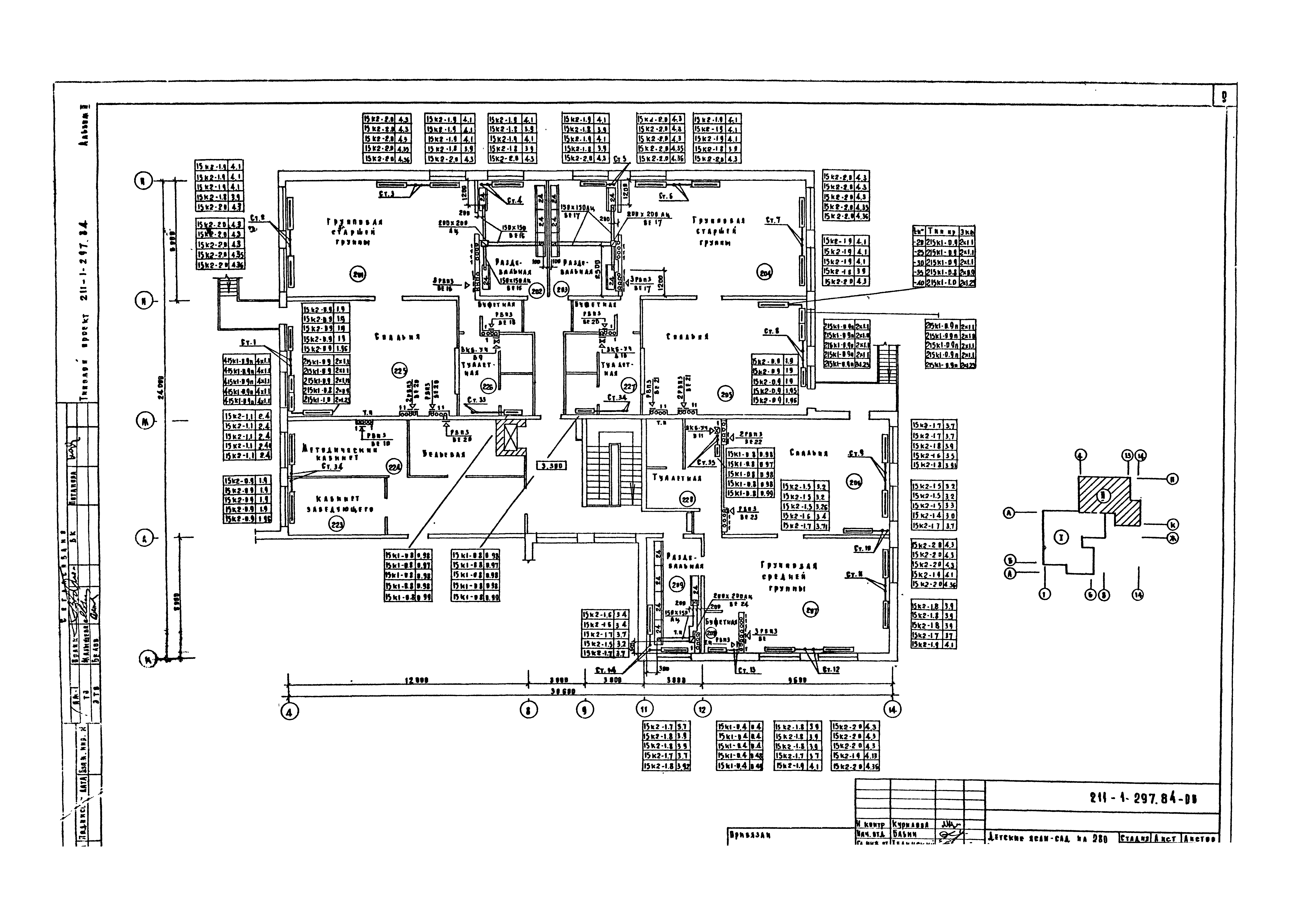
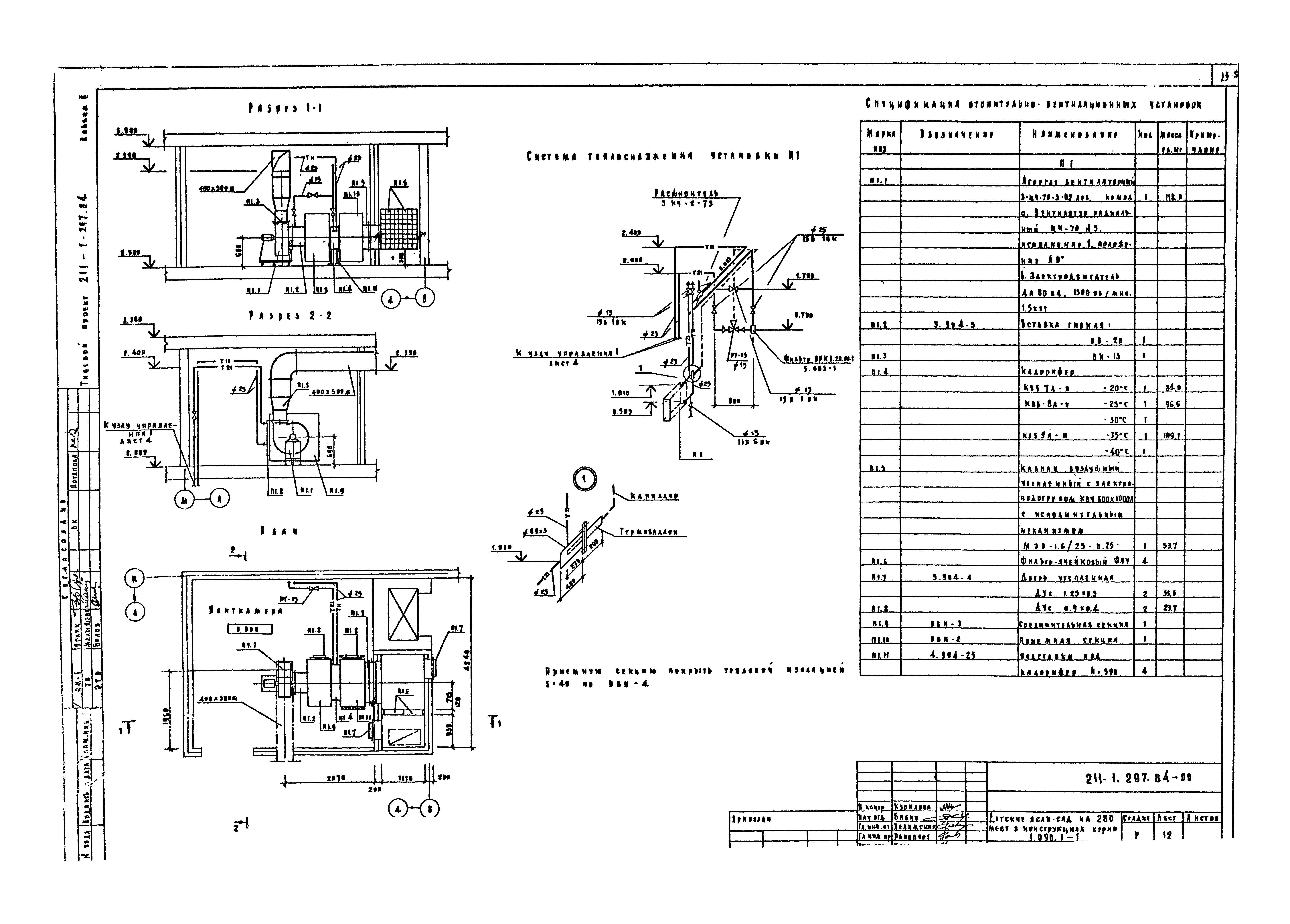
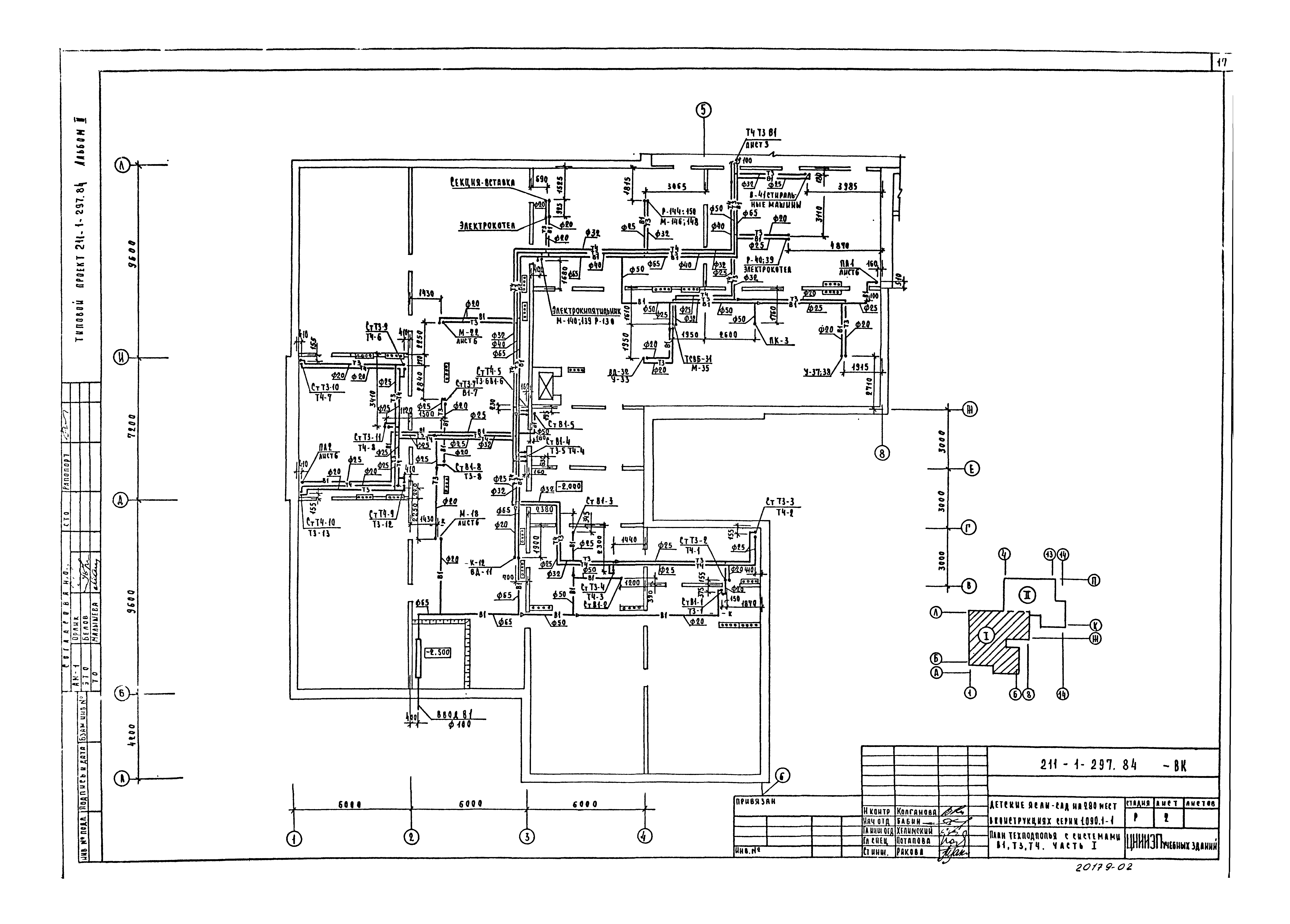
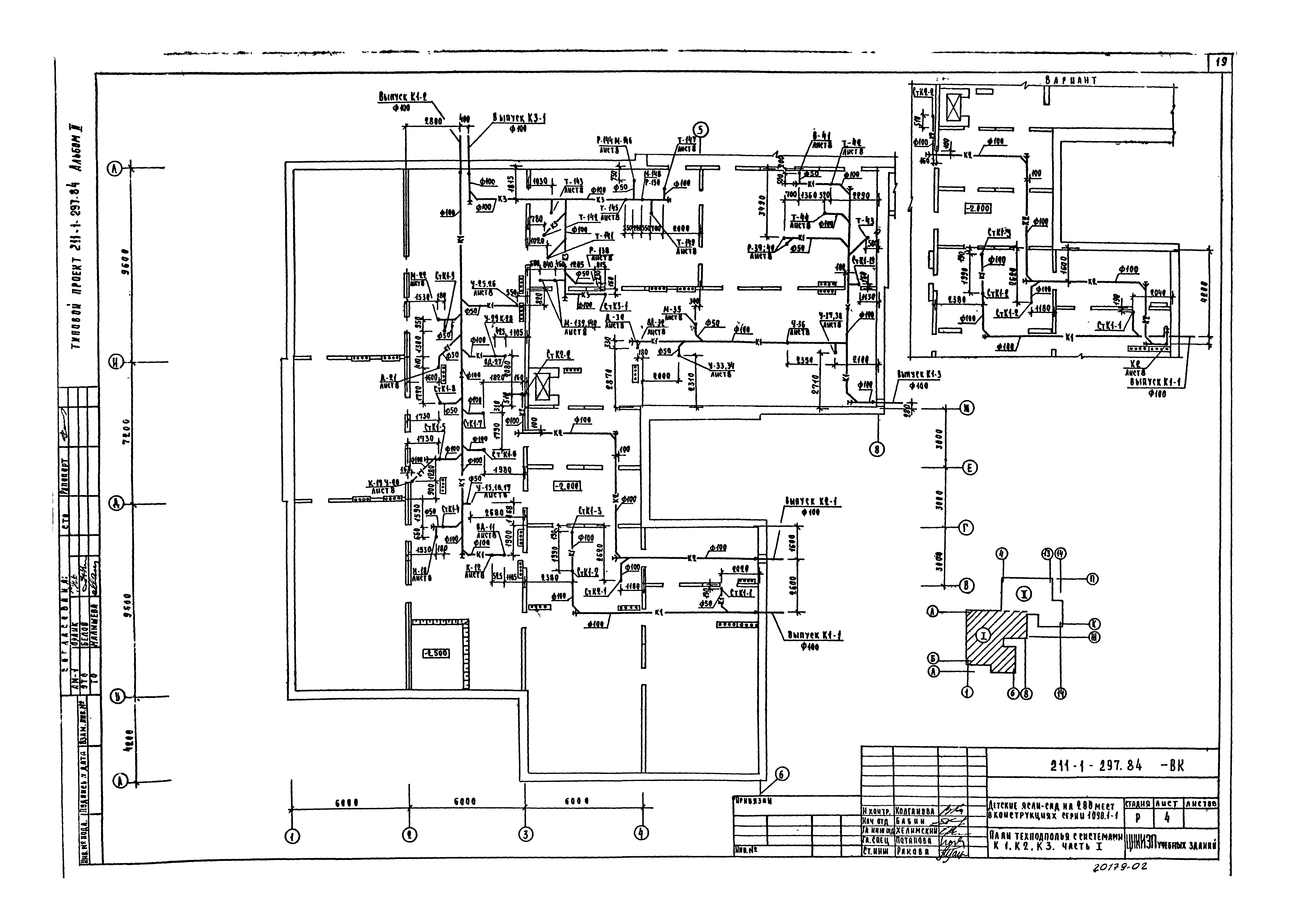
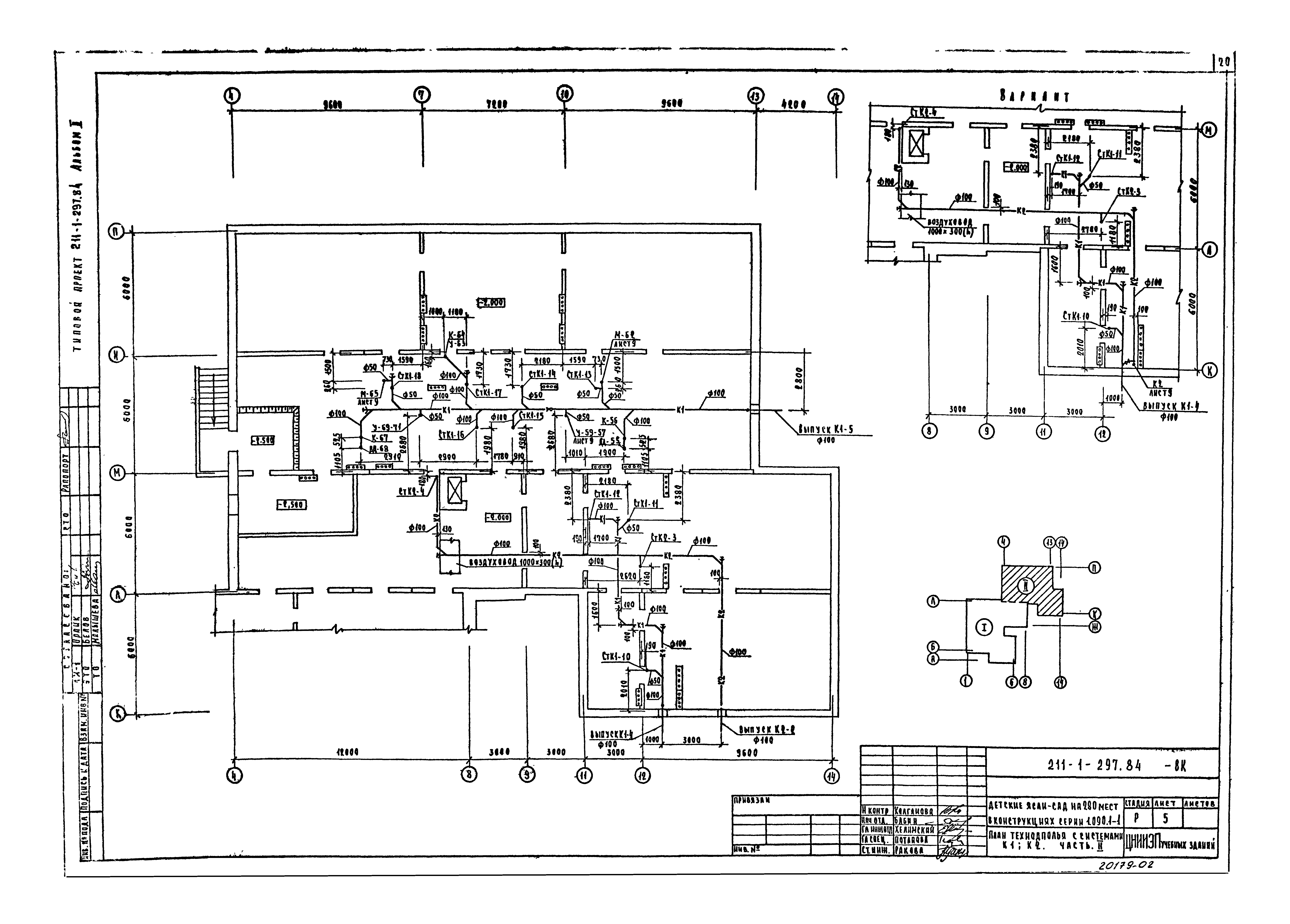
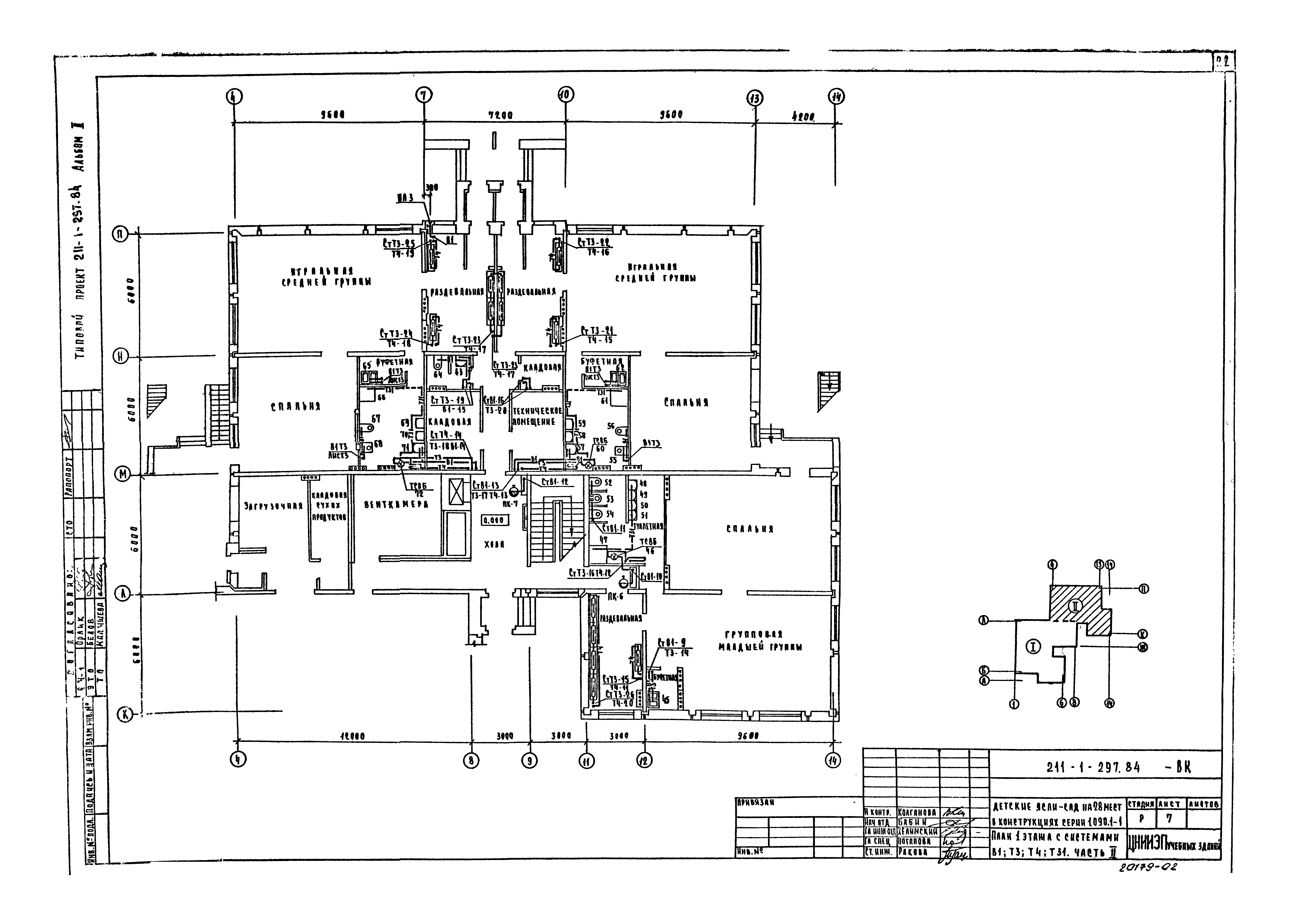
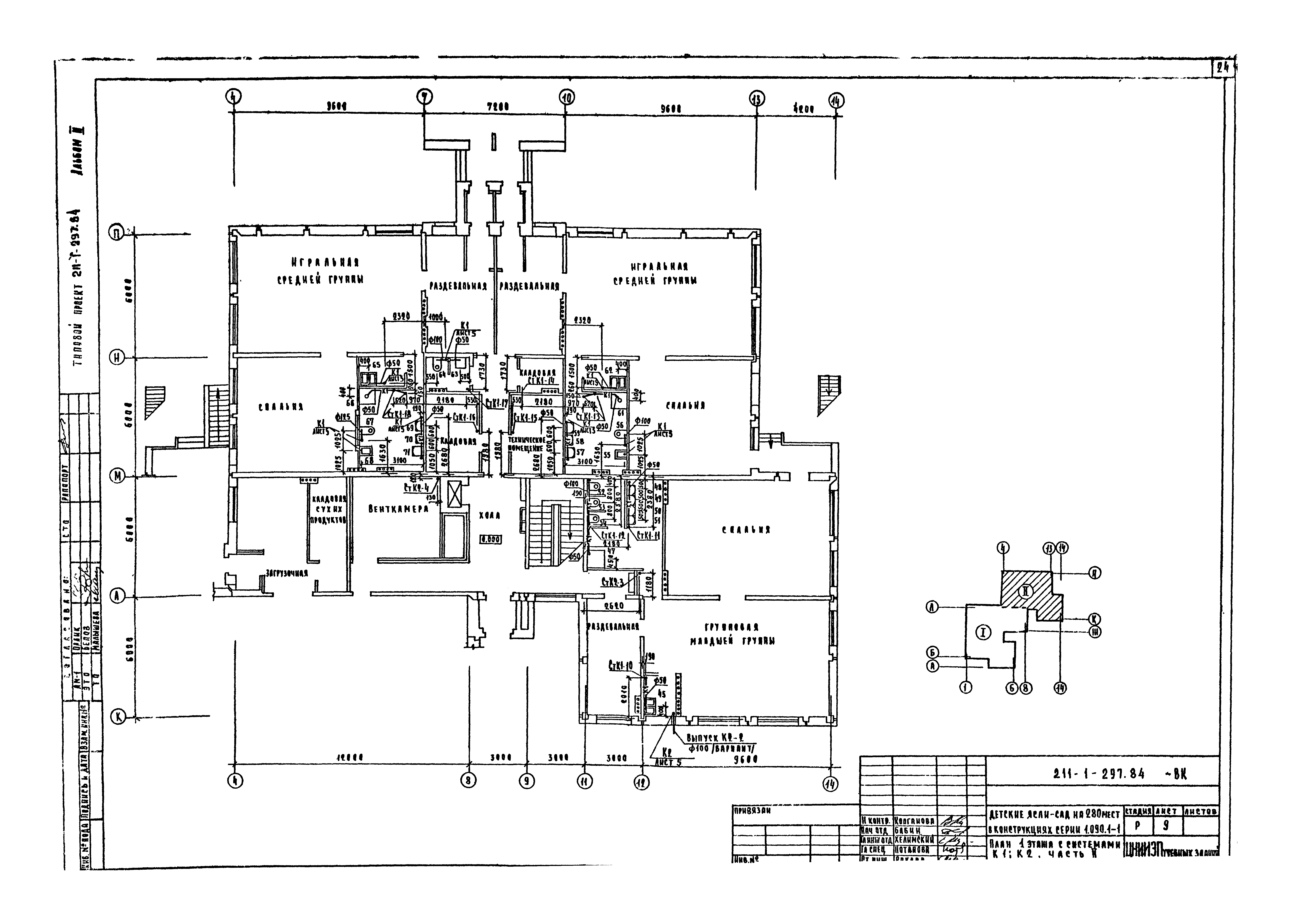
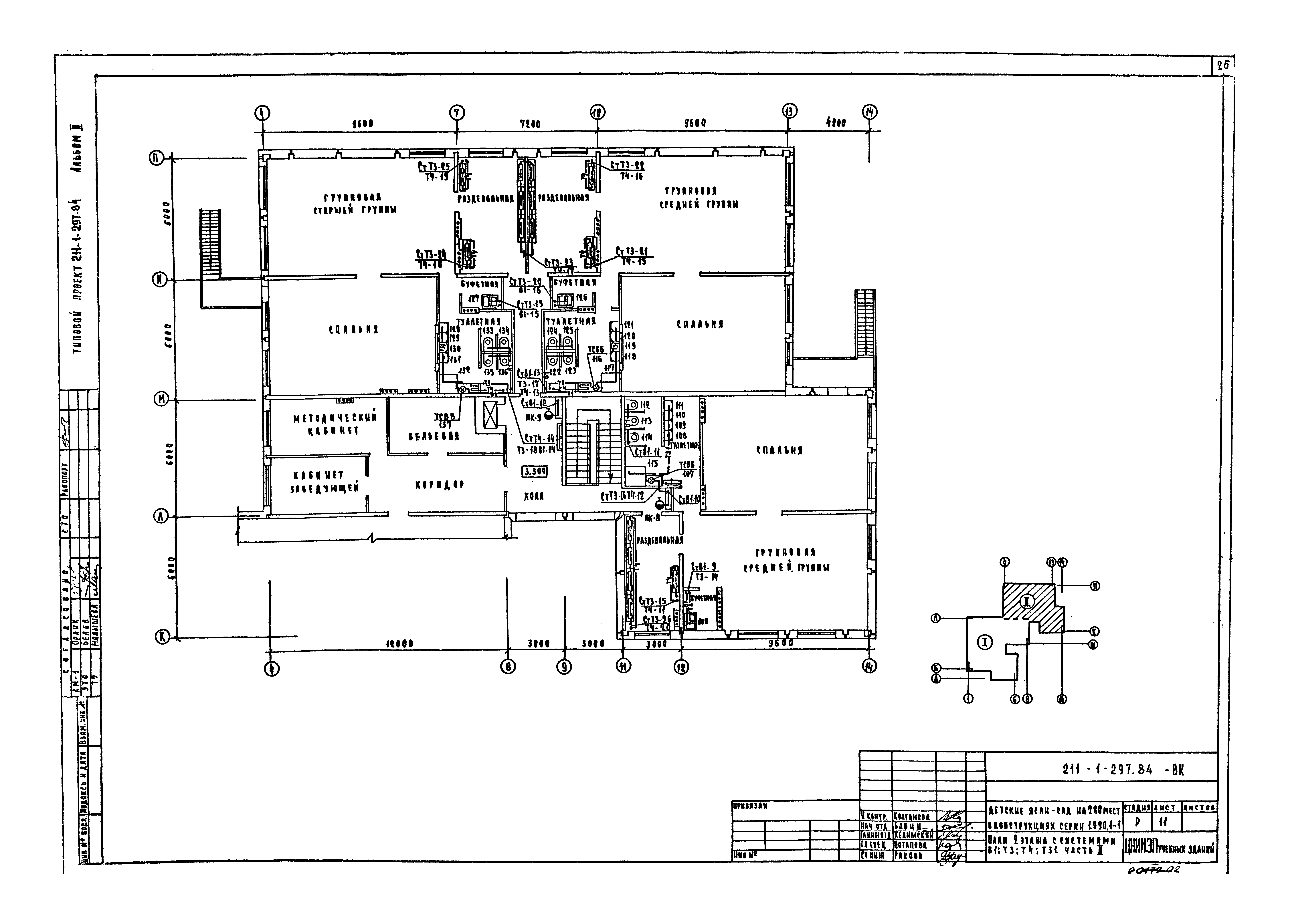
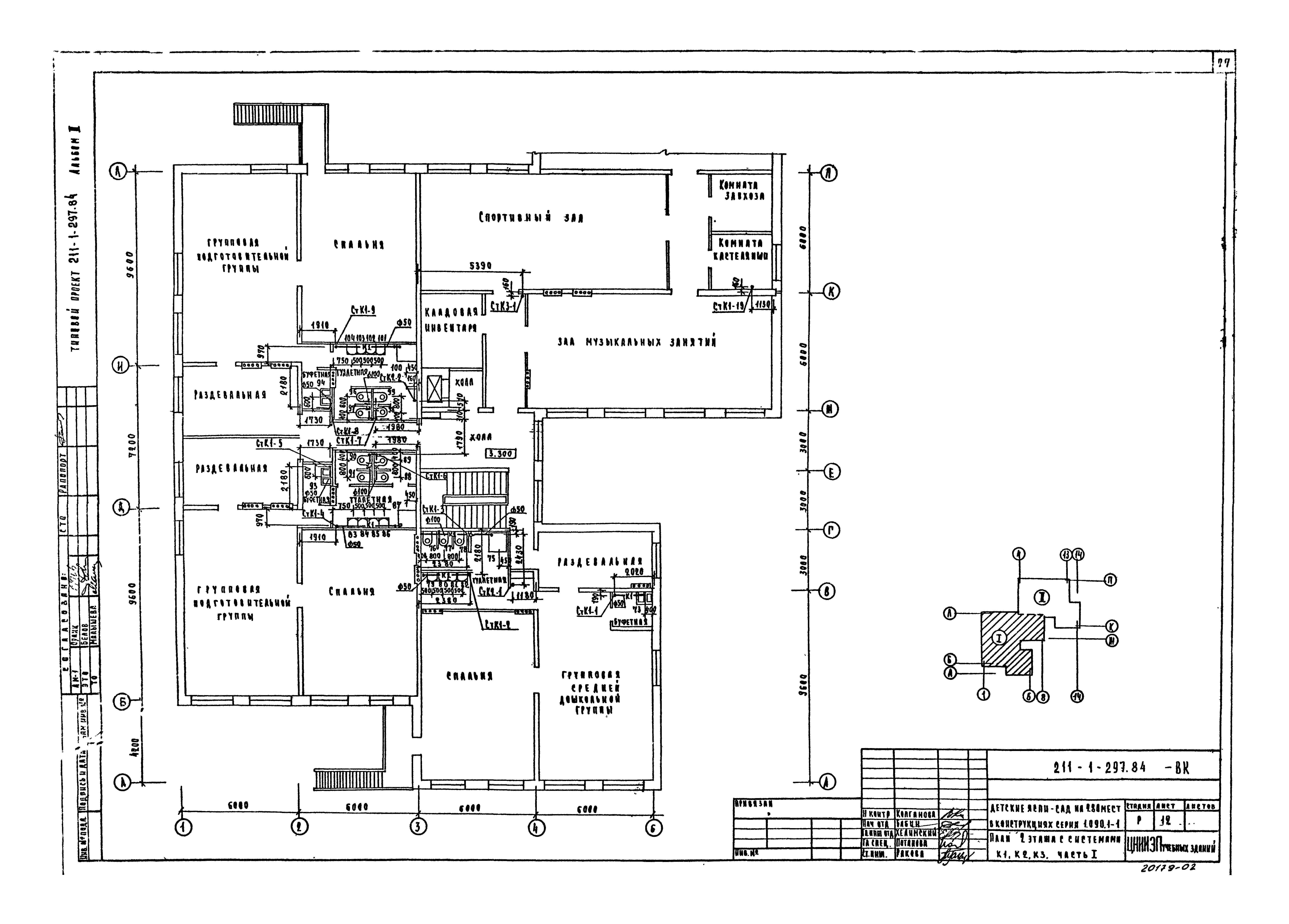
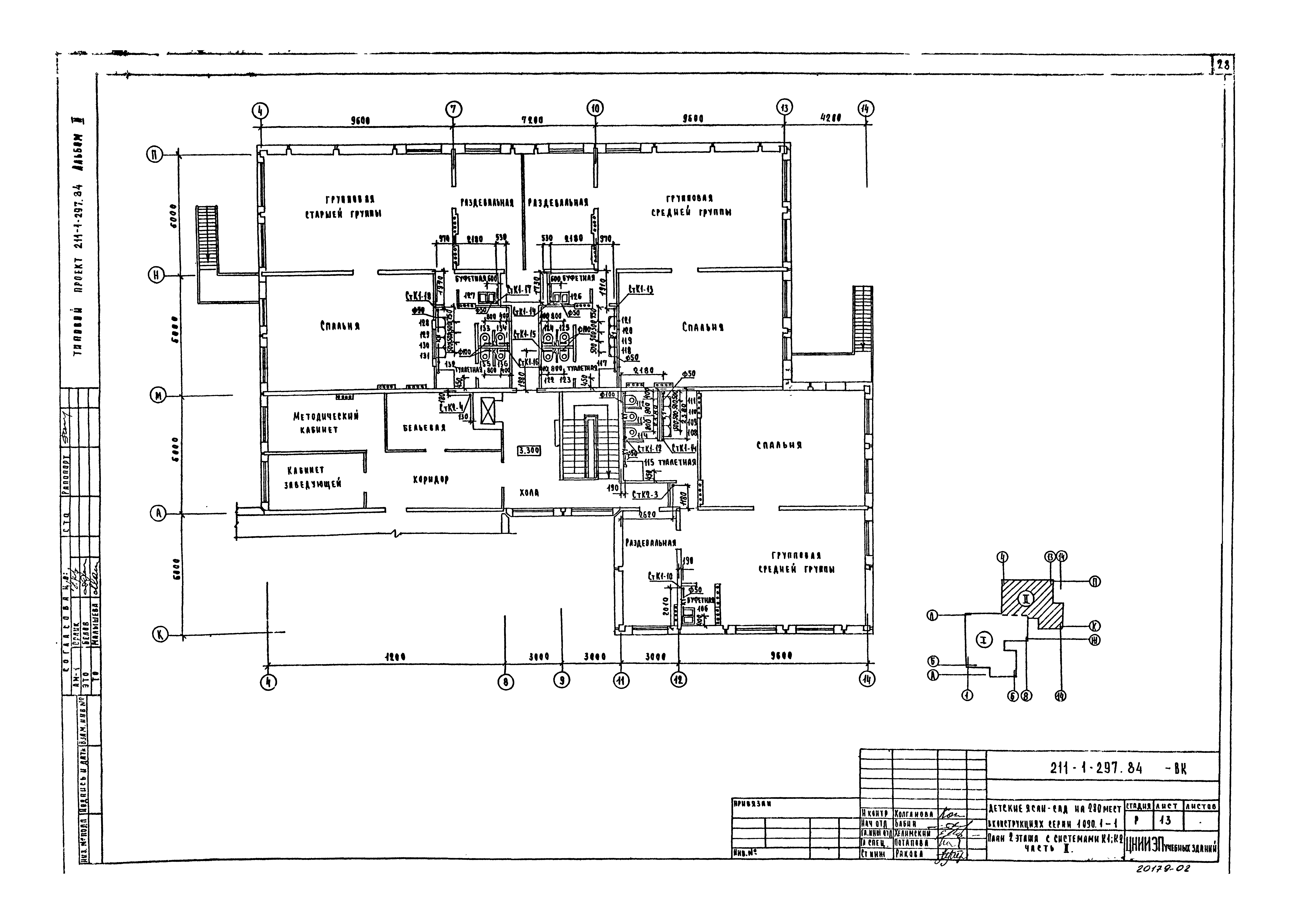
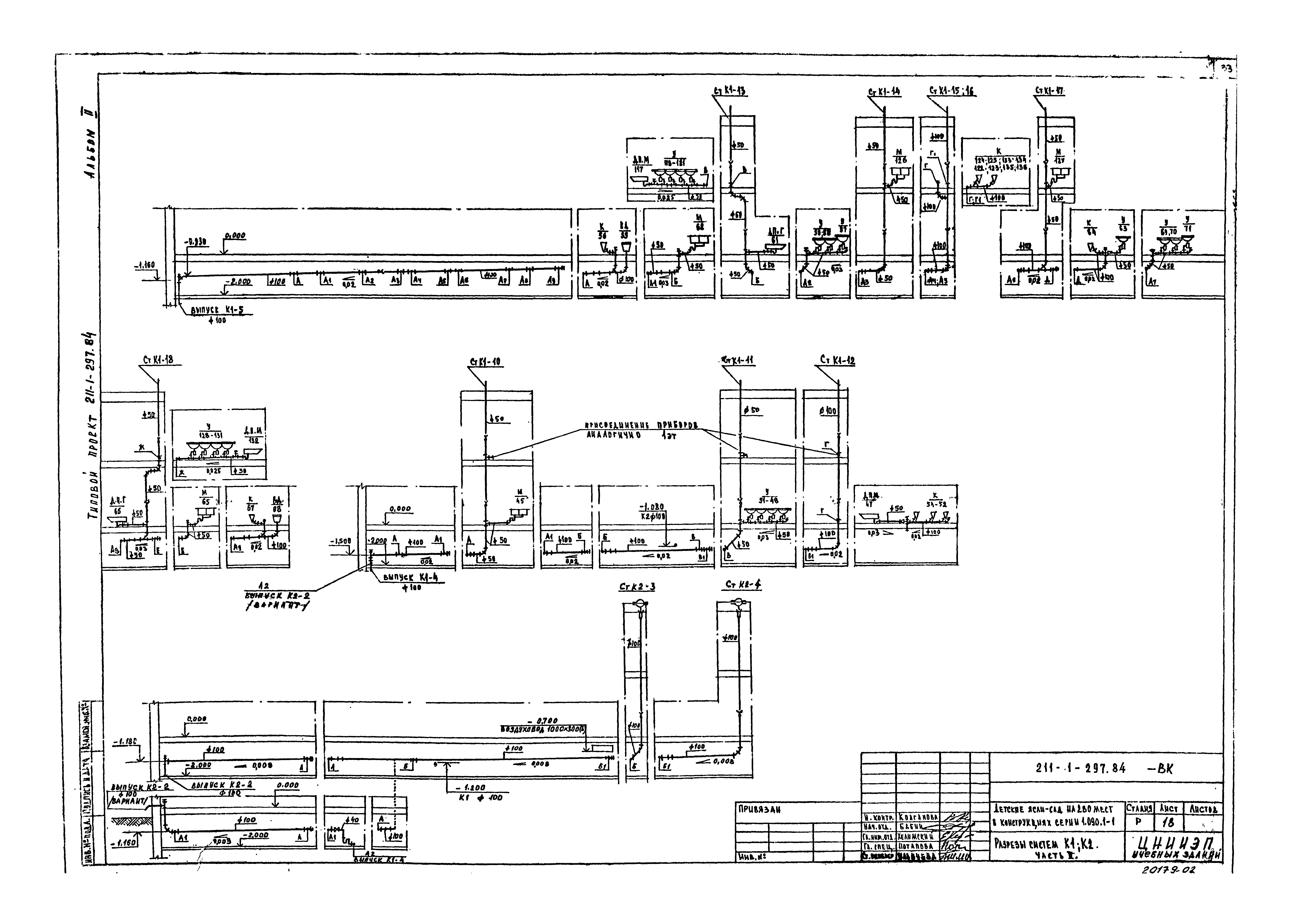
| Оглавление: | Чертежи основного комплекта марки ОВ Общие данные План техподполья. Часть I План техподполья. Часть II. Узел управления 1 План 1 этажа. Часть I План 1 этажа. Часть II План 2 этажа. Часть I План 2 этажа. Часть II Схема системы отопления. Часть I Схема системы отопления. Часть II Схемы систем П1, В1 - В14, ВЕ1, ВЕ2, ВЕ4, ВЕ9 - ВЕ11, ВЕ15 - ВЕ17, ВЕ28, ВЕ21, ВЕ24 Установка системы П1. Схема системы теплоснабжения установки П1 Воздуховод из асбестоцементных листов Приемная секция установок Соединительная секция установок Изоляция воздуховодов и трубопроводов Чертежи основного комплекта марки ВК Общие данные План техподполья с системами В1, Т3, Т4. Часть I План техподполья с системами В1, Т3, Т4. Часть II План техподполья с системами К1, К2, К3. Часть I План техподполья с системами К1, К2. Часть II План 1 этажа с системами В1, Т3, Т4, Т31. Часть I План 1 этажа с системами В1, Т3, Т4, Т31. Часть II План 1 этажа с системами К1, К2. Часть I План 1 этажа с системами К1, К2, К3. Часть II План 2 этажа с системами В1, Т3, Т4, Т31. Часть I План 2 этажа с системами В1, Т3, Т4, Т31. Часть II План 2 этажа с системами К1, К2, К3. Часть I План 2 этажа с системами К1, К2. Часть II Схема систем В1, Т3, Т4, Т31. Часть I Схема систем В1, Т3, Т4, Т31. Часть II Разрезы системы К1. Часть I Разрезы систем К1, К2, К3. Часть I Разрезы систем К1, К2. Часть II Изоляция трубопроводов |
| Разработан: | ЦНИИЭП учебных зданий Госгражданстроя |
| Утверждён: | 22.09.1983 Госгражданстрой (Gosgrazhdanstroy 279) |



































