Скачать Типовой проект 416-7-134 Альбом I. Пояснительная записка, технологические чертежиДата актуализации: 01.01.2021
|
| Обозначение: | Типовой проект 416-7-134 |
| Обозначение англ: | 416-7-134 |
| Статус: | действует |
| Название рус.: | Альбом I. Пояснительная записка, технологические чертежи |
| Дата добавления в базу: | 01.09.2013 |
| Дата актуализации: | 01.01.2021 |
| Дата введения: | 01.10.1975 |
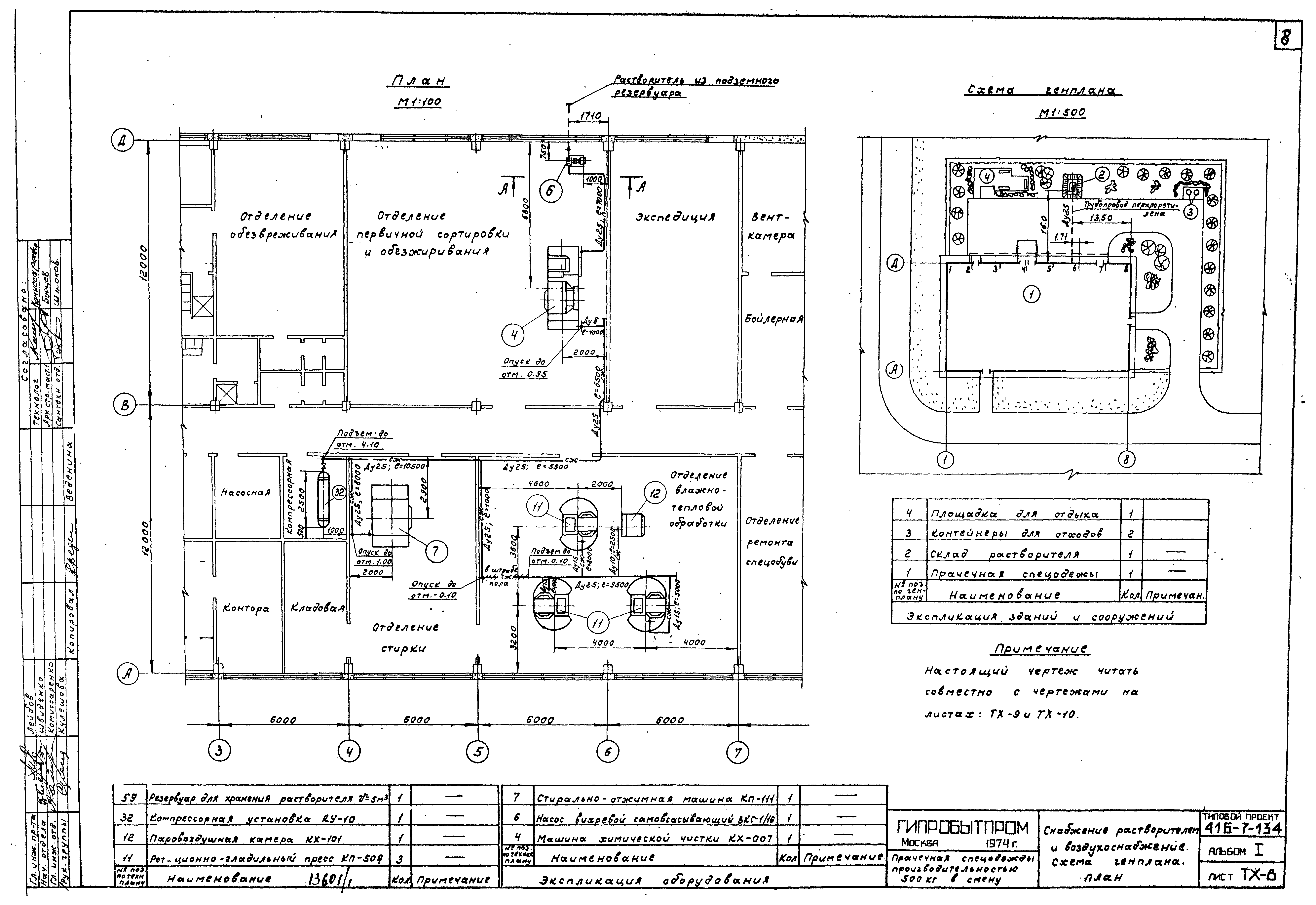
| Оглавление: | Технико-экономические показатели Технология. Содержание альбома. Пояснительная записка Технология. Пояснительная записка Технология. План 1-го этажа Технология. Спецификация оборудования Технология. Разрез I-I и II-II Снабжение растворителем и воздухоснабжение. Схема генплана. План Снабжение растворителем и воздухоснабжение. Разрезы А-А, Б-Б, В-В, Г-Г, Д-Д Снабжение растворителем и воздухоснабжение. Монтажная схема трубопроводов Механизация транспортных и складских работ Техническое решение. Конвейер ленточный со столами (поз. по технологическому плану 10) Техническое решение. Тележка погрузочная (поз. по технологическому плану 48). Мешок для спецодежды и спецобуви (поз. по технологическому плану 57) Техническое решение. Стрелка подъемная (поз. по технологическому плану 49) Техническое решение. Стрелка переключения правая (поз. по технологическому плану 51) |
| Разработан: | Гипробытпром |
| Утверждён: | 21.04.1975 Министерство бытового обслуживания населения РСФСР (Russian Federation Ministry of Public Consumer Services 135) |





















