Скачать Типовой проект 416-7-134 Альбом II. Архитектурно-строительные чертежиДата актуализации: 01.01.2021
|
| Обозначение: | Типовой проект 416-7-134 |
| Обозначение англ: | 416-7-134 |
| Статус: | действует |
| Название рус.: | Альбом II. Архитектурно-строительные чертежи |
| Дата добавления в базу: | 01.09.2013 |
| Дата актуализации: | 01.01.2021 |
| Дата введения: | 01.10.1975 |
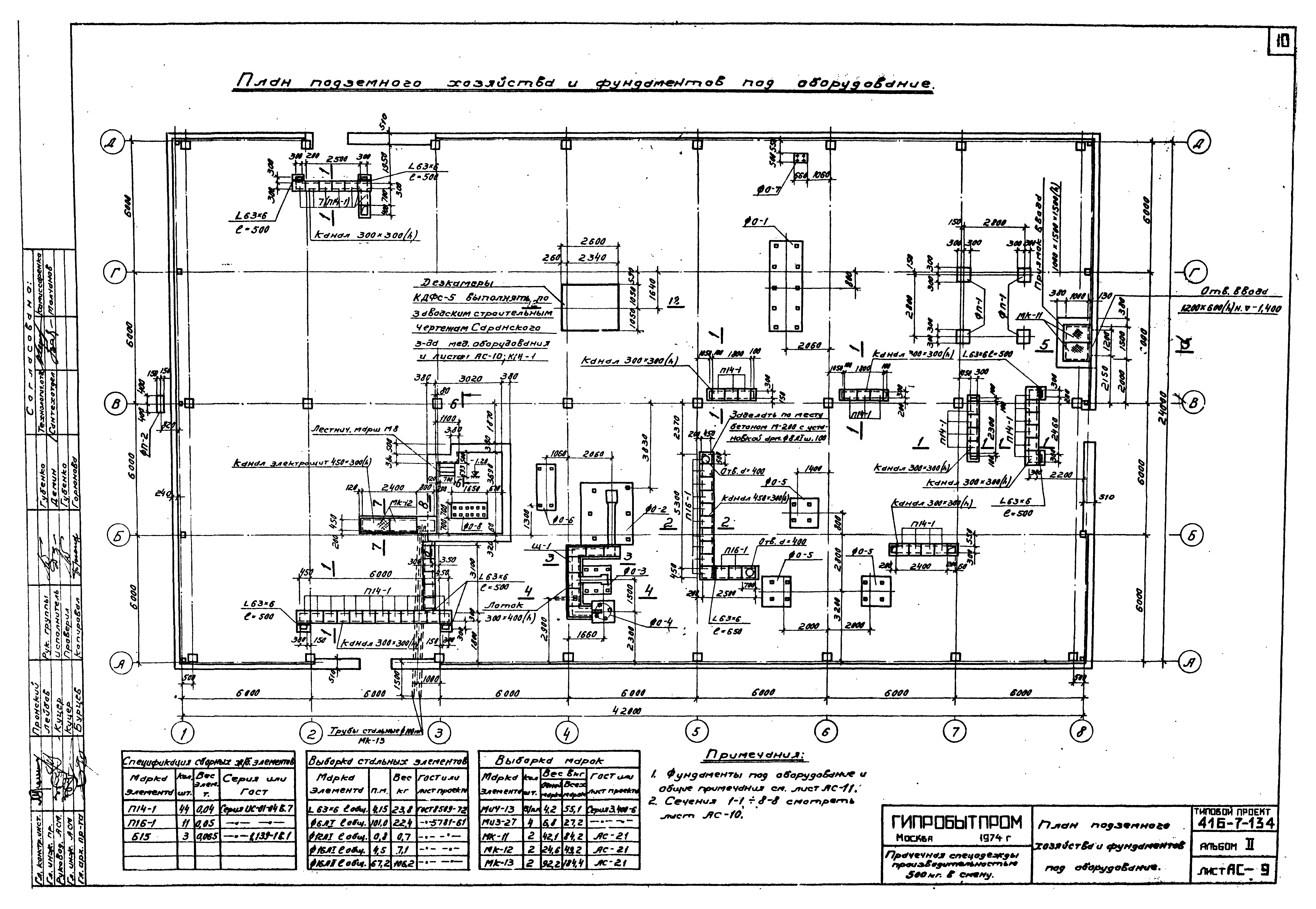
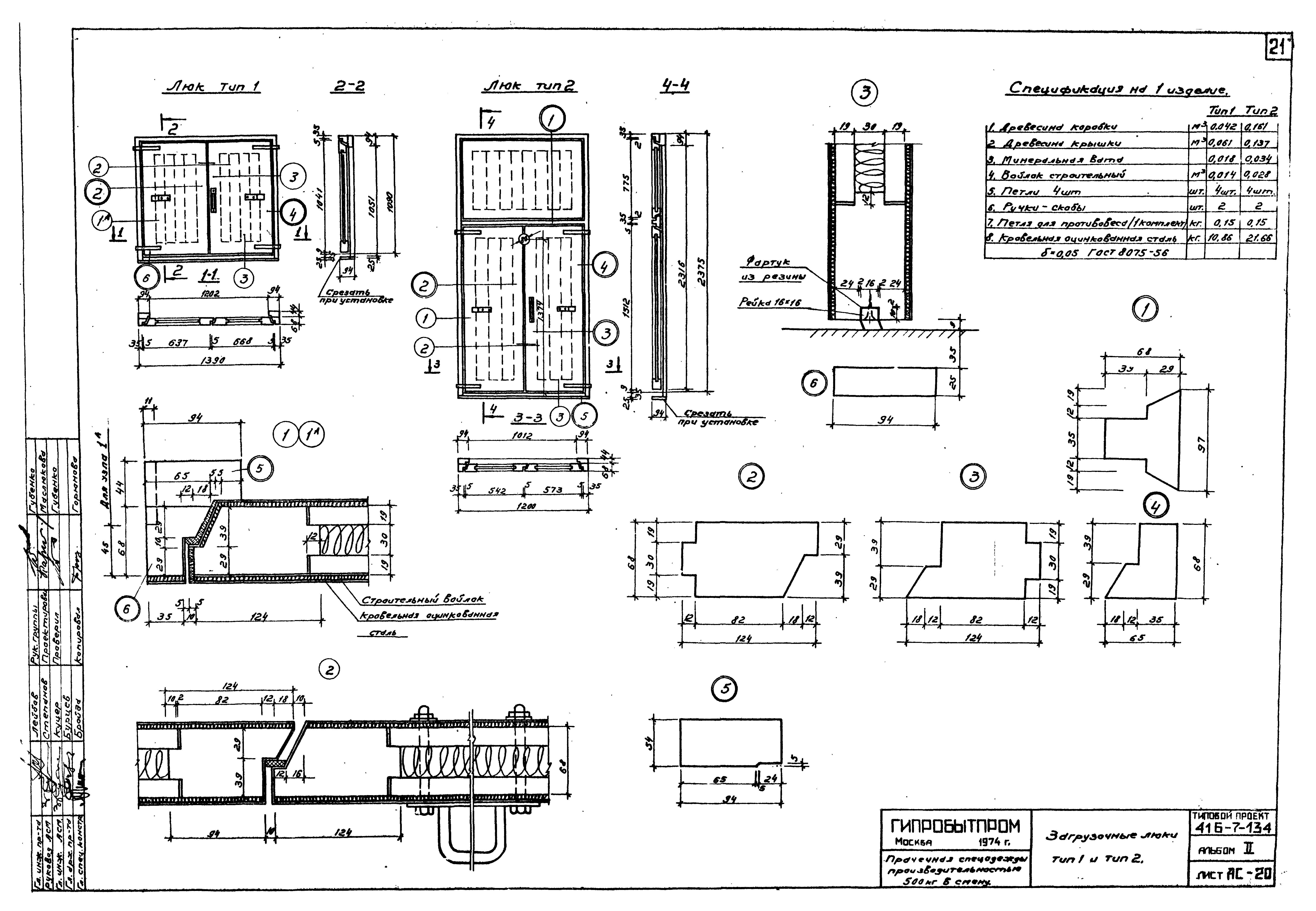
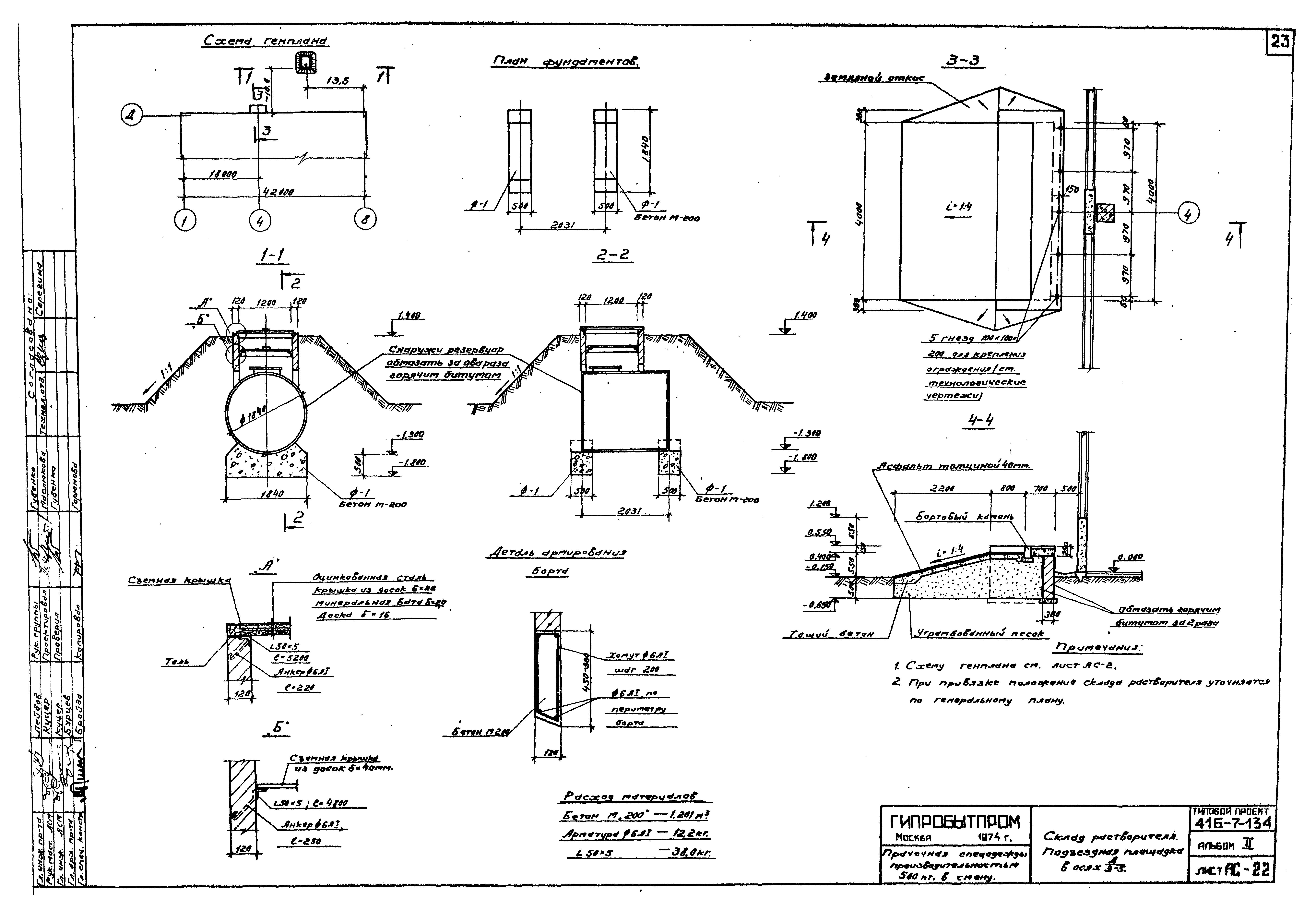
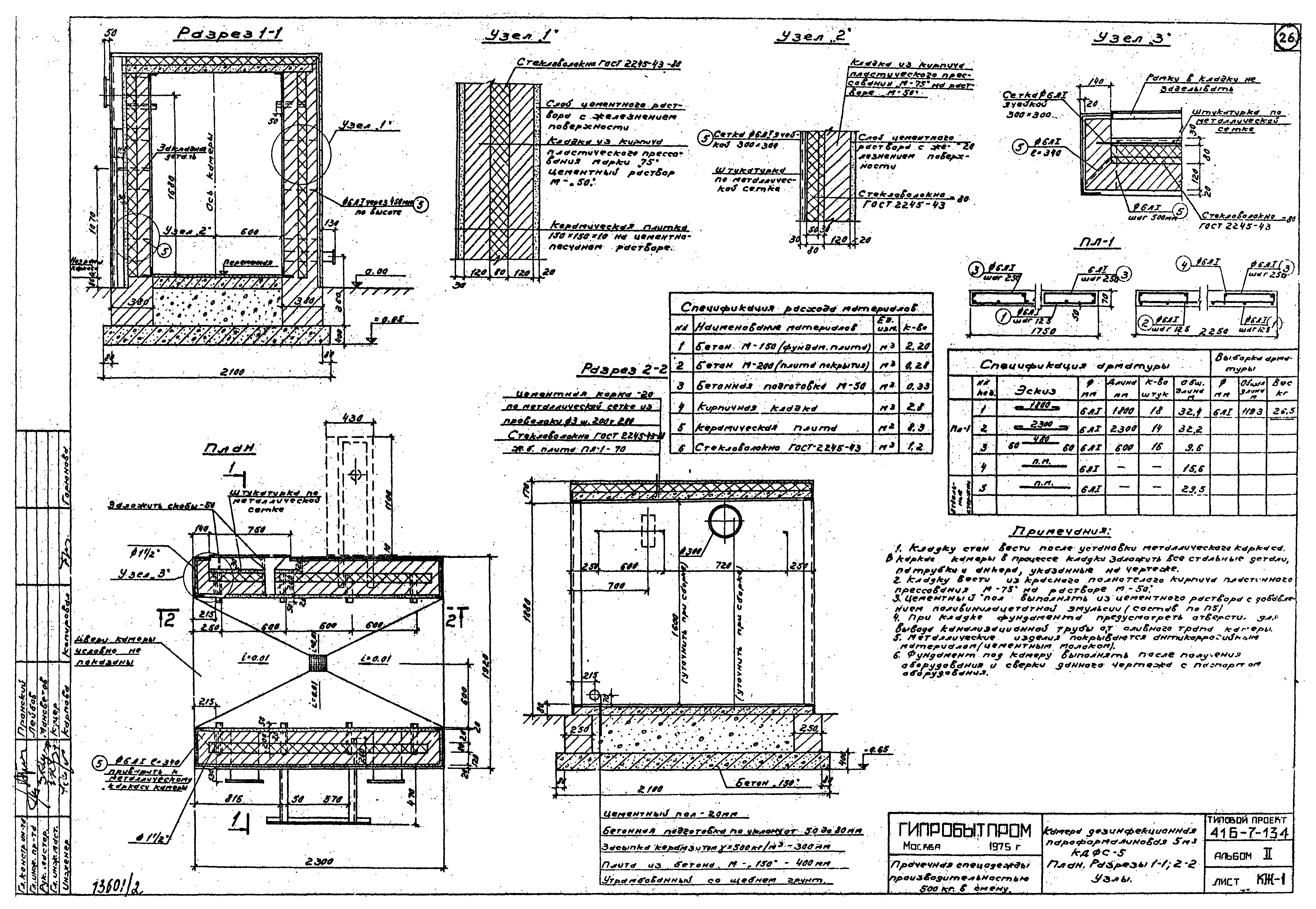
| Оглавление: | 1. Обложка, совмещенная с титульным листом 2. Заглавный лист 3. Пояснительная записка 4. План на отметке 0.000 5. План расположения отверстий в перегородках 6. Фасады и разрезы 7. План кровли и план полов. Указания по отделочным работам 8. План фундаментов. Фрагменты плана 1, 2 9. Армирование фундаментов Ф-1 - Ф-5 10. План подземного хозяйства и фундаментов под оборудование 11. Подземное хозяйство. Сечение 1-1 - 8-8. Фундаменты ФП-1 и ФП-2. Щит Щ-1 12. Фундаменты под оборудование ФО-1 - ФО-8 13. Монтажный план и разрезы каркаса 14. Монтажный план покрытия. Монтажный план раскладки перемычек 15. Монтажные схемы навески стеновых панелей 16. Навес по оси "Д". Металлические изделия МК-1 - МК-3 17. Монтажный план подвесных путей и детали 18. Площадки градирни и в бойлерной. Лестница насосной. Подвеска у оси 4/Д 19. Венткамеры №№ 1 и 2 20. Дополнительные закладные детали для железобетонных элементов КПII-1d; 16012-3d. Узел "1". Узел для влажных помещений. Узлы 2, 3, 4 21. Загрузочные люки. Тип 1 и тип 2 22. Металлические изделия МК4 - МК-13 23. Склад растворителя. Подъездная площадка в осях Д/3-5 24. Сводная спецификация сборных железобетонных элементов. Выборка стальных изделий заводского изготовления 25. Краткие рекомендации по организации строительно-монтажных работ |
| Разработан: | Гипробытпром |
| Утверждён: | 21.04.1975 Министерство бытового обслуживания населения РСФСР (Russian Federation Ministry of Public Consumer Services 135) |

























