Скачать Типовой проект 902-1-150.1.88 Альбом 9. Задание заводам-изготовителям. Решение без регулируемого электропривода. Силовое электрооборудование. Технологический контроль (из ТП 902-1-148.88)Дата актуализации: 01.01.2021
|
| Обозначение: | Типовой проект 902-1-150.1.88 |
| Обозначение англ: | 902-1-150.1.88 |
| Статус: | не определен законодательством |
| Название рус.: | Альбом 9. Задание заводам-изготовителям. Решение без регулируемого электропривода. Силовое электрооборудование. Технологический контроль (из ТП 902-1-148.88) |
| Дата добавления в базу: | 01.09.2013 |
| Дата актуализации: | 01.01.2021 |
| Дата введения: | 15.09.1988 |
| Дата окончания срока действия: | 30.06.2003 |
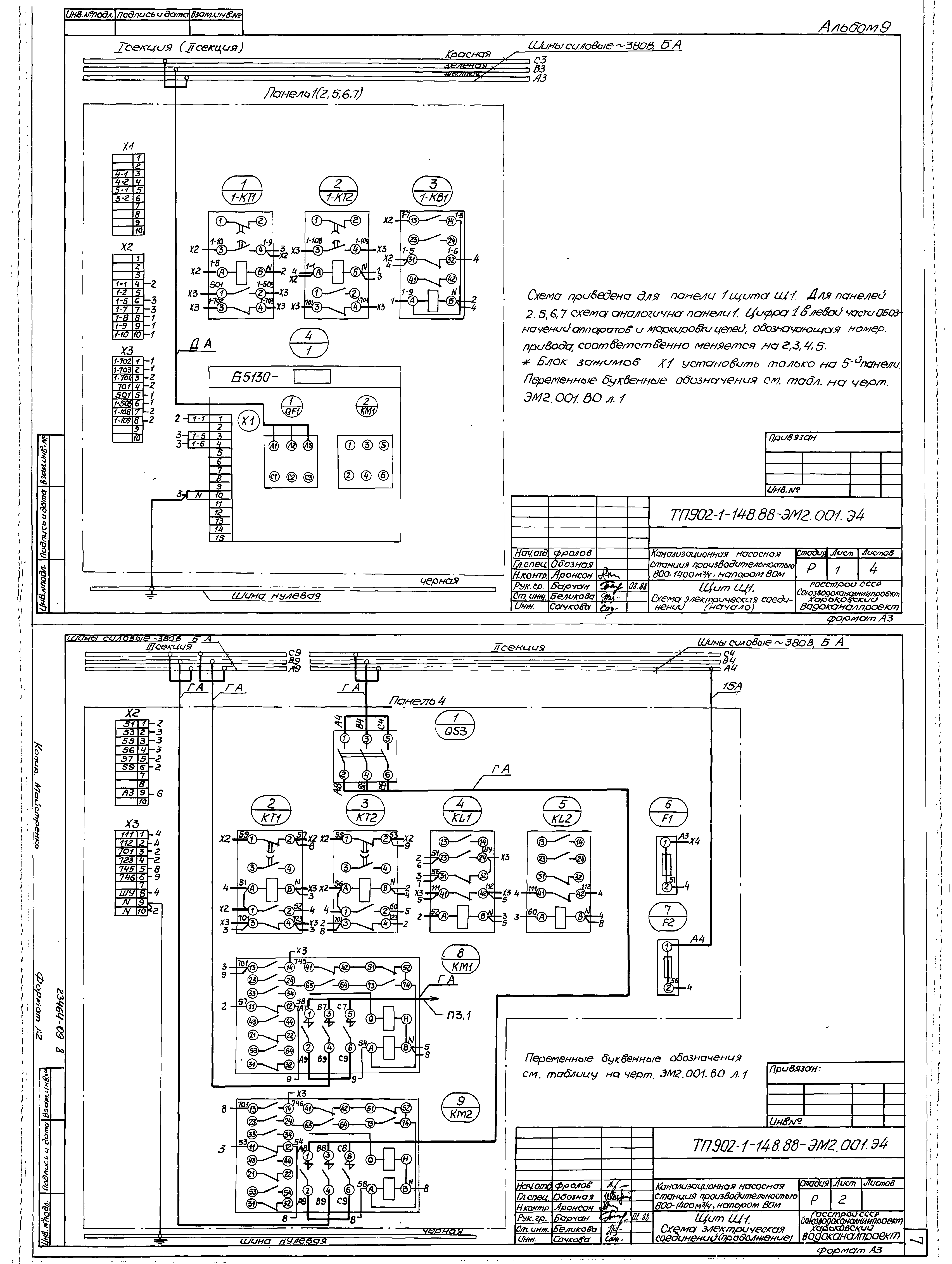
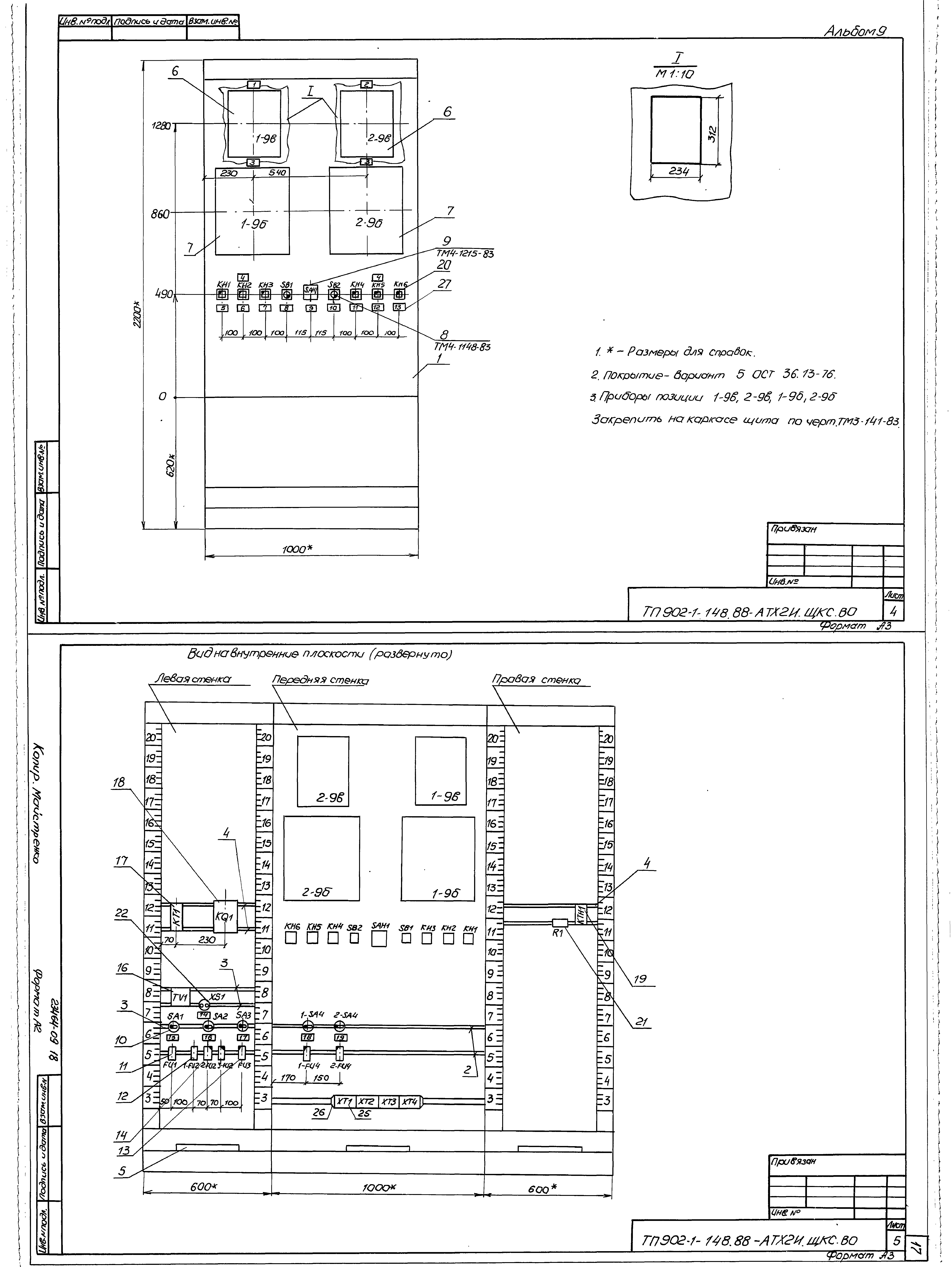
| Оглавление: | Задание заводу-изготовителю марки ЭМ2 000 Ведомость чертежей раздела 000.ДП Перечень комплектных устройств 001.ВО Щит Щ1. Чертеж общего вида 001 Щит Щ1. Таблица технических данных аппаратов 001.ТБ Щит Щ1. Перечень надписей 001.Э4 Щит Щ1. Схема электрическая соединений 001.Э5 Щит Щ1. Таблица межпанельных соединений 002.ВО Шкаф ШУС. Чертеж общего вида 002 Шкаф ШУС. Таблица технических данных аппаратов 002.ТБ Шкаф ШУС. Перечень надписей 002.Э4 Шкаф ШУС. Схема электрическая соединений Задание заводу-изготовителю марки АТХ2.И 111 Перечень технической документации для задания заводу - изготовителю щитов ЩКС.ВО Щит контроля и сигнализации ЩКС. Общий вид ЩКС.ТС Щит контроля и сигнализации ЩКС. Таблица соединений ЩКС.ТП Щит контроля и сигнализации ЩКС. Таблица подключения АТХ2.002 Спецификация щитов |
| Разработан: | Харьковский Водоканалпроект |
| Утверждён: | 08.07.1986 Госстрой СССР (Государственный комитет Совета Министров СССР по делам строительства) (USSR Gosstroy 20) |





















