Скачать Серия 1.133-1 Выпуск 1. Стеновые легкобетонные блоки толщиной 40 см для жилых зданий высотой 5 - 9 этажейДата актуализации: 01.01.2021
|
| Обозначение: | Серия 1.133-1 |
| Обозначение англ: | Series 1.133-1 |
| Статус: | заменен |
| Название рус.: | Выпуск 1. Стеновые легкобетонные блоки толщиной 40 см для жилых зданий высотой 5 - 9 этажей |
| Дата добавления в базу: | 01.09.2013 |
| Дата актуализации: | 01.01.2021 |
| Дата введения: | 15.11.1971 |
| Дата окончания срока действия: | 01.11.1981 |
| Область применения: | В альбом включены рабочие чертежи крупных блоков наружных стен толщиной 40 см, предназначенные для изготовления этих блоков предприятиями строительной промышленности и применения в строительстве 5-9-этажных жилых зданий |
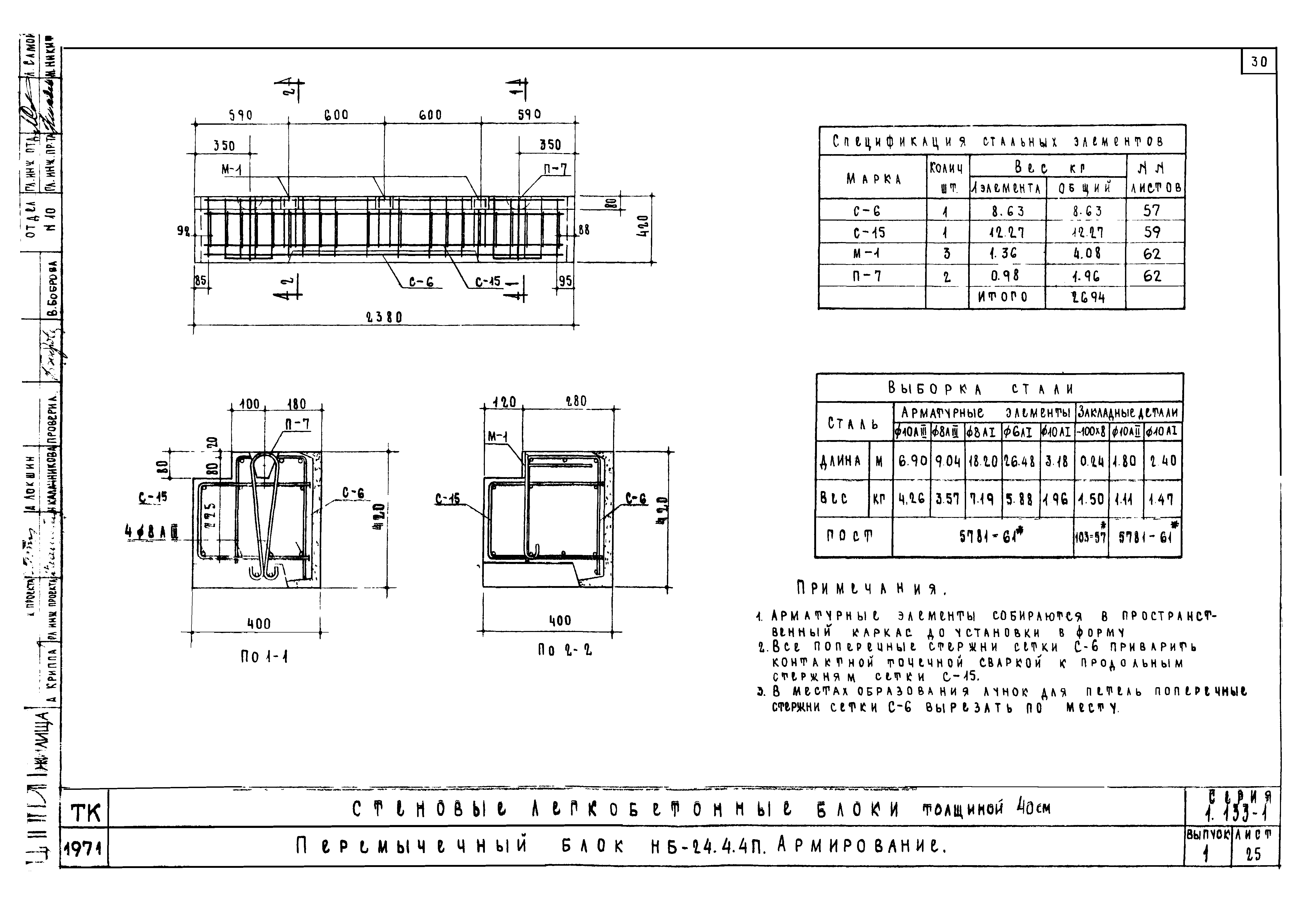
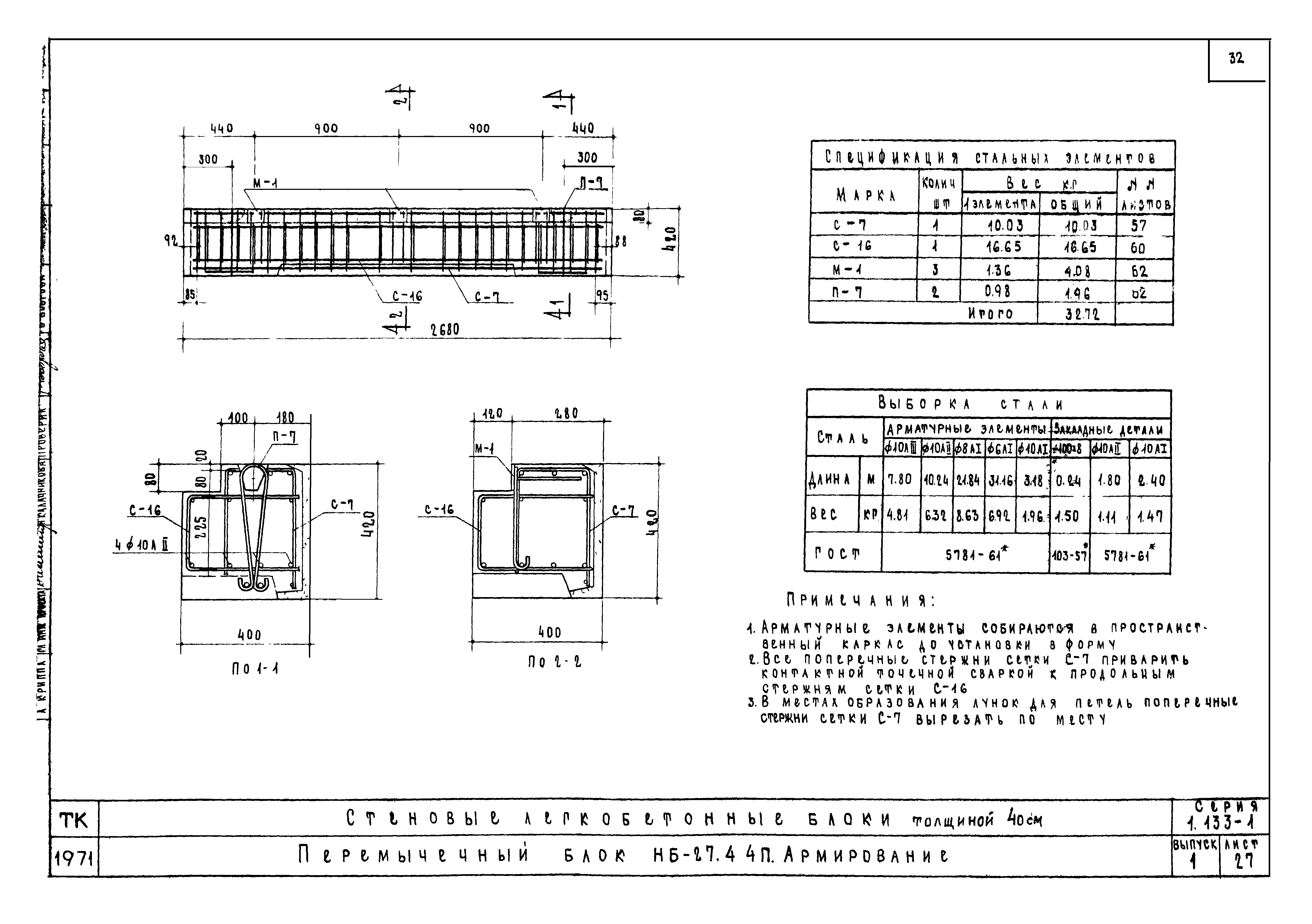
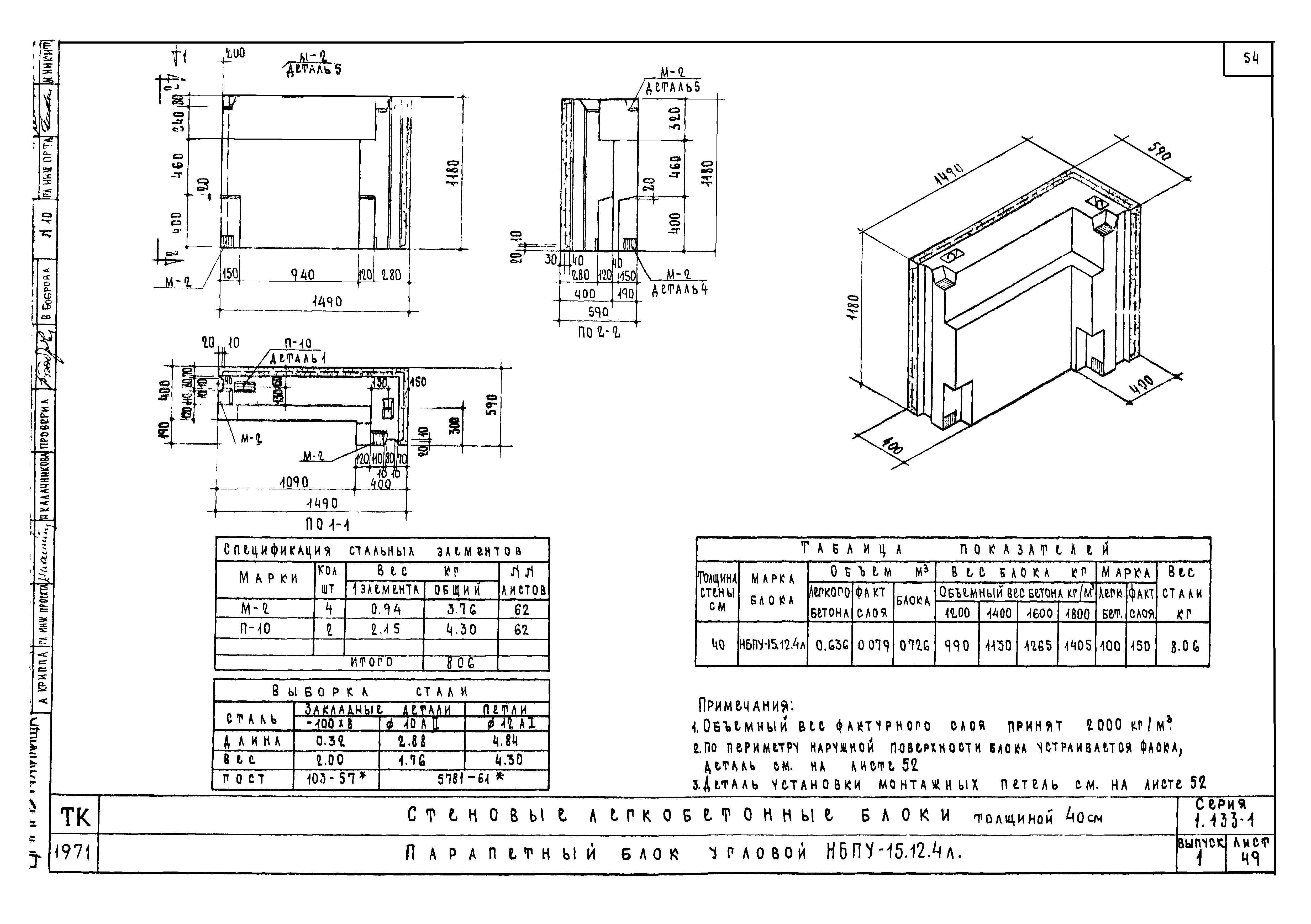
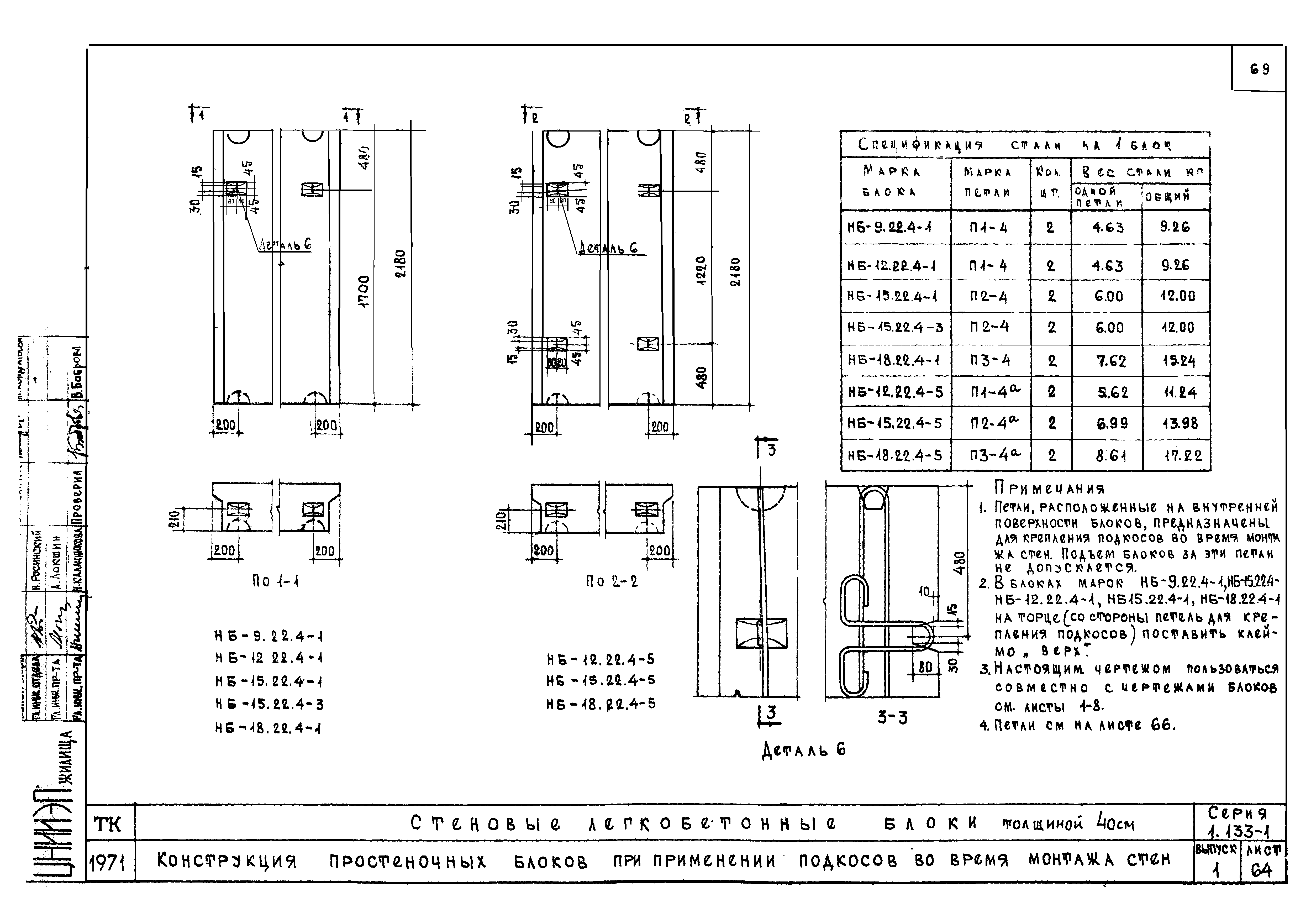
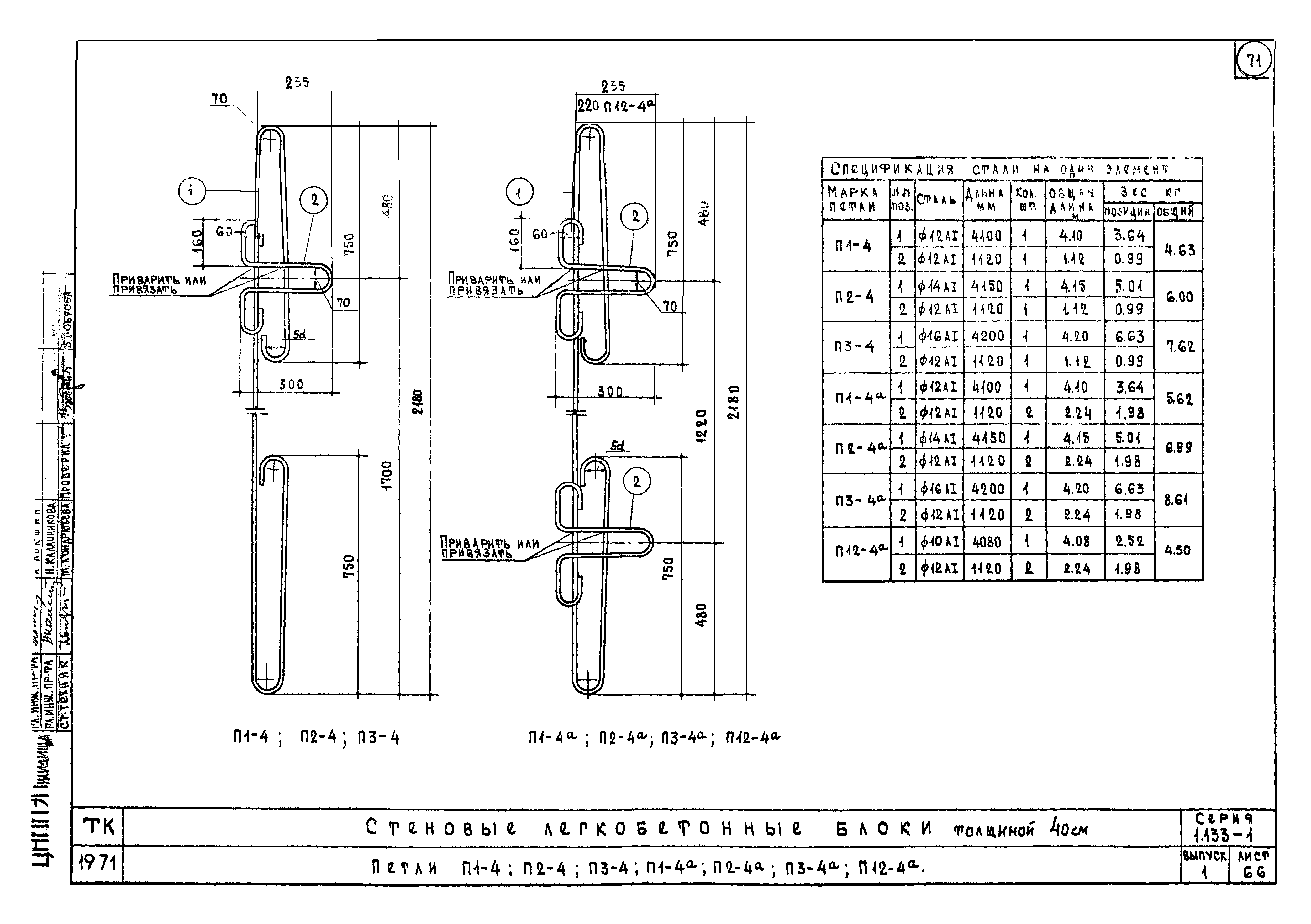
| Оглавление: | Содержание Пояснительная записка Простеночный блок НБ-9.22.4-1 Простеночный блок НБ-12.22.4-1 Простеночный блок НБ-12.22.4-5 Простеночный блок НБ-15.22.4-1 Простеночный блок НБ-15.22.4-3 Простеночный блок НБ-15.22.4-5 Простеночный блок НБ-18.22.4-1 Простеночный блок НБ-18.22.4-5 Простеночный блок угловой НБУ-10.22.4-1 Простеночный блок угловой НБУ-15.22.4-1 Простеночный блок угловой НБУ-8.22.4-1 Простеночный блок температурного шва НБУ-7/6.22.4-3 Простеночный блок температурного шва НБУ-9/6.22.4-3 Перемычечный блок НБ-24.6.4П Перемычечный блок НБ-24.6.4П. Армирование Перемычечный блок НБ-27.6.4П Перемычечный блок НБ-27.6.4П. Армирование Перемычечный блок НБ-30.6.4П Перемычечный блок НБ-30.6.4П. Армирование Перемычечный блок НБ-33.6.4П Перемычечный блок НБ-33.6.4П. Армирование Перемычечный блок НБ-36.6.4П Перемычечный блок НБ-36.6.4П. Армирование Перемычечный блок НБ-24.4.4П Перемычечный блок НБ-24.4.4П. Армирование Перемычечный блок НБ-27.4.4П Перемычечный блок НБ-27.4.4П. Армирование Перемычечный блок НБ-33.4.4П Перемычечный блок НБ-33.4.4П. Армирование Перемычечный блок НБ-36.4.4Пл Перемычечный блок НБ-36.4.4Пл. Армирование Перемычечный блок НБ-36.4.4П Перемычечный блок НБ-36.4.4П. Армирование Поясной блок НБ-21.6.4 Поясной блок НБ-21.6.4. Армирование Поясной блок угловой НБУ-12.6.4Л Поясной блок угловой НБУ-12.6.4 Поясные блоки угловые НБУ-12.6.4Л и НБУ-12.6.4. Армирование Поясной блок угловой НБУ-28.6.4Л Поясной блок угловой НБУ-28.6.4Л. Армирование Поясной блок угловой НБУ-28.6.4 Поясной блок угловой НБУ-28.6.4. Армирование Подоконный блок НБО-12.8.3 Подоконный блок НБО-12.11.4 Подоконный блок НБО-15.11.3 Подоконный блок НБД-12.8.3 Парапетный блок НБП-18.12.4 Парапетный блок НБП-24.12.4 Парапетный блок угловой НБПУ-15.12.4Л Парапетный блок угловой НБПУ-15.12.4 Детали устройства шпонки Детали Схема опирания и загружения при испытании. Контрольные нагрузки для перемычечных блоков НБ-24.6.4П, НБ-27.6.4П, НБ-30.6.4П, НБ-33.6.4П, НБ-36.6.4П Схема опирания и загружения при испытании. Контрольные нагрузки для перемычечных блоков НБ-24.4.4П, НБ-27.4.4П, НБ-33.4.4П, НБ-36.4.4Пл, НБ-36.4.4П Сварные сетки С-1; С-2; С-3 Сварные сетки С-4; С-5 Сварные сетки С-6; С-7; С-8; С-9 Сварные сетки С-10; С-11; С-12 Сварные сетки С-13; С-14; С-15 Сварные сетки С-16; С-17; С-18 Сварные сетки С-19; С-20Л; С-20 Сварные сетки С-21; С-22Л; С-22. Закладные детали М-1; М-2. петли с П-1 по П-10, П-12, П-13 Сварные сетки С-23Л; С-23; С-24Л; С-24 Конструкция простеночных блоков при применении подкосов во время монтажа стен Конструкция простеночных блоков угловых при применении подкосов во время монтажа стен Петли П1-4, П2-4, П3-4, П1-4а, П2-4а, П3-4а, П12-4а |
| Разработан: | ЦНИИСК им. В.А. Кучеренко ЦНИИЭП жилища |
| Утверждён: | 06.10.1971 Государственный комитет по гражданскому строительству и архитектуре при Госстрое СССР (178) |
| Чем заменён: | |
| Нормативные ссылки: |
|







































































