Скачать Типовой проект 282-1-154 Альбом I. Архитектурно-строительные решения. Технология и механизация. ВитражиДата актуализации: 01.01.2021
|
| Обозначение: | Типовой проект 282-1-154 |
| Обозначение англ: | 282-1-154 |
| Статус: | не определен законодательством |
| Название рус.: | Альбом I. Архитектурно-строительные решения. Технология и механизация. Витражи |
| Дата добавления в базу: | 01.09.2013 |
| Дата актуализации: | 01.01.2021 |
| Дата введения: | 03.03.1982 |
| Дата окончания срока действия: | 30.06.2003 |
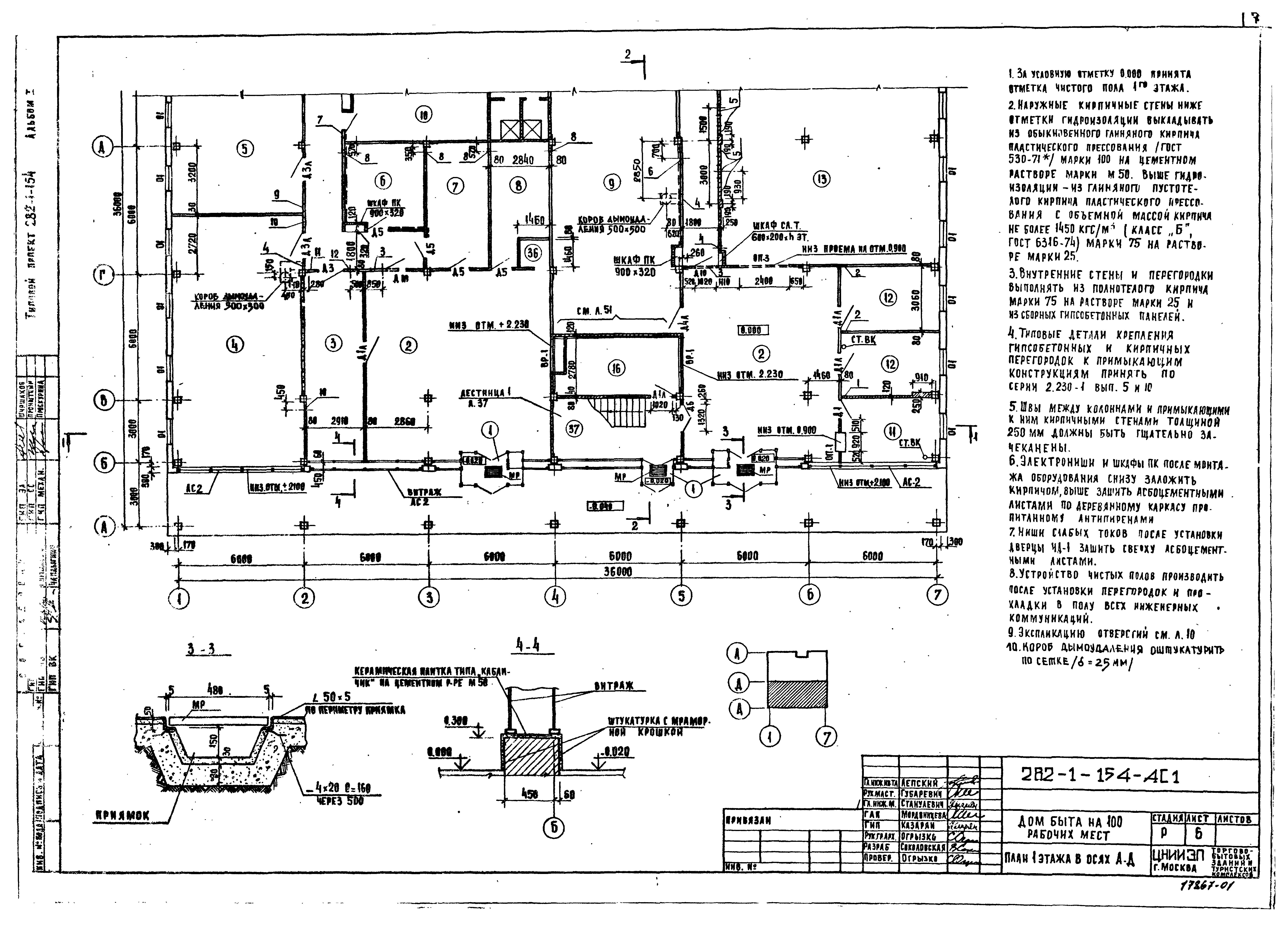
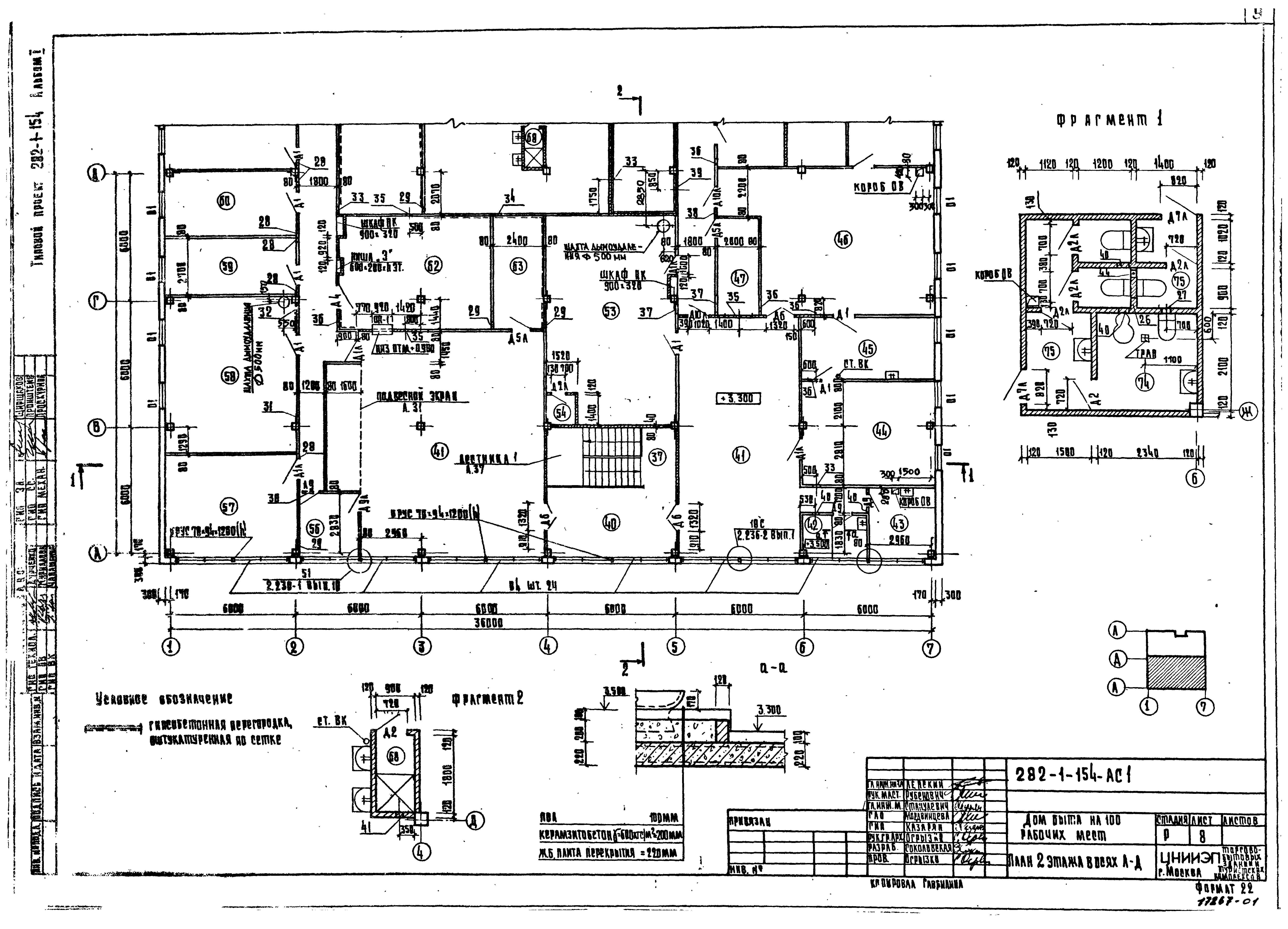
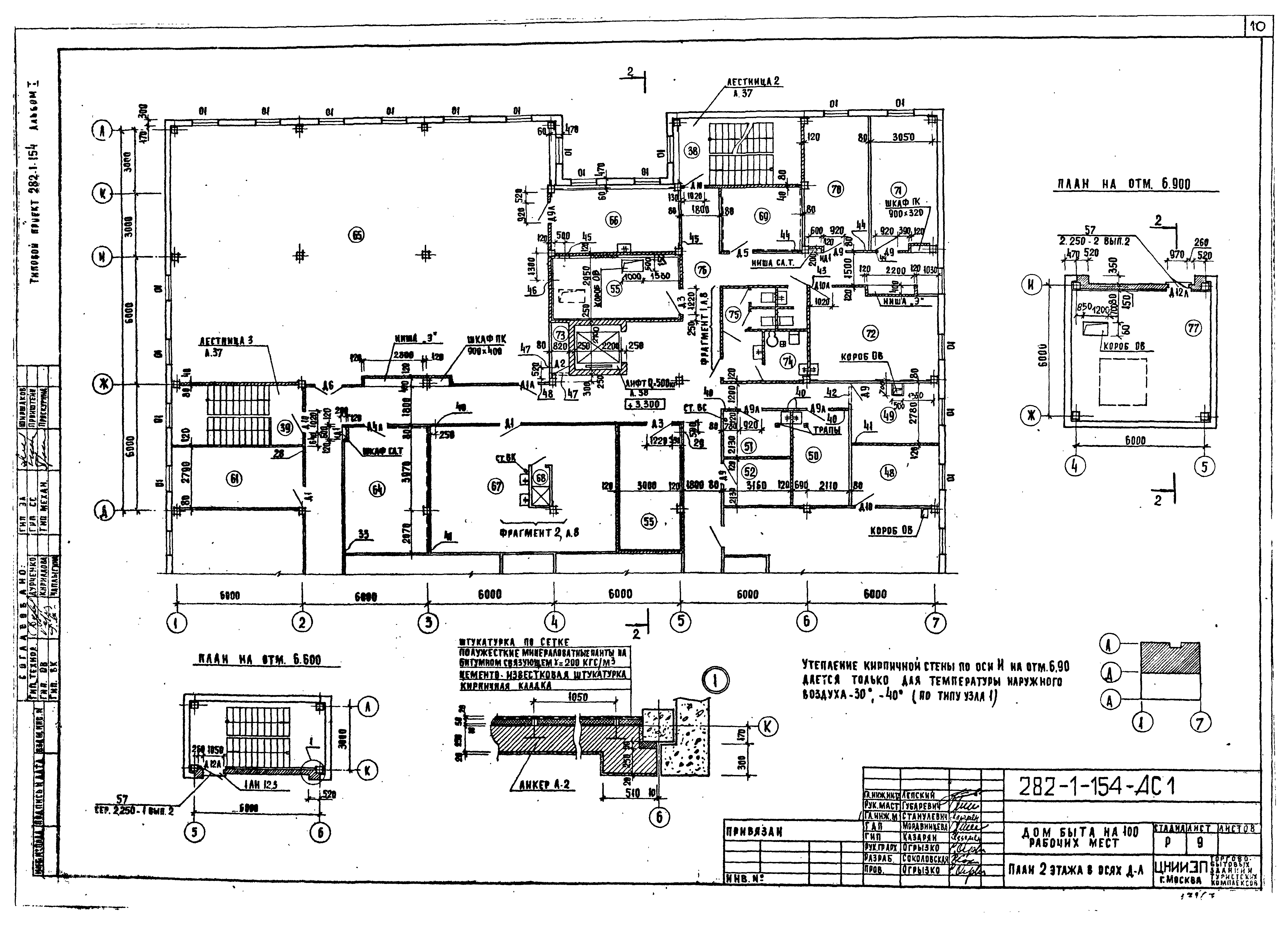
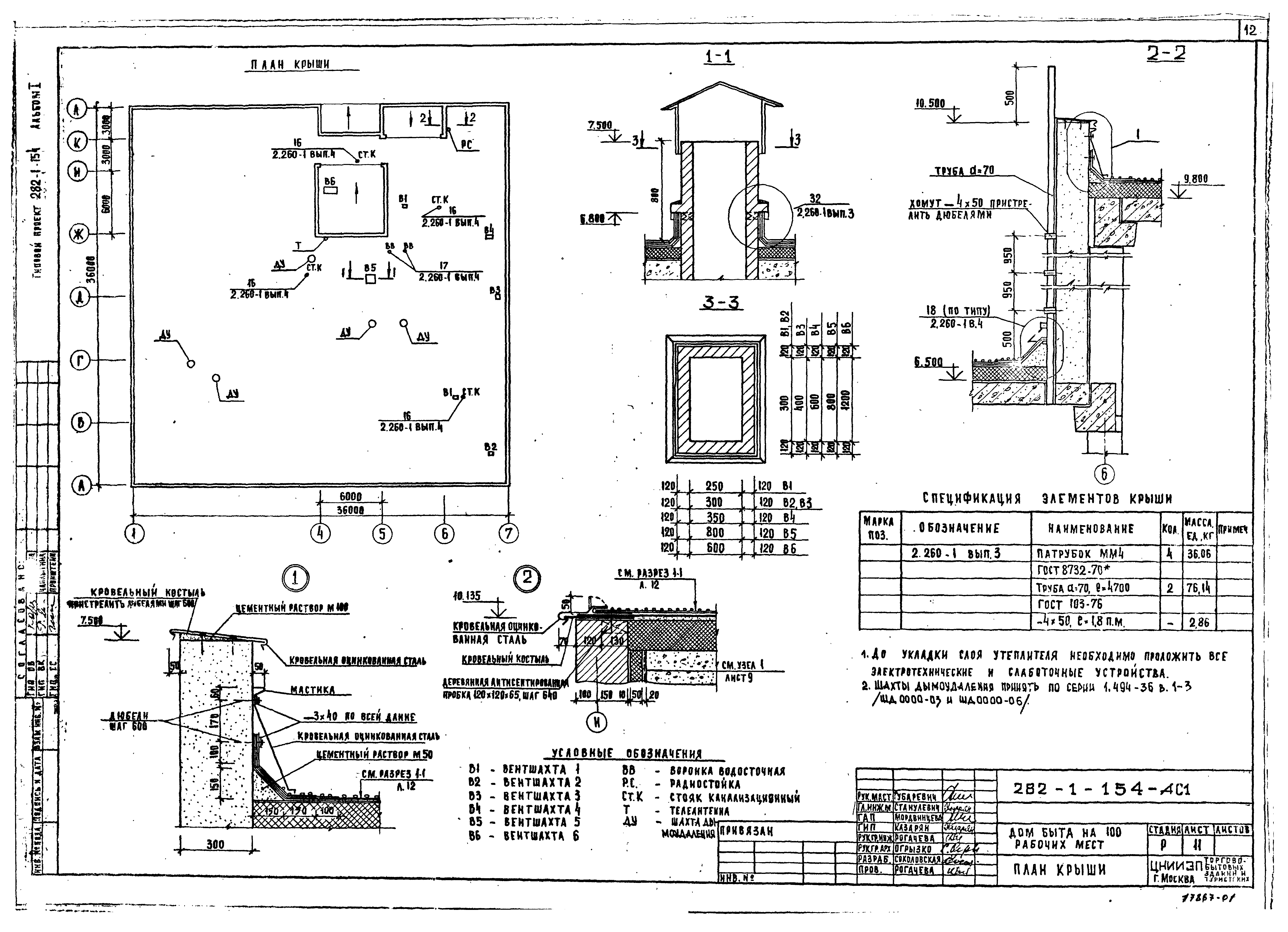
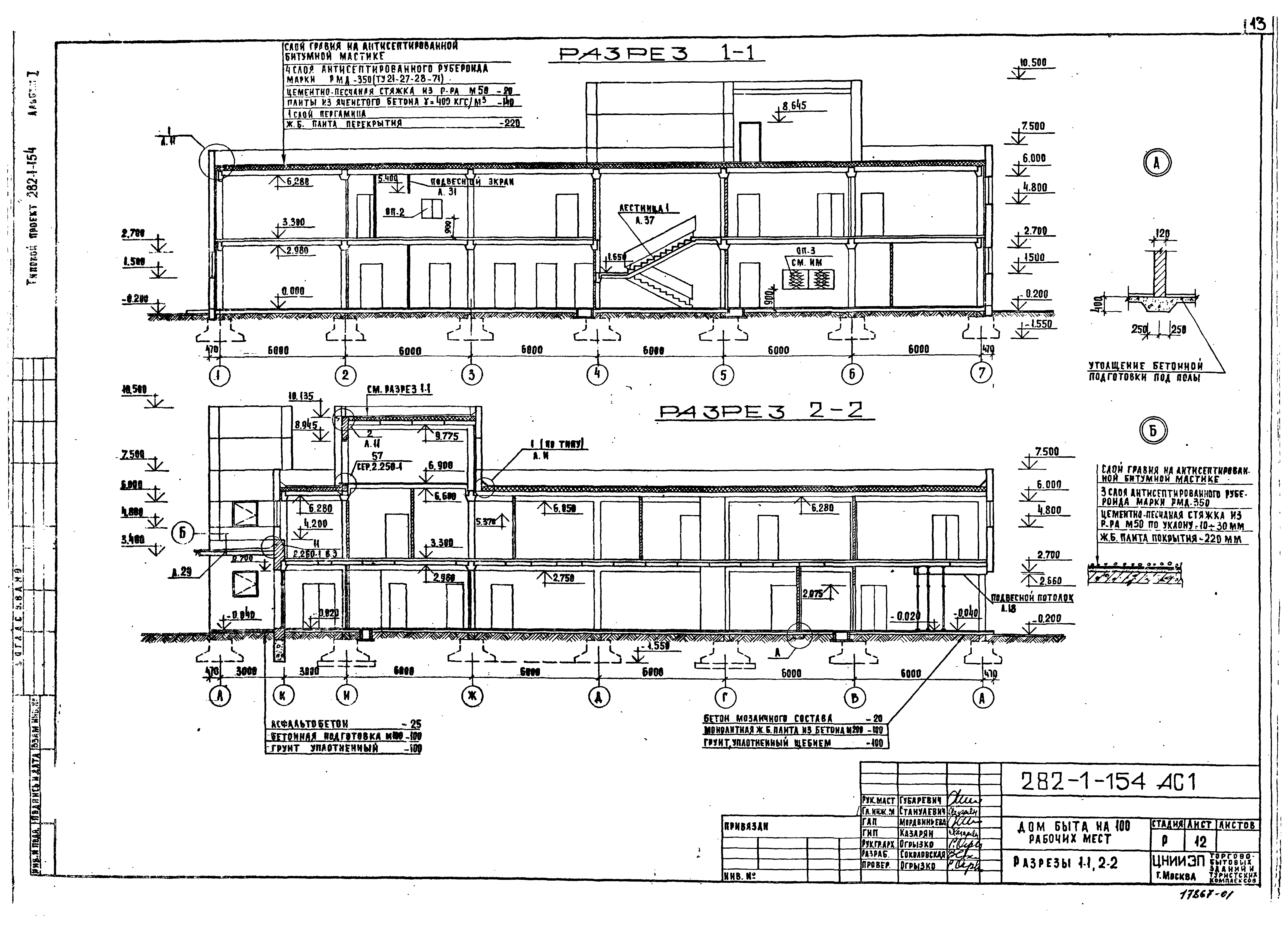
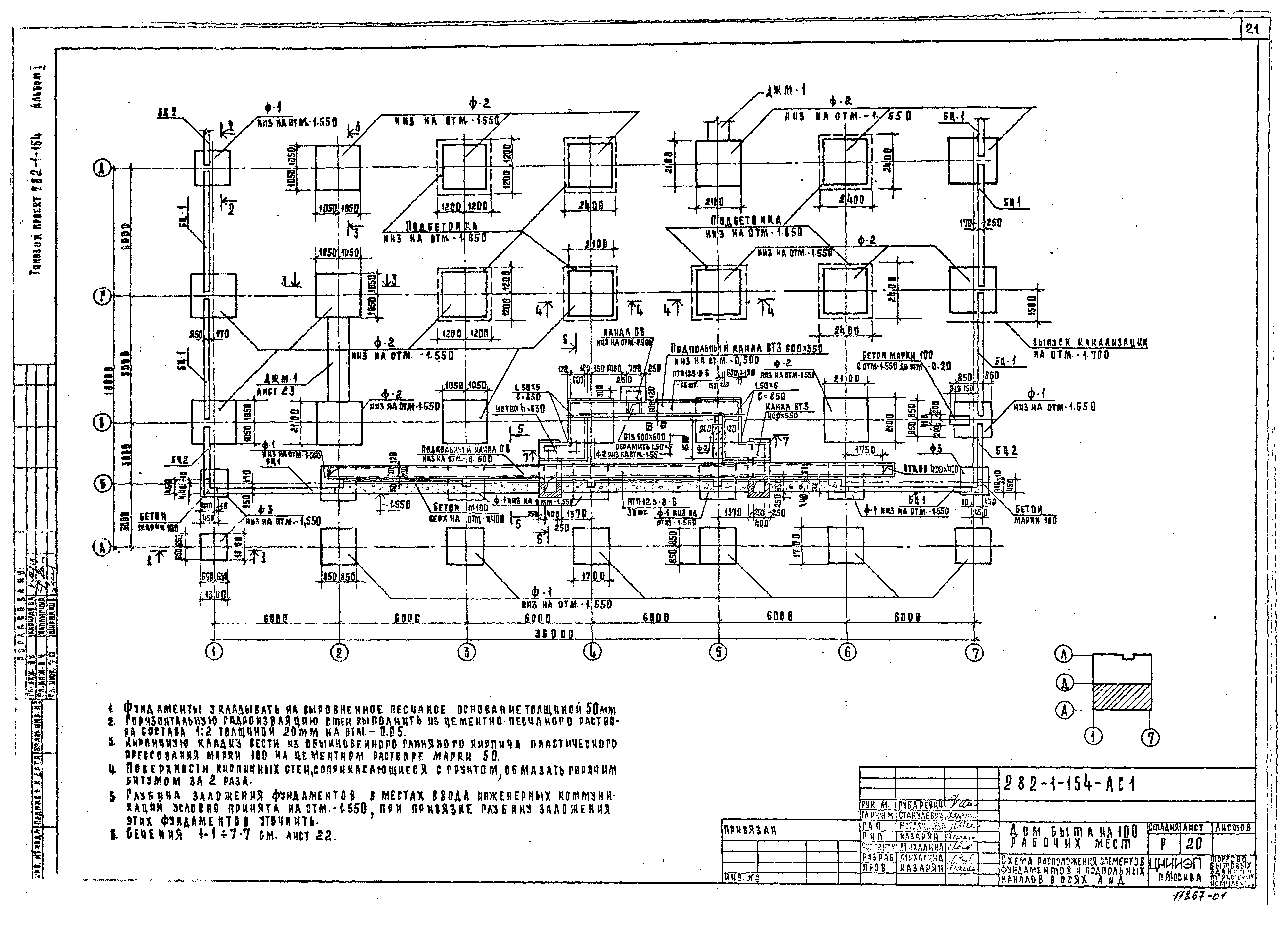
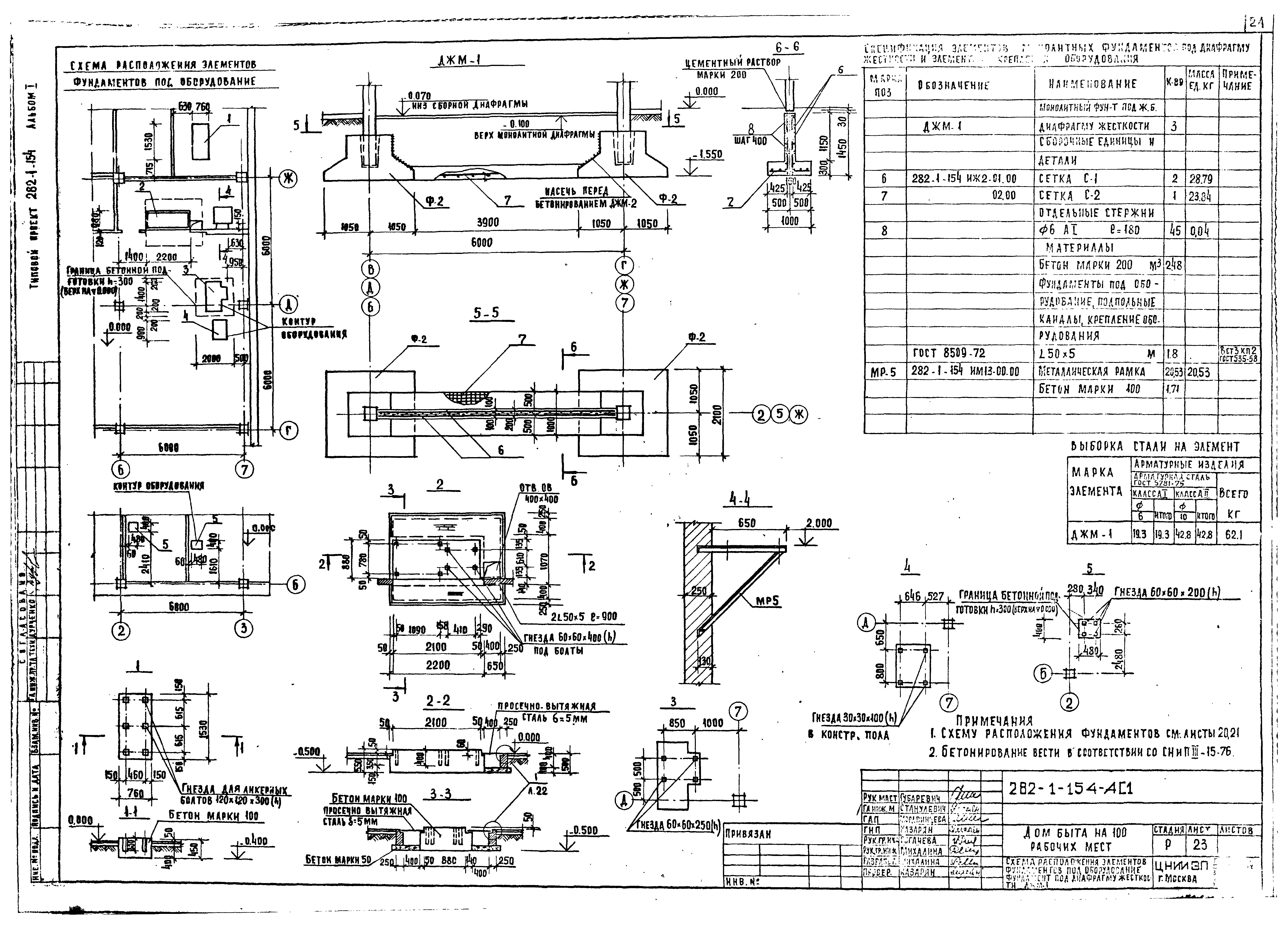
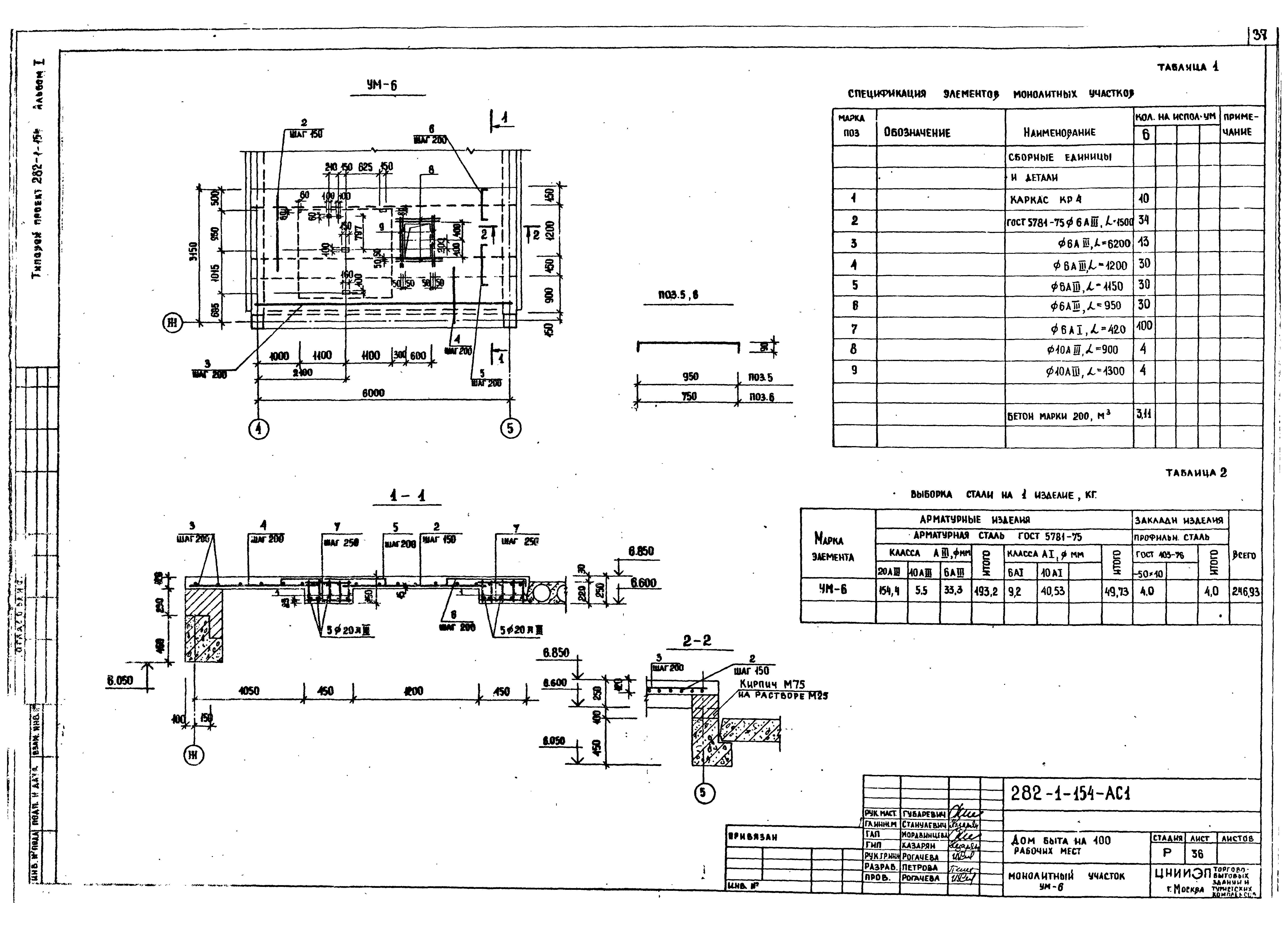
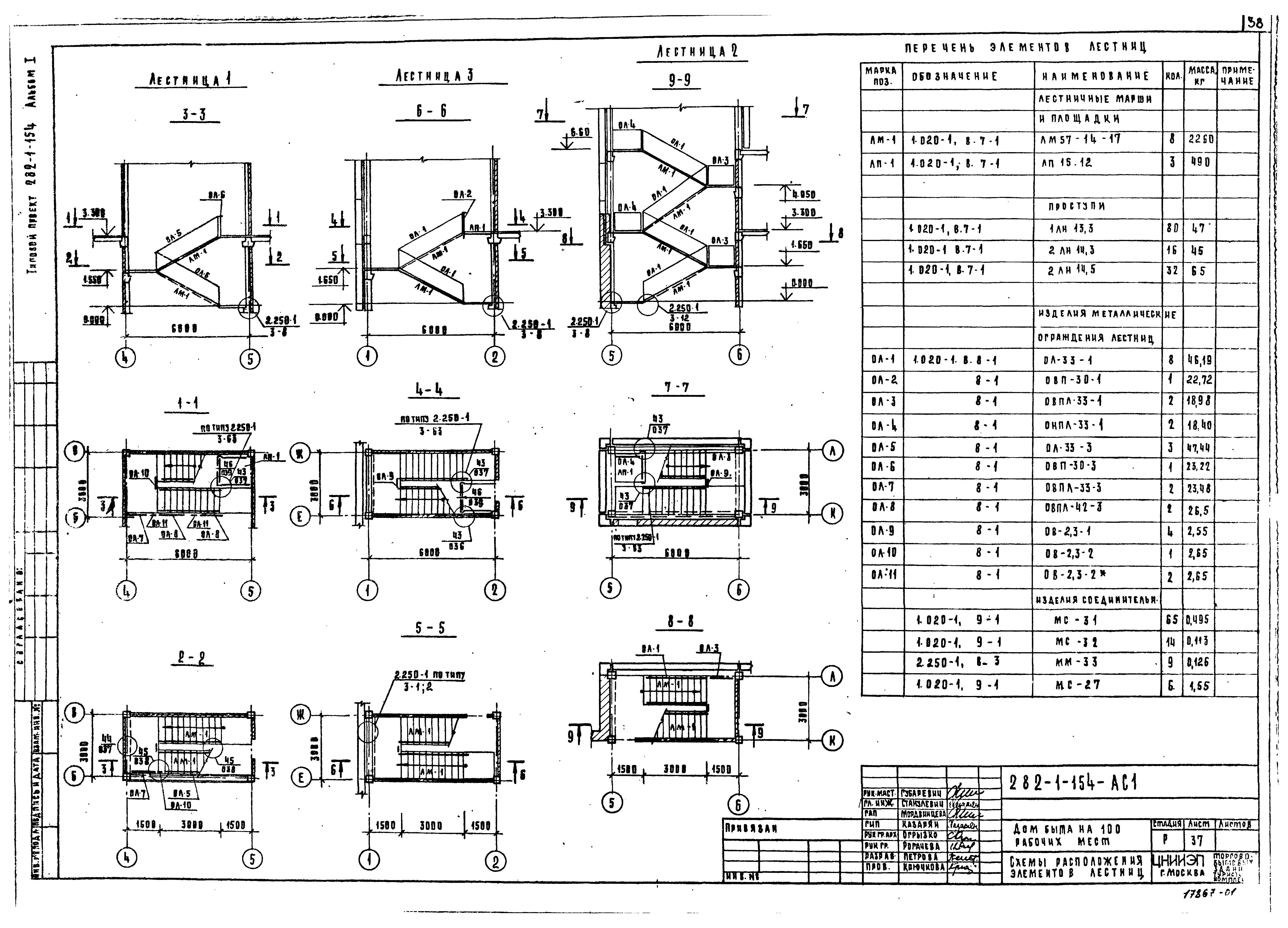
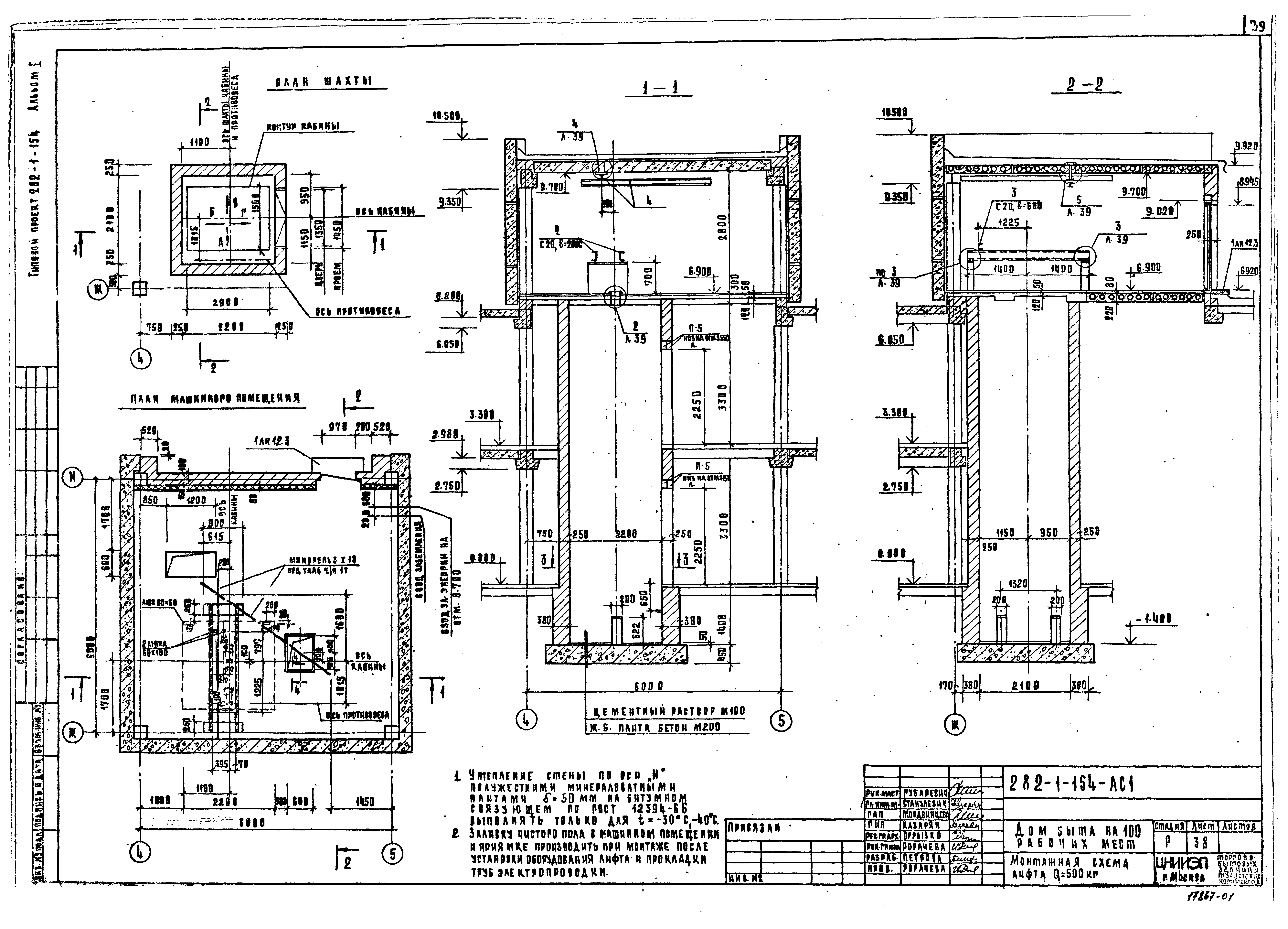
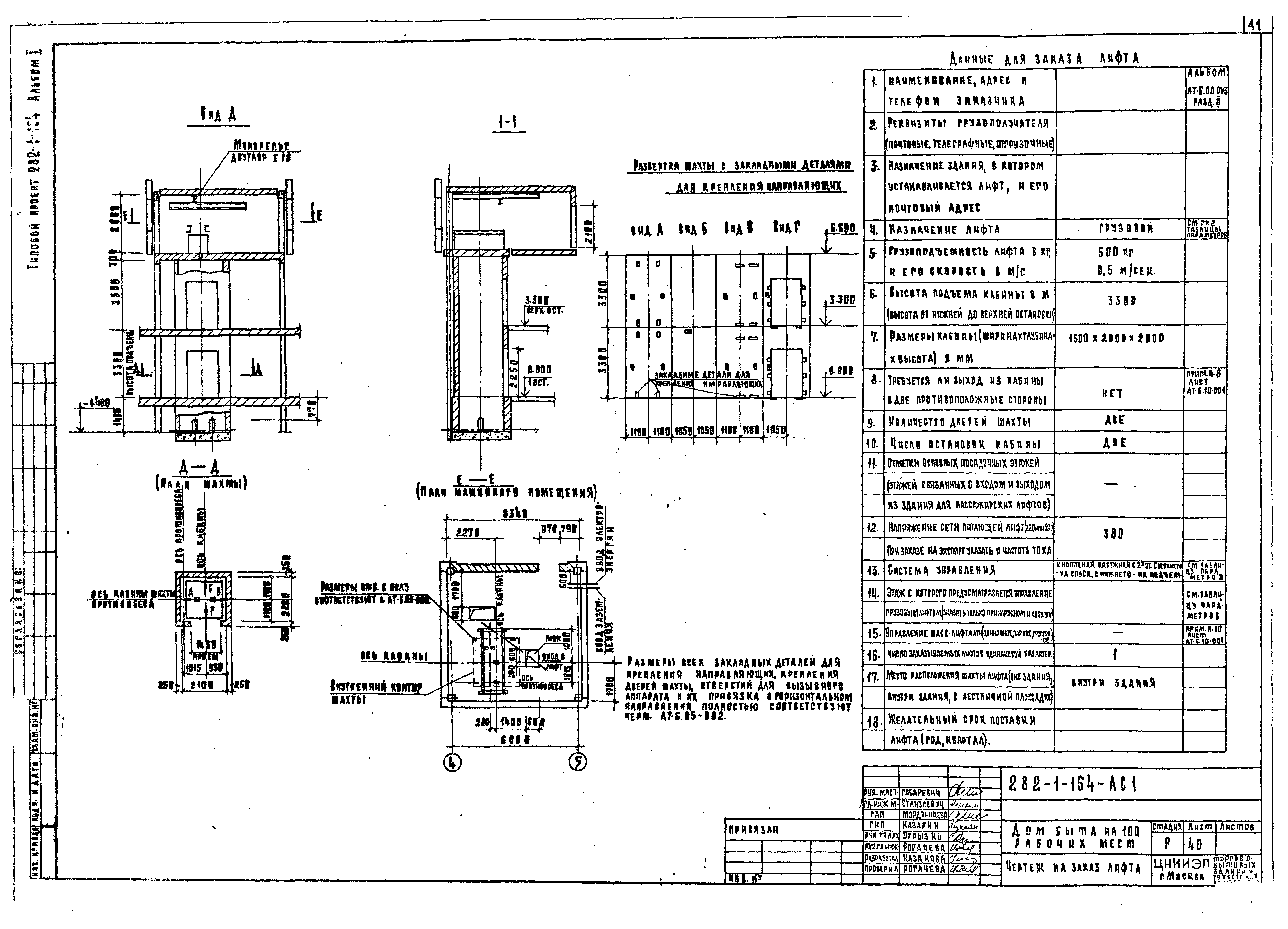
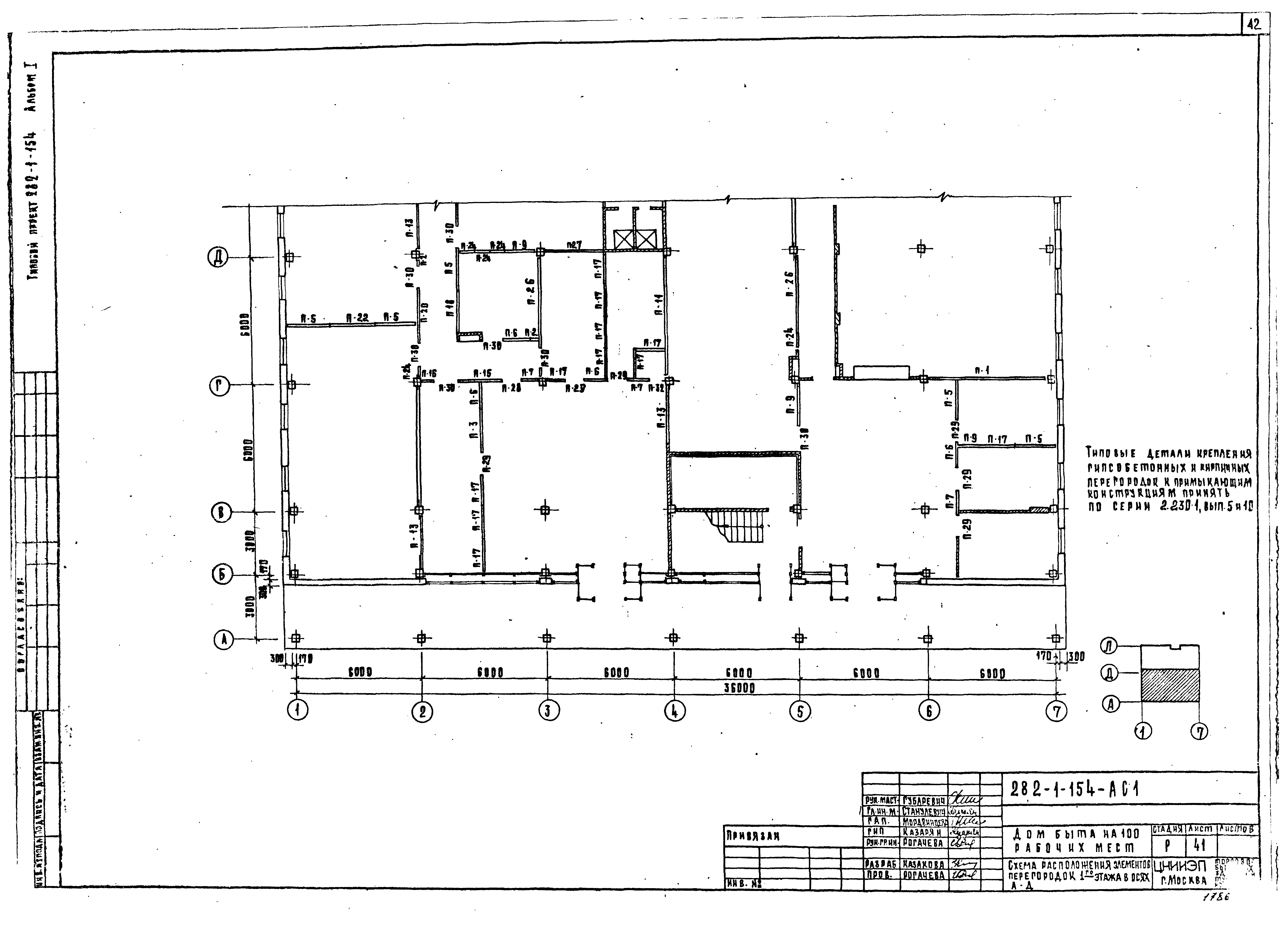
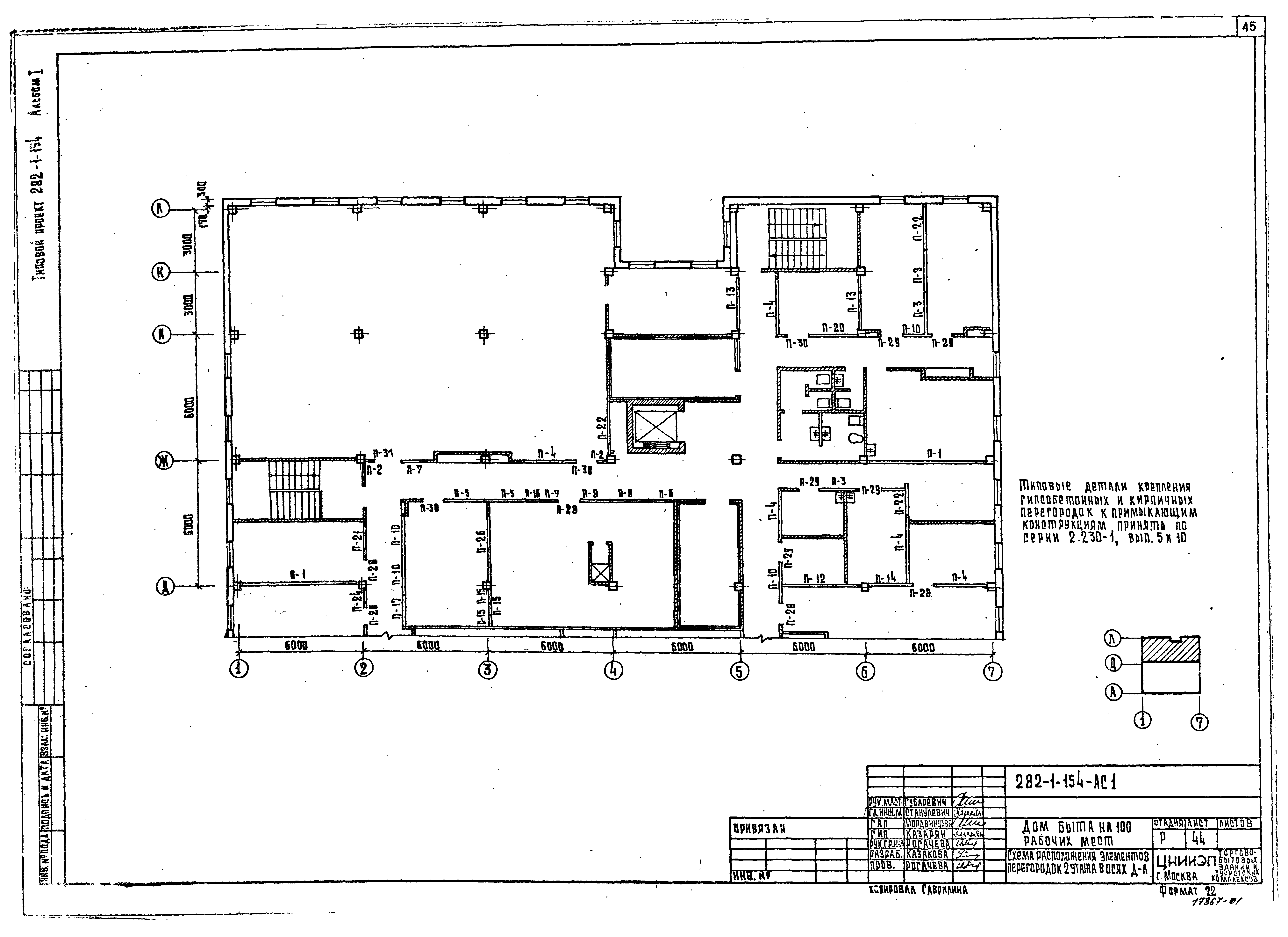
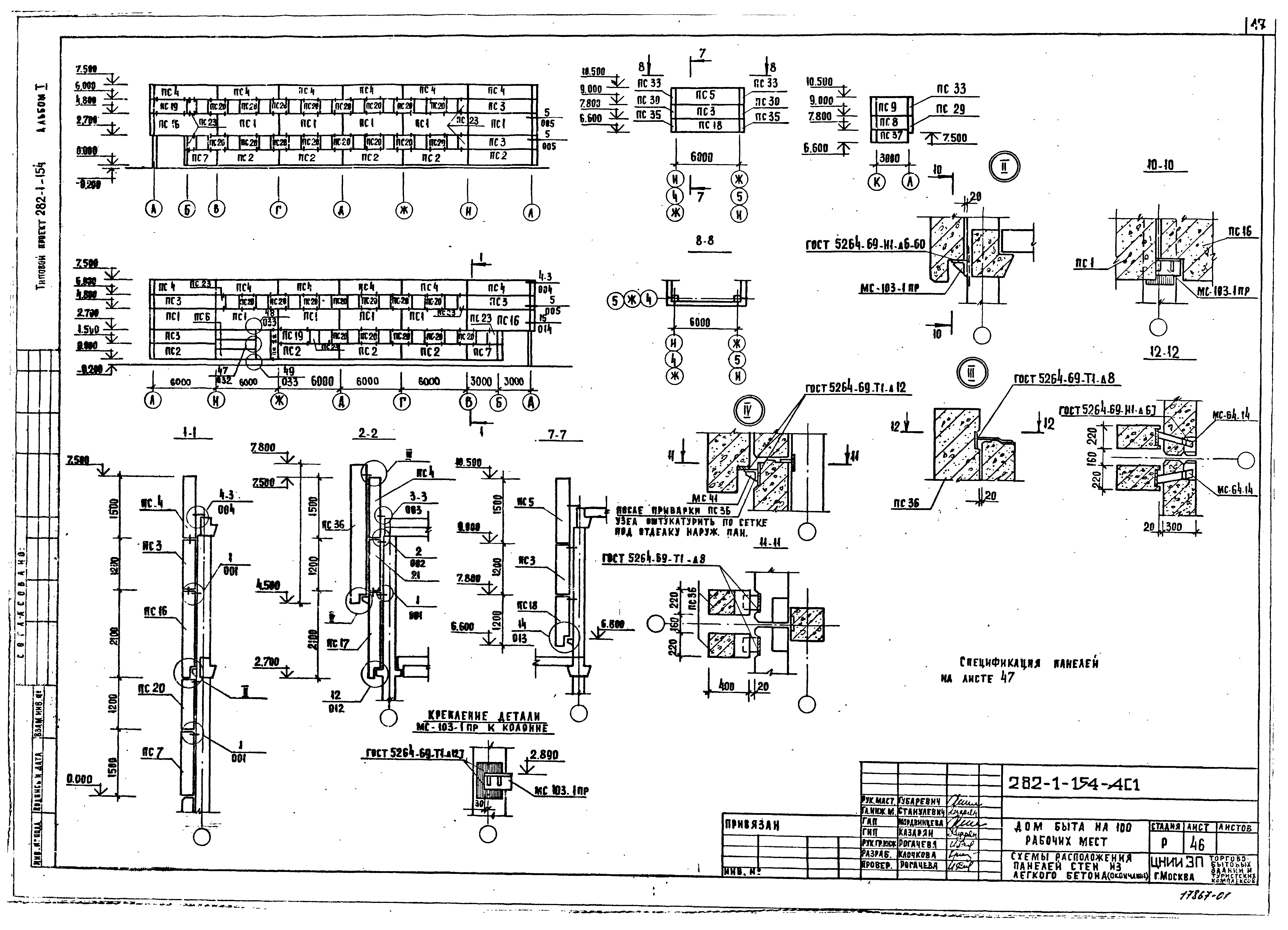
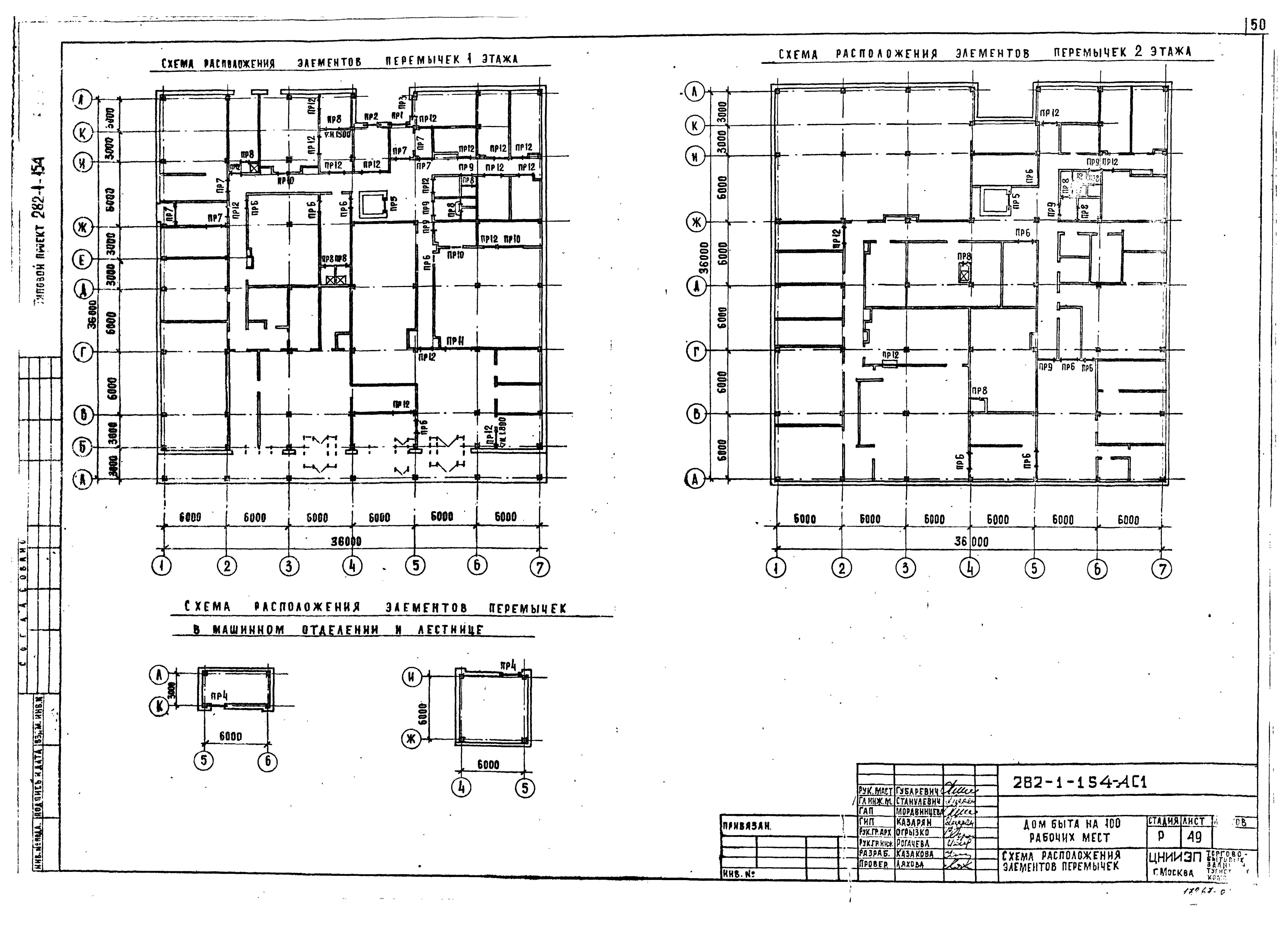
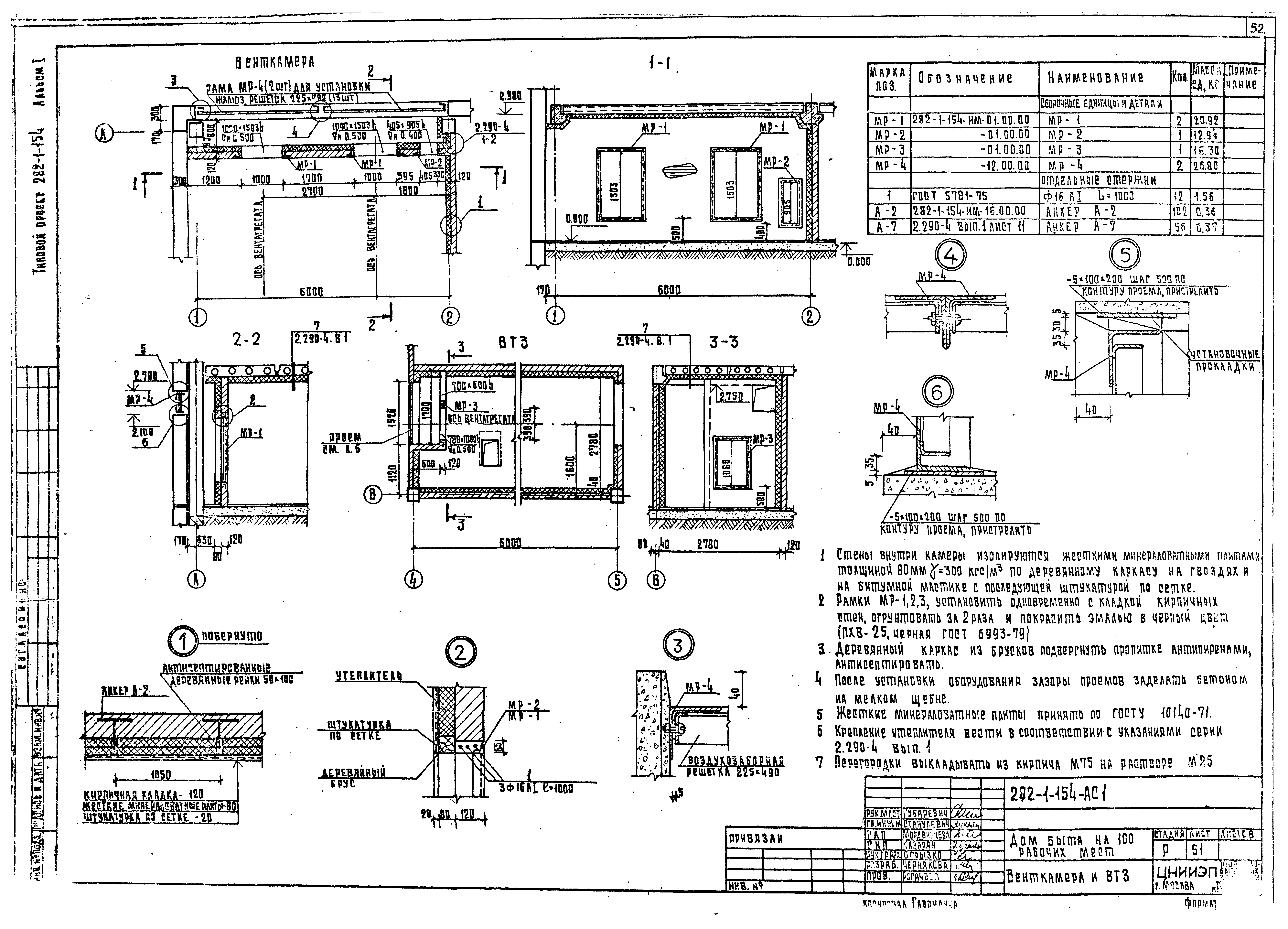
| Оглавление: | Обложка Титульный лист Основной комплект чертежей марки АС1 Общие данные Лист привязки План 1 этажа в осях А - Д План 1 этажа в осях Д - Л План 2 этажа в осях А - Д План 2 этажа в осях Д - Л Спецификация элементов планов. Экспликация отверстий План крыши Разрезы 1-1, 2-2 Фасады 1 - 7, 7 - 1 Фасады А - Л, Л - А Ведомость отделки помещений Развертки стен Подвесной потолок. План. Сечения Схема расчетных нагрузок на фундамент Схема расположения элементов фундаментов и подпольных каналов в осях А - Д Схема расположения элементов фундаментов и подпольных каналов в осях Д - Л Элементы сечений фундаментов Схема расположения элементов фундаментов под оборудование. Монолитный фундамент под диафрагму жесткости ДЖМ-1 Схемы расположения закладных деталей для крепления витражей Схема расчетных нагрузок и перекрытие над 1 этажом Схема расположения элементов каркаса 1 этажа Схема расположения элементов каркаса покрытия Схема расположения элементов каркаса для стен из ячеистого бетона Схема расположения элементов перекрытия в осях Д - Л Схема расположения элементов перекрытия в осях Л - Д Схема расположения элементов покрытия в осях Л - Д Схема расположения элементов покрытия в осях Д - Л Спецификация к схемам расположения элементов каркаса и перекрытия Монолитный участок УМ-1 Монолитные участки УМ-2 - УМ-5 Монолитный участок УМ-6 Схемы расположения элементов лестниц Монтажная схема лифта G = 500 кг Развертка стен лифтов Лист заказа лифтов Схема расположения элементов перегородок 1 этажа в осях А - Д Схема расположения элементов перегородок 1 этажа в осях Д - Л Схема расположения элементов перегородок 2 этажа в осях А - Д Схема расположения элементов перегородок 2 этажа в осях Д - Л Схемы расположения панелей стен из легкого бетона Спецификация к схемам расположения панелей стен Схемы расположения панелей стен из ячеистого бетона Схемы расположения элементов перемычек Ведомость перемычек. Спецификация сборных железобетонных перемычек, перегородок Венткамера и помещение воздушно-тепловой завесы Конструкция асбестоцементных воздуховодов Основной комплект чертежей марки ТХ Общие данные План 1 этажа в осях А - Ж План 1 этажа в осях Ж - Л План 2 этажа в осях А - Д План 2 этажа в осях Д - Л Спецификация технологического оборудования 1 этажа Спецификация технологического оборудования 2 этажа и механизации Подъемный стол ПС-500. Установочный чертеж Конвейер-вешалка для хранения и транспортирования вещей. Установочный чертеж Основной комплект чертежей марки АС2 Общие данные Спецификация элементов витражей, тамбуров и окон Схема расположения элементов витражей, тамбуров и окон Схема расположения элементов тамбуров. Монтажные узлы I; II; III; IV; XXIII Монтажные узлы VI; VII; VIII; IX; X; XI; XII; XIII; XIV; XXIV Монтажные узлы V; XV; XVI; XVII; XIX; XX; XXI; XXII |
| Разработан: | ЦНИИЭП торгово-бытовых зданий и туристских комплексов |
| Утверждён: | 04.08.1980 Госгражданстрой (Gosgrazhdanstroy 201) |








































































