Скачать Серия 1-335 ТулМ Альбом IДата актуализации: 01.01.2021
|
| Обозначение: | Серия 1-335 ТулМ |
| Обозначение англ: | Series 1-335 ТулМ |
| Статус: | не действует |
| Название рус.: | Альбом I |
| Дата добавления в базу: | 01.09.2013 |
| Дата актуализации: | 01.01.2021 |
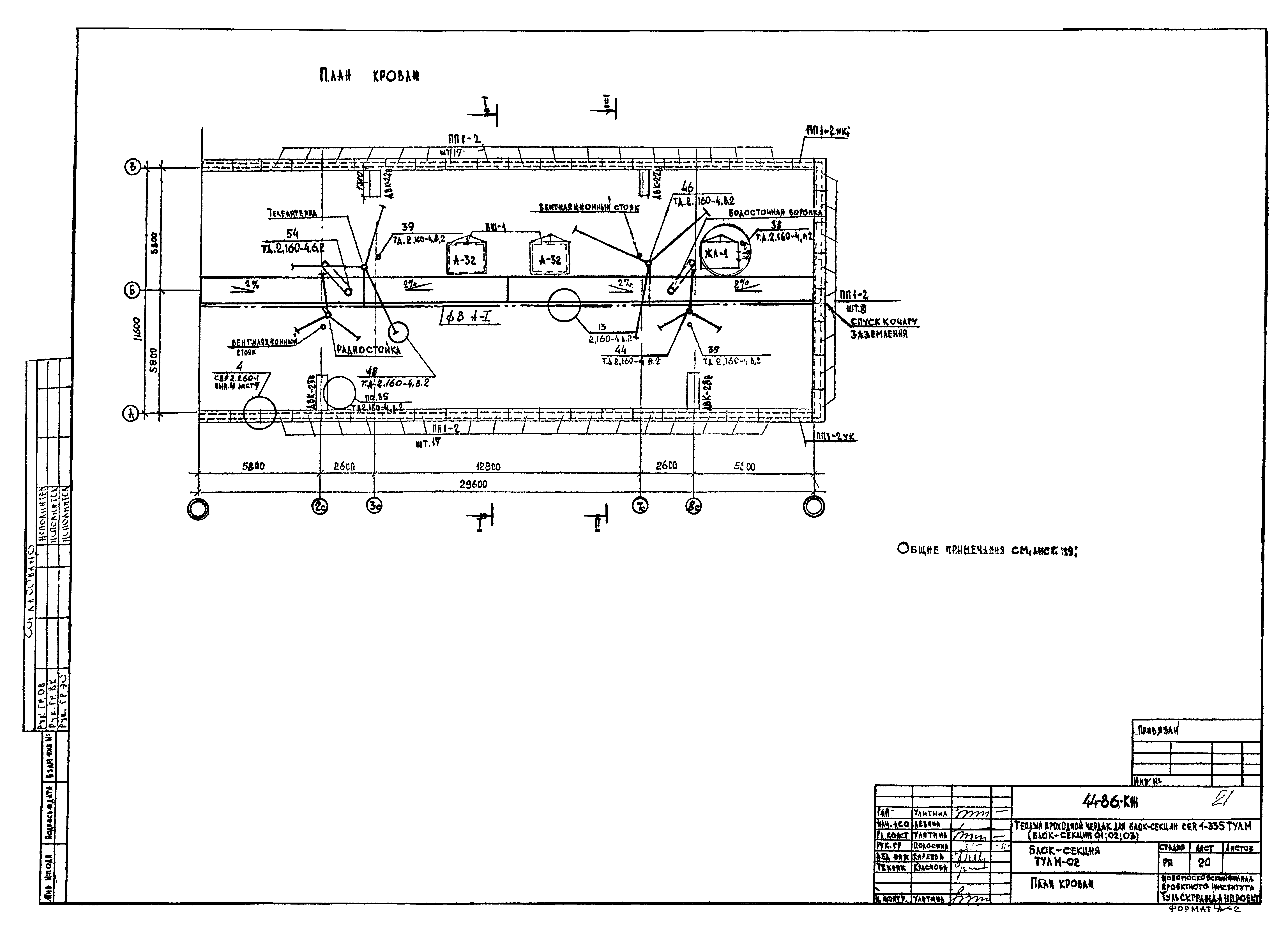
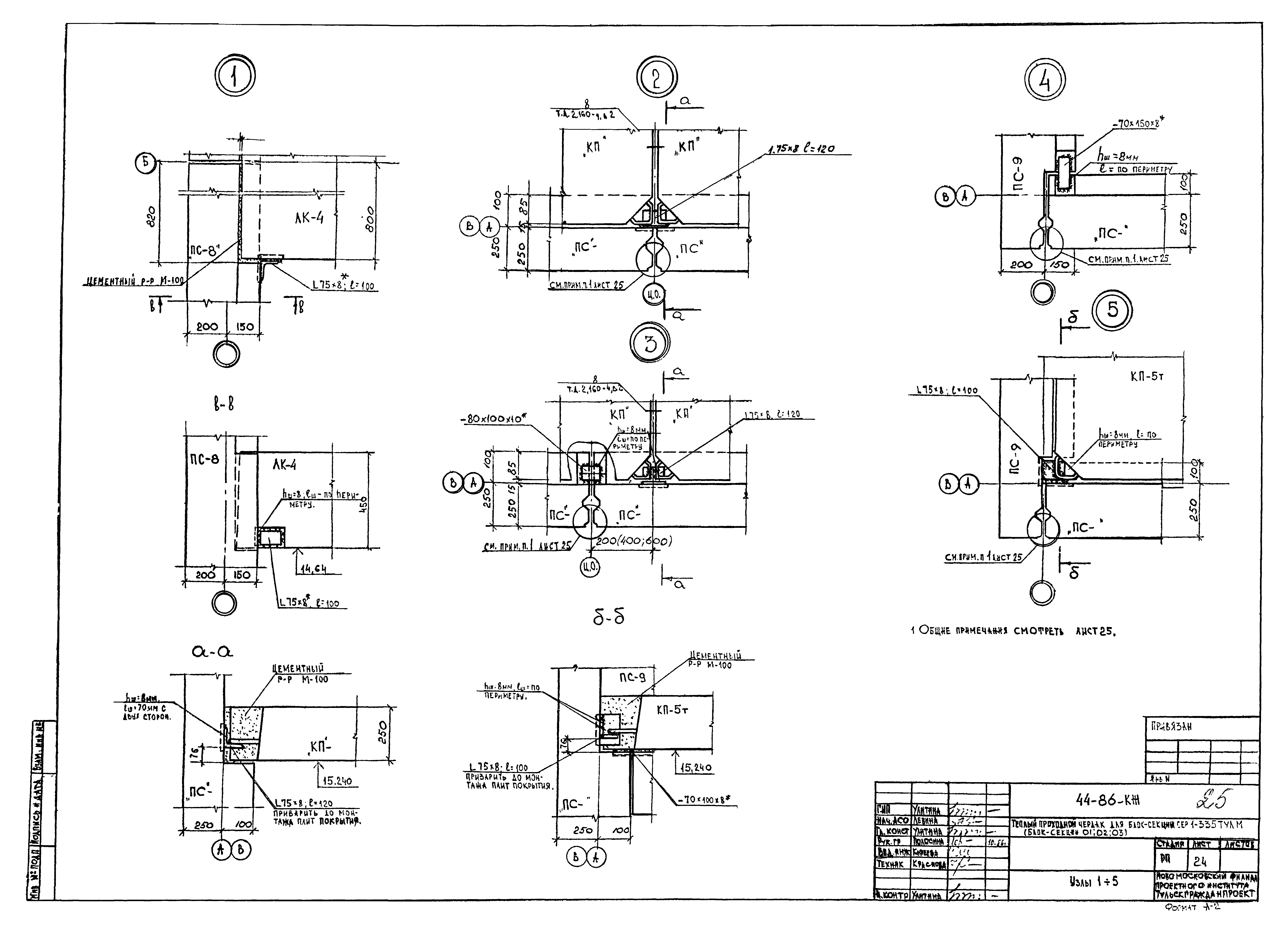
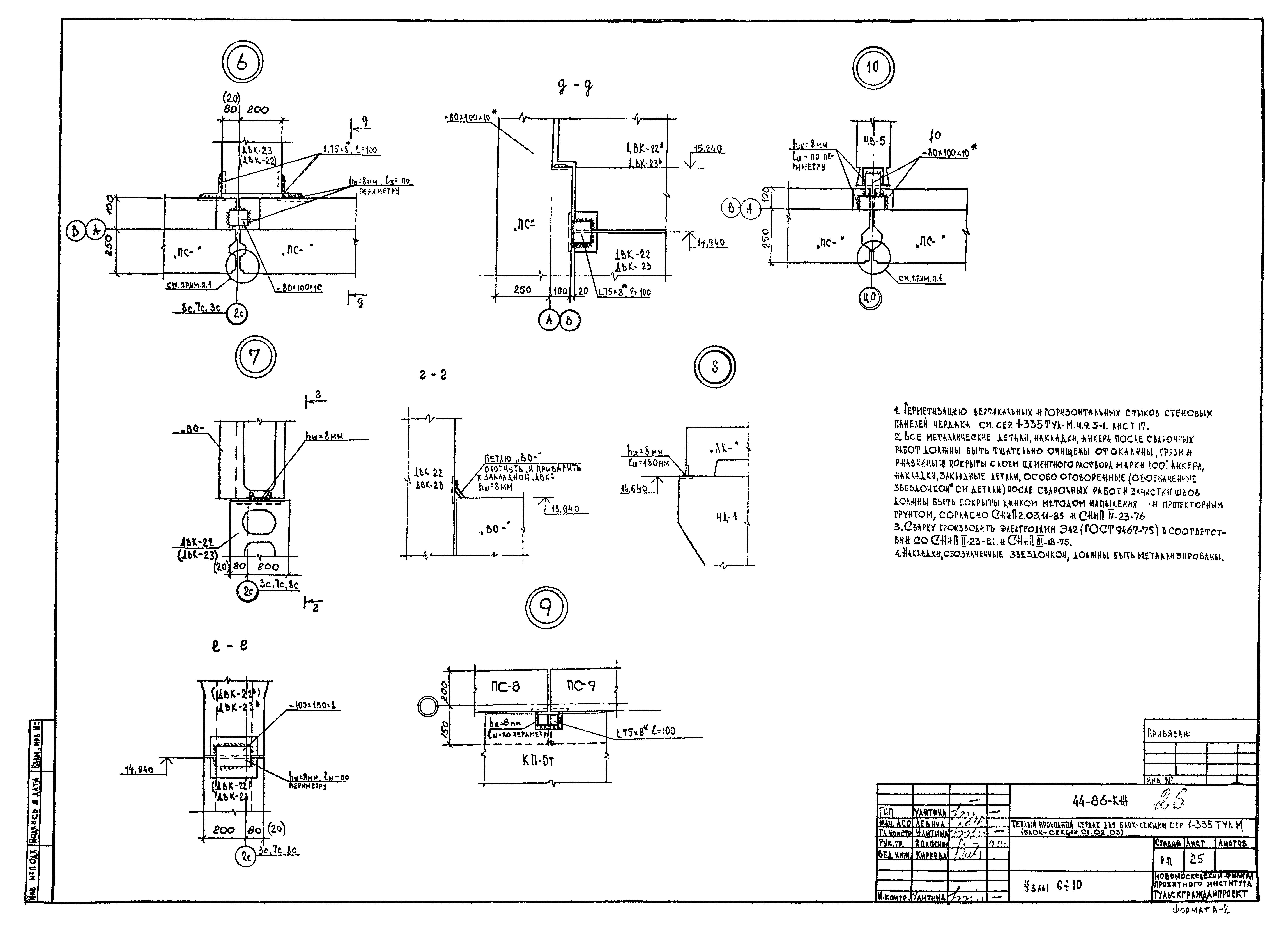
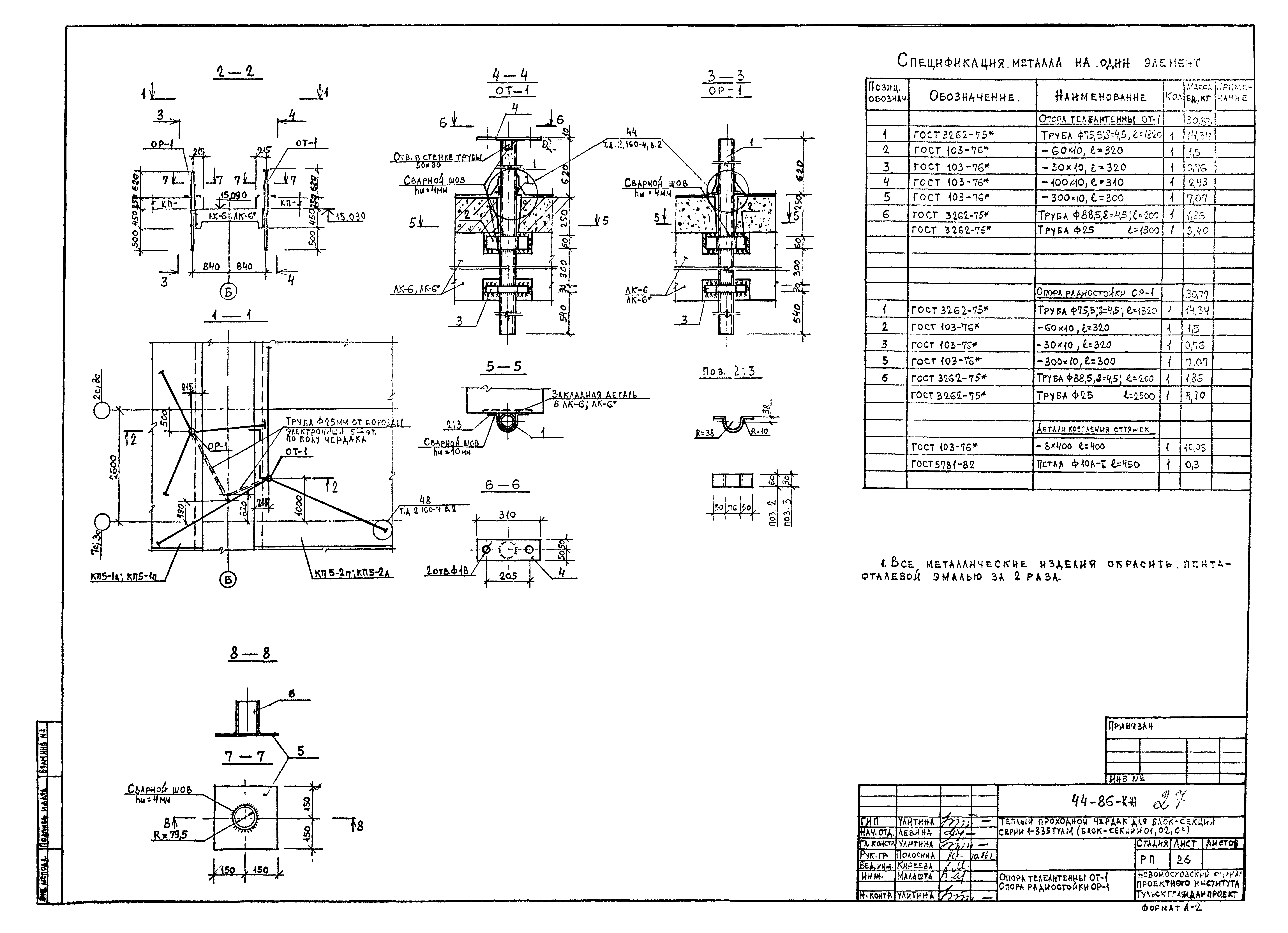
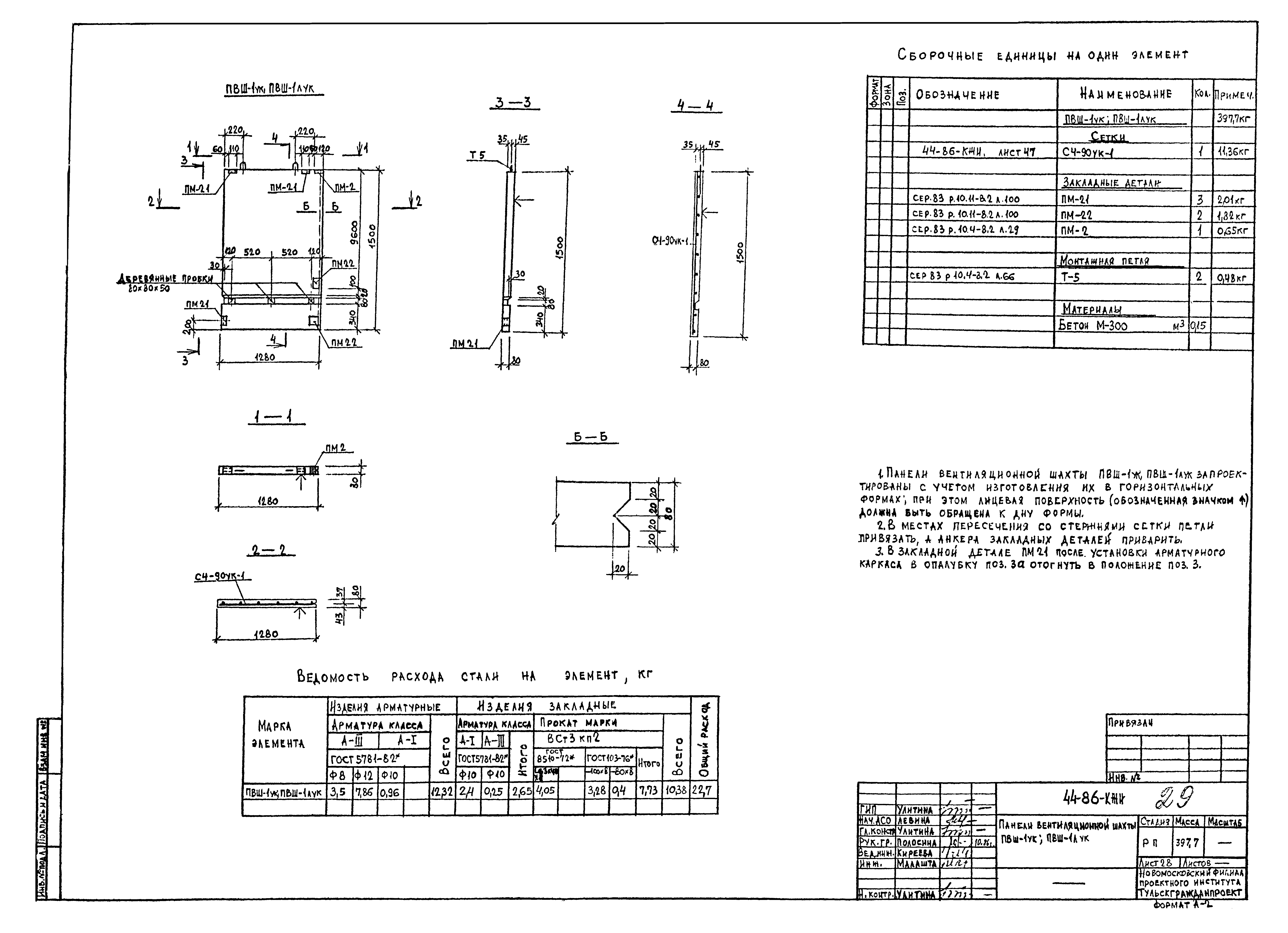
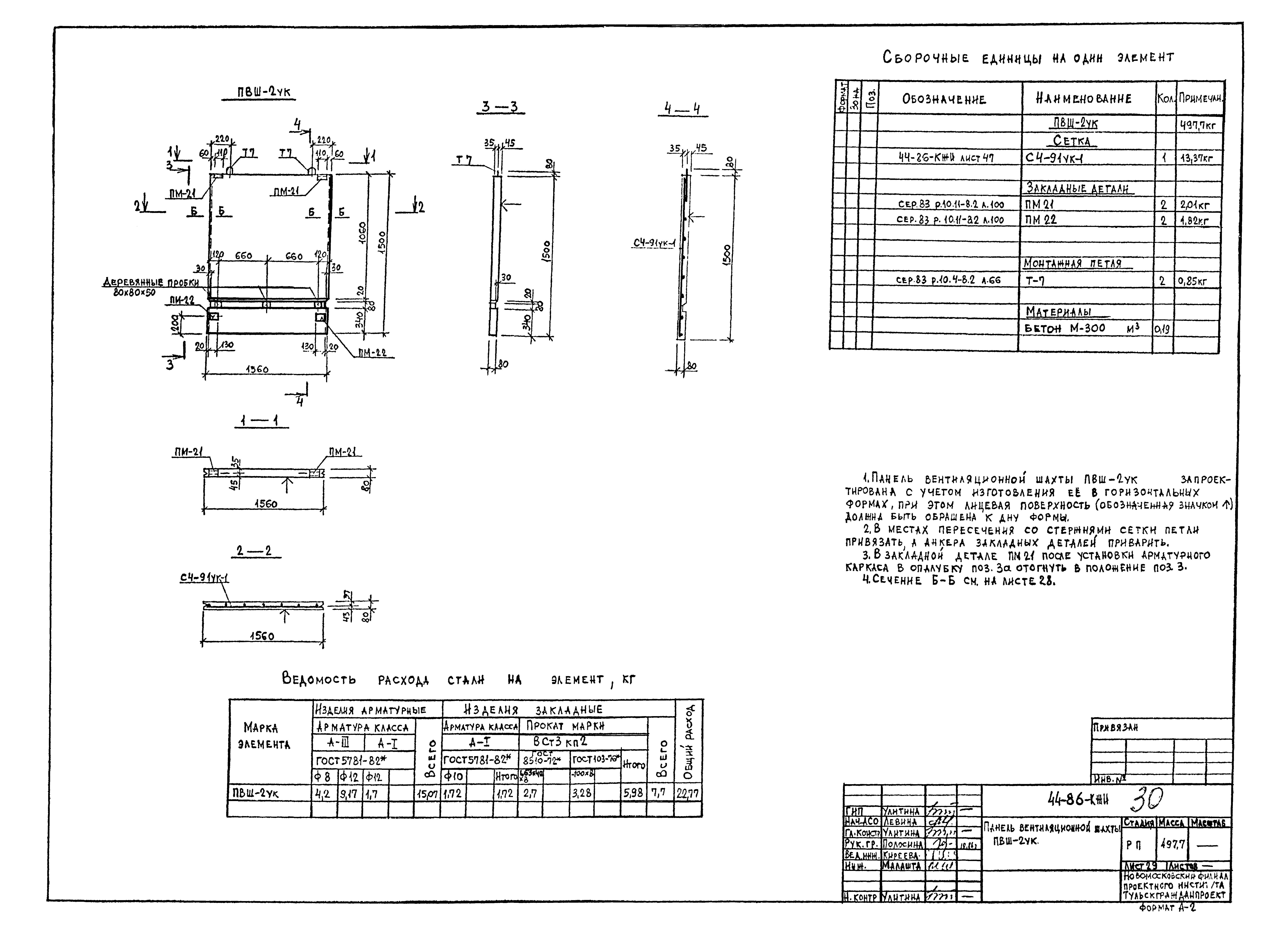
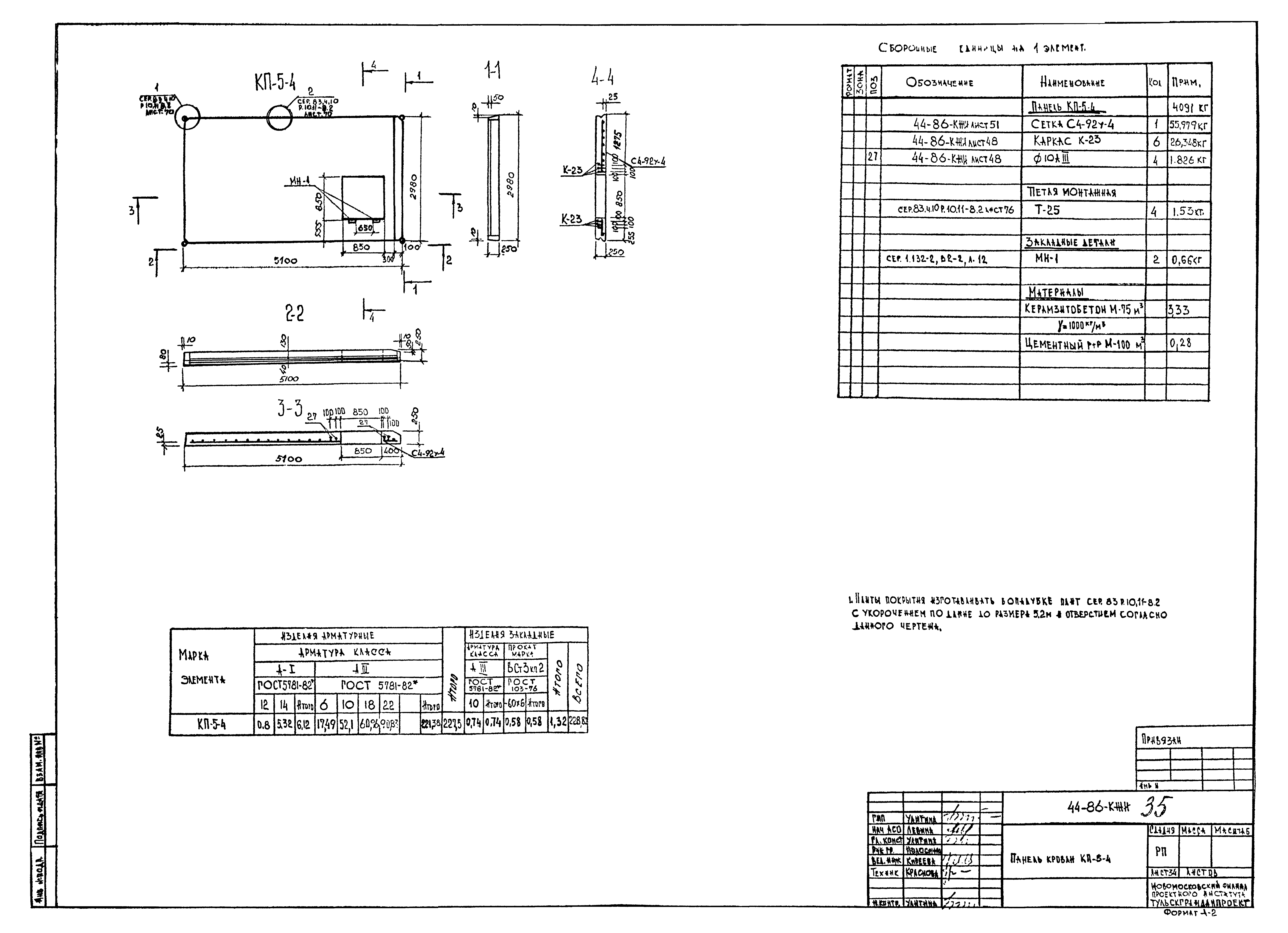
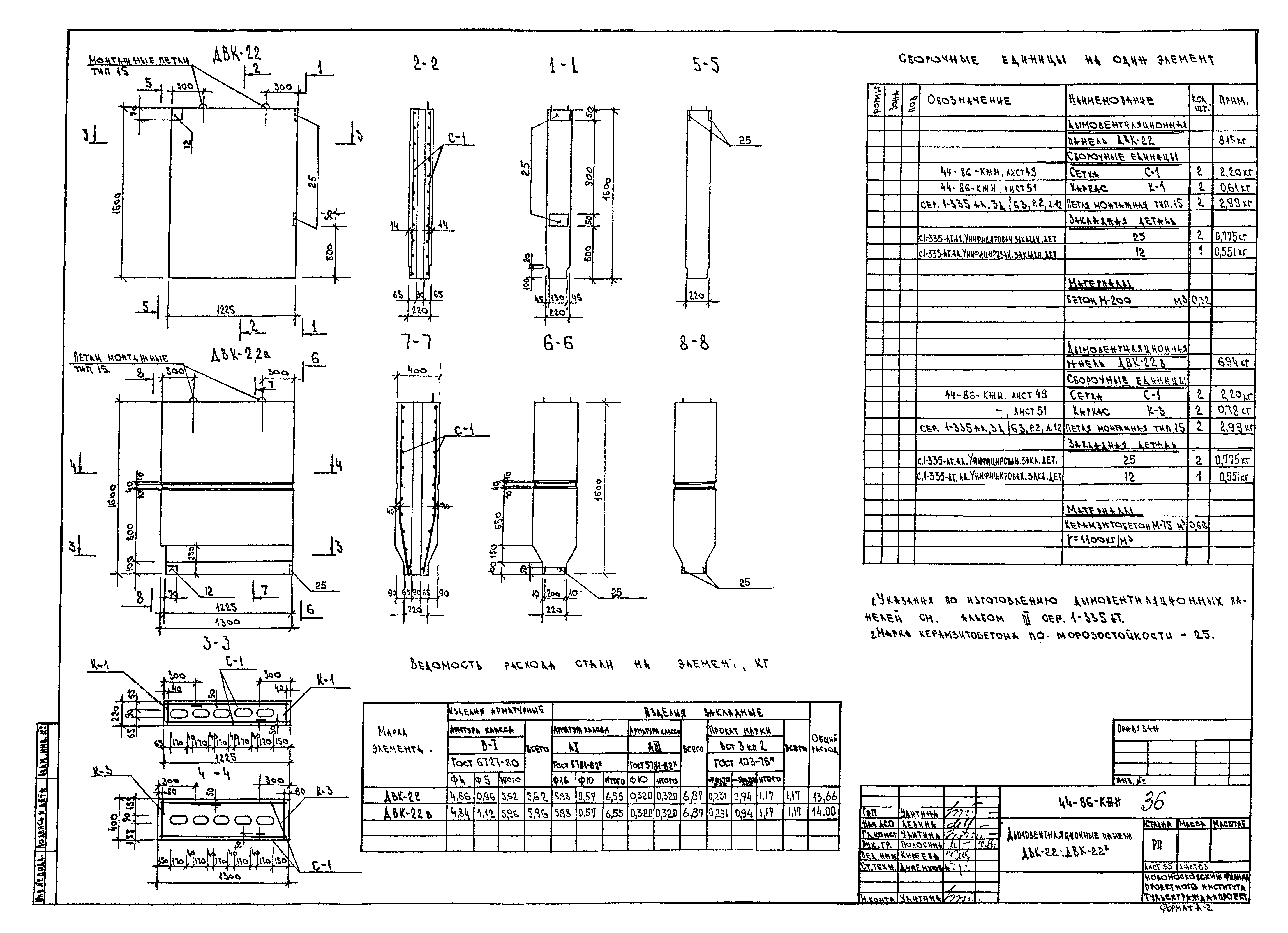
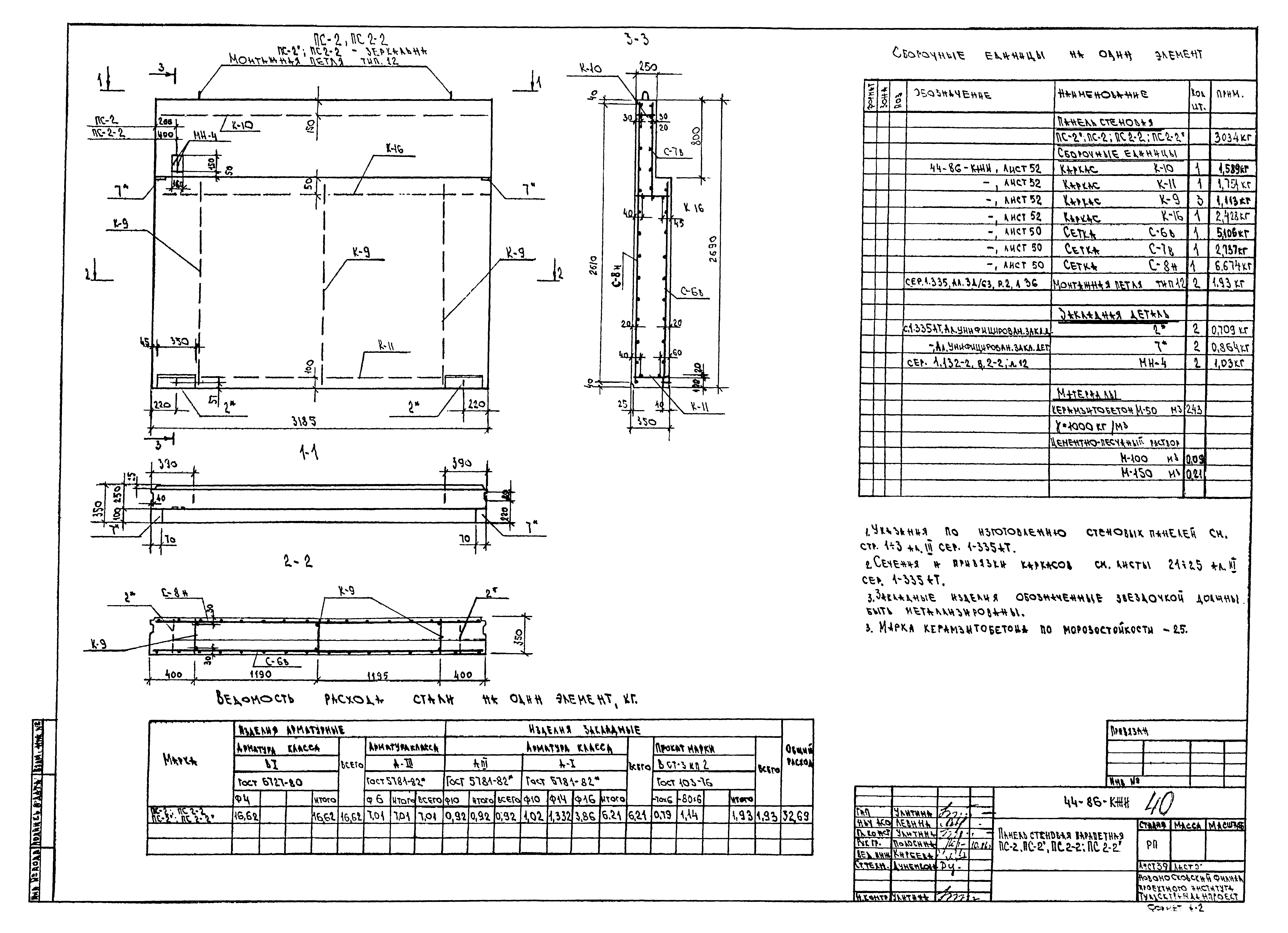
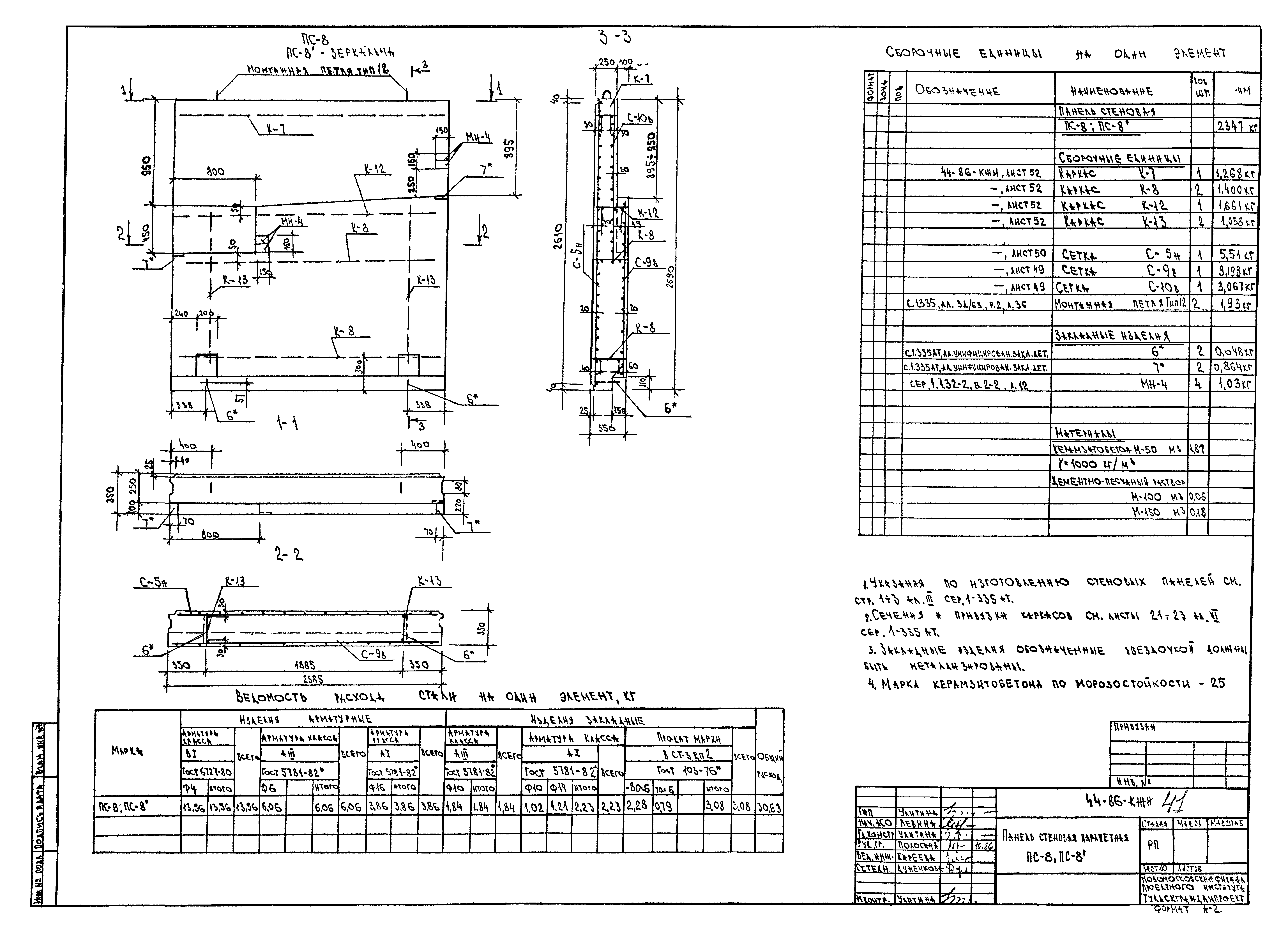
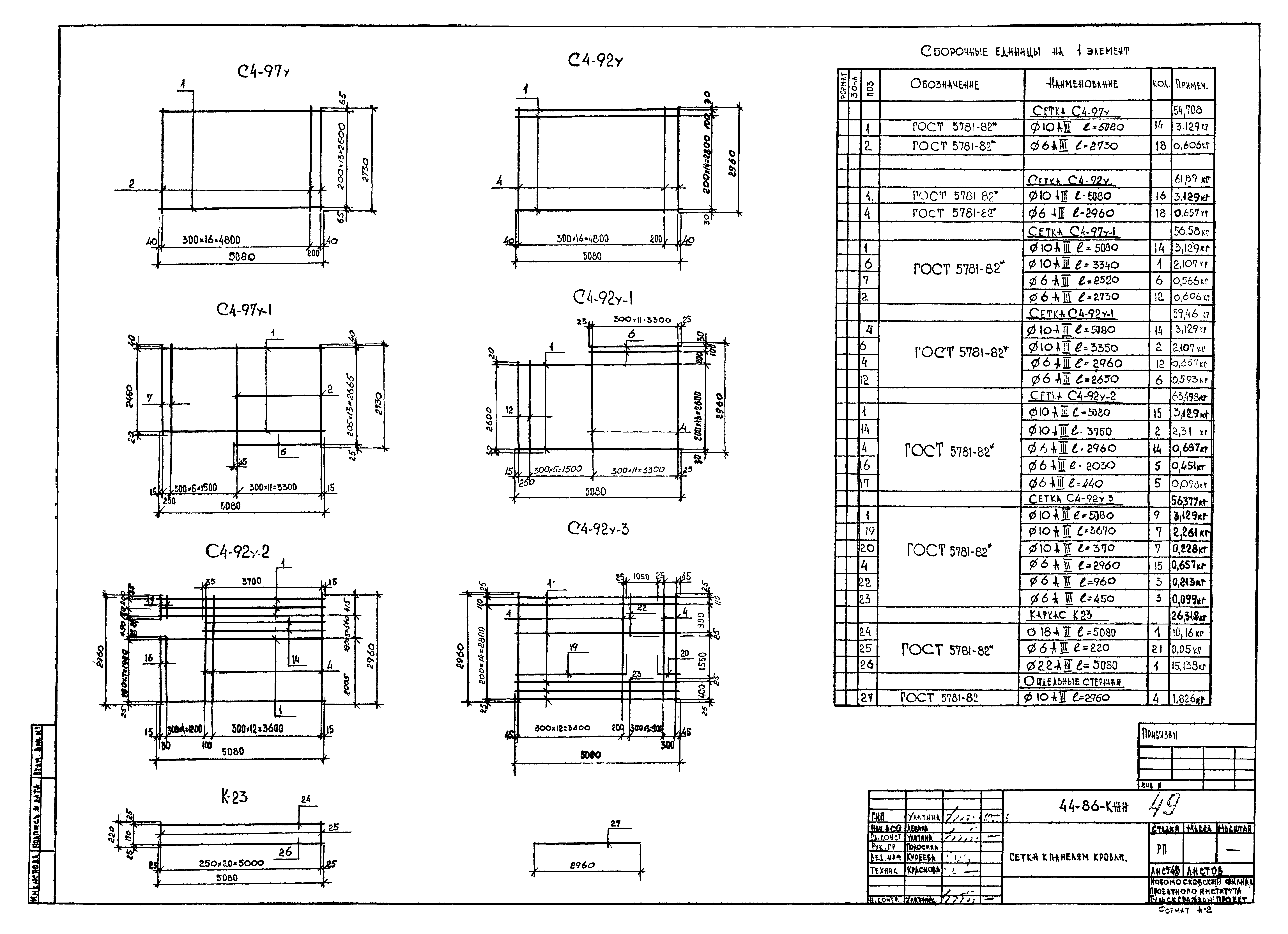
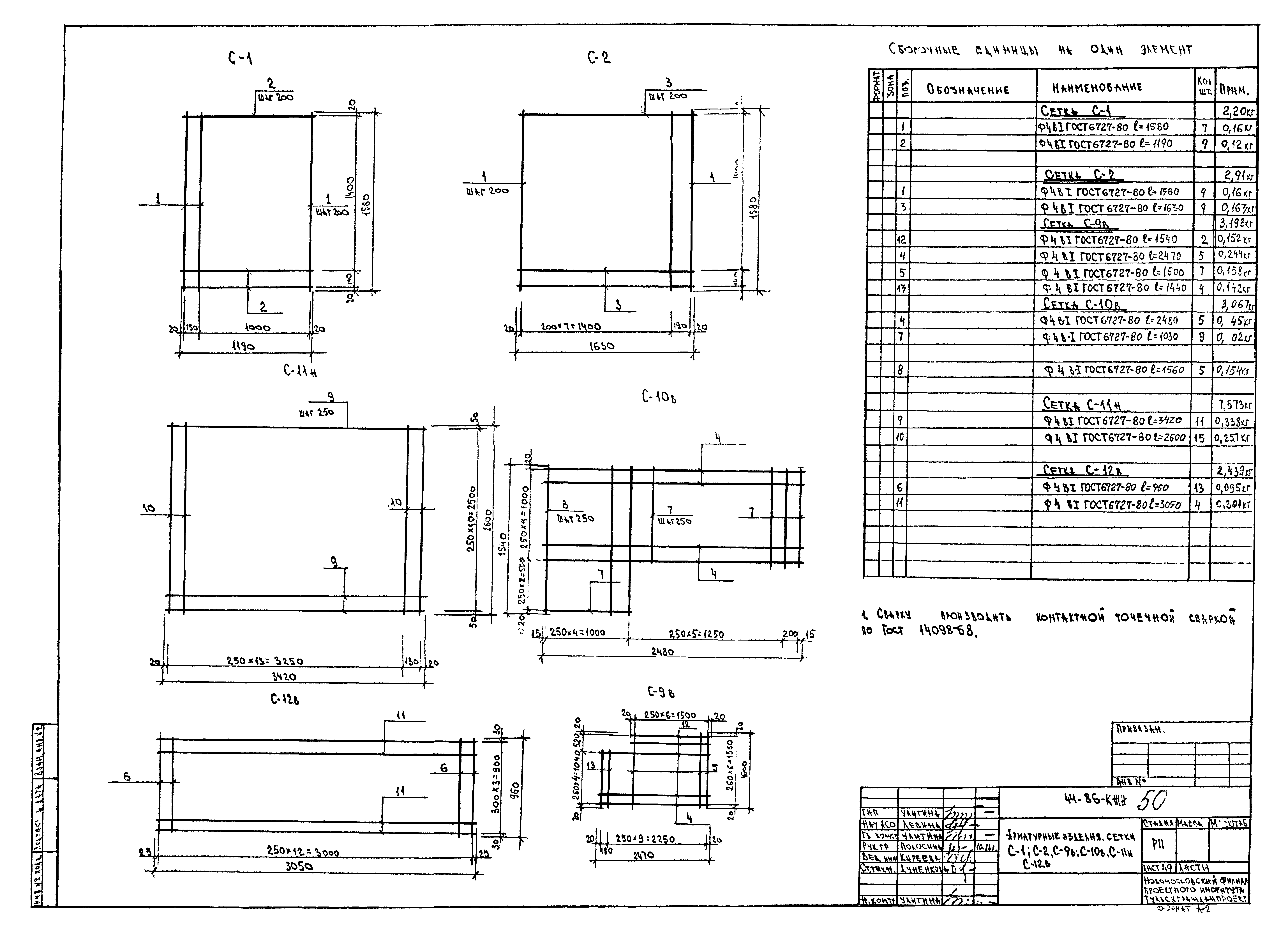
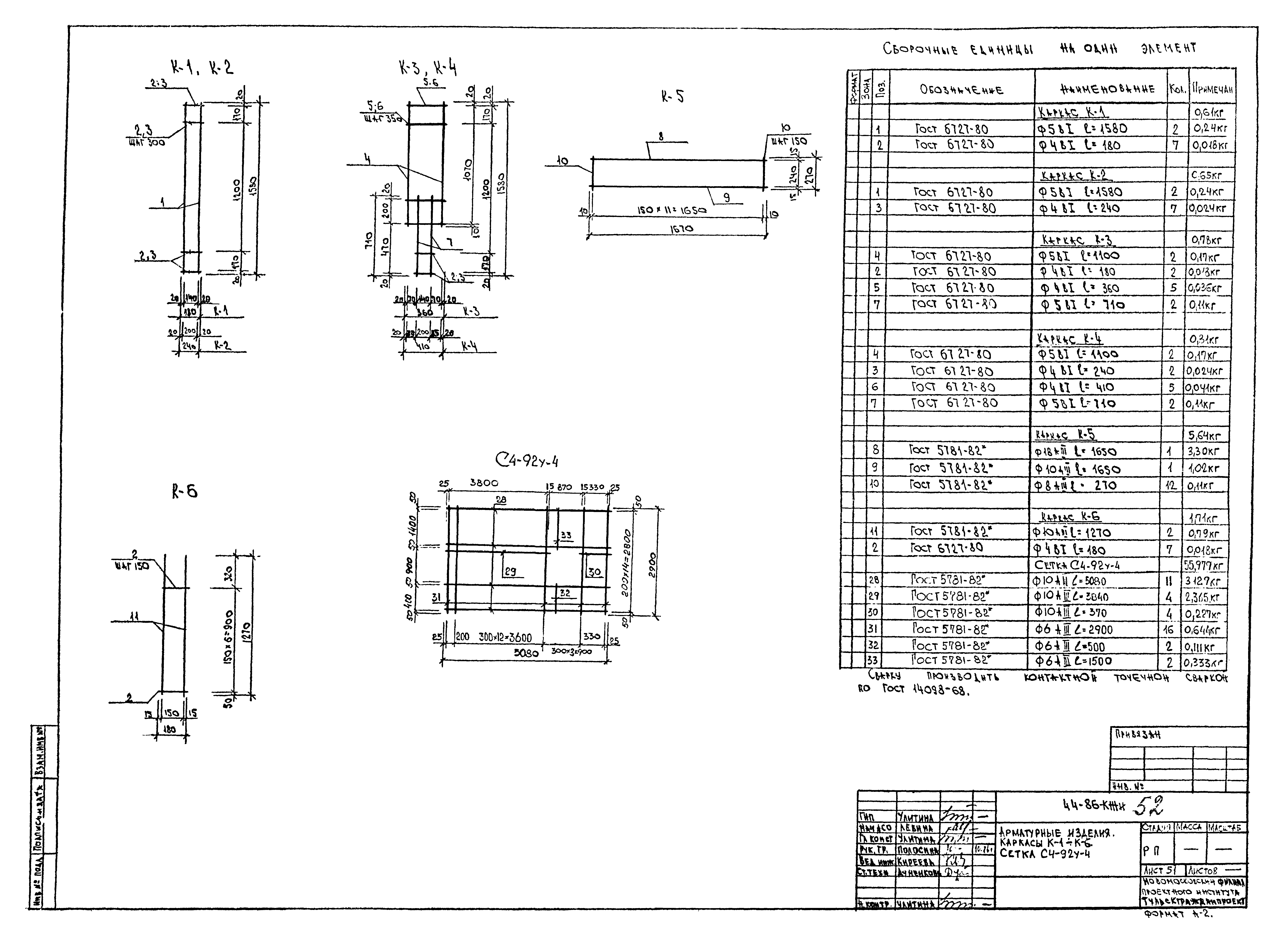
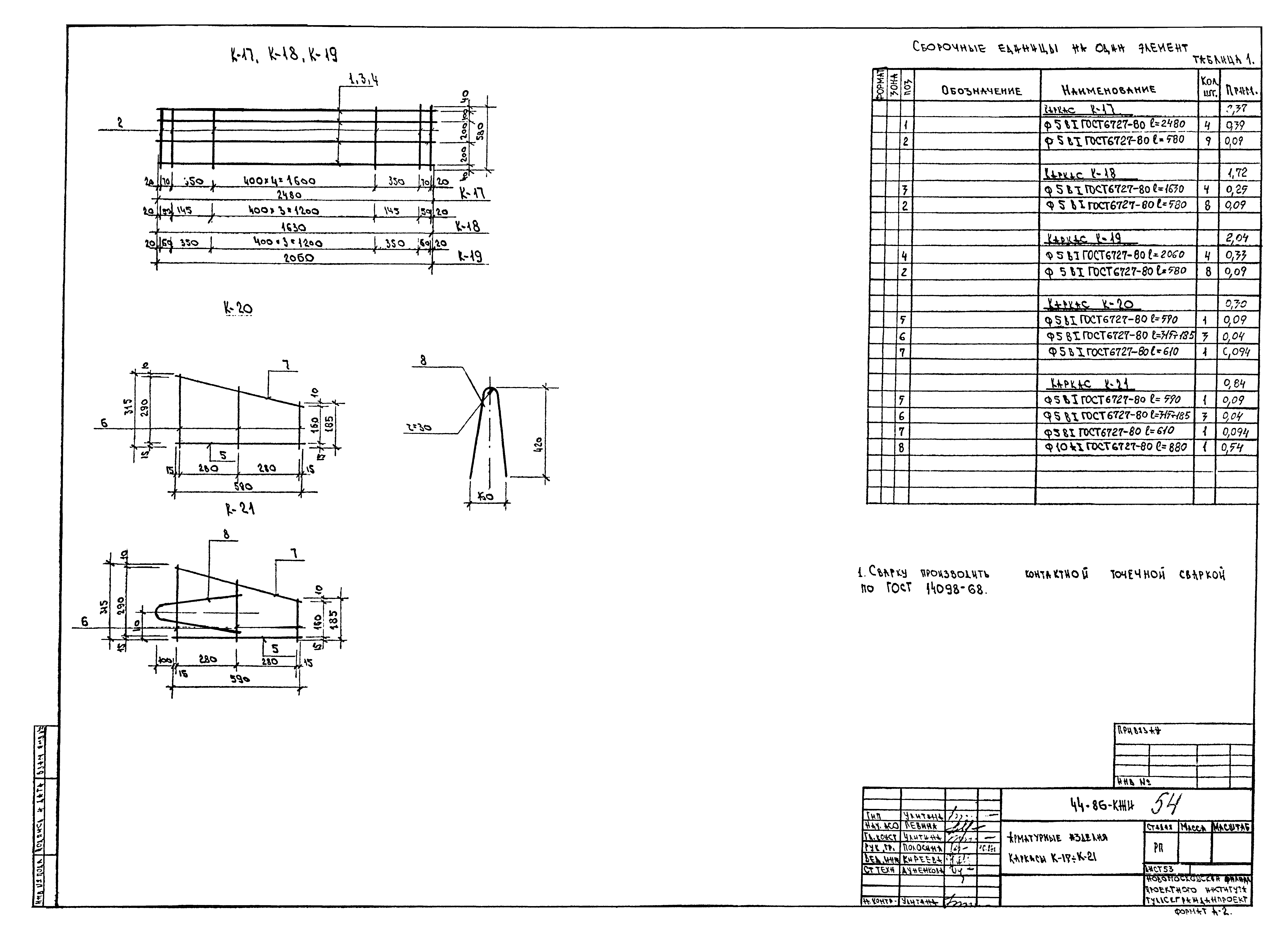
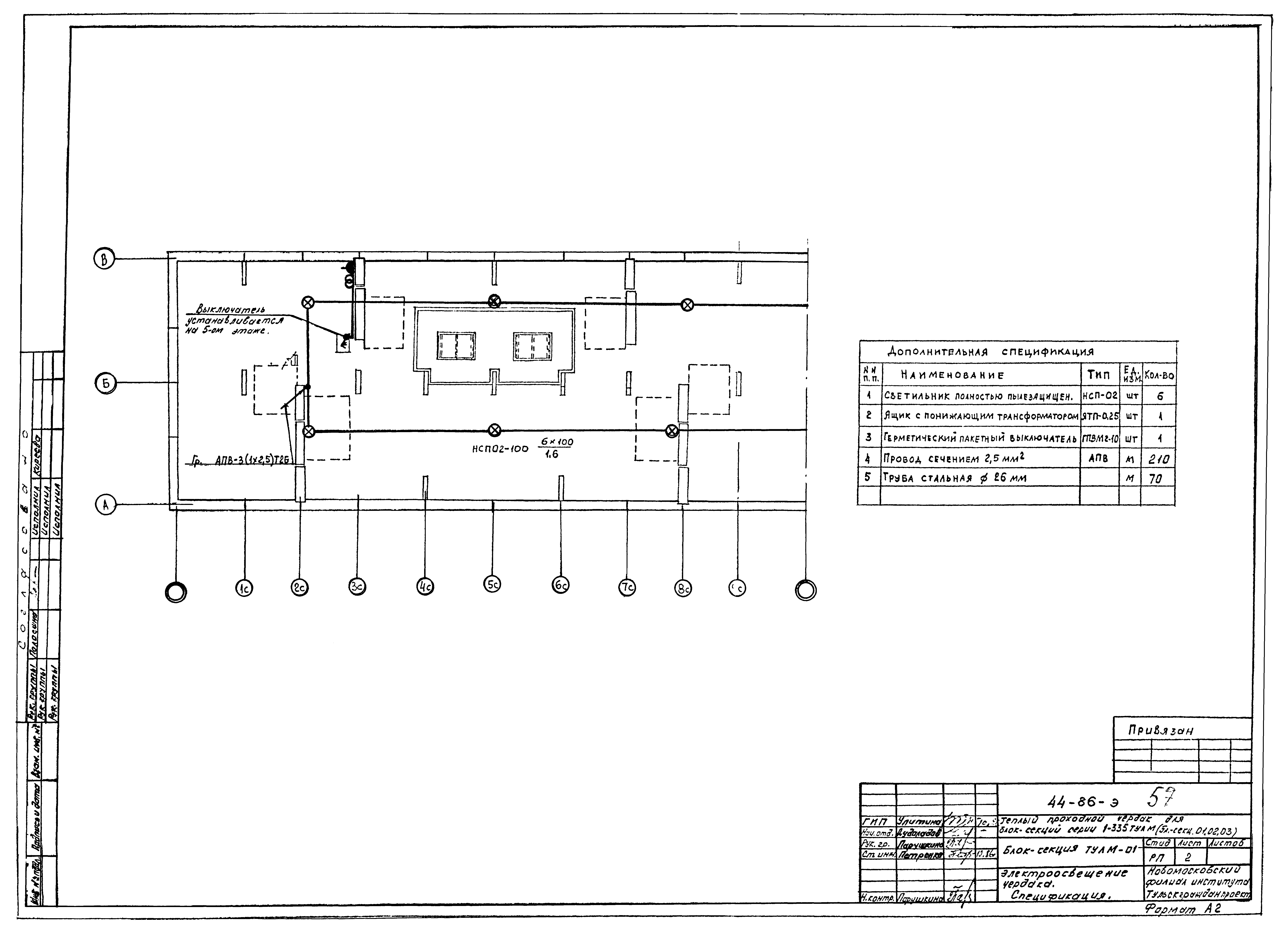
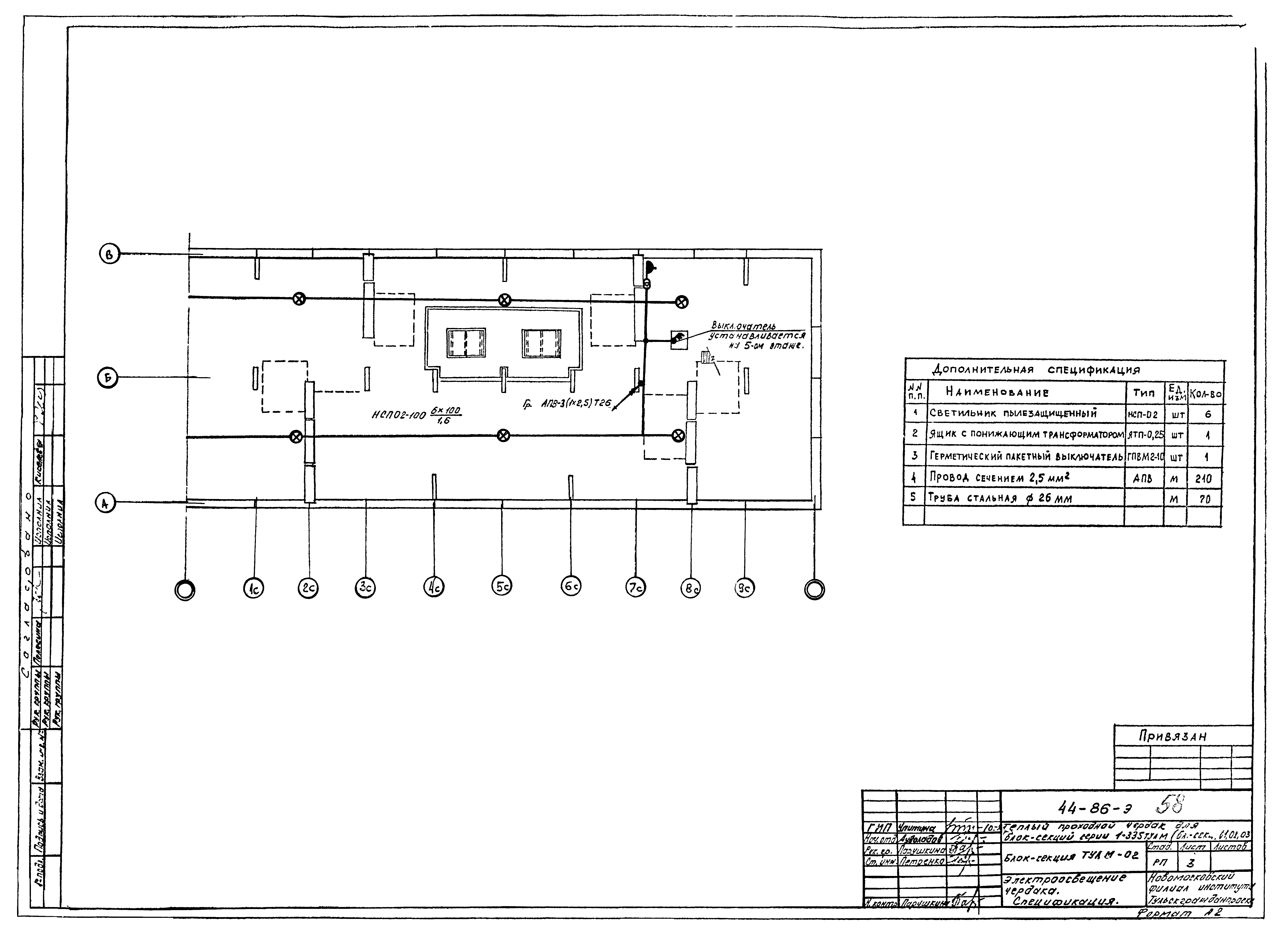
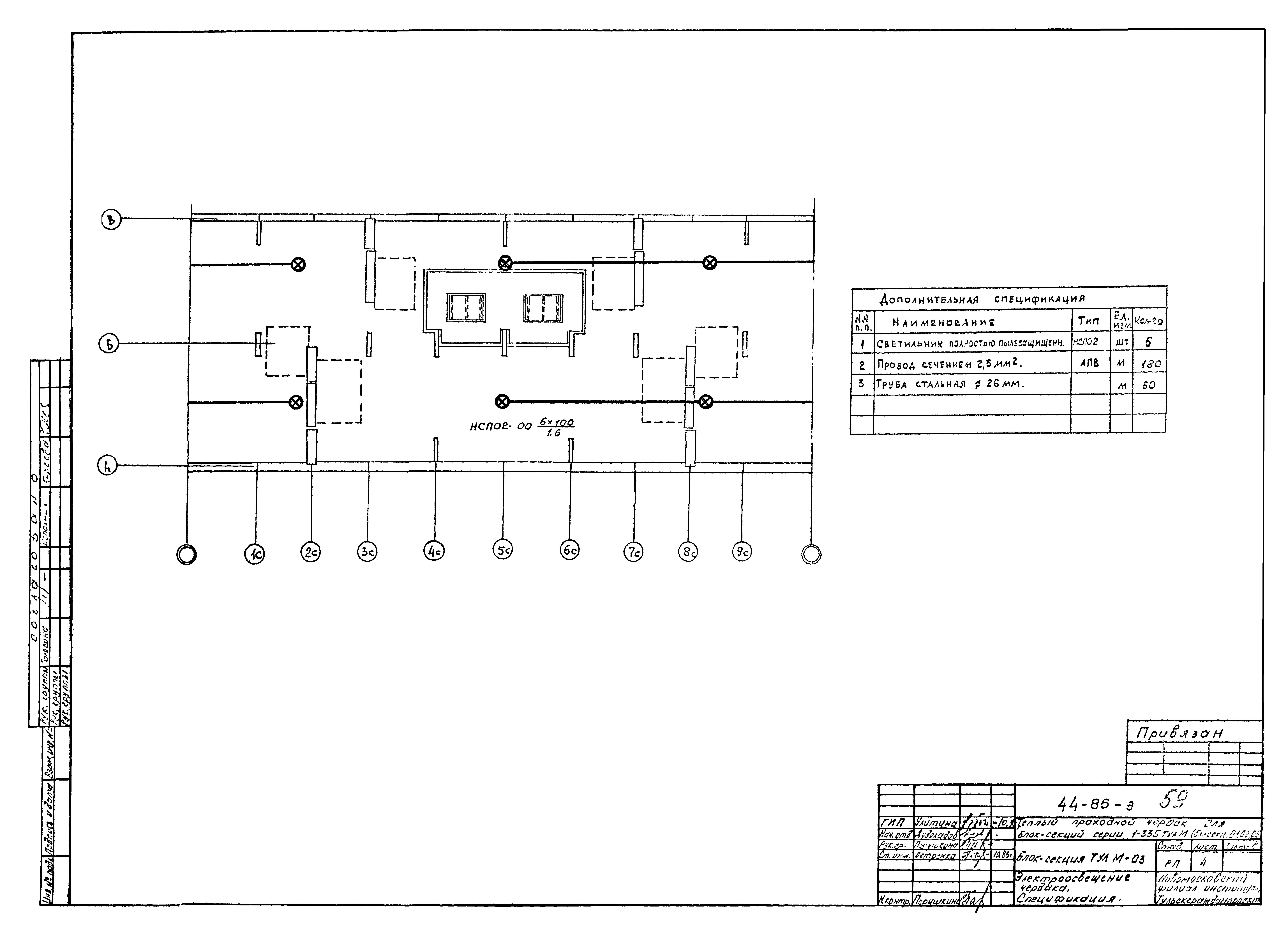
| Оглавление: | Чертежи основного комплекта марки КЖ Общие данные Блок привязки для блок секции 1-335 ТулМ-01, 02, 03 при варианте с теплым чердаком Сводная спецификация железобетонных изделий Сводная спецификация железобетонных и гипсобетонных изделий Сводная спецификация деревянных и металлических изделий Фасад по оси А, В. Блок-секции ТулМ-01, ТулМ-02, ТулМ-03. Элементы блокировок ЭБ-7т, ЭБ-6т, ЭБ-1т Блок-секция ТулМ-01. Схема расположения элементов чердачного перекрытия Блок-секция ТулМ-02. Схема расположения элементов чердачного перекрытия Блок-секция ТулМ-03. Схема расположения элементов чердачного перекрытия Элементы блокировок ЭБ-1т, ЭБ-6т, ЭБ-7т. Схема расположения элементов чердачного перекрытия Блок-секция ТулМ-01. План чердака Блок-секция ТулМ-02. План чердака Блок-секция ТулМ-03. План чердака Элементы блокировок ЭБ-1т, ЭБ-6т, ЭБ-7т. План чердака Блок-секция ТулМ-01. Схема расположения элементов покрытия Блок-секция ТулМ-02. Схема расположения элементов покрытия Блок-секция ТулМ-03. Схема расположения элементов покрытия Элементы блокировок ЭБ-1т, ЭБ-6т, ЭБ-7т. Схема расположения элементов покрытия Блок-секция ТулМ-01. План кровли Блок-секция ТулМ-02. План кровли Блок-секция ТулМ-03. План кровли Элементы блокировок ЭБ-1т, ЭБ-6т, ЭБ-7т. План кровли Разрез I-I, II-II Узлы 1 - 5 Узлы 6 - 10 Опора телеантенны ОТ-1. Опора радиостойки ОР-1 Объемный блок вентиляционной шахты ВШ-1-1 Панели вентиляционной шахты ПВШ-1ук; ПВШ-1лук Панель вентиляционной шахты ПВШ-2ук Лотки кровли ЛК-4, ЛК-5, ЛК-6, ЛК-6* Панель кровли КП-4, КП-5, КП-5тл, КП-5тп Панель кровли КП-4-1л; КП-4-1п; КП-5-1л: КП-5-1п Панель кровли КП-5-2л; КП-5-2п; КП-5-3л: КП-5-3п Панель кровли КП-5-4 Дымовентиляционные панели ДВК-22; ДВК-22в Дымовентиляционные панели ДВК-23; ДВК-23в Чердачная опора ЧД-1 Панель стеновая парапетная ПС-1; ПС-1* Панель стеновая парапетная ПС-2; ПС-2*; ПС2-2; Пс2-2* Панель стеновая парапетная ПС-8; ПС-8* Панель стеновая парапетная ПС-9; ПС-9* Опалубочные чертежи; панели стеновые ПС-1; ПС-1, 1*; ПС1, 2; ПС-1, 2*; ПС-2, 3; ПС-2, 3*; ПС-2, 4; ПС-2, 4*. Плиты перекрытия П-4л, П-4п, П-3ил Вентиляционный оголовок ВО-2 Вентиляционный оголовок ВО-3 Вентиляционный оголовок ВО-4 Перегородки гипсобетонные ПГ-1; ПГ-2; ПГ-3; ПГ-4 Каркасы К4-51ук;-1 - К4-51ук-3. Сетки С4-90ук-1; С4-91ук-1; С4-94ук-1 - С4-94ук-3 Сетки к панелям кровли Арматурные изделия. Сетки С-1, С-2, С-9в, С-10в, С-11в, С-12в Арматурные изделия. Сетки С-3в, С-4в, С-5н, С-6в, С-7в, С-8н Арматурные изделия. Каркасы К-1 - К-6. Сетка С4-92у-4 Арматурные изделия. Каркасы К-7 - К-16, К-22 Арматурные изделия. Каркасы К-17 - К-21 Чертежи основного комплекта марки ВК Водосток. Чердак. Схема стояков. Спецификация выше отм. 0.000 Чертежи основного комплекта марки Э Общие данные Электроосвещение чердака. Спецификация |
| Разработан: | Тульскгражданпроект |
| Утверждён: | 01.01.1986 Главприокскстрой |



























































