Скачать Типовые проектные решения 903-01-193 Альбом 2. Нетиповые конструкцииДата актуализации: 01.01.2021
|
| Обозначение: | Типовые проектные решения 903-01-193 |
| Обозначение англ: | 903-01-193 |
| Статус: | справочные материалы, мп, тпр |
| Название рус.: | Альбом 2. Нетиповые конструкции |
| Дата добавления в базу: | 01.09.2013 |
| Дата актуализации: | 01.01.2021 |
| Дата окончания срока действия: | 24.06.1982 |
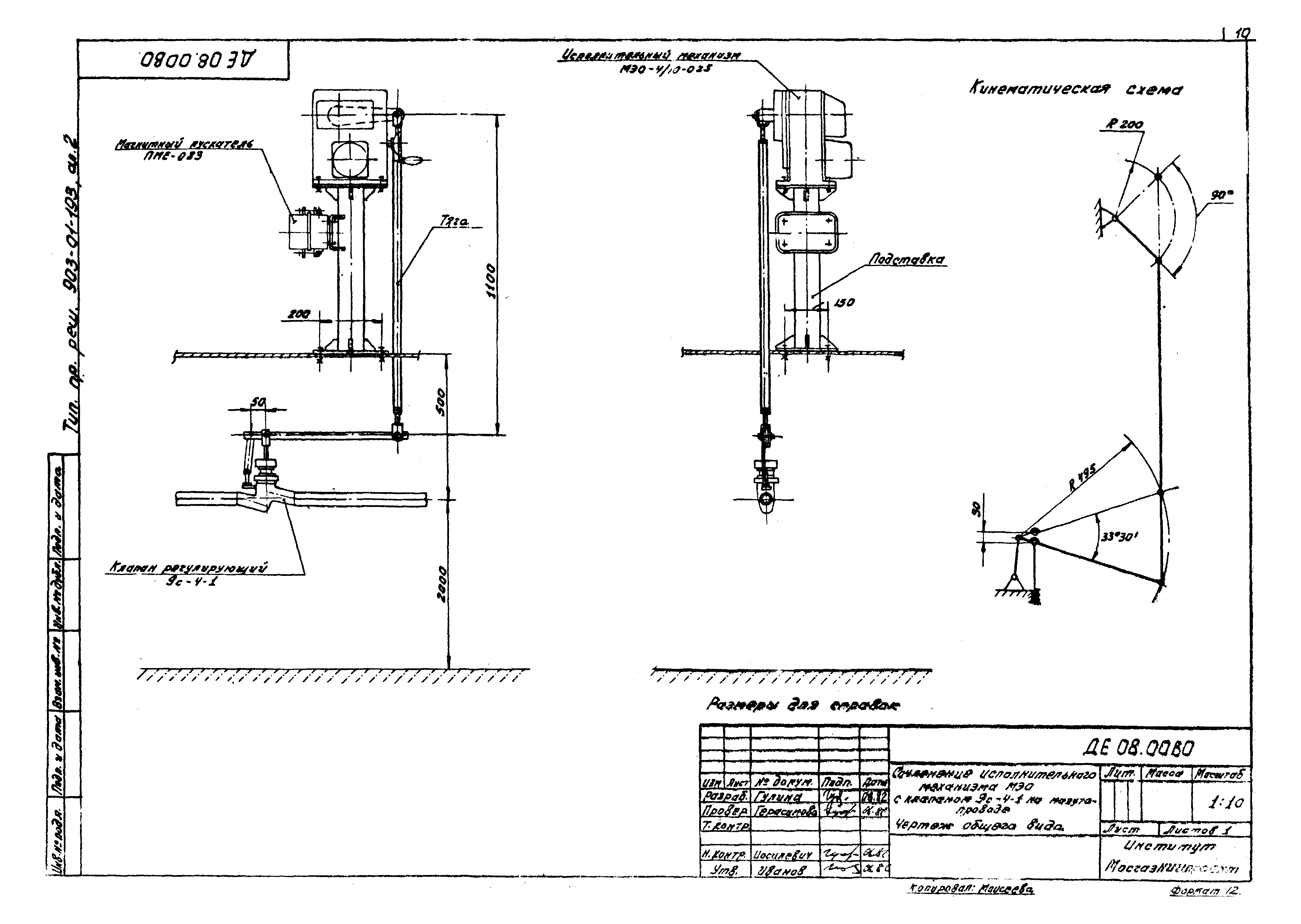
| Оглавление: | Титульный лист Содержание альбома Ограничитель поворота пробки крана Подставка под газопровод на металлической площадке Заслонка дроссельная Установка датчика ДД, 3-х датчиков ДН и датчика ДНТ-100 на щите Установка тягонапоромера типа ТДЖ на щитке Установка 4-х напоромеров НМП-52 на щите Сочленение исполнительного механизма МЭО с заслонкой на газопроводе Сочленение исполнительного механизма МЭО с клапаном 9с-4-1 на мазутопроводе Сочленение исполнительного механизма МЭО с направляющим аппаратом вентилятора Сочленение исполнительного механизма МЭО с направляющим аппаратом дымососа |
| Разработан: | Мосгазниипроект Мосгорисполкома |
| Утверждён: | 24.06.1982 МосгазНИИпроект (98) |













