Скачать Типовой проект 407-3-455.87 Альбом II. Строительные изделияДата актуализации: 01.01.2021
|
| Обозначение: | Типовой проект 407-3-455.87 |
| Обозначение англ: | 407-3-455.87 |
| Статус: | не определен законодательством |
| Название рус.: | Альбом II. Строительные изделия |
| Дата добавления в базу: | 01.09.2013 |
| Дата актуализации: | 01.01.2021 |
| Дата введения: | 03.03.1987 |
| Дата окончания срока действия: | 30.06.2003 |
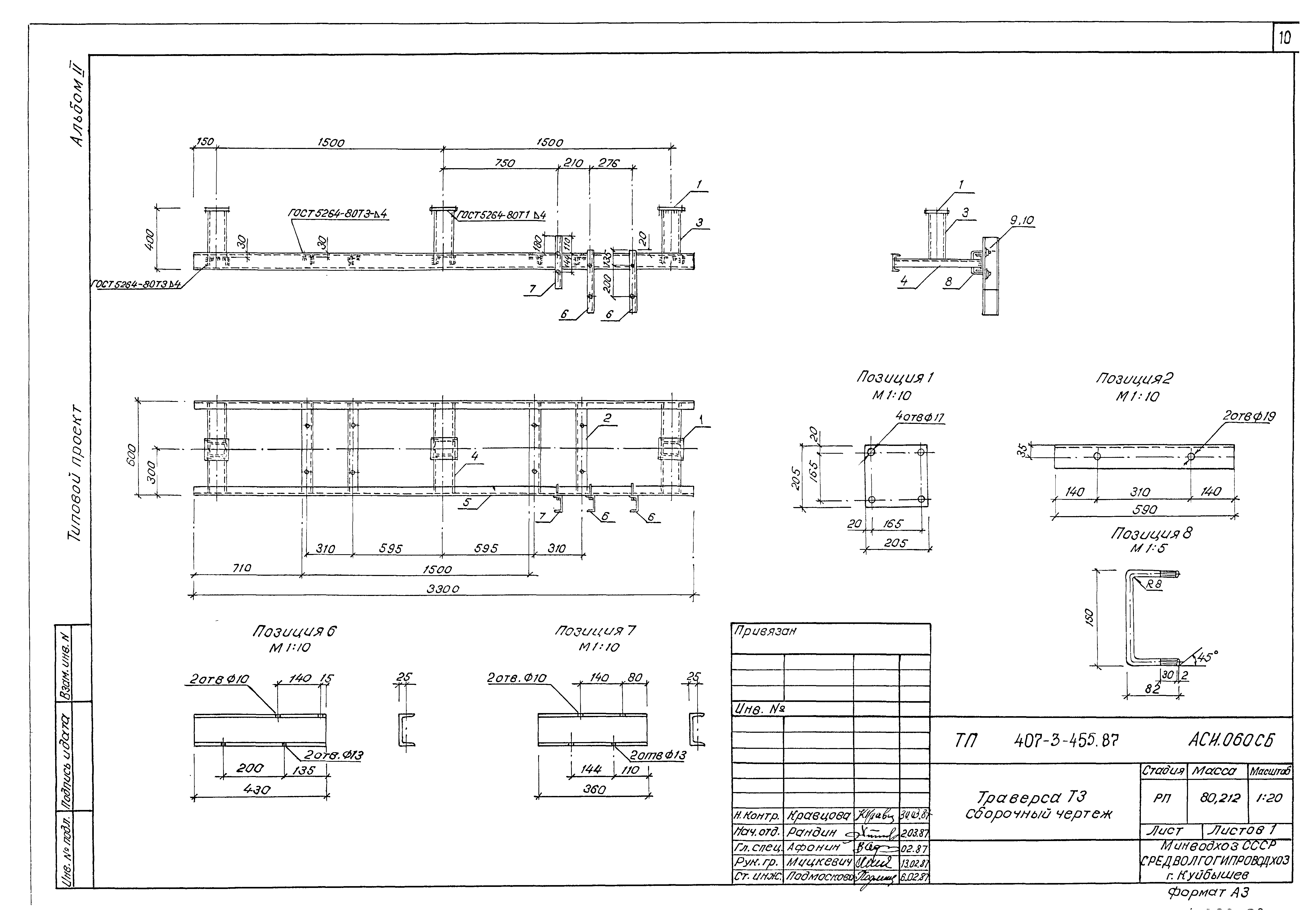
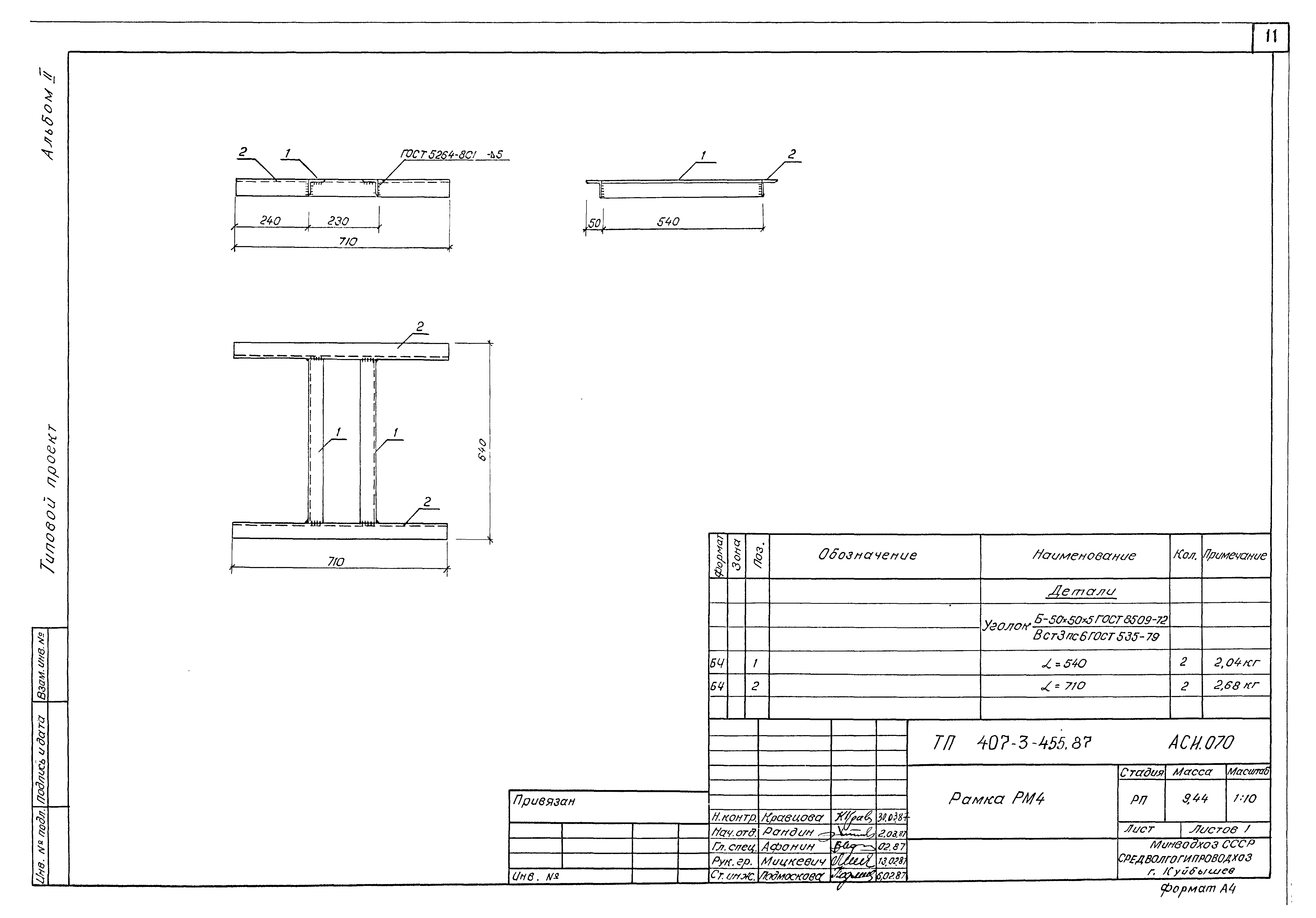
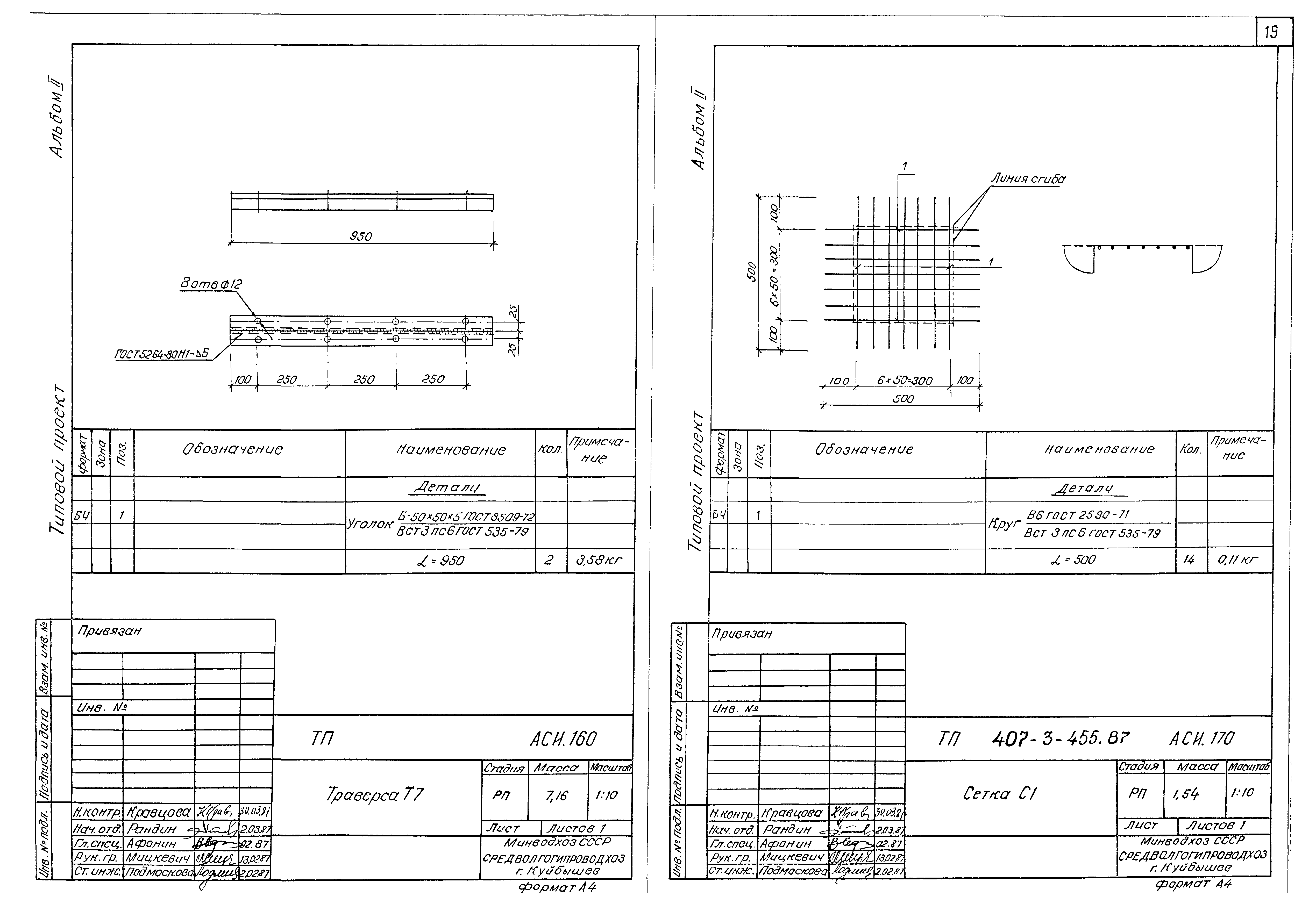
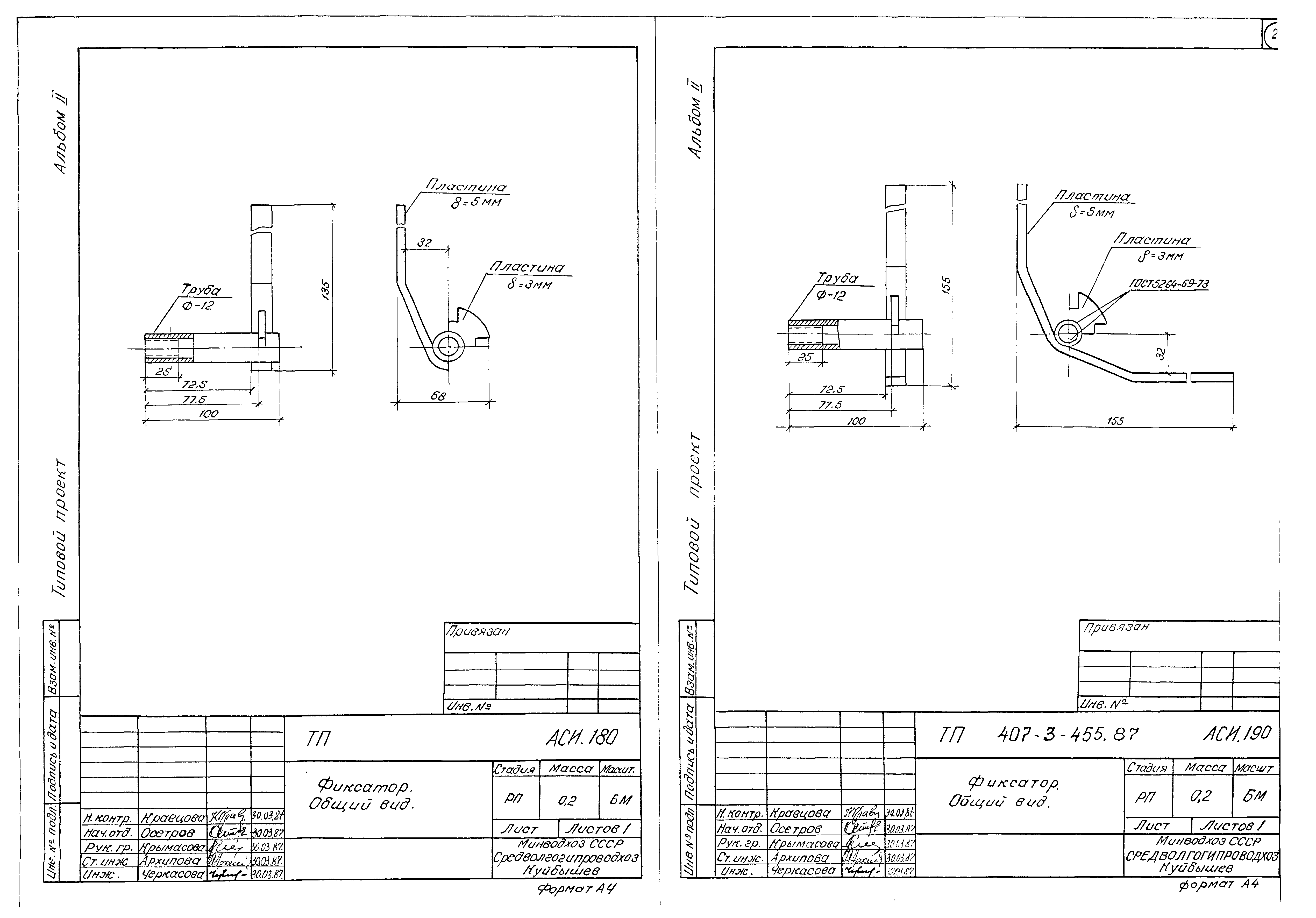
| Оглавление: | Технические требования Рамка РМ1 Рамка РМ2 Траверса Т1 Траверса Т3 Траверса Т1. Сборочный чертеж Траверса Т2 Рамка РМ3 Траверса Т3. Сборочный чертеж Рамка РМ4 Кронштейн К1 Кронштейн К2 Траверса Т4 Траверса Т5 Траверса Т6 Рамка РМ5 Рамка РМ6 Траверса Т7 Сетка С1 Фиксатор. Общий вид |
| Разработан: | Средволгогипроводхоз |
| Утверждён: | 03.03.1987 Минводхоз СССР (USSR Minvodkhoz 529) |




















