Скачать Серия 2.210-1 Выпуск 8. Деформационные и температурные швы цоколя и стен подвала каркасно-панельных зданийДата актуализации: 01.01.2021
|
| Обозначение: | Серия 2.210-1 |
| Обозначение англ: | Series 2.210-1 |
| Статус: | заменен |
| Название рус.: | Выпуск 8. Деформационные и температурные швы цоколя и стен подвала каркасно-панельных зданий |
| Дата добавления в базу: | 01.09.2013 |
| Дата актуализации: | 01.01.2021 |
| Дата введения: | 01.03.1976 |
| Дата окончания срока действия: | 01.10.1989 |
| Область применения: | В настоящий выпуск включены детали устройства деформационных и температурных швов цоколя и стен подвала зданий высотой до 12 этажей |
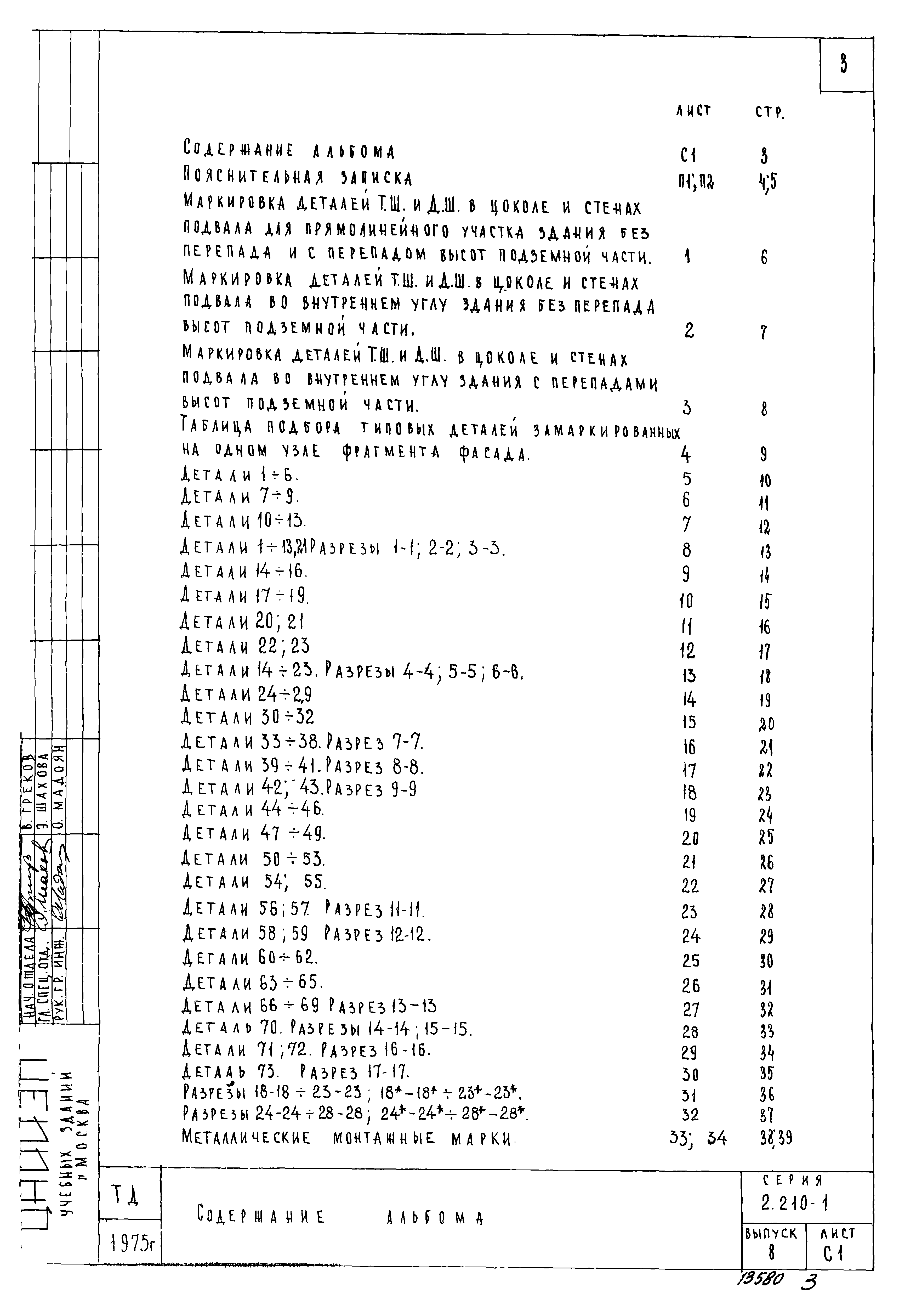
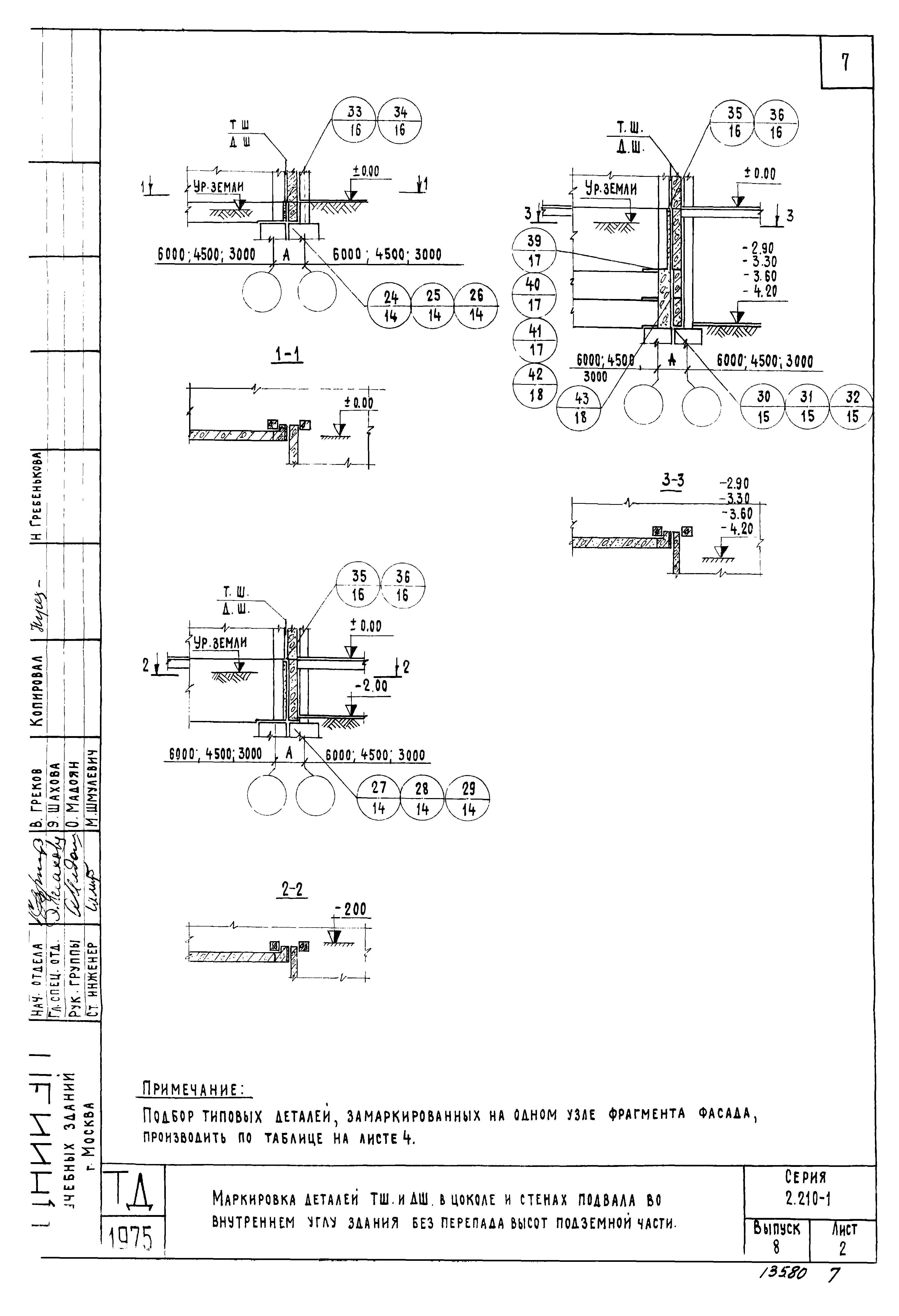
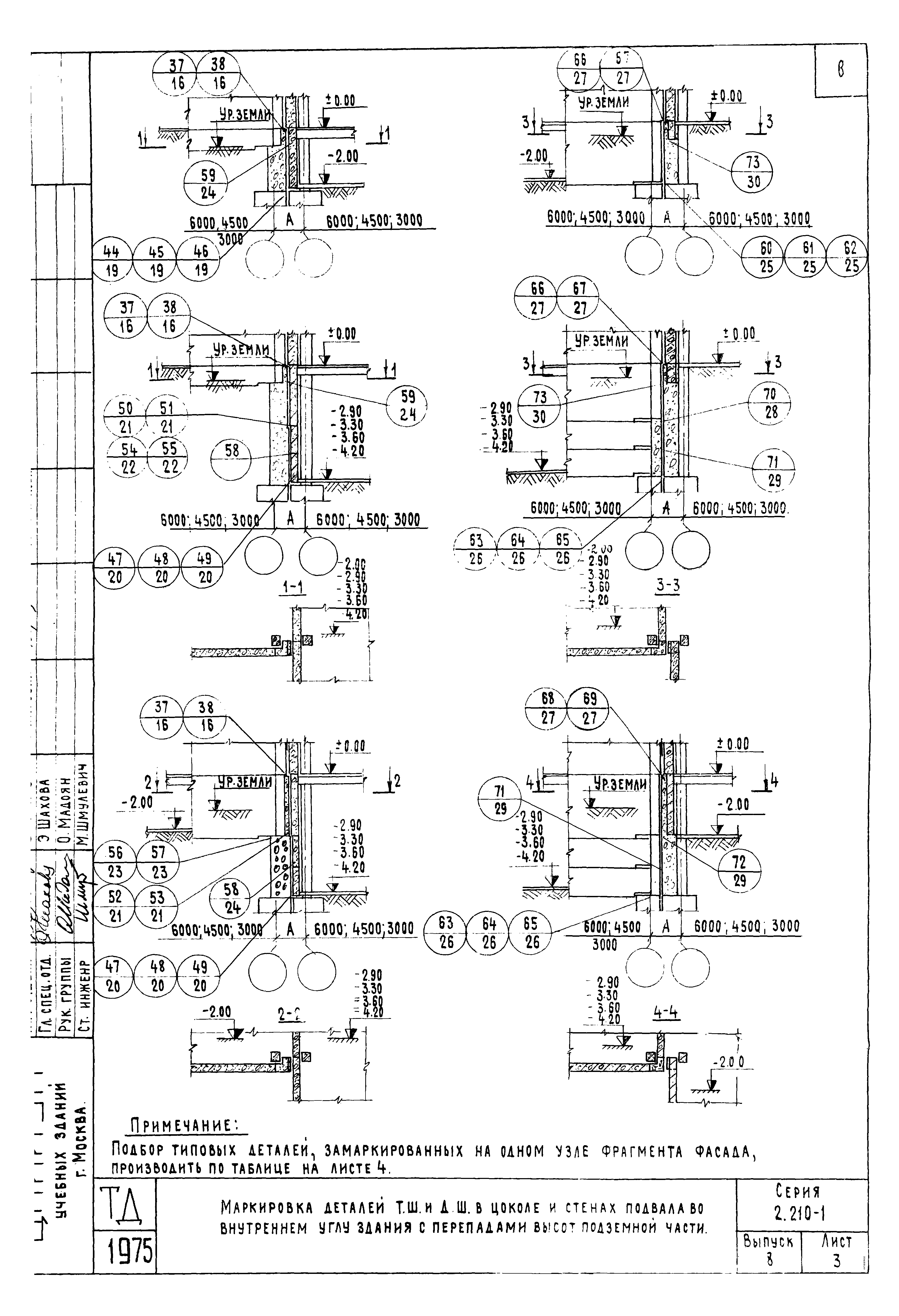
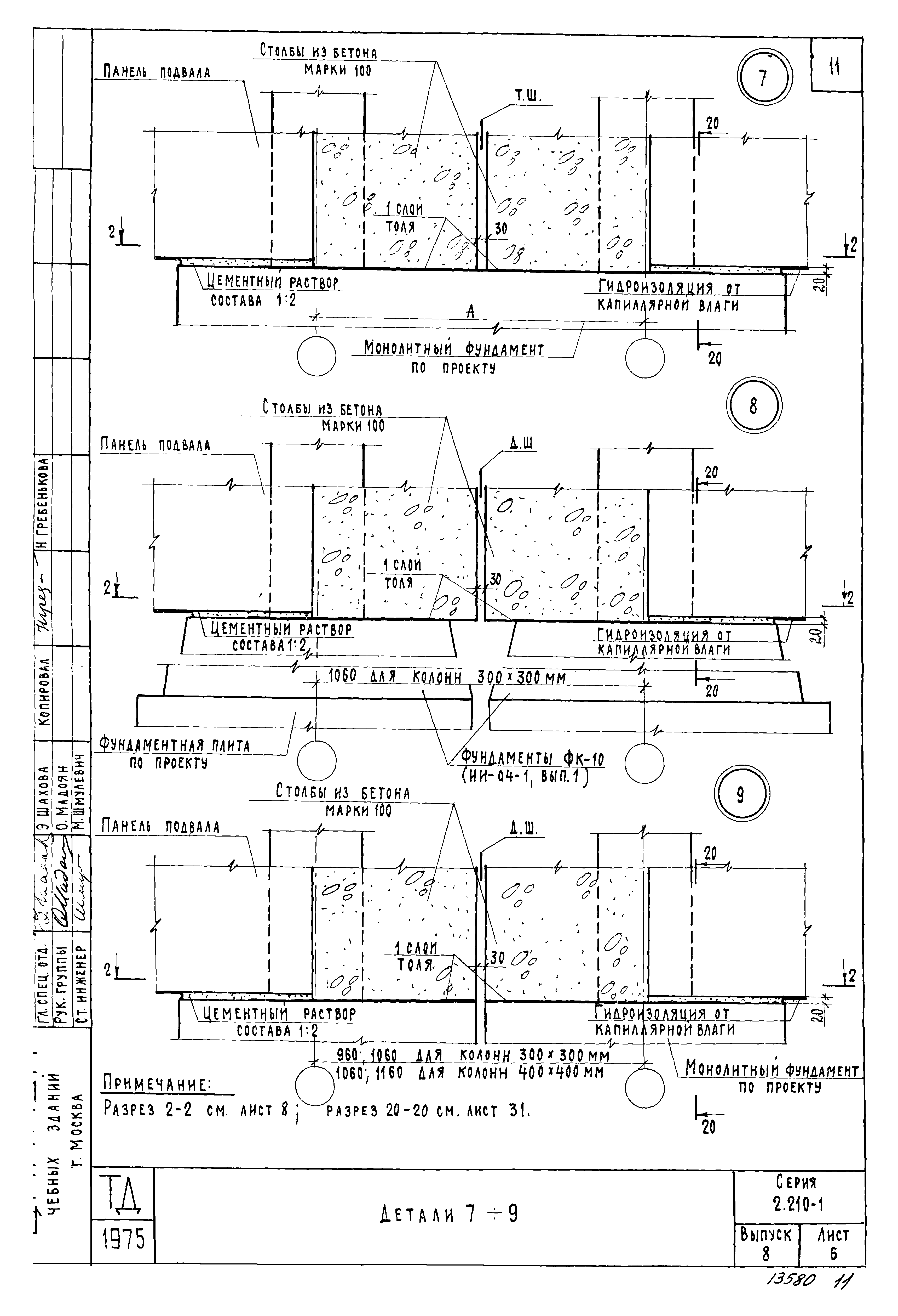
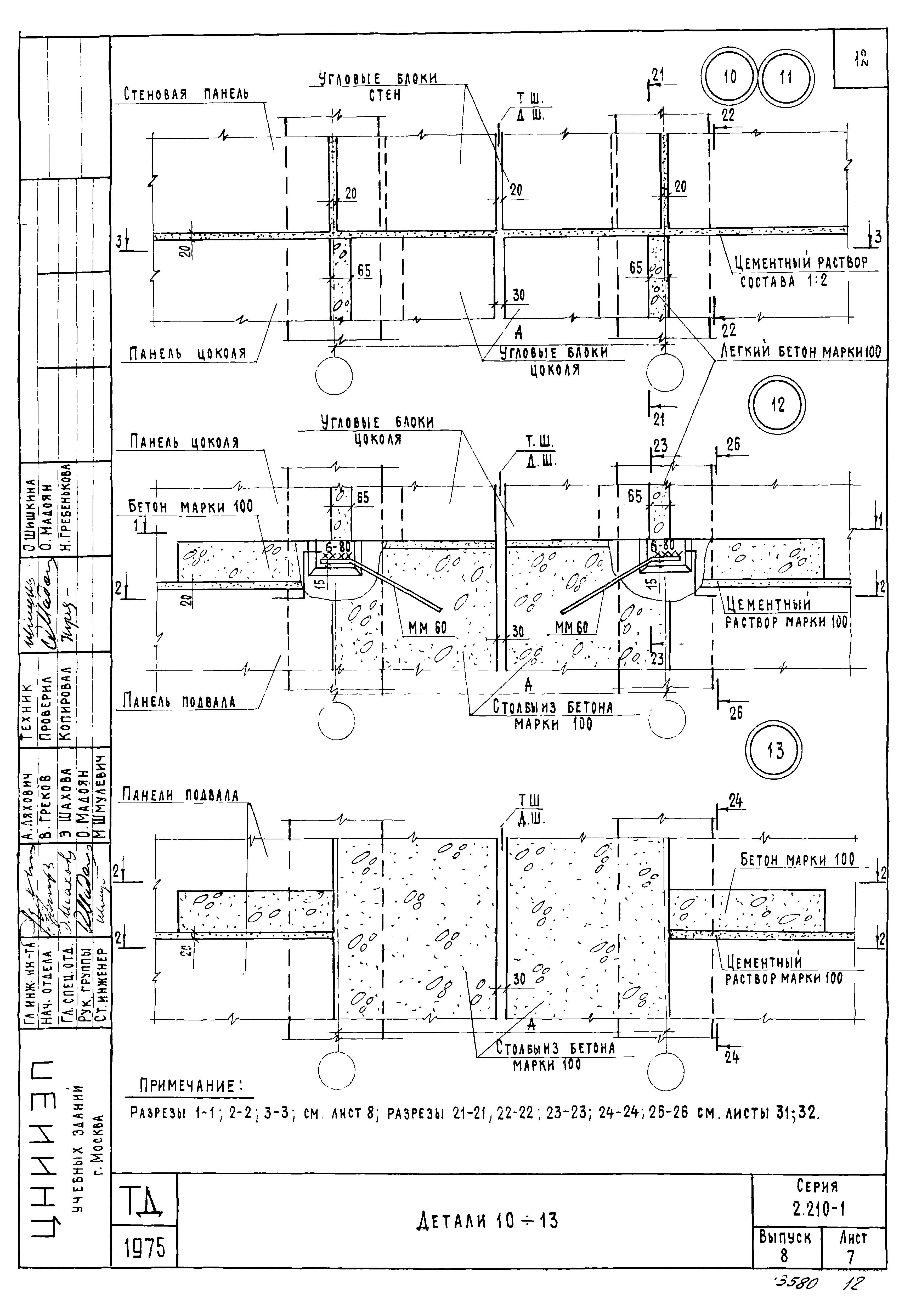
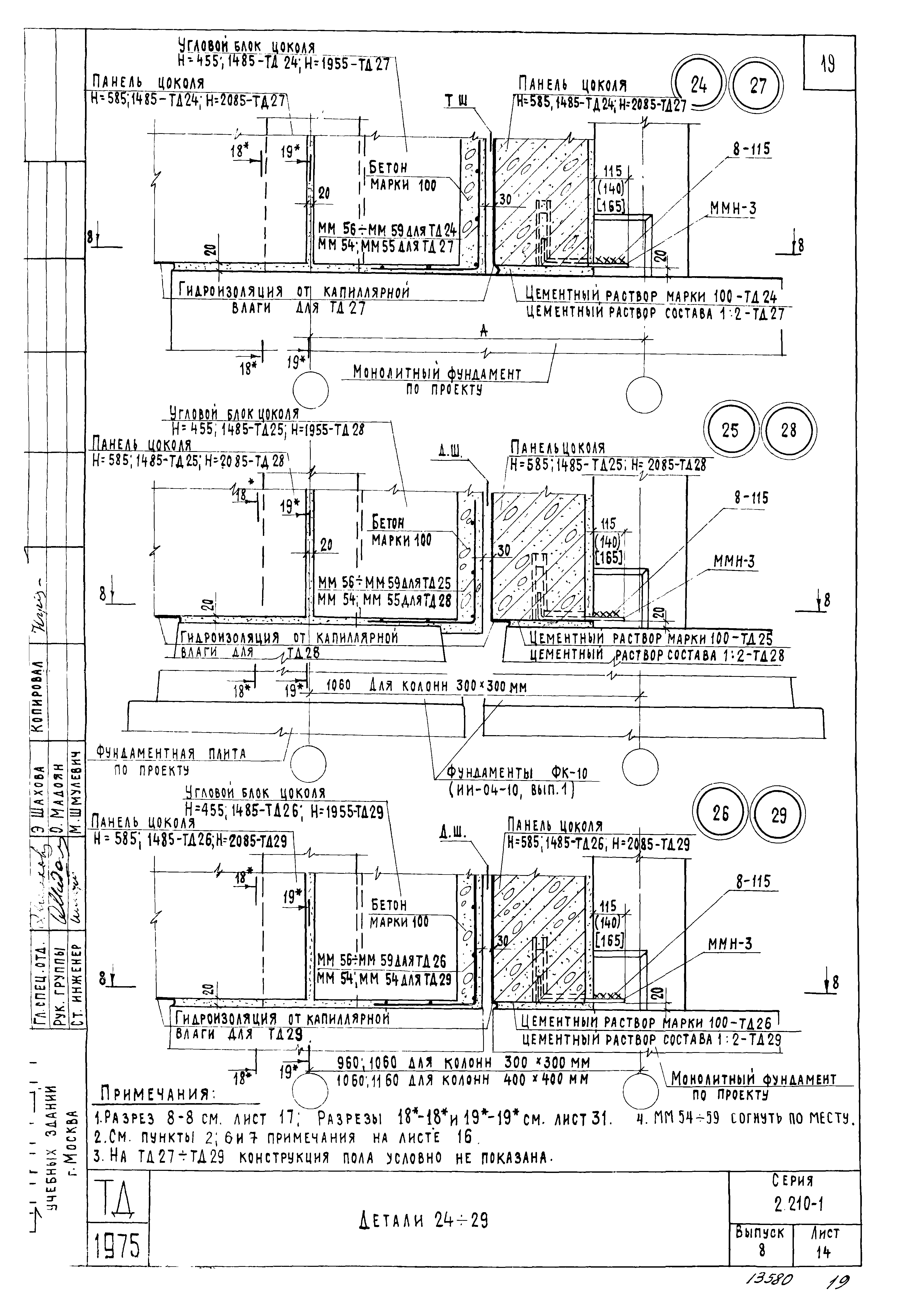
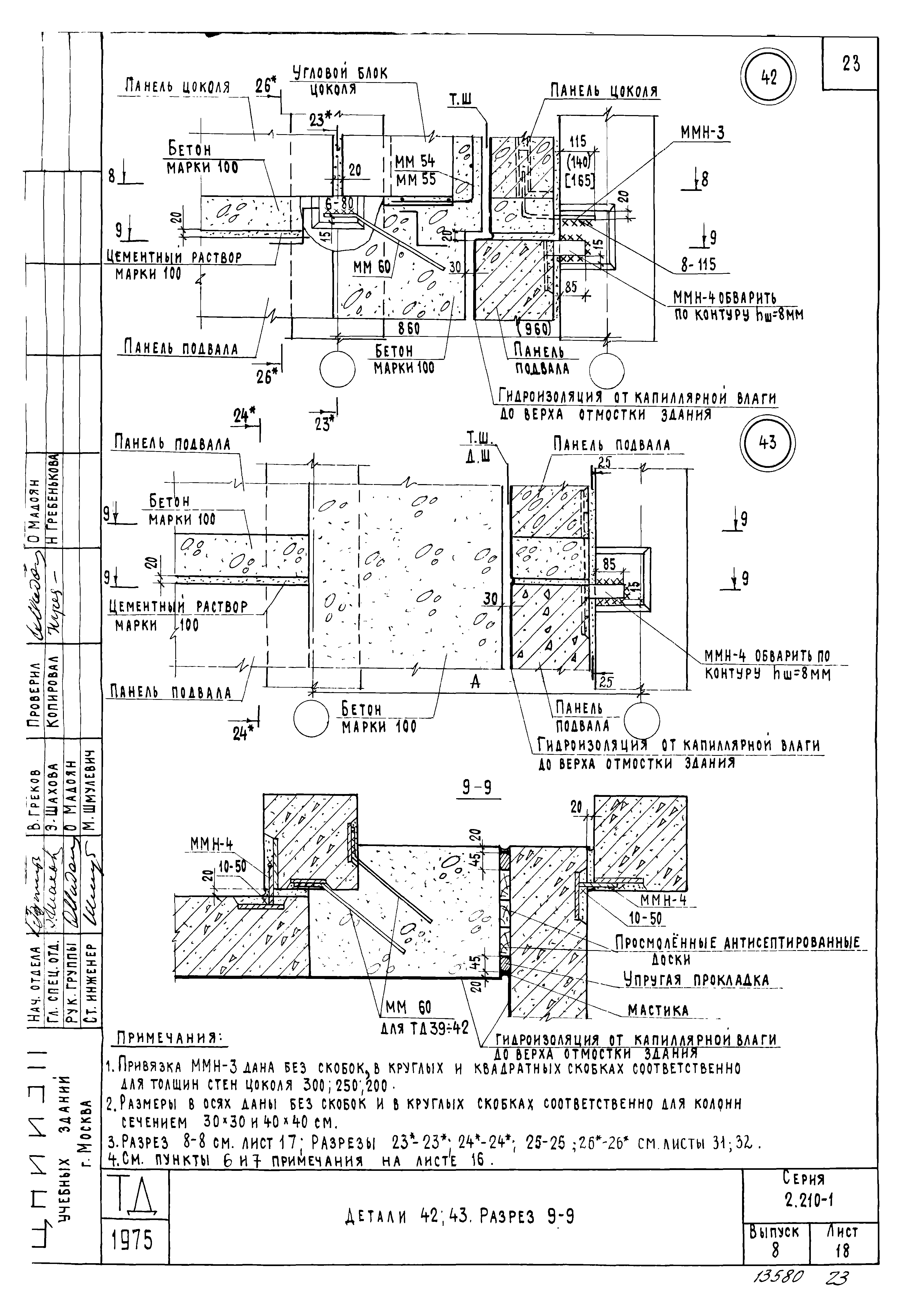
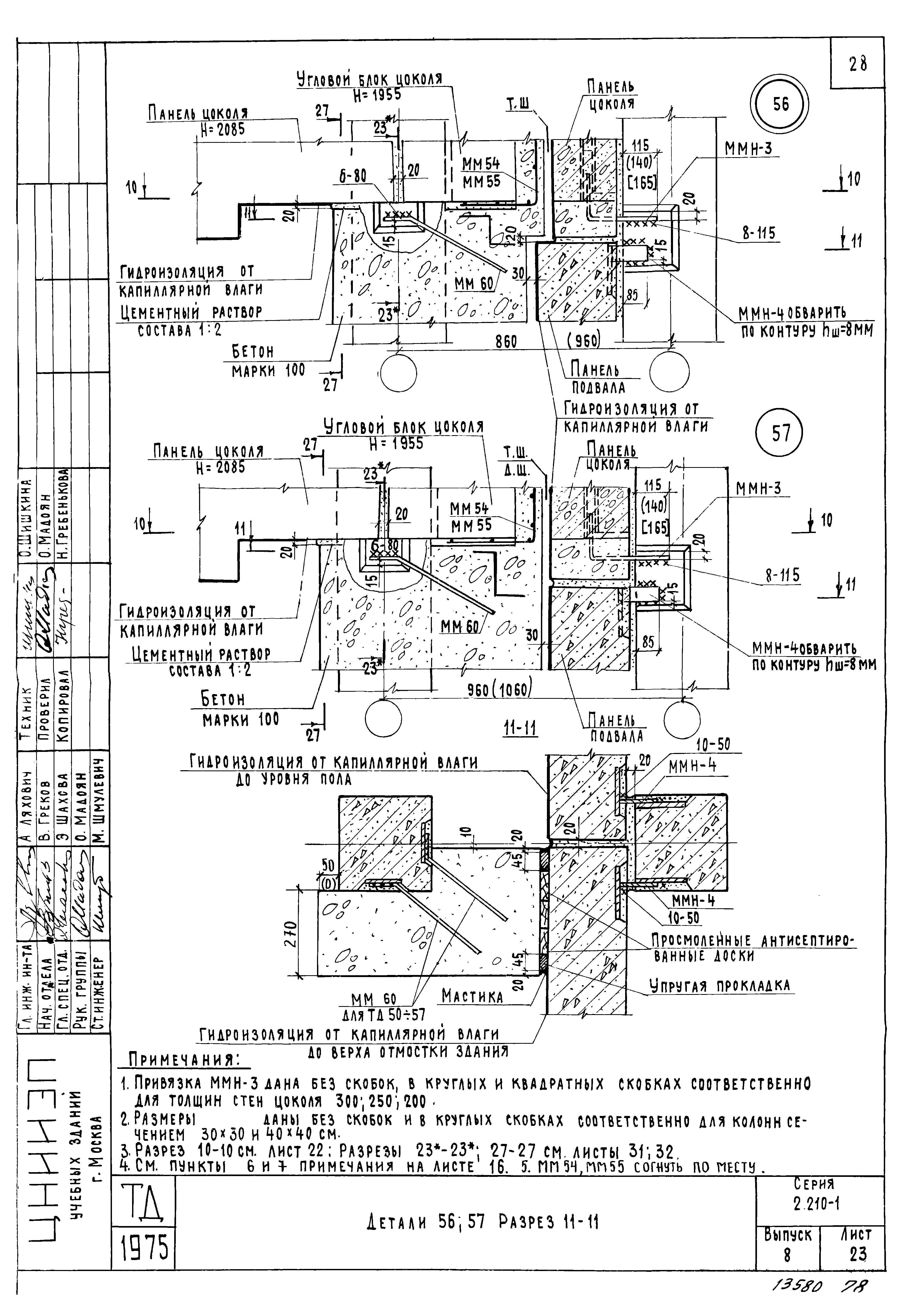
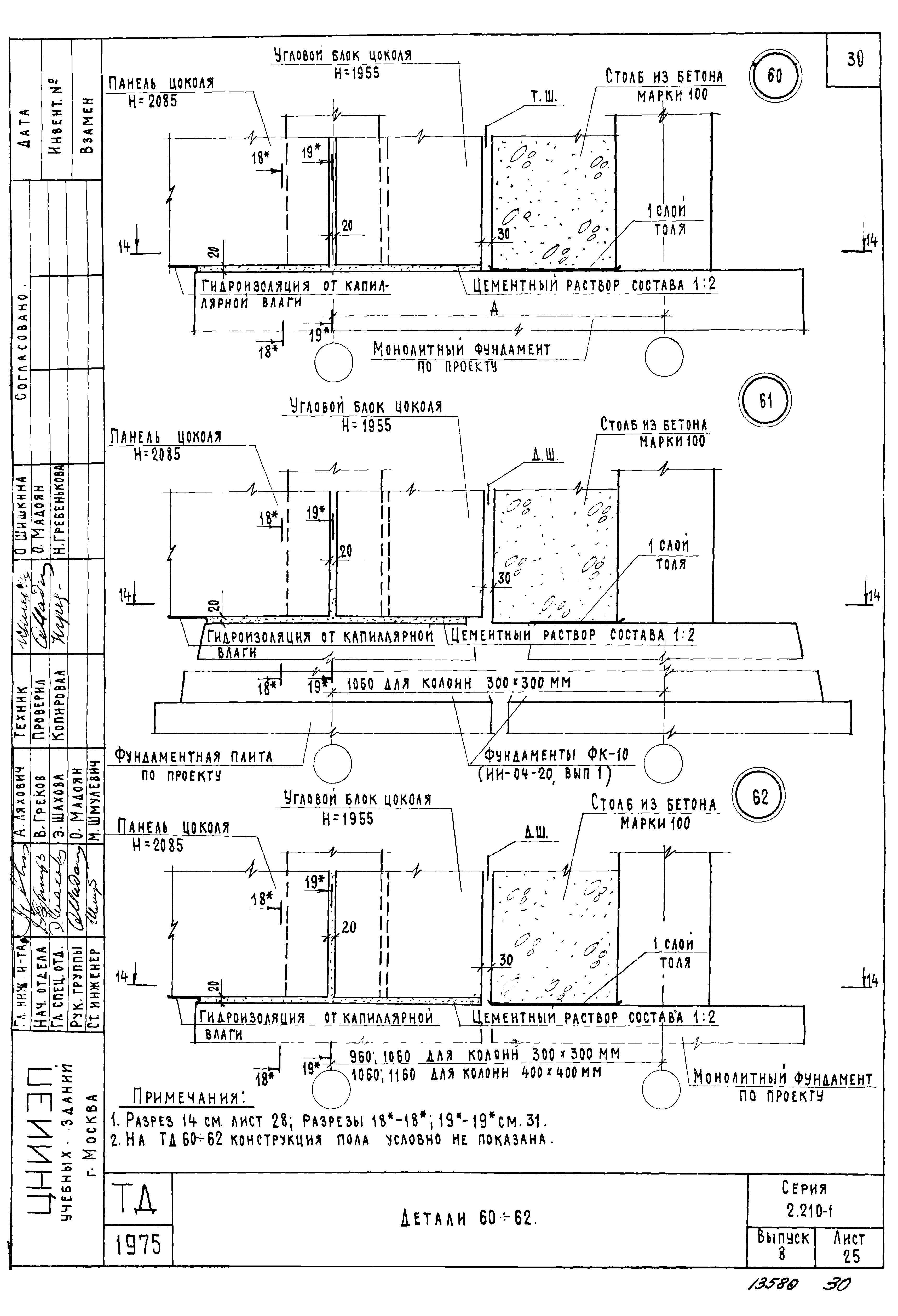
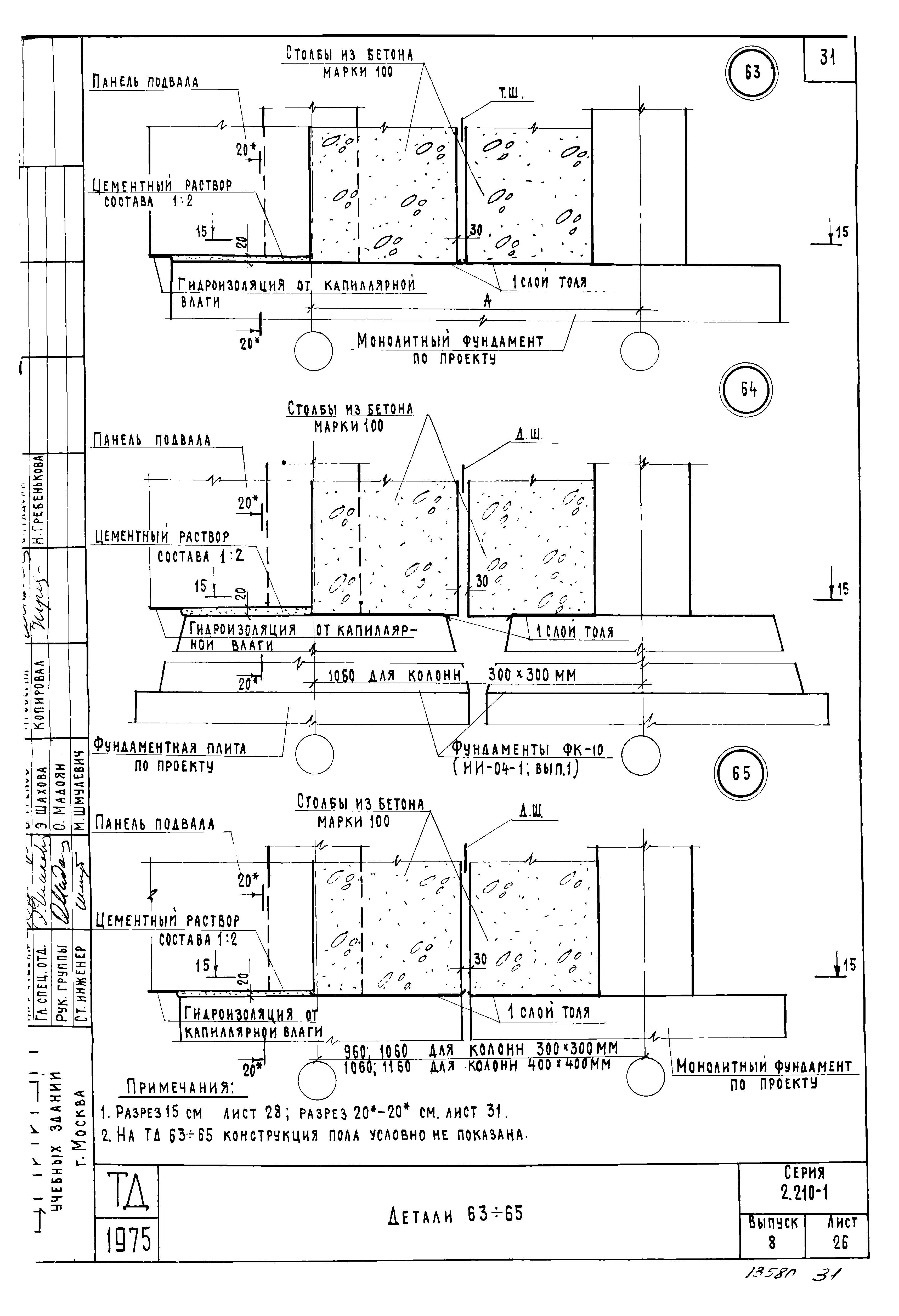
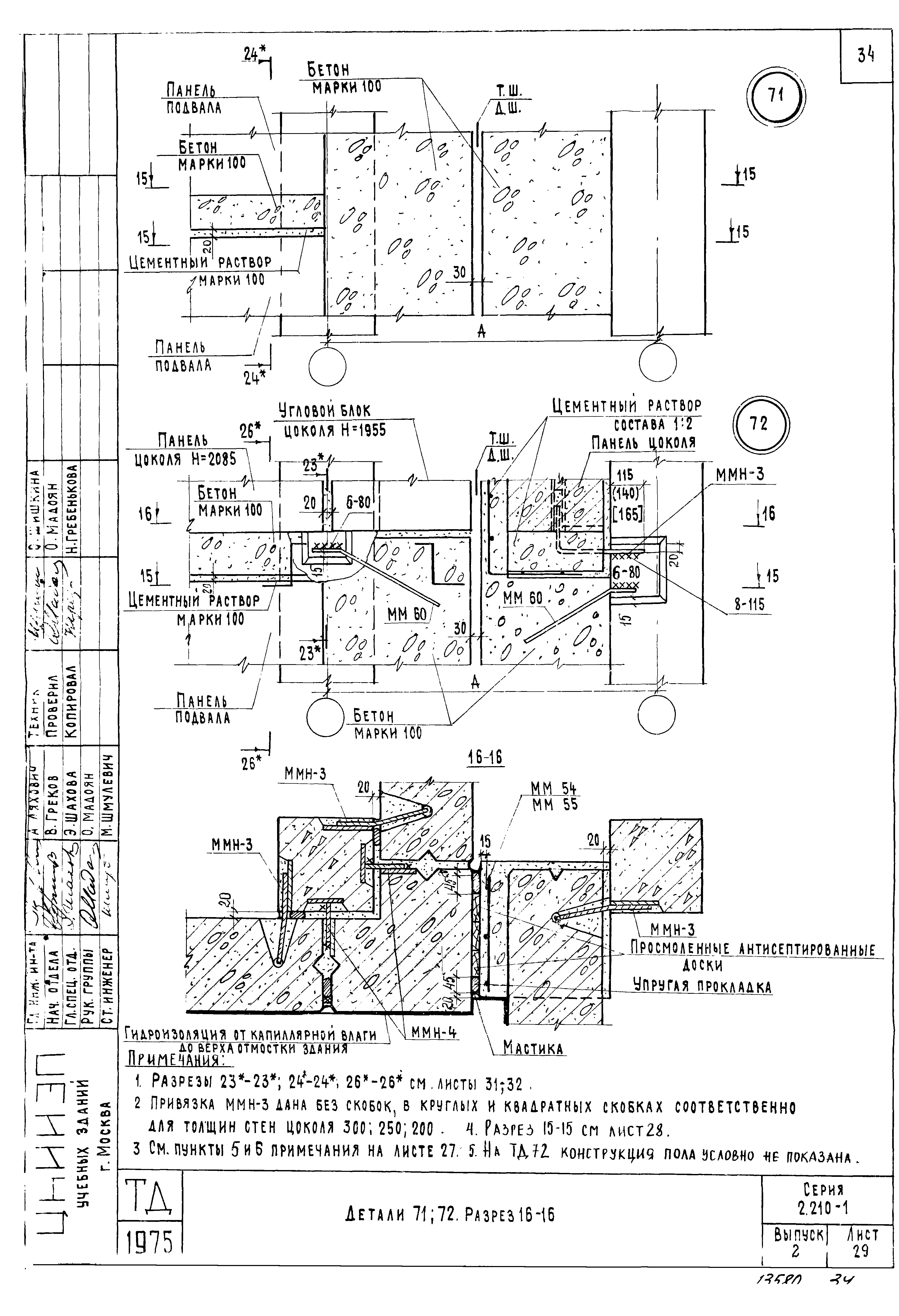
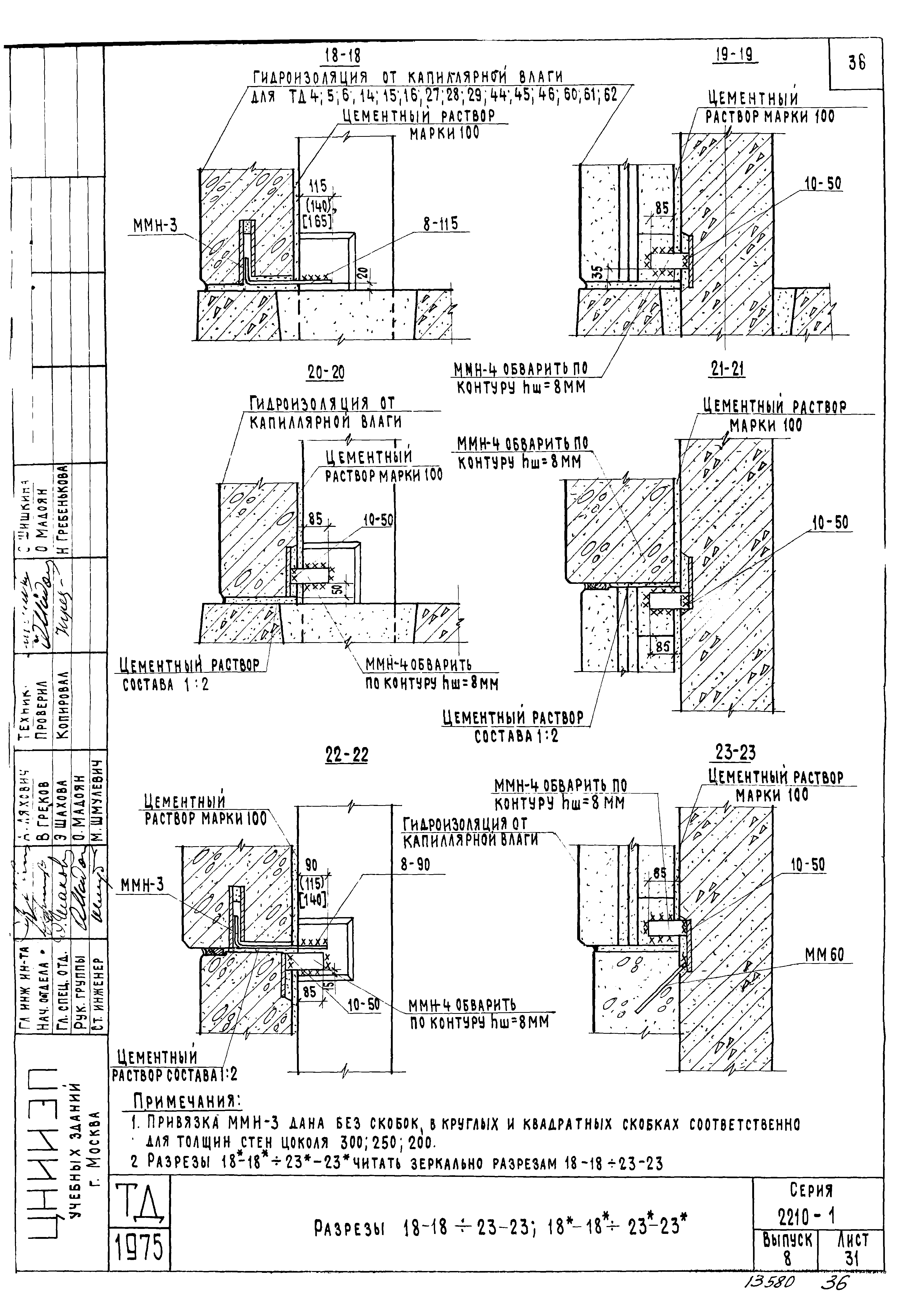
| Оглавление: | Содержание альбома Пояснительная записка Маркировка деталей ТШ и ДШ в цоколе и стенах подвала для прямолинейного участка здания без перепада и с перепадом высот подземной части Маркировка деталей ТШ и ДШ в цоколе и стенах подвала во внутреннем углу здания без перепада высот подземной части Маркировка деталей ТШ и ДШ в цоколе и стенах подвала во внутреннем углу здания с перепадами высот подземной части Таблица подбора типовых деталей замаркированных на одном узле фрагмента фасада Детали 1 - 6 Детали 7 - 9 Детали 10 - 13 Детали 1 - 13, 21. Разрезы 1-1, 2-2, 3-3 Детали 14 - 16 Детали 17 - 19 Детали 20, 21 Детали 22, 23 Детали 14 - 23. Разрезы 4-4, 5-5, 6-6 Детали 24 - 29 Детали 30 - 32 Детали 33 - 38. Разрез 7-7 Детали 39 - 41. Разрез 8-8 Детали 42, 43. Разрез 9-9 Детали 44 - 46 Детали 47 - 49 Детали 50 - 53 Детали 54, 55 Детали 56, 57. Разрез 11-11 Детали 58, 59. Разрез 12-12 Детали 60 - 62 Детали 63 - 65 Детали 66 - 69. Разрез 13-13 Деталь 70. Разрезы 14-14, 15-15 Детали 71, 72. Разрез 16-16 Деталь 73. Разрез 17-17 Разрезы 18-18 - 23-23; 18*-18* - 23*-23* Разрезы 24-24 - 28-28; 24*-24* - 28*-28* Металлические монтажные марки |
| Разработан: | ЦНИИЭП учебных зданий Госгражданстроя |
| Утверждён: | 11.02.1976 Государственный комитет по гражданскому строительству и архитектуре при Госстрое СССР (41) |
| Нормативные ссылки: |
|







































