Скачать Типовой проект 252-9-63 Альбом VI. ВитражиДата актуализации: 01.01.2021
|
| Обозначение: | Типовой проект 252-9-63 |
| Обозначение англ: | 252-9-63 |
| Статус: | не определен законодательством |
| Название рус.: | Альбом VI. Витражи |
| Дата добавления в базу: | 01.09.2013 |
| Дата актуализации: | 01.01.2021 |
| Дата введения: | 17.07.1980 |
| Дата окончания срока действия: | 30.06.2003 |
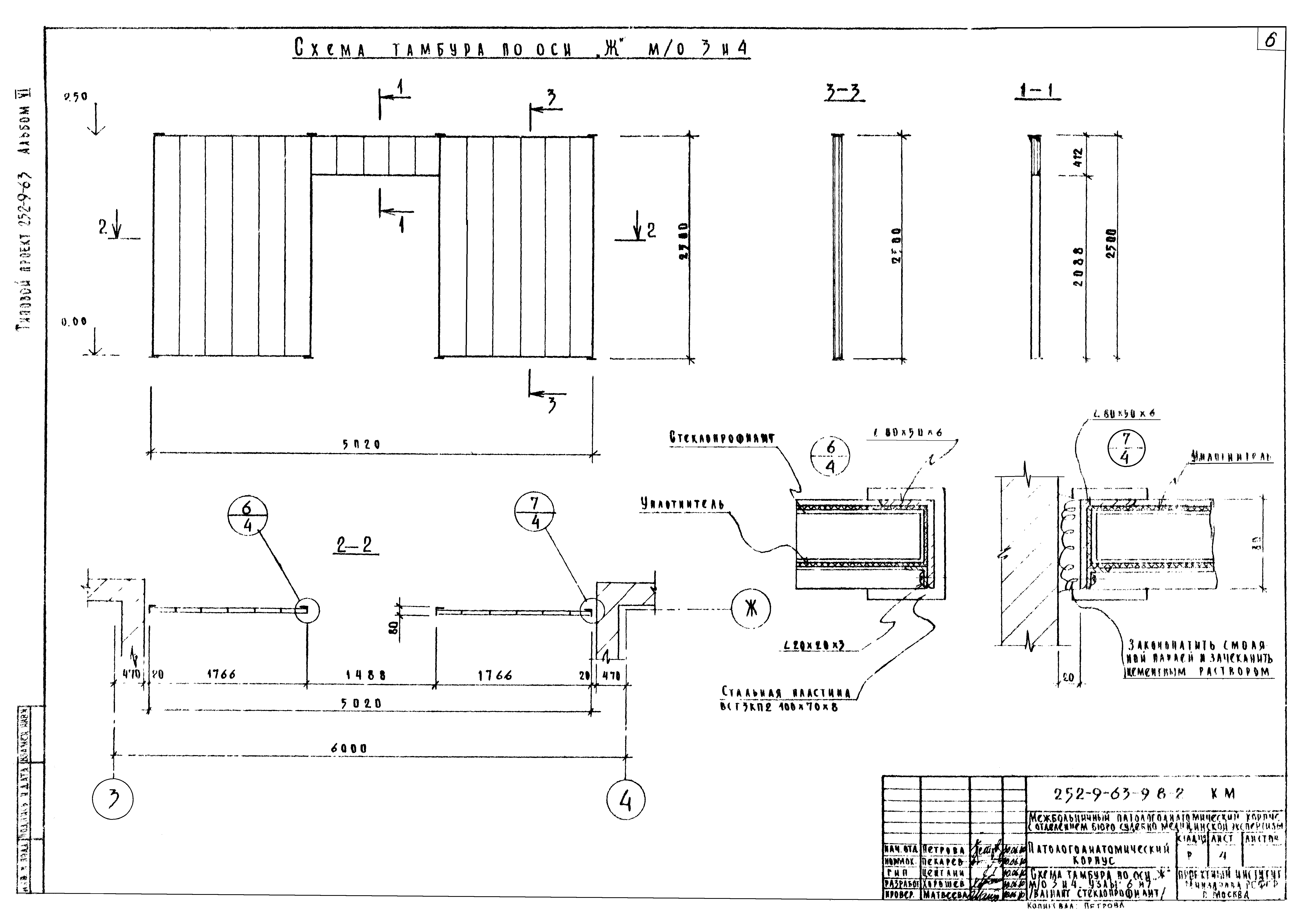
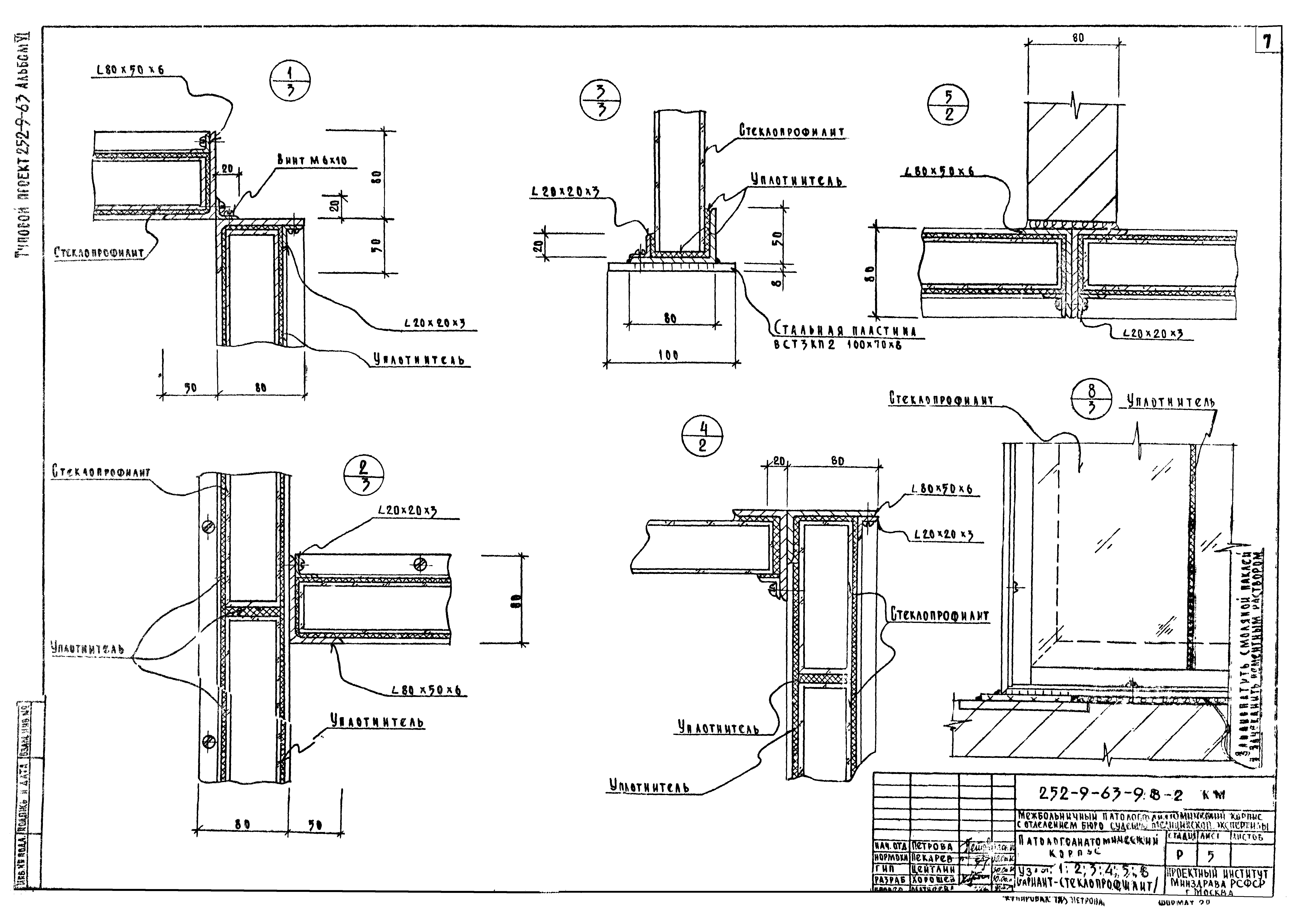
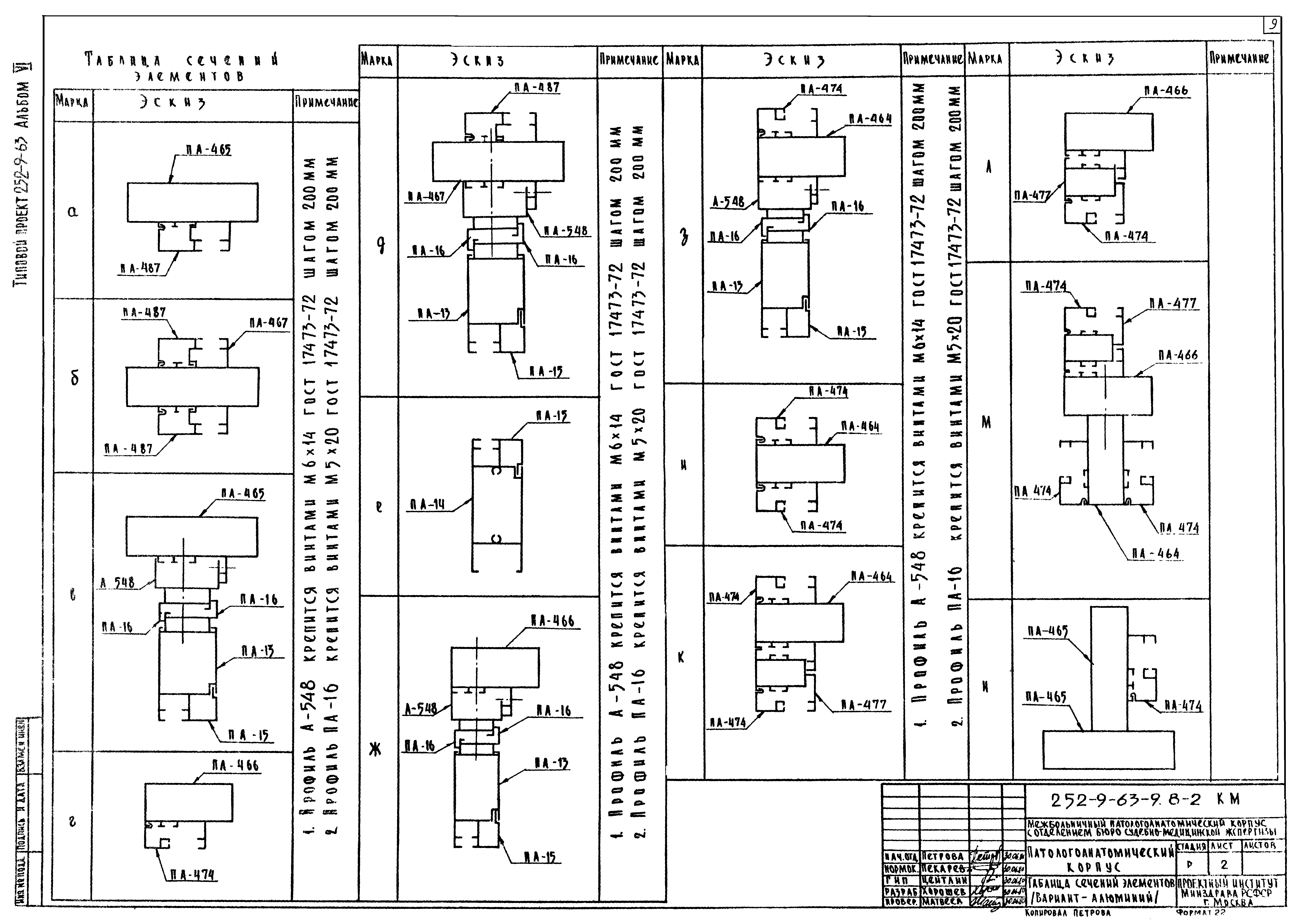
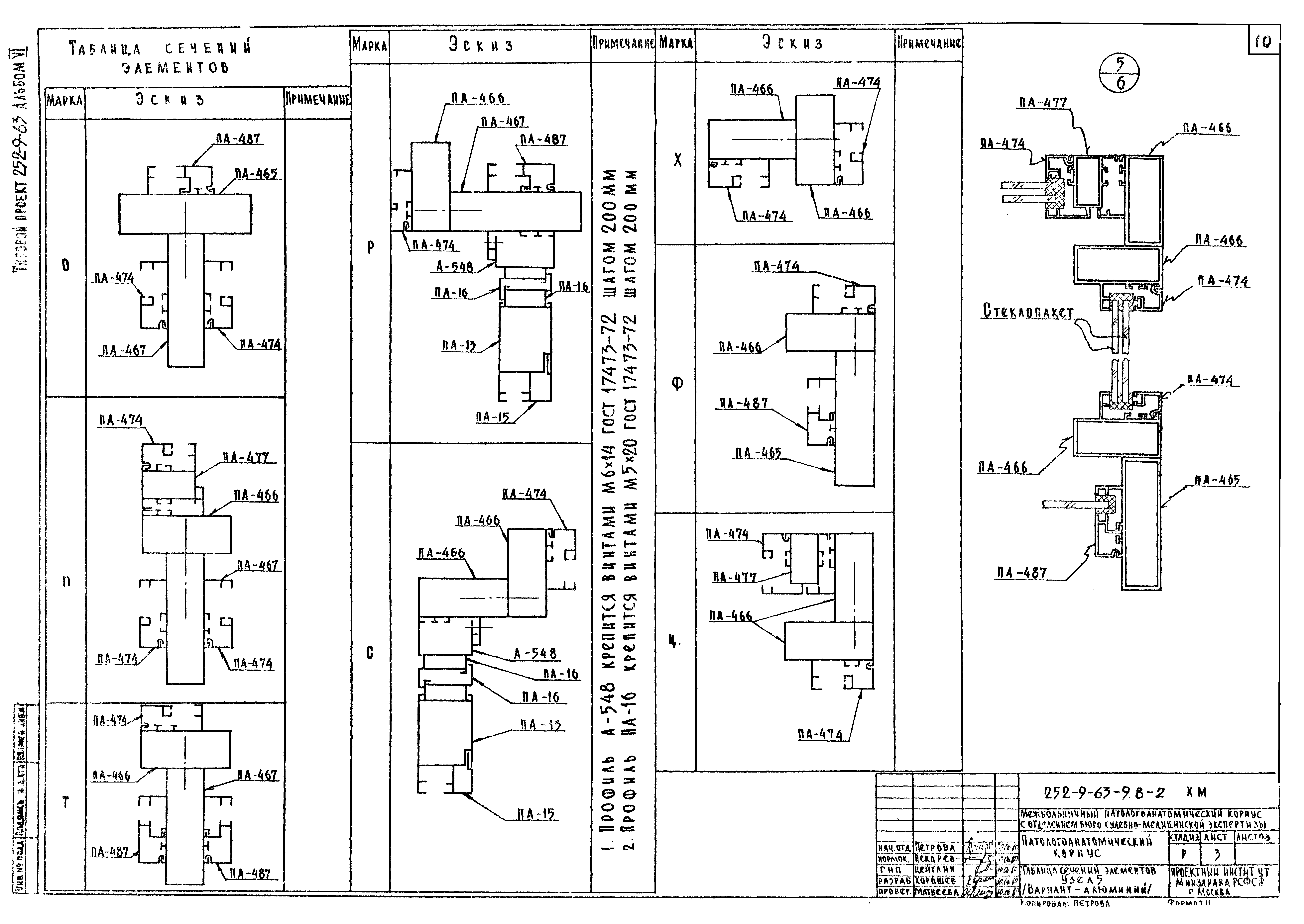
| Оглавление: | Общие данные (вариант - стеклопрофилит) Схема тамбура по оси Б м/о 2 и 5 (вариант - стеклопрофилит) Схема тамбура по осям 1-6 м/о Б и В (вариант - стеклопрофилит) Схема тамбура по оси Ж м/о 3 и 4. Узлы (вариант - стеклопрофилит) Узлы 1; 2; 3; 4; 5; 8 (вариант - стеклопрофилит) Общие данные (вариант - алюминий) Таблица сечений элементов (вариант - алюминий) Таблица сечений элементов Узел 5 (вариант - алюминий) Схема тамбура по оси Б м/о 2 - 5 (вариант - алюминий) Схема тамбура по осям 1-6 м/о Б и В (вариант - алюминий) Схема тамбура по оси Ж м/о 3 и 4 (вариант - алюминий) Узлы 1; 2; 3 (вариант - алюминий) |
| Разработан: | Минздрав РСФСР |
| Утверждён: | 25.01.1980 Госстрой РСФСР (Russian Federation Gosstroy 4) |















