Скачать Типовой проект 281-1-135-148 Альбом I. Архитектурно-строительные чертежиДата актуализации: 01.01.2021
|
| Обозначение: | Типовой проект 281-1-135-148 |
| Обозначение англ: | 281-1-135-148 |
| Статус: | не определен законодательством |
| Название рус.: | Альбом I. Архитектурно-строительные чертежи |
| Дата добавления в базу: | 01.09.2013 |
| Дата актуализации: | 01.01.2021 |
| Дата введения: | 14.09.1979 |
| Дата окончания срока действия: | 30.06.2003 |
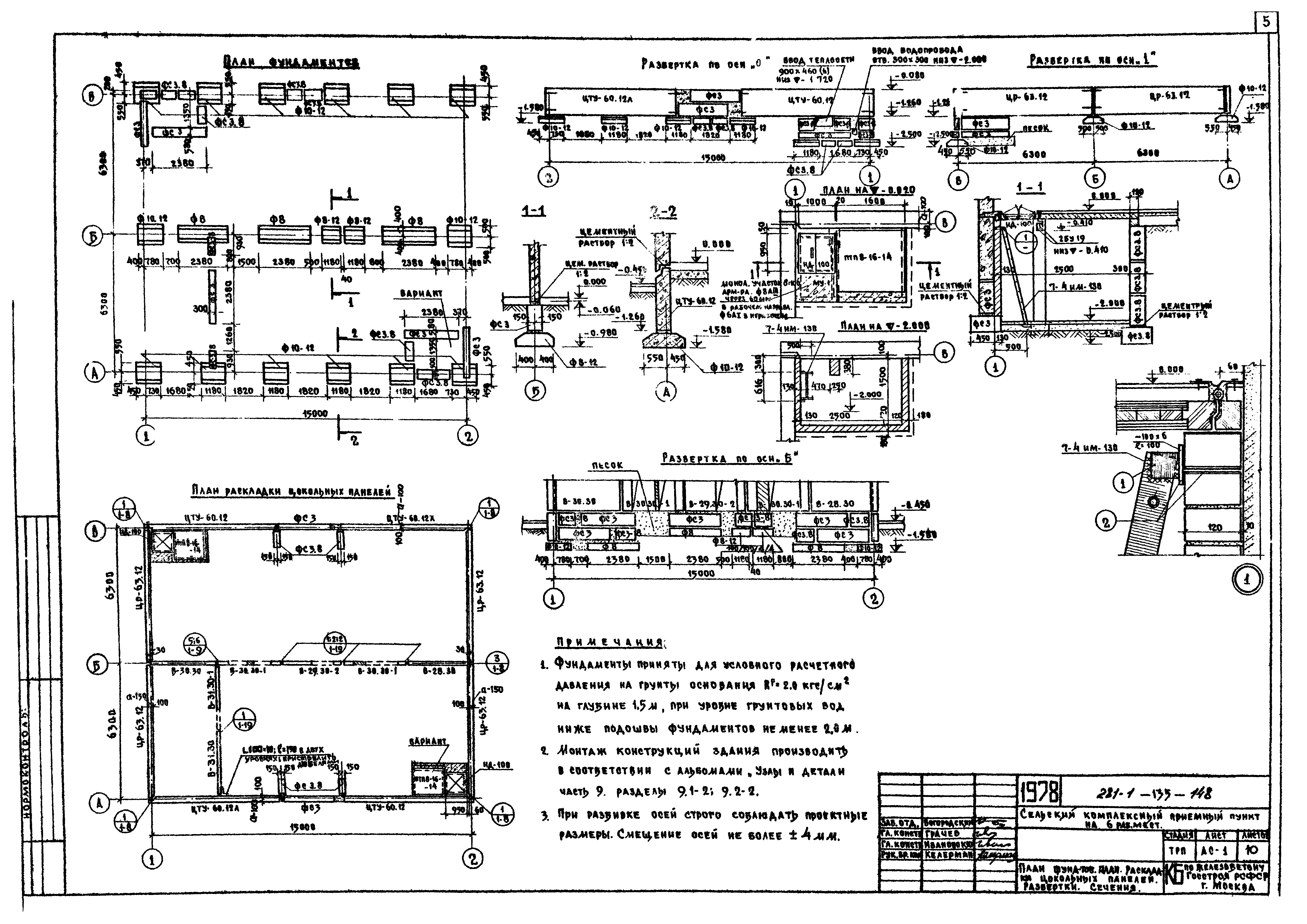
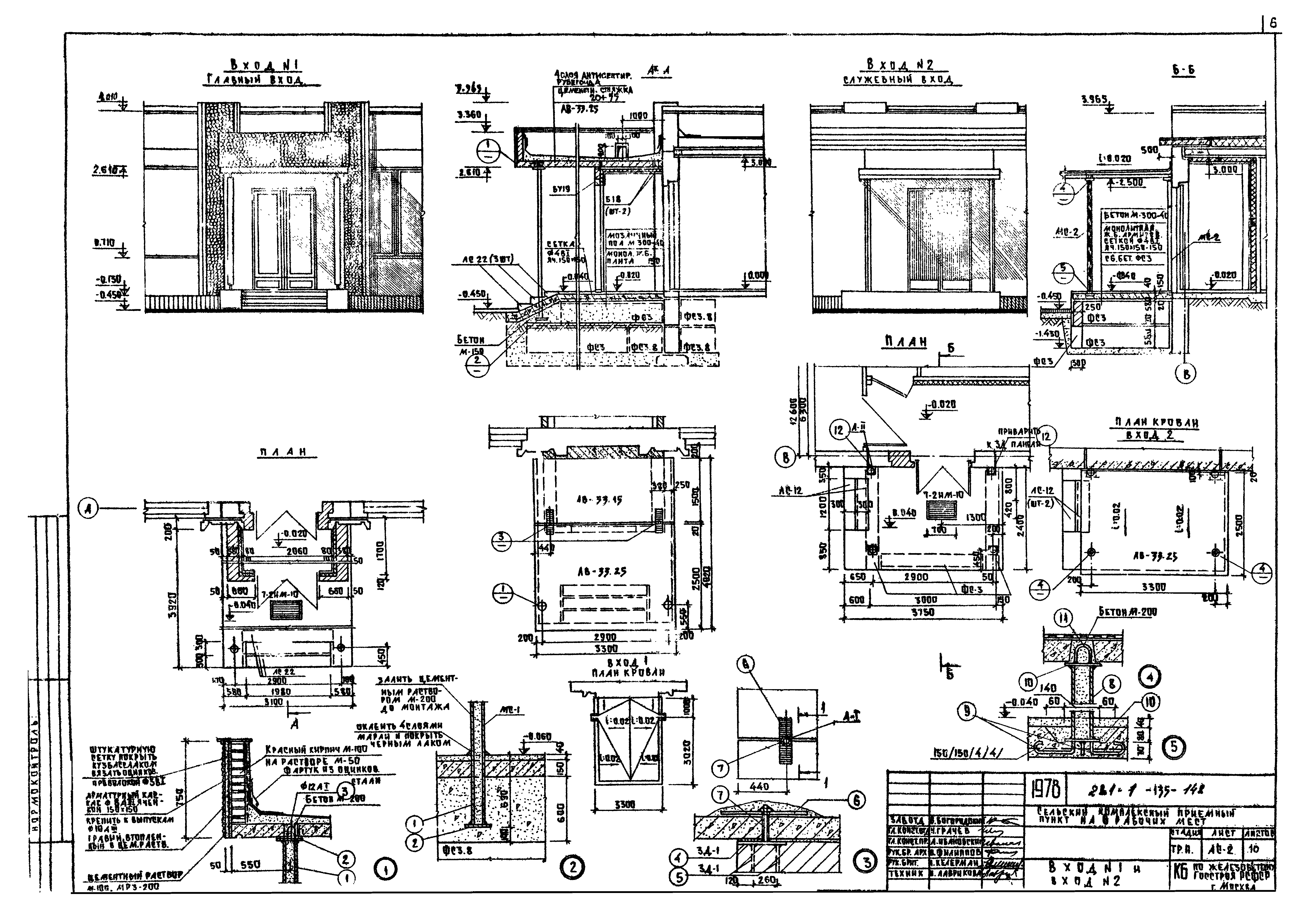
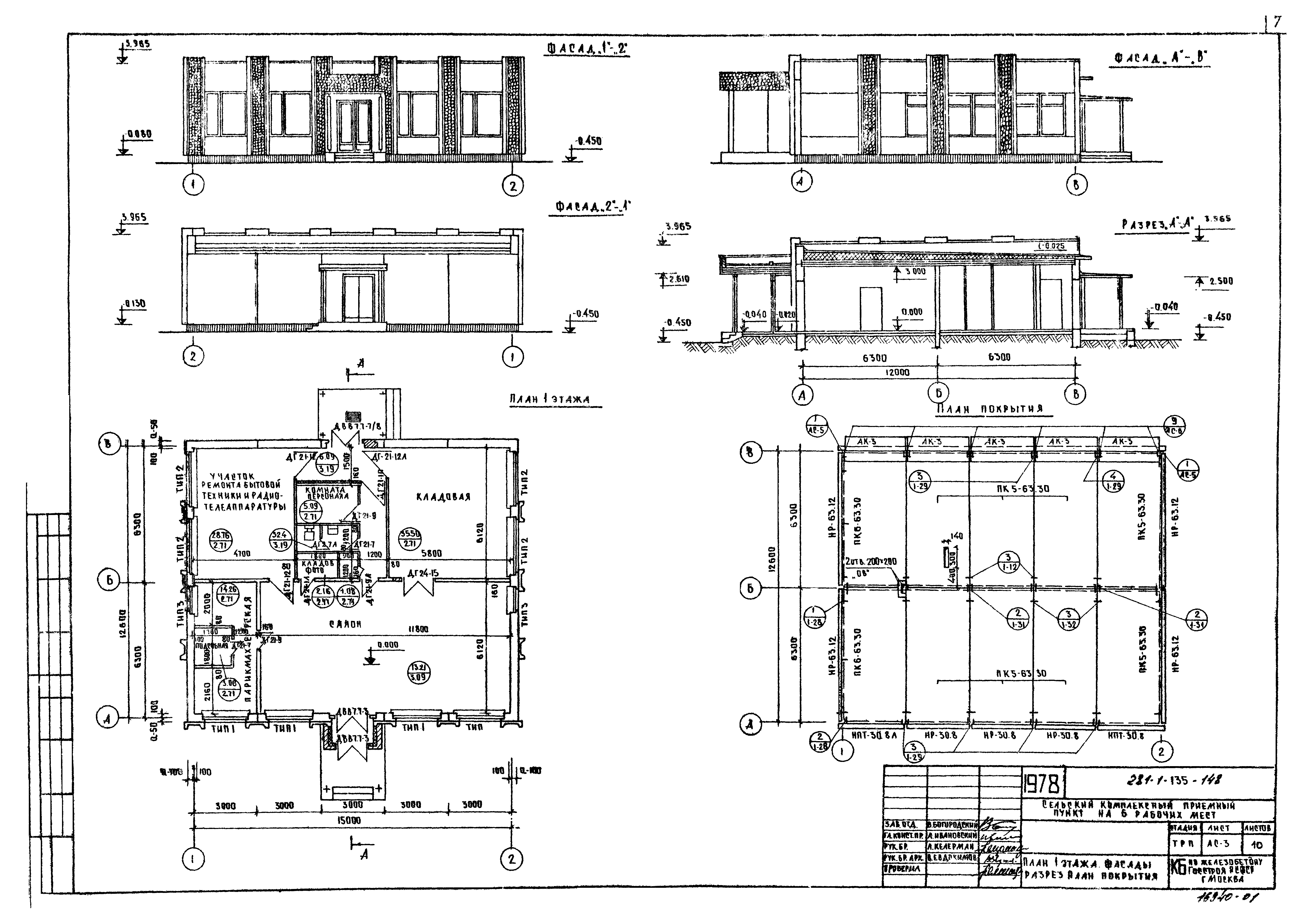
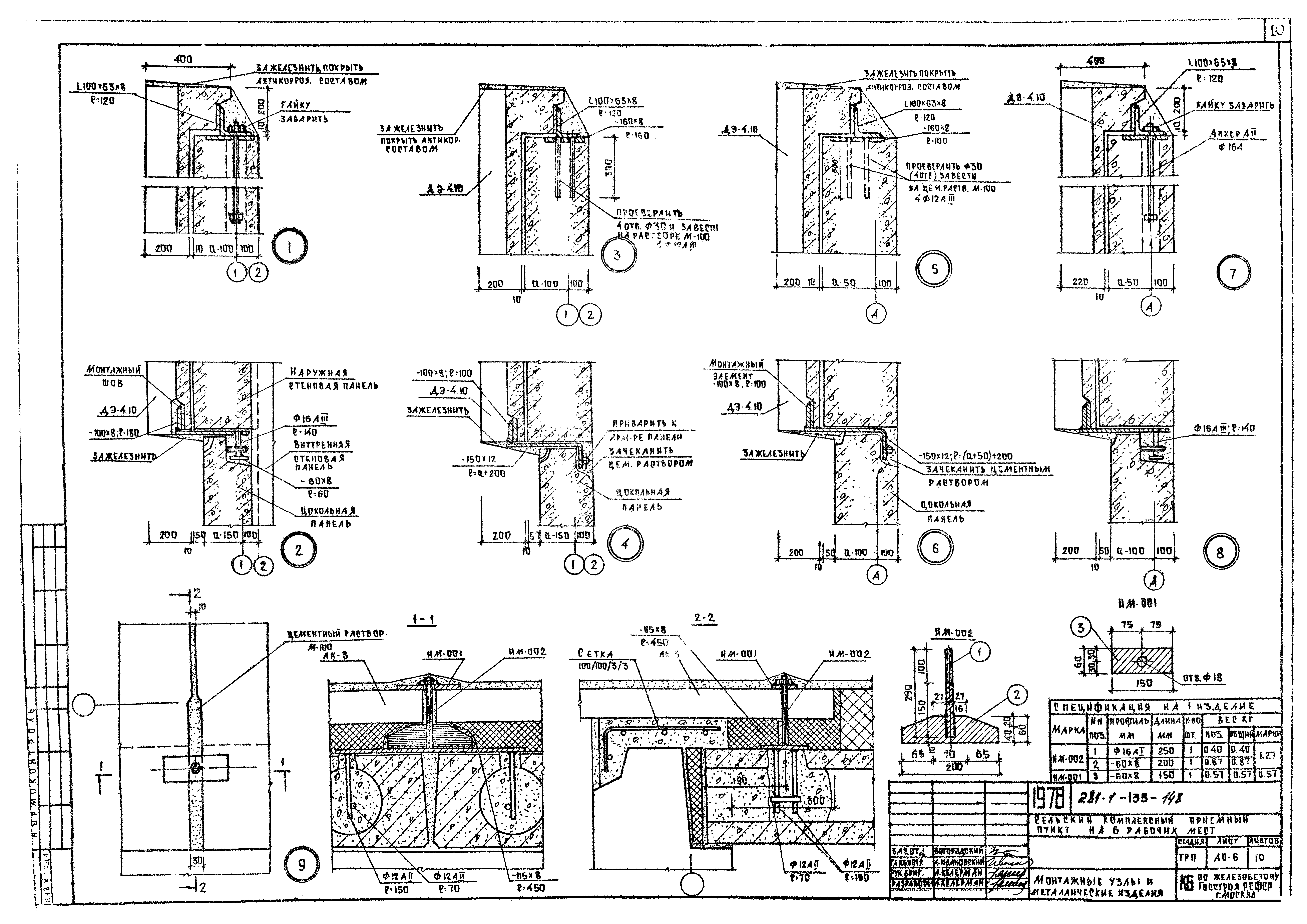
| Оглавление: | Заглавный лист Характеристика проекта План фундаментов, план раскладки цокольных панелей. Развертки Вход №1 и вход №2 План 1 этажа. Фасады, разрезы Ведомость отделочных работ. Спецификация столярных изделий Монтажный план, монтажные фасады. План покрытия Монтажные узлы Спецификация железобетонных изделий ниже отм. 0.000. Спецификация металла Спецификация железобетонных изделий выше отм. 0.000 Спецификация металла выше отм. 0.000 |
| Разработан: | Гипробытпром КБ по железобетону Госстроя РСФСР |
| Утверждён: | 27.08.1979 Минбытпром РСФСР (339) |















