Скачать Типовой проект 501-5 Часть III. Раздел 6А. Пролетные строения для автодорожных и городских мостов и путепроводов. Нормали конструктивных деталей пролетных строений автодорожных и городских мостов. Проезжая часть, водопровод, тротуары, перилаДата актуализации: 01.01.2021
|
| Обозначение: | Типовой проект 501-5 |
| Обозначение англ: | 501-5 |
| Статус: | действует |
| Название рус.: | Часть III. Раздел 6А. Пролетные строения для автодорожных и городских мостов и путепроводов. Нормали конструктивных деталей пролетных строений автодорожных и городских мостов. Проезжая часть, водопровод, тротуары, перила |
| Дата добавления в базу: | 01.09.2013 |
| Дата актуализации: | 01.01.2021 |
| Дата введения: | 01.09.1965 |
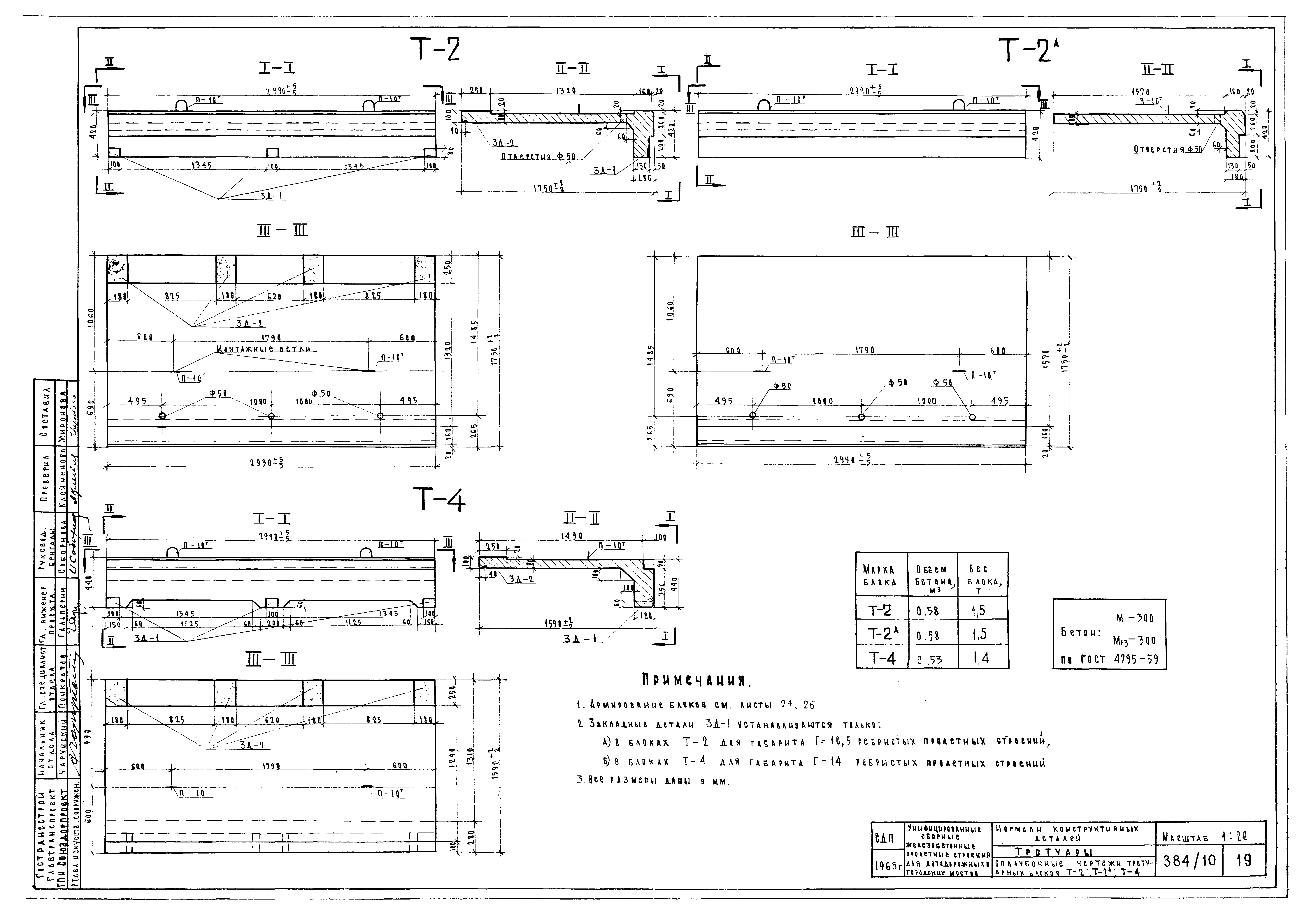
| Оглавление: | Пояснения Проезжая часть Плитные пролетные строения при габаритах Г-7, Г-8, Г-9, Г-10,5 и тротуарах 1,0 и 1,5 м Плитные пролетные строения при габаритах Г-14, Г-21 и тротуарах 2,25 и 3,0 м Плитные пролетные строения при габаритах Г-14, Г-21 с трамвайным полотном Ребристые пролетные строения при габаритах Г-7, Г-8, Г-9, Г-10,5 и тротуарах 1,0 и 1,5 м Ребристые полётные строения при габаритах Г-14, Г-21 и тротуарах 2,25 и 3,0 м Ребристые полётные строения при габаритах Г-14, Г-21 с трамвайным полотном Водоотвод Схема продольного водоотвода Схема разбивки водоотводных трубок поперек моста Детали установки водоотводных трубок поперек моста Конструкция водоотводных устройств Тротуары Опалубочные чертежи тротуарных блоков Т-1, Т-1а и Т-3 Опалубочные чертежи тротуарных блоков Т-2, Т-2а и Т-4 Опалубочные чертежи тротуарных блоков Т-11, Т-11а и Т-31 Опалубочные чертежи тротуарных блоков Т-21, Т-21а и Т-41 Опалубочные чертежи тротуарных блоков Т-1вод, Т-1а вод и Т-2вод и Т-2а вод Армирование тротуарных блоков Т-1 и Т-1а Армирование тротуарных блоков Т-2 и Т-2а Армирование тротуарного блока Т-3 Армирование тротуарного блока Т-4 Армирование тротуарных блоков Т-11 и Т-11а Армирование тротуарных блоков Т-21 и Т-21а Армирование тротуарного блока Т-31 Армирование тротуарного блока Т-41 Армирование тротуарных блоков Т-1вод и Т-1а вод Армирование тротуарных блоков Т-2вод и Т-2а вод Конструкция подтротуарной балки Закладные детали в тротуарных блоках при плитных пролетных строениях Закладные детали в тротуарных блоках при ребристых пролетных строениях Закладная деталь ЗД-Л и крышка люка Перила Конструкция блока перильного ограждения ПО |
| Разработан: | ГПИ Союздорпроект |
| Утверждён: | 06.05.1965 Государственный производственный комитет по транспортному строительству (110) |



































