Скачать Серия 1.420.1-14 Выпуск 2. Железобетонные капители, межколонные и пролетные плитыДата актуализации: 01.01.2021
|
| Обозначение: | Серия 1.420.1-14 |
| Обозначение англ: | Series 1.420.1-14 |
| Статус: | заменен |
| Название рус.: | Выпуск 2. Железобетонные капители, межколонные и пролетные плиты |
| Дата добавления в базу: | 01.09.2013 |
| Дата актуализации: | 01.01.2021 |
| Дата введения: | 01.01.1981 |
| Дата окончания срока действия: | 01.04.1990 |
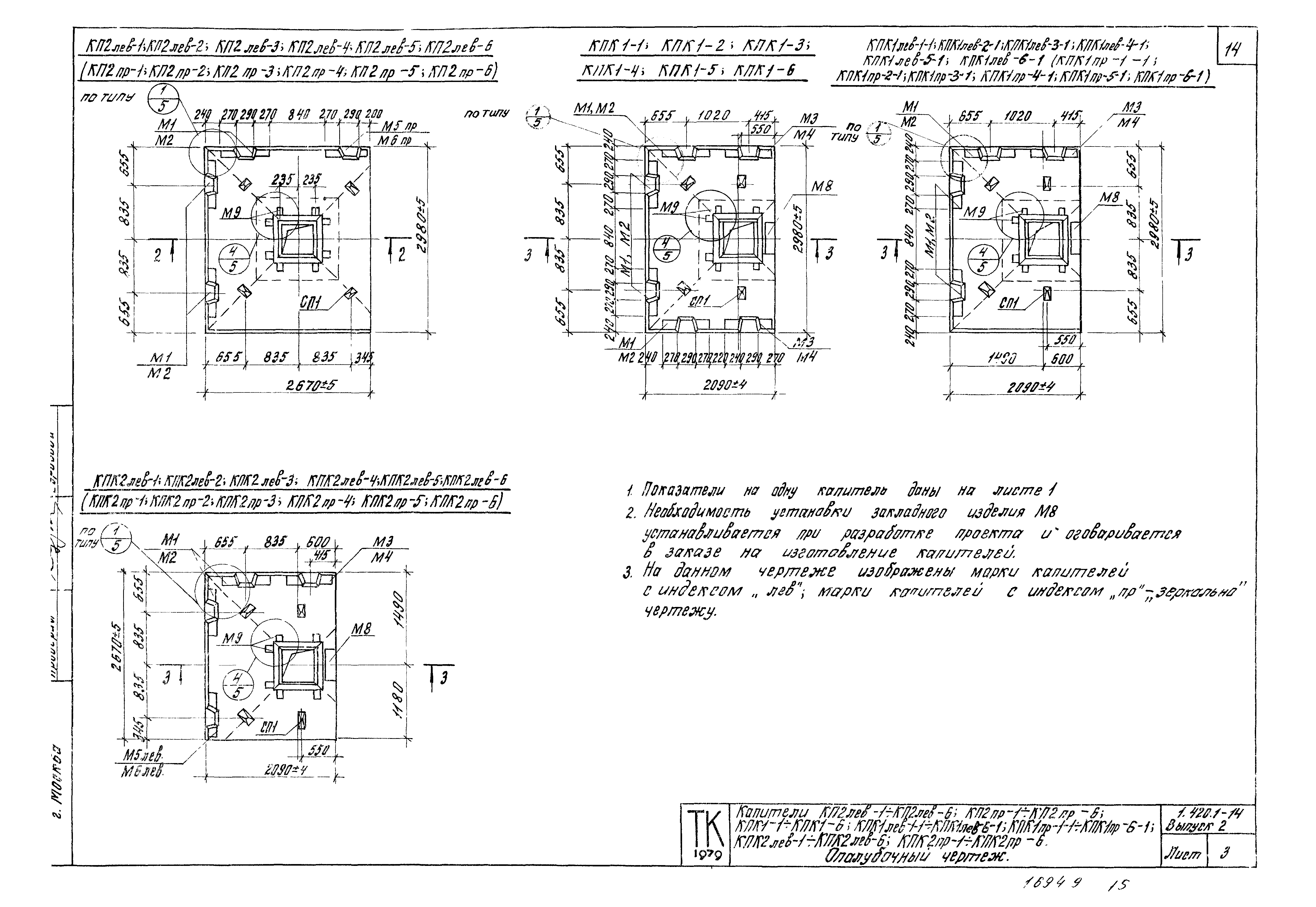
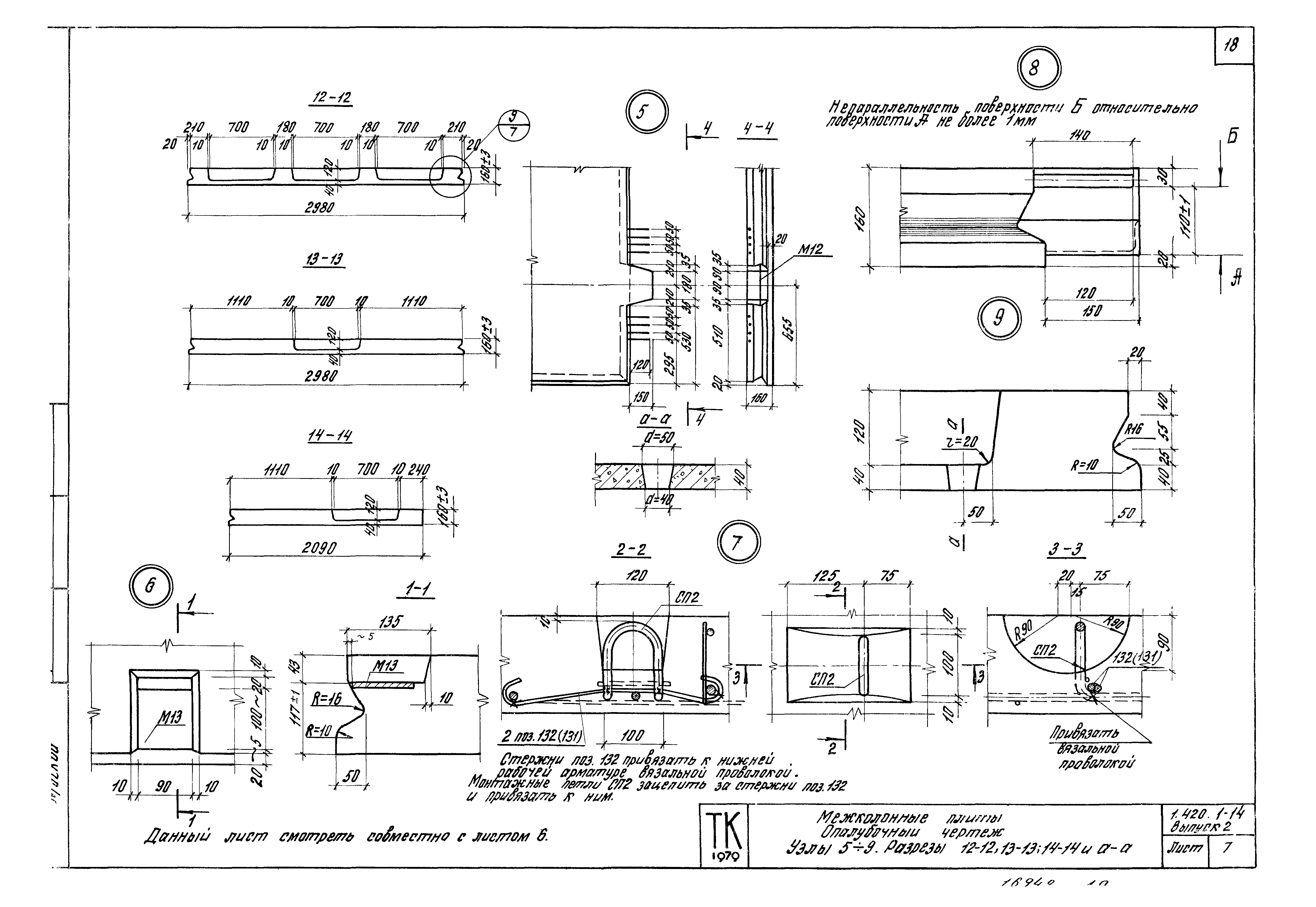
| Оглавление: | Пояснительная записка Показатели на один элемент Капители. Опалубочные чертежи Межколонные плиты. Опалубочные чертежи Пролетные плиты. Опалубочные чертежи Капители. Армирование Межколонные плиты. Армирование Пролетные плиты. Армирование Капители. Пространственные каркасы Межколонные плиты. Пространственные каркасы Пролетные плиты. Пространственные каркасы Сетки и каркасы Составные позиции СП1 - СП6 Закладные изделия Заготовительные чертежи отдельных позиций. Спецификация стали на одну позицию Спецификация арматурных и закладных изделий на альбом Выборка стали на элемент Примеры расположения отверстий и вырезов в капителях |
| Разработан: | ЦНИИпромзданий НИИЖБ |
| Утверждён: | 04.09.1980 Госстрой СССР (Государственный комитет Совета Министров СССР по делам строительства) (USSR Gosstroy 138) |
| Заменяет собой: | |
| Чем заменён: |








































































































































