Скачать Серия 1.420-4 Выпуск 3/75. Железобетонные капители, надколонные и пролетные плитыДата актуализации: 01.01.2021
|
| Обозначение: | Серия 1.420-4 |
| Обозначение англ: | Series 1.420-4 |
| Статус: | заменен |
| Название рус.: | Выпуск 3/75. Железобетонные капители, надколонные и пролетные плиты |
| Дата добавления в базу: | 01.10.2014 |
| Дата актуализации: | 01.01.2021 |
| Дата введения: | 13.03.1979 |
| Дата окончания срока действия: | 01.01.1981 |
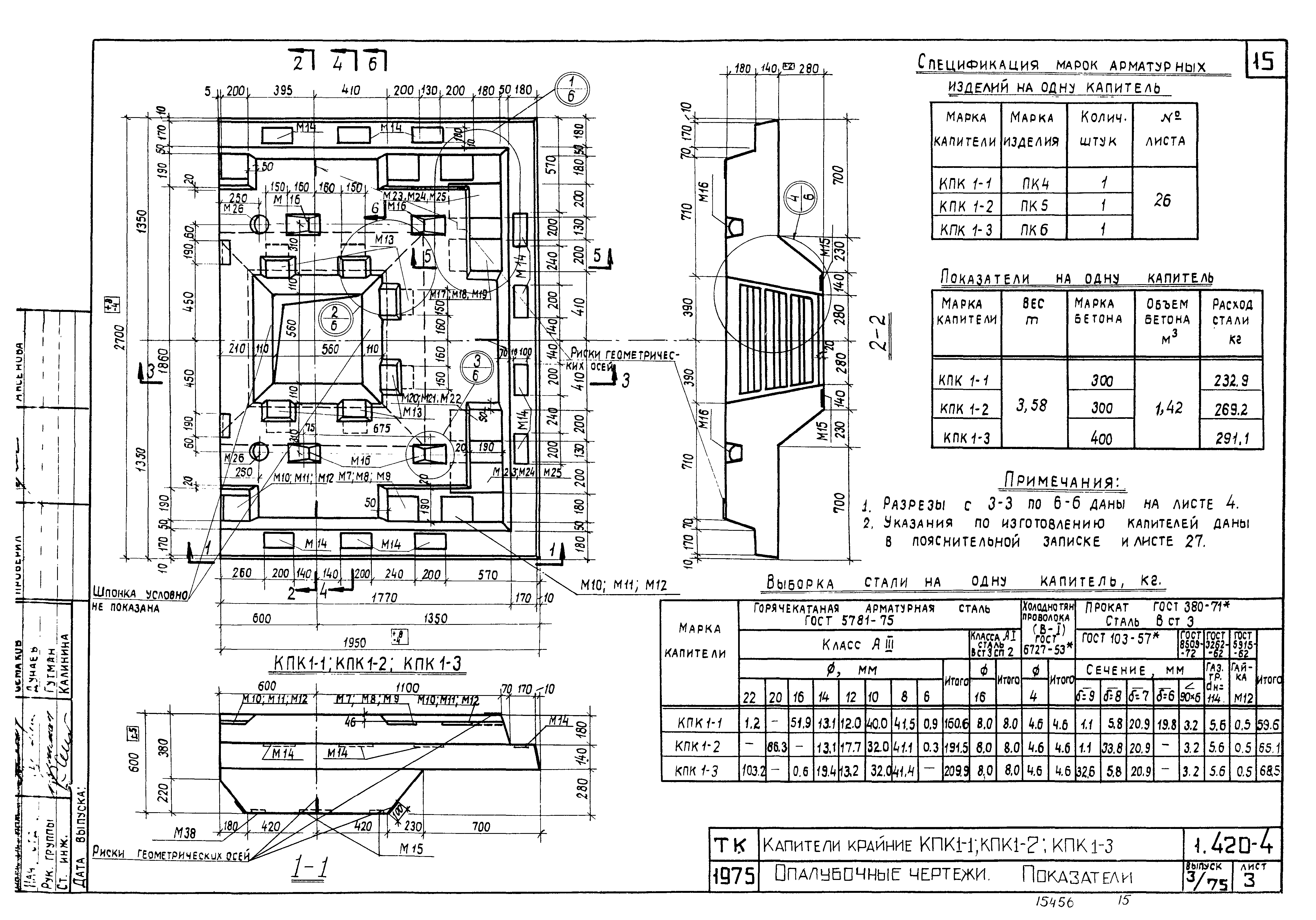
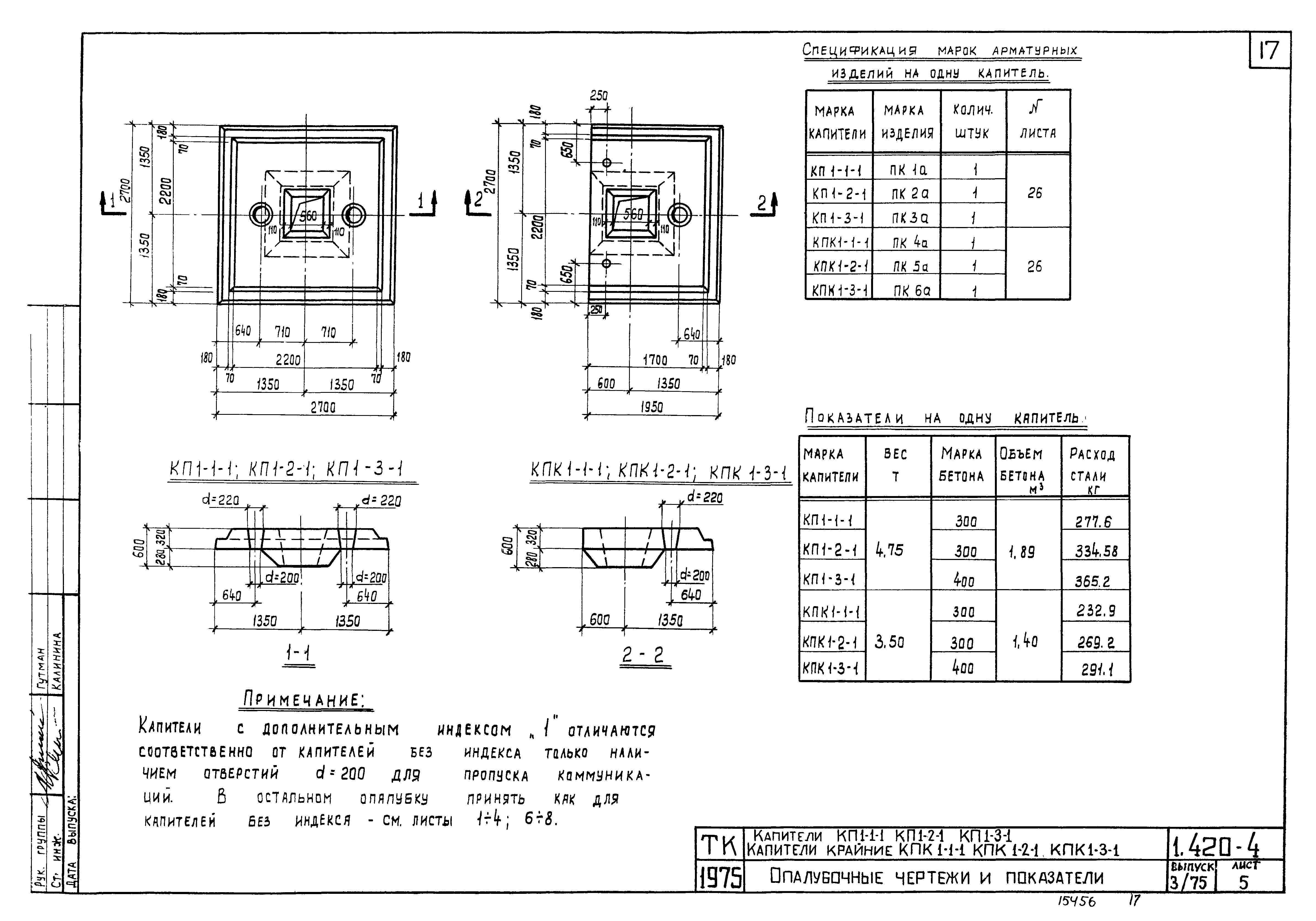
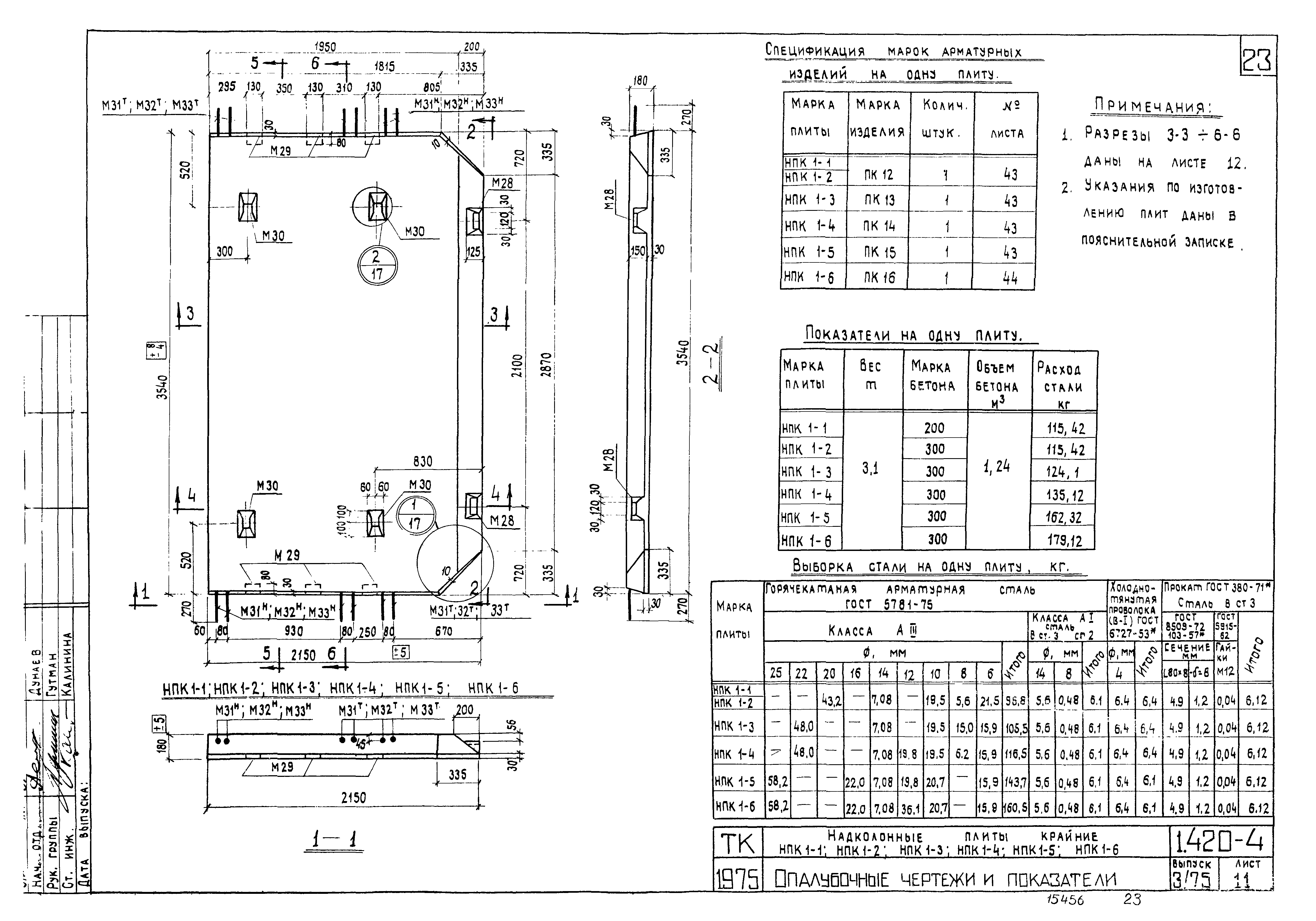
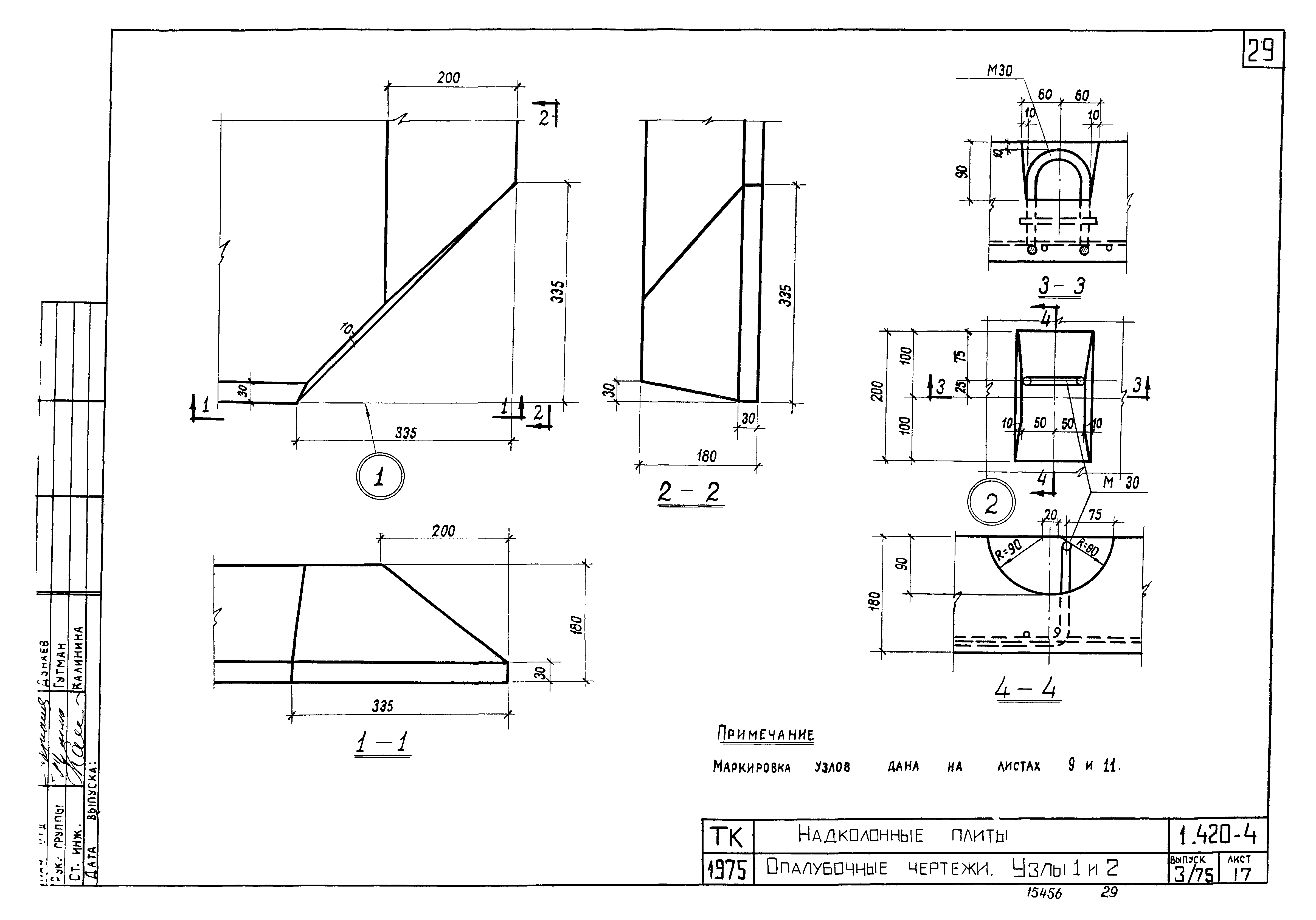
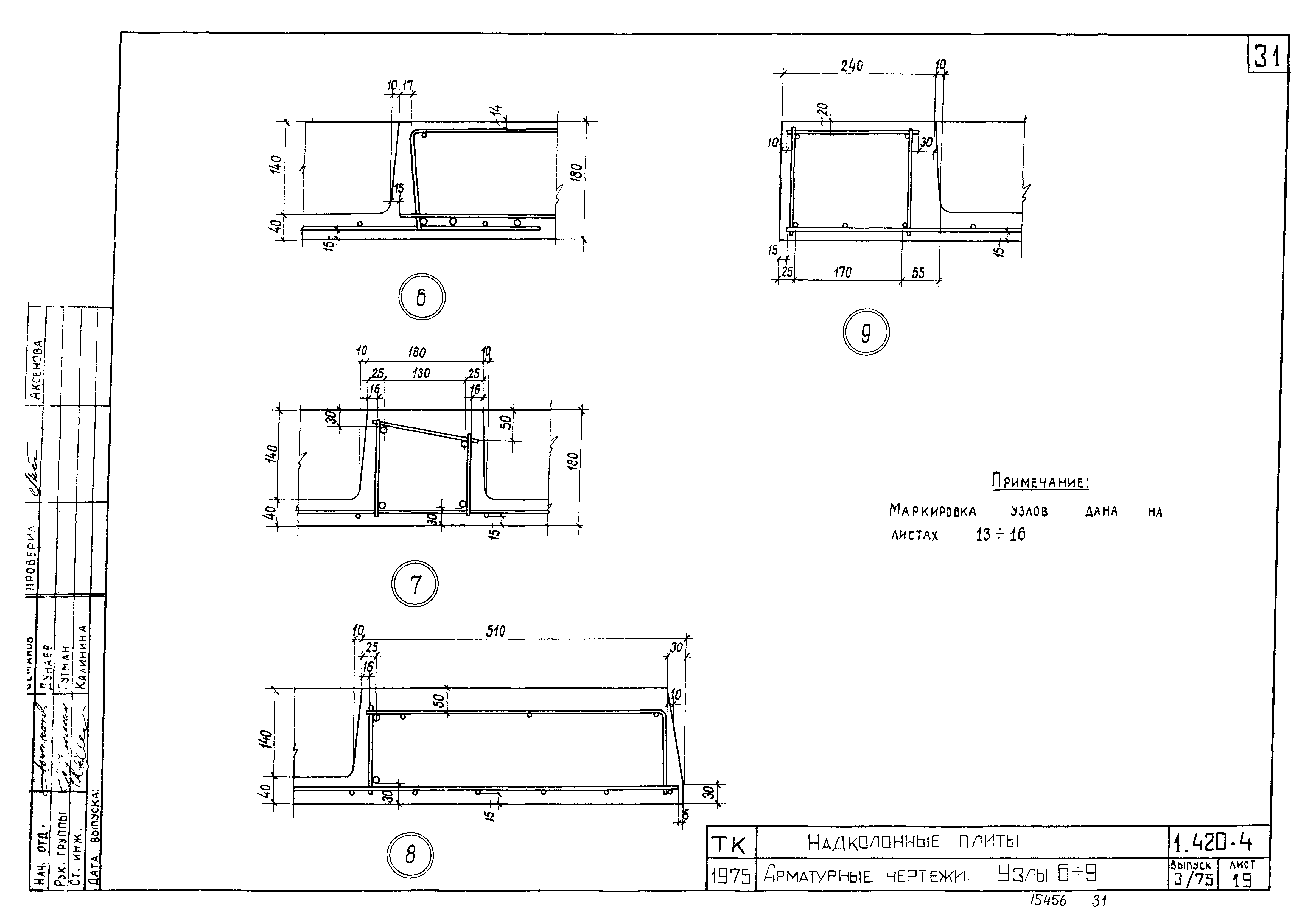
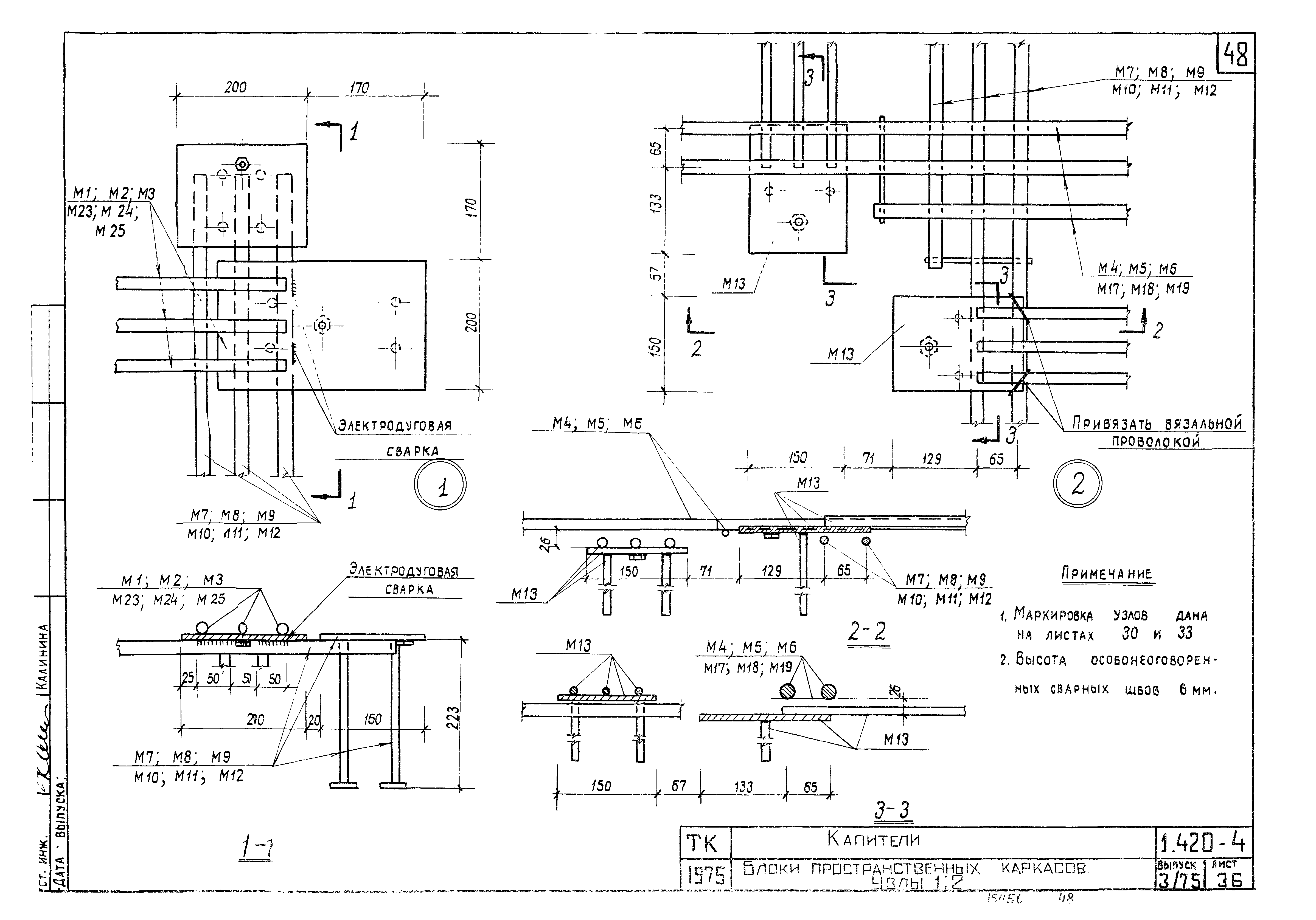
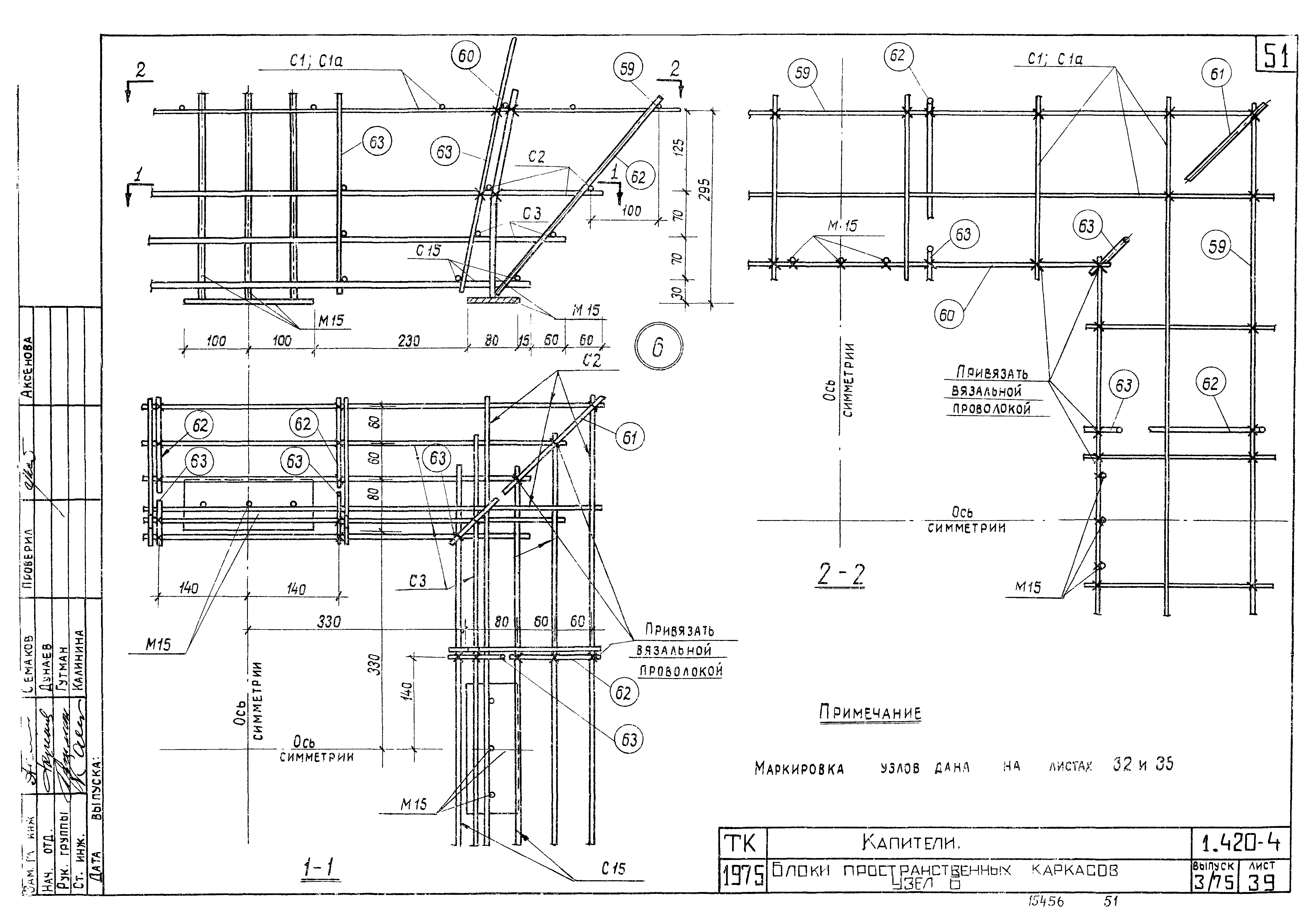
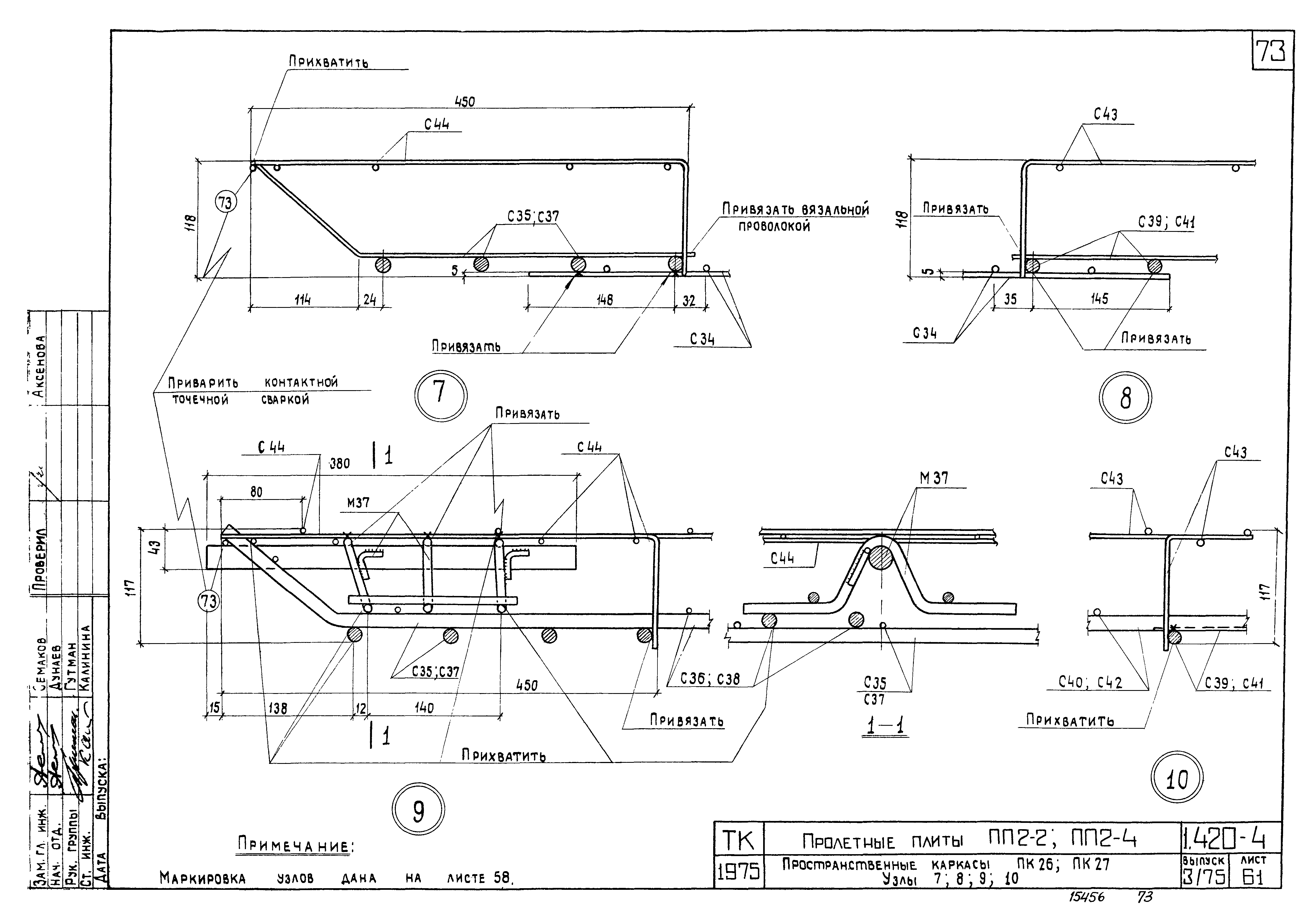
| Оглавление: | Пояснительная записка Капители КП1-1, КП1-2, КП1-3. Опалубочные чертежи и показатели Капители КП1-1, КП1-2, КП1-3. Арматурные чертежи. Разрезы 3-3, 6-6 Капители крайние КПК1-1, КПК1-2, КПК1-3. Опалубочные чертежи. Показатели Капители крайние КПК1-1, КПК1-2, КПК1-3. Арматурные чертежи. Разрезы 3-3, 6-6 Капители КП1-1-1, КП1-2-1, КП1-3-1. Капители крайние КПК1-1-1, КПК1-2-1, КПК1-3-1. Опалубочные чертежи и показатели Капители. Опалубочные чертежи. Узлы Капители. Арматурные чертежи. Узлы 1, 2 Капители. Арматурные чертежи. Узлы 3, 4, 5 Надколонные плиты НП1-1, НП1-2, НП1-3, НП1-4, НП1-5, НП1-6. Опалубочные чертежи и показатели Надколонные плиты НП1-1, НП1-2, НП1-3, НП1-4, НП1-5, НП1-6. Арматурные чертежи. Разрезы 3-3 - 6-6 Надколонные плиты крайние НПК1-1, НПК1-2, НПК1-3, НПК1-4, НПК1-5, НПК1-6. Опалубочные чертежи и показатели Надколонные плиты крайние НПК1-1, НПК1-2, НПК1-3, НПК1-4, НПК1-5, НПК1-6. Арматурные чертежи. Разрезы 3-3 - 6-6 Надколонные плиты НП2-2, НП2-4. Опалубочные чертежи и показатели Надколонные плиты НП2-2, НП2-4. Арматурные чертежи. Разрезы 3-3 - 6-6 Надколонные плиты крайние НПК2-2, НПК2-4. Опалубочные чертежи и показатели Надколонные плиты крайние НПК2-2, НПК2-4. Арматурные чертежи. Разрезы 3-3 - 6-6 Надколонные плиты. Опалубочные чертежи. Узлы 1 и 2 Надколонные плиты. Арматурные чертежи. Узлы 1 - 5 Надколонные плиты. Арматурные чертежи. Узлы 6 - 9 Пролетные плиты ПП1-1, ПП1-2, ПП1-3, ПП1-4, ПП1-5, ПП1-6. Опалубочные чертежи и показатели Пролетные плиты ПП1-1, ПП1-2, ПП1-3, ПП1-4, ПП1-5, ПП1-6. Арматурные чертежи. Разрезы 2-2 - 6-6 Пролетные плиты ПП2-2, ПП2-4. Опалубочные чертежи и показатели Пролетные плиты ПП2-2, ПП2-4. Арматурные чертежи. Разрезы 2-2 - 7-7 Пролетные плиты. Опалубочные чертежи. Узлы 1 - 6 Пролетные плиты. Арматурные чертежи. Узлы 7 - 14 Капители. Схемы пространственных каркасов ПК1, ПК1а, ПК2, ПК2а, ПК3, ПК3а, ПК4, ПК4а, ПК5, ПК5а, ПК6, ПК6а. Спецификация марок блоков Капители. Схемы сборки пространственных каркасов ПК1, ПК1а, ПК2, ПК2а, ПК3, ПК3а. Общие указания по сборке Капители. Схемы сборки пространственных каркасов ПК4, ПК4а, ПК5, ПК5а, ПК6, ПК6а. Общие указания по сборке Капители. Схема сборки. Узлы 1, 2 Капители. Блоки пространственных каркасов БПК1, БПК4, БПК5, БПК1а, БПК4а, БПК5а Капители. Блок пространственного каркаса БПК2 Капители. Блоки пространственных каркасов БПК3, БПК3а Капители. Блоки пространственных каркасов БПК6, БПК9, БПК10, БПК6а, БПК9а, БПК10а Капители. Блок пространственного каркаса БПК7 Капители. Блоки пространственных каркасов БПК8, БПК8а Капители. Блоки пространственных каркасов. Узлы 1, 2 Капители. Блоки пространственных каркасов. Узлы 3, 4, 8 Капители. Блоки пространственных каркасов. Узел 5 Капители. Блоки пространственных каркасов. Узел 6 Капители. Блоки пространственных каркасов. Узел 7 Надколонные плиты НП1-1 - НП1-5. Пространственные каркасы ПК7, ПК8, ПК9, ПК10 Надколонная плита НП1-6. Пространственный каркас ПК11 Надколонные плиты крайние НПК1-1, НПК1-2, НПК1-3, НПК1-4, НПК1-5. Пространственные каркасы ПК12, ПК13, ПК14, ПК15 Надколонная плита крайняя НПК1-6. Пространственный каркас ПК16 Надколонные плиты НП2-2 - НП2-4. Пространственные каркасы ПК17, ПК18. Планы Надколонные плиты НП2-2 - НП2-4. Пространственные каркасы ПК17, ПК18. Разрезы 3-3 - 6-6 Надколонные плиты крайние НПК2-2 - НПК2-4. Пространственные каркасы ПК19, ПК20 Надколонные плиты. Пространственные каркасы. Узлы 1, 2 Надколонные плиты. Пространственные каркасы ПК7 - ПК10, ПК12 - ПК15. Узлы 3, 4 Надколонные плиты НП1-6, НПК1-6. Пространственные каркасы ПК11, ПК16. Узлы 5, 6, 7 Надколонные плиты. Пространственные каркасы ПК17 - ПК20. Узлы 8, 9 Надколонные плиты. Пространственные каркасы ПК17 - ПК20. Узлы 10, 11 Надколонные плиты. Пространственные каркасы ПК17 - ПК20. Узлы 12, 13, 14, 15 Пролетные плиты ПП1-1, ПП1-2. Пространственный каркас ПК21 Пролетные плиты ПП1-3, ПП1-4, ПП1-5, ПП1-6. Пространственные каркасы ПК-22, ПК-23, ПК-24, ПК-25 Пролетные плиты ПП2-2, ПП2-4. Пространственные каркасы ПК-26, ПК-27. План по 1-1 Пролетные плиты ПП2-2, ПП2-4. Пространственные каркасы ПК-26, ПК-27. План по 2-2 Пролетные плиты ПП2-2, ПП2-4. Пространственные каркасы ПК-26, ПК-27. Разрезы Пролетные плиты. Пространственные каркасы ПК-21 - ПК-25. Узлы 1, 6 Пролетные плиты. Пространственные каркасы ПК-21 - ПК-25. Узлы 2, 3, 4, 5 Пролетные плиты ПП2-2, ПП2-4. Пространственные каркасы ПК-26, ПК-27. Узлы 7, 8, 9, 10 Пролетные плиты ПП2-2, ПП2-4. Пространственные каркасы ПК-26, ПК-27. Узлы 11, 12, 13, 14 Спецификация марок арматурных изделий и закладных элементов на один блок пространственного каркаса и один пространственный каркас ПК1, ПК1а, ПК2, ПК2а, ПК3, ПК3а Спецификация марок арматурных изделий и закладных элементов на один блок пространственного каркаса и один пространственный каркас ПК4, ПК4а, ПК5, ПК5а Спецификация марок арматурных изделий и закладных элементов на один блок пространственного каркаса и один пространственный каркас ПК6, ПК6а Спецификация марок арматурных изделий и закладных элементов на один пространственный каркас ПК7 - ПК15 Спецификация марок арматурных изделий и закладных элементов на один пространственный каркас ПК16 - ПК27 Сетки С1 - С8 Сетки С9 - С14 Сетки С15 - С21 Сетки С22 - С27 Сетки С28 - С33 Сетки С34 - С44 Каркас КР1 - КР7 Спецификация и выборка стали на одно арматурное изделие (сетки С1 - С15) Спецификация и выборка стали на одно арматурное изделие (сетки С16 - С33) Спецификация и выборка стали на одно арматурное изделие (сетки С34 - С44, каркасы КР1 - КР7) Спецификация отдельных стержней (поз. 56 - 72) Закладные элементы М1 - М12 Закладные элементы М13 - М16, М38 Закладные элементы М17 - М26 Закладные элементы М28 - М37 Закладные элементы. Заготовительные чертежи отдельных позиций 1, 5, 7, 14, 18, 22, 28, 30, 31, 32, 34, 71 Закладные элементы. Заготовительные чертежи отдельных позиций 35, 41, 49, 44, 45, 46, 48, 51, 66, 67, 68, 69, 55, 59, 63 Спецификация стали на один закладной элемент (М1 - М11) Спецификация стали на один закладной элемент (М12 - М26) Спецификация стали на один закладной элемент (М28 - М38) |
| Разработан: | ЦНИИпромзданий |
| Утверждён: | 13.03.1979 Госстрой СССР (Государственный комитет Совета Министров СССР по делам строительства) (USSR Gosstroy 2/3-90) |


































































































