Скачать Типовой проект 224-6-3 Альбом I. Архитектурно-строительные и технологические чертежиДата актуализации: 01.01.2021
|
| Обозначение: | Типовой проект 224-6-3 |
| Обозначение англ: | 224-6-3 |
| Статус: | не определен законодательством |
| Название рус.: | Альбом I. Архитектурно-строительные и технологические чертежи |
| Дата добавления в базу: | 01.09.2013 |
| Дата актуализации: | 01.01.2021 |
| Дата введения: | 02.10.1980 |
| Дата окончания срока действия: | 30.06.2003 |
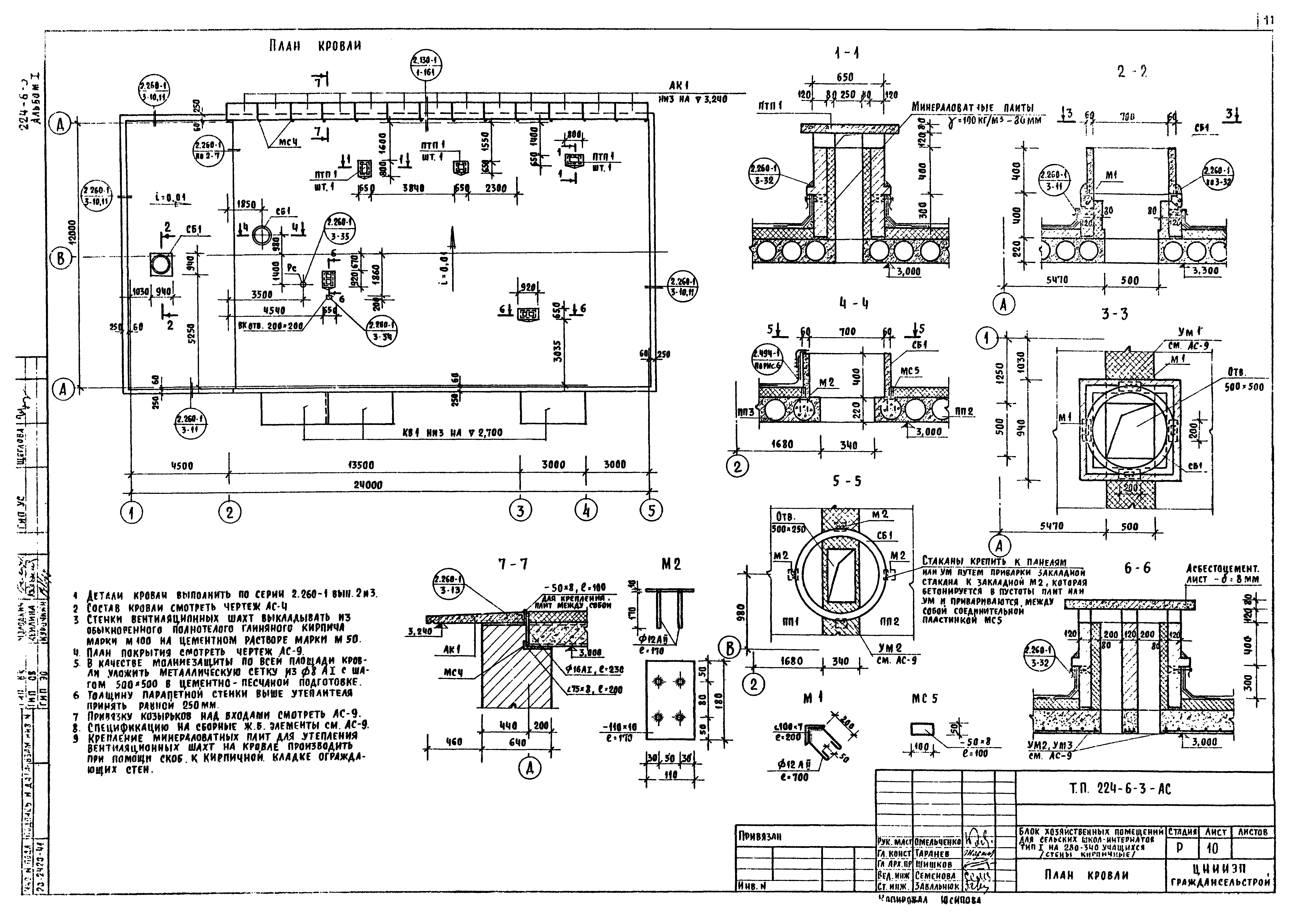
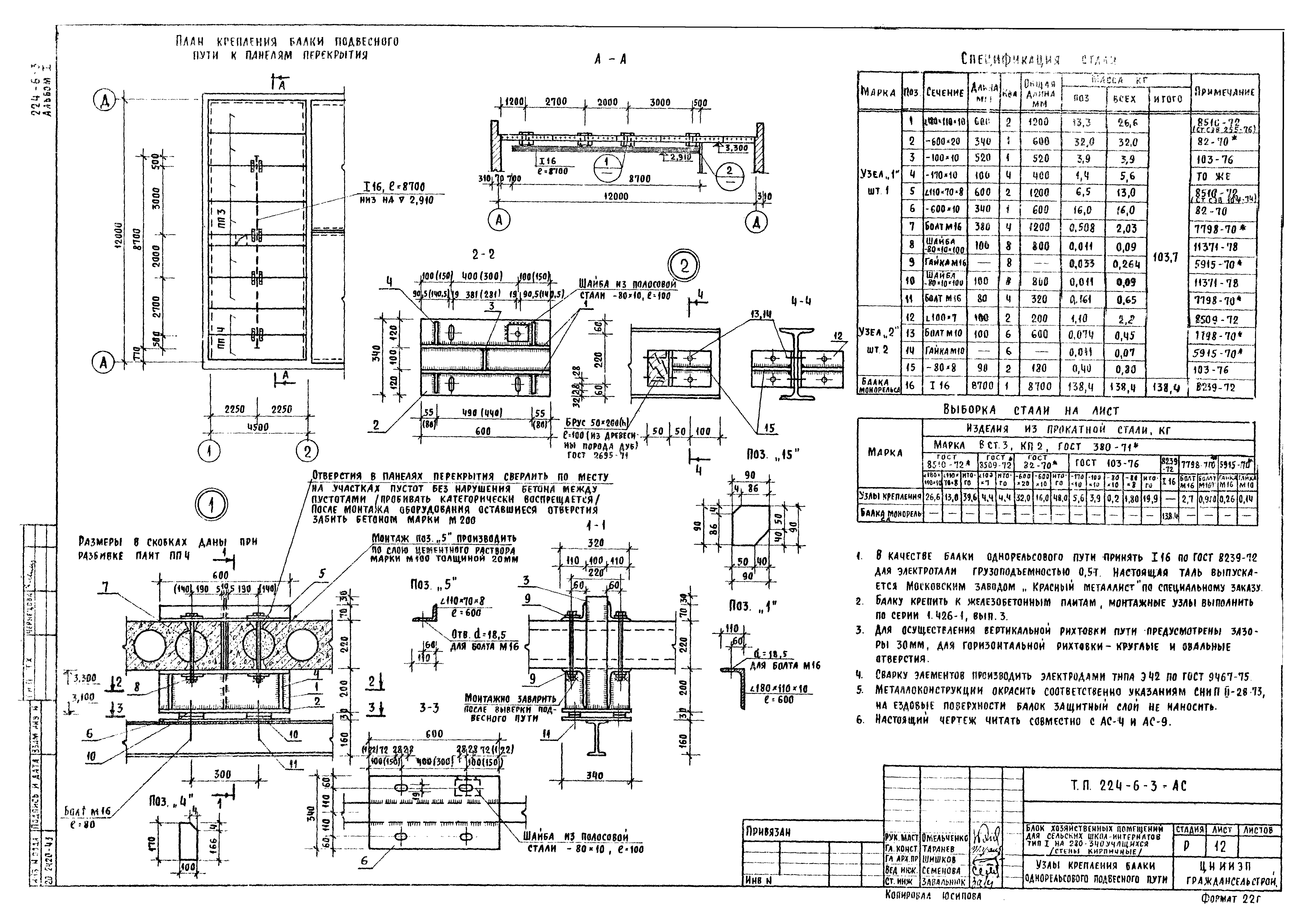
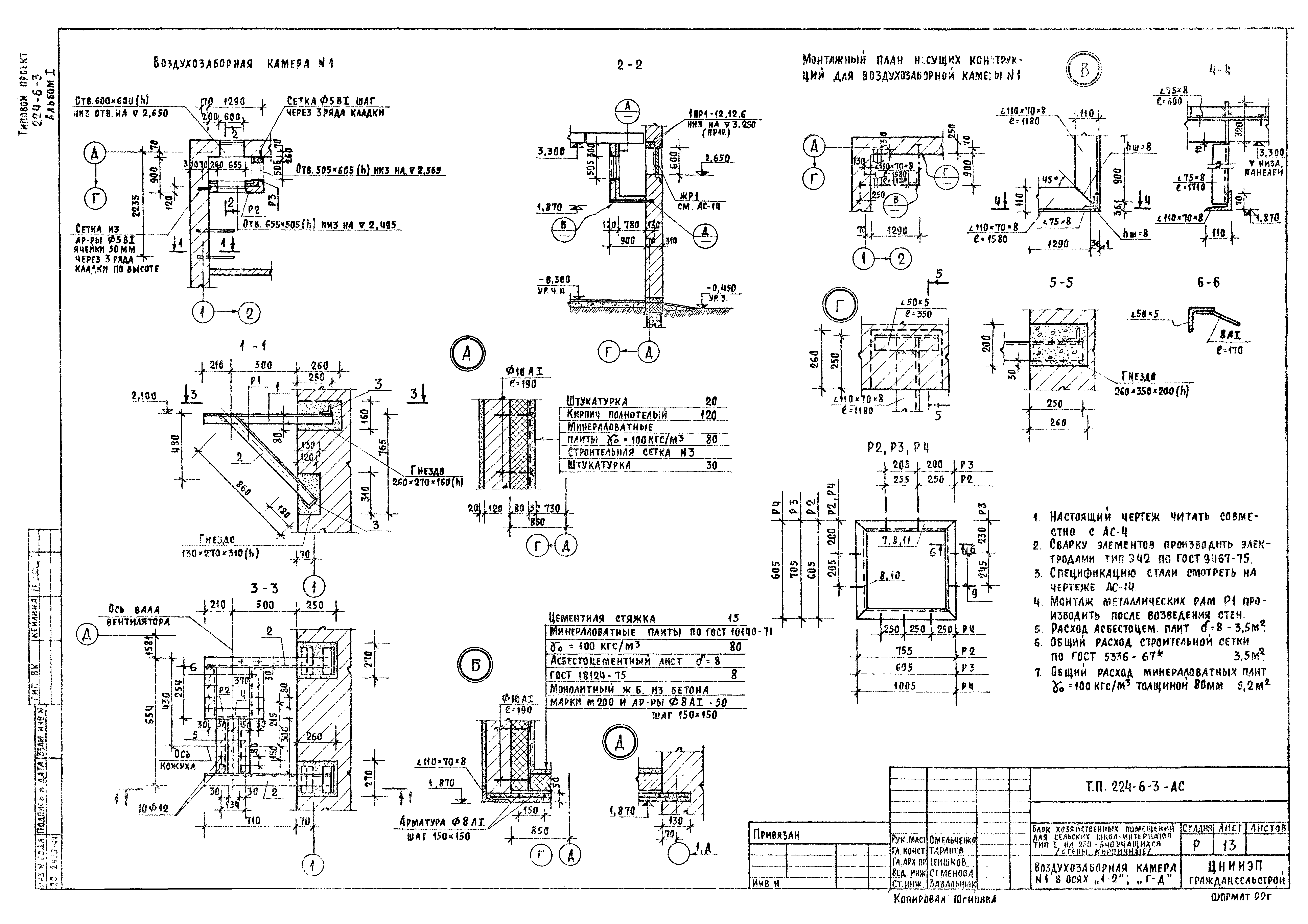
| Оглавление: | Титульный лист Чертежи архитектурно-строительные АС Заглавный лист Сводные спецификации Фасады в осях "1-5", "5-1", "А-Д", "Д-А". План. Разрезы I-I, II-II Схемы нагрузок на фундаменты. Общие примечания по фундаментам План фундаментов в подпольных каналах. Фундаменты под оборудование Ф1 - Ф4 Сечения по фундаментам и подпольным каналам Ведомость перемычек План покрытия План кровли Осмотровая канава узкого типа Узлы крепления балки однорельсового подвесного пути Воздухозаборная камера №1 в осях "1-2", "Г-Д" Венткамера в осях "4-5", "Г-Д". Декоративная решетка. Спецификация стали Ведомость примененных документов Чертежи технологические ТХ Заглавный лист. Спецификация оборудования План расстановки оборудования. Схема установки оборудования на фундаменты План с привязкой электротехнических подводов к оборудованию План с привязкой сантехнических подводов к оборудованию |
| Разработан: | ЦНИИЭП граждансельстрой |
| Утверждён: | 02.11.1979 Госгражданстрой (Gosgrazhdanstroy 236) |





















