Скачать Типовой проект 271-13-85 Альбом I. Архитектурно-строительные чертежи. Санитарно-технические чертежи. Электротехнические чертежиДата актуализации: 01.01.2021
|
| Обозначение: | Типовой проект 271-13-85 |
| Обозначение англ: | 271-13-85 |
| Статус: | действует |
| Название рус.: | Альбом I. Архитектурно-строительные чертежи. Санитарно-технические чертежи. Электротехнические чертежи |
| Дата добавления в базу: | 01.09.2013 |
| Дата актуализации: | 01.01.2021 |
| Дата введения: | 15.01.1981 |
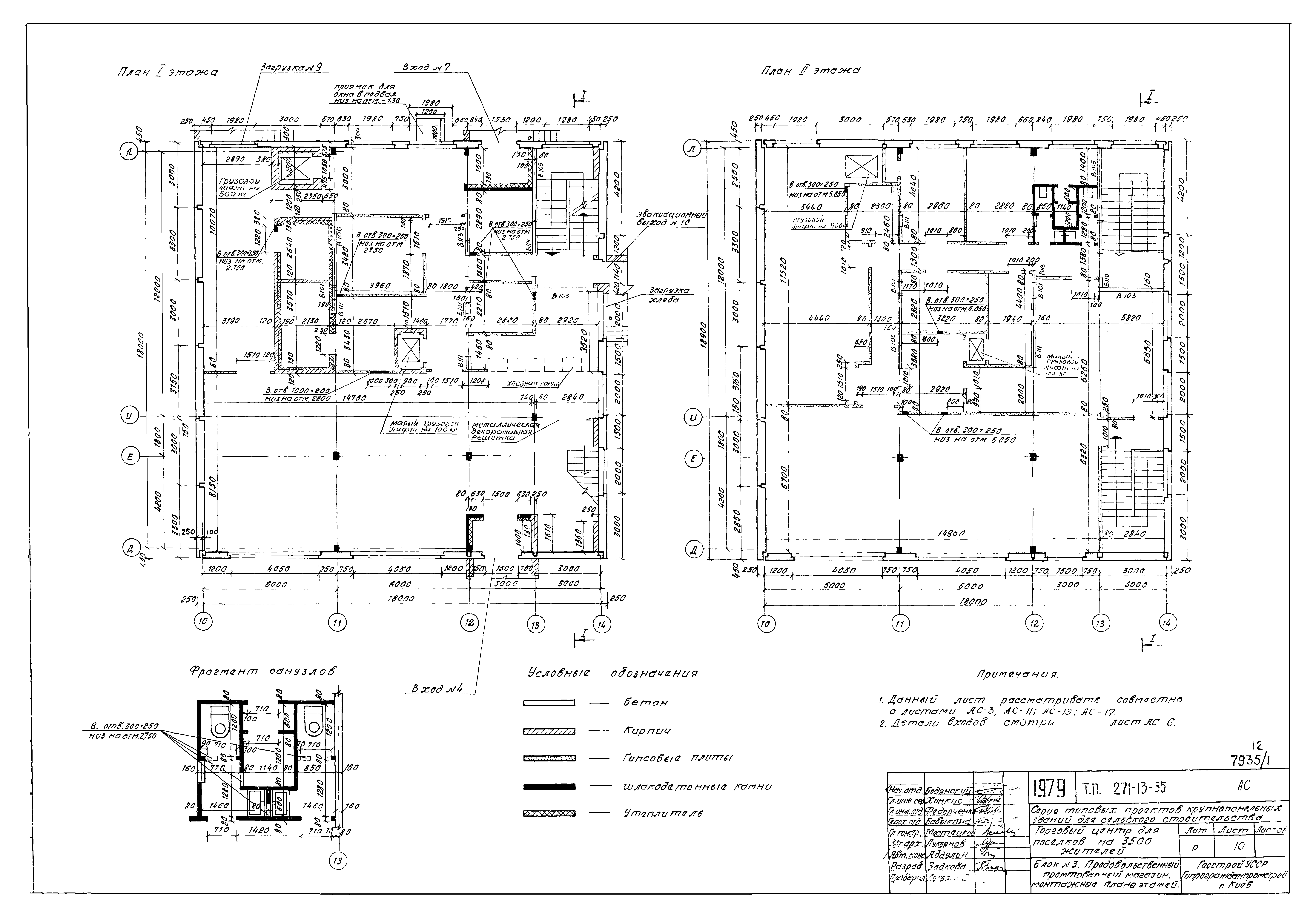
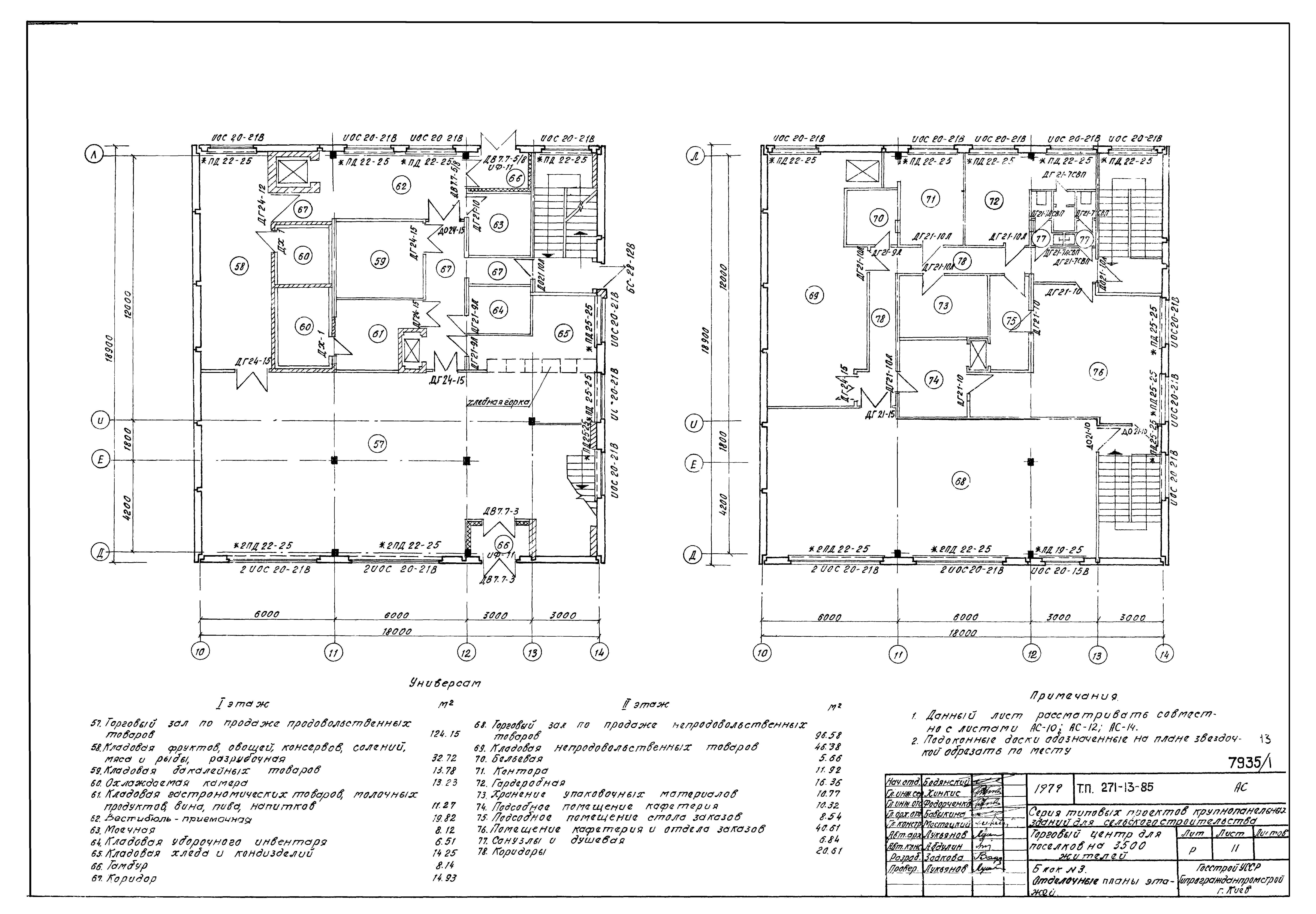
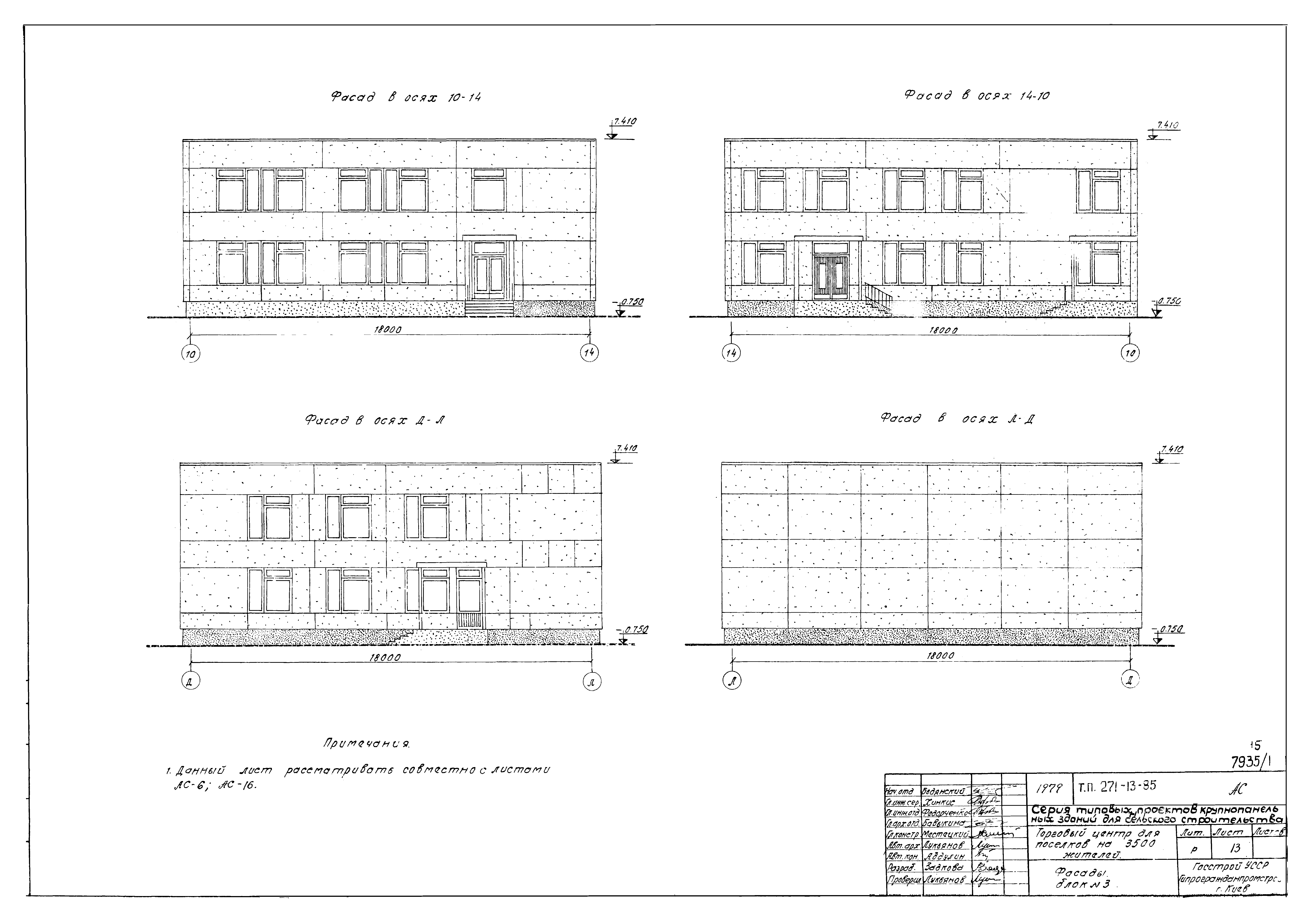
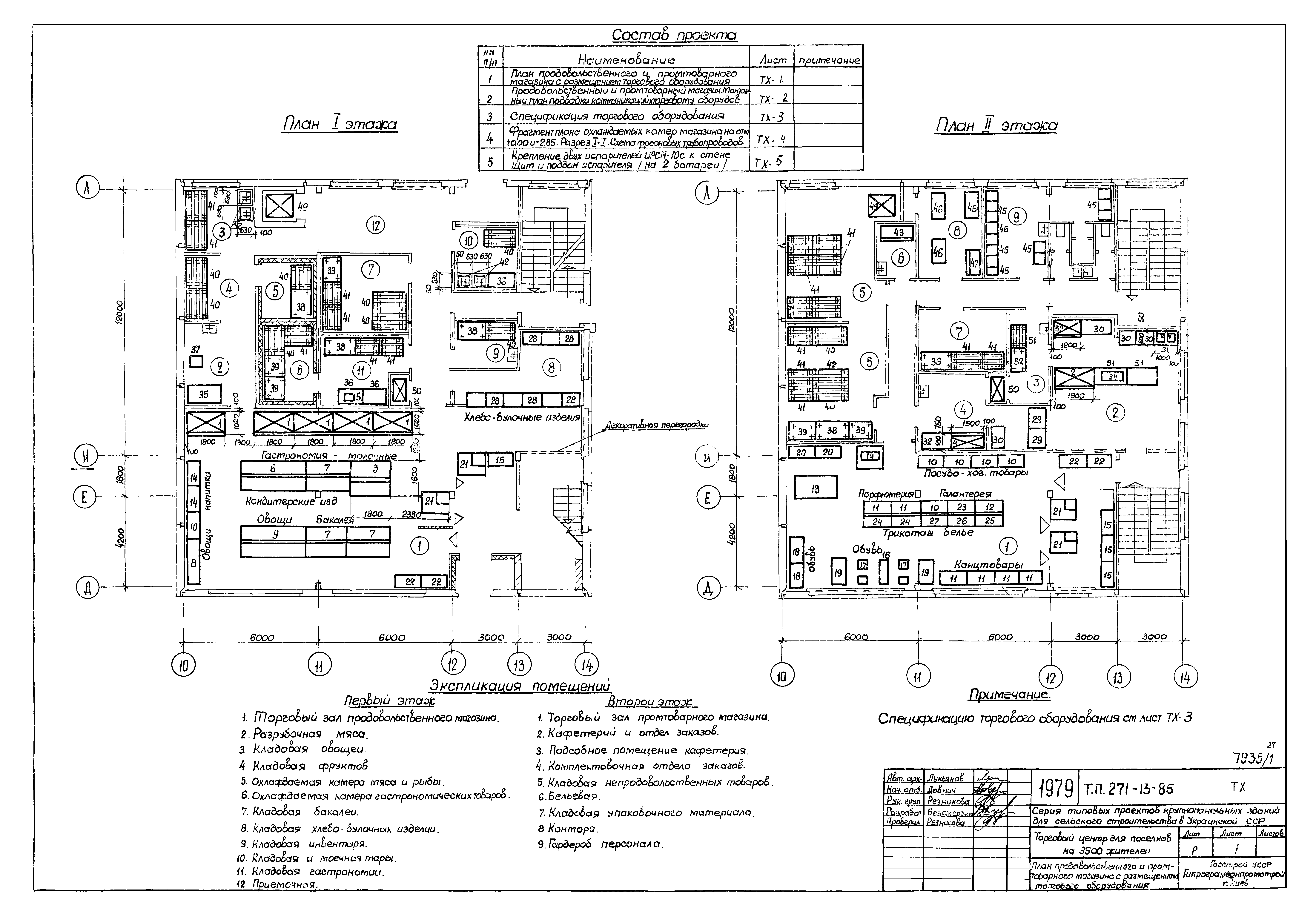
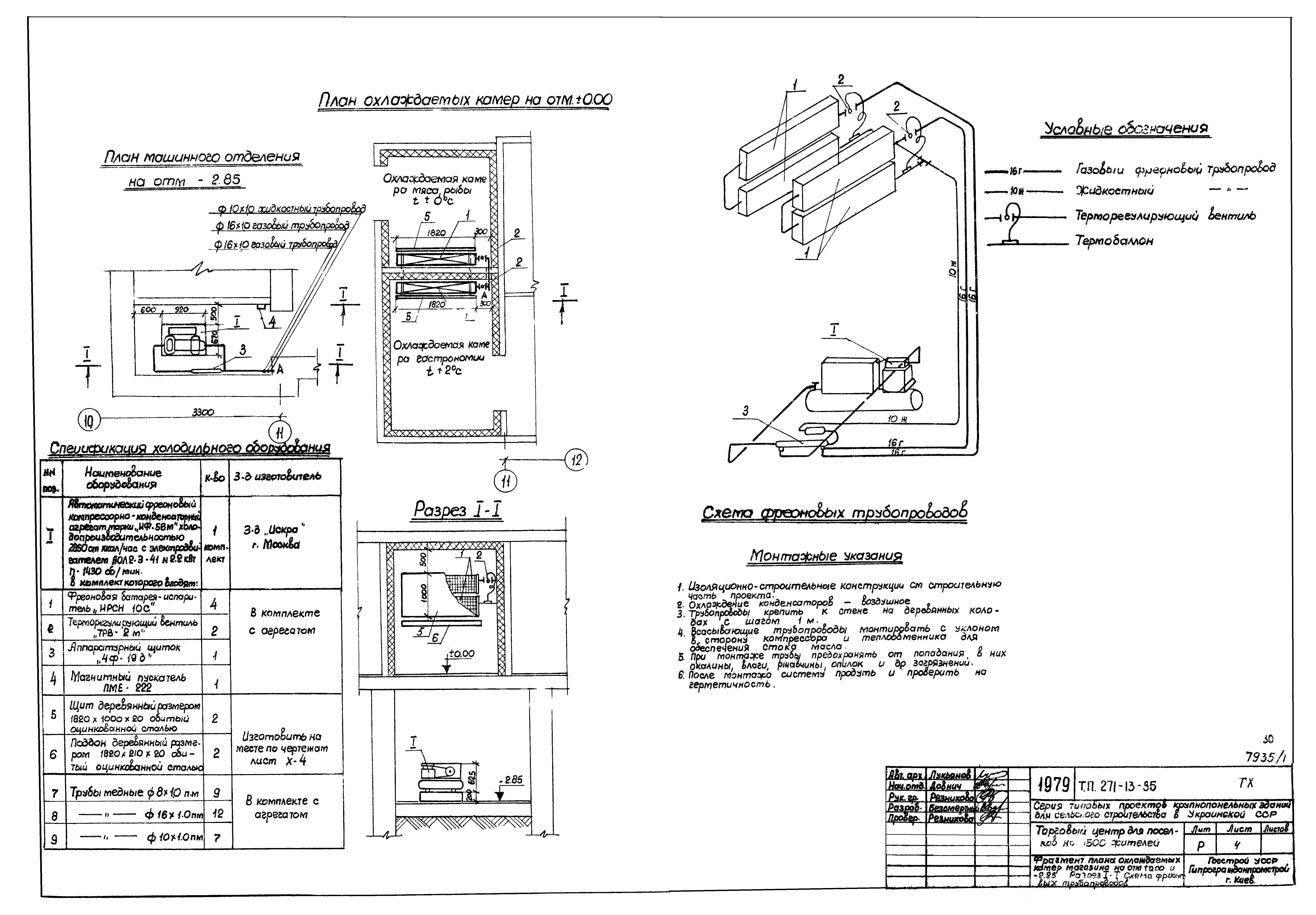
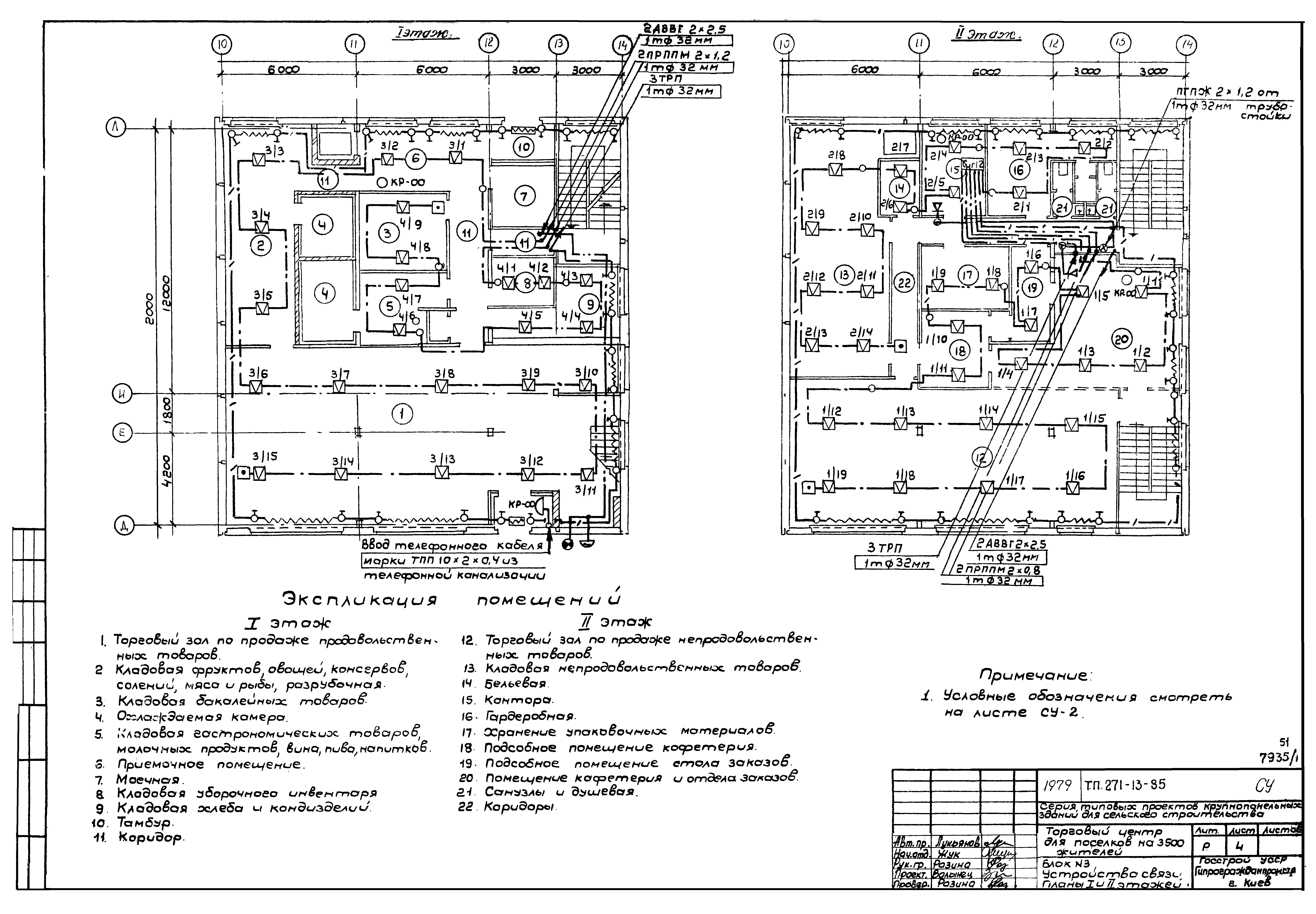
| Оглавление: | Обложка Титульный лист Чертежи основного комплекта марки АС Содержание альбома. Пояснительная записка Пояснительная записка Перечень нормативных материалов, применяемых в проекте. Условные обозначения. Состав проекта Блок 3. Экспликация помещений. Таблица технико-экономических и эксплуатационных показателей Блок 3. План подвала и лестницы в подвал Блок 3. Фрагменты входов. Планы кровли, козырьков Блок 3. План и сечения фундаментов. Спецификация Блок 3. Развертки фундаментов Блок 3. План подпольных каналов. План перекрытия над подвалом Блок 3. Продовольственный и промтоварный магазин. Монтажные планы этажей Блок 3. Отделочные планы этажей Блок 3. Разрез I-I. План кровли. Спецификация деревянных и металлических изделий Фасады. Блок 3 Блок 3. Ведомость отделочных работ Блок 3. Планы перекрытия и покрытия. Монолитные участки Блок 3. Развертки наружных стен Блок 3. Развертки внутренних стен Блок 3. Охлаждаемая камера. Изоляция междуэтажных перекрытий и стен Блок 3. Металлические решетки ДР-1, ДР-2. Вентиляционные решетки Р-1, Р-2 Блок 3. Грузовой лифт на 500 кг. Разрезы. Планы. Развертки Блок 3. Грузовой лифт на 500 кг. УМ-1. Фундаментная плита. Фундамент под лебедку Блок 3. Спецификация сборных ж/б элементов выше отм. 0.000 Пункт приема посуды и тарная Блок 3. Монолитные козырьки МК-4, МК-5 План продовольственного и промтоварного магазина с размещением торгового оборудования Продовольственный и промтоварный магазин. Монтажный план подводки коммуникаций торгового оборудования Спецификация торгового оборудования Фрагмент плана охлаждаемых камер магазина на отм. 0.000 и 2.85. Разрез I-I. Схема фрионовых трубопроводов Крепление двух испарителей ИРСН-10 к стене. Щит и поддон испарителя (на 2 батареи) Чертежи основного комплекта марки ОВ Заглавный лист Отопление и вентиляция. План подвала. Теплопотери помещений. Комплектовочная ведомость радиаторов Отопление и вентиляция. Планы I и II этажей Отопление и вентиляция. Схема системы отопления. Спецификация материалов Отопление и вентиляция. Тепловой узел НП-1. Спецификация НП-1 Чертежи основного комплекта марки ВК Водоснабжение и канализация. Пояснительная записка. Спецификация материалов Водоснабжение и канализация. Планы I и II этажей Водоснабжение и канализация. Схемы водоснабжения и канализации Чертежи основного комплекта марки ЭЛ Блок №3. Магазин. Электрооборудование. Перечень чертежей, основные показатели проекта, пояснительная записка, условные обозначения Блок №3. Магазин. Электросиловое оборудование. Схема и расчетная таблица питающих сетей. План подвала. Опросный лист ВРУ1-21 Блок №3. Магазин. Электросиловое оборудование. Планы 1-го, 2-го этажей Блок №3. Магазин. Электросиловое оборудование. Расчетная таблица сети Блок №3. Магазин. Электроосвещение. План подвала. Расчетная таблица Блок №3. Магазин. Электроосвещение. Планы 1-го, 2-го этажей Блок №3. Пункт приема посуды. План электроосвещения Блок №3. Магазин. Сводная спецификация Чертежи основного комплекта марки СУ Блок №3. Устройства связи. Технические указания Блок №3. Устройства связи. Условные обозначения, спецификация Блок №3. Устройства связи. План подвала, скелетные схемы Блок №3. Устройства связи. Планы I и II этажей Устройства связи. Шкаф аккумуляторный |
| Разработан: | Гипрогражданпромстрой Госстроя УССР |
| Утверждён: | 19.07.1978 Госстрой УССР (UkrSSR Gosstroy 44) |




















































