Скачать Типовой проект 272-14-16 Альбом V. ВитражиДата актуализации: 01.01.2021
|
| Обозначение: | Типовой проект 272-14-16 |
| Обозначение англ: | 272-14-16 |
| Статус: | действует |
| Название рус.: | Альбом V. Витражи |
| Дата добавления в базу: | 01.09.2013 |
| Дата актуализации: | 01.01.2021 |
| Дата введения: | 23.10.1981 |
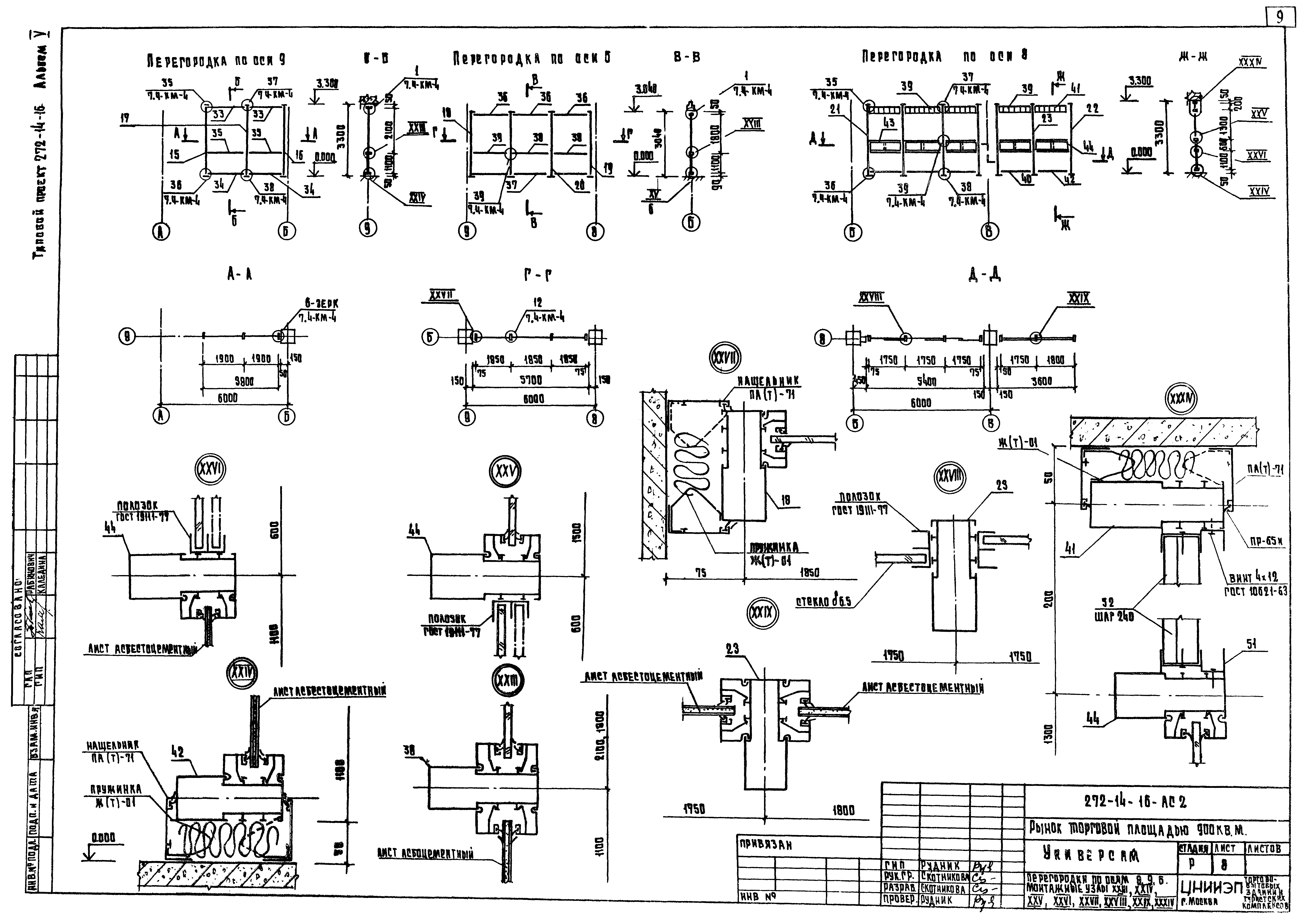
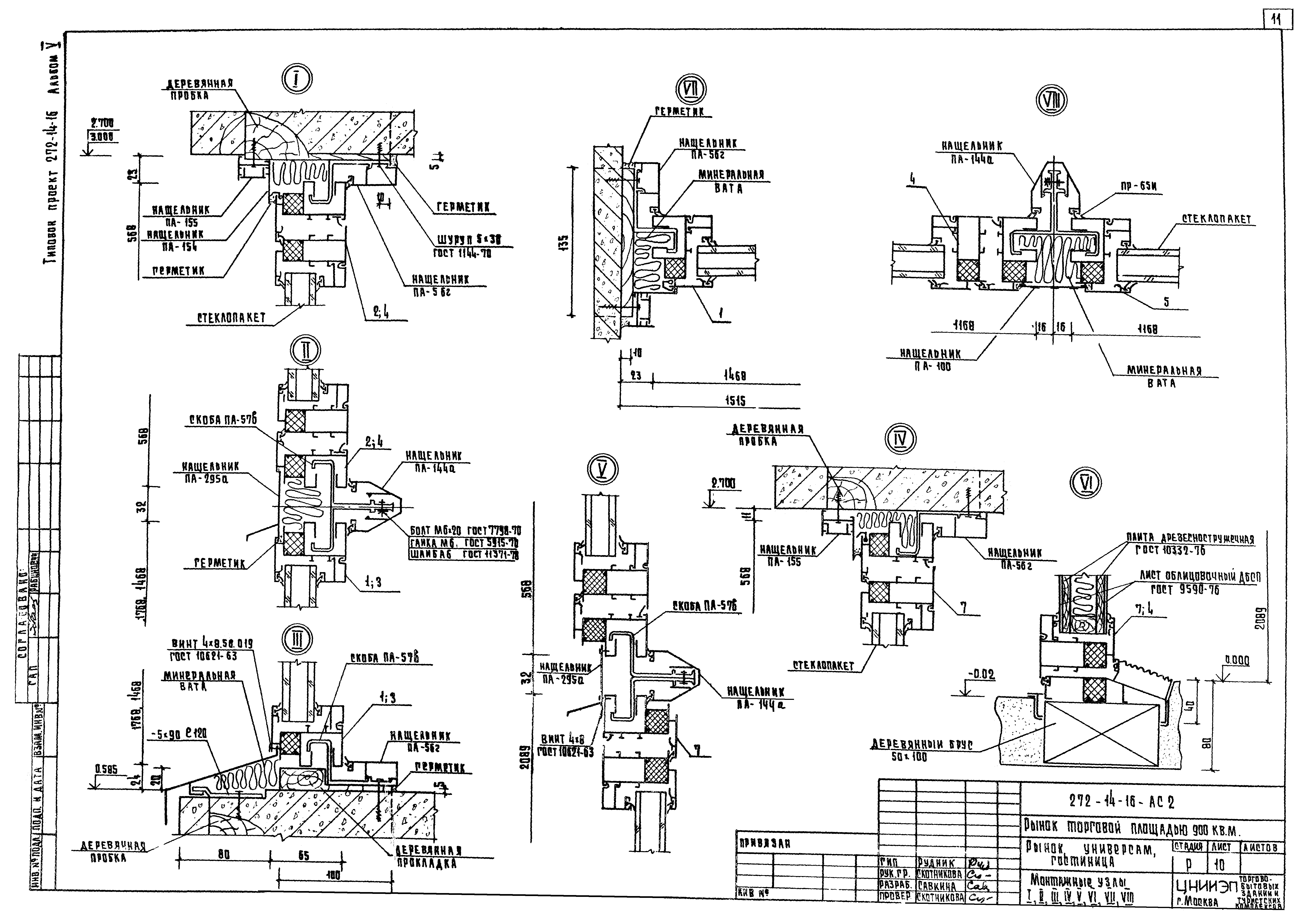
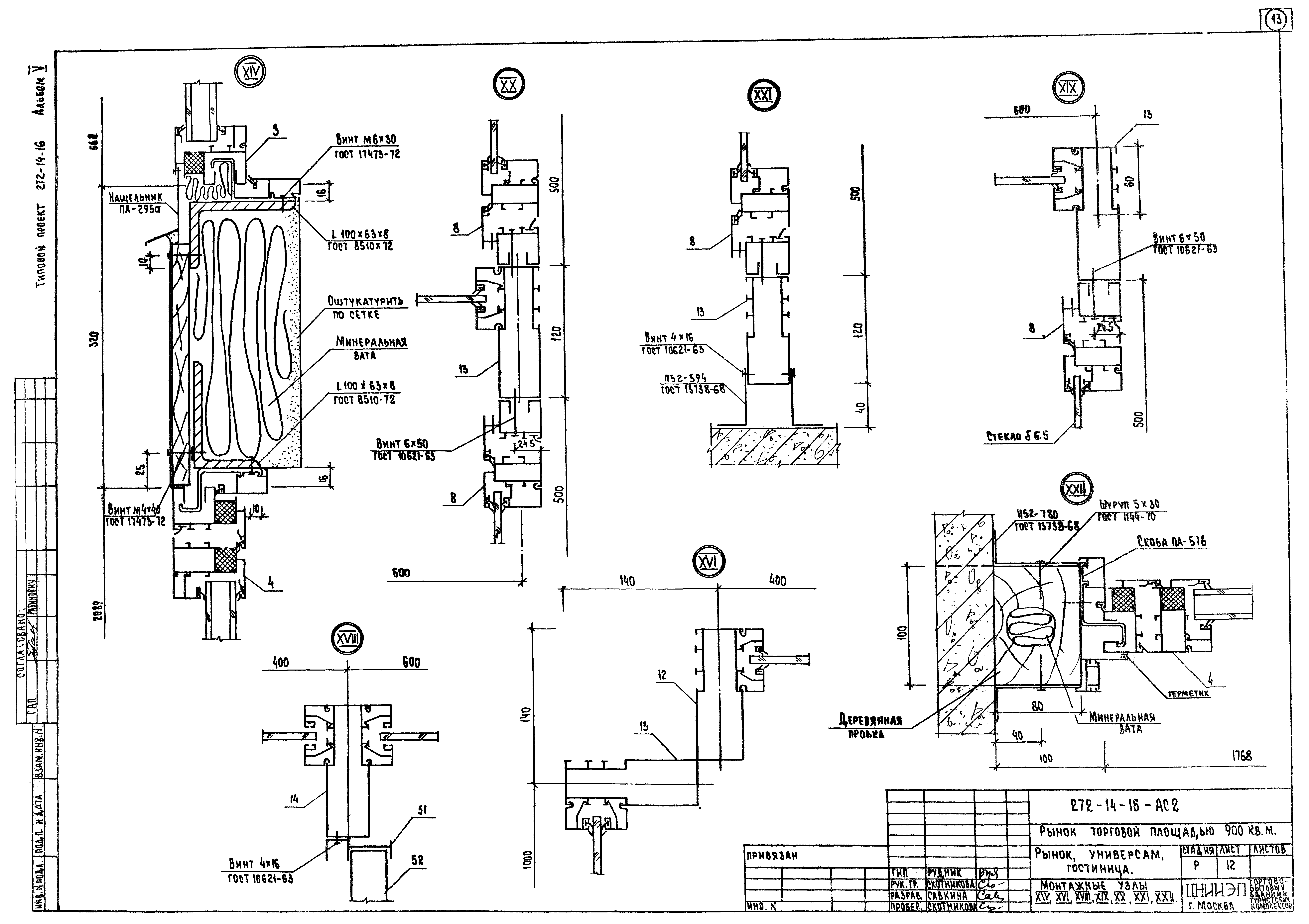
| Оглавление: | Общие данные Спецификация к схемам расположения витражей, тамбуров, окон рынка и гостиницы Спецификация к схемам расположения витражей, тамбура и окон универсама Витражи по осям А, 18. Витраж по оси 14 м/о Н и И Витраж и тамбуры по оси 14 Витраж по оси И. Монтажные узлы XV, XXX, XXXI, XXXII, XXXIII Витражи по осям А, 11, Д Перегородки по осям 8, 9, Б. Монтажные узлы XXIII, XXIV, XXV, XXVI, XXVII, XXVIII, XXIX, XXXIV Тамбуры по осям П и 11 Монтажные узлы I, II, III, IV, V, VI, VII, VIII Монтажные узлы IX, X, XI, XII, XIII, XVII Монтажные узлы XIV, XVI, XVIII, XIX, XX, XXI, XXII |
| Разработан: | ЦНИИЭП торгово-бытовых зданий и туристских комплексов |
| Утверждён: | 13.03.1980 Госгражданстрой (Gosgrazhdanstroy 78) |














