Скачать Типовой проект 272-14-16 Альбом VIII. Изделия монолитных железобетонных участков. Изделия металлические. Изделия деревянныеДата актуализации: 01.01.2021
|
| Обозначение: | Типовой проект 272-14-16 |
| Обозначение англ: | 272-14-16 |
| Статус: | действует |
| Название рус.: | Альбом VIII. Изделия монолитных железобетонных участков. Изделия металлические. Изделия деревянные |
| Дата добавления в базу: | 01.09.2013 |
| Дата актуализации: | 01.01.2021 |
| Дата введения: | 23.10.1981 |
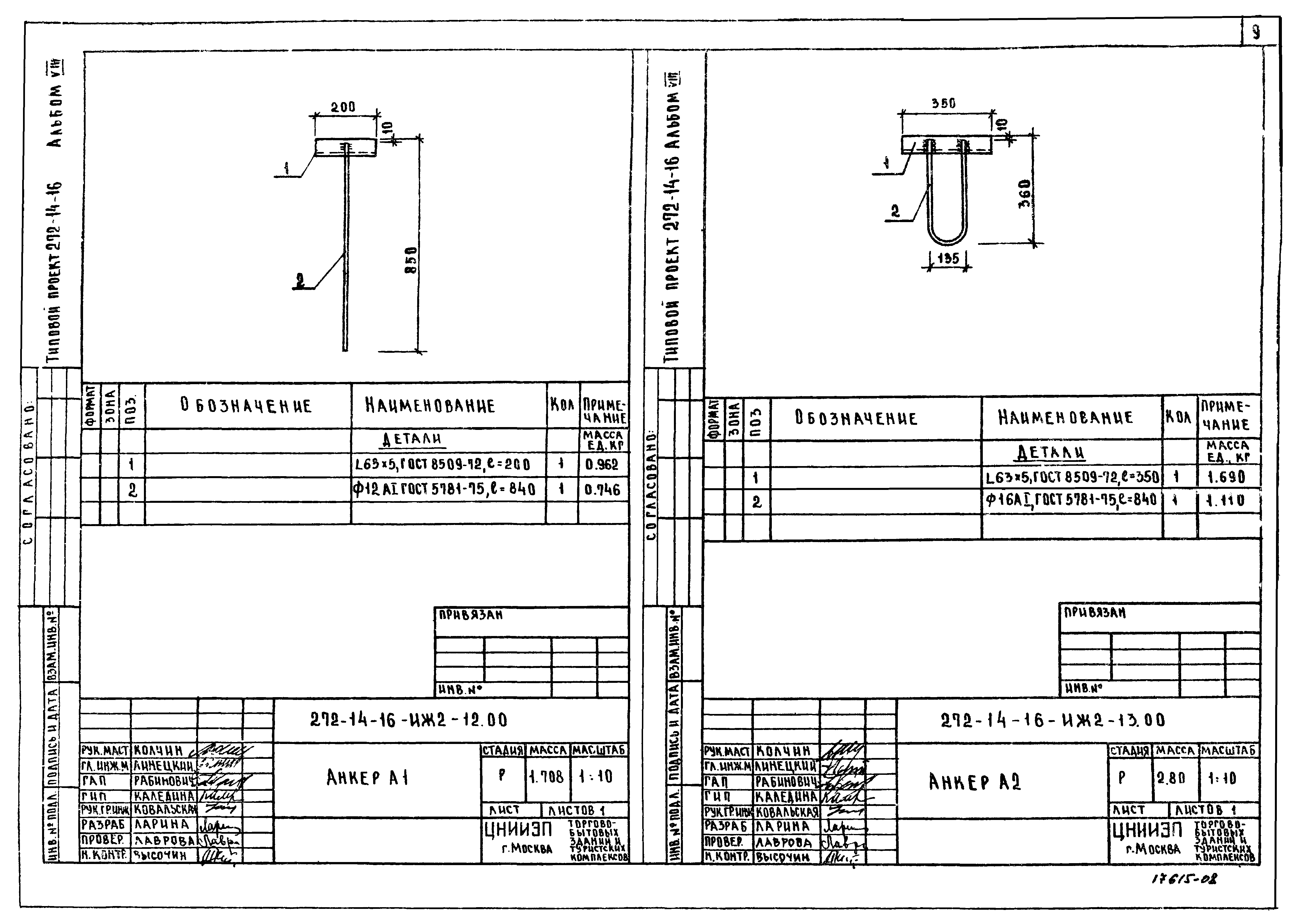
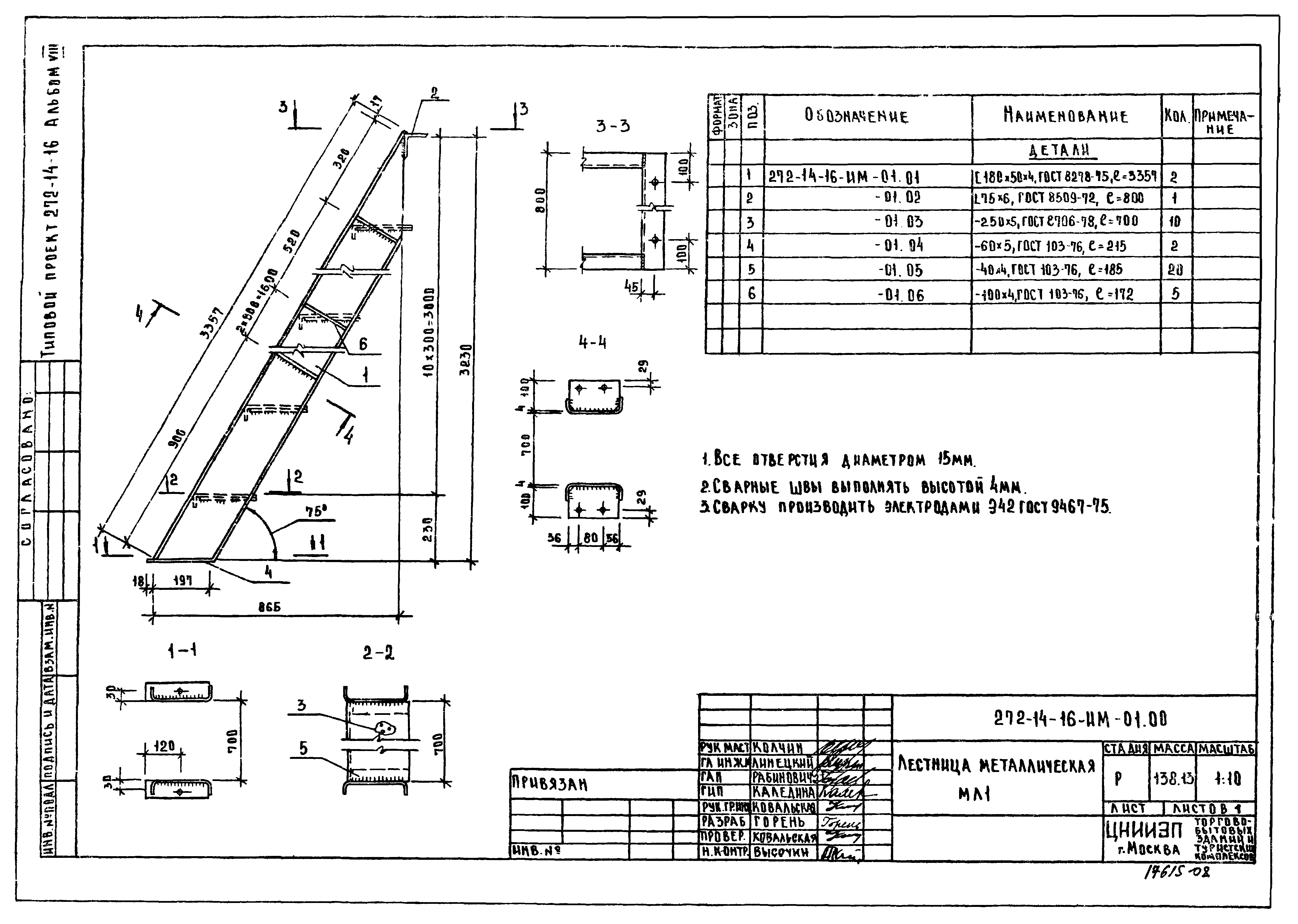
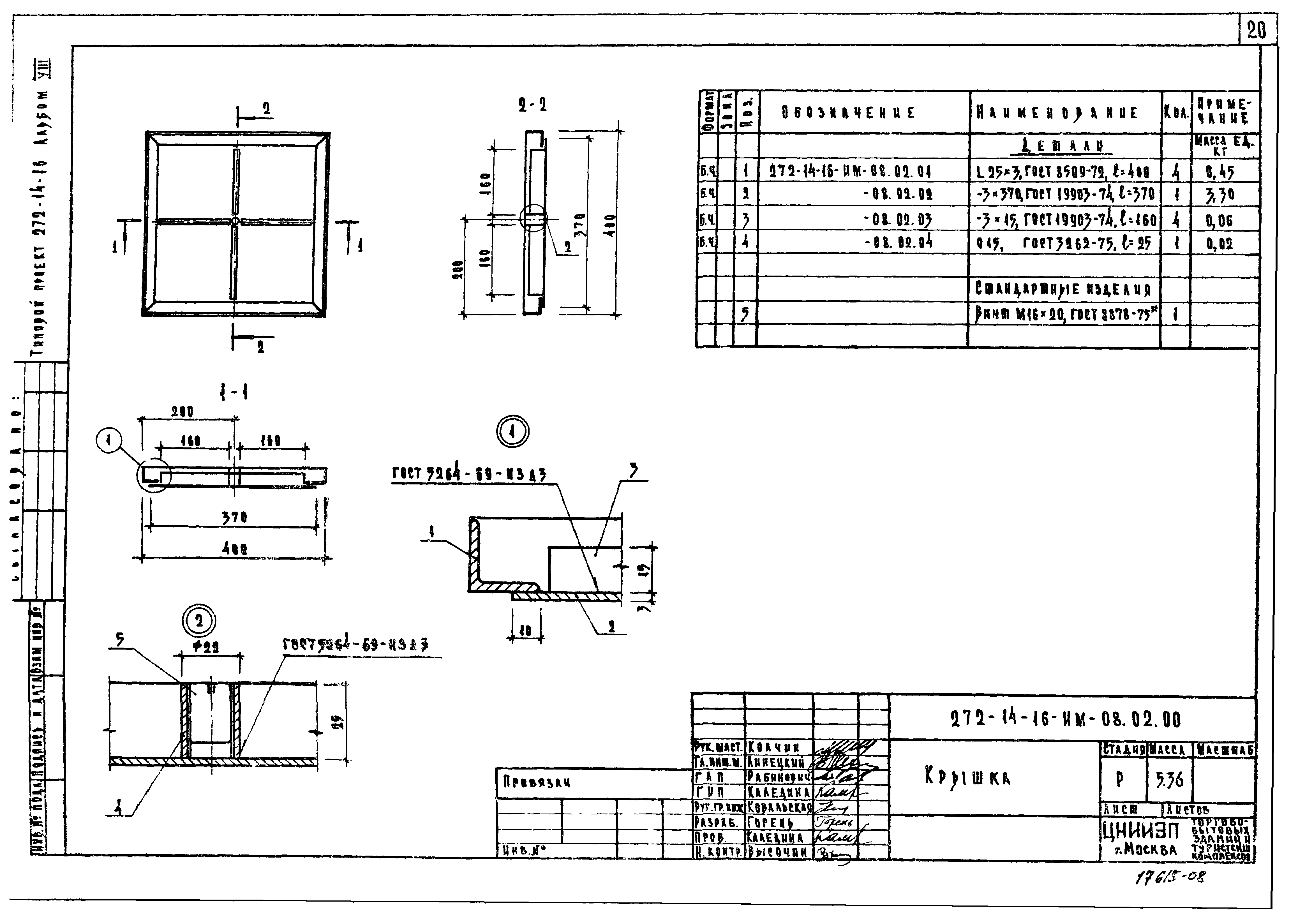
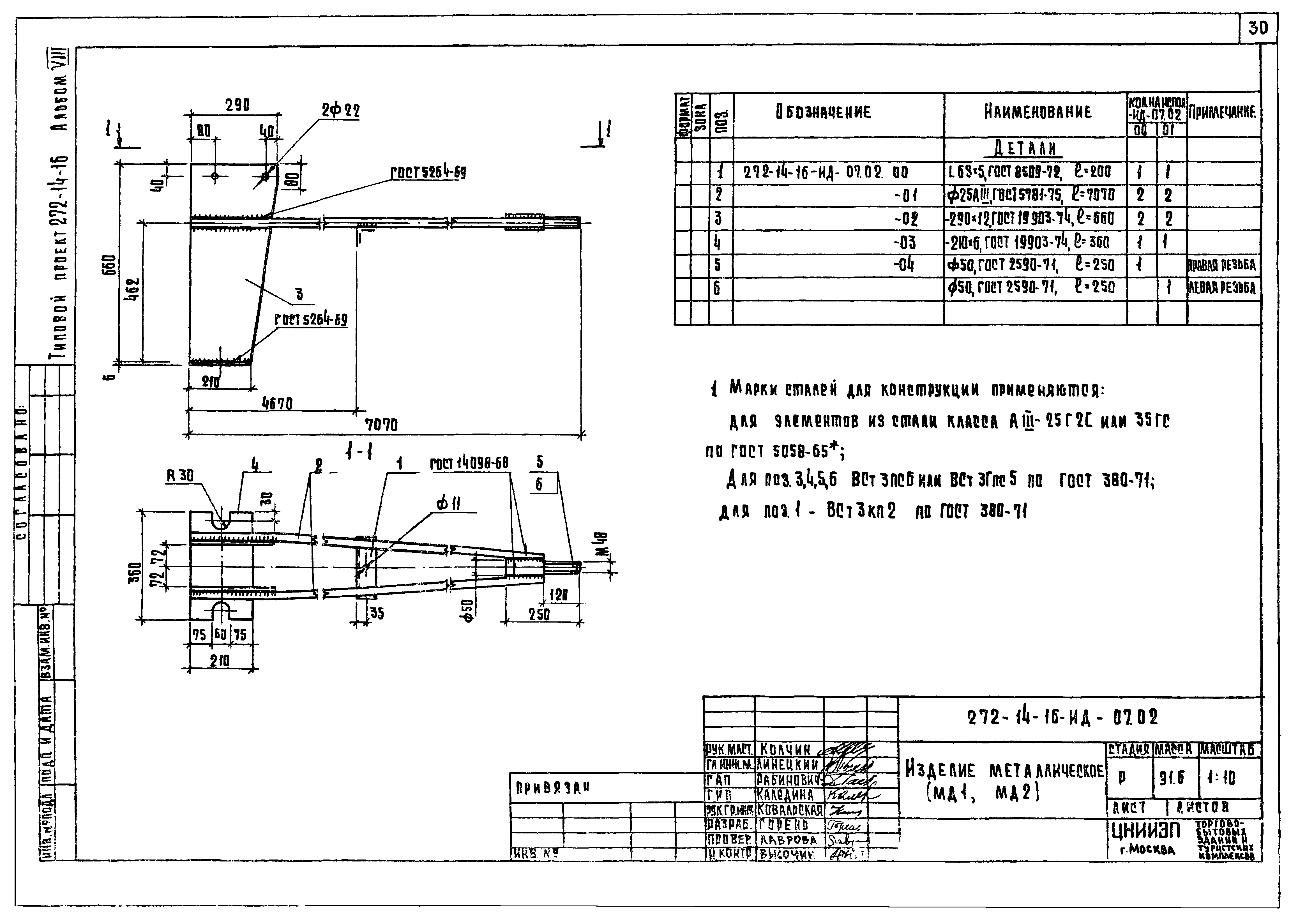
| Оглавление: | Обложка Титульный лист 272-14-16-ИЖ2-00.00ДО Ведомость чертежей 272-14-16-ИЖ2-01.00 Каркас плоский КР1; КР2; КР3; КР4; КР6 272-14-16-ИЖ2-02.00 Каркас плоский КР5 272-14-16-ИЖ2-03.00 Закладная деталь ЗД1 272-14-16-ИЖ2-04.00 Каркас плоский КР7 272-14-16-ИЖ2-05.00 Каркас плоский КР8 272-14-16-ИЖ2-06.00 Каркас плоский КР9 272-14-16-ИЖ2-07.00 Каркас плоский КР10 272-14-16-ИЖ2-08.00 Каркас плоский КР11 272-14-16-ИЖ2-09.00 Изделие закладное ЗД4 272-14-16-ИЖ2-10.00 Изделие закладное ЗД2 272-14-16-ИЖ2-11.00 Изделие закладное ЗД3 272-14-16-ИЖ2-12.00 Анкер А1 272-14-16-ИЖ2-13.00 Анкер А2 272-14-16-ИЖ2-14.00 Рама металлическая РМ1 272-14-16-ИЖ2-15.00 Каркас КП1 272-14-16-ИЖ2-16.00 Сетка С1 272-14-16-ИМ-00.00ДО Ведомость чертежей 272-14-16-ИМ-01.00 Лестница металлическая МЛ1 272-14-16-ИМ-02.00 Ограждение лестницы ОЛ1 272-14-16-ИМ-03.00 Кольцо стальное СК1 272-14-16-ИМ-04.00 Лестница металлическая МЛ2 272-14-16-ИМ-05.00 Кронштейн (КР1, КР2, КР3) 272-14-16-ИМ-06.00 Рама металлическая (РМ1, РМ2) 272-14-16-ИМ-07.00 Поддон (МП1, МП2) 272-14-16-ИМ-08.00.00 Люк для подпольных коробок слабых токов Л1 272-14-16-ИМ-08.01.00 Рама 272-14-16-ИМ-08.02.00 Крышка 272-14-16-ИД-00.00ДО Ведомость чертежей 272-14-16-ИД-01.00 Шкаф слабых токов 272-14-16-ИД-02.00 Дверь ДР1 272-14-16-ИД-03.00 Барьер Б-1; дверь ДБ-1 272-14-16-ИД-04.00 Шкаф ПК 272-14-16-ИД-05.00 Двери шкафные Ш-1; Ш-2; Ш-3 272-14-16-ИД-06.00 Барьер гардеробный БГ-1; дверь ДБ-2 272-14-16-ИД-07.00 Балка Б1 272-14-16-ИД-07.01 Изделие деревянное Д1 272-14-16-ИД-07.02 Изделие металлическое (МД1, МД2) 272-14-16-ИД-08.00 Панель асбестоцементная (ПА1, ПА2) 272-14-16-ИД-08.01 Каркас (КД1, КД2) 272-14-16-ИД-09.00 Панель асбестоцементная (ПА3, ПА4) 272-14-16-ИД-09.01 Каркас (КД3, КД4) 272-14-16-ИД-10.00 Панель асбестоцементная (ПА5, ПА6) 272-14-16-ИД-10.01 Каркас (КД5, КД6) 272-14-16-ИД-11.00 Панель асбестоцементная ПЛ7 272-14-16-ИД-11.01 Каркас КД7 |
| Разработан: | ЦНИИЭП торгово-бытовых зданий и туристских комплексов |
| Утверждён: | 13.03.1980 Госгражданстрой (Gosgrazhdanstroy 78) |







































