Скачать Типовой проект 272-14-16 Альбом IX. Нестандартизированное оборудование, инвентарьДата актуализации: 01.01.2021
|
| Обозначение: | Типовой проект 272-14-16 |
| Обозначение англ: | 272-14-16 |
| Статус: | действует |
| Название рус.: | Альбом IX. Нестандартизированное оборудование, инвентарь |
| Дата добавления в базу: | 01.09.2013 |
| Дата актуализации: | 01.01.2021 |
| Дата введения: | 23.10.1981 |
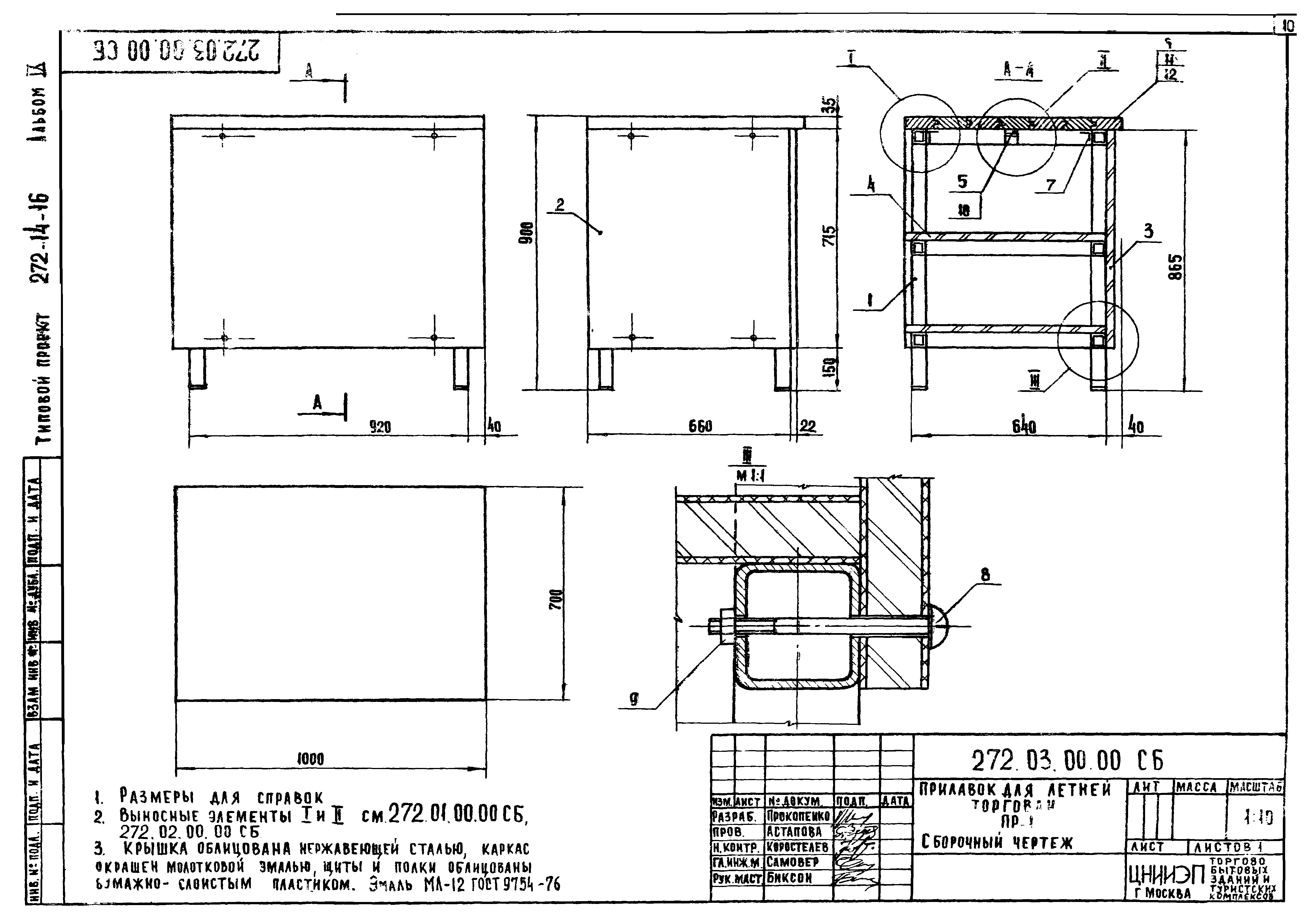
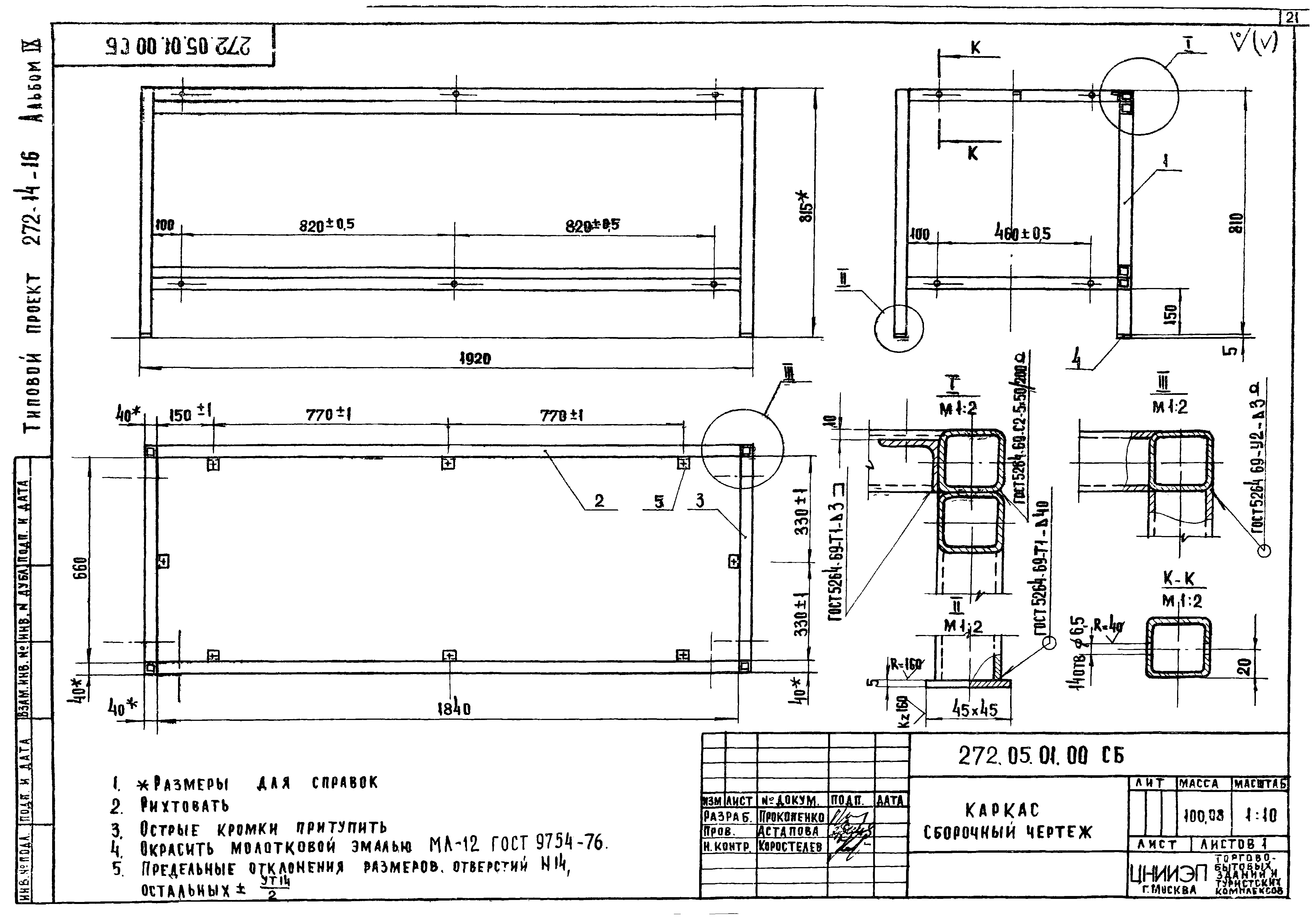
| Оглавление: | 272.00.00.00Д1 Содержание 272.01.00.00СБ Подставка для бидонов ПБ-1. Сборочный чертеж 272.02.00.00СБ Стол для осмотра молочных продуктов СМ-2. Сборочный чертеж 272.01.00.00 Подставка для бидонов ПБ-1 272.02.00.00 Стол для осмотра молочных продуктов СМ-2 272.01.01.00СБ Каркас. Сборочный чертеж 272.02.01.00СБ Каркас. Сборочный чертеж 272.01.01.00 Каркас 272.02.01.00 Каркас 272.01.01.05 Уголок 272.01.00.01 Планка 272.03.00.00СБ Прилавок для летней торговли ПР-1. Сборочный чертеж 272.03.00.00 Прилавок для летней торговли ПР-1 272.03.01.00СБ Каркас. Сборочный чертеж 272.03.01.00 Каркас 272.04.01.00 Каркас 272.04.00.00СБ Прилавок для летней торговли ПР-1А. Сборочный чертеж 272.04.00.00 Прилавок для летней торговли ПР-1А 272.04.01.00СБ Каркас. Сборочный чертеж 272.05.00.00СБ Прилавок для осмотра мяса и мясопродуктов СМ-1. Сборочный чертеж 272.05.00.00 Прилавок для осмотра мяса и мясопродуктов СМ-1 272.05.01.00СБ Каркас. Сборочный чертеж 272.05.01.00 Каркас 272.06.01.00 Каркас 272.06.00.00СБ Прилавок для выдачи инвентаря ПР-2. Сборочный чертеж 272.06.00.00 Прилавок для выдачи инвентаря ПР-2 272.06.01.00СБ Каркас. Сборочный чертеж 272.07.00.00СБ Вешало В-1. Сборочный чертеж 272.07.00.00 Вешало В-1 272.08.00.00 Настенная полка НП-3 272.07.01.00СБ Кронштейн. Сборочный чертеж 272.07.03.00СБ Фланец. Сборочный чертеж 272.07.00.01 Крючок 272.08.00.00СБ Настенная полка НП-3. Сборочный чертеж 272.08.02.00СБ Кронштейн. Сборочный чертеж 272.08.01.00СБ Рама. Сборочный чертеж 272.08.01.00 Рама 272.08.02.00 Кронштейн 272.09.01.00СБ Кронштейн. Сборочный чертеж 272.09.00.00СБ Настенная полка НП-1; НП-2. Сборочный чертеж 272.09.00.00СБ Настенная полка НП-1; НП-2 |
| Разработан: | ЦНИИЭП торгово-бытовых зданий и туристских комплексов |
| Утверждён: | 13.03.1980 Госгражданстрой (Gosgrazhdanstroy 78) |



































