Скачать Типовой проект 272-14-17 Альбом II. Технология и механизация. Холодоснабжение. Отопление и вентиляция. Водопровод и канализацияДата актуализации: 01.01.2021
|
| Обозначение: | Типовой проект 272-14-17 |
| Обозначение англ: | 272-14-17 |
| Статус: | действует |
| Название рус.: | Альбом II. Технология и механизация. Холодоснабжение. Отопление и вентиляция. Водопровод и канализация |
| Дата добавления в базу: | 01.09.2013 |
| Дата актуализации: | 01.01.2021 |
| Дата введения: | 29.01.1982 |
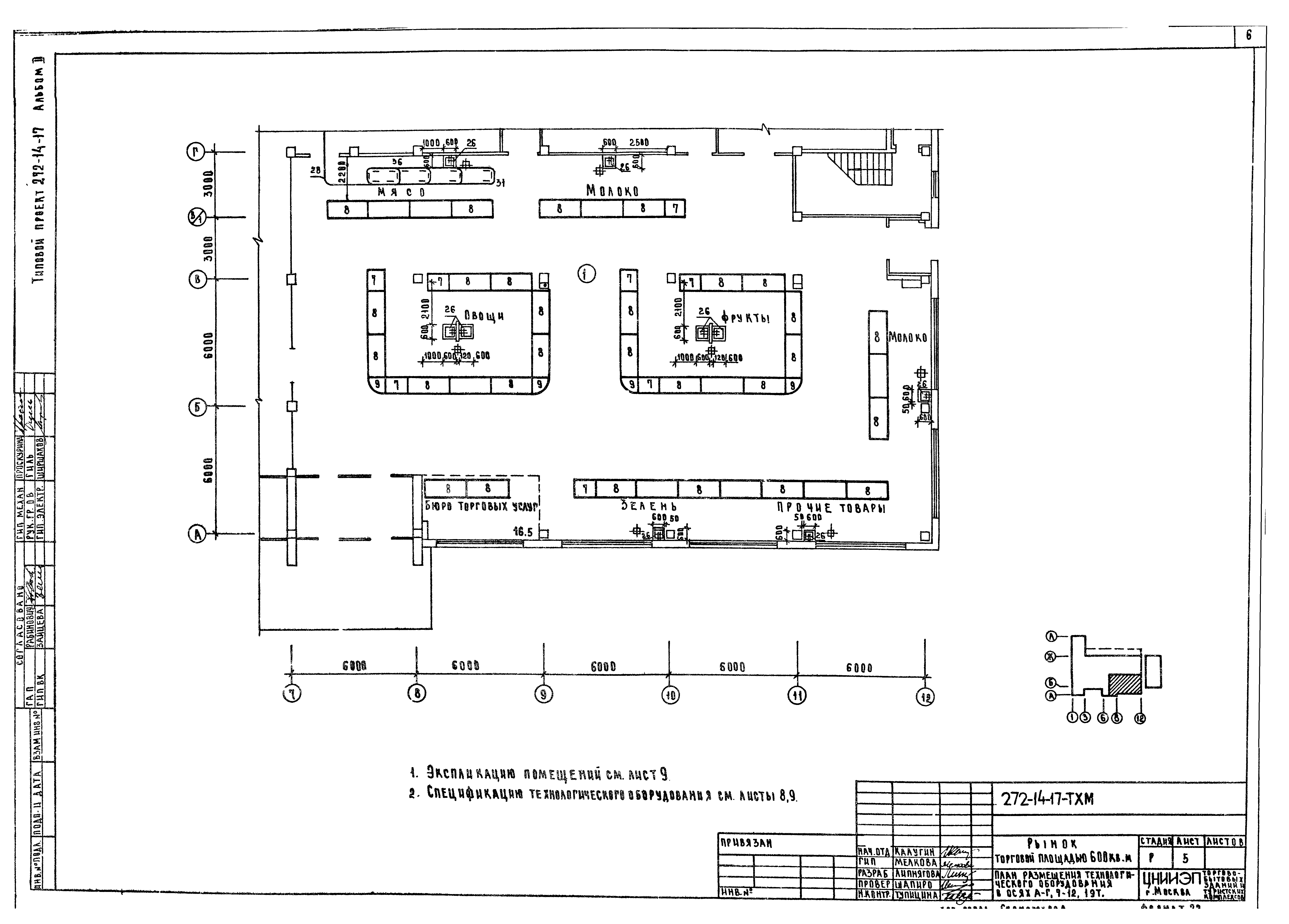
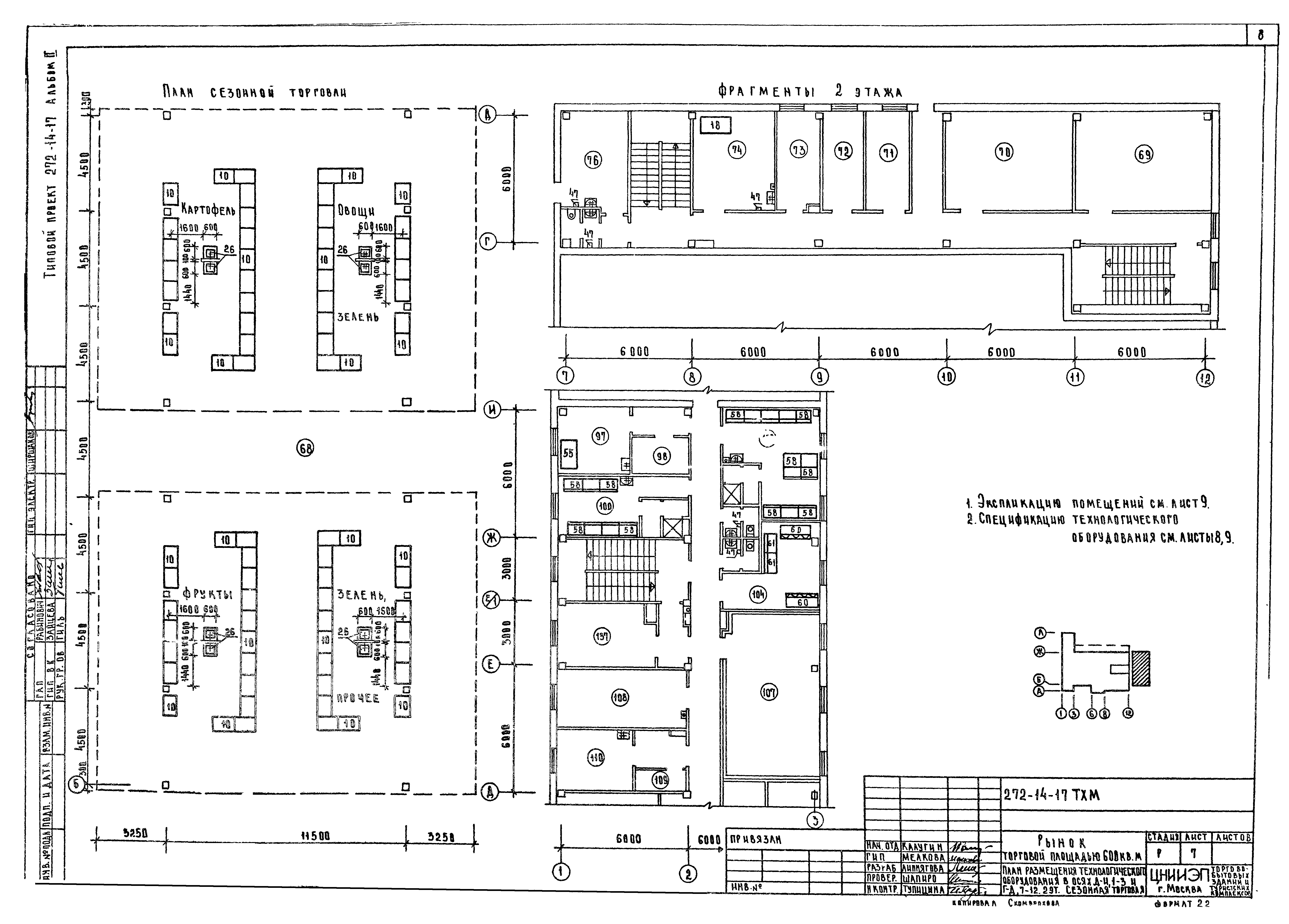
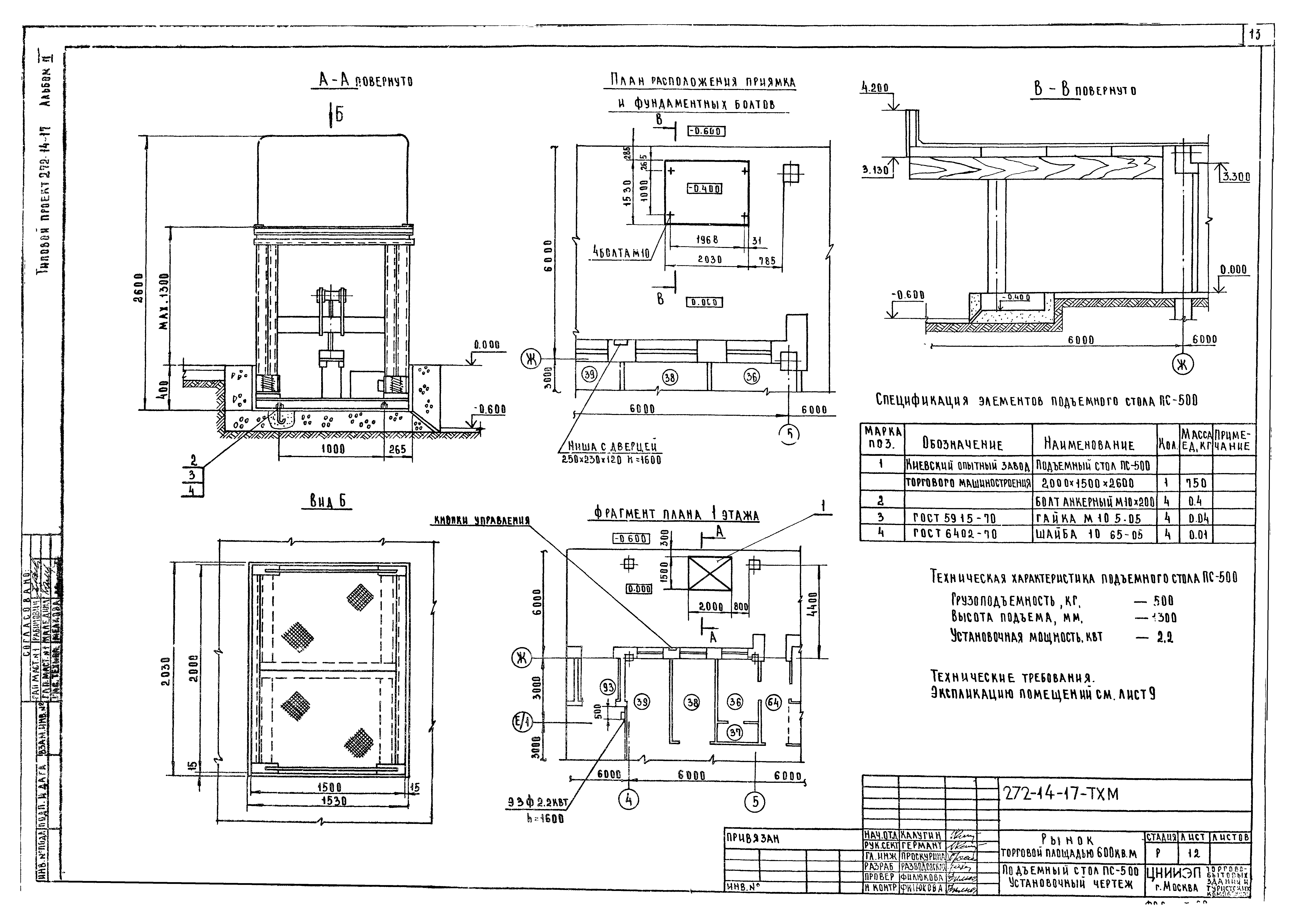
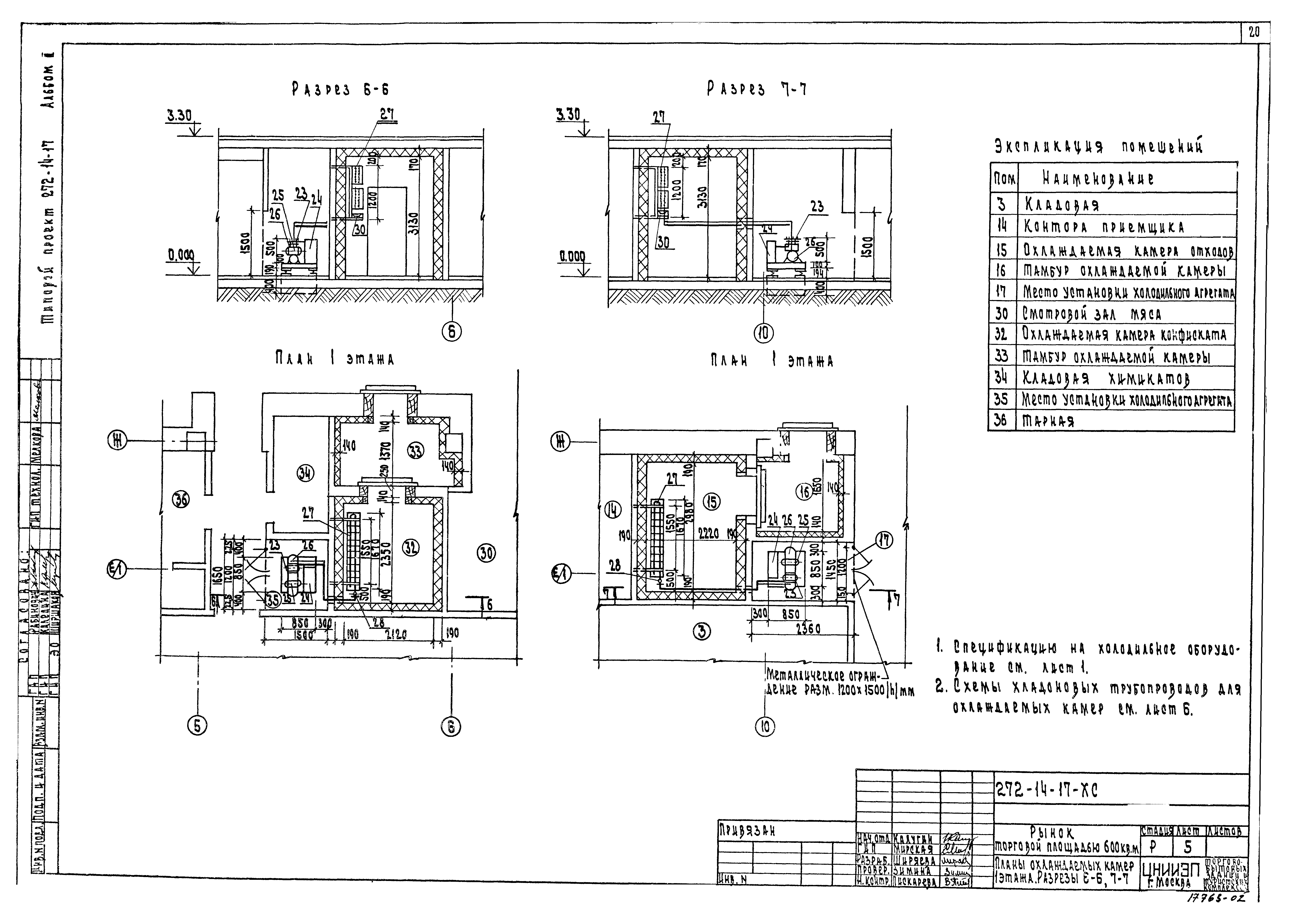
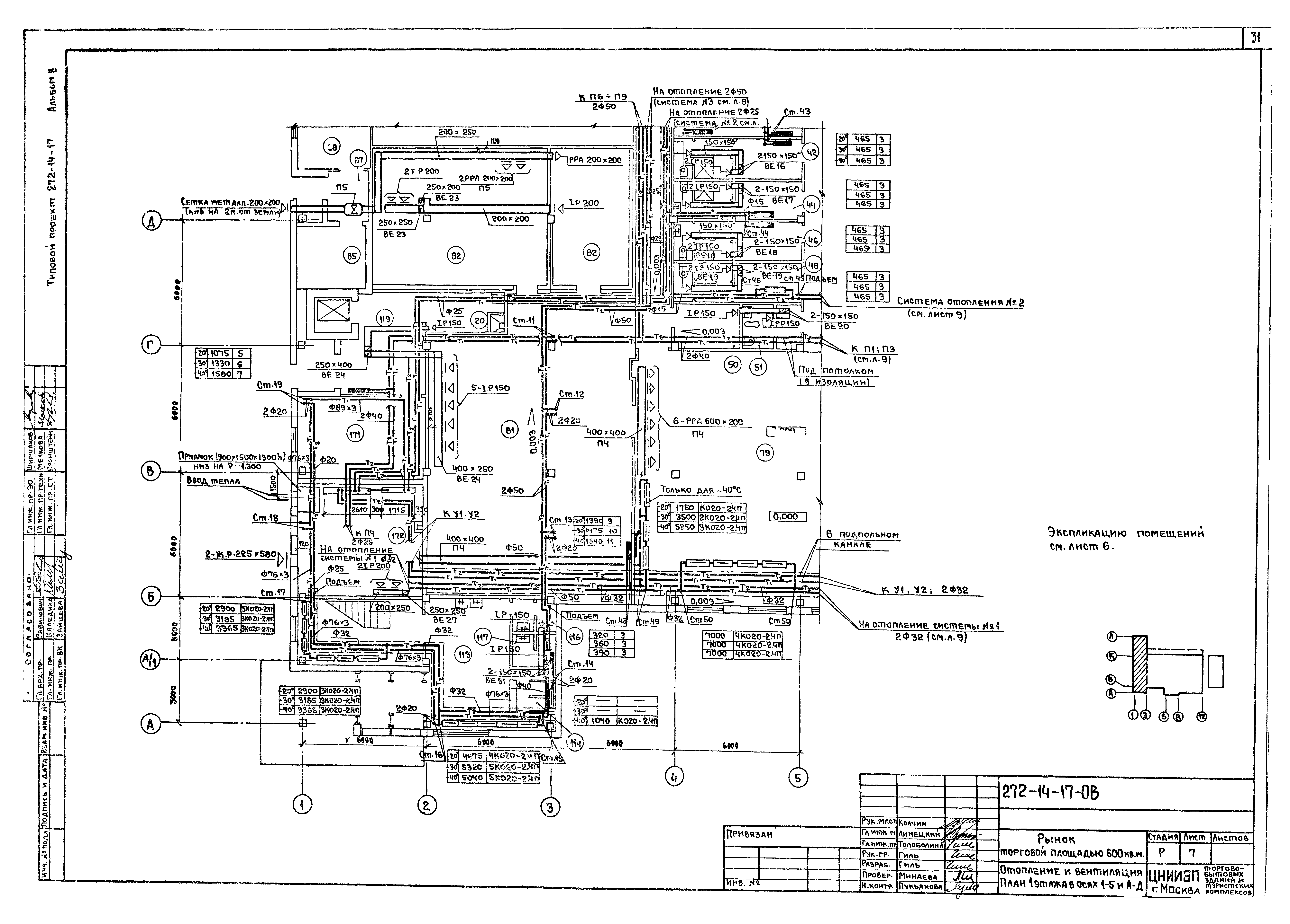
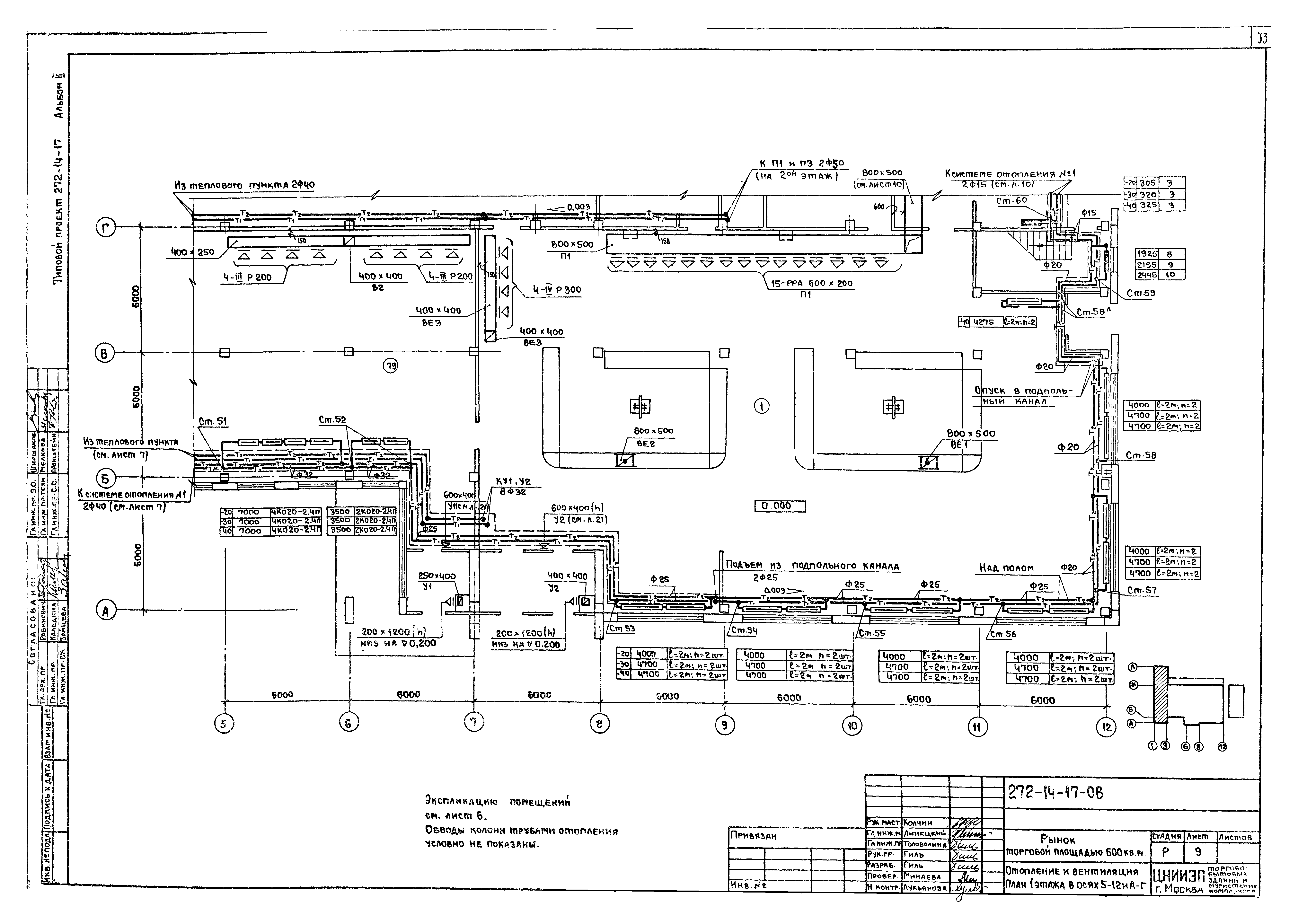
| Оглавление: | Чертежи основного комплекта марки ТХМ Общие данные План размещения технологического оборудования в осях А - Г, 1 - 7. 1 этаж План размещения технологического оборудования в осях Г - И, 1 - 7. 1 этаж План размещения технологического оборудования в осях А - Г, 7 - 12. 1 этаж План размещения технологического оборудования в осях Г - Ж, 7 - 12. 1 этаж Планы размещения технологического оборудования в осях Д - И, 1 - 3 и Г - Д, 7 - 12. 2 этаж. Сезонная торговля Спецификация технологического оборудования Спецификация технологического оборудования. Экспликация помещений Фрагменты планов размещения технологического оборудования предприятий питания Спецификация технологического оборудования предприятий питания Подъемный стол ПС-500. Установочный чертеж Механизация транспортировки мяса. План, разрезы, узел Механизация транспортировки мяса. . Разрезы, узлы Чертежи основного комплекта марки ХС Общие данные План охлаждаемых камер 1 этажа Разрезы 1-1, 2-2, 3-3, 4-4, 5-5 Планы охлаждаемых камер 1 этажа. Разрезы 6-6, 7-7 Схемы хладоновых трубопроводов машин ИФ-56м, АКФВ-4м, ФАК-1,5 Планы охлаждаемых камер и прилавков 1 этажа. Разрез 8-8 Схемы хладоновых трубопроводов машин ХМ1-9 и АКФВ-4м План охлаждаемой камеры 2 этажа. Разрез 9-9. Схемы хладоновых трубопроводов машины ИФ-56м Чертежи основного комплекта марки ОВ Общие данные Спецификация Экспликация помещений Отопление и вентиляция. План 1 этажа в осях 1 - 5 и А - Д Отопление и вентиляция. План 1 этажа в осях 1 - 5 и Д - Л Отопление и вентиляция. План 1 этажа в осях 5 - 12 и А - Г Отопление и вентиляция. План 1 этажа в осях 5 - 12 и Г - Ж Отопление и вентиляция. План 2 этажа в осях 1 - 3 и А - И Отопление и вентиляция. План 2 этажа в осях 7 - 12 и Г - Д Отопление и вентиляция. План 3 этажа в осях 1 - 3 и А - И Схема системы отопления 1 Схема системы отопления 2. Установка системы ПЕ1 Схема системы отопления 3 Установка систем П1 и П3 Установка системы П4 Установка систем П6 и П7 Установка систем П8; П9 и В8 Установка систем У1 и У2 Установка системы В4 Схемы систем вентиляции: П6 - П9; В4 - В8; У1; ВЕ23 - ВЕ36; 37 Схемы систем вентиляции: П1 - П4; У2; В1; В2; ВЕ1 - ВЕ22; ПЕ1 Схема теплоснабжения калориферов систем П1 - П8; У1; У2 и ПЕ1 Чертежи основного комплекта марки ВК Общие данные Водопровод. План 1 этажа в осях А - Г, 1 - 3. План 1 этажа в осях А - Г, 7 - 12 Водопровод. План 1 этажа в осях Г - И, 1 - 7 Водопровод. План 1 этажа в осях Г - Ж, 7 - 12 Водопровод. План 1 этажа в осях И - Л, 1 - 3. План 2 этажа Водопровод. План 3 этажа Водопровод. Канализация. План 2 этажа. Воронка Водопровод. Схема Оборотное водоснабжение Канализация. План 1 этажа в осях А - Г, 1 - 7 Канализация. План 1 этажа в осях Г - И, 1 - 7 Канализация. План 1 этажа в осях Г - Ж, 7/1 - 11. план 1 этажа в осях А - Г, 9 - 12 Канализация. План 1 этажа в осях И - Л, 1 - 3. План 2 этажа Канализация. План 3 этажа Канализация. Разрезы К1-1; К1-3 Канализация. Разрезы К1-5; К1-2; К3-2 Канализация. Разрезы К1-8; К3-8 Канализация. Разрезы К1-9; К3-9 Канализация. Разрезы К2-4; К2-5; К2-6; К2-7; К2-10 Водопровод. Канализация. План сезонной торговли Сезонная торговля. Схема по водопроводу. Разрезы по канализации |
| Разработан: | ЦНИИЭП торгово-бытовых зданий и туристских комплексов |
| Утверждён: | 13.10.1980 Госгражданстрой (Gosgrazhdanstroy 265) |












































































