Скачать Типовой проект 272-14-17 Альбом VII. Изделия монолитных железобетонных участков. Изделия металлические. Изделия деревянныеДата актуализации: 01.01.2021
|
| Обозначение: | Типовой проект 272-14-17 |
| Обозначение англ: | 272-14-17 |
| Статус: | действует |
| Название рус.: | Альбом VII. Изделия монолитных железобетонных участков. Изделия металлические. Изделия деревянные |
| Дата добавления в базу: | 01.09.2013 |
| Дата актуализации: | 01.01.2021 |
| Дата введения: | 29.01.1982 |
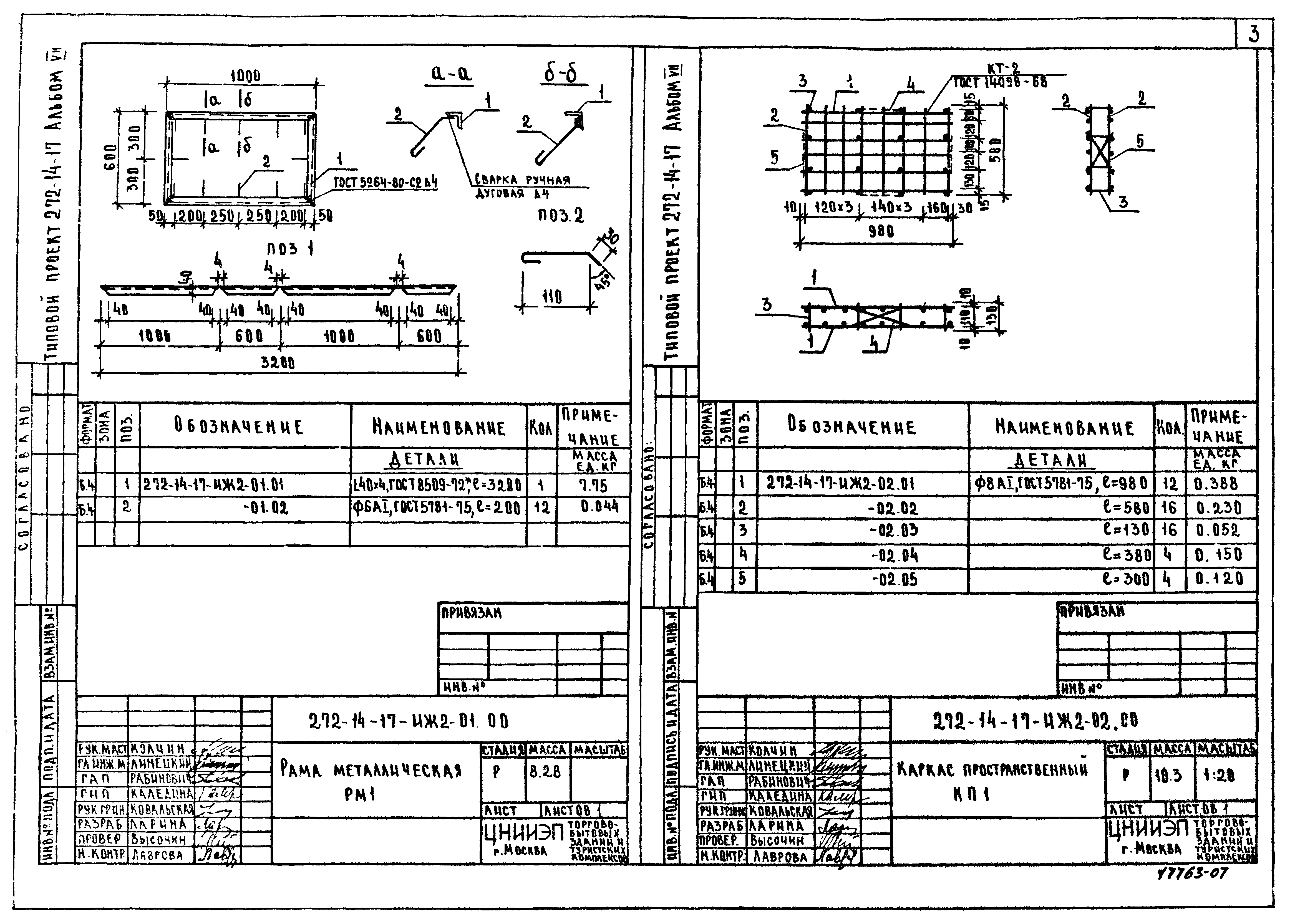
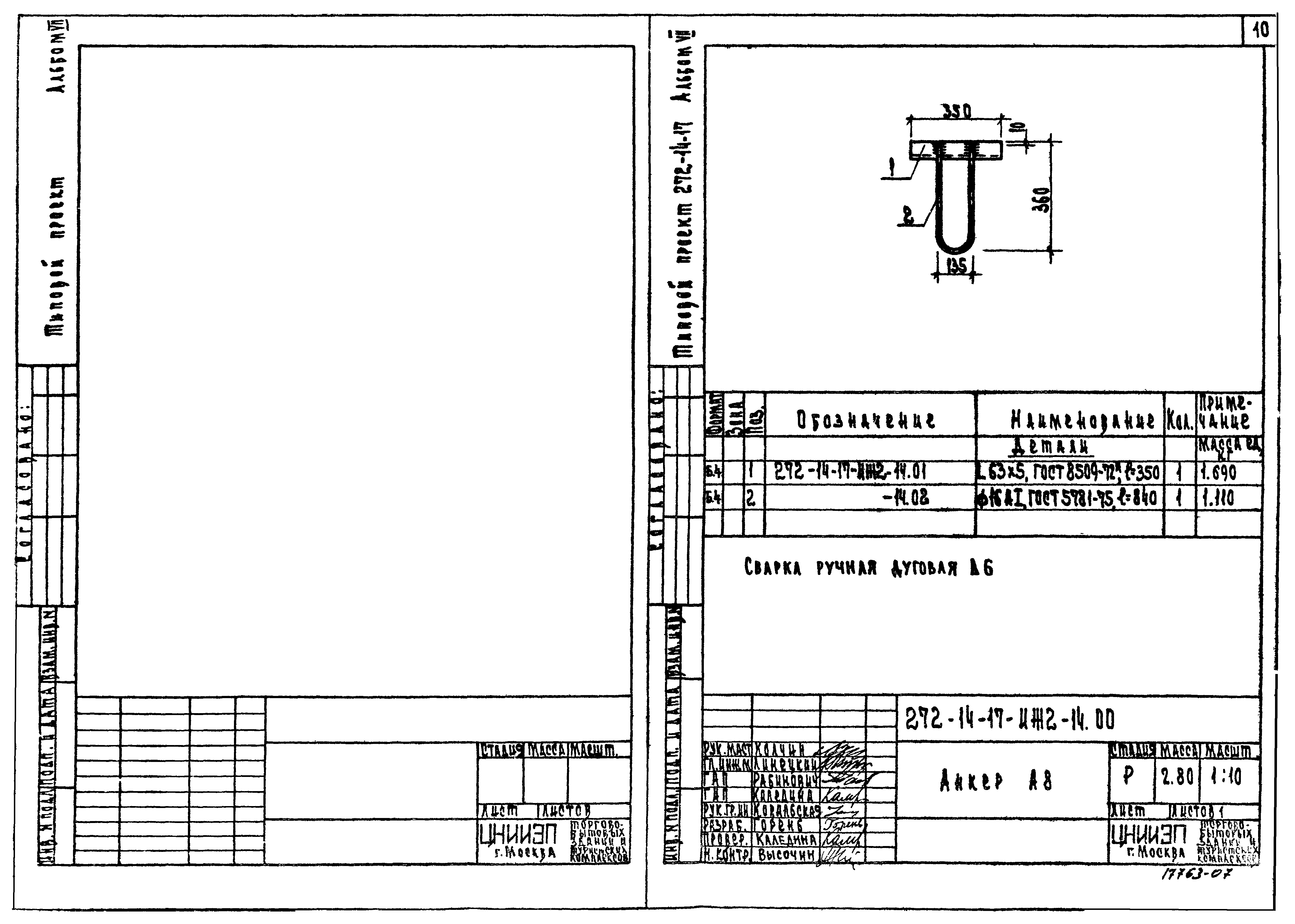
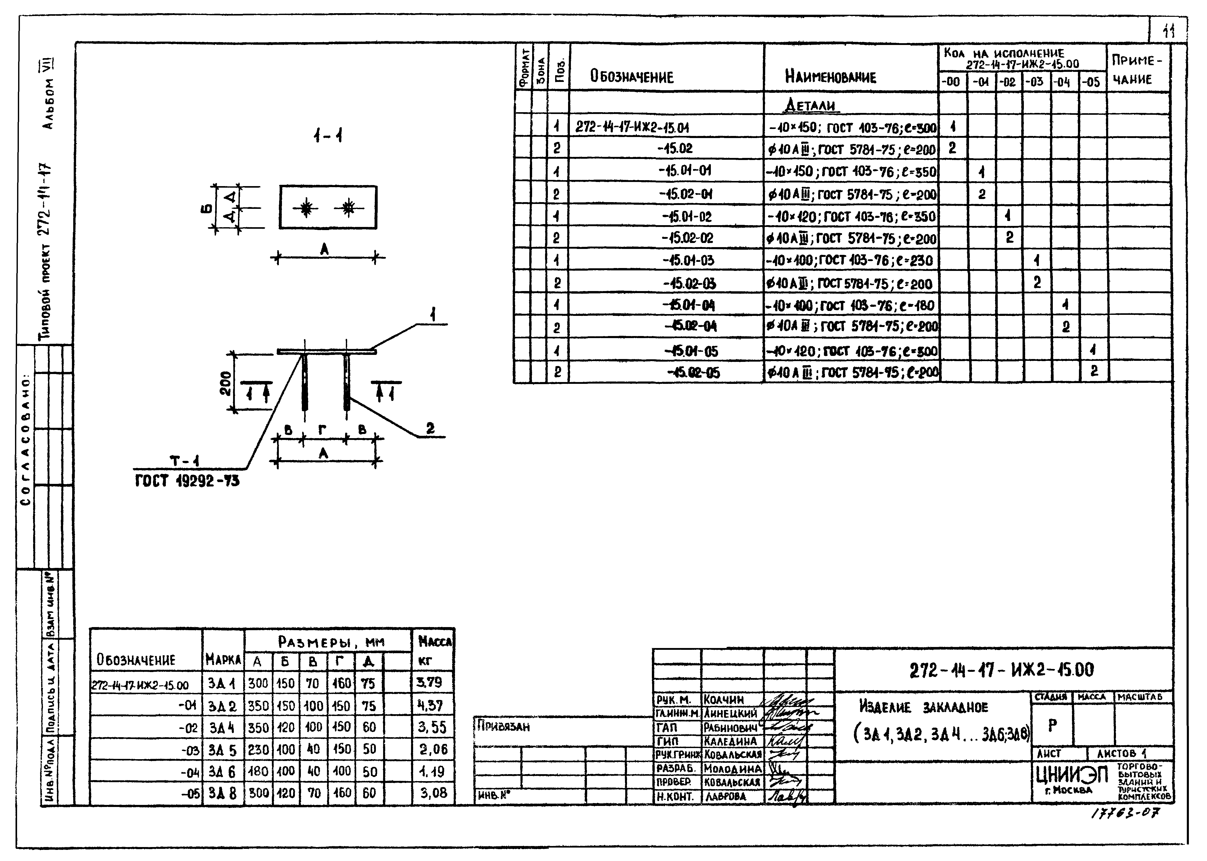
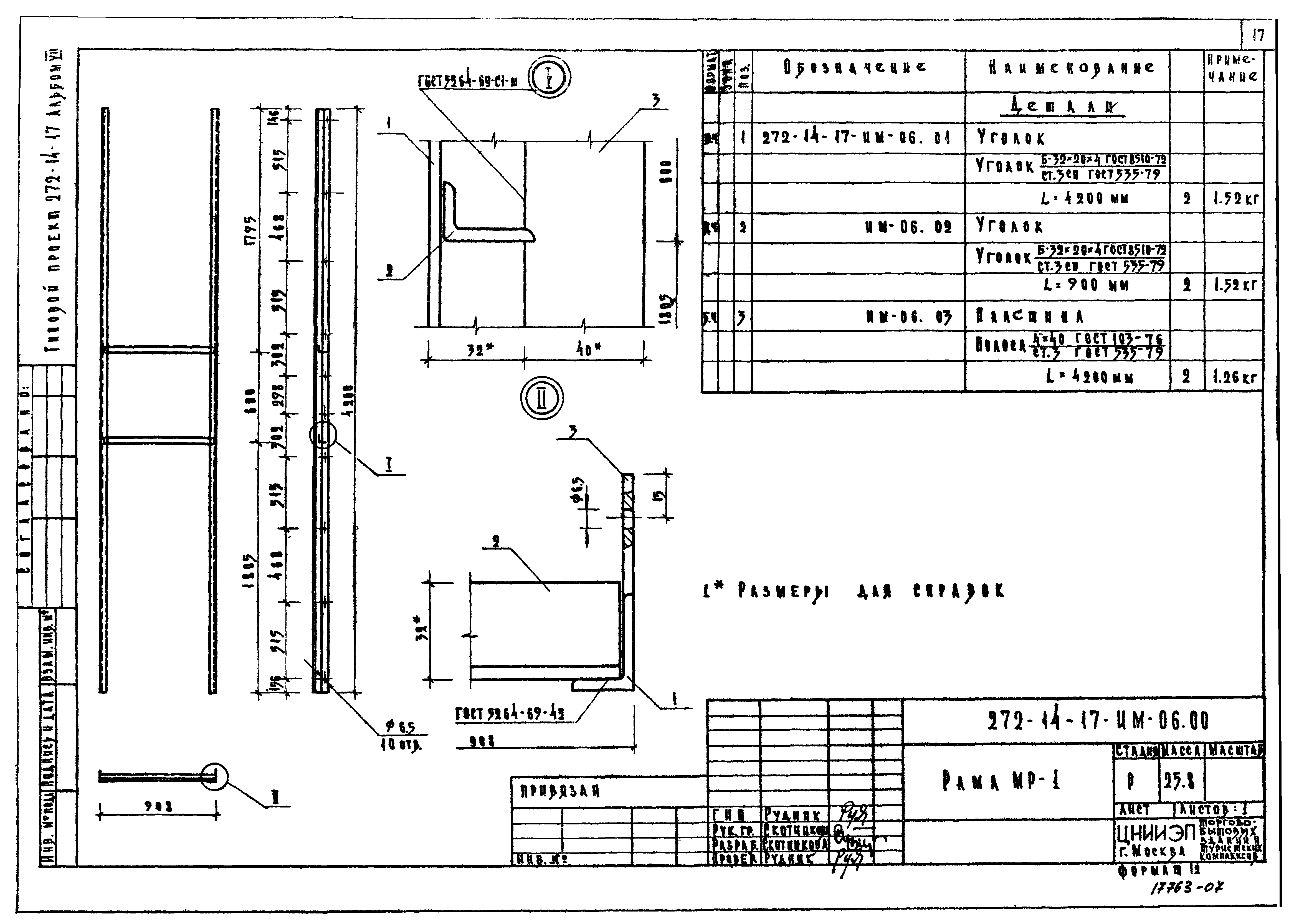
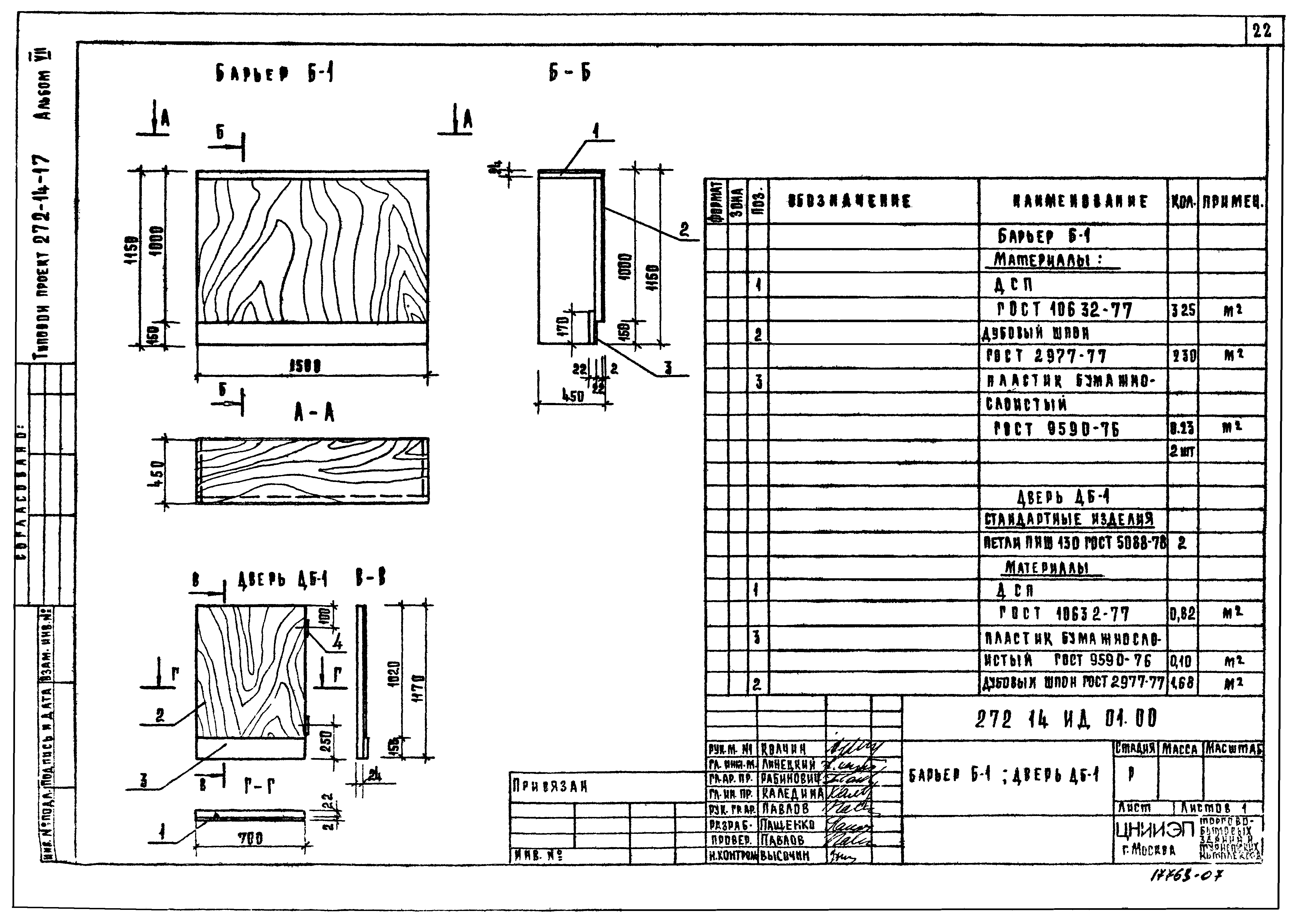
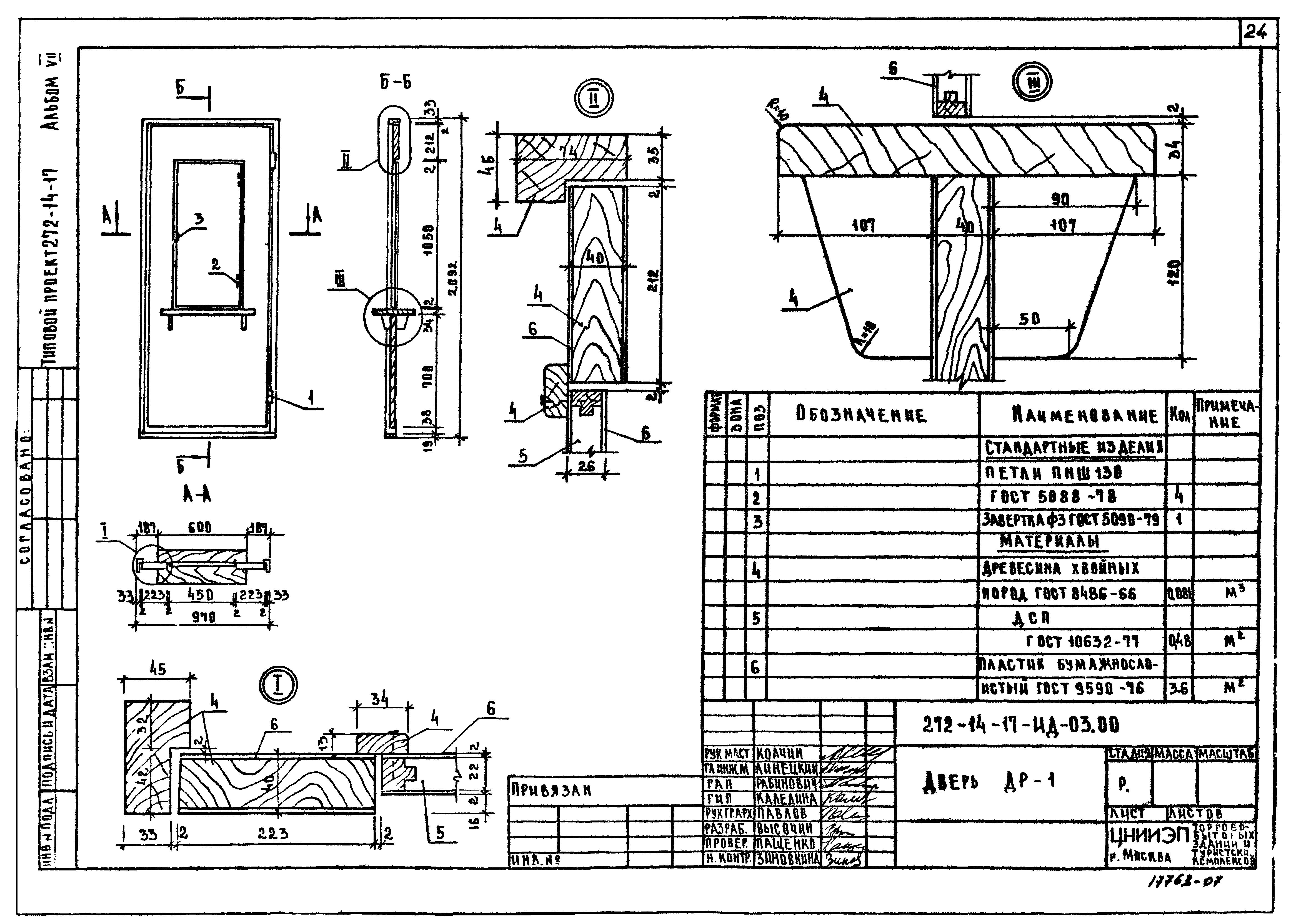
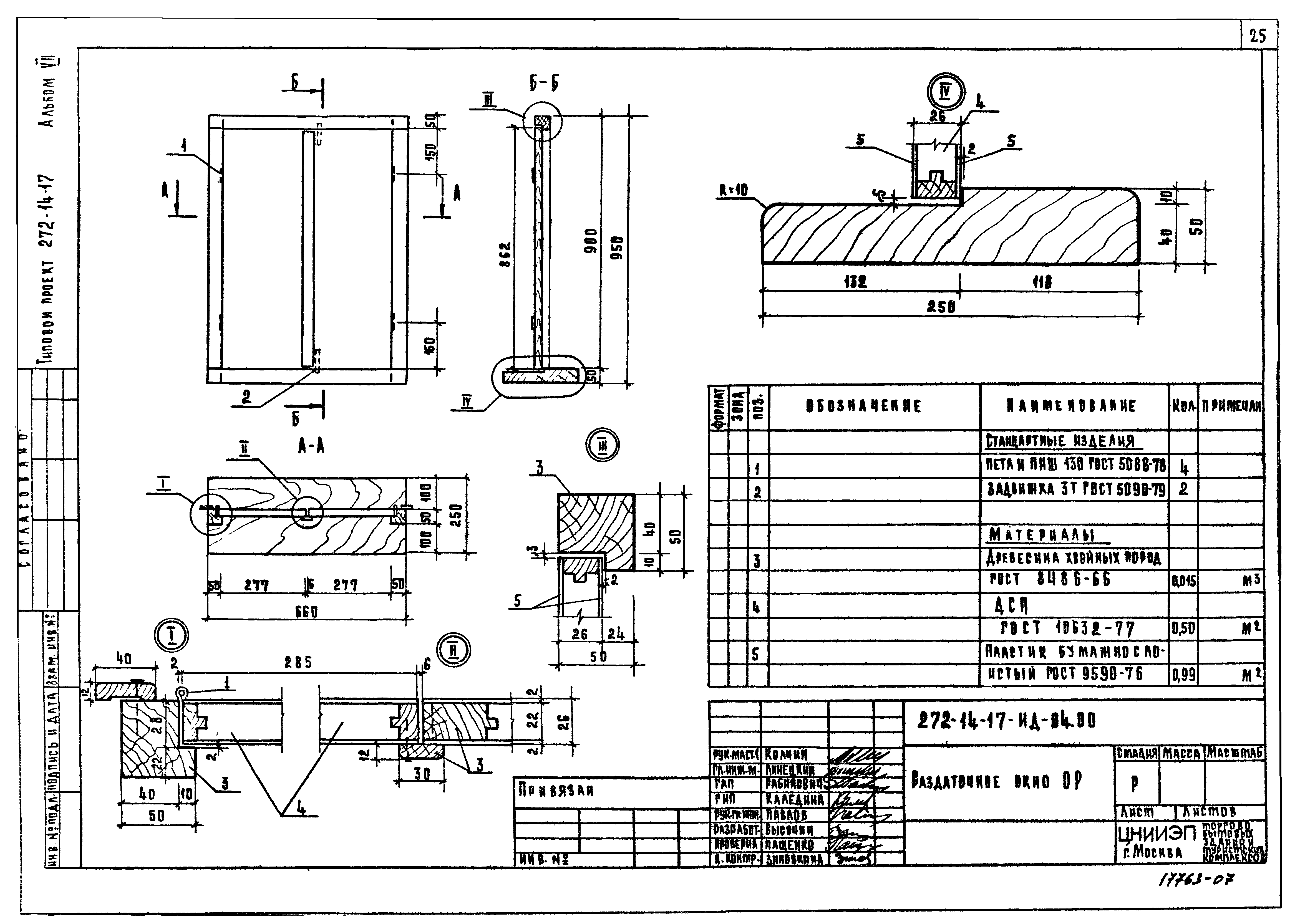
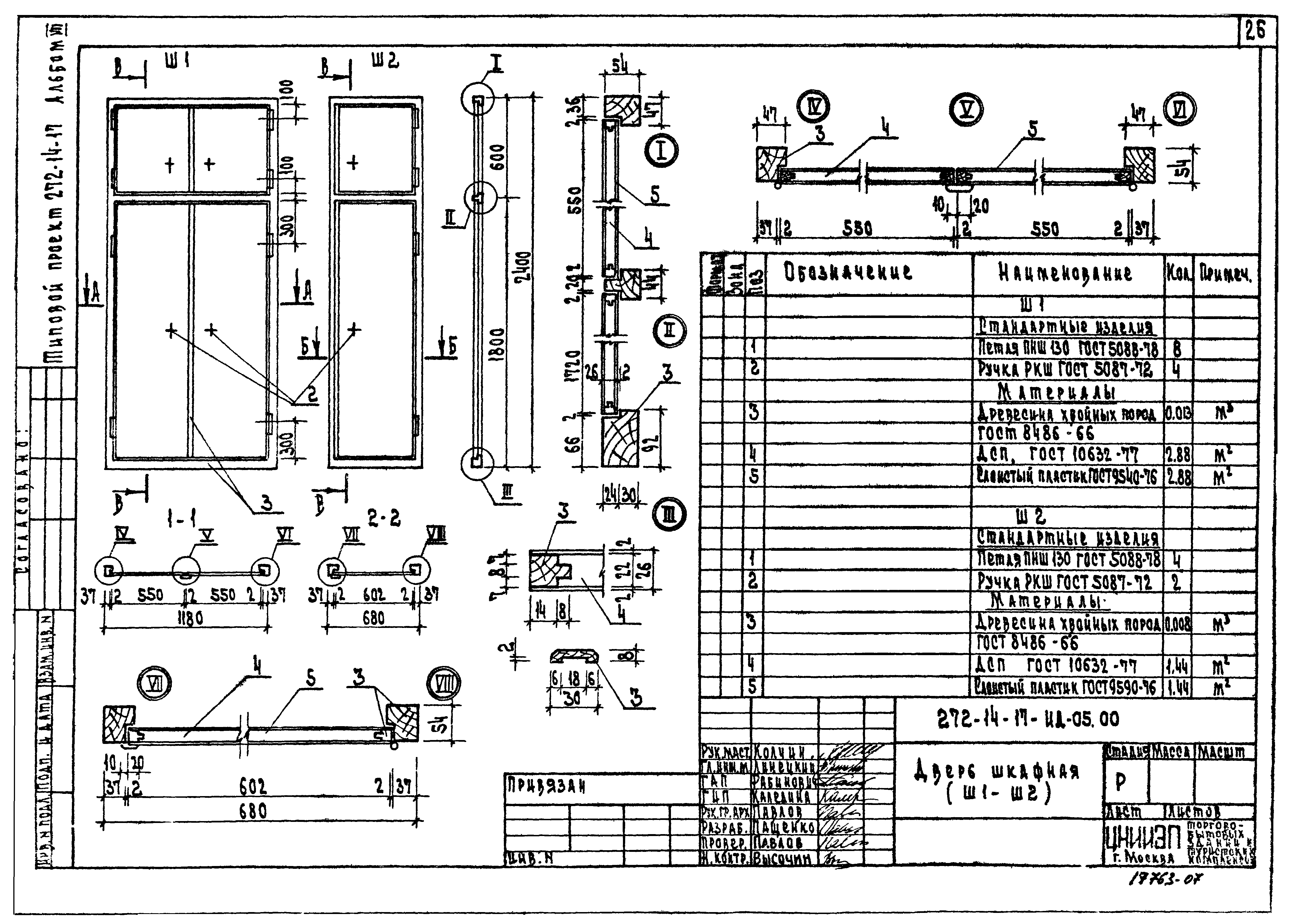
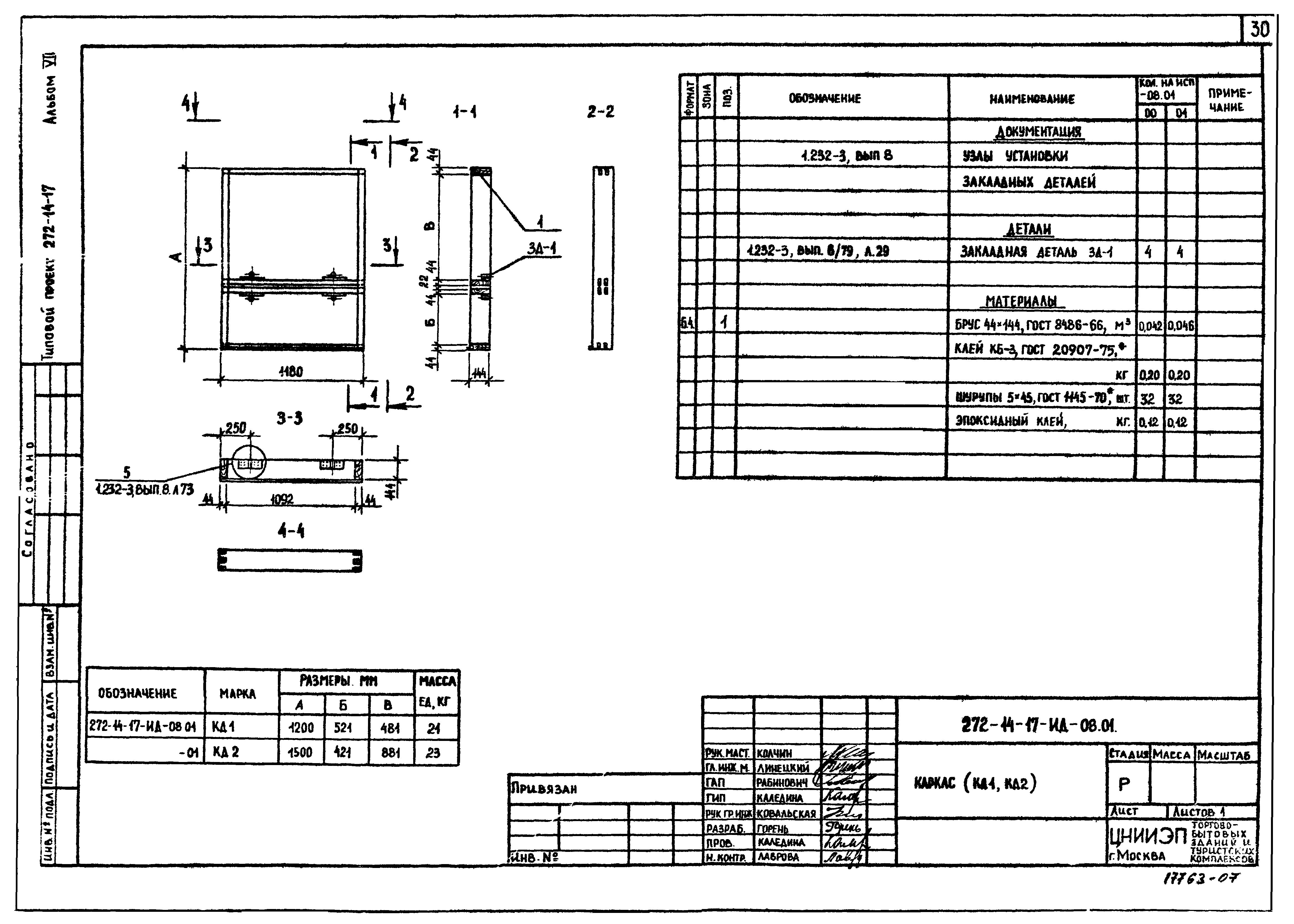
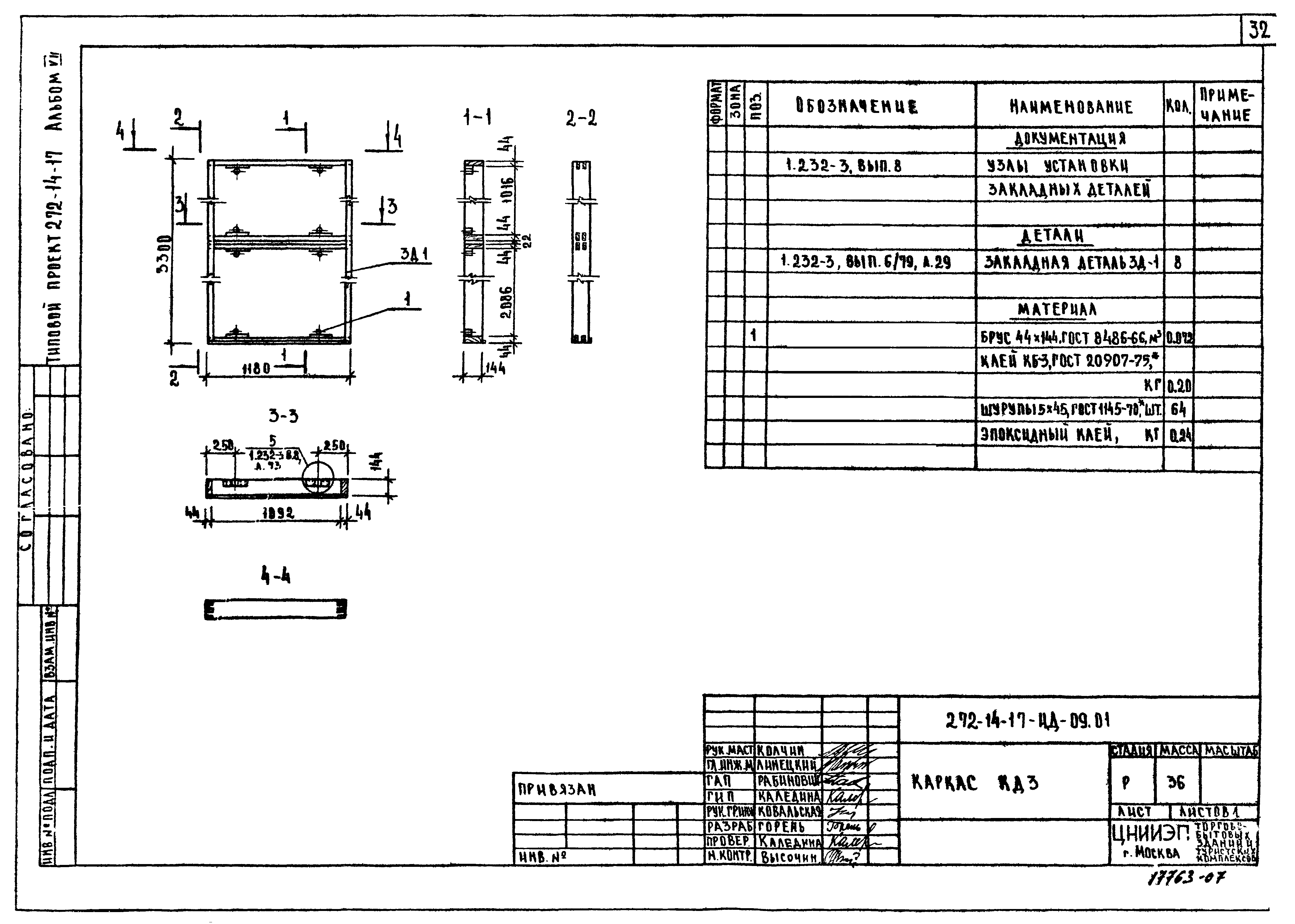
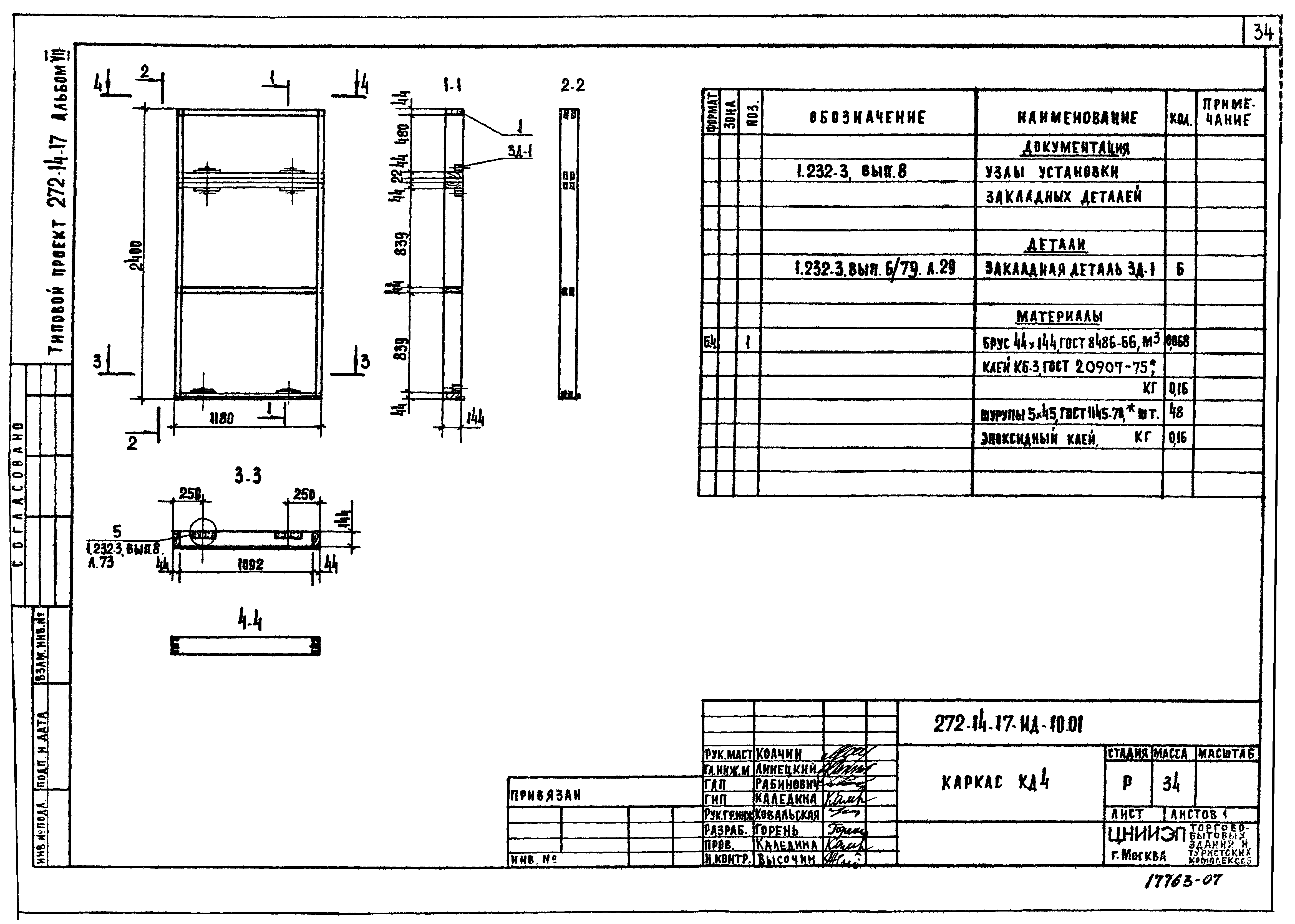
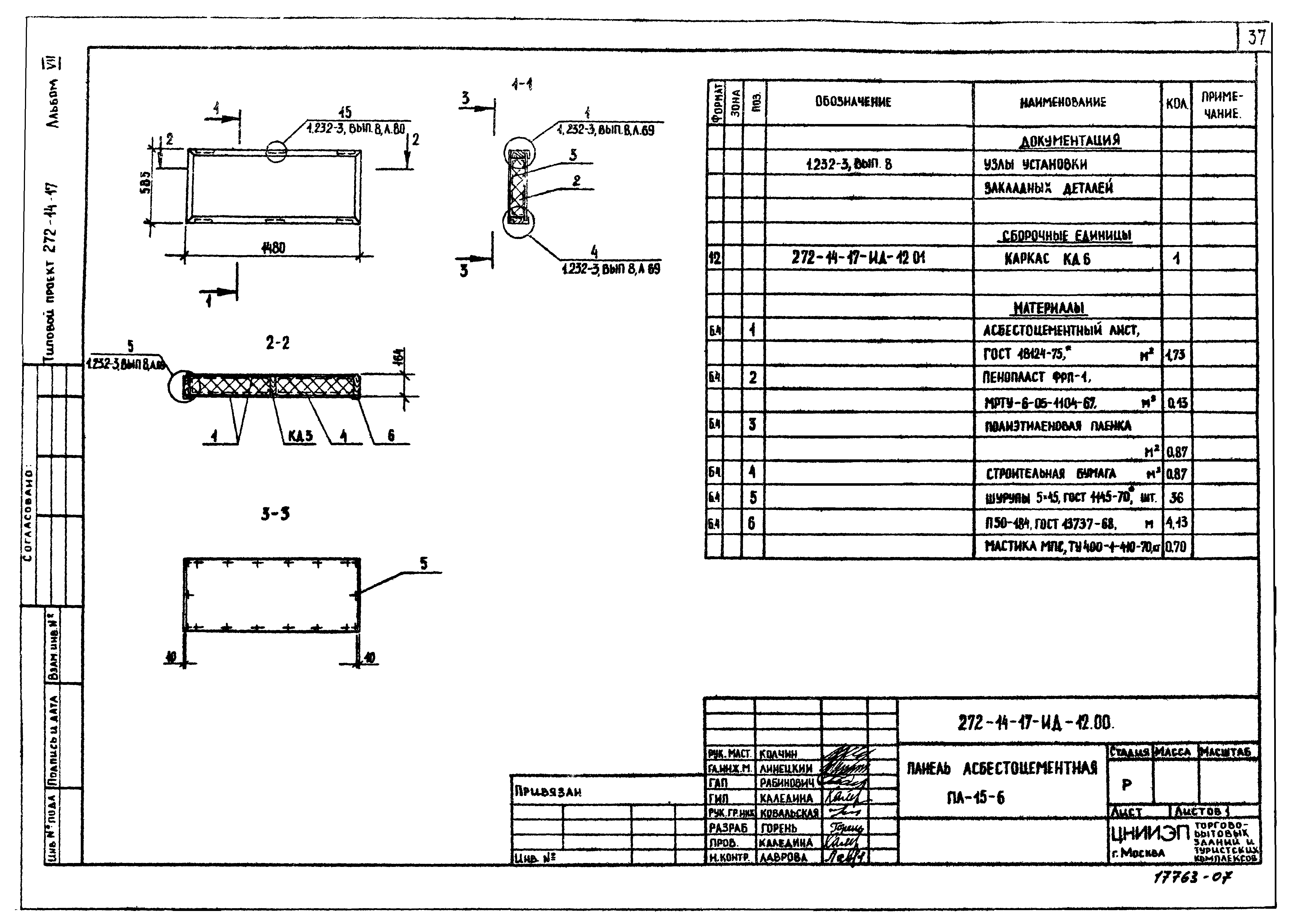
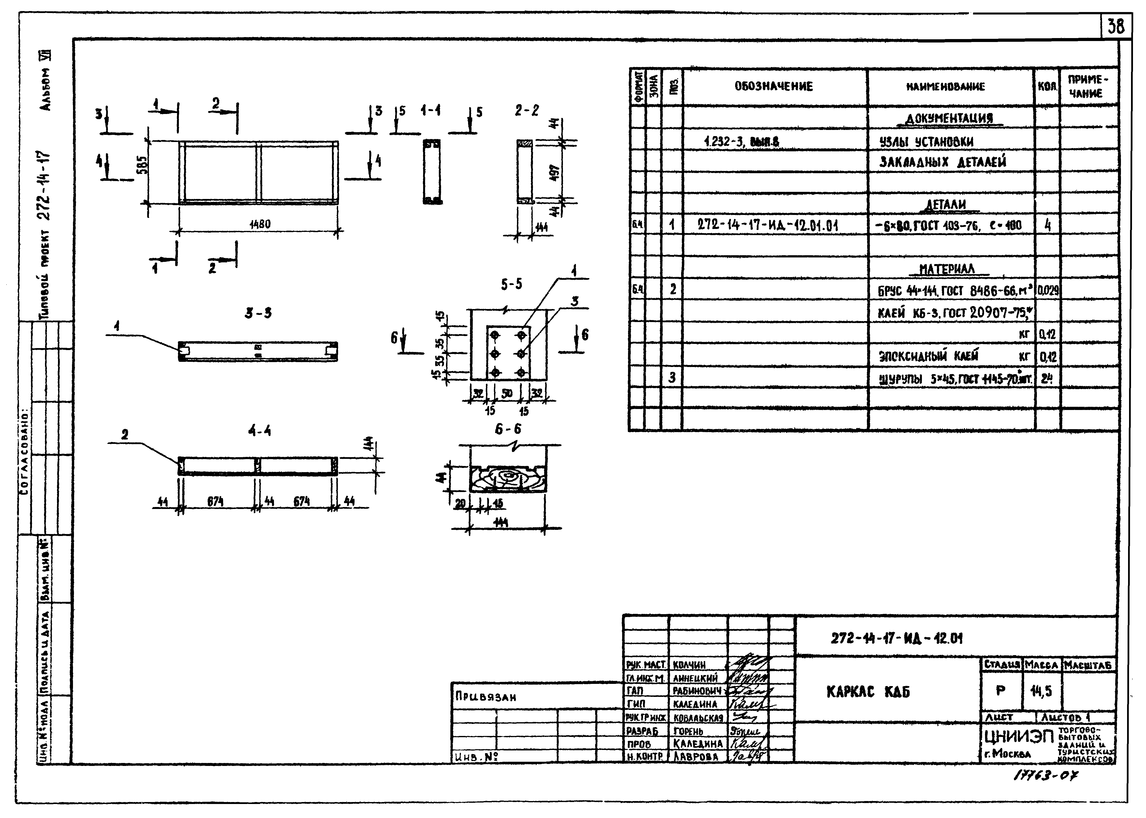
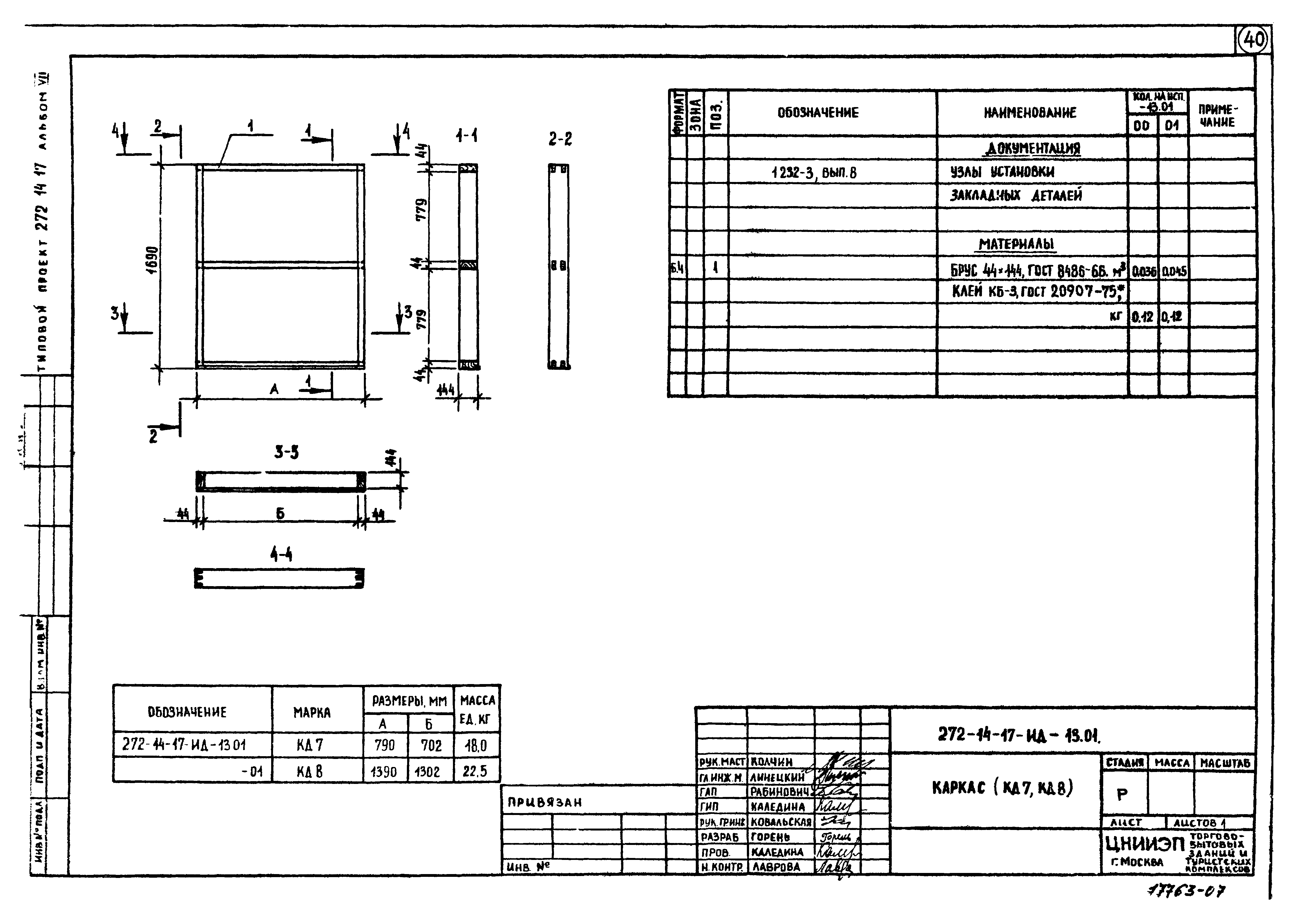
| Оглавление: | 272-14-17-ИЖ2-00.00ДО Ведомость чертежей 272-14-17-ИЖ2-01.00 Рама металлическая РМ1 272-14-17-ИЖ2-02.00 Каркас пространственный КП1 272-14-17-ИЖ2-03.00 Каркас плоский К1 272-14-17-ИЖ2-04.00 Каркас плоский К2 272-14-17-ИЖ2-05.00 Каркас плоский (К3, К4) 272-14-17-ИЖ2-06.00 Каркас плоский К-5 272-14-17-ИЖ2-07.00 Сетка (С1, С2) 272-14-17-ИЖ2-08.00 Сетка С3 272-14-17-ИЖ2-09.00 Анкер А1 272-14-17-ИЖ2-10.00 Анкер А2 272-14-17-ИЖ2-11.00 Анкер (А3, А4, А6) 272-14-17-ИЖ2-12.00 Анкер А5 272-14-17-ИЖ2-13.00 Анкер А7 272-14-17-ИЖ2-14.00 Анкер А8 272-14-17-ИЖ2-15.00 Изделие закладное (ЗД1, ЗД2, ЗД4 - ЗД6, ЗД8) 272-14-17-ИЖ2-16.00 Изделие закладное ЗД3 272-14-17-ИЖ2-17.00 Изделие закладное ЗД7 272-14-17-ИЖ2-18.00 Изделие закладное ЗД9 272-14-17-ИМ-00.00ДО Ведомость чертежей 272-14-17-ИМ-01.00 Лестница металлическая МЛ1 272-14-17-ИМ-02.00 Кронштейн КР1 272-14-17-ИМ-03.00 Кольцо стальное СК1 272-14-17-ИМ-04.00 Кольцо стальное СК2 272-14-17-ИМ-05.00 Калитка М1 272-14-17-ИМ-06.00 Рама МР1 272-14-17-ИМ-07.00 Поддон МП1 272-14-17-ИМ-08.00 Лестница металлическая (пожарно-эвакуационная) МЛ2 272-14-17-ИМ-09.00 Кронштейн КР2 272-14-17-ИМ-10.00 Рама МР2 272-14-17-ИМ-11.00 Зонт 272-14-17-ИД-00.00ДО Ведомость чертежей 272-14-17-ИД-01.00 Барьер Б-1; дверь ДБ-1 272-14-17-ИД-02.00 Барьер гардеробный БГ-1. Дверь ДБ-2 272-14-17-ИД-03.00 Дверь ДР-1 272-14-17-ИД-04.00 Раздаточное окно ОР 272-14-17-ИД-05.00 Двери шкафные Ш-1; Ш-2 272-14-17-ИД-06.00 Шкаф ПК 272-14-17-ИД-07.00 Шкаф слабых токов 272-14-17-ИД-08.00 Панель асбестоцементная (ПА-12-12, ПА-12-15) 272-14-17-ИД-08.01 Каркас (КД1, КД2) 272-14-17-ИД-09.00 Панель асбестоцементная ПА-12-33 272-14-17-ИД-09.01 Каркас КД3 272-14-17-ИД-10.00 Панель асбестоцементная ПА-12-24 272-14-17-ИД-10.01 Каркас КД4 272-14-17-ИД-11.00 Панель асбестоцементная ПА-12-12-01 272-14-17-ИД-11.01 Каркас КД5 272-14-17-ИД-12.00 Панель асбестоцементная ПА-15-16 272-14-17-ИД-12.01 Каркас КД6 272-14-17-ИД-13.00 Панель асбестоцементная (ПА-8-17, ПА-14-17) 272-14-17-ИД-13.01 Каркас (КД7, КД8) |
| Разработан: | ЦНИИЭП торгово-бытовых зданий и туристских комплексов |
| Утверждён: | 13.10.1980 Госгражданстрой (Gosgrazhdanstroy 265) |









































