Скачать Серия ТДК-Н-1-75/2 Выпуск 2. Часть II. Монолитные участки. Монолитные участки № 11 - 28. Рабочие чертежиДата актуализации: 01.01.2021
|
| Обозначение: | Серия ТДК-Н-1-75/2 |
| Обозначение англ: | Series ТДК-Н-1-75/2 |
| Статус: | действует |
| Название рус.: | Выпуск 2. Часть II. Монолитные участки. Монолитные участки № 11 - 28. Рабочие чертежи |
| Дата добавления в базу: | 01.09.2013 |
| Дата актуализации: | 01.01.2021 |
| Дата введения: | 30.11.1977 |
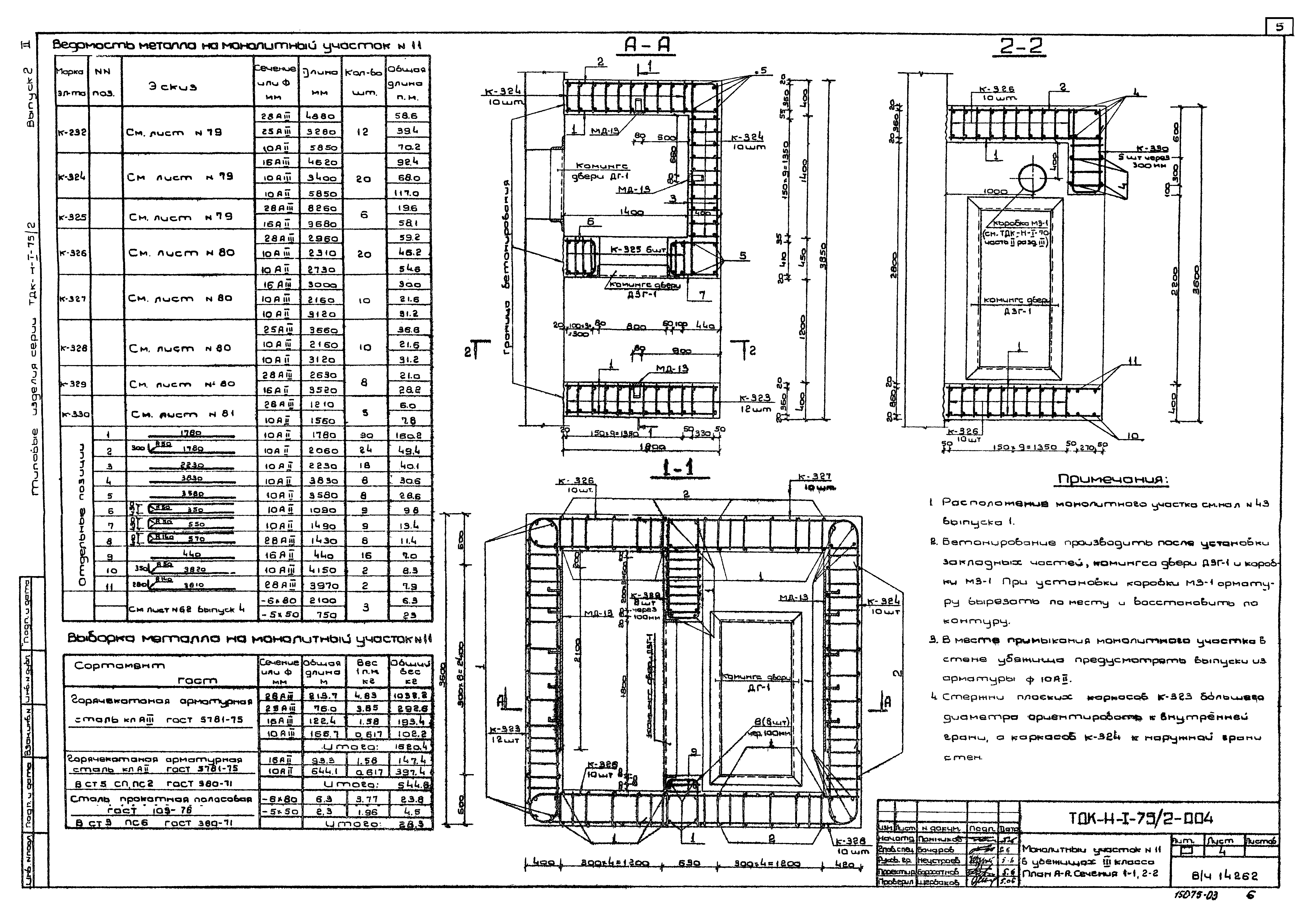
| Оглавление: | Титульный лист Ведомость чертежей части II выпуска 2 Монолитный участок №11 в убежищах V класса. План А-А. Сечения 1-1, 2-2 Монолитный участок №11 в убежищах IV класса. План А-А. Сечения 1-1, 2-2 Монолитный участок №11 в убежищах III класса. План А-А. Сечения 1-1, 2-2 Монолитный участок №11 в убежищах II класса. План А-А. Сечения 1-1, 2-2 Монолитный участок №12 в убежищах V класса. План А-А. Сечения 1-1, 2-2 Монолитный участок №12 в убежищах IV класса. План А-А. Сечения 1-1, 2-2 Монолитный участок №12 в убежищах II, III классов. План А-А. Сечения 1-1, 2-2 Монолитный участок №13. План А-А. Сечения 1-1, 2-2 Монолитный участок №14 в убежищах II класса. План А-А Монолитный участок №14 в убежищах II класса. Сечение 1-1 Монолитный участок №14 в убежищах II класса. Сечения 2-2, 3-3 Монолитный участок №15 в убежищах II класса. План А-А Монолитный участок №15 в убежищах II класса. Сечения 1-1, 2-2 Монолитный участок №16. План А-А Монолитный участок №16. Сечения 1-1, 2-2 Монолитный участок №16. Сечение 3-3 Монолитный участок №17 в убежищах V класса. План А-А. Сечения 1-1, 2-2 Монолитный участок №17 в убежищах IV класса. План А-А. Сечения 1-1, 2-2 Монолитный участок №17 в убежищах III класса. План А-А. Сечения 1-1, 2-2 Монолитный участок №17 в убежищах II класса. План А-А. Сечения 1-1, 2-2 Монолитные участки №18, 18а. План А-А. Сечения 1-1, 2-2 Монолитный участок №19. План А-А Монолитный участок №19. Сечения 1-1, 2-2 Монолитный участок №19. Сечение 3-3 Монолитный участок №20. План А-А. Сечение 1-1 Монолитный участок №20. План А-А. Сечение 2-2 Монолитный участок №21. Планы плиты перекрытия. Планы раскладок сеток Монолитный участок №22. План плиты покрытия. Планы раскладок сеток Монолитный участок №23 в убежищах V, IV классов. План А-А. Сечения 1-1, 2-2 Монолитный участок №23 в убежищах III класса. План А-А. Сечения 1-1, 2-2 Монолитный участок №23 в убежищах II класса. План А-А. Сечения 1-1, 2-2 Монолитный участок №24, 28 в убежищах V, IV классов. План А-А. Сечения 1-1, 2-2 Монолитный участок №25 в убежищах V, IV классов. План А-А. Сечения 1-1, 2-2. Вид А Монолитный участок №25 в убежищах III, II классов. План А-А. Сечения 1-1, 2-2 Монолитный участок №26 в убежищах V, IV классов. План А-А. Сечения 1-1, 2-2 Монолитный участок №26 в убежищах III класса. План А-А. Сечения 1-1, 2-2 Монолитный участок №26 в убежищах II класса. План А-А. Сечения 1-1, 2-2 Монолитный участок №27 в убежищах V, IV классов. План А-А. Сечения 1-1, 2-2 Монолитный участок №27 в убежищах III класса. План А-А. Сечения 1-1, 2-2 Монолитный участок №27 в убежищах II класса. План А-А. Сечения 1-1, 2-2 Каркасы плоские К-174 - К-177 Каркасы плоские К-178 - К-181 Каркасы плоские К-182 - К-185 Каркасы плоские К-186 - К-189 Каркасы плоские К-190 - К-193 Каркасы плоские К-194 - К-197 Каркасы плоские К-198 - К-201 Каркасы плоские К-202 - К-205 Каркасы плоские К-206 - К-209 Каркасы плоские К-210 - К-213 Каркасы плоские К-214 - К-217 Каркасы плоские К-218 - К-221 Каркасы плоские К-222 - К-225 Каркасы плоские К-226 - К-229 Каркасы плоские К-230 - К-233 Каркасы плоские К-234 - К-237 Каркасы плоские К-238 - К-241 Каркасы плоские К-242 - К-245 Каркасы плоские К-246 - К-249 Каркасы плоские К-250 - К-253 Каркасы плоские К-254 - К-257 Каркасы плоские К-258 - К-261 Каркасы плоские К-262 - К-265 Каркасы плоские К-266 - К-269 Каркасы плоские К-270 - К-273 Каркасы плоские К-274 - К-277 Каркасы плоские К-278 - К-281 Каркасы плоские К-282 - К-285 Каркасы плоские К-286 - К-289 Каркасы плоские К-290 - К-293 Каркасы плоские К-294 - К-297 Каркасы плоские К-299 - К-301 Каркасы плоские К-302 - К-305 Каркасы плоские К-306 - К-309 Каркасы плоские К-310 - К-313 Каркасы плоские К-314 - К-317 Каркасы плоские К-318 - К-321 Каркасы плоские К-322 - К-325 Каркасы плоские К-326 - К-329 Каркасы плоские К-330 - К-333 Каркасы плоские К-334 - К-337 Каркасы плоские К-338 - К-341 Каркасы плоские К-342 - К-345 Каркасы плоские К-346 - К-349 Каркасы плоские К-350 - К-353 Каркасы плоские К-354 - К-357 Каркасы плоские К-358 - К-361 Каркасы плоские К-362 - К-365 Каркасы плоские К-366 - К-369 Каркасы плоские К-370 - К-373 Каркасы плоские К-374 - К-377 Каркасы плоские К-378 - К-381 Каркасы плоские К-382 - К-385 Каркасы плоские К-386 - К-387. Сетки С-15, С-16 Сетка С-14 |
| Разработан: | В/ч 14262 |
| Утверждён: | 31.01.1977 Госстрой СССР (Государственный комитет Совета Министров СССР по делам строительства) (USSR Gosstroy 1) |

































































































