Скачать Серия 3.501-180.95 Выпуск 1. Компрессорные станции и разводящая сеть. Рабочие чертежиДата актуализации: 01.01.2021
|
| Обозначение: | Серия 3.501-180.95 |
| Обозначение англ: | Series 3.501-180.95 |
| Статус: | справочные материалы, мп, тпр |
| Название рус.: | Выпуск 1. Компрессорные станции и разводящая сеть. Рабочие чертежи |
| Дата добавления в базу: | 01.09.2013 |
| Дата актуализации: | 01.01.2021 |
| Дата введения: | 01.01.1995 |
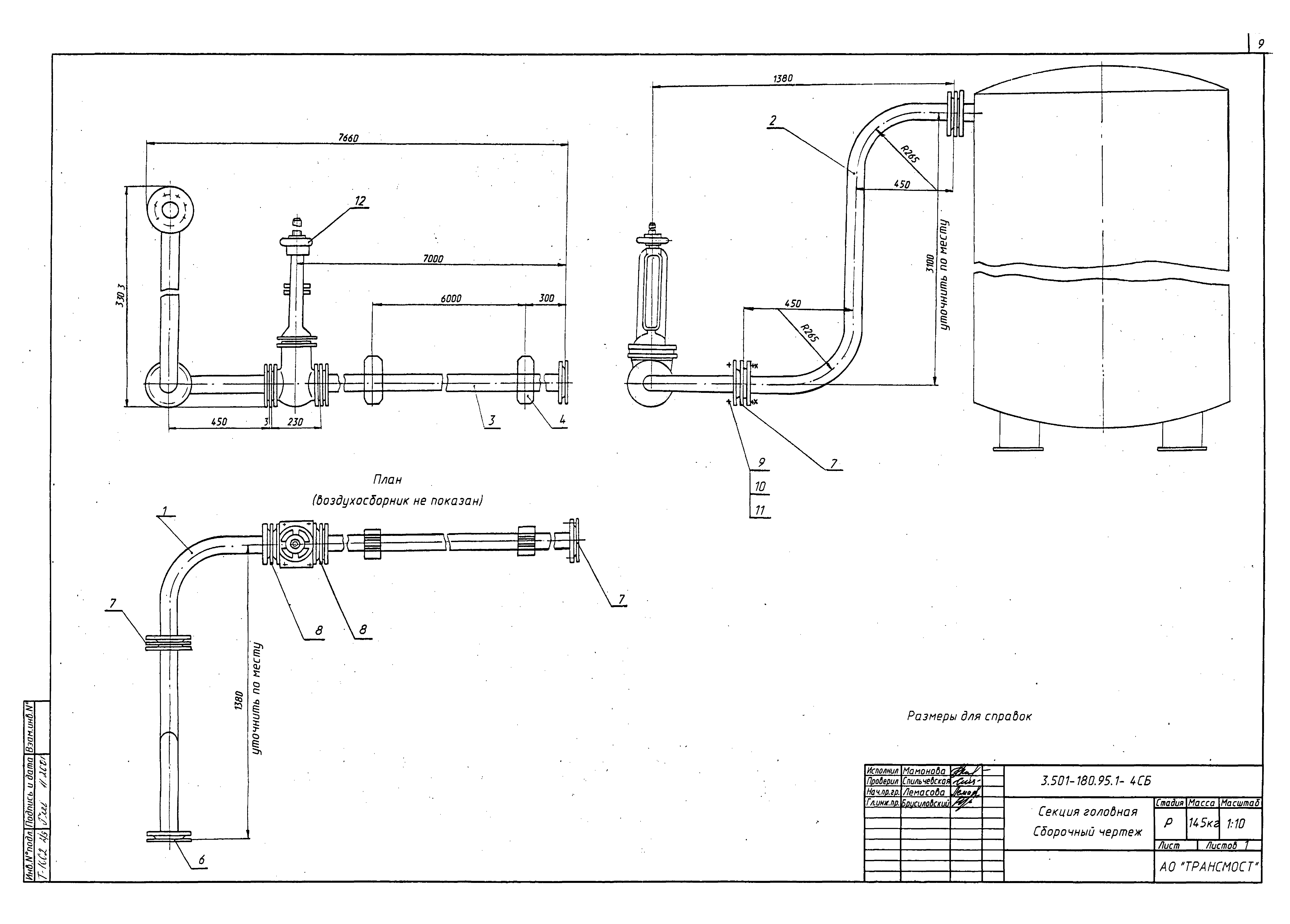
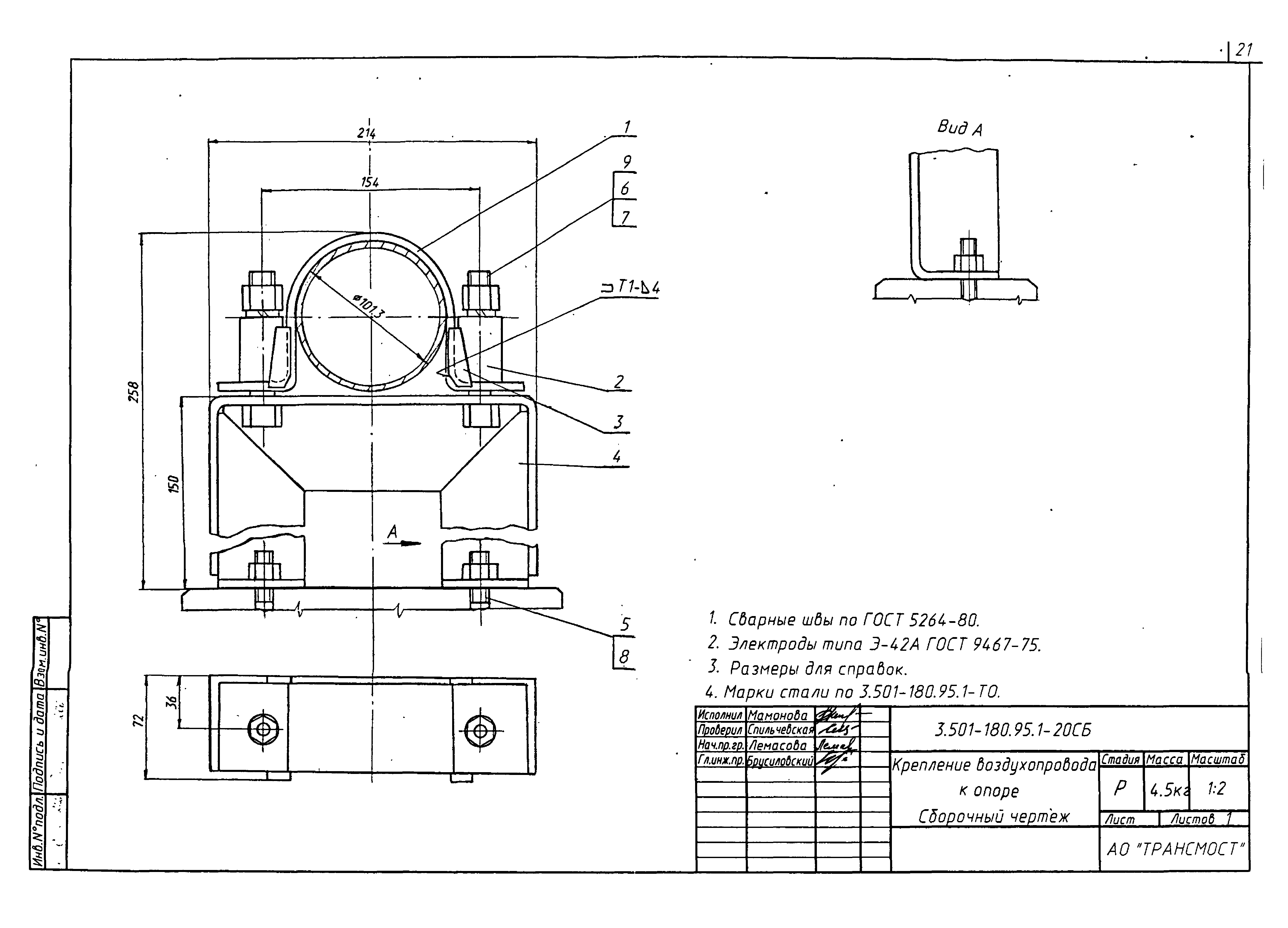
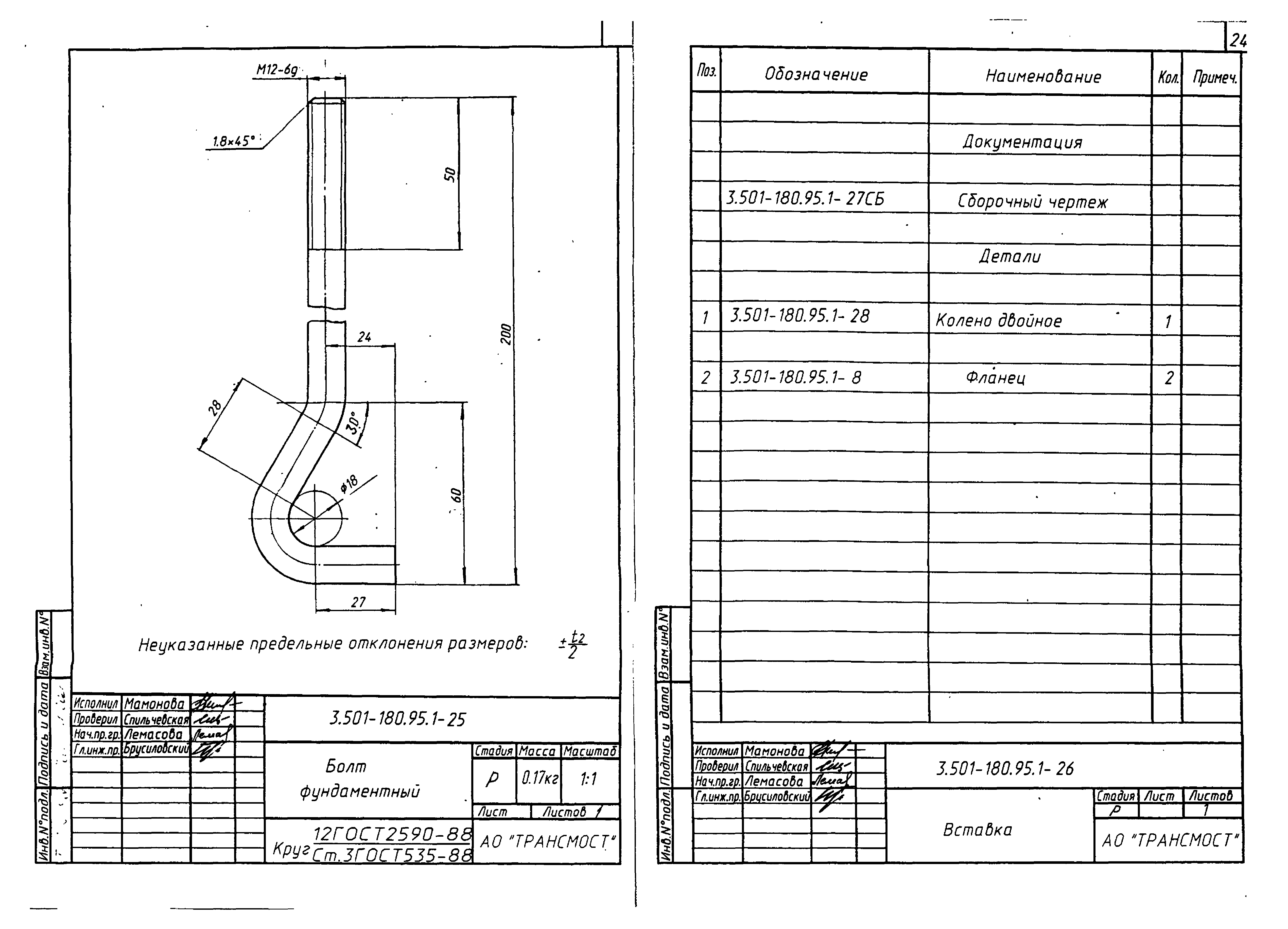
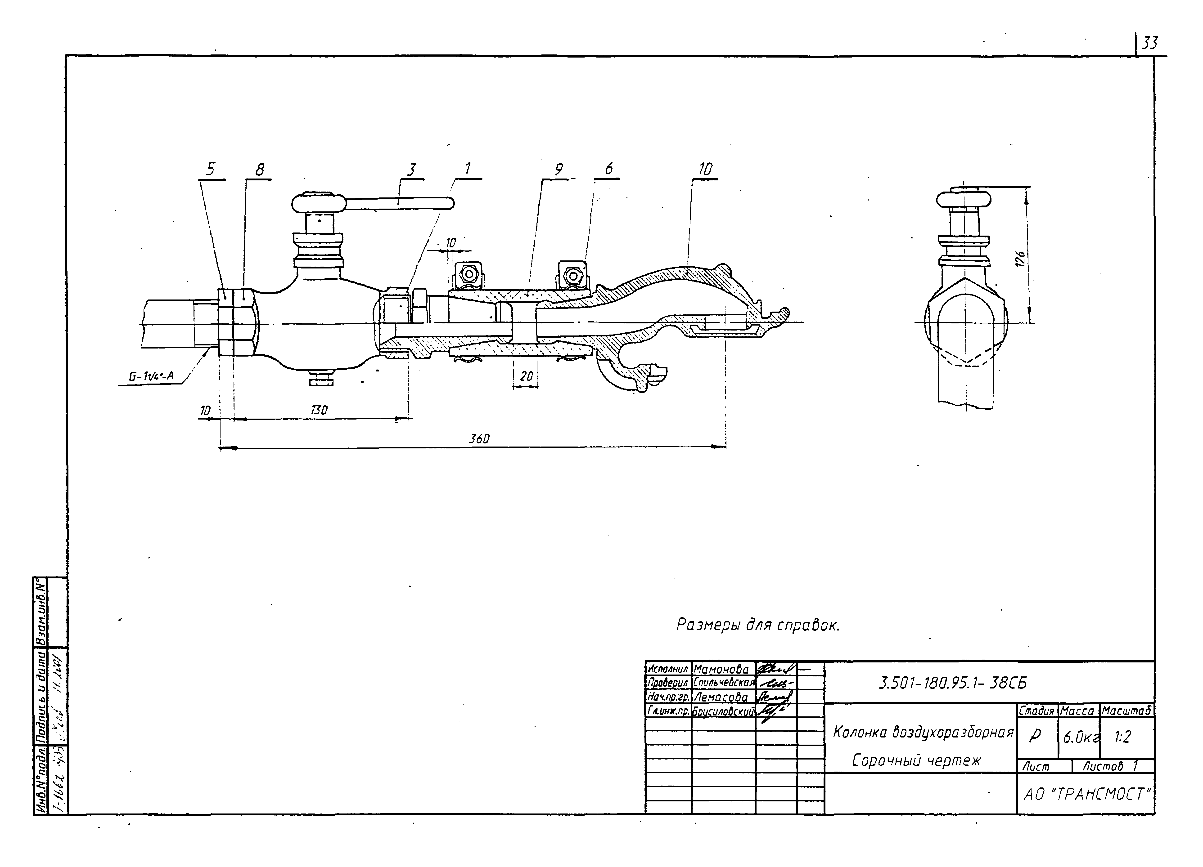
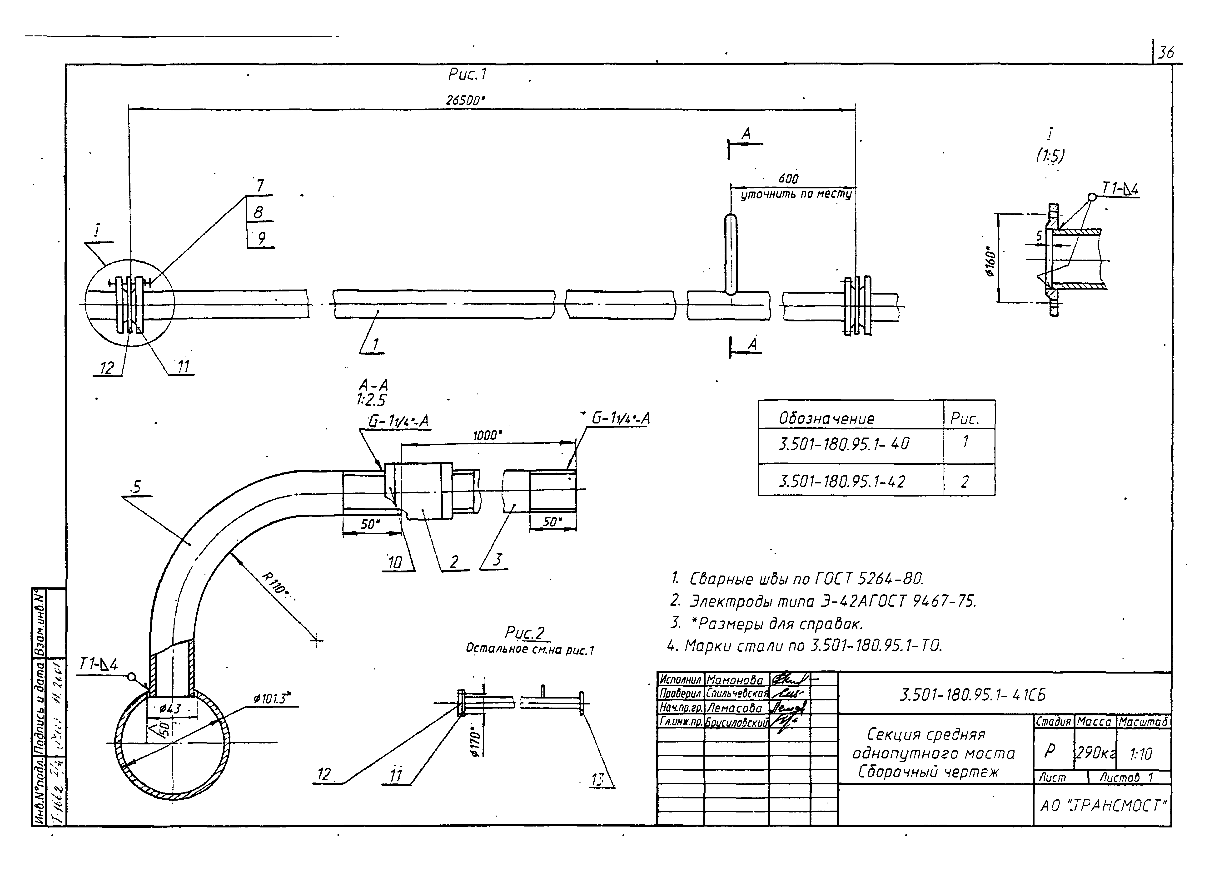
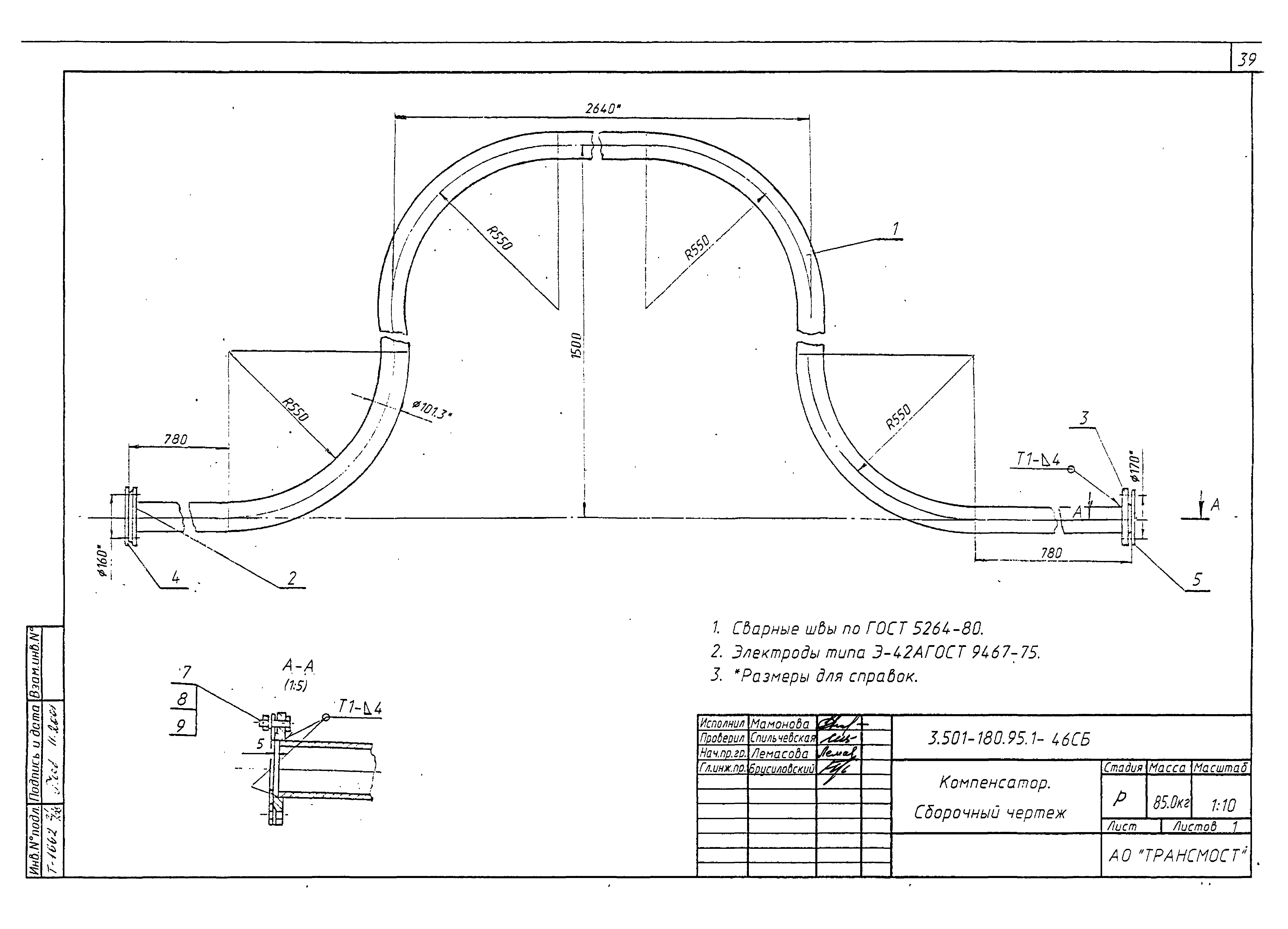
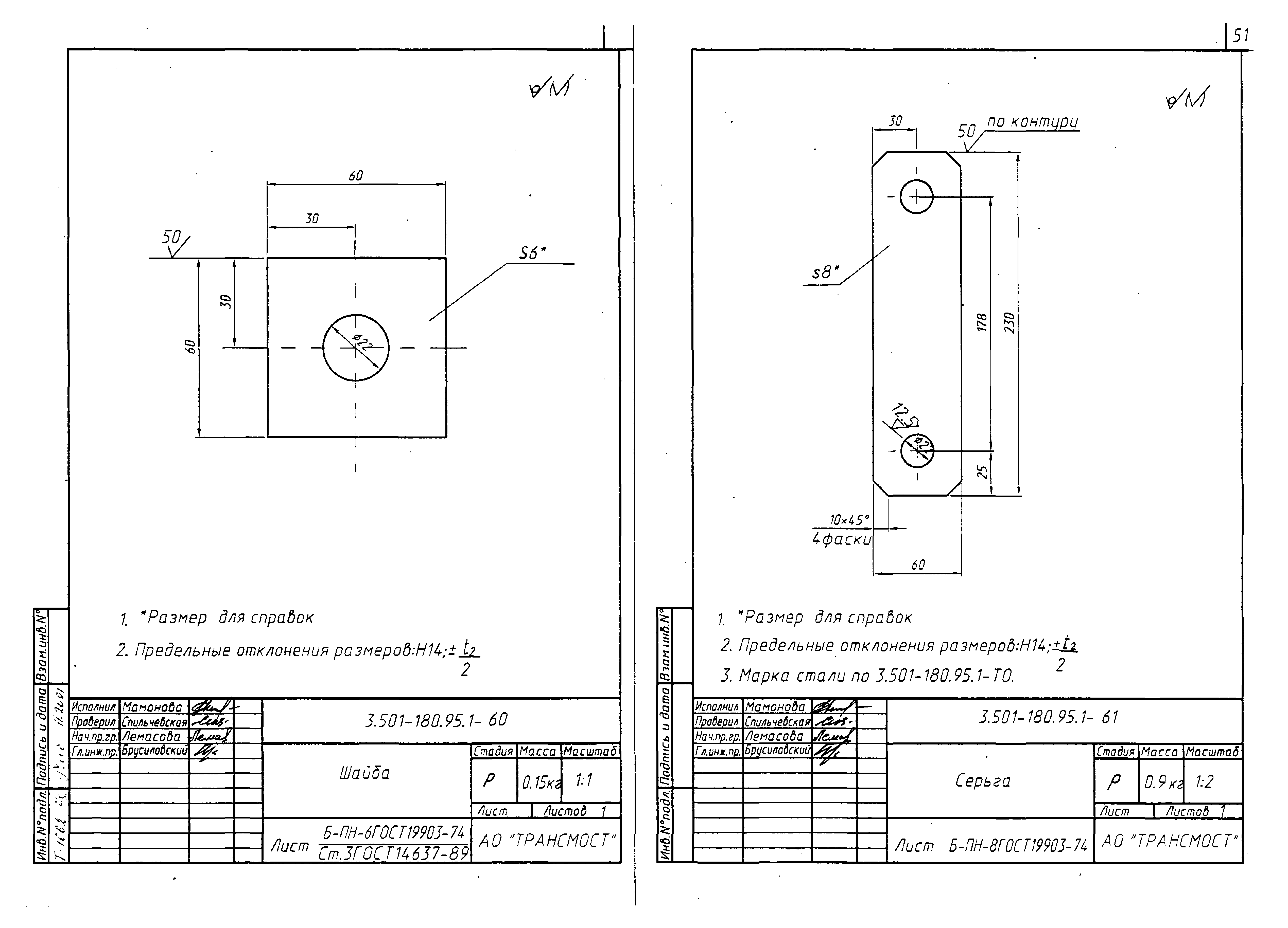
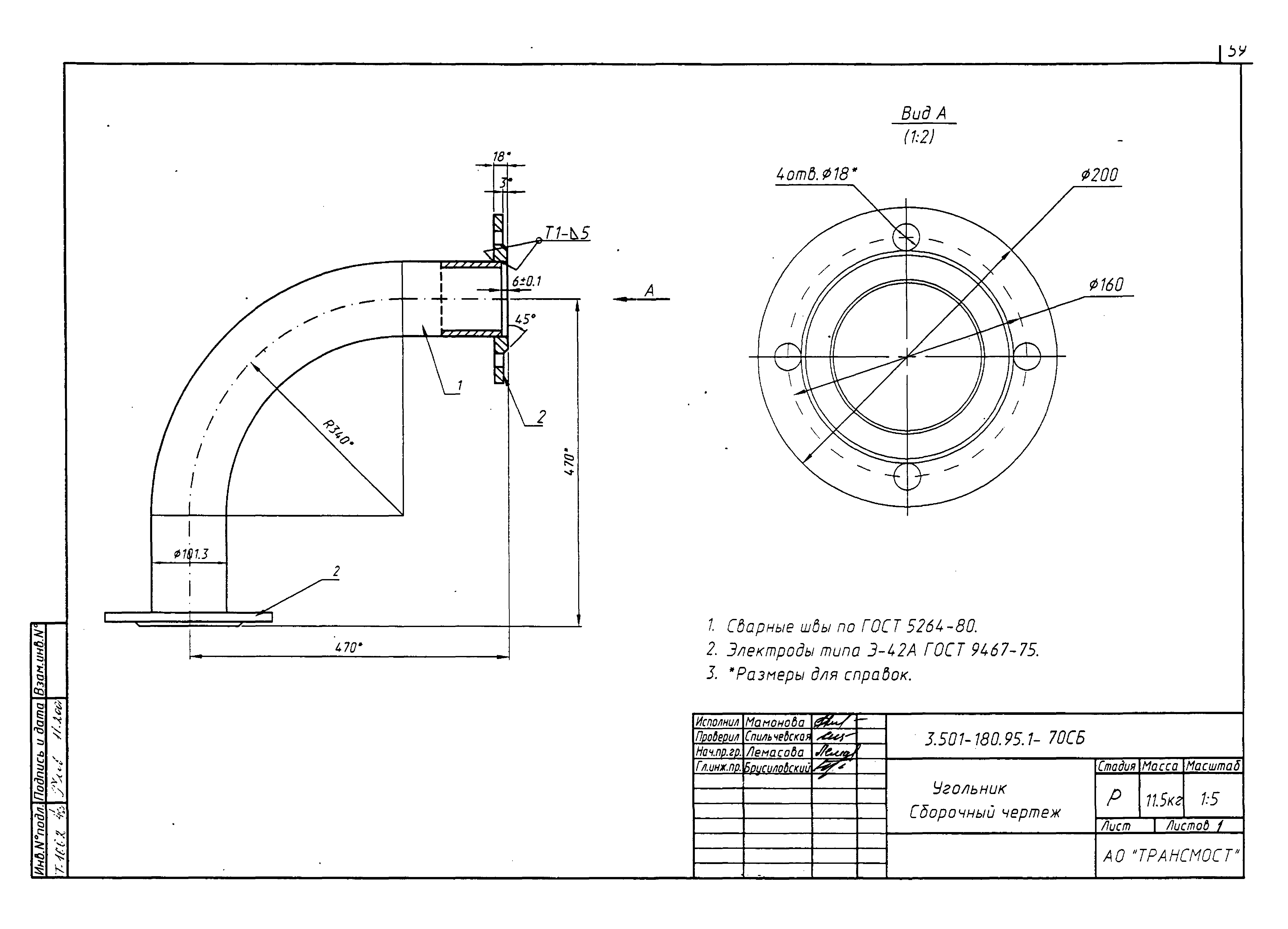
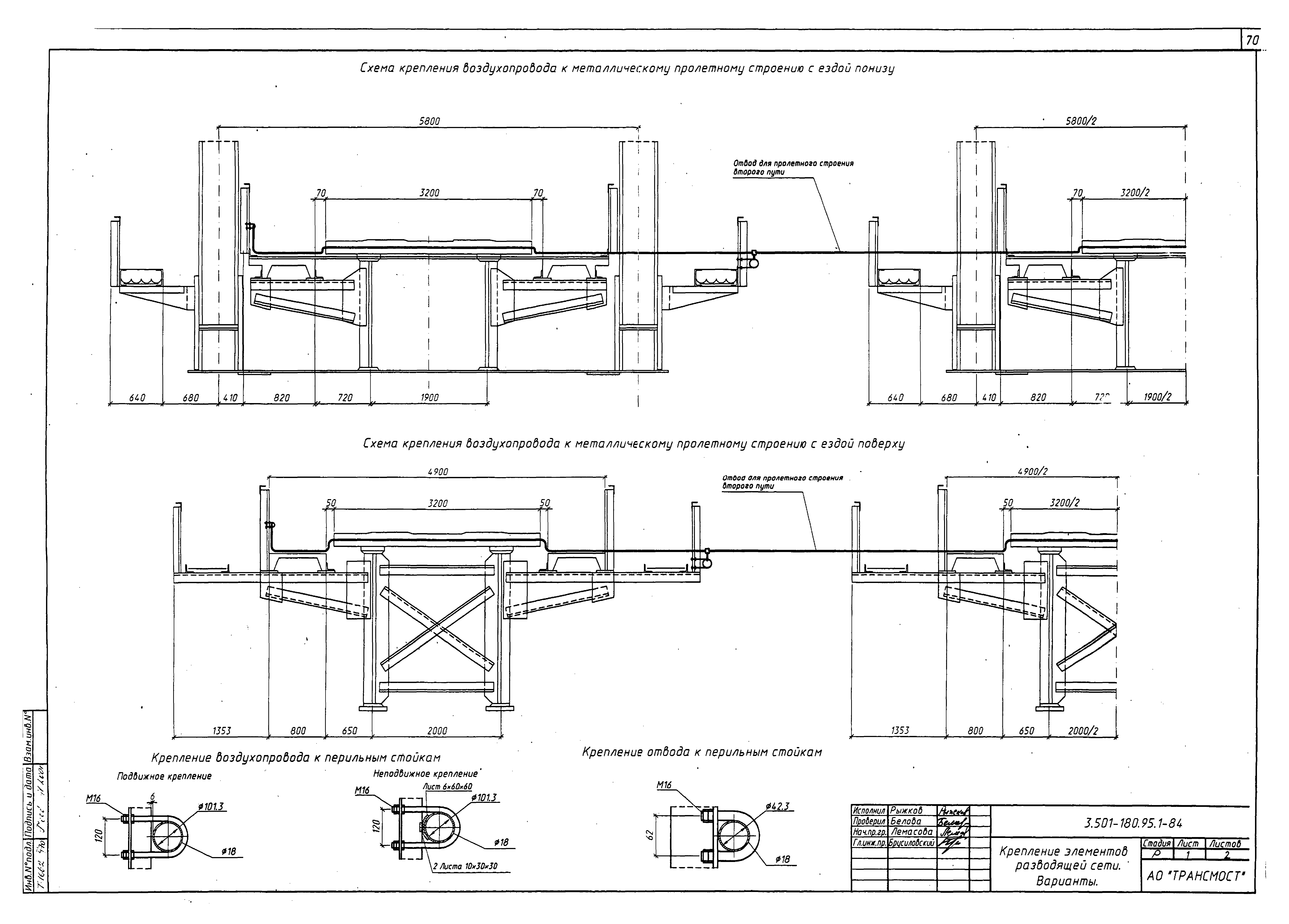
| Оглавление: | 3.501-180.95.1-ТО Техническое описание 3.501-180.95.1-1 Сеть разводящая на однопутном железнодорожном мосту длиной 500 м 3.501-180.95.1-2 Сеть разводящая на однопутном железнодорожном мосту длиной 500 м. Общий вид 3.501-180.95.1-3 Секция головная 3.501-180.95.1-4СБ Секция головная. Сборочный чертеж 3.501-180.95.1-5 Угольник 3.501-180.95.1-6СБ Угольник. Сборочный чертеж 3.501-180.95.1-7 Колено 3.501-180.95.1-8 Фланец 3.501-180.95.1-9 Фланец 3.501-180.95.1-10 Прокладка 3.501-180.95.1-11 Прокладка 3.501-180.95.1-12 Прокладка 3.501-180.95.1-13 Патрубок 3.501-180.95.1-14СБ Патрубок. Сборочный чертеж 3.501-180.95.1-15 Фланец 3.501-180.95.1-16 Колено двойное 3.501-180.95.1-17 Труба головной секции 3.501-180.95.1-18СБ Труба головной секции. Сборочный чертеж 3.501-180.95.1-19 Крепление воздухопровода к опоре 3.501-180.95.1-20СБ Крепление воздухопровода к опоре. Сборочный чертеж 3.501-180.95.1-21 Хомут 3.501-180.95.1-22 Бобышка 3.501-180.95.1-23 Ребро 3.501-180.95.1-24 Опора 3.501-180.95.1-25 Болт фундаментный 3.501-180.95.1-26 Вставка 3.501-180.95.1-27СБ Вставка. Сборочный чертеж 3.501-180.95.1-28 Колено двойное 3.501-180.95.1-29 Секция анкерная однопутного моста 3.501-180.95.1-30СБ Секция анкерная однопутного моста. Сборочный чертеж 3.501-180.95.1-31 Отвод 3.501-180.95.1-32 Патрубок 3.501-180.95.1-33 Труба 3.501-180.95.1-34 Труба 3.501-180.95.1-35 Наконечник 3.501-180.95.1-36 Ключ 3.501-180.95.1-37 Колонка воздухоразборная 3.501-180.95.1-38СБ Колонка воздухоразборная. Сборочный чертеж 3.501-180.95.1-39 Ниппель 3.501-180.95.1-40 Секция средняя однопутного моста 3.501-180.95.1-41СБ Секция средняя однопутного моста. Сборочный чертеж 3.501-180.95.1-42СБ Секция средняя однопутного моста. Сборочный чертеж 3.501-180.95.1-43 Муфта 3.501-180.95.1-44 Отвод 3.501-180.95.1-45 Компенсатор 3.501-180.95.1-46СБ Компенсатор. Сборочный чертеж 3.501-180.95.1-47 Труба компенсатора 3.501-180.95.1-48 Секция концевая однопутного моста 3.501-180.95.1-49СБ Секция концевая однопутного моста. Сборочный чертеж 3.501-180.95.1-50 Заглушка 3.501-180.95.1-51 Крепление воздухопровода неподвижное 3.501-180.95.1-52СБ Крепление воздухопровода неподвижное. Сборочный чертеж 3.501-180.95.1-53 Фиксатор 3.501-180.95.1-54 Хомут 3.501-180.95.1-55 Уголок внутренний горизонтальный 3.501-180.95.1-56 Уголок наружный горизонтальный 3.501-180.95.1-57 Прокладка хомута 3.501-180.95.1-58 Крепление воздухопровода. Подвижное 3.501-180.95.1-59СБ Крепление воздухопровода. Подвижное. Сборочный чертеж 3.501-180.95.1-60 Шайба 3.501-180.95.1-61 Серьга 3.501-180.95.1-62 Кронштейн 3.501-180.95.1-63 Ребро 3.501-180.95.1-64 Хомут 3.501-180.95.1-65 Сеть разводящая на двухпутном железнодорожном мосту длиной 500 м 3.501-180.95.1-66 Сеть разводящая на двухпутном железнодорожном мосту длиной 500 м. Общий вид 3.501-180.95.1-67 Секция горизонтальная 3.501-180.95.1-68СБ Секция горизонтальная. Сборочный чертеж 3.501-180.95.1-69 Угольник 3.501-180.95.1-70СБ Угольник. Сборочный чертеж 3.501-180.95.1-71 Колено 3.501-180.95.1-72 Секция анкерная двухпутного моста 3.501-180.95.1-73СБ Секция анкерная двухпутного моста. Сборочный чертеж 3.501-180.95.1-74 Отвод 3.501-180.95.1-75 Отвод 3.501-180.95.1-76 Отвод 3.501-180.95.1-77 Отвод 3.501-180.95.1-78 Тройник 3.501-180.95.1-79 Секция средняя двухпутного моста 3.501-180.95.1-80СБ Секция средняя двухпутного моста. Сборочный чертеж 3.501-180.95.1-81СБ Секция средняя двухпутного моста. Сборочный чертеж 3.501-180.95.1-82 Секция концевая двухпутного моста 3.501-180.95.1-83СБ Секция концевая двухпутного моста. Сборочный чертеж 3.501-180.95.1-84 Крепление элементов разводящей сети. Варианты |
| Разработан: | АО Трансмост |
| Утверждён: | МПС РФ (Russian Federation Ministry of Railroads ) |






































































