Скачать Типовой проект 252-3-26 Альбом X. Часть 1. Узлы. Узлы общестроительных и архитектурных решенийДата актуализации: 01.01.2021
|
| Обозначение: | Типовой проект 252-3-26 |
| Обозначение англ: | 252-3-26 |
| Статус: | не определен законодательством |
| Название рус.: | Альбом X. Часть 1. Узлы. Узлы общестроительных и архитектурных решений |
| Дата добавления в базу: | 01.09.2013 |
| Дата актуализации: | 01.01.2021 |
| Дата введения: | 25.09.1980 |
| Дата окончания срока действия: | 30.06.2003 |
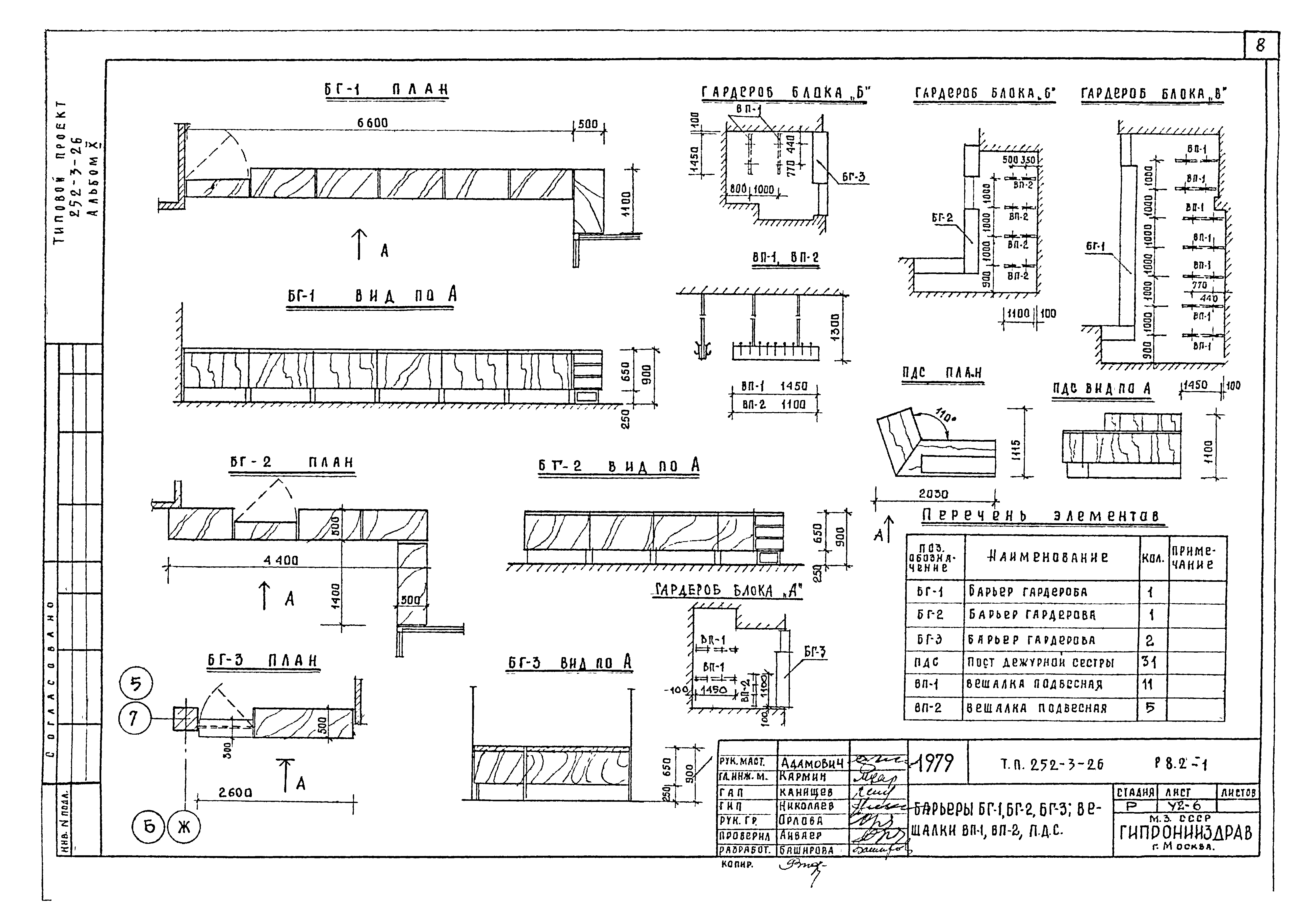
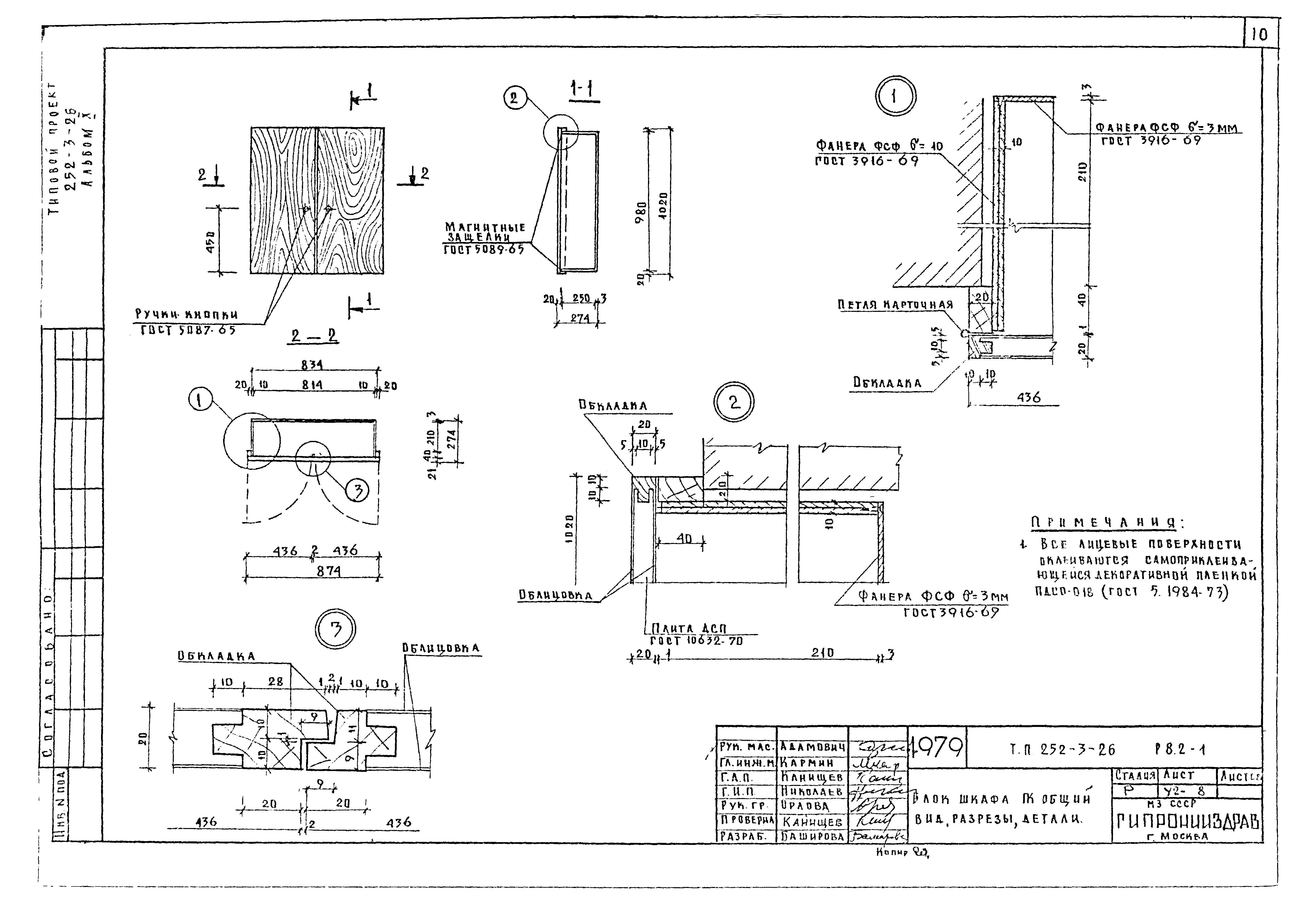
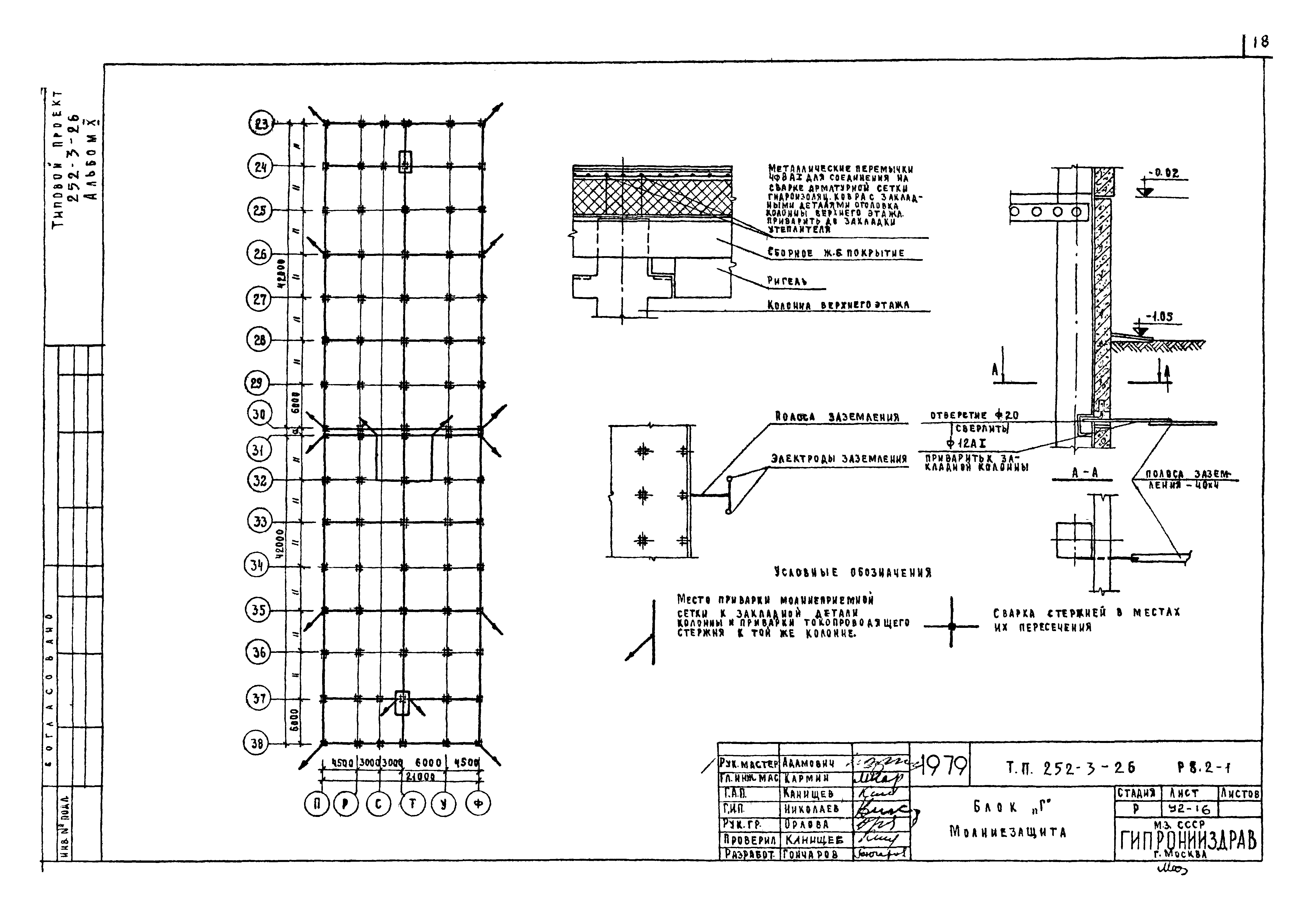
| Оглавление: | Обложка Титульный лист Заглавный лист Узлы №1, 2, 3, 4 Узлы №5, 6, 7, 8 Узлы №9, 10, 11 Узлы №12, 13 ,14, 15 Выход на кровлю. План, фасады, разрез Барьеры БГ-1; БГ-2; БГ-3; вешалки ВП-1; ВП-2; ПДС Барьеры БР-1; БР-2; БР-3; БР-4 Блок шкафа ПК. Общий вид, разрезы, детали Узлы №16, 17 Узлы №18, 19 Узел №20 Узлы №21, 22 и 23 Вентшахты на кровле Узлы вентшахты Молниезащита блоков "А", "Б", "В" Молниезащита блока "Г" Люк монтажный 800х800 Люк монтажный 1200х1200 Установка фундаментных плит под вентиляторы Схемы крепления стеновых панелей к элементам каркаса в блоках А, Б, В Установка вибрирующих плит под насосы |
| Разработан: | ГипроНИИздрав Минздрава СССР |
| Утверждён: | 15.12.1977 Министерство здравоохранения СССР (USSR Ministry of Health Care 1112) |

























