Скачать Типовой проект 407-3-590.90 Альбом 4. Строительные изделия (из ТП 407-3-586.90)Дата актуализации: 01.01.2021
|
| Обозначение: | Типовой проект 407-3-590.90 |
| Обозначение англ: | 407-3-590.90 |
| Статус: | справочные материалы, мп, тпр |
| Название рус.: | Альбом 4. Строительные изделия (из ТП 407-3-586.90) |
| Дата добавления в базу: | 01.09.2013 |
| Дата актуализации: | 01.01.2021 |
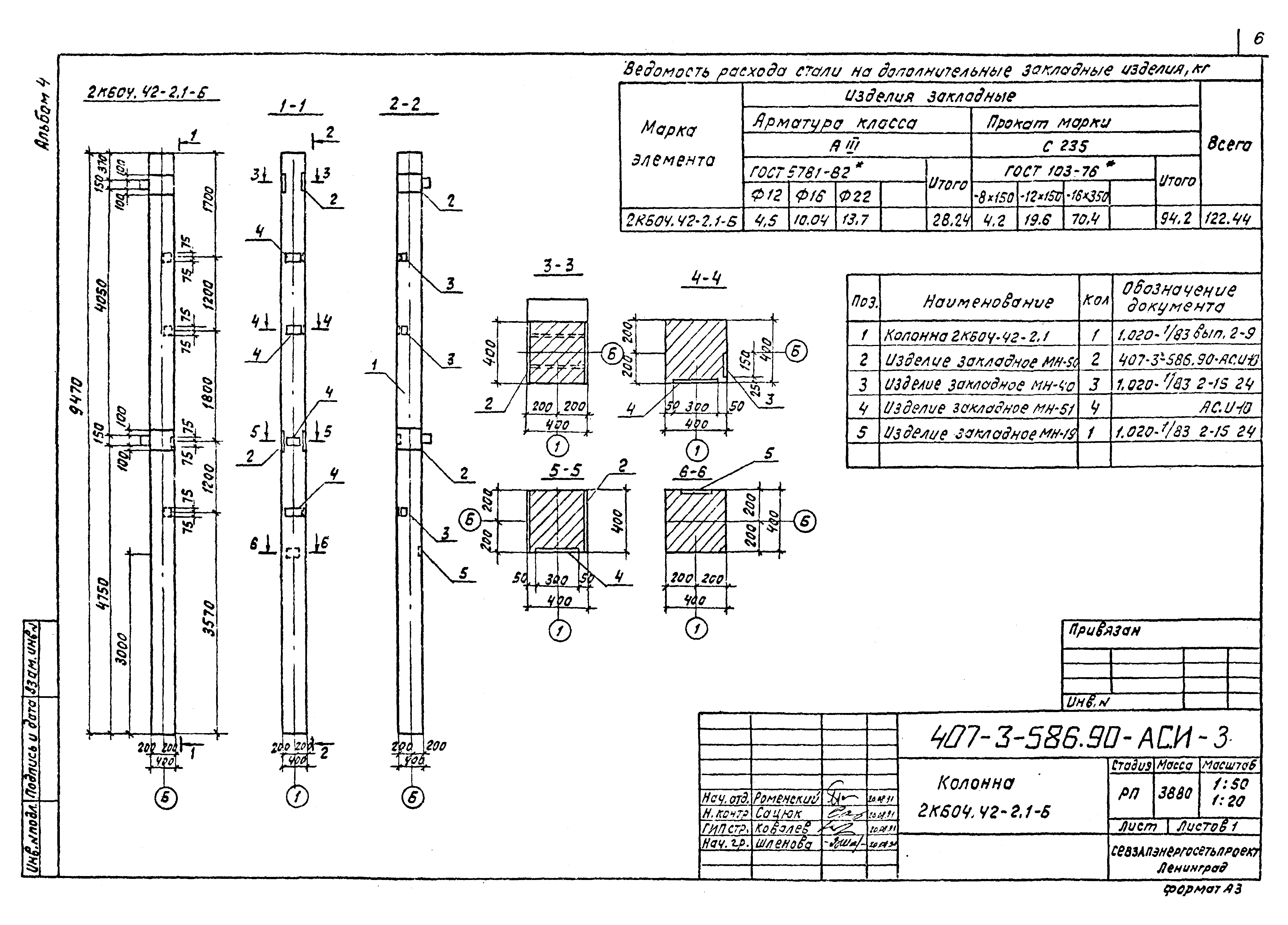
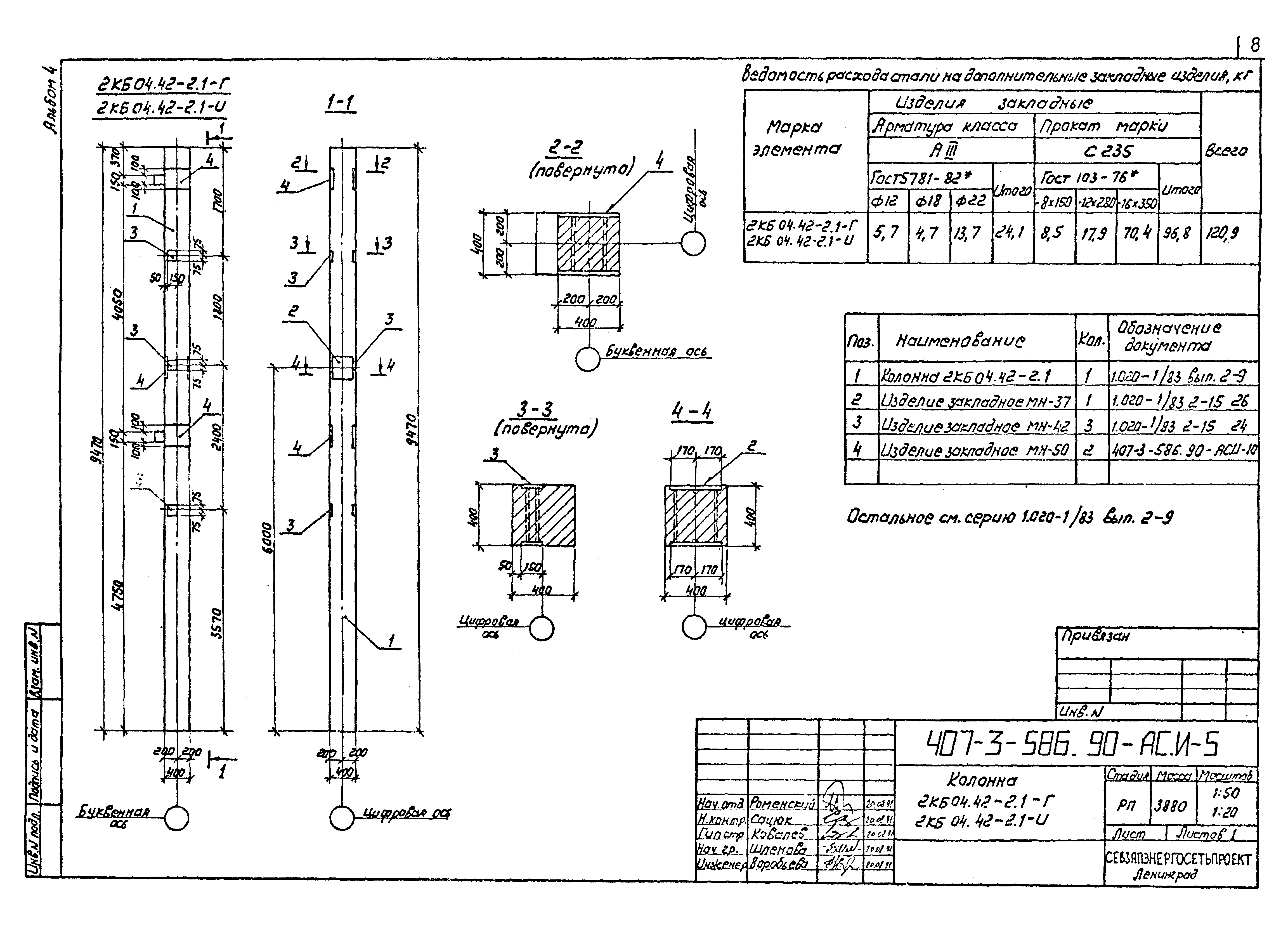
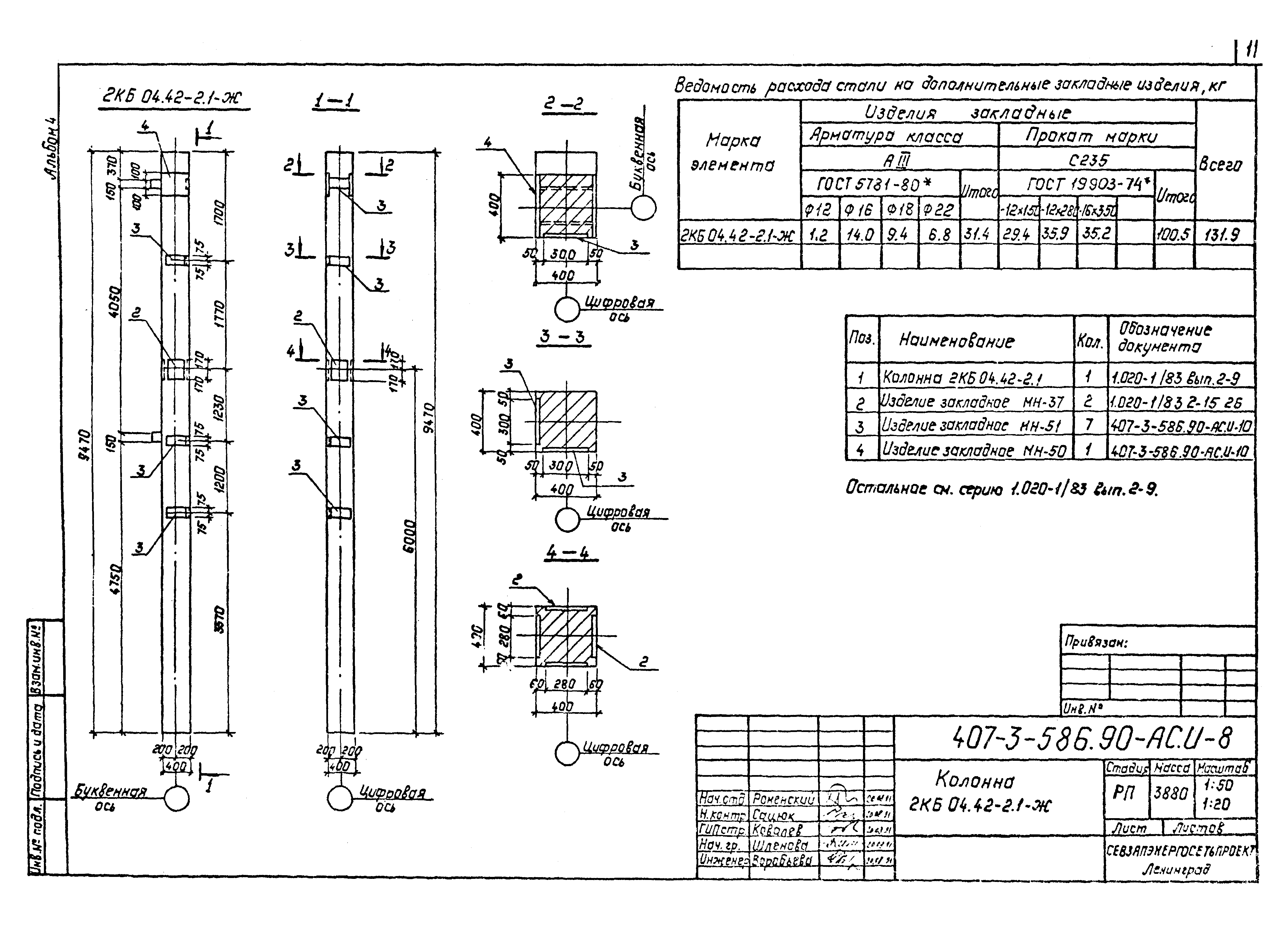
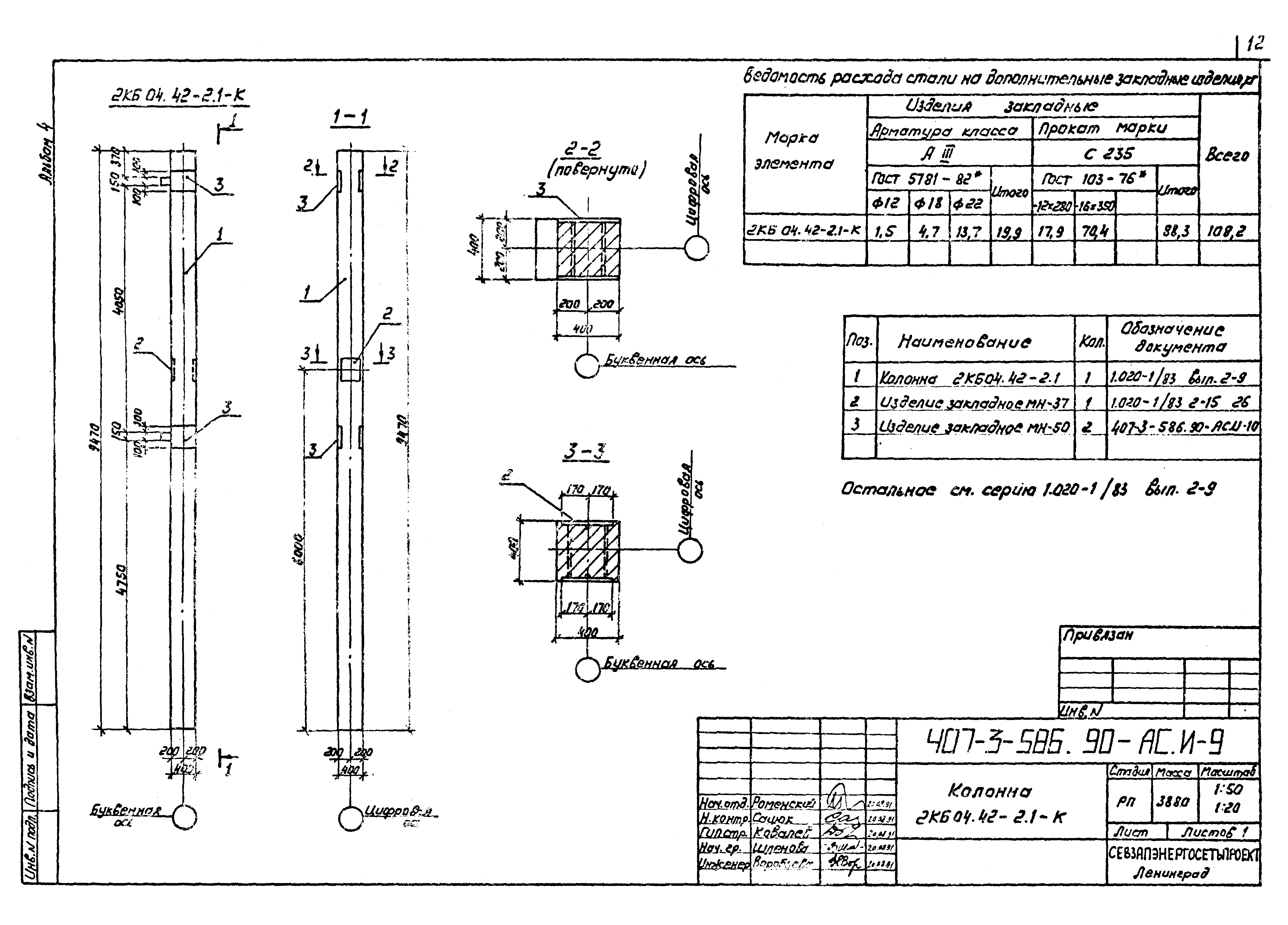
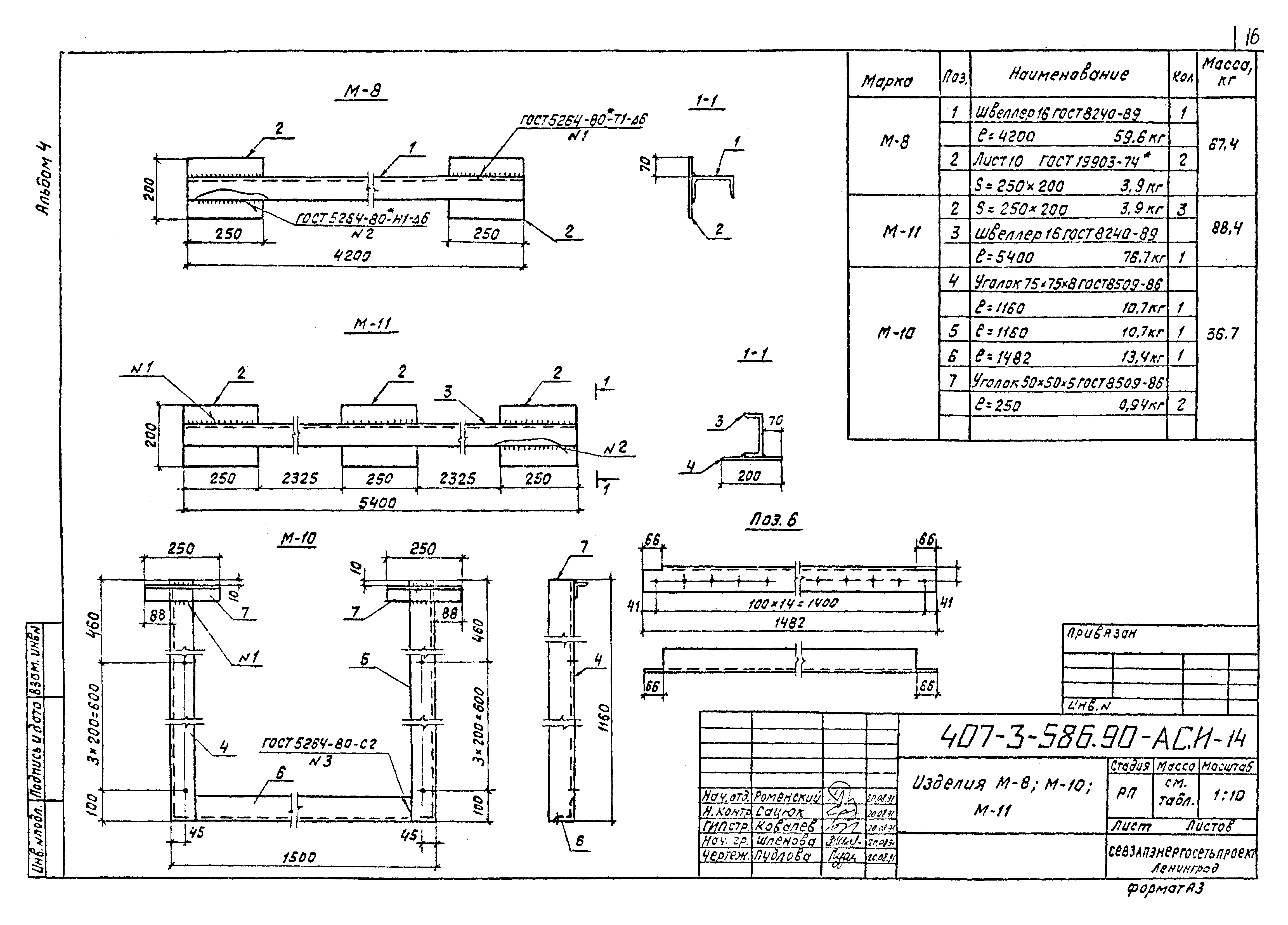
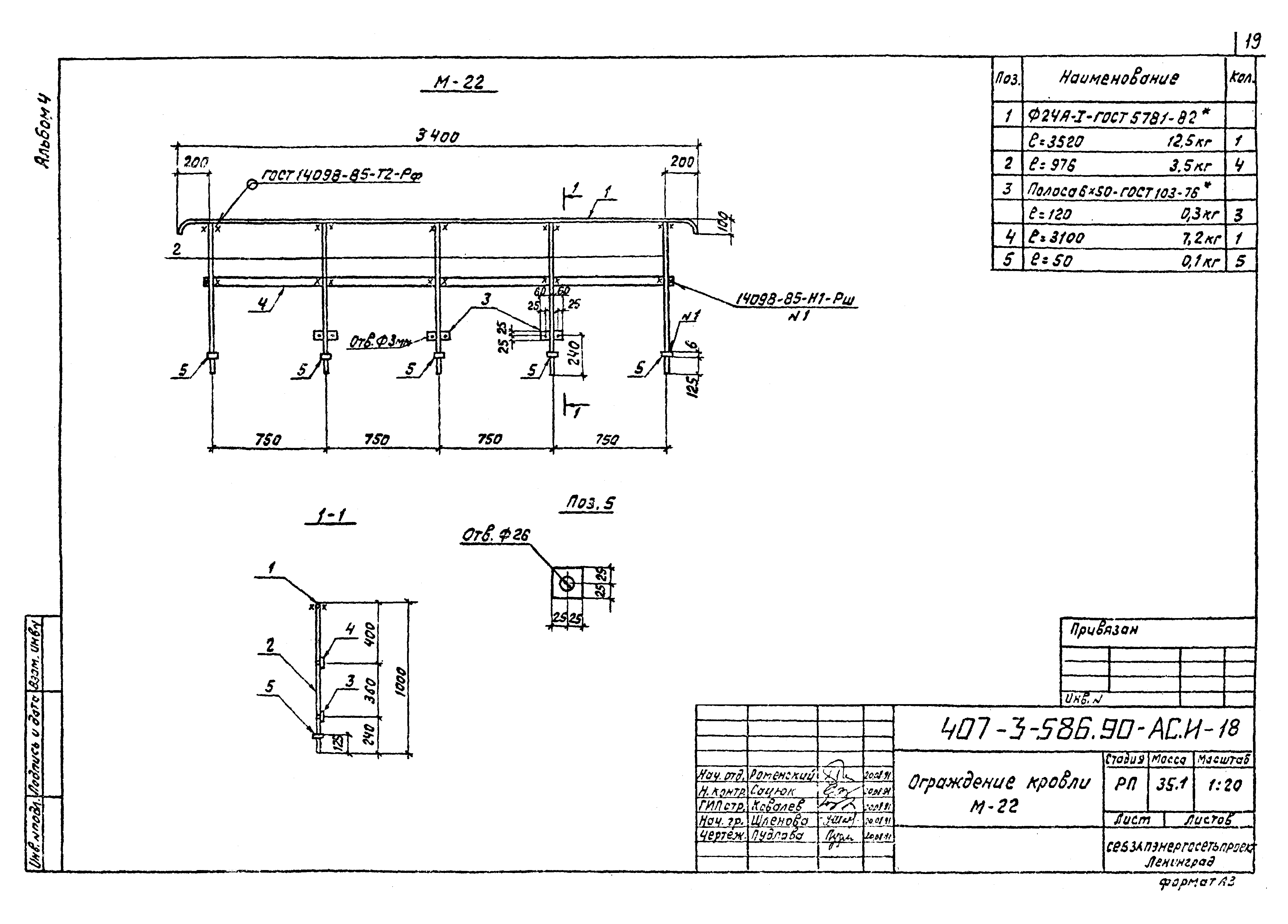
| Оглавление: | 407-3-586.90-АС.И Содержание альбома 407-3-586.90-АС.И-ТТ Технические требования 407-3-586.90-АС.И-1 Плита сантехническая ПРС-56.15-6АIVТ-А 407-3-586.90-АС.И-2 Колонна 2КБ04.42-2.1-А 407-3-586.90-АС.И-3 Колонна 2КБ04.42-2.1-Б 407-3-586.90-АС.И-4 Колонна 2КБ04.42-2.1-В 407-3-586.90-АС.И-5 Колонна 2КБ04.42-2.1-Г; 2КБ04.42-2.1-И 407-3-586.90-АС.И-6 Колонна 2КБ04.42-2.1-Д 407-3-586.90-АС.И-7 Колонна 2КБ04.42-2.1-Е 407-3-586.90-АС.И-8 Колонна 2КБ04.42-2.1-Ж 407-3-586.90-АС.И-9 Колонна 2КБ04.42-2.1-К 407-3-586.90-АС.И-10 Изделия закладные МН-50, МН-51, МН-15 407-3-586.90-АС.И-11 Изделие МП-3 407-3-586.90-АС.И-12 Изделие МП-4 407-3-586.90-АС.И-13 Изделие МС-6 407-3-586.90-АС.И-14 Изделия М-8, М-10, М-11 407-3-586.90-АС.И-15 Изделие М-14 407-3-586.90-АС.И-16 Изделие М-9 407-3-586.90-АС.И-17 Изделие М-17, М-18 407-3-586.90-АС.И-18 Ограждение кровли М-22 407-3-586.90-АС.И-19 Изделие МК-3 407-3-586.90-АС.И-20 Изделие М-24 407-3-586.90-АС.И-21 Изделие М-35 407-3-586.90-АС.И-22 Изделие М-20 407-3-586.90-АС.И-23 Изделие МП-25 407-3-586.90-АС.И-24 Изделие МП-8 407-3-586.90-АС.И-25 Каркасы КР-1, КР-2 407-3-586.90-АС.И-26 Изделия МС-3, МС-5, МР-10 407-3-586.90-АС.И-27 Изделие МР-9 407-3-586.90-АС.И-28 Изделие МС-4 407-3-586.90-АС.И-29 Изделие М-7 |
| Разработан: | Севзапэнергосетьпроект |
| Утверждён: | 08.08.1991 Минэнерго СССР (USSR Minenergo 35) |
























