Скачать Типовой проект 416-9-17.83 Альбом VI. Архитектурные решенияДата актуализации: 01.01.2021
|
| Обозначение: | Типовой проект 416-9-17.83 |
| Обозначение англ: | 416-9-17.83 |
| Статус: | не определен законодательством |
| Название рус.: | Альбом VI. Архитектурные решения |
| Дата добавления в базу: | 01.09.2013 |
| Дата актуализации: | 01.01.2021 |
| Дата введения: | 26.05.1983 |
| Дата окончания срока действия: | 30.06.2003 |
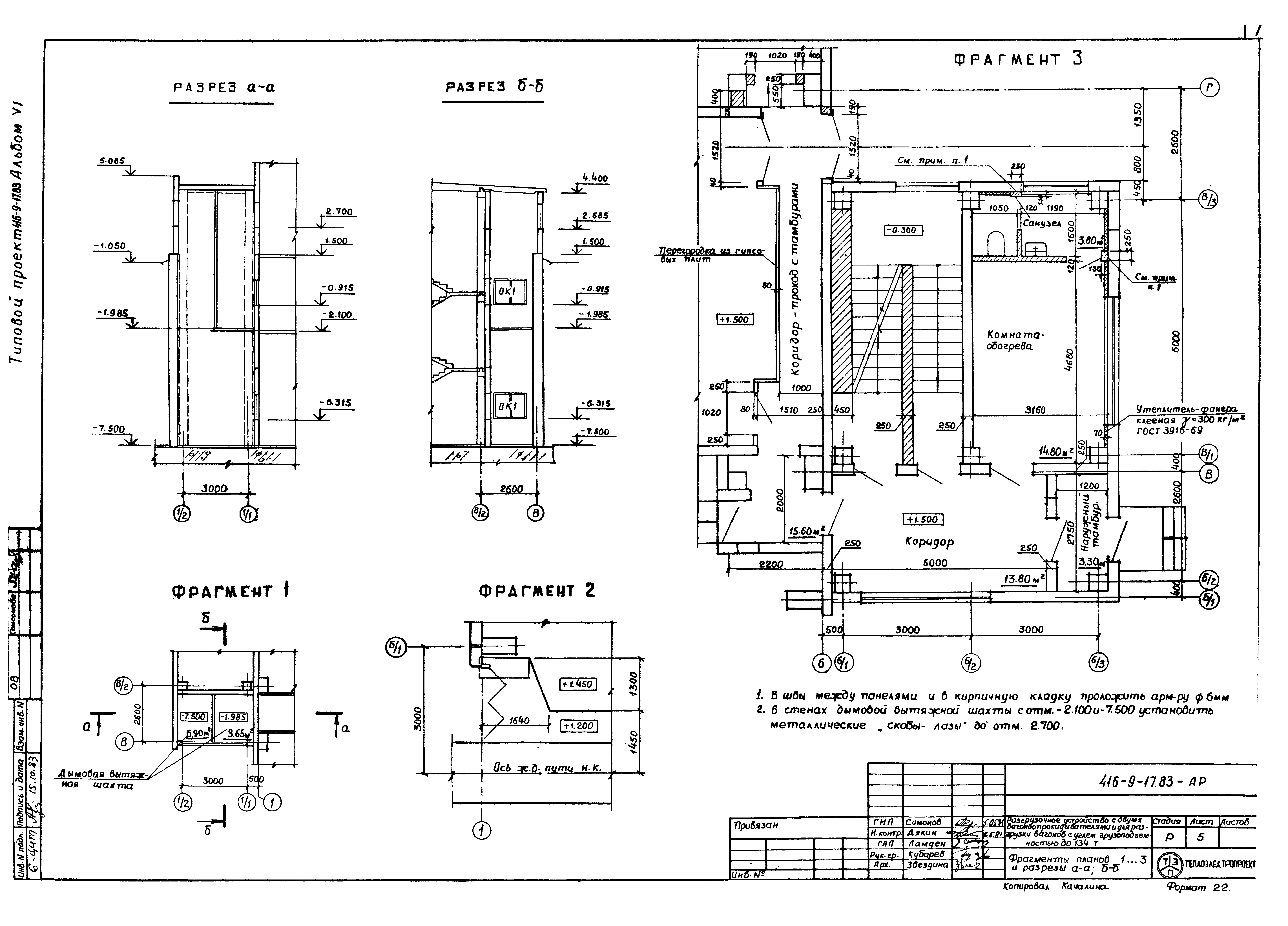
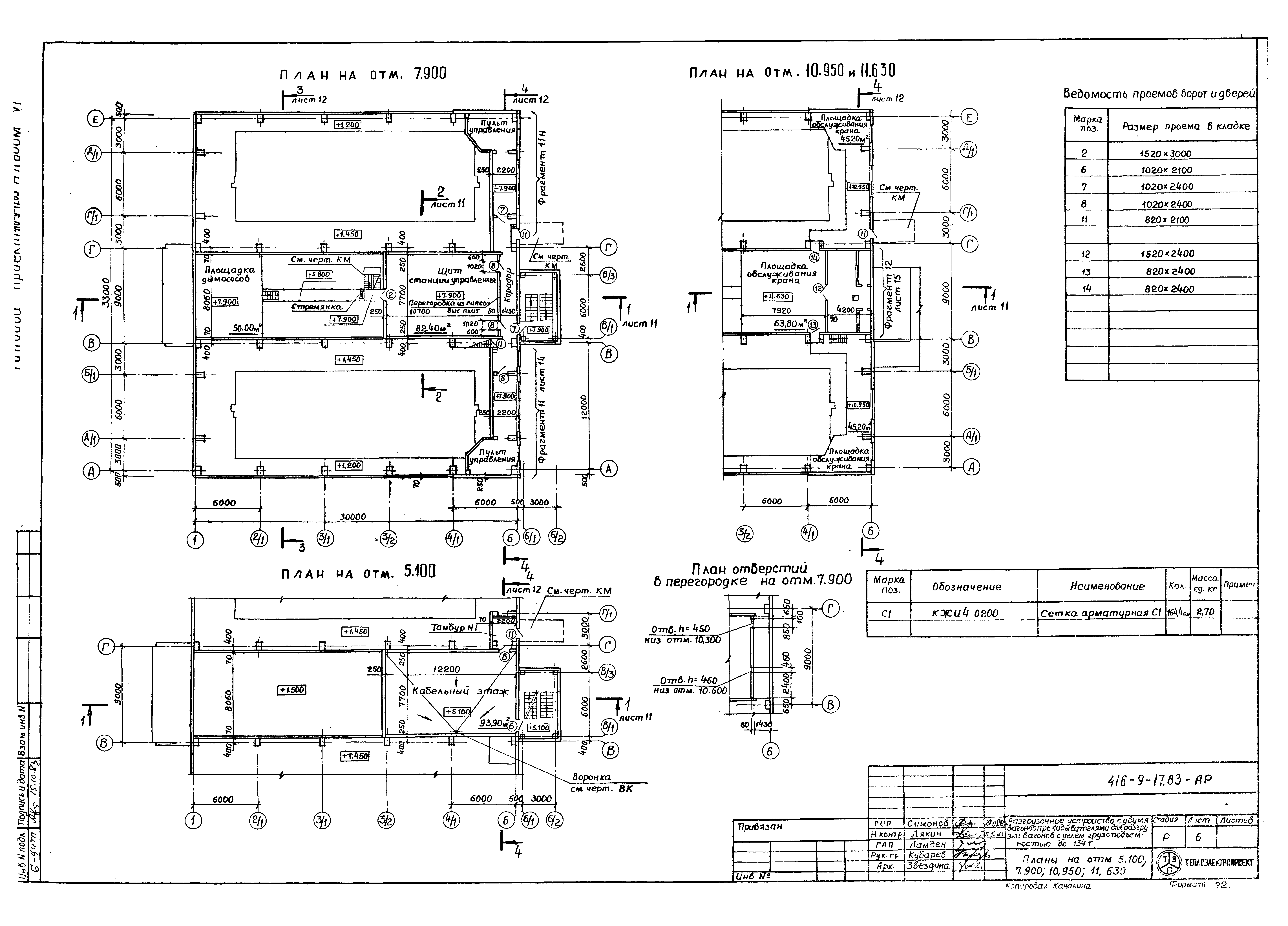
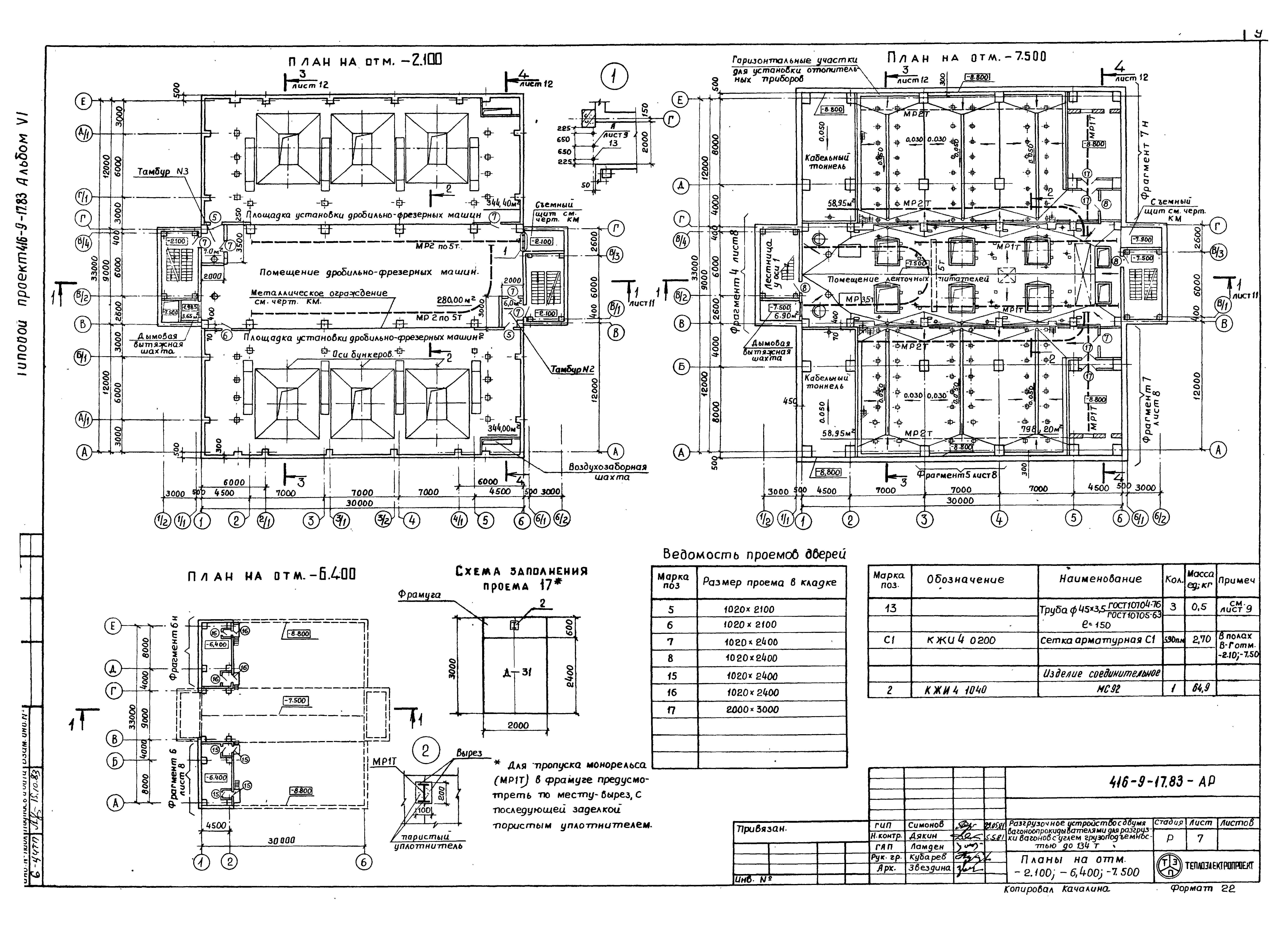
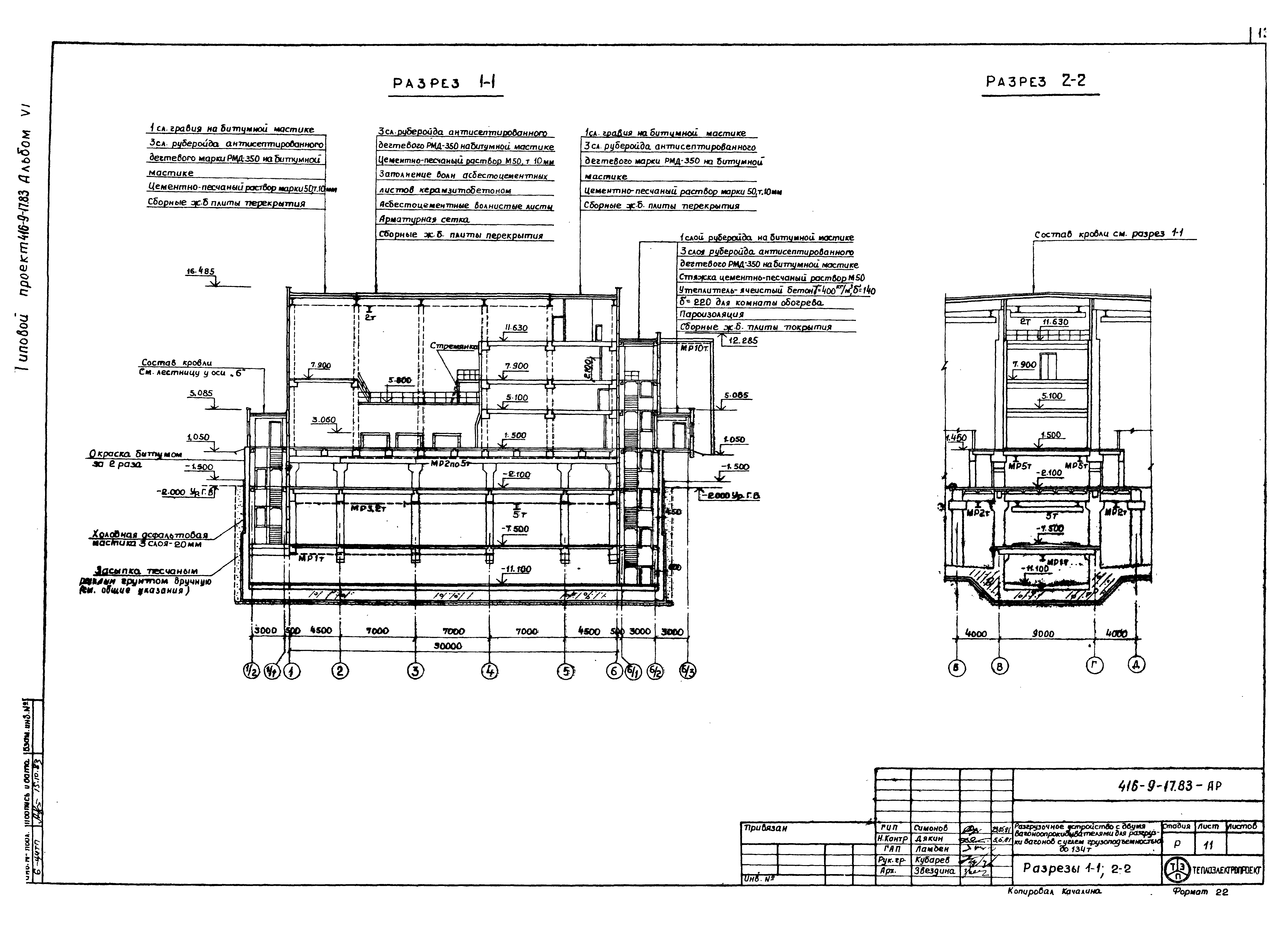
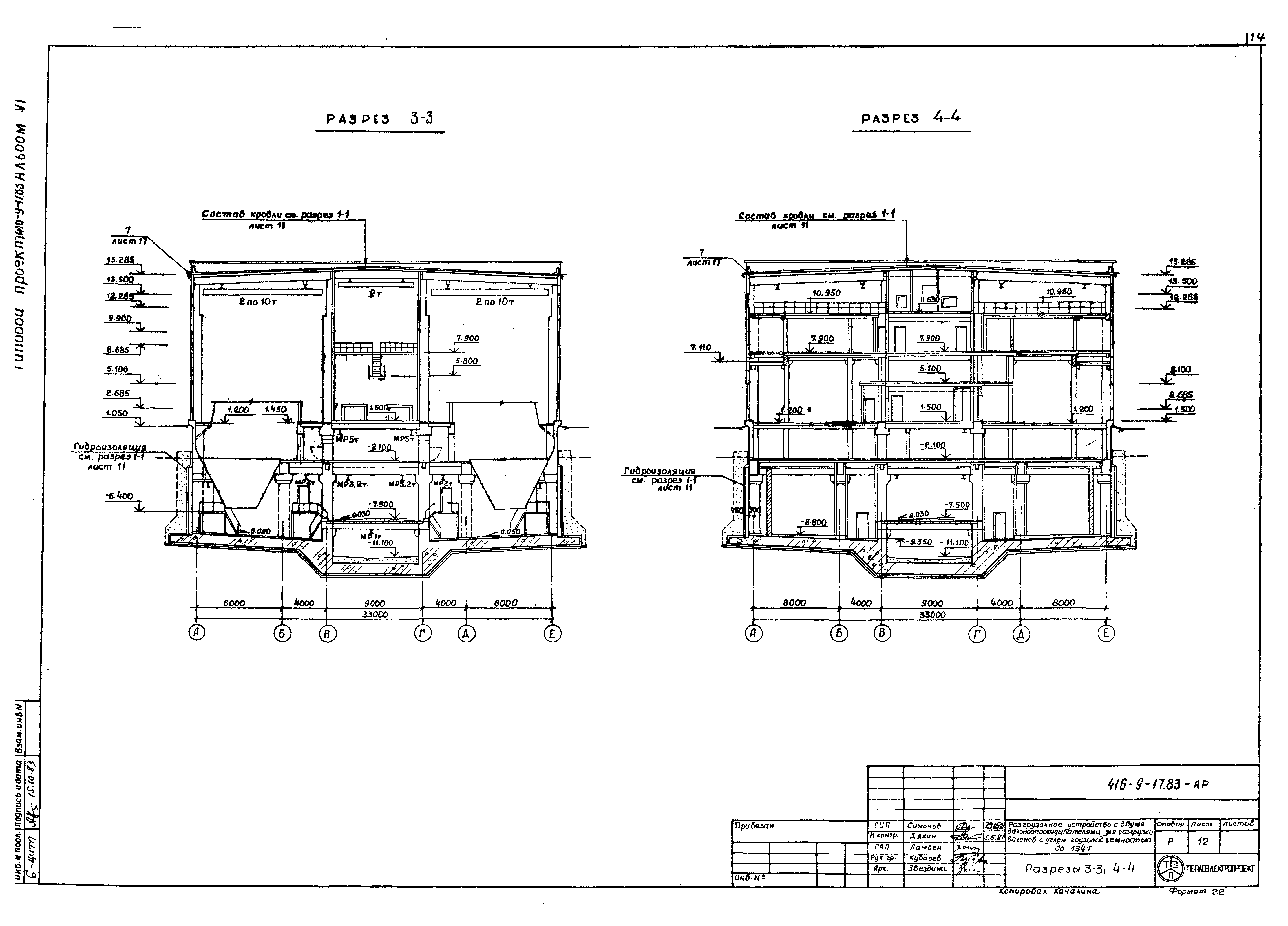
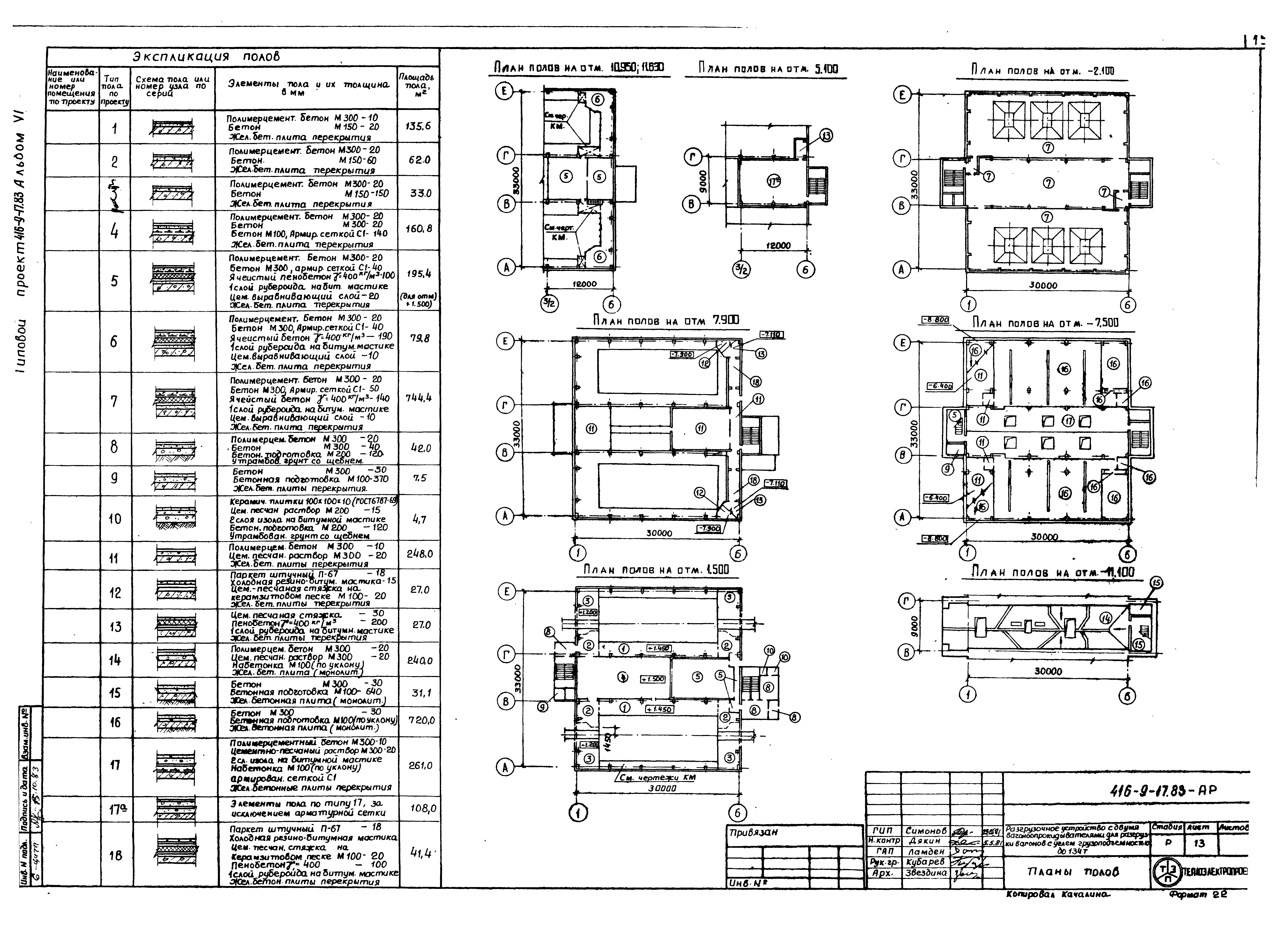
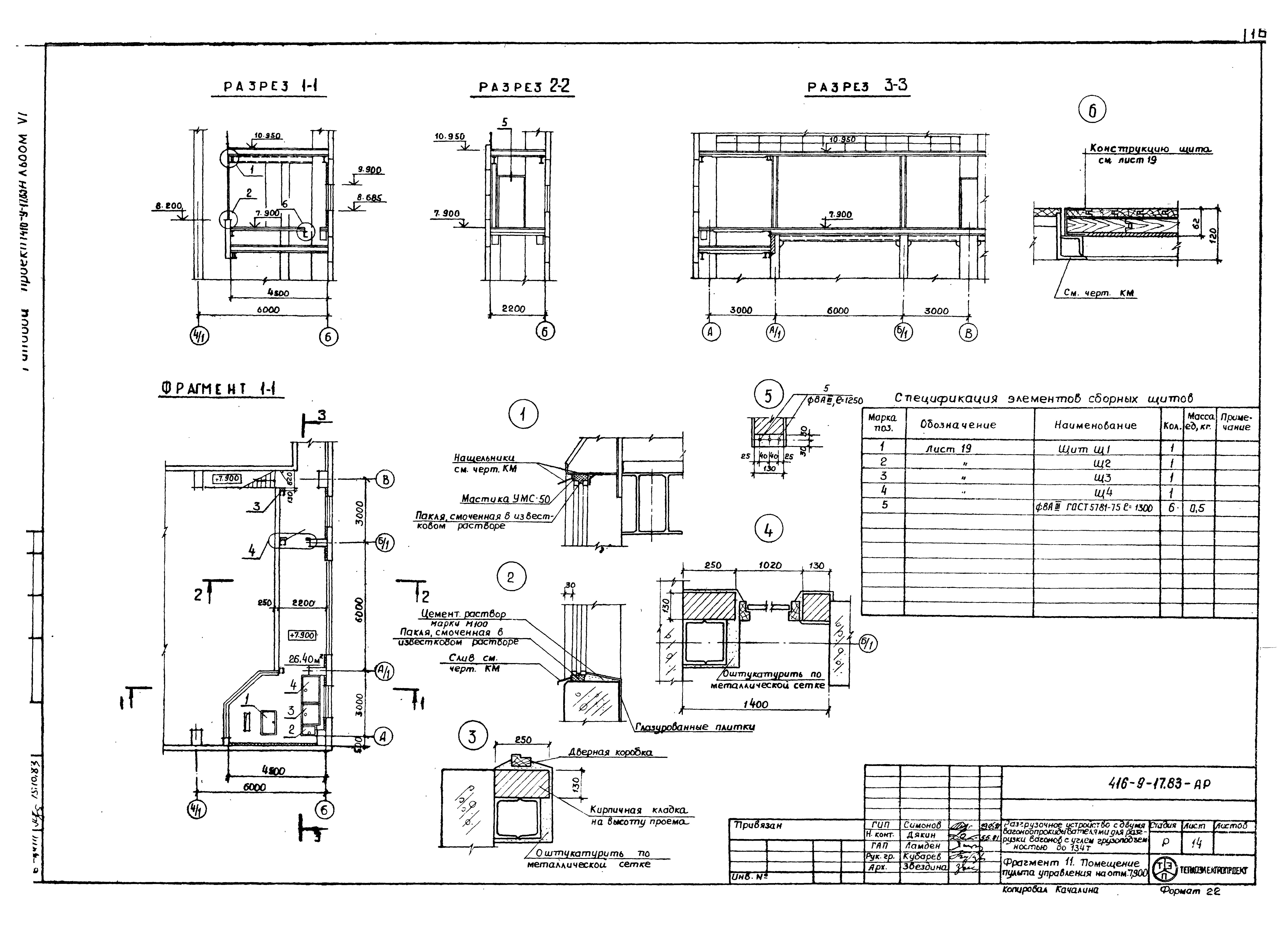
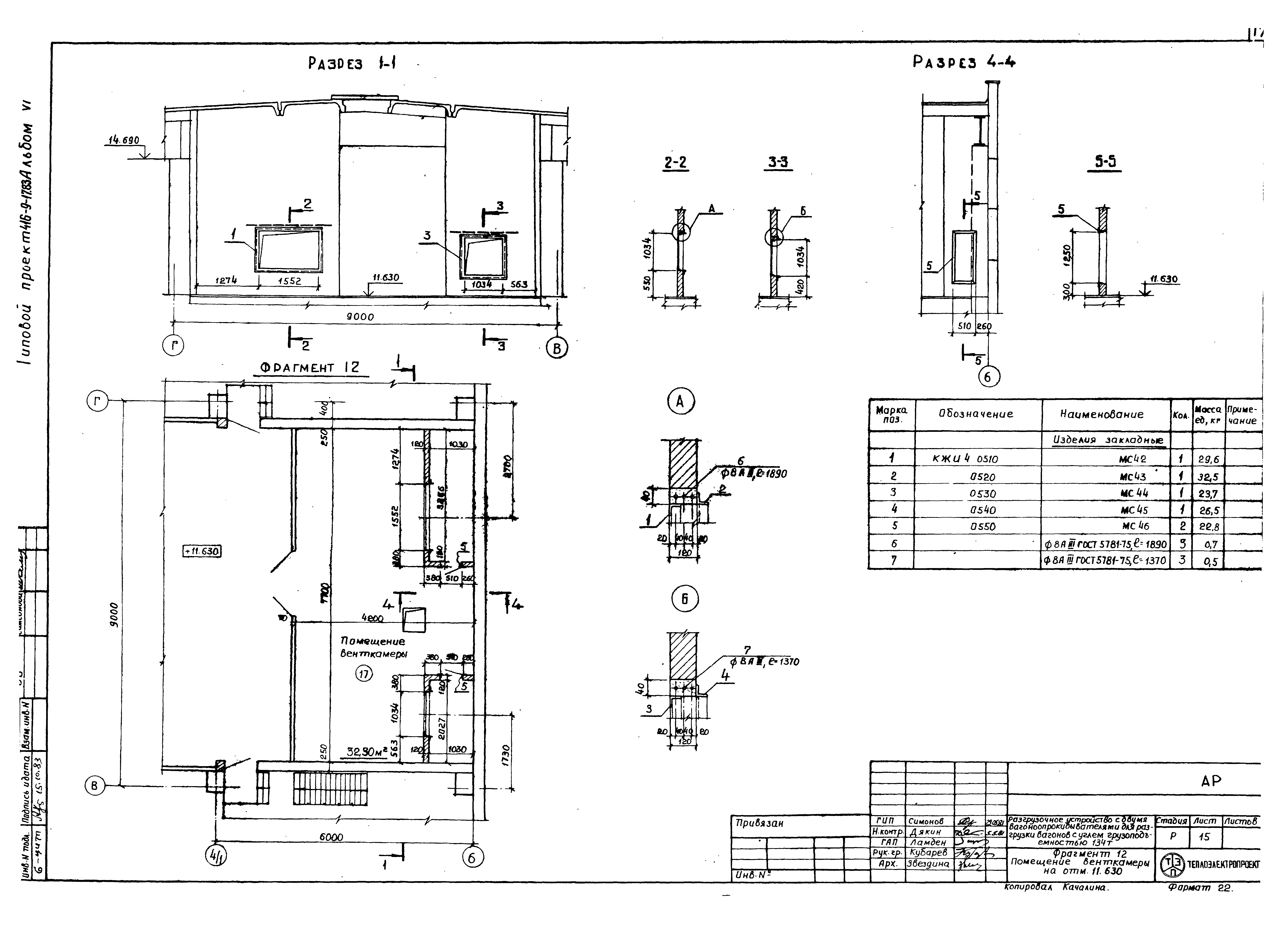
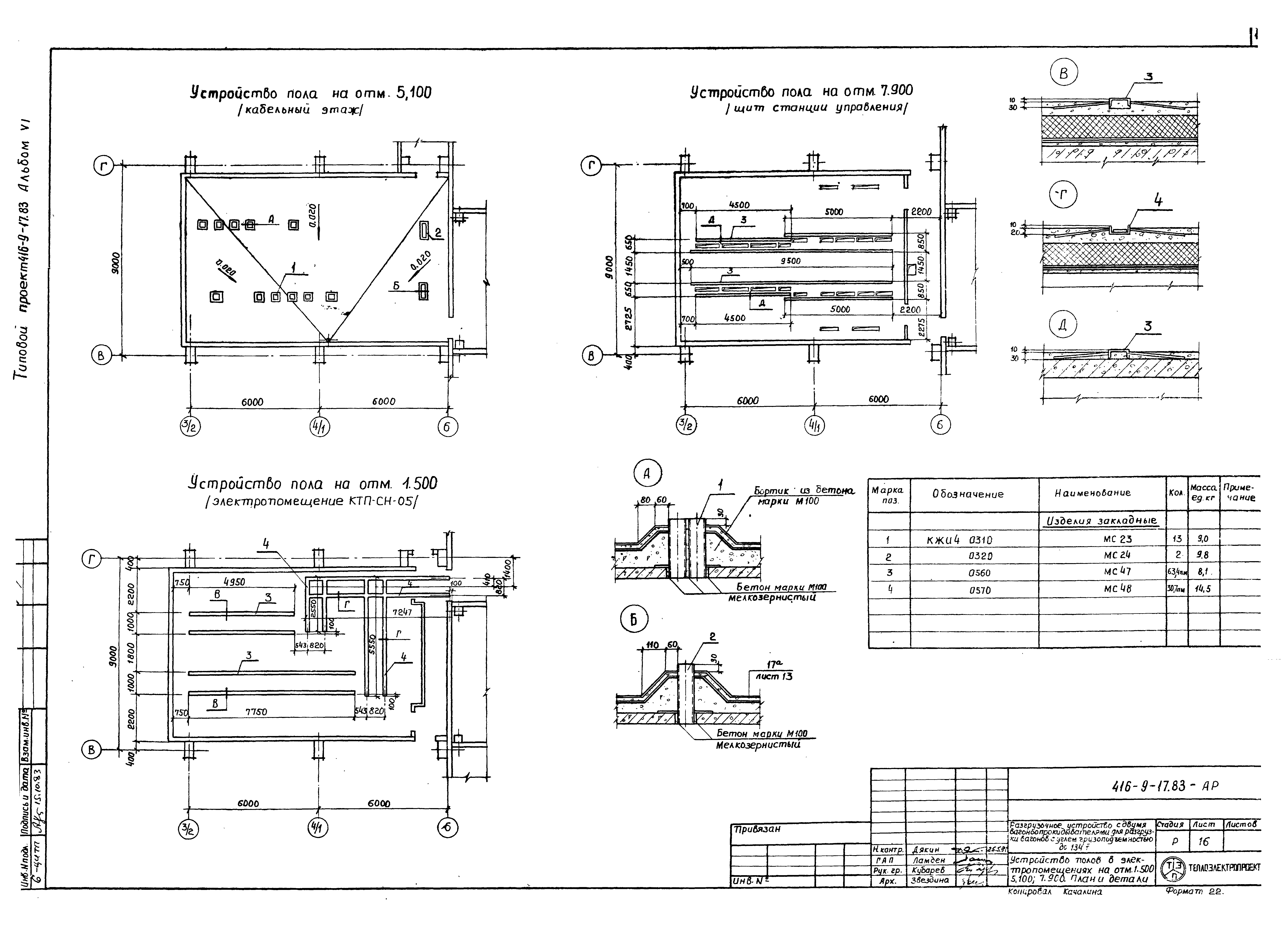
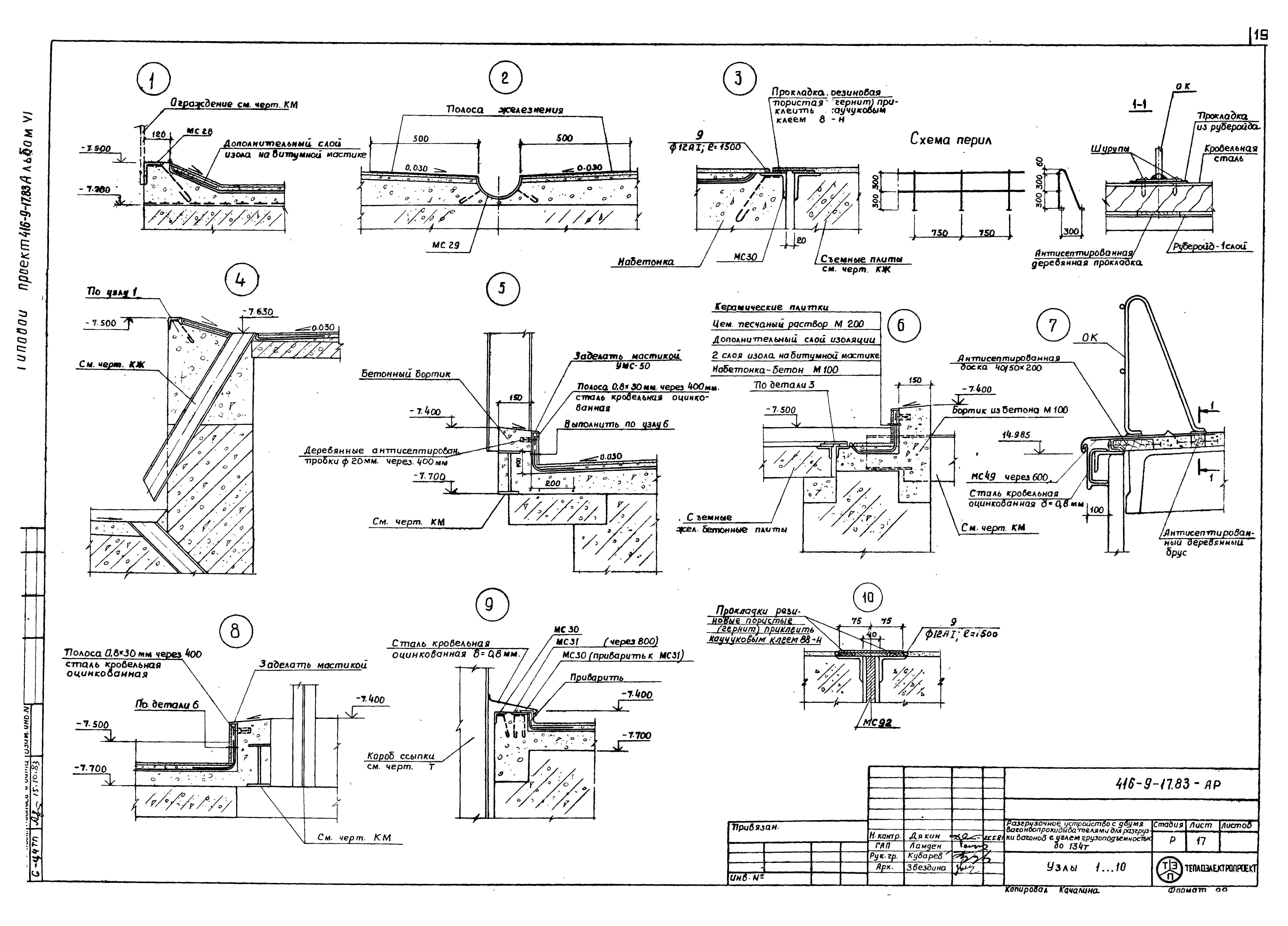
| Оглавление: | Титульный лист Опись альбома Общие данные План на отм. 1.500 и план кровли Фрагменты планов 1, 2, 3 и разрезы а-а, б-б Планы на отм. 5.100; 7.900; 10.950; 11.630 Планы на отм. - 2.100; - 6.400; - 7.500 Фрагменты планов 4, 5, 6, 7 План на отм. - 11.100 и фрагменты планов 8, 9, 9а, 10 Фасады Разрезы 1-1, 2-2 Разрезы 3-3, 4-4 Планы полов Фрагмент 11. Помещение пульта управления на отм. 7.900 Фрагмент 12. Помещение венткамеры на отм. 11.630 Устройство полов в электропомещениях на отм. 1.500; 5.100; 7.900. План и детали Узлы 1 - 10 Узлы 11 - 16; А; Б Узлы паркетных полов на отм. 7.900 (помещения пультов управления) |
| Разработан: | Теплоэлектропроект |
| Утверждён: | 17.09.1981 Минэнерго СССР (USSR Minenergo 48) |




















