Скачать Типовой проект 416-9-17.83 Альбом X. Часть 1. Изделия железобетонные надземной частиДата актуализации: 01.01.2021
|
| Обозначение: | Типовой проект 416-9-17.83 |
| Обозначение англ: | 416-9-17.83 |
| Статус: | не определен законодательством |
| Название рус.: | Альбом X. Часть 1. Изделия железобетонные надземной части |
| Дата добавления в базу: | 01.09.2013 |
| Дата актуализации: | 01.01.2021 |
| Дата введения: | 26.05.1983 |
| Дата окончания срока действия: | 30.06.2003 |
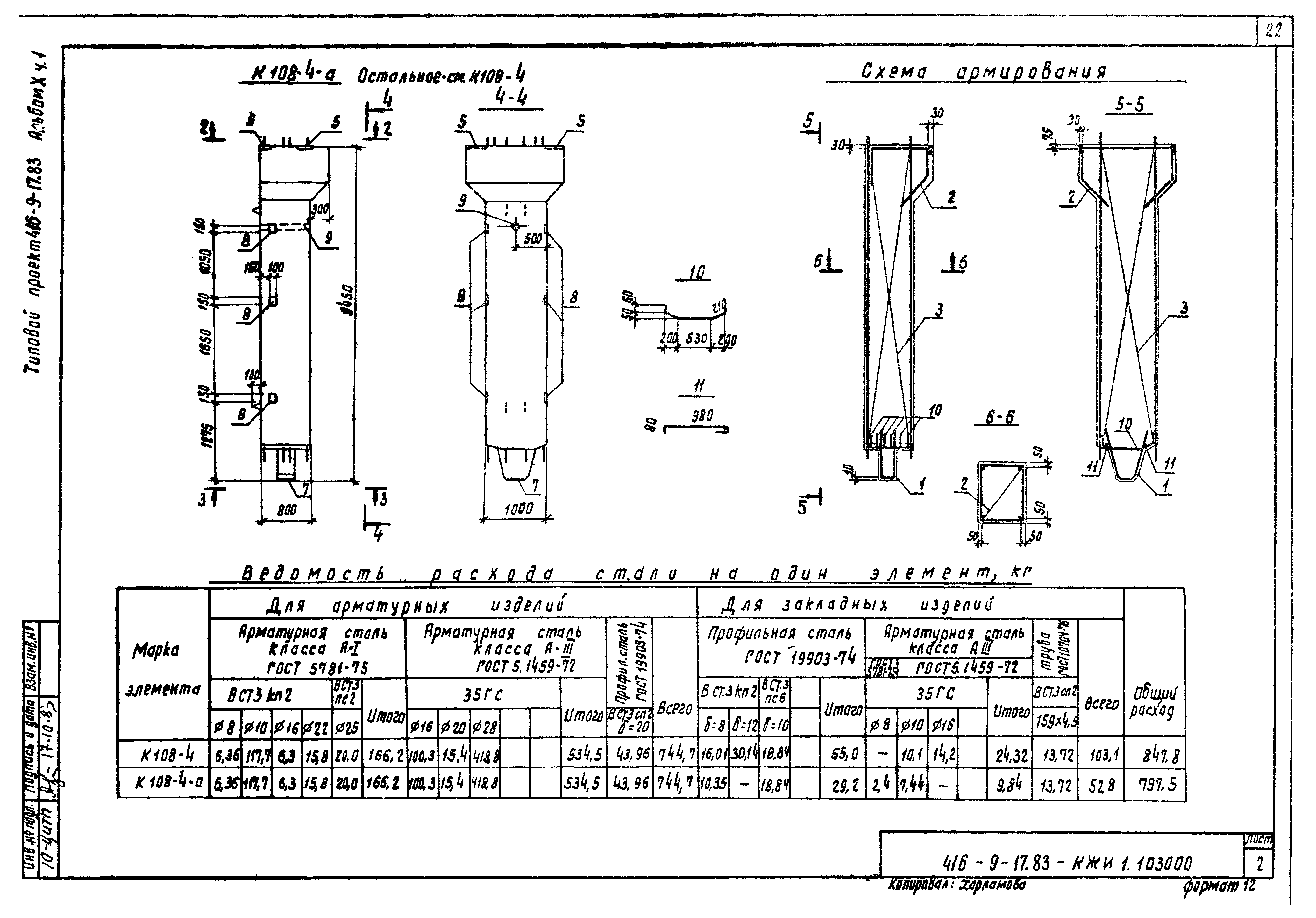
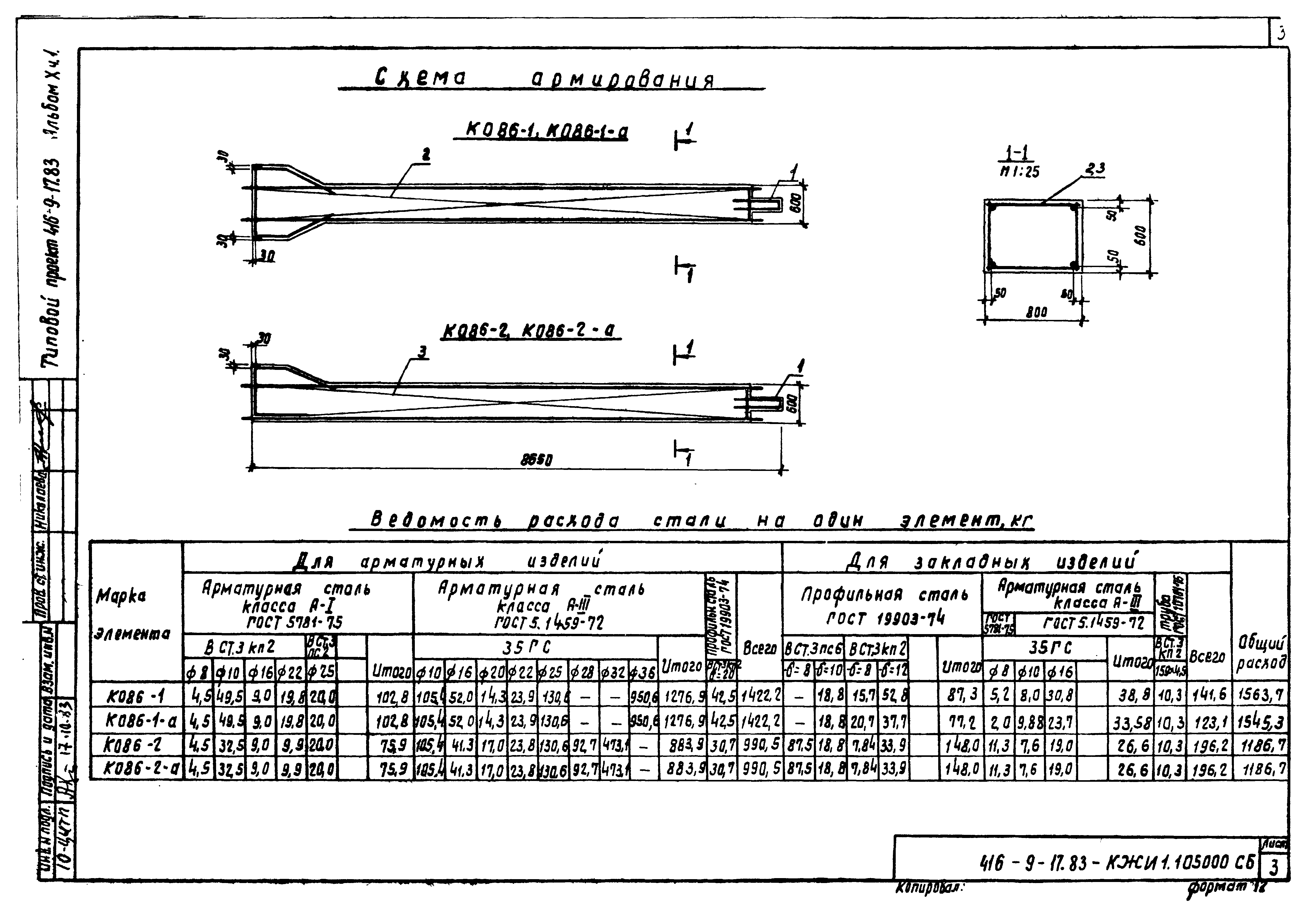
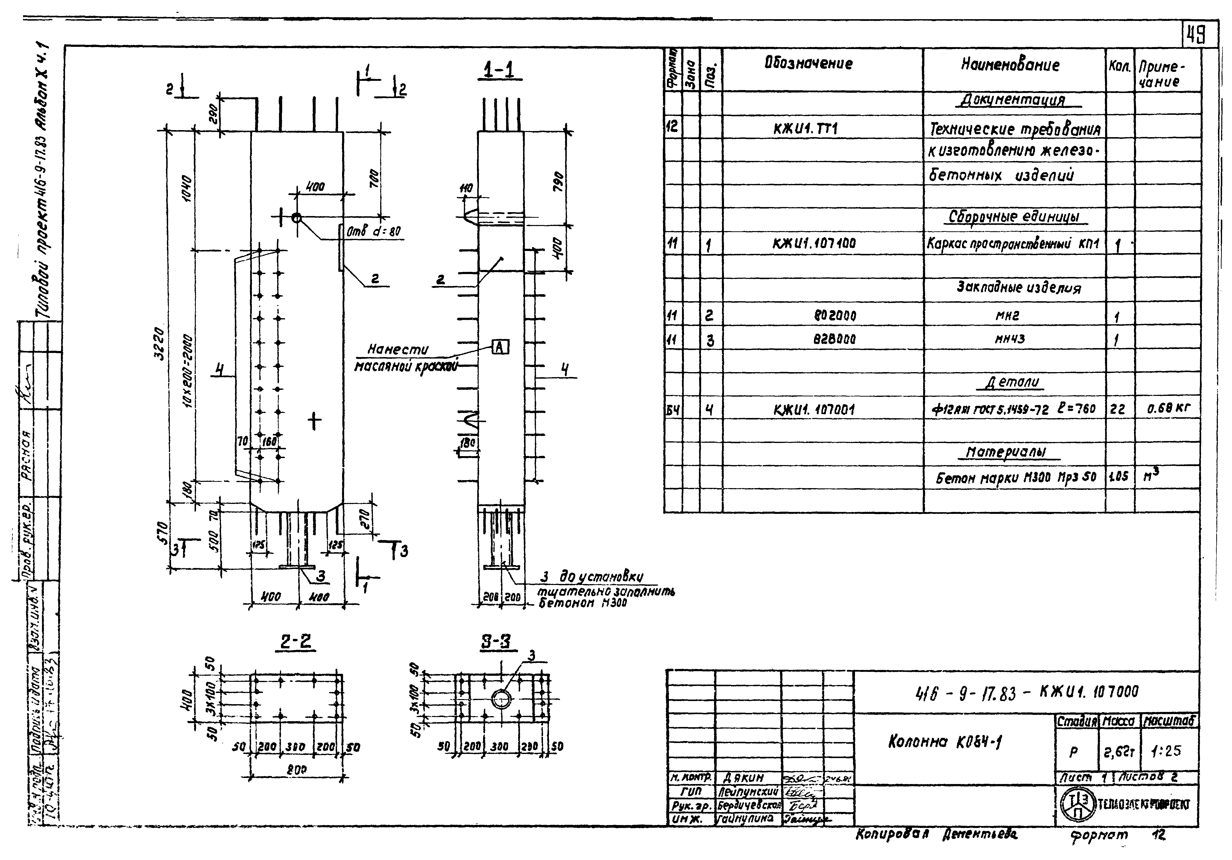
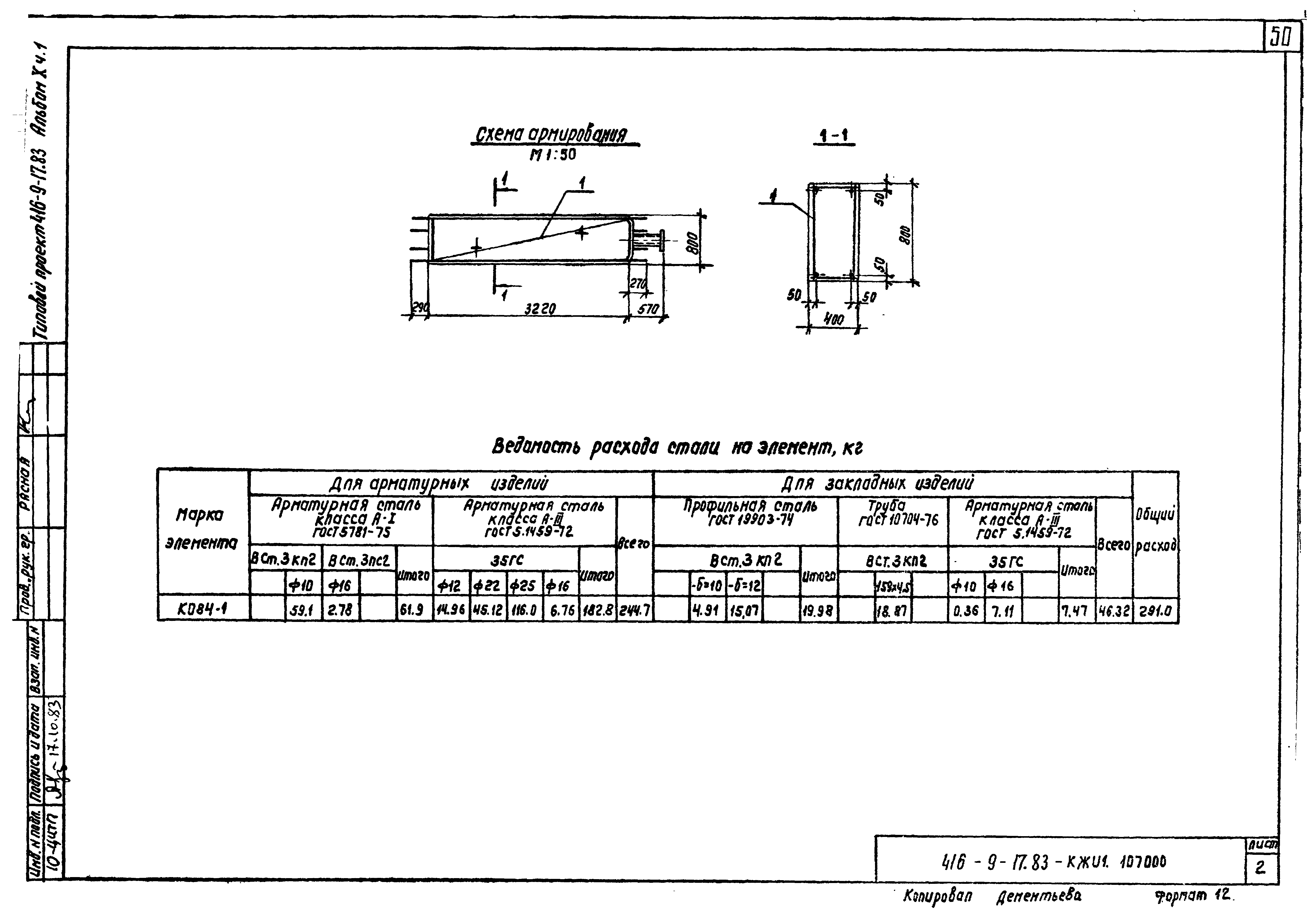
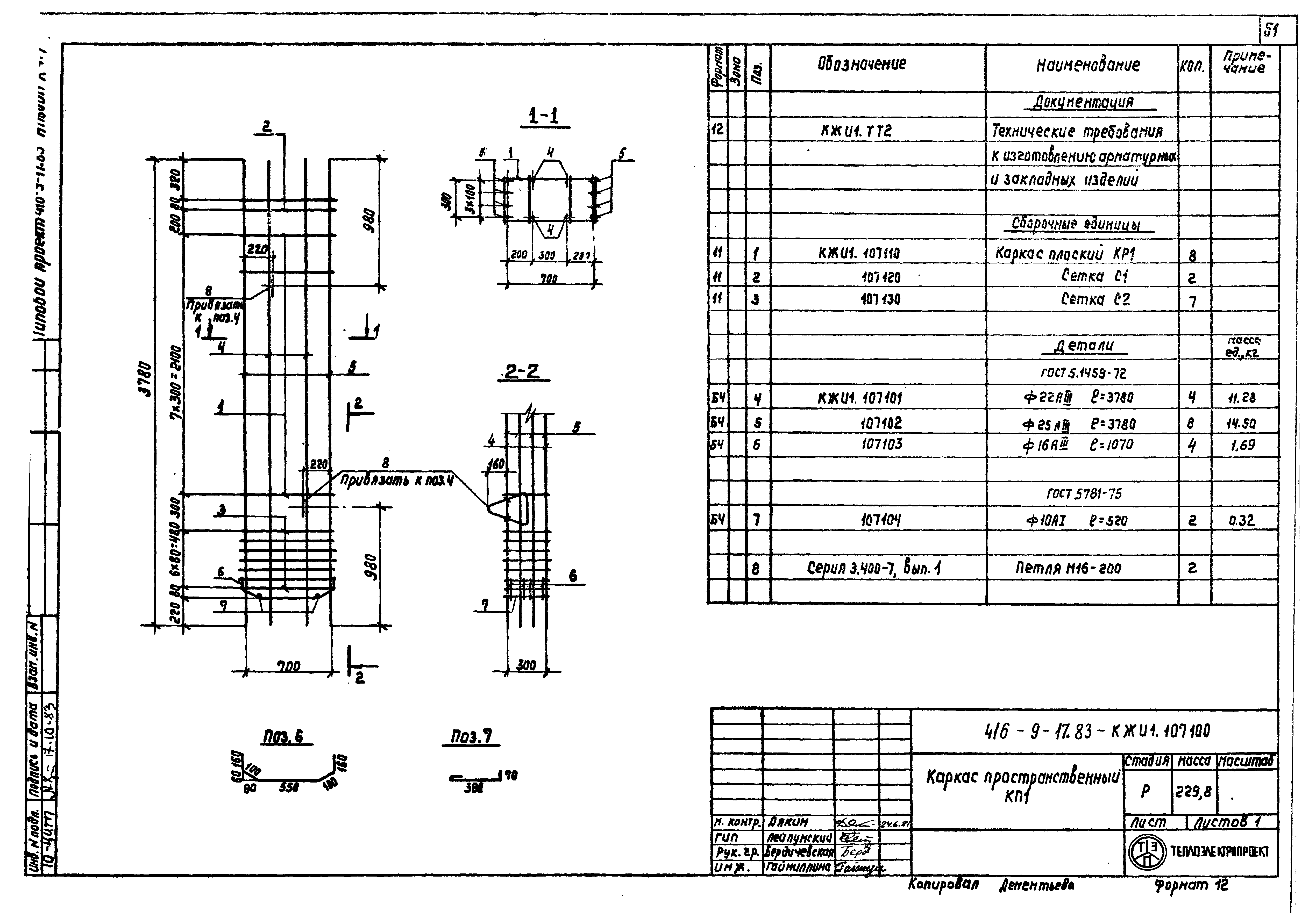
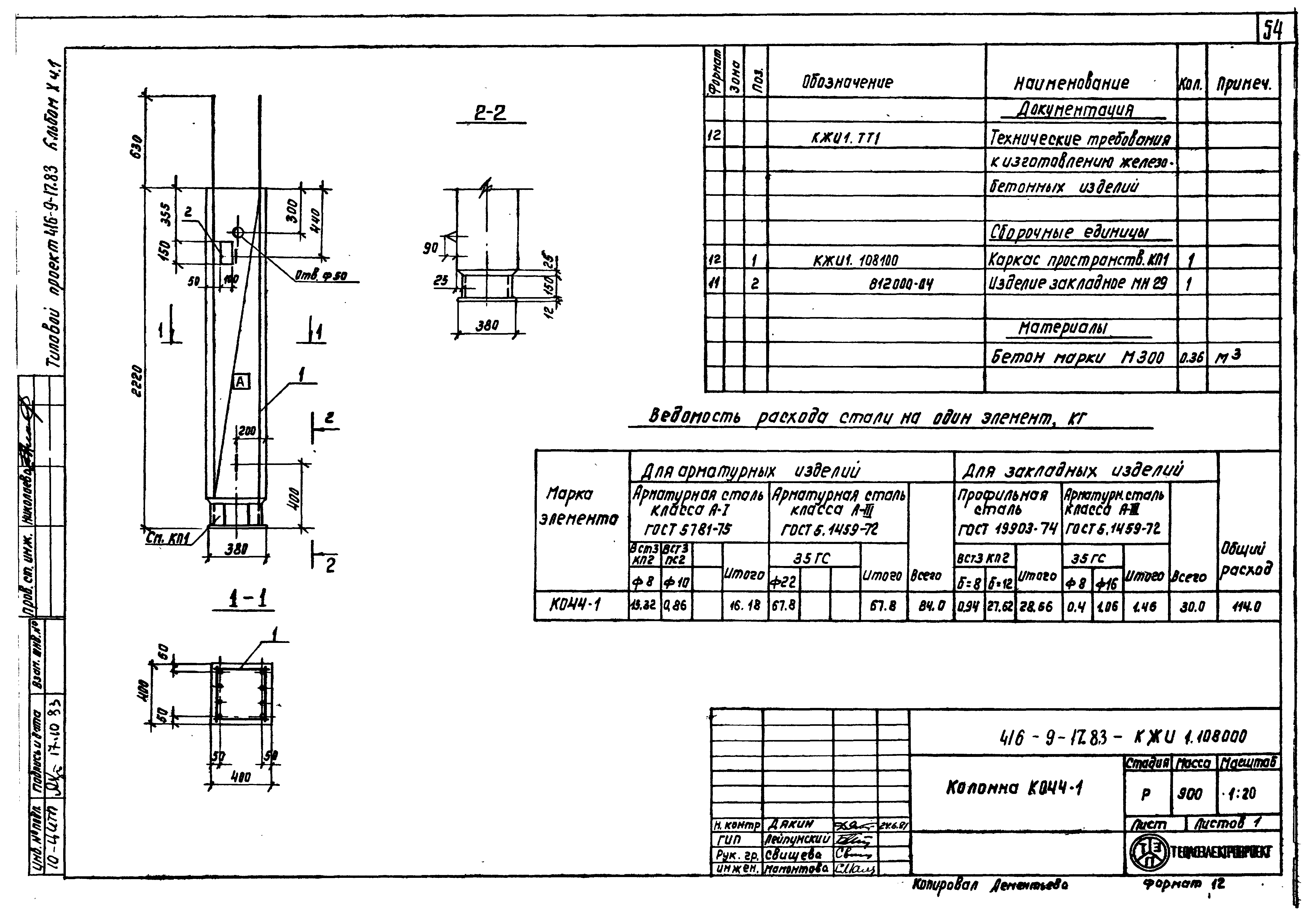
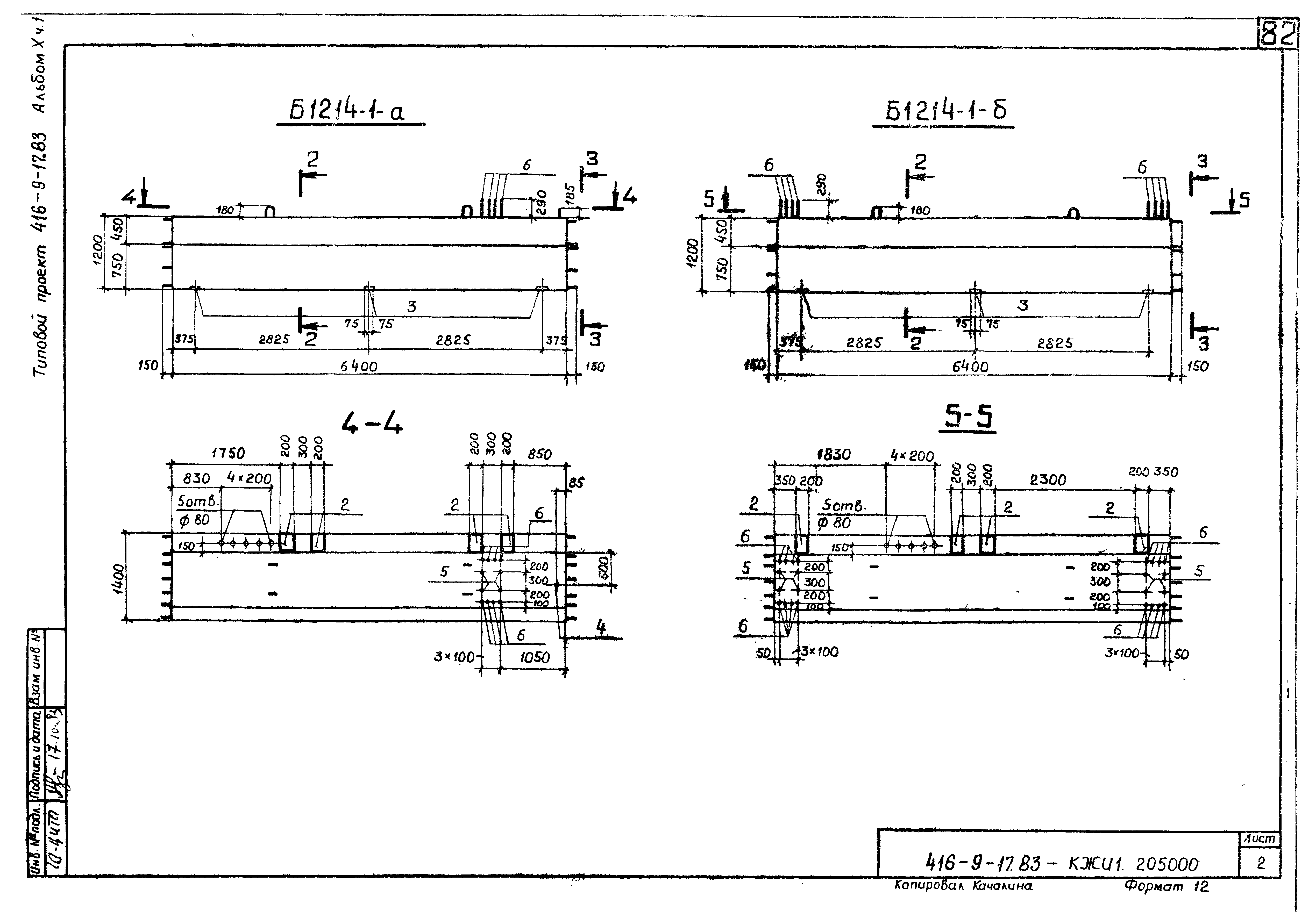
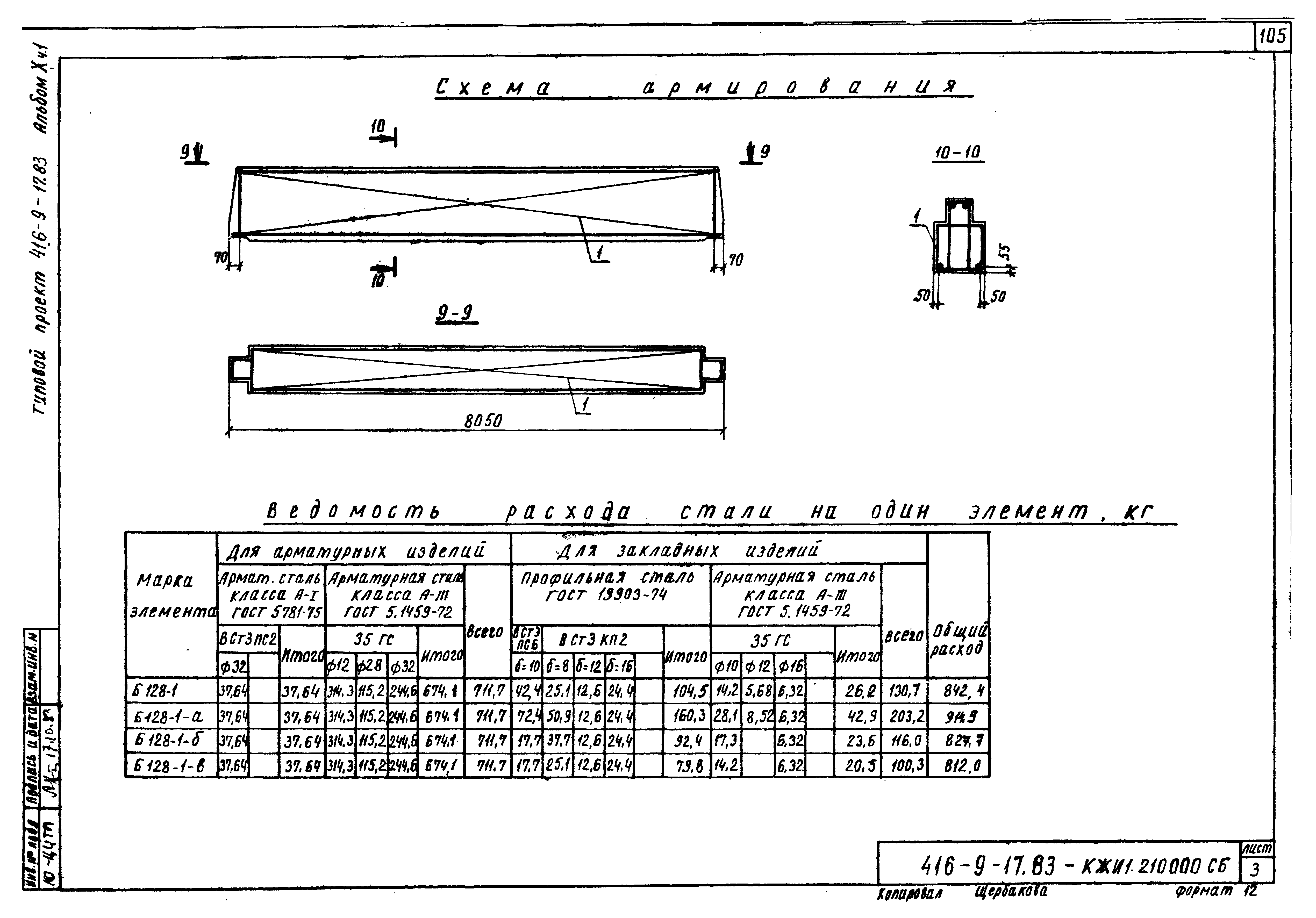
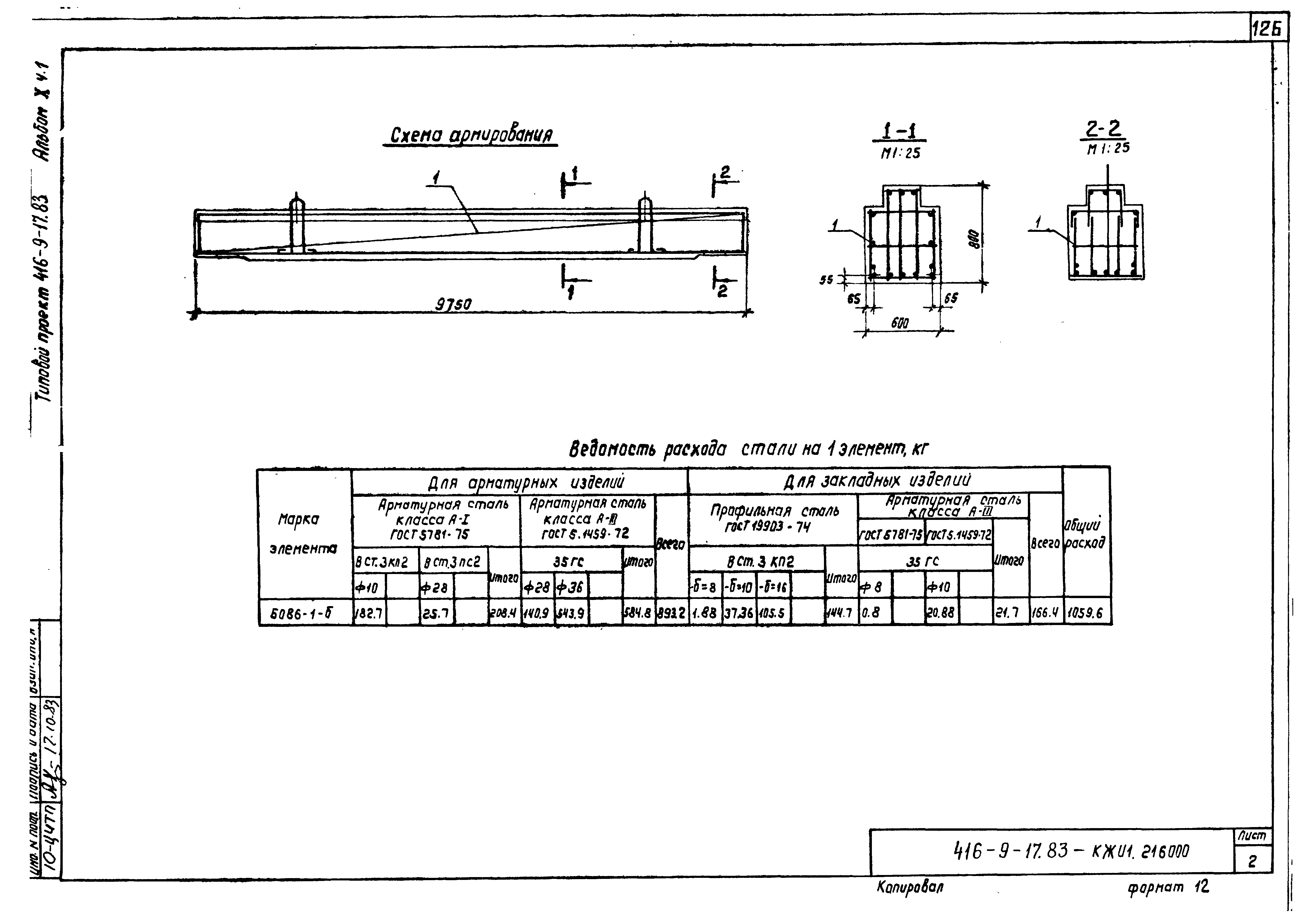
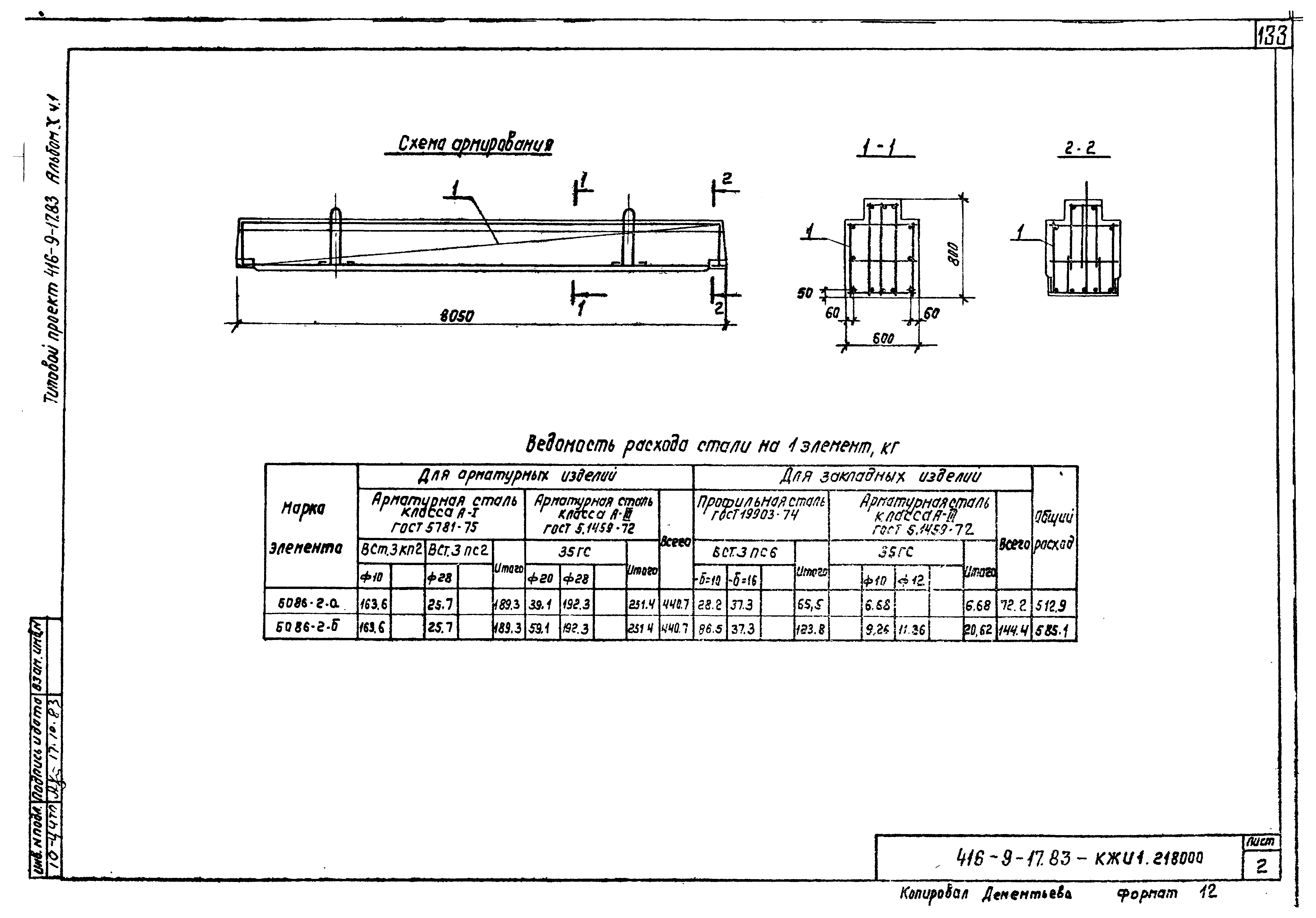
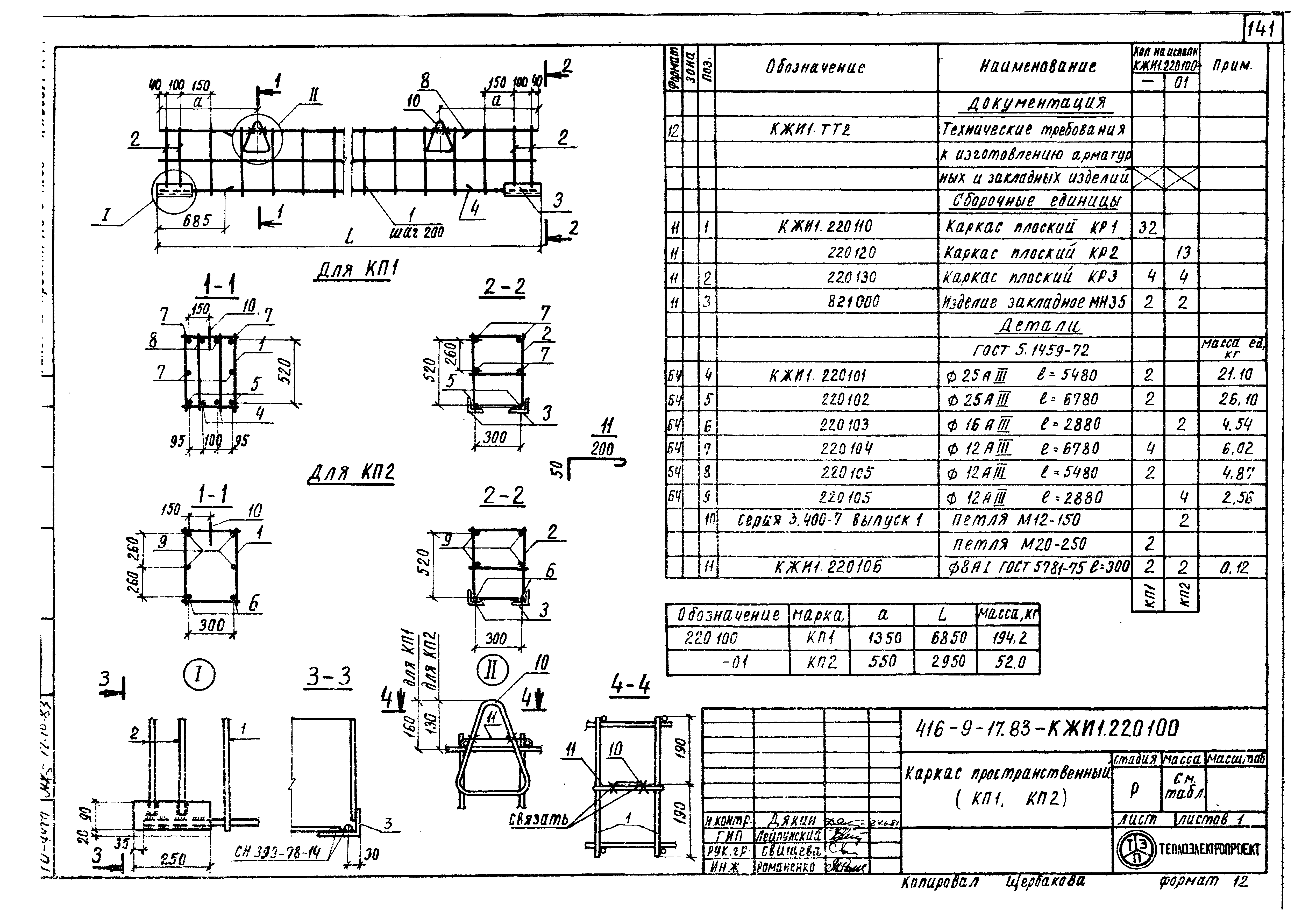
| Оглавление: | Титульный лист 416-9-17.83-КЖИ1.ДО Ведомость листов выпуска. Часть 1 416-9-17.83-КЖИ1.ПЗ Пояснительная записка 416-9-17.83-КЖИ1.ТТ1 Технические требования к изготовлению железобетонных изделий 416-9-17.83-КЖИ1.ТТ2 Технические требования к изготовлению арматурных и закладных изделий 416-9-17.83-КЖИ1.101000 Колонна (К108-1, К108-2) 416-9-17.83-КЖИ1.101100 Каркас пространственный КП1 416-9-17.83-КЖИ1.101200 Каркас пространственный (КП2, КП3) 416-9-17.83-КЖИ1.101210 Каркас плоский КР1 416-9-17.83-КЖИ1.101220 Каркас плоский КР2 416-9-17.83-КЖИ1.101300 Каркас пространственный КП4 416-9-17.83-КЖИ1.101310 Каркас плоский КР3 416-9-17.83-КЖИ1.102000 Колонна (К108-3, К108-3-а) 416-9-17.83-КЖИ1.102100 Каркас пространственный КП2 416-9-17.83-КЖИ1.102110 Каркас плоский КР1 416-9-17.83-КЖИ1.102120 Каркас плоский КР2 416-9-17.83-КЖИ1.102200 Каркас пространственный КП3 416-9-17.83-КЖИ1.102210 Каркас плоский КР3 416-9-17.83-КЖИ1.102220 Каркас плоский КР4 416-9-17.83-КЖИ1.103000 Колонна (К108-4, К108-4-а) 416-9-17.83-КЖИ1.103100 Каркас пространственный КП2 416-9-17.83-КЖИ1.103110 Каркас плоский КР1 416-9-17.83-КЖИ1.103120 Каркас плоский КР2 416-9-17.83-КЖИ1.103200 Каркас пространственный КП3 416-9-17.83-КЖИ1.104000 Колонна (К108-5, К108-5-а, К108-5-б) 416-9-17.83-КЖИ1.104100 Каркас пространственный КП2 416-9-17.83-КЖИ1.104110 Каркас плоский КР1 416-9-17.83-КЖИ1.104120 Каркас плоский КР2 416-9-17.83-КЖИ1.104200 Каркас пространственный КП3 416-9-17.83-КЖИ1.104210 Каркас плоский КР3 416-9-17.83-КЖИ1.105000 Колонна (К086-1, К086-1-а, К086-2, К086-2-а) 416-9-17.83-КЖИ1.105000СБ Колонна (К086-1, К086-1-а, К086-2, К086-2-а). Сборочный чертеж 416-9-17.83-КЖИ1.105100 Каркас пространственный КП1 416-9-17.83-КЖИ1.105200 Каркас пространственный КП2 416-9-17.83-КЖИ1.105210 Каркас плоский КР1 416-9-17.83-КЖИ1.105220 Каркас плоский КР2 416-9-17.83-КЖИ1.105230 Каркас плоский КР3 416-9-17.83-КЖИ1.105300 Каркас пространственный КП3 416-9-17.83-КЖИ1.105310 Каркас плоский КР4 416-9-17.83-КЖИ1.100001 Стержень отдельный (ОС1 - ОС12) 416-9-17.83-КЖИ1.100002 Стержень отдельный (ОС13 - ОС19) 416-9-17.83-КЖИ1.106000 Колонна (К086-3, К086-3-а, К086-3-б) 416-9-17.83-КЖИ1.106000СБ Колонна (К086-3, К086-3-а, К086-3-б). Сборочный чертеж 416-9-17.83-КЖИ1.106100 Каркас пространственный (КП2, КП3, КП4) 416-9-17.83-КЖИ1.106100СБ Каркас пространственный (КП2, КП3, КП4). Сборочный чертеж 416-9-17.83-КЖИ1.106110 Каркас плоский КР1 416-9-17.83-КЖИ1.107000 Колонна К084-1 416-9-17.83-КЖИ1.107100 Каркас пространственный КП1 416-9-17.83-КЖИ1.107110 Каркас плоский КР1 416-9-17.83-КЖИ1.107120 Сетка С1 416-9-17.83-КЖИ1.107130 Сетка С2 416-9-17.83-КЖИ1.108000 Колонна К044-1 416-9-17.83-КЖИ1.108100 Каркас пространственный КП1 416-9-17.83-КЖИ1.108110 Сетка С1 416-9-17.83-КЖИ1.109000 Колонна К044-2 416-9-17.83-КЖИ1.109100 Каркас пространственный КП1 416-9-17.83-КЖИ1.201000 Балка (Б1513-1, Б1513-1-а, Б1513-1-б) 416-9-17.83-КЖИ1.201100 Каркас пространственный КП1 416-9-17.83-КЖИ1.201110 Каркас плоский КР1 416-9-17.83-КЖИ1.201120 Каркас плоский КР2 416-9-17.83-КЖИ1.201130 Сетка С1 416-9-17.83-КЖИ1.201200 Каркас пространственный КП2 416-9-17.83-КЖИ1.201210 Каркас плоский (КР3, КР4) 416-9-17.83-КЖИ1.201220 Каркас плоский КР5 416-9-17.83-КЖИ1.201300 Каркас пространственный КП3 416-9-17.83-КЖИ1.201310 Каркас плоский КР6 416-9-17.83-КЖИ1.201010 Каркас плоский (КР7, КР8, КР9) 416-9-17.83-КЖИ1.202000 Балка (Б1513-2, Б1513-2-а) 416-9-17.83-КЖИ1.202100 Каркас пространственный КП1 416-9-17.83-КЖИ1.202110 Сетка С1 416-9-17.83-КЖИ1.202010 Каркас плоский КР3 416-9-17.83-КЖИ1.203000 Балка Б1512-1 416-9-17.83-КЖИ1.203100 Каркас пространственный КП1 416-9-17.83-КЖИ1.203110 Каркас плоский КР1 416-9-17.83-КЖИ1.203120 Каркас плоский КР2 416-9-17.83-КЖИ1.203130 Каркас плоский КР3 416-9-17.83-КЖИ1.203140 Стержень составной С1 416-9-17.83-КЖИ1.204000 Балка (Б1512-2, Б1512-2-а) 416-9-17.83-КЖИ1.204100 Каркас пространственный КП1 416-9-17.83-КЖИ1.204110 Каркас плоский КР4 416-9-17.83-КЖИ1.204120 Каркас плоский КР5 416-9-17.83-КЖИ1.204010 Каркас плоский КР6 416-9-17.83-КЖИ1.205000 Балка (Б1214-1, Б1214-1-а, Б1214-1-б) 416-9-17.83-КЖИ1.205100 Каркас пространственный КП1 416-9-17.83-КЖИ1.205110 Каркас плоский КР1 416-9-17.83-КЖИ1.206000 Балка (Б1214-2, Б1214-2-а) 416-9-17.83-КЖИ1.206100 Каркас пространственный КП1 416-9-17.83-КЖИ1.206110 Каркас плоский КР1 416-9-17.83-КЖИ1.207000 Балка Б1211 416-9-17.83-КЖИ1.207010 Каркас плоский КР1 416-9-17.83-КЖИ1.207020 Каркас плоский КР2 416-9-17.83-КЖИ1.208000 Балка (Б1210-1, Б1210-1-а) 416-9-17.83-КЖИ1.208100 Каркас пространственный КП1 416-9-17.83-КЖИ1.208110 Каркас плоский КР1 416-9-17.83-КЖИ1.208120 Каркас плоский КР2 416-9-17.83-КЖИ1.208200 Каркас пространственный КП2 416-9-17.83-КЖИ1.208210 Каркас плоский КР3 416-9-17.83-КЖИ1.208220 Каркас плоский КР4 416-9-17.83-КЖИ1.209000 Балка (Б1210-2, Б1210-2-а) 416-9-17.83-КЖИ1.209100 Каркас пространственный (КП1, КП1н) 416-9-17.83-КЖИ1.210000 Балка (Б128-1, Б128-1-а, Б128-1-б, Б128-1-в) 416-9-17.83-КЖИ1.210000СБ Балка (Б128-1, Б128-1-а, Б128-1-б, Б128-1-в). Сборочный чертеж 416-9-17.83-КЖИ1.210100 Каркас пространственный КП1 416-9-17.83-КЖИ1.210110 Каркас плоский КР1 416-9-17.83-КЖИ1.210120 Каркас плоский КР2 416-9-17.83-КЖИ1.211000 Балка (Б128-2, Б128-2-а) 416-9-17.83-КЖИ1.211100 Каркас пространственный КП1 416-9-17.83-КЖИ1.211110 Каркас плоский КР1 416-9-17.83-КЖИ1.212000 Балка Б128-3 416-9-17.83-КЖИ1.213000 Балка Б126-1 416-9-17.83-КЖИ1.213010 Каркас плоский КР1 416-9-17.83-КЖИ1.213020 Каркас плоский КР2 416-9-17.83-КЖИ1.214000 Балка (Б095-1, Б095-1-а) 416-9-17.83-КЖИ1.214100 Каркас пространственный КП1 416-9-17.83-КЖИ1.214110 Каркас плоский КР1 416-9-17.83-КЖИ1.215000 Балка (Б086-1, Б086-1-а) 416-9-17.83-КЖИ1.215100 Каркас пространственный КП1 416-9-17.83-КЖИ1.215110 Каркас плоский КР1 416-9-17.83-КЖИ1.216000 Балка Б086-1-б 416-9-17.83-КЖИ1.216100 Каркас пространственный КП1 416-9-17.83-КЖИ1.217000 Балка Б086-2 416-9-17.83-КЖИ1.217100 Каркас пространственный КП1 416-9-17.83-КЖИ1.217110 Каркас плоский КР1 416-9-17.83-КЖИ1.217120 Каркас плоский КР2 416-9-17.83-КЖИ1.218000 Балка (Б086-2-а, Б086-2-б) 416-9-17.83-КЖИ1.218100 Каркас пространственный КП1 416-9-17.83-КЖИ1.218110 Каркас плоский КР2 416-9-17.83-КЖИ1.219000 Балка (Б086-3, Б086-3-а, Б086-3-б) 416-9-17.83-КЖИ1.219100 Каркас пространственный КП1 416-9-17.83-КЖИ1.219110 Каркас плоский КР1 416-9-17.83-КЖИ1.219120 Каркас плоский КР2 416-9-17.83-КЖИ1.220000 Балка (Б064-1, Б064-2) 416-9-17.83-КЖИ1.220100 Каркас пространственный (КП1, КП2) 416-9-17.83-КЖИ1.220110 Каркас плоский КР1 416-9-17.83-КЖИ1.220120 Каркас плоский КР2 416-9-17.83-КЖИ1.220130 Каркас плоский КР3 416-9-17.83-КЖИ1.221000 Балка (Б064-3, Б064-4, Б064-4-а) 416-9-17.83-КЖИ1.221100 Каркас пространственный (КП1, КП2) 416-9-17.83-КЖИ1.221110 Каркас плоский КР1 |
| Разработан: | Теплоэлектропроект |
| Утверждён: | 17.09.1981 Минэнерго СССР (USSR Minenergo 48) |

















































































































































