Скачать Типовой проект 416-9-17.83 Альбом XII. Изделия арматурные для монолитных железобетонных конструкцийДата актуализации: 01.01.2021
|
| Обозначение: | Типовой проект 416-9-17.83 |
| Обозначение англ: | 416-9-17.83 |
| Статус: | не определен законодательством |
| Название рус.: | Альбом XII. Изделия арматурные для монолитных железобетонных конструкций |
| Дата добавления в базу: | 01.09.2013 |
| Дата актуализации: | 01.01.2021 |
| Дата введения: | 26.05.1983 |
| Дата окончания срока действия: | 30.06.2003 |
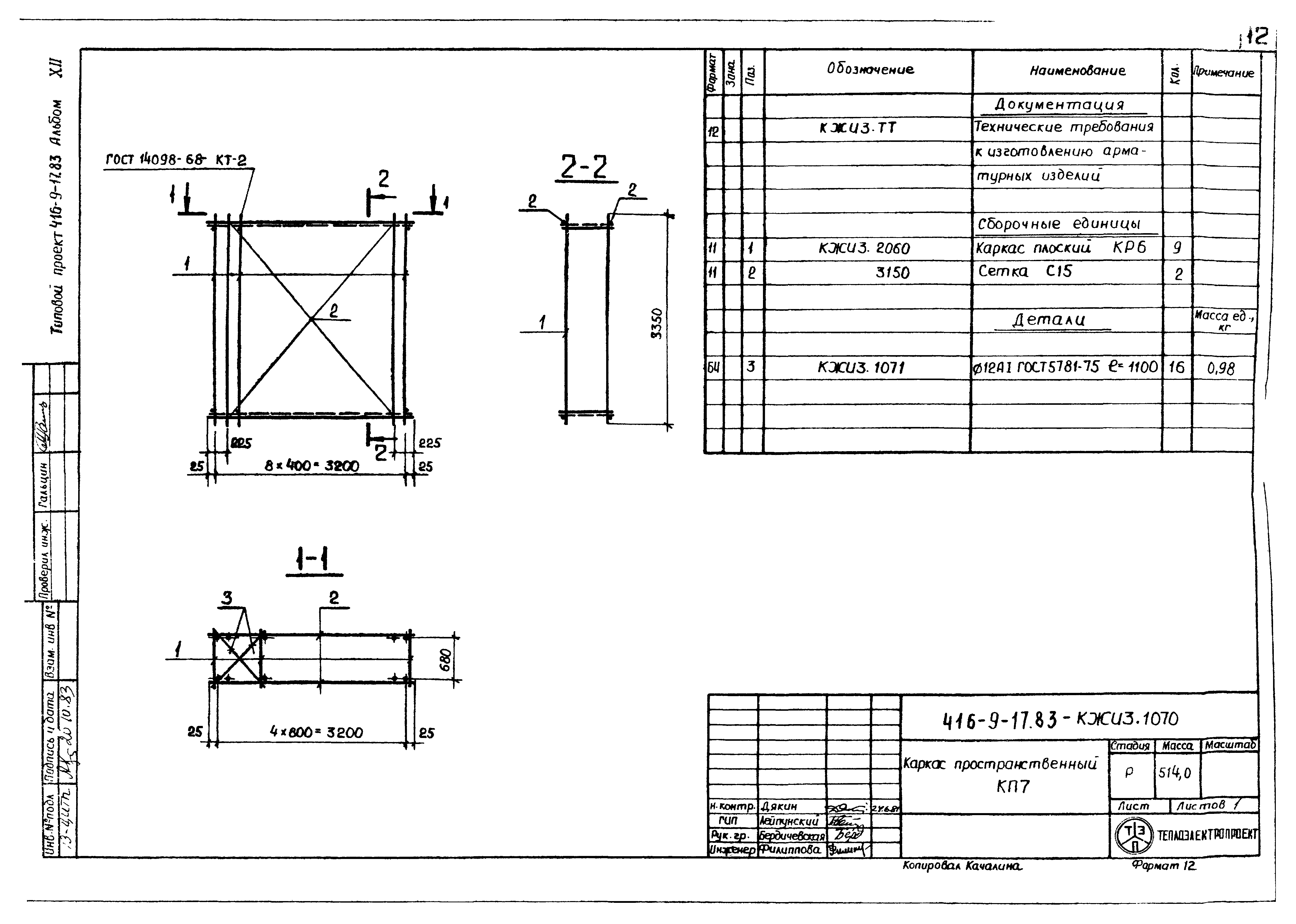
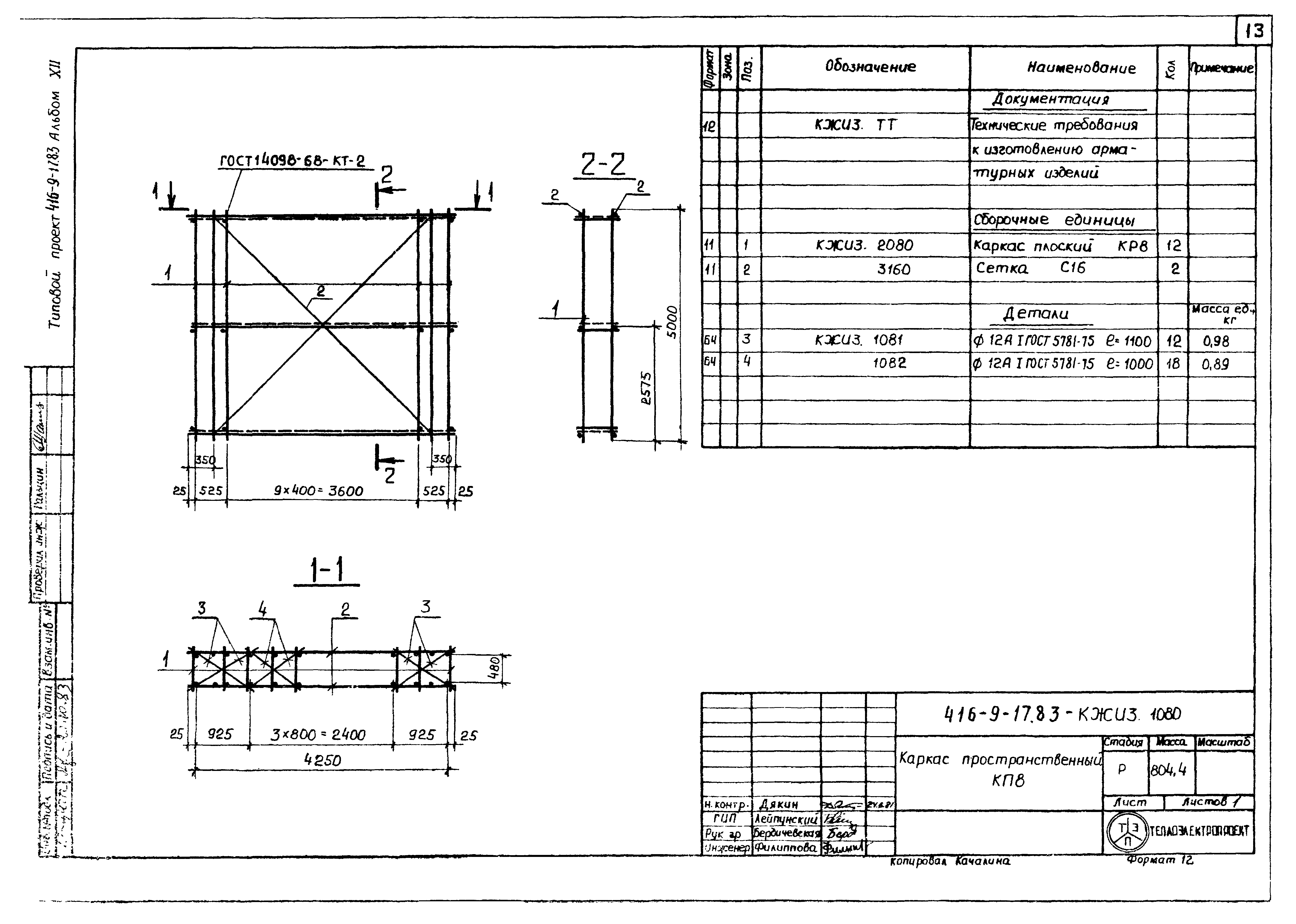
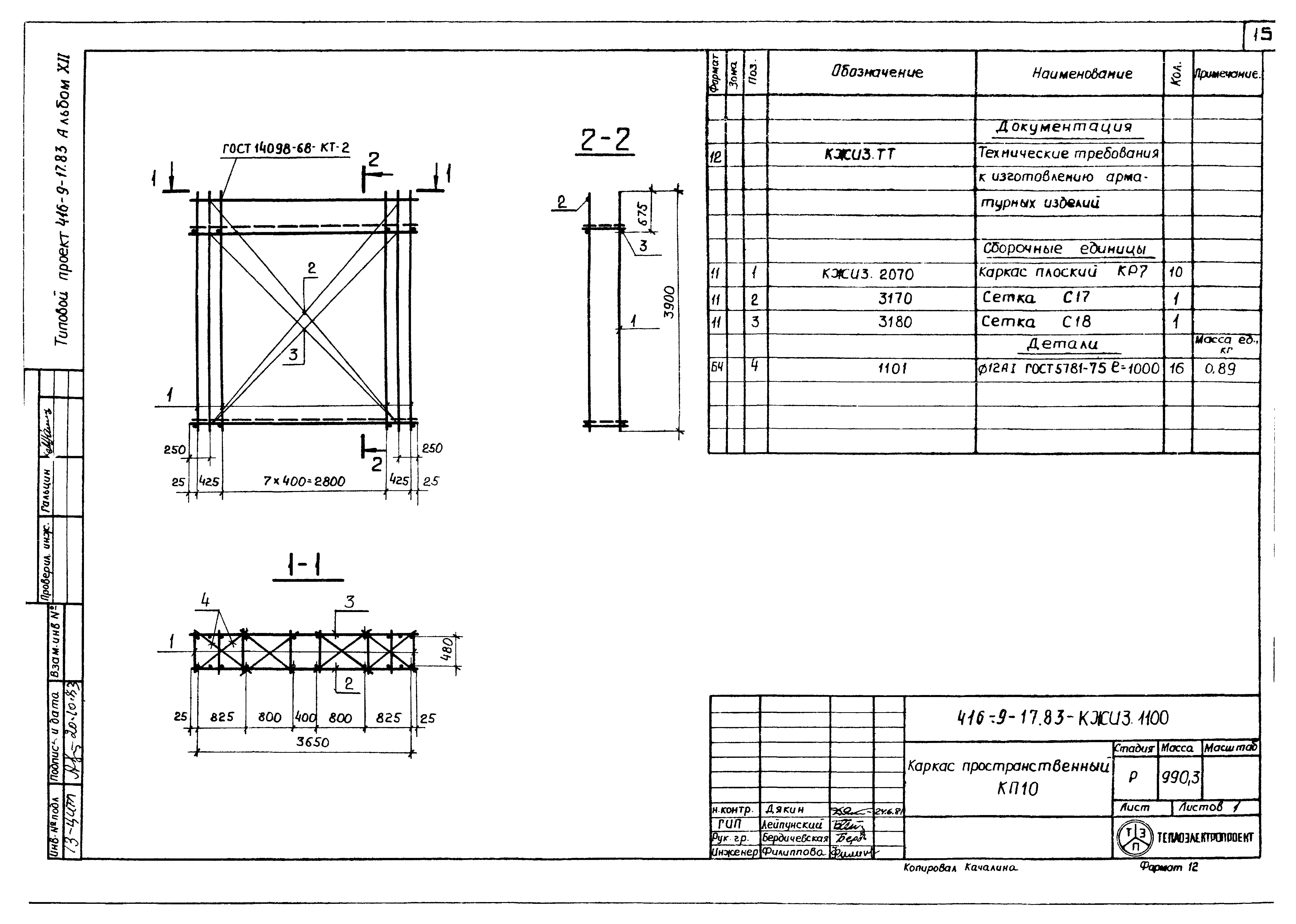
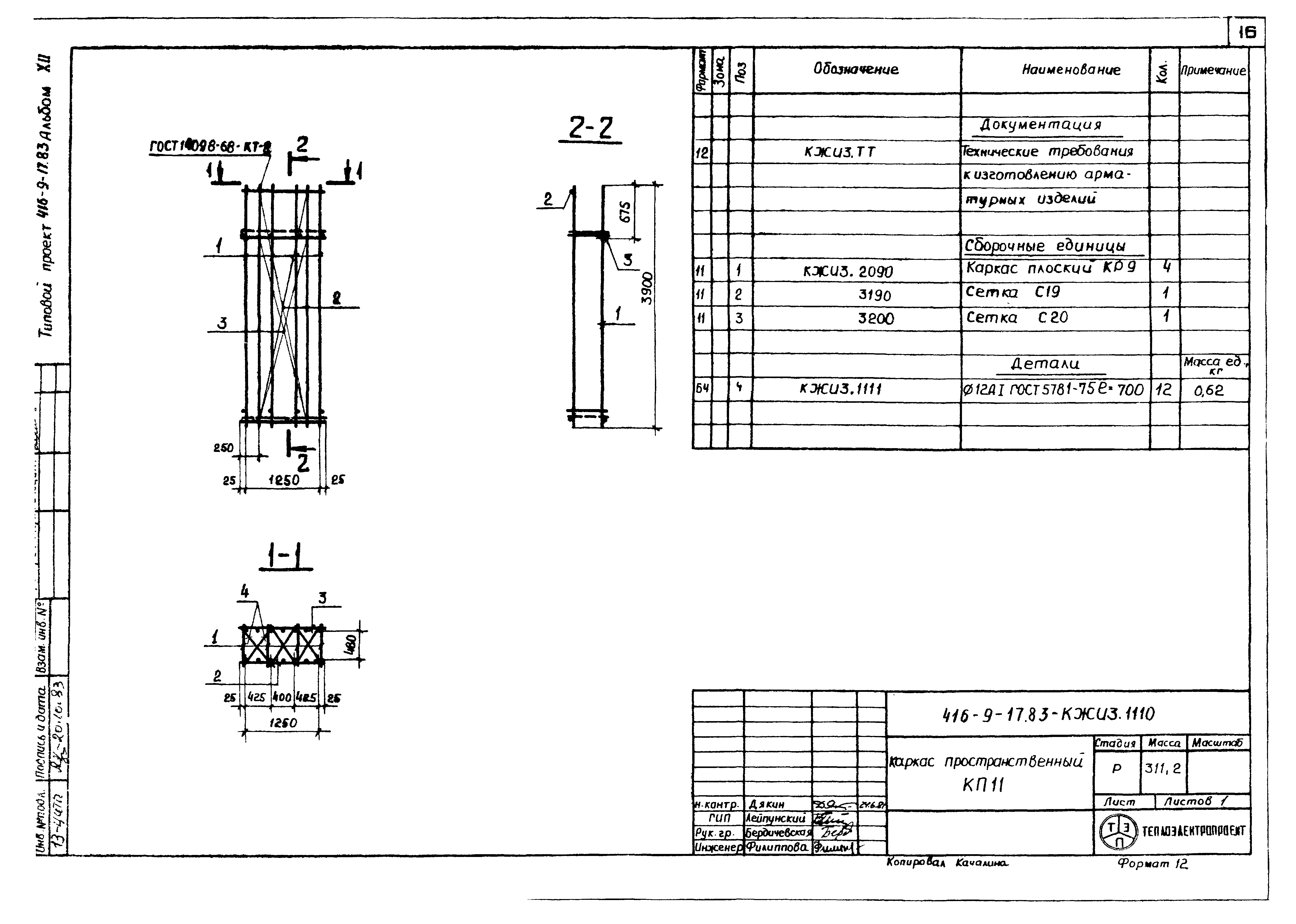
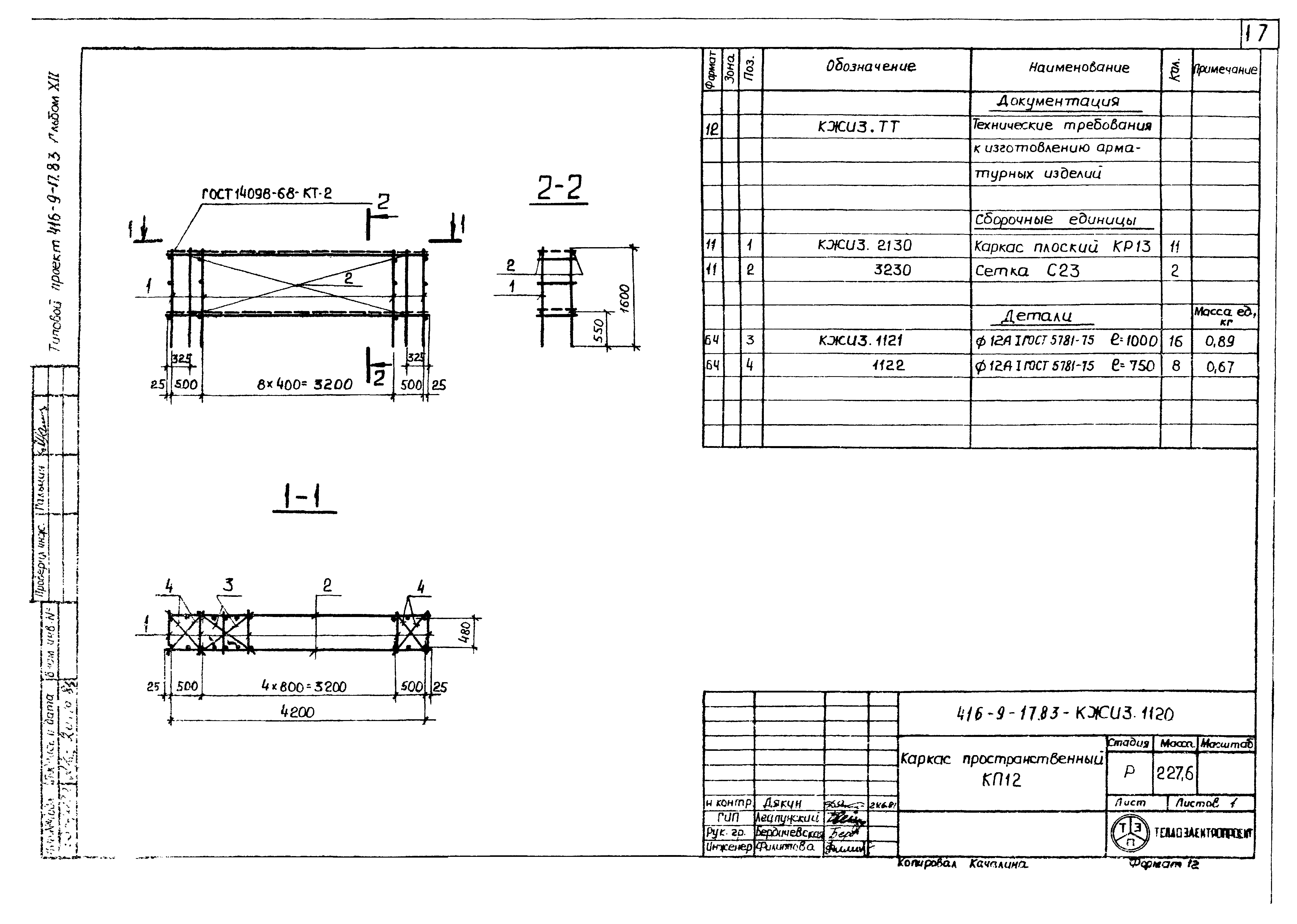
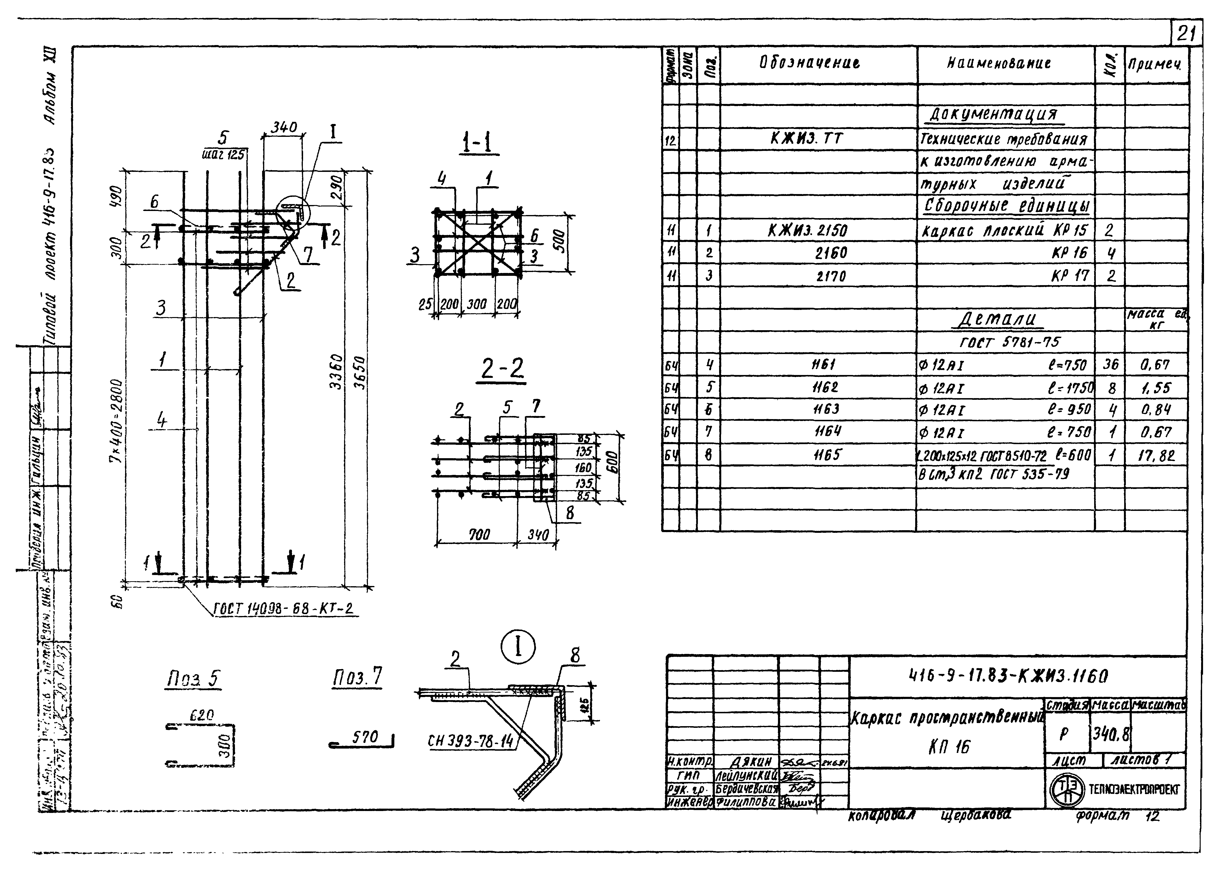
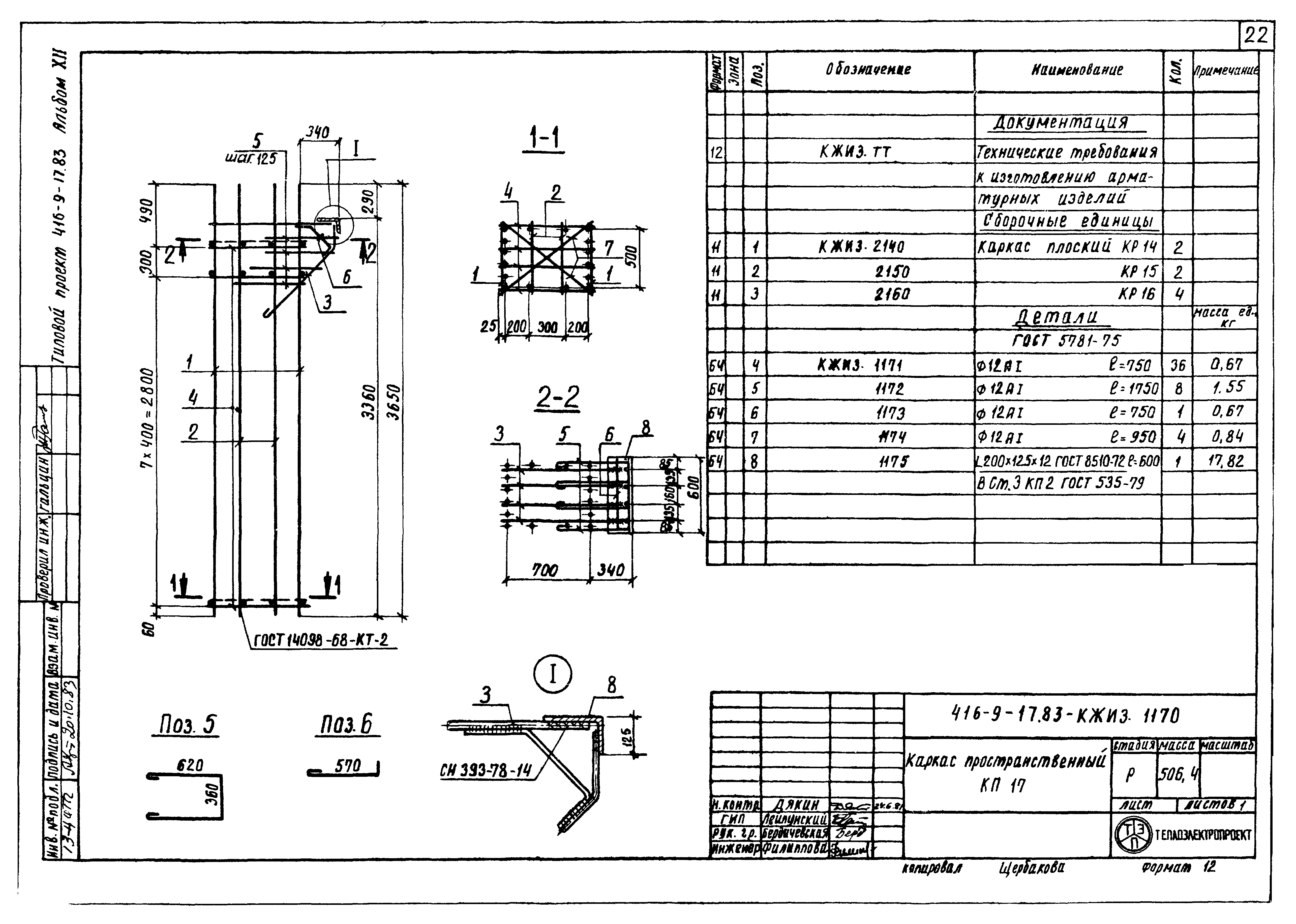
| Оглавление: | Титульный лист 416-9-17.83-КЖИ3.ДО Ведомость листов альбома 416-9-17.83-КЖИ3.ПЗ Пояснительная записка 416-9-17.83-КЖИ3.ТТ Технические требования к изготовлению арматурных изделий 416-9-17.83-КЖИ3.1010 Каркас пространственный КП1 416-9-17.83-КЖИ3.1020 Каркас пространственный КП2 416-9-17.83-КЖИ3.1030 Каркас пространственный КП3 416-9-17.83-КЖИ3.1040 Каркас пространственный КП4 416-9-17.83-КЖИ3.1050 Каркас пространственный КП5 416-9-17.83-КЖИ3.1060 Каркас пространственный КП6 416-9-17.83-КЖИ3.1070 Каркас пространственный КП7 416-9-17.83-КЖИ3.1080 Каркас пространственный КП8 416-9-17.83-КЖИ3.1090 Каркас пространственный КП9 416-9-17.83-КЖИ3.1100 Каркас пространственный КП10 416-9-17.83-КЖИ3.1110 Каркас пространственный КП11 416-9-17.83-КЖИ3.1120 Каркас пространственный КП12 416-9-17.83-КЖИ3.1130 Каркас пространственный КП13 416-9-17.83-КЖИ3.1140 Каркас пространственный КП14 416-9-17.83-КЖИ3.1150 Каркас пространственный КП15 416-9-17.83-КЖИ3.1160 Каркас пространственный КП16 416-9-17.83-КЖИ3.1170 Каркас пространственный КП17 416-9-17.83-КЖИ3.1180 Каркас пространственный КП18 416-9-17.83-КЖИ3.1190 Каркас пространственный КП19 416-9-17.83-КЖИ3.1200 Каркас пространственный КП20 416-9-17.83-КЖИ3.1210 Каркас пространственный КП21 416-9-17.83-КЖИ3.1220 Каркас пространственный КП22 416-9-17.83-КЖИ3.1230 Каркас пространственный КП23 416-9-17.83-КЖИ3.1240 Каркас пространственный (КП24, КП25) 416-9-17.83-КЖИ3.1250 Каркас пространственный (КП26, КП27) 416-9-17.83-КЖИ3.2010 Каркас плоский КР1 416-9-17.83-КЖИ3.2020 Каркас плоский КР2 416-9-17.83-КЖИ3.2030 Каркас плоский КР3 416-9-17.83-КЖИ3.2040 Каркас плоский КР4 416-9-17.83-КЖИ3.2050 Каркас плоский КР5 416-9-17.83-КЖИ3.2060 Каркас плоский КР6 416-9-17.83-КЖИ3.2070 Каркас плоский КР7 416-9-17.83-КЖИ3.2080 Каркас плоский КР8 416-9-17.83-КЖИ3.2090 Каркас плоский КР9 416-9-17.83-КЖИ3.2100 Каркас плоский КР10 416-9-17.83-КЖИ3.2110 Каркас плоский КР11 416-9-17.83-КЖИ3.2120 Каркас плоский КР12 416-9-17.83-КЖИ3.2130 Каркас плоский КР13 416-9-17.83-КЖИ3.2140 Каркас плоский КР14 416-9-17.83-КЖИ3.2150 Каркас плоский КР15 416-9-17.83-КЖИ3.2160 Каркас плоский КР16 416-9-17.83-КЖИ3.2170 Каркас плоский КР17 416-9-17.83-КЖИ3.2180 Каркас плоский КР18 416-9-17.83-КЖИ3.2190 Каркас плоский КР19 416-9-17.83-КЖИ3.2200 Каркас плоский КР20 416-9-17.83-КЖИ3.2210 Каркас плоский КР21 416-9-17.83-КЖИ3.2220 Каркас плоский КР22 416-9-17.83-КЖИ3.2230 Каркас плоский КР23 416-9-17.83-КЖИ3.2240 Каркас плоский КР24 416-9-17.83-КЖИ3.2250 Каркас плоский КР25 416-9-17.83-КЖИ3.2260 Каркас плоский КР26 416-9-17.83-КЖИ3.2270 Каркас плоский КР27 416-9-17.83-КЖИ3.2280 Каркас плоский КР28 416-9-17.83-КЖИ3.2290 Каркас плоский КР29 416-9-17.83-КЖИ3.2300 Каркас плоский КР30 416-9-17.83-КЖИ3.2310 Каркас плоский КР31 416-9-17.83-КЖИ3.3010 Сетка С1 416-9-17.83-КЖИ3.3020 Сетка С2 416-9-17.83-КЖИ3.3030 Сетка С3 416-9-17.83-КЖИ3.3040 Сетка С4 416-9-17.83-КЖИ3.3050 Сетка С5 416-9-17.83-КЖИ3.3060 Сетка С6 416-9-17.83-КЖИ3.3070 Сетка С7 416-9-17.83-КЖИ3.3080 Сетка С8 416-9-17.83-КЖИ3.3090 Сетка С9 416-9-17.83-КЖИ3.3100 Сетка С10 416-9-17.83-КЖИ3.3110 Сетка С11 416-9-17.83-КЖИ3.3120 Сетка С12 416-9-17.83-КЖИ3.3130 Сетка С13 416-9-17.83-КЖИ3.3140 Сетка С14 416-9-17.83-КЖИ3.3150 Сетка С15 416-9-17.83-КЖИ3.3160 Сетка С16 416-9-17.83-КЖИ3.3170 Сетка С17 416-9-17.83-КЖИ3.3180 Сетка С18 416-9-17.83-КЖИ3.3190 Сетка С19 416-9-17.83-КЖИ3.3200 Сетка С20 416-9-17.83-КЖИ3.3210 Сетка С21 416-9-17.83-КЖИ3.3220 Сетка С22 416-9-17.83-КЖИ3.3230 Сетка С23 416-9-17.83-КЖИ3.3240 Сетка С24 416-9-17.83-КЖИ3.3250 Сетка С25 416-9-17.83-КЖИ3.3260 Сетка С26 416-9-17.83-КЖИ3.3270 Сетка С27 416-9-17.83-КЖИ3.3280 Сетка С28 416-9-17.83-КЖИ3.3290 Сетка С29 416-9-17.83-КЖИ3.3300 Сетка С30 416-9-17.83-КЖИ3.3310 Сетка (С31, С32, С33) 416-9-17.83-КЖИ3.3320 Сетка (С34, С35, С36) 416-9-17.83-КЖИ3.3330 Сетка (С37, С38) 416-9-17.83-КЖИ3.3340 Сетка С39 416-9-17.83-КЖИ3.3350 Сетка С40 416-9-17.83-КЖИ3.3360 Сетка С41 416-9-17.83-КЖИ3.3370 Сетка С42 416-9-17.83-КЖИ3.3380 Сетка С43 416-9-17.83-КЖИ3.3390 Сетка С44 416-9-17.83-КЖИ3.3400 Сетка С45 416-9-17.83-КЖИ3.3410 Сетка С46 |
| Разработан: | Теплоэлектропроект |
| Утверждён: | 17.09.1981 Минэнерго СССР (USSR Minenergo 48) |

































































