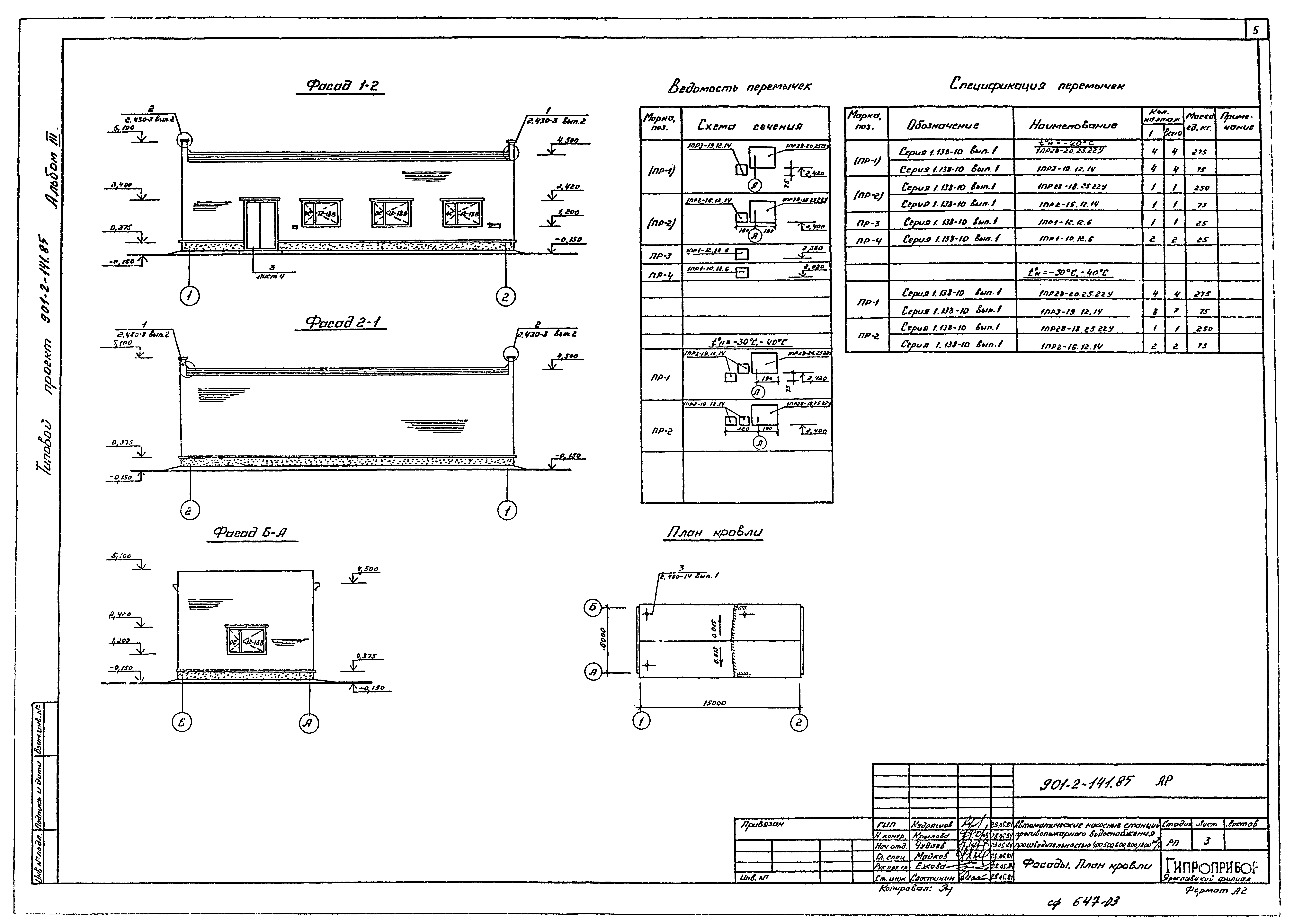
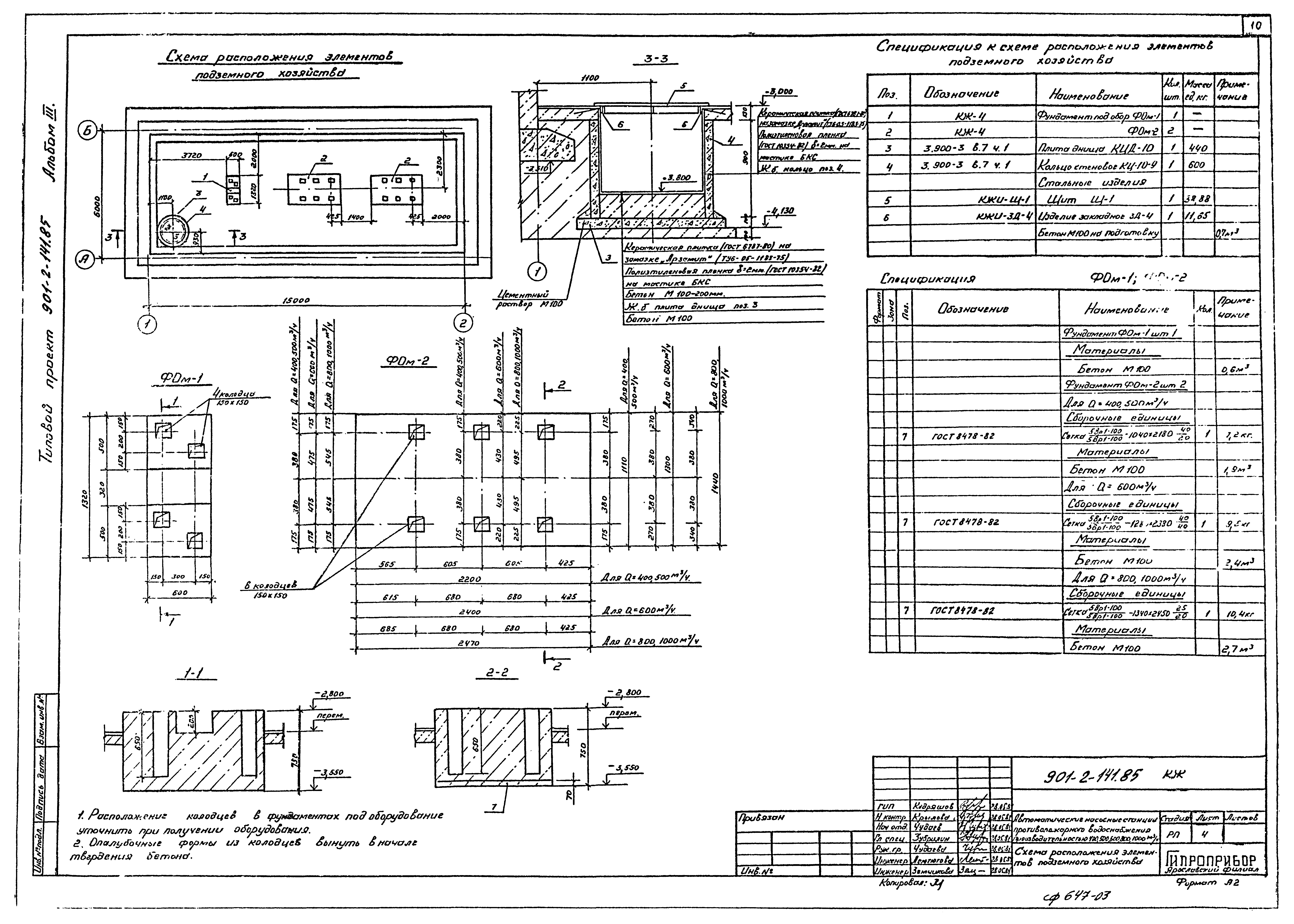
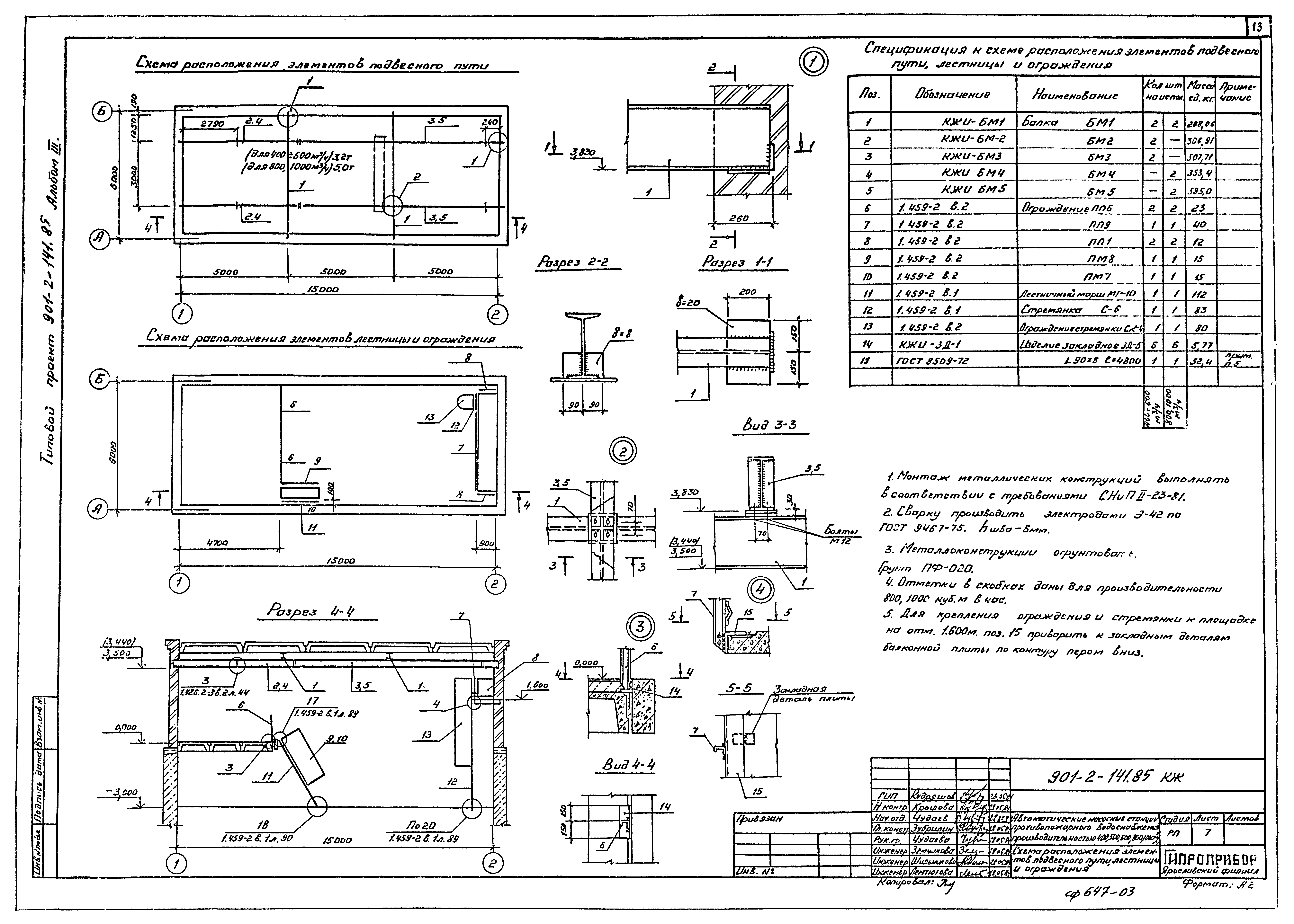
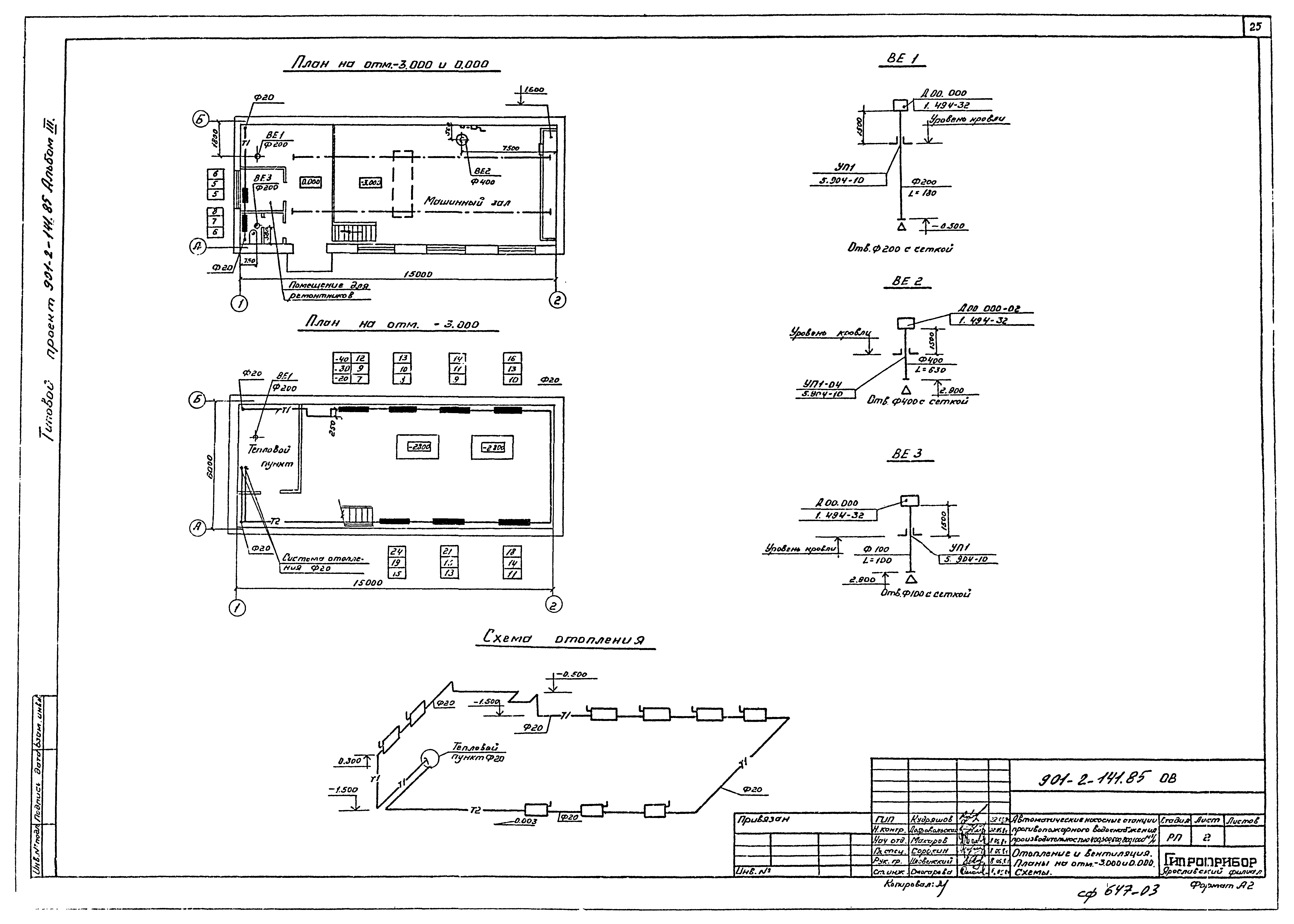
Скачать Типовой проект 901-2-141.85 Альбом III. Архитектурно-строительные решения. Конструкции железобетонные. Внутренний водопровод и канализация. Отопление и вентиляцияДата актуализации: 01.01.2021
|
| Обозначение: | Типовой проект 901-2-141.85 |
| Обозначение англ: | 901-2-141.85 |
| Статус: | действует |
| Название рус.: | Альбом III. Архитектурно-строительные решения. Конструкции железобетонные. Внутренний водопровод и канализация. Отопление и вентиляция |
| Дата добавления в базу: | 01.02.2017 |
| Дата актуализации: | 01.01.2021 |
| Дата введения: | 01.01.1985 |
| Разработан: | СПКБ Спецавтоматика Минприбора |
| Утверждён: | 29.06.1984 Минприбор СССР (USSR Minpribor 32-84) |
| Издан: | ЦИТП Госстроя СССР (CITP, Gosstroy (USSR) 1990 г. ) |
| Заменяет собой: |
|



























