Скачать Серия ИИС-61 Конструкции многоэтажных промышленных зданий с балочными перекрытиями и сеткой колонн 6х6 м под полезные нормативные нагрузки 500, 1000, 1500 и 2000 кг/кв. м для районов с сейсмичностью 7 - 8 баллов. Монтажные схемы, узлы сопряжений конструкций и разные элементы. Рабочие чертежиДата актуализации: 01.01.2021
|
| Обозначение: | Серия ИИС-61 |
| Обозначение англ: | Series ИИС-61 |
| Статус: | действует |
| Название рус.: | Конструкции многоэтажных промышленных зданий с балочными перекрытиями и сеткой колонн 6х6 м под полезные нормативные нагрузки 500, 1000, 1500 и 2000 кг/кв. м для районов с сейсмичностью 7 - 8 баллов. Монтажные схемы, узлы сопряжений конструкций и разные элементы. Рабочие чертежи |
| Дата добавления в базу: | 01.09.2013 |
| Дата актуализации: | 01.01.2021 |
| Дата введения: | 14.12.1962 |
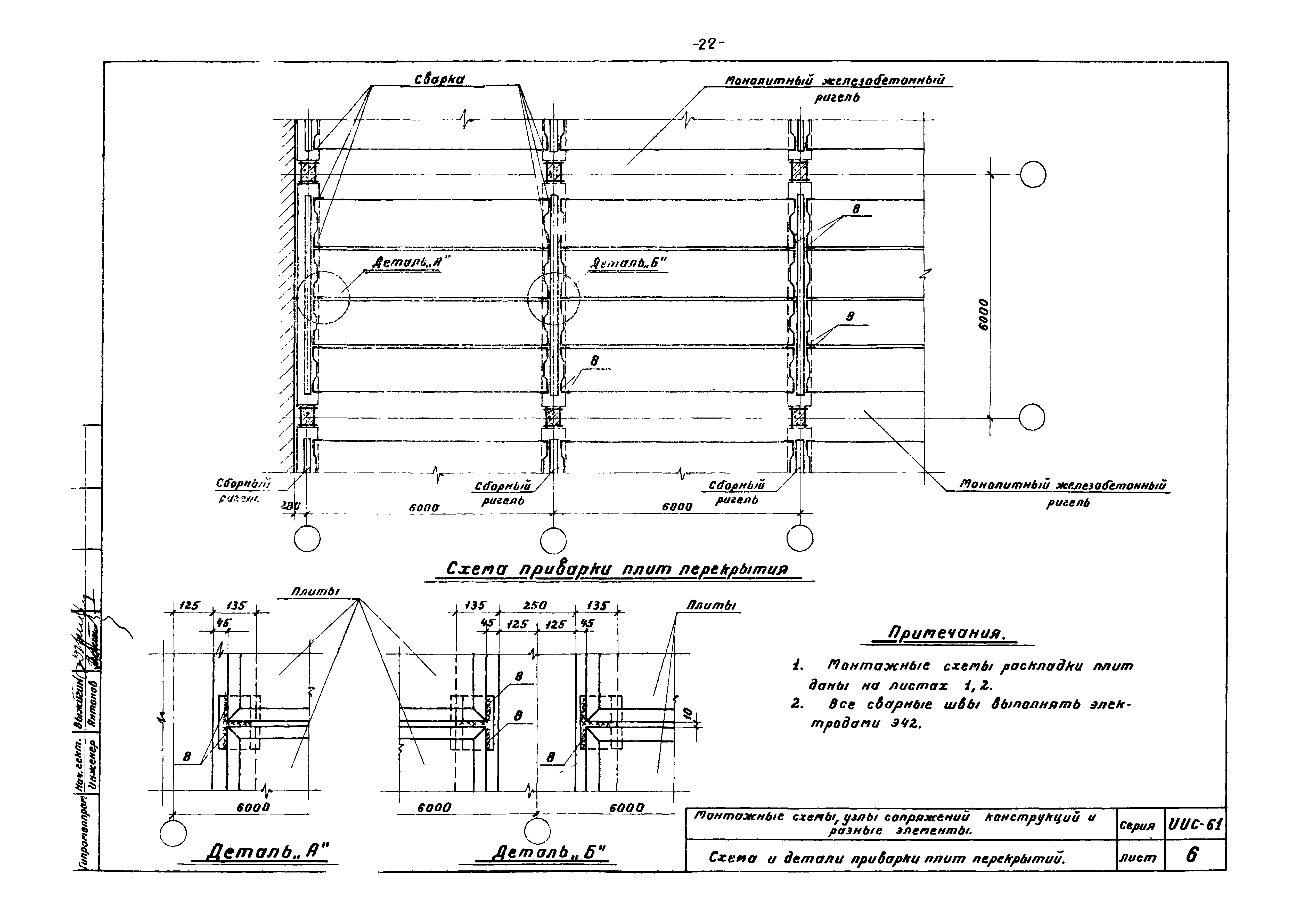
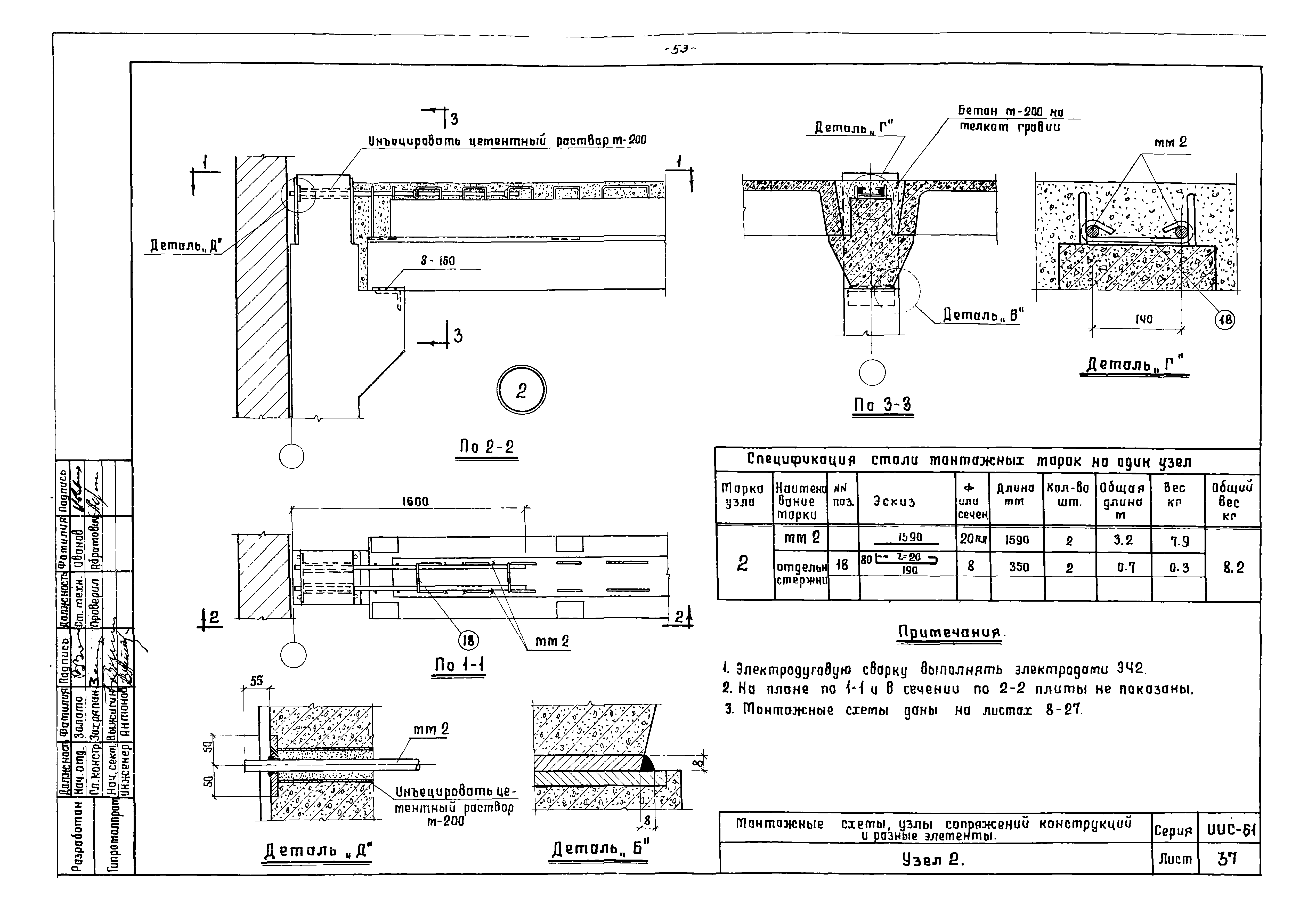
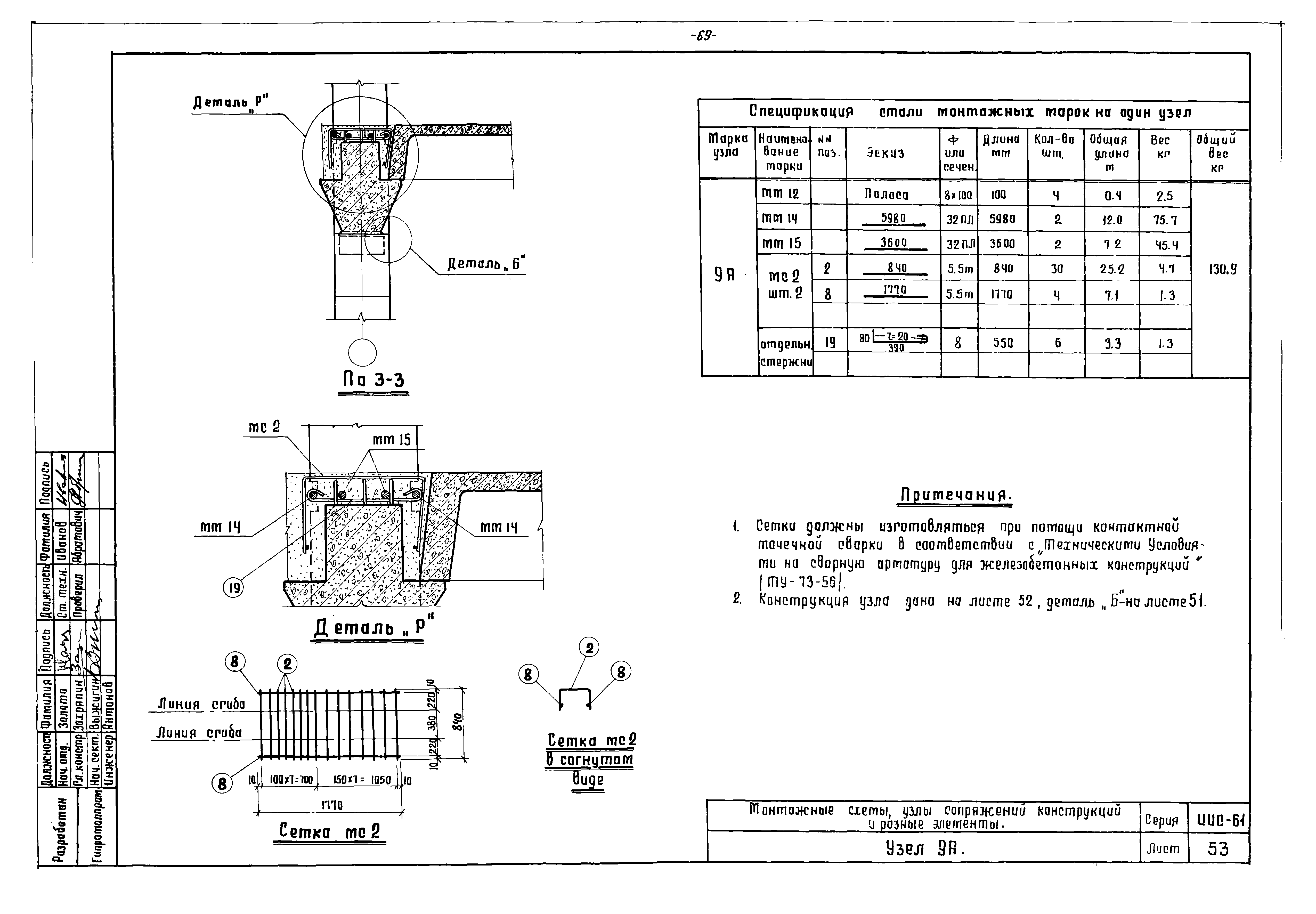
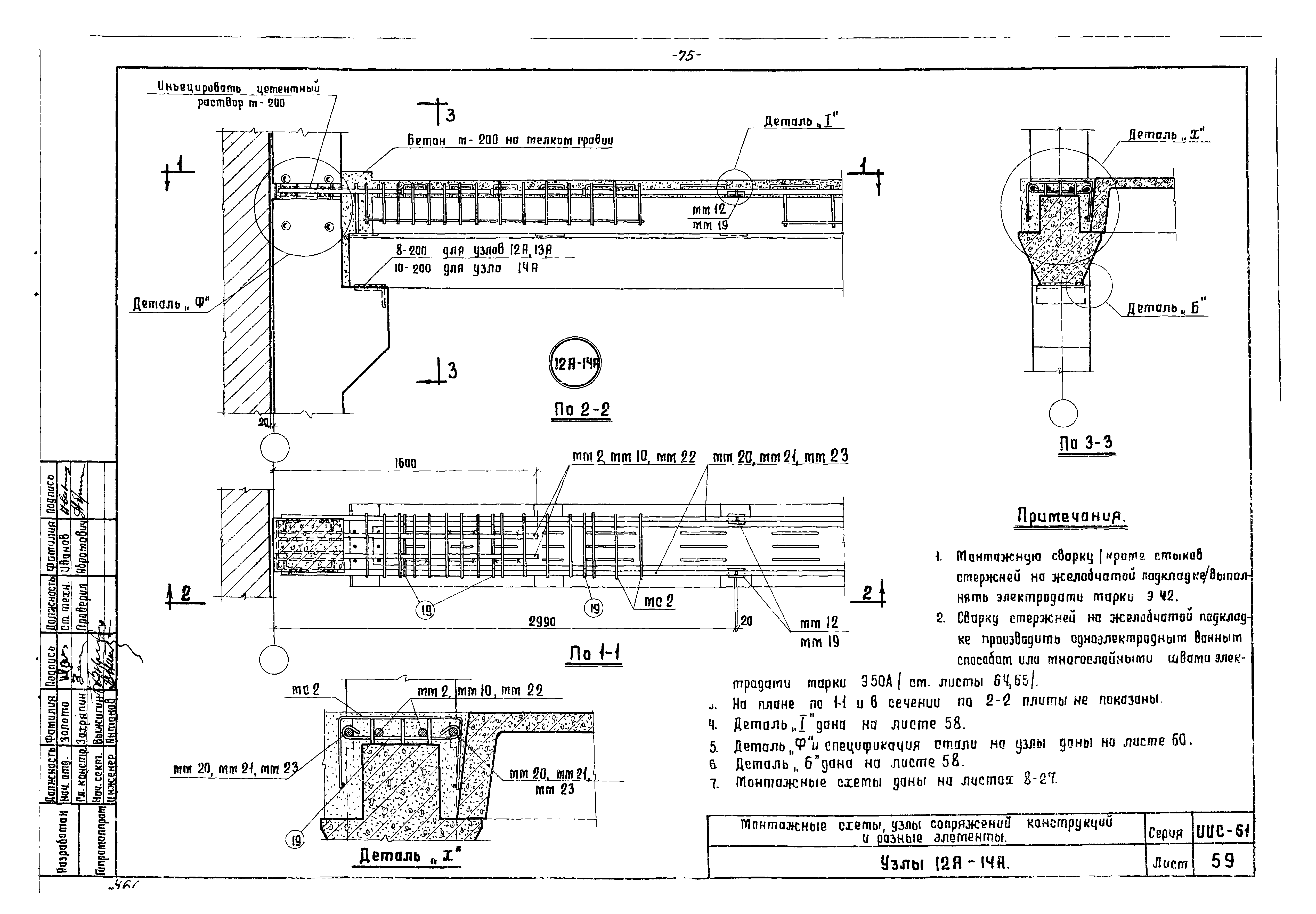
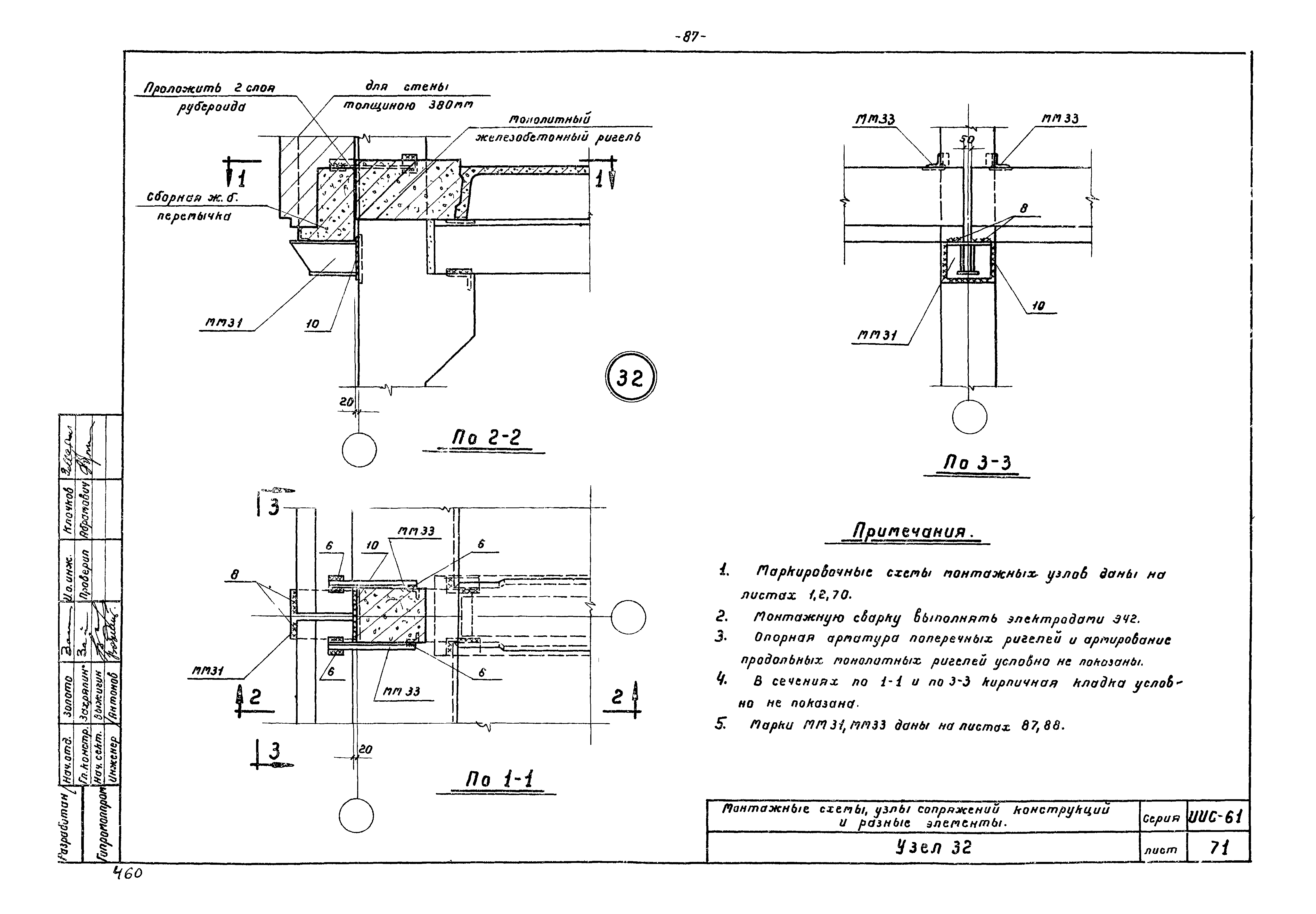
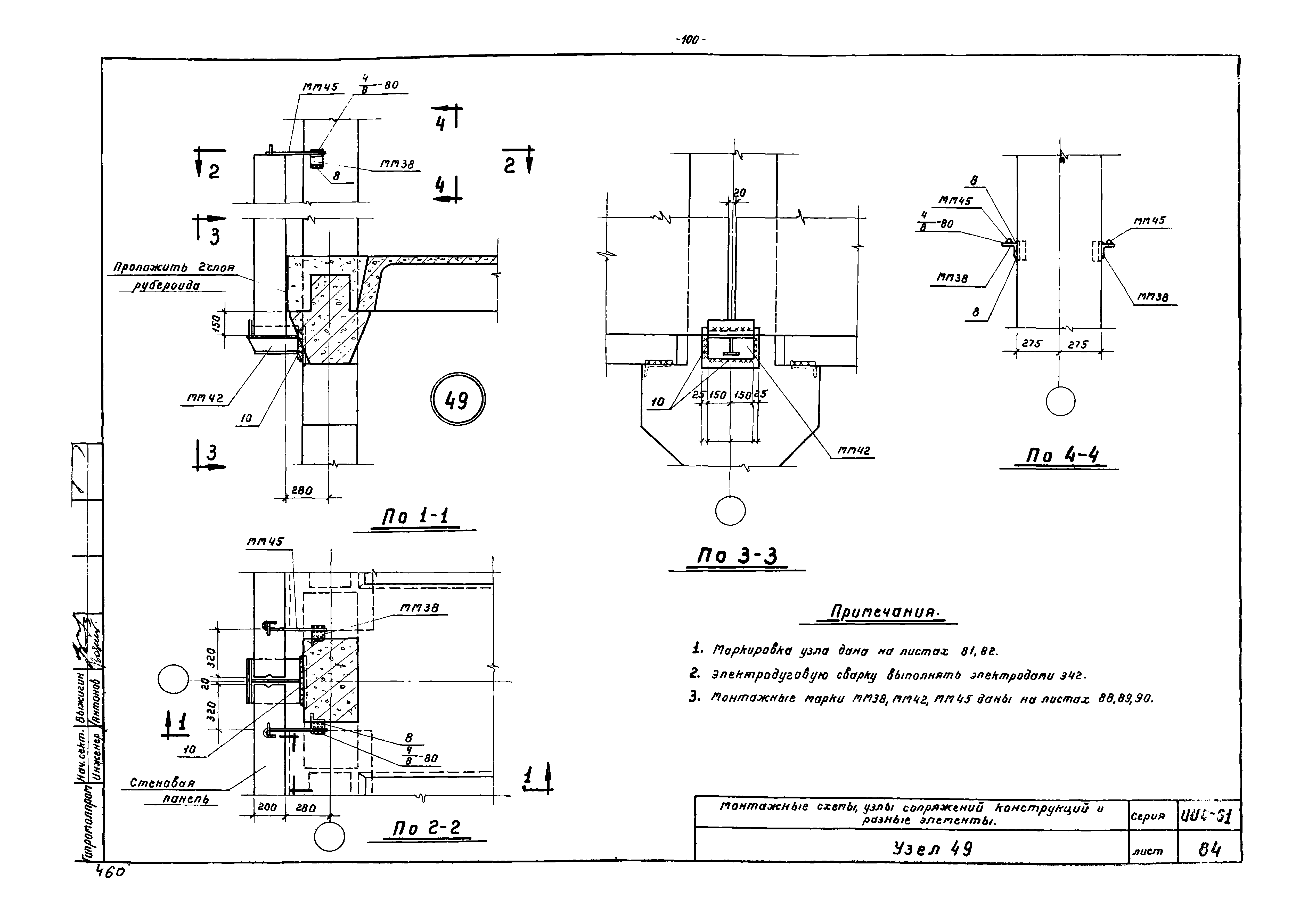
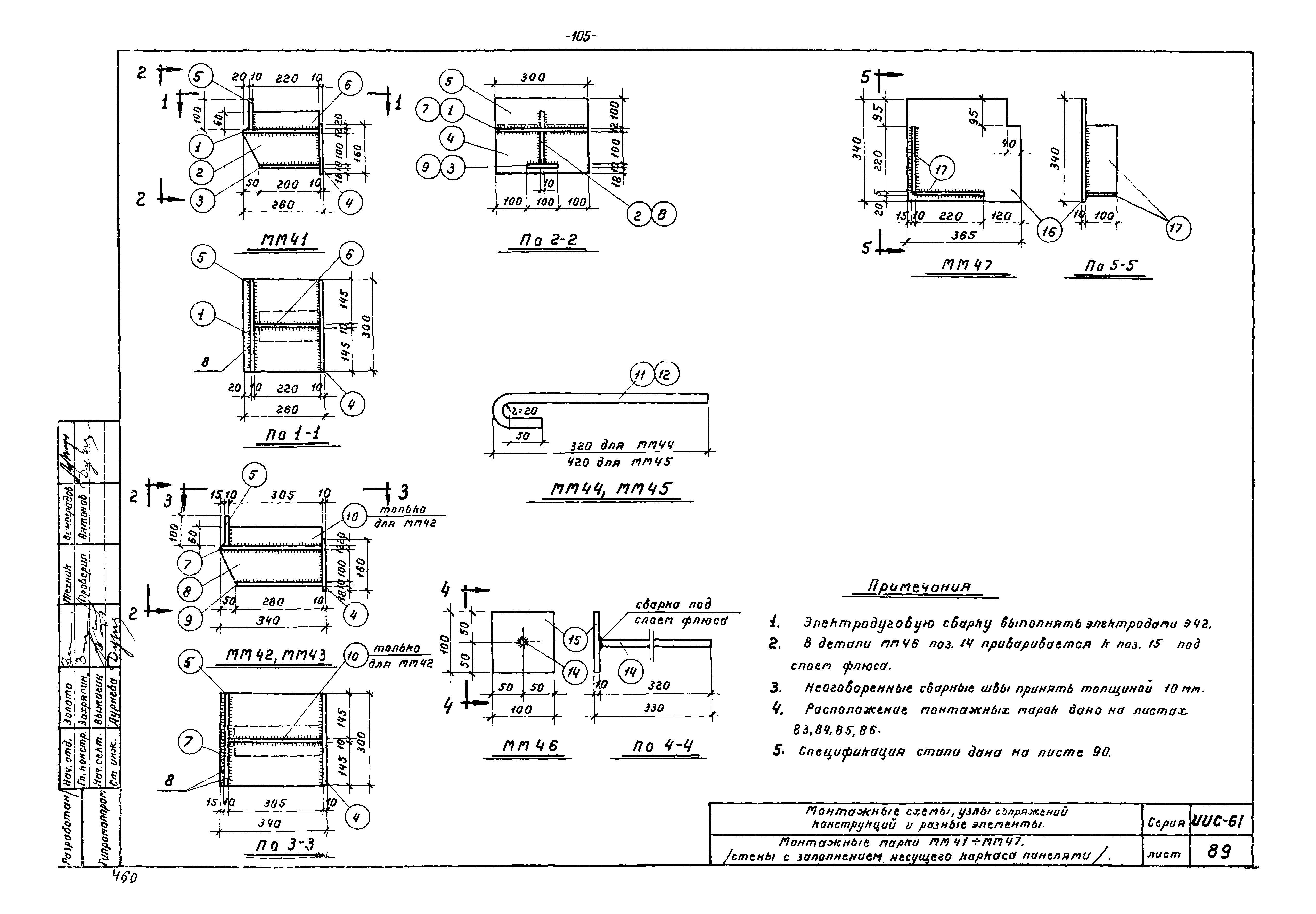
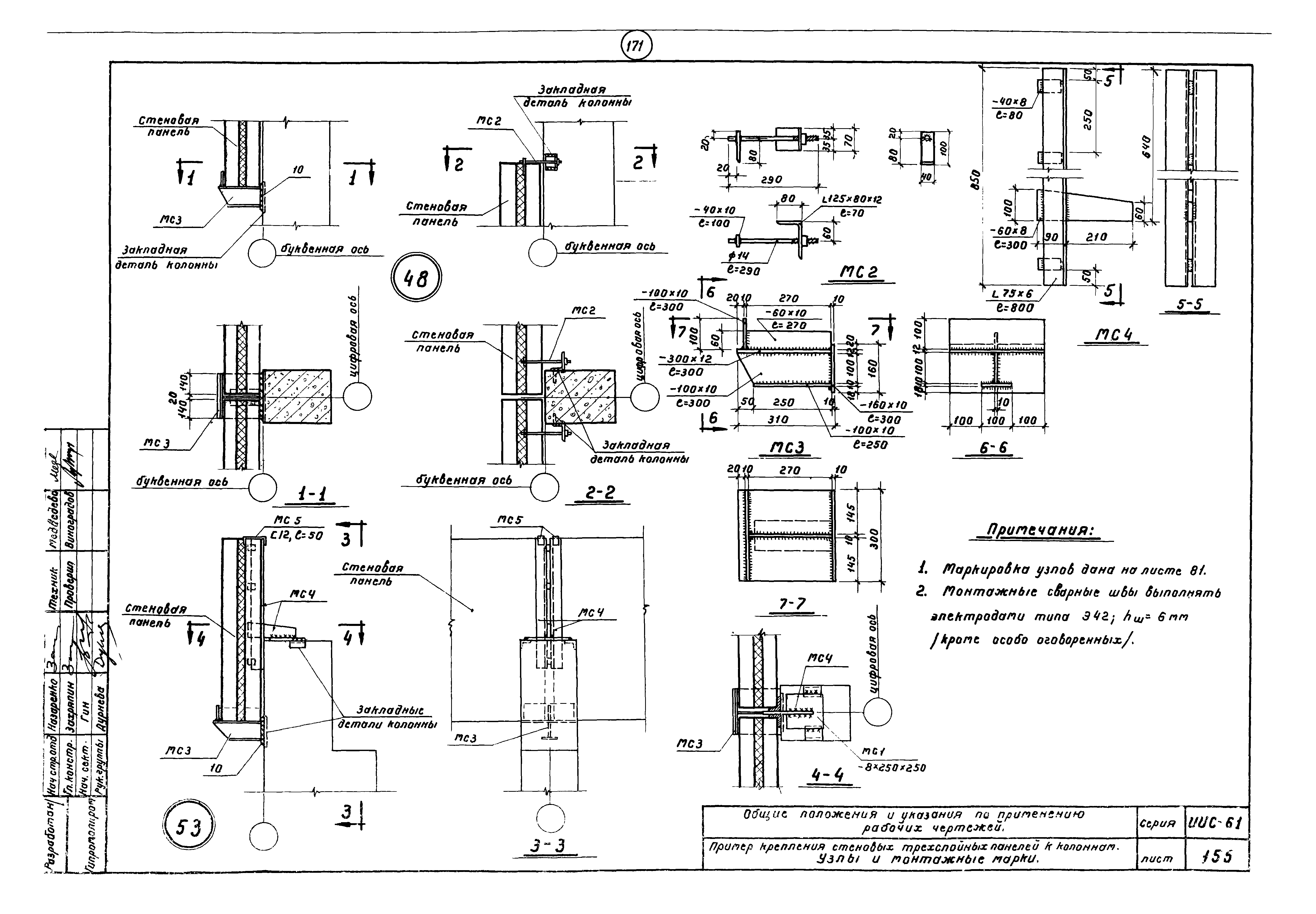
| Оглавление: | Пояснительная записка Монтажные схемы плит и опорных каркасов перекрытий при полезной нормативной нагрузке 500 и 1000 кг/кв. м Монтажные схемы плит и опорных каркасов перекрытий при полезной нормативной нагрузке 1500 и 2000 кг/кв. м Разрезы по 1-1 и по 2-2 Опорные каркасы узлов перекрытий Опорные каркасы. Спецификация стали Схема и детали приварки плит перекрытий Монтажный план и перечень маркировки колонн Монтажные схемы поперечного каркаса для 3-этажных зданий с высотами этажей 3,6 м с расчетной сейсмичностью 7 баллов. Схемы 1 - 4 Монтажные схемы поперечного каркаса для 3-этажных зданий с высотами этажей 3,6 м с расчетной сейсмичностью 7 баллов. Схемы 5 - 8 Монтажные схемы поперечного каркаса для 3-этажных зданий с высотами этажей 4,8 м с расчетной сейсмичностью 7 баллов. Схемы 9 - 12 Монтажные схемы поперечного каркаса для 3-этажных зданий с высотами этажей 4,8 м с расчетной сейсмичностью 7 баллов. Схемы 13 - 16 Монтажные схемы поперечного каркаса для 3-этажных зданий с высотами этажей 5,4 м с расчетной сейсмичностью 7 баллов. Схемы 17 - 20 Монтажные схемы поперечного каркаса для 4-этажных зданий с высотами этажей 3,6 м с расчетной сейсмичностью 7 баллов. Схемы 21 - 24 Монтажные схемы поперечного каркаса для 4-этажных зданий с высотами этажей 3,6 м с расчетной сейсмичностью 7 баллов. Схемы 25 - 28 Монтажные схемы поперечного каркаса для 4-этажных зданий с высотами этажей 4,8 м с расчетной сейсмичностью 7 баллов. Схемы 29 - 32 Монтажные схемы поперечного каркаса для 4-этажных зданий с высотами этажей 4,8 м с расчетной сейсмичностью 7 баллов. Схемы 33 - 36 Монтажные схемы поперечного каркаса для 4-этажных зданий с высотами этажей 5,4 м с расчетной сейсмичностью 7 баллов. Схемы 37 - 40 Монтажные схемы поперечного каркаса для 3-этажных зданий с высотами этажей 3,6 м с расчетной сейсмичностью 8 баллов. Схемы 41 - 44 Монтажные схемы поперечного каркаса для 3-этажных зданий с высотами этажей 3,6 м с расчетной сейсмичностью 8 баллов. Схемы 45 - 48 Монтажные схемы поперечного каркаса для 3-этажных зданий с высотами этажей 4,8 м с расчетной сейсмичностью 8 баллов. Схемы 49 - 52 Монтажные схемы поперечного каркаса для 3-этажных зданий с высотами этажей 4,8 м с расчетной сейсмичностью 8 баллов. Схемы 53 - 56 Монтажные схемы поперечного каркаса для 3-этажных зданий с высотами этажей 5,4 м с расчетной сейсмичностью 8 баллов. Схемы 57 - 60 Монтажные схемы поперечного каркаса для 4-этажных зданий с высотами этажей 3,6 м с расчетной сейсмичностью 8 баллов. Схемы 61 - 64 Монтажные схемы поперечного каркаса для 4-этажных зданий с высотами этажей 3,6 м с расчетной сейсмичностью 8 баллов. Схемы 65 - 68 Монтажные схемы поперечного каркаса для 4-этажных зданий с высотами этажей 4,8 м с расчетной сейсмичностью 8 баллов. Схемы 69-72 Монтажные схемы поперечного каркаса для 4-этажных зданий с высотами этажей 4,8 м с расчетной сейсмичностью 8 баллов. Схемы 73 - 76 Монтажные схемы поперечного каркаса для 4-этажных зданий с высотами этажей 5,4 м с расчетной сейсмичностью 8 баллов. Схемы 77 - 80 Перечень элементов каркаса зданий для схем 1 - 12 Перечень элементов каркаса зданий для схем 13 - 24 Перечень элементов каркаса зданий для схем 25 - 36 Перечень элементов каркаса зданий для схем 37 - 48 Перечень элементов каркаса зданий для схем 49 - 60 Перечень элементов каркаса зданий для схем 61 - 72 Перечень элементов каркаса зданий для схем 73 - 80 Узлы 1, 1А Узлы 2, 2А Узлы 3, 4, 3А, 4А Узлы 5, 6, 5А, 6А Узлы 7, 8, 7А, 8А Узлы 9, 9А Узлы 10, 11, 10А, 11А Узлы 12 - 14, 12А - 14А Узлы 15 - 17, 15А - 17А Сварка стержней многослойными швами и одноэлектродным ванным способом Указания по сварке стыков Стыки колонн. Узлы 19, 20, 25, 26 Стыки колонн. Узлы 21, 22, 27, 28 Стыки колонн. Узлы 23, 24, 29 - 31 Маркировочные схемы узлов сопряжения перемычек и плит перекрытий (Стены с заполнением несущего каркаса кирпичом). По 1-1. По 2-2 Маркировочные схемы узлов сопряжения перемычек и плит перекрытий (Стены с заполнением несущего каркаса кирпичом). По 3-3. По 4-4 Узел 32 Узел 33 Узел 34 Узлы 35, 36 Монолитная плита П1 у антисейсмического шва. Узел 37 Монолитная плита П1. Узел 37. Сетки и спецификация Узлы 38 - 40 Узлы 41, 42 Узлы 43 - 45 Узел 46 Маркировочные схемы узлов сопряжения панелей и плит перекрытий (стены с заполнением несущего каркаса панелями). По 1-1. По 2-2 Маркировочные схемы узлов сопряжения панелей и плит перекрытий (стены с заполнением несущего каркаса панелями). По 3-3. По 4-4 Узел 48 Узел 49 Узлы 50, 51 Узлы 52 - 54 Монтажные марки ММ31 - ММ37, МС5 - МС8 Спецификация монтажных марок ММ31 - ММ38, МС5 - МС8 (стены с заполнением несущего каркаса кирпичом) Монтажные марки ММ41 - ММ47, ММ49 (стены с заполнением несущего каркаса панелями) Спецификация монтажных марок Ригель РМС-1. Конструкция и маркировочная схема арматурных каркасов Ригель РМС-1. Разрезы по 4-4, 5-5, 6-6, 7-7 Ригель РМС-1. Узел 1 Ригель РМС-1. Узел 2 Ригель РМС-1. Арматурные каркасы и сетки Ригель РМС-1. Спецификация и выборка арматуры. Ригель РМК-1 Ригель РМС-1. Конструкция и маркировочная схема арматурных каркасов Ригель РМС-1. Разрезы по 4-4, 5-5, 6-6, 7-7 Ригель РМС-1. Узел 3 Ригель РМС-1. Узел 4 Ригель РМС-1. Арматурные каркасы и сетки Ригель РМС-1. Спецификация и выборка арматуры Ригели РМС-2, РМС-3, РМС-4, РМС-5, РМС-6, РМС-7. Конструкция и маркировочная схема арматурных каркасов Ригели РМС-2, РМС-3, РМС-4, РМС-5, РМС-6, РМС-7. Показатели расхода материалов и рабочие марки каркасов Ригели РМС-2, РМС-3, РМС-4, РМС-5, РМС-6, РМС-7. Разрезы по 4-4, 5-5, 6-6, 7-7, 8-8 Ригели РМС-2, РМС-3, РМС-4, РМС-5, РМС-6, РМС-7. Узел 5 Ригели РМС-2, РМС-3, РМС-4, РМС-5, РМС-6, РМС-7. Узел 6 Ригели РМС-2, РМС-3, РМС-4, РМС-5, РМС-6, РМС-7. Узел 7 Ригели РМС-2, РМС-3, РМС-4, РМС-5, РМС-6, РМС-7. Арматурные каркасы и сетки Ригели РМС-2, РМС-3. Спецификация и выборка арматуры Ригели РМС-4, РМС-5. Спецификация и выборка арматуры Ригели РМС-6, РМС-7. Спецификация и выборка арматуры Ригели РМК-2, РМК-3, РМК-4, РМК-5, РМК-6, РМК-7. Конструкция и маркировочная схема арматурных каркасов Ригели РМК-2, РМК-3, РМК-4, РМК-5, РМК-6, РМК-7. Показатели расхода материалов и рабочие марки каркасов Ригели РМК-2, РМК-3, РМК-4, РМК-5, РМК-6, РМК-7. Разрезы по 4-4, 5-5, 6-6, 7-7, 8-8, 9-9 Ригели РМК-2, РМК-3, РМК-4, РМК-5, РМК-6, РМК-7. Узел 8 Ригели РМК-2, РМК-3, РМК-4, РМК-5, РМК-6, РМК-7. Узел 9 Ригели РМК-2, РМК-3, РМК-4, РМК-5, РМК-6, РМК-7. Арматурные каркасы и сетки Ригели РМК-3, РМК-4, РМК-5. Спецификация и выборка арматуры Ригели РМК-6, РМК-7. Спецификация и выборка арматуры Монтажный план перемычек Перемычки ПОС-1, ПОС1-1, ПОС1-2, ПОС1-2А. Конструкция перемычек и показатели расхода материалов Перемычки ПОС-2, ПОС2-А. Конструкция перемычек и показатели расхода материалов Перемычки ПОС-1, ПОС1-1, ПОС1-2, ПОС1-2А, ПОС-2, ПОС-2А. Арматурные каркасы и сетки Перемычки ПОС-1, ПОС1-1, ПОС1-2, ПОС1-2А, ПОС-2, ПОС-2А. Закладные детали Перемычки ПОС-1, ПОС1-1, ПОС1-2, ПОС1-2А, ПОС-2, ПОС-2А. Спецификация и выборка арматуры Пример разбивки закладных деталей для крепления импостов к перемычкам Монтажные схемы лестниц для 4-этажных зданий при высотах этажей 3,6; 4,8; 5,4 м Блок лестничной клетки с несущими стенами при высоте марша 1200 мм. Маркировочный план и размеры Блок лестничной клетки с несущими стенами при высоте марша 1350 мм. Маркировочный план и размеры Блок лестничной клетки с несущим ж/б каркасом при высоте марша 1200 мм. Маркировочный план и размеры Блок лестничной клетки с несущим ж/б каркасом при высоте марша 1350 мм. Маркировочный план и размеры Лестничный марш ЛМС1. Опалубочный план и армирование Лестничный марш ЛМС1. Арматурные сетки и закладная деталь Лестничный марш ЛМС2. Опалубочный план и армирование Лестничный марш ЛМС2. Арматурные сетки и закладная деталь Лестничная площадка ЛПС1 Лестничные ограждения ЛО1 и ЛО2. Конструкции Лестничные ограждения ЛО1 и ЛО2. Спецификация. Деталь крепления деревянного поручня Лестничное ограждение ЛО3. Конструкция и спецификация Маркировочная схема панелей Панели ПСС1, ПСС1-1, ПСС1-2, ПСС1-2А. Конструкция и показатели расхода материалов Панели ПСС2, ПСС2-1, ПСС2-2, ПСС2-2А. Конструкция и показатели расхода материалов Панели ПСС3, ПСС3-1, ПСС3-2, ПСС3-2А. Конструкция и показатели расхода материалов Панели ПСС4, ПСС7. Конструкция и показатели расхода материалов Панели ПСС5, ПСС8. Конструкция и показатели расхода материалов Панели ПСС6, ПСС9. Конструкция и показатели расхода материалов Стеновые панели. Узлы 1 - 5 Стеновые панели. Арматурные каркасы, сетки и закладные детали Стеновые панели. Арматурные каркасы и сетки Панели ПСС1, ПСС1-1, ПСС1-2А, ПСС2, ПСС2-1, ПСС2-2, ПСС2-2А. Спецификация и выборка арматуры Панели ПСС3, ПСС3-1, ПСС3-2А. Спецификация и выборка арматуры Панели ПСС4, ПСС5, ПСС6. Спецификация и выборка арматуры Панели ПСС7, ПСС8, ПСС9. Спецификация и выборка арматуры Пример крепления стеновых трехслойных панелей к колоннам. Узлы и монтажные марки |
| Разработан: | Гипромолпром Минмясомолпрома СССР ЦНИИСК АСиА СССР НИИЖБ АСиА СССР |
| Утверждён: | 14.12.1962 Госстрой СССР (Государственный комитет Совета Министров СССР по делам строительства) (USSR Gosstroy 466) |











































































































































































