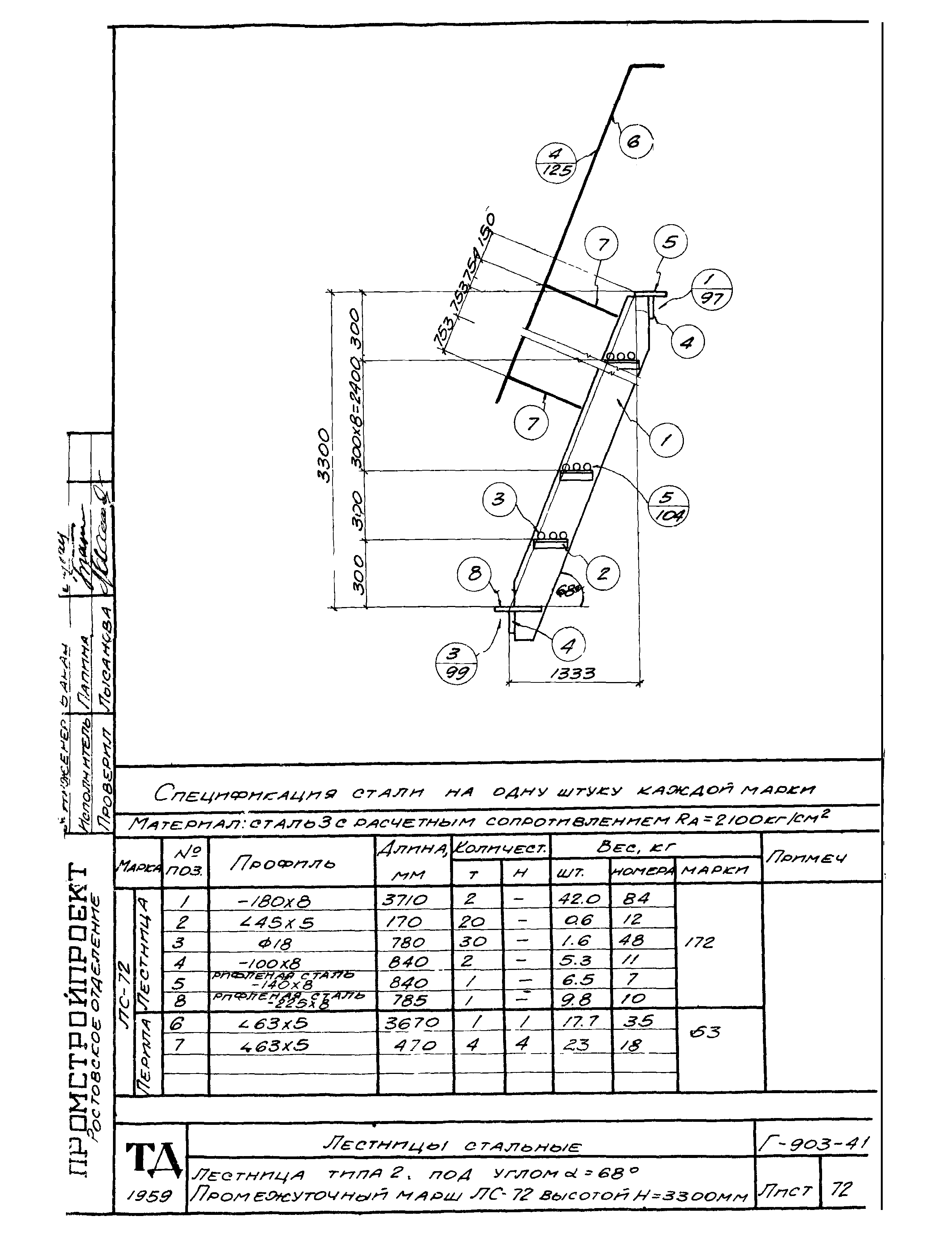
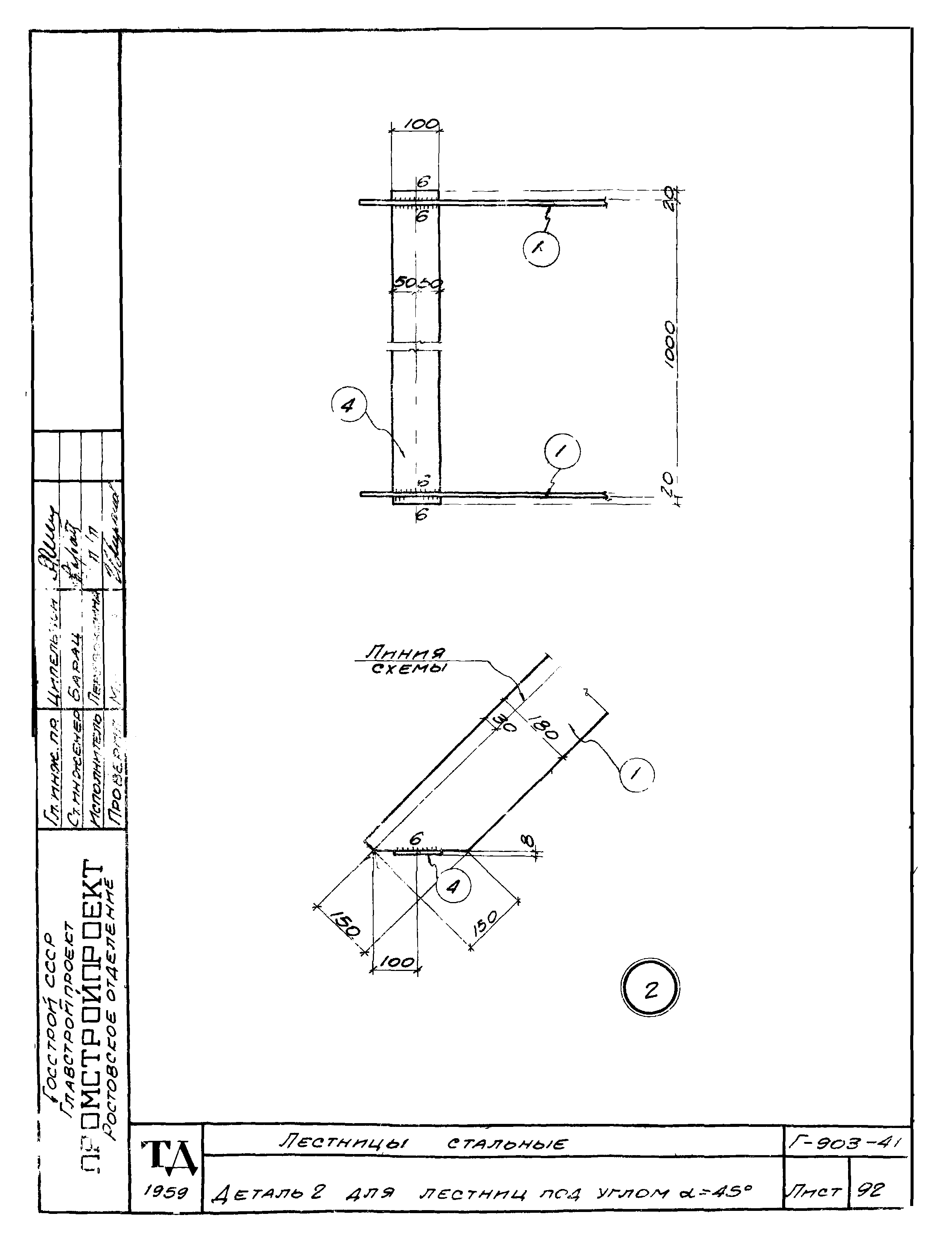
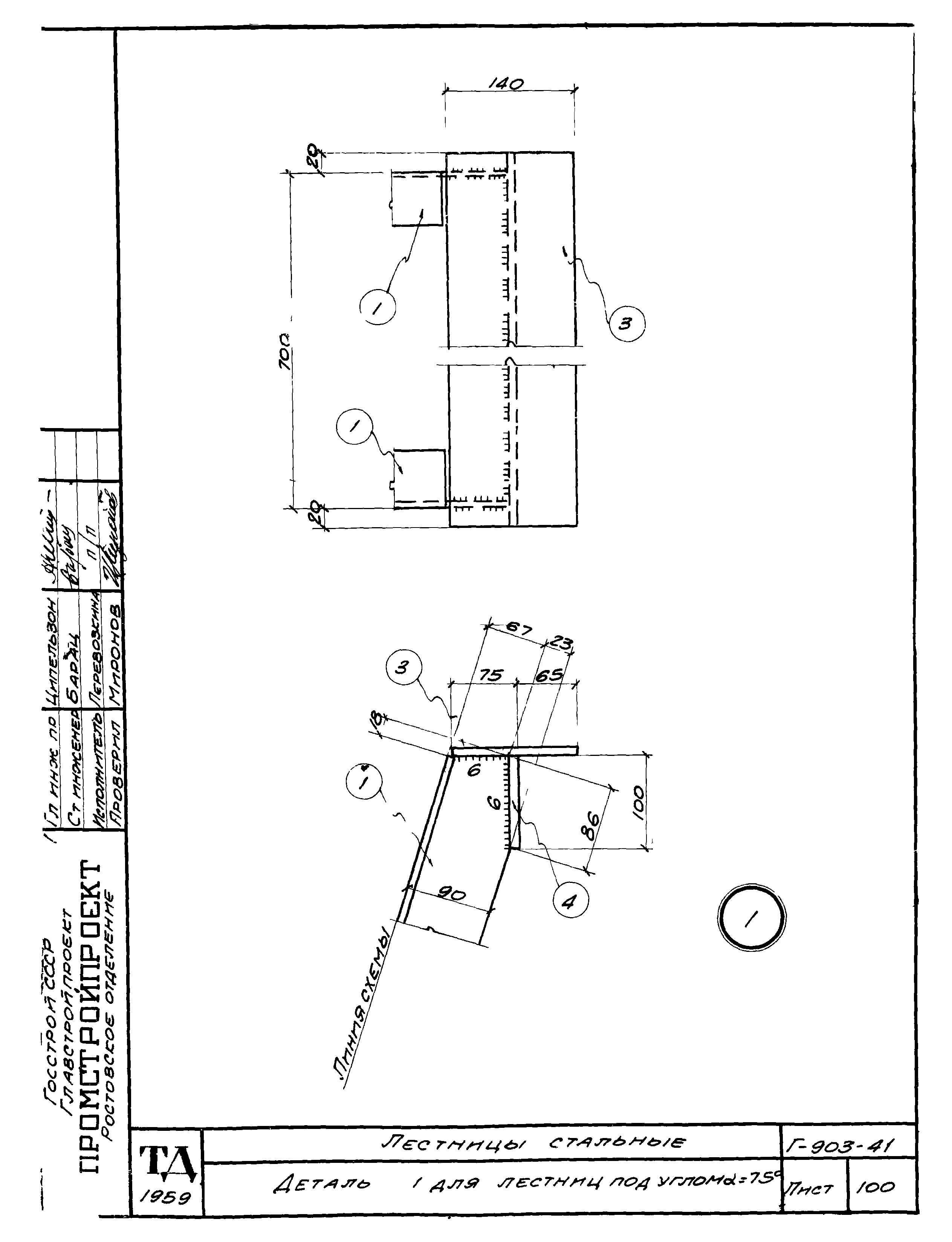
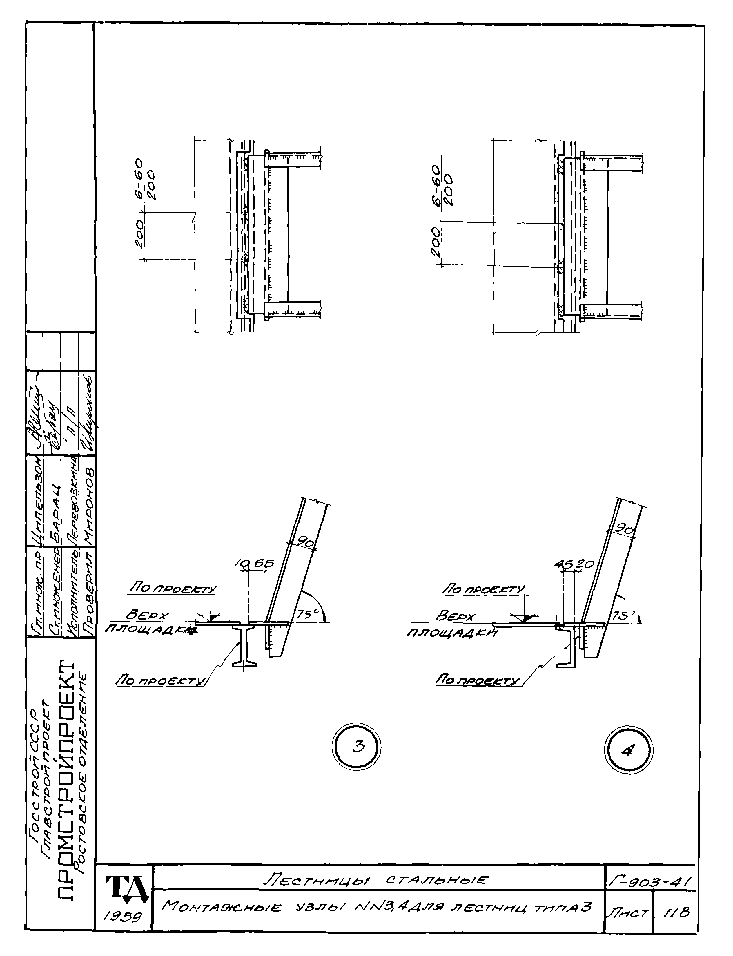
Скачать Серия Г-903 Раздел IV. Выпуск 41. Лестницы стальные. Типы производственных зданийДата актуализации: 01.01.2021
|
| Обозначение: | Серия Г-903 |
| Обозначение англ: | Series Г-903 |
| Статус: | не действует |
| Название рус.: | Раздел IV. Выпуск 41. Лестницы стальные. Типы производственных зданий |
| Дата добавления в базу: | 01.09.2013 |
| Дата актуализации: | 01.01.2021 |
| Разработан: | ПромстройНИИпроект |
| Утверждён: | 01.01.1959 Главстройпроект Госстроя СССР |








































































































































