Скачать Серия 3.405-1 Решетчатые настилы из неискрящихся сплавов для рабочих площадок взрывоопасных цехов химической промышленности. Деталировочные чертежи. КМДДата актуализации: 01.01.2021
|
| Обозначение: | Серия 3.405-1 |
| Обозначение англ: | Series 3.405-1 |
| Статус: | не действует |
| Название рус.: | Решетчатые настилы из неискрящихся сплавов для рабочих площадок взрывоопасных цехов химической промышленности. Деталировочные чертежи. КМД |
| Дата добавления в базу: | 01.09.2013 |
| Дата актуализации: | 01.01.2021 |
| Дата введения: | 01.08.1967 |
| Дата окончания срока действия: | 01.05.1999 |
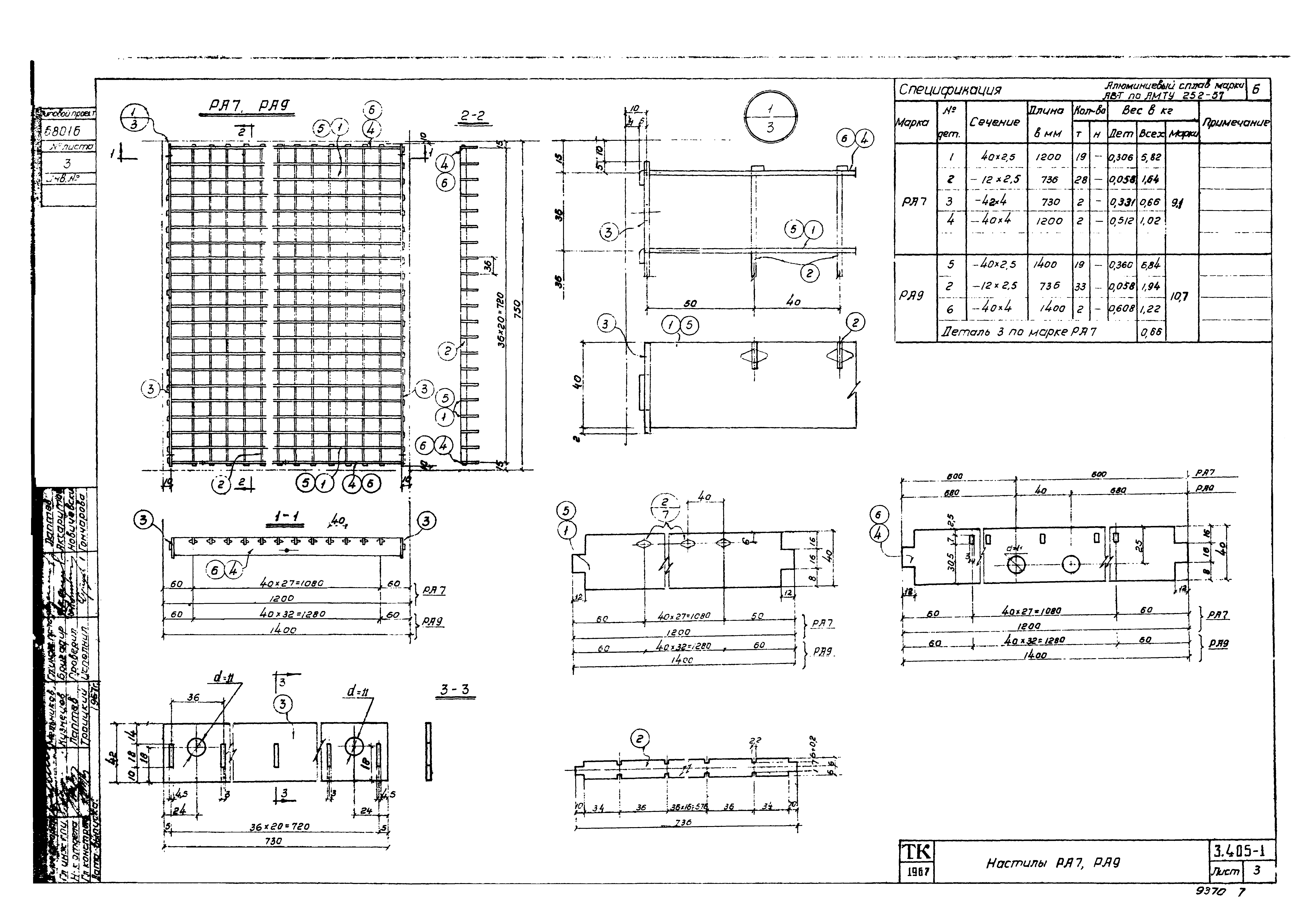
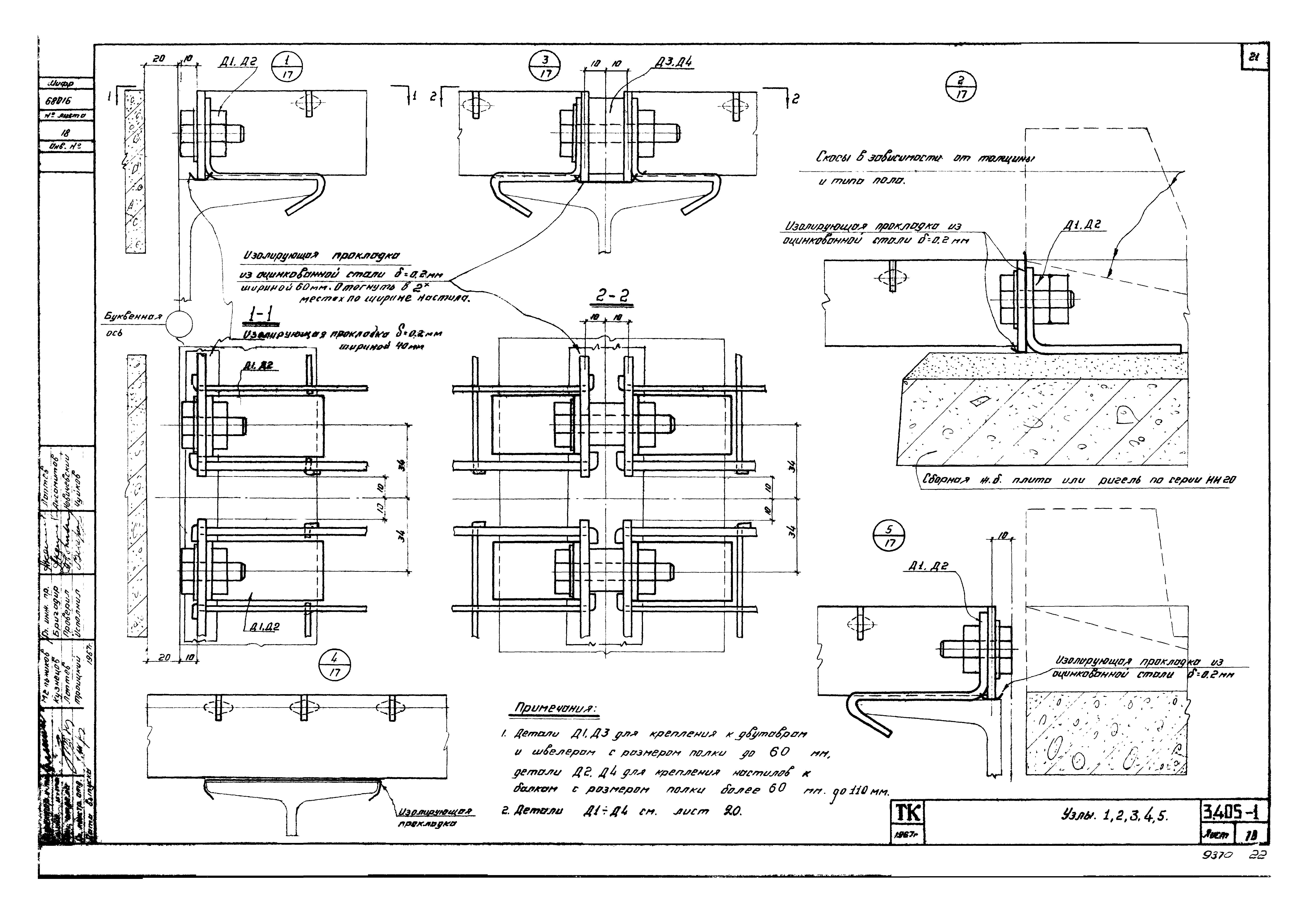
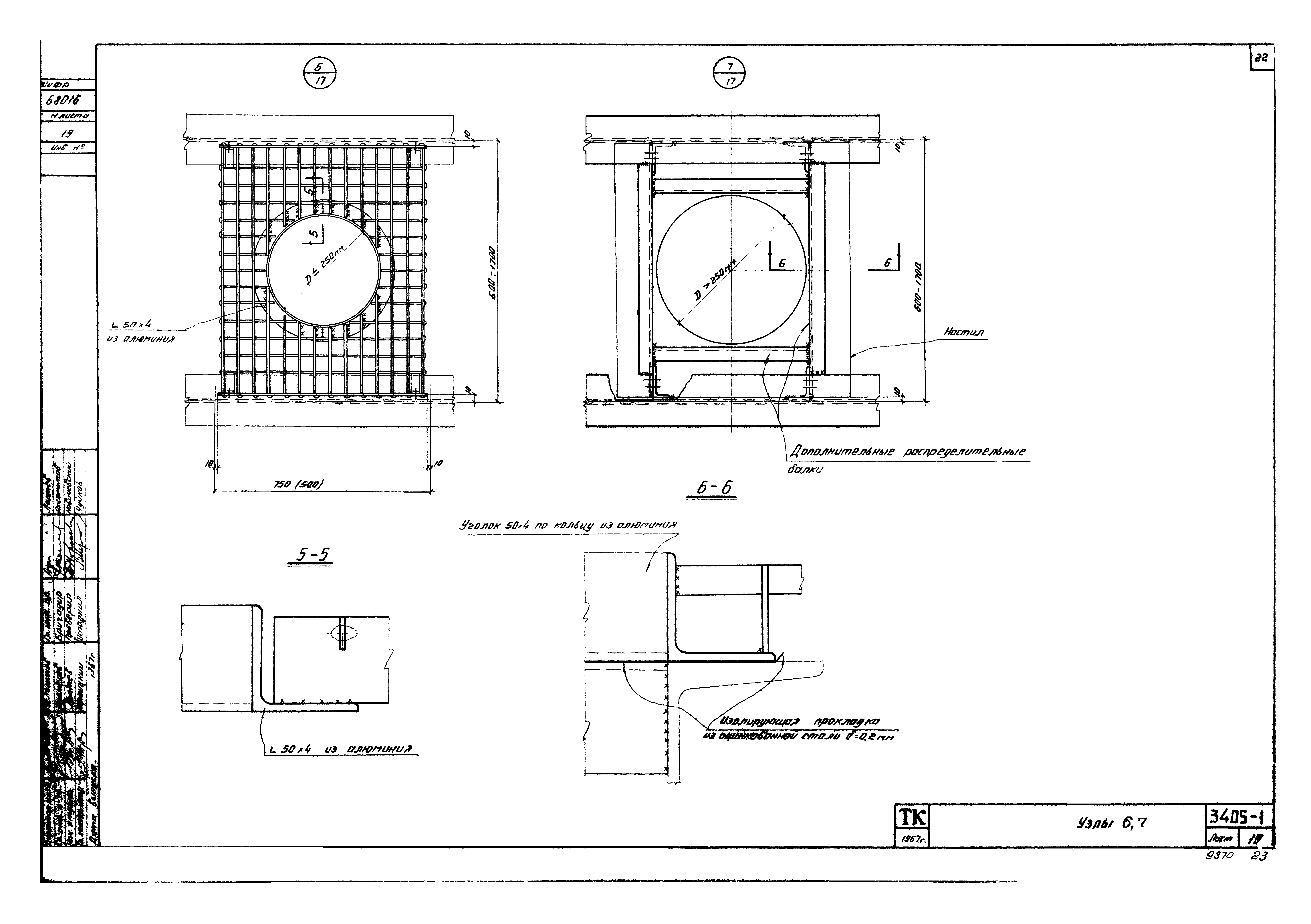
| Оглавление: | Титульный лист Содержание проекта. Пояснительная записка Настилы РА1, РА3, РА5 Настилы РА2, РА4, РА6 Настилы РА7, РА9 Настилы РА8, РА10, РА11 Настилы РА12, РА14, РА16 Настилы РА13, РА15, РА17 Настилы РА18, РА20 Настилы РА19, РА21, РА22 Настилы РА23, РА25, РА27 Настилы РА24, РА26, РА28 Настилы РА29, РА31 Настилы РА30, РА32, РА33 Настилы РА34, РА36, РА38 Настилы РА35, РА37, РА39 Настилы РА40, РА42 Настилы РА41, РА43, РА44 Схемы раскладки настилов. Разрезы Узлы 1, 2, 3, 4, 5 Узлы 6, 7 Детали крепления настилов Д1, Д2, Д3, Д4. Ступени СА1, СА2 |
| Разработан: | ЦНИИпроектстальконструкция Госстроя |
| Утверждён: | 15.07.1967 Союзметаллостройниипроект (Soyuzmetallostroyniiproject 10) |























