Скачать Серия 1.435-2 Выпуск 3. Механизмы для открывания ворот. Рабочие чертежиДата актуализации: 01.01.2021
|
| Обозначение: | Серия 1.435-2 |
| Обозначение англ: | Series 1.435-2 |
| Статус: | не действует |
| Название рус.: | Выпуск 3. Механизмы для открывания ворот. Рабочие чертежи |
| Дата добавления в базу: | 01.09.2013 |
| Дата актуализации: | 01.01.2021 |
| Дата введения: | 01.09.1969 |
| Дата окончания срока действия: | 01.10.1977 |
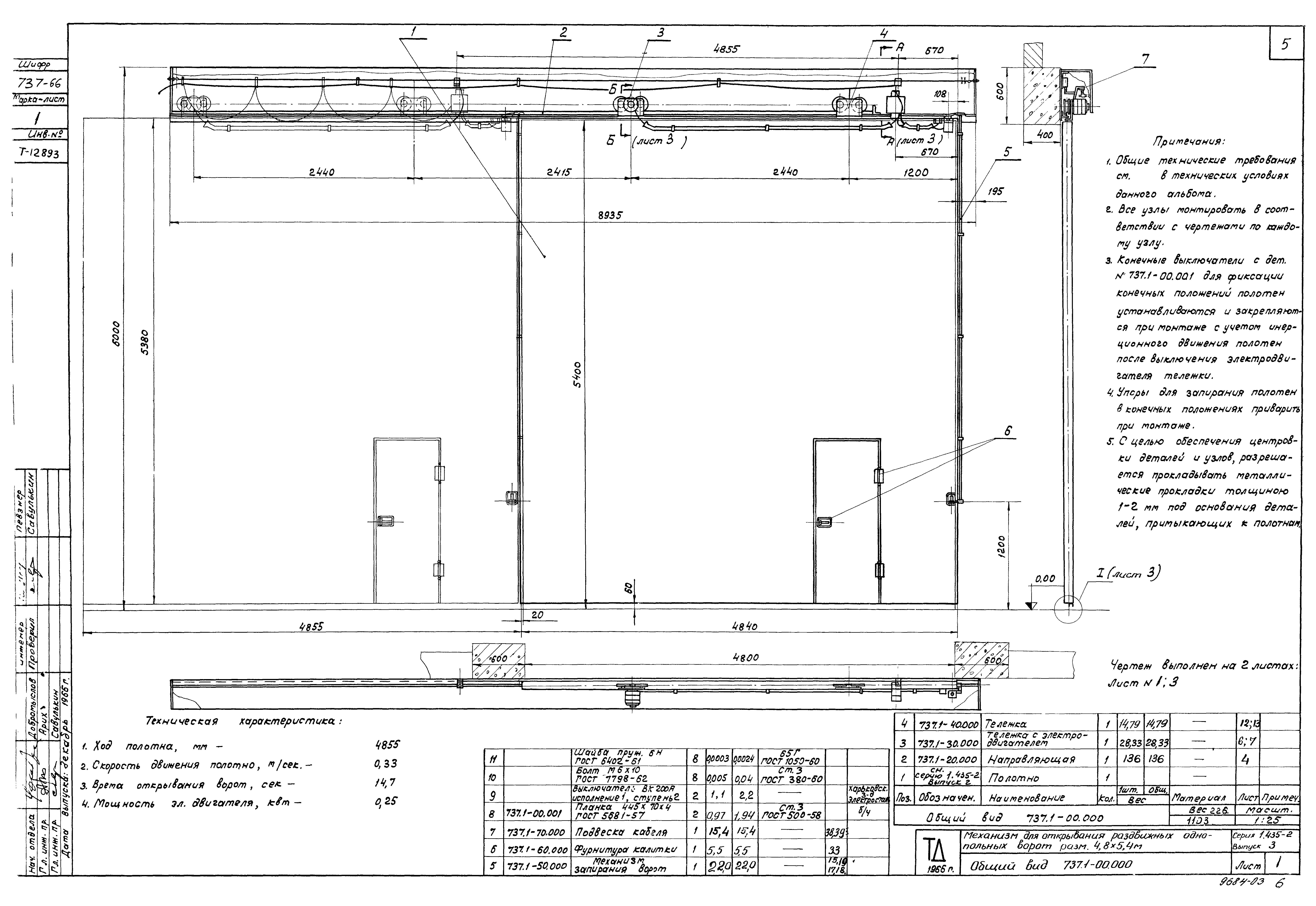
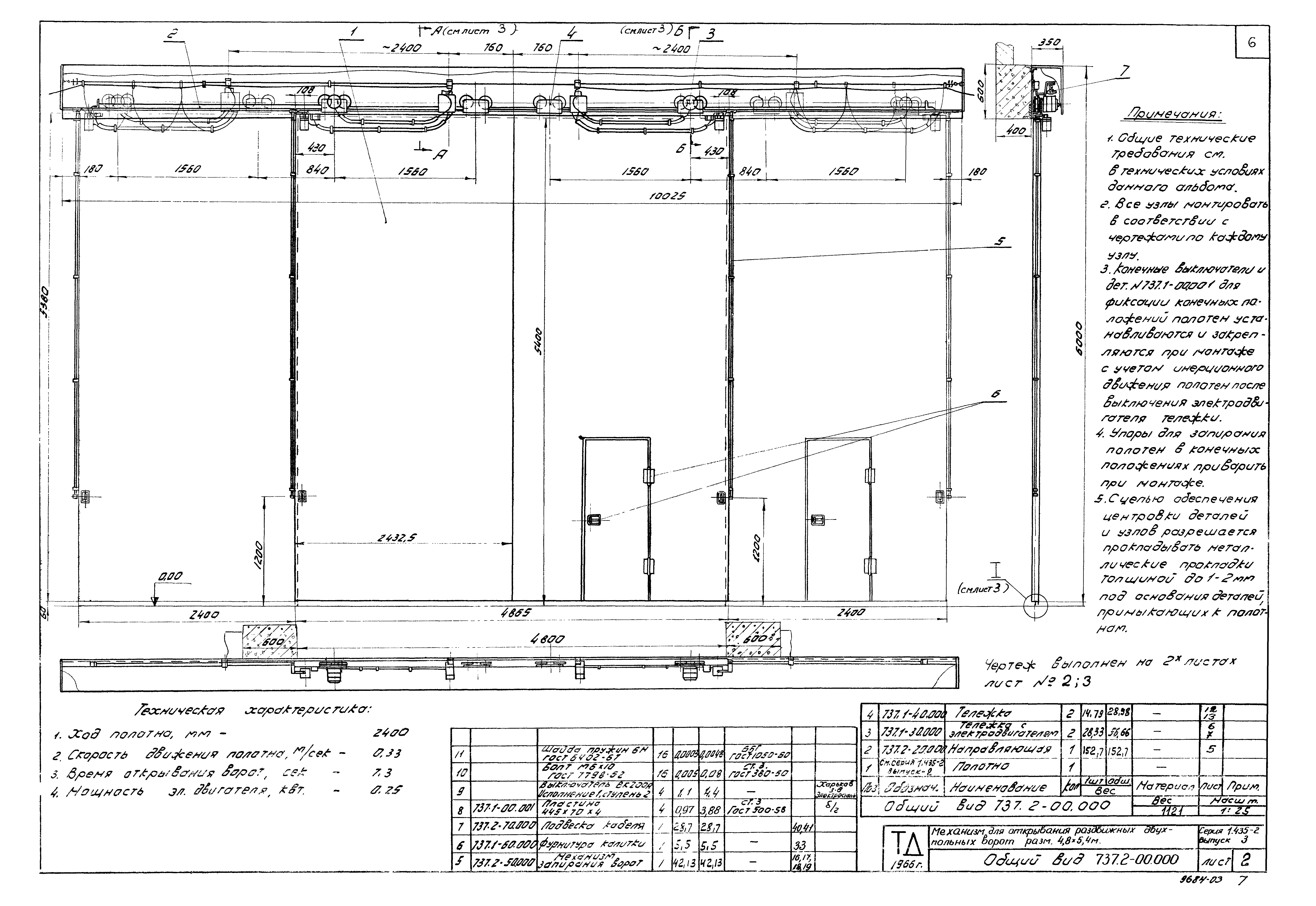
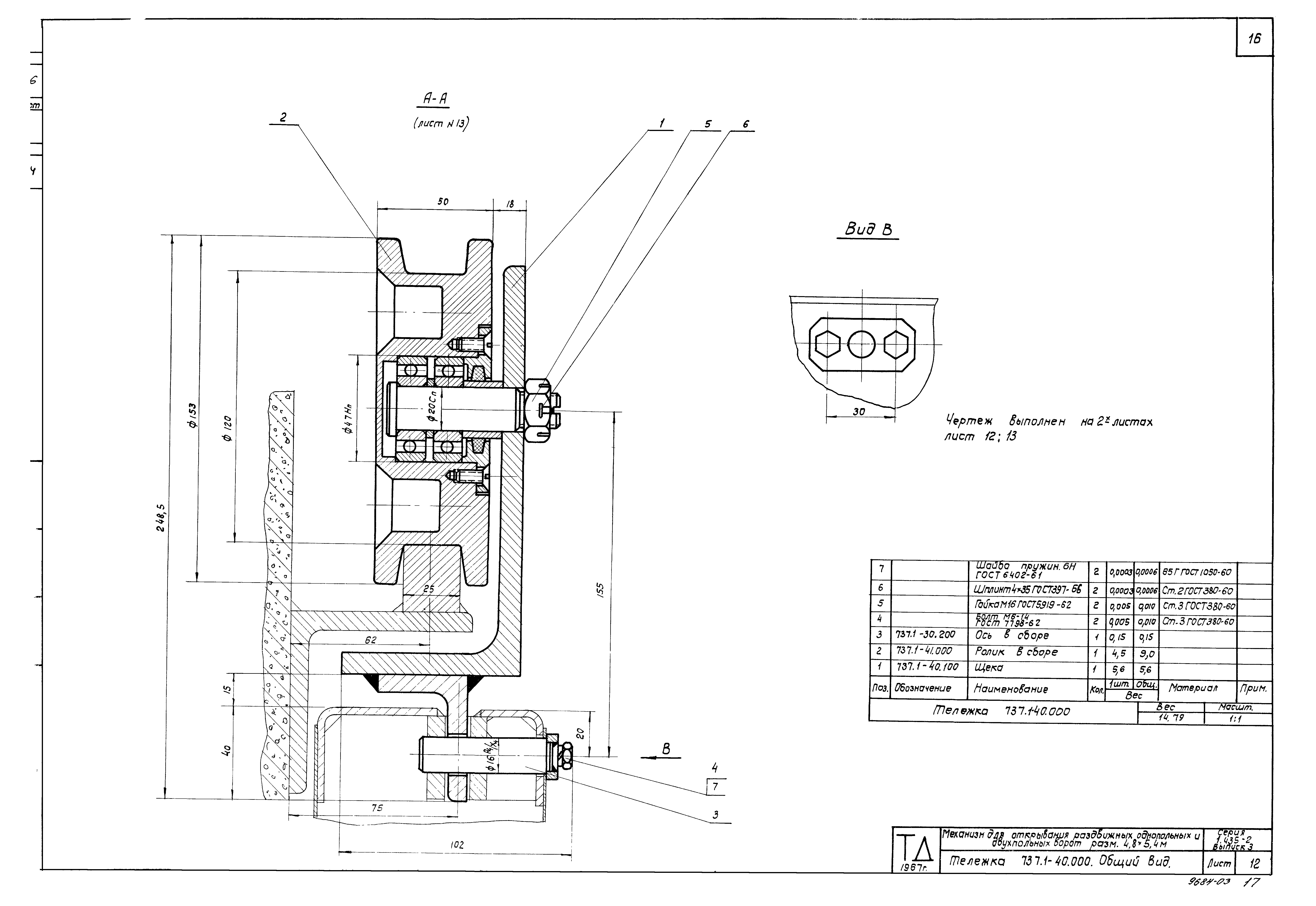
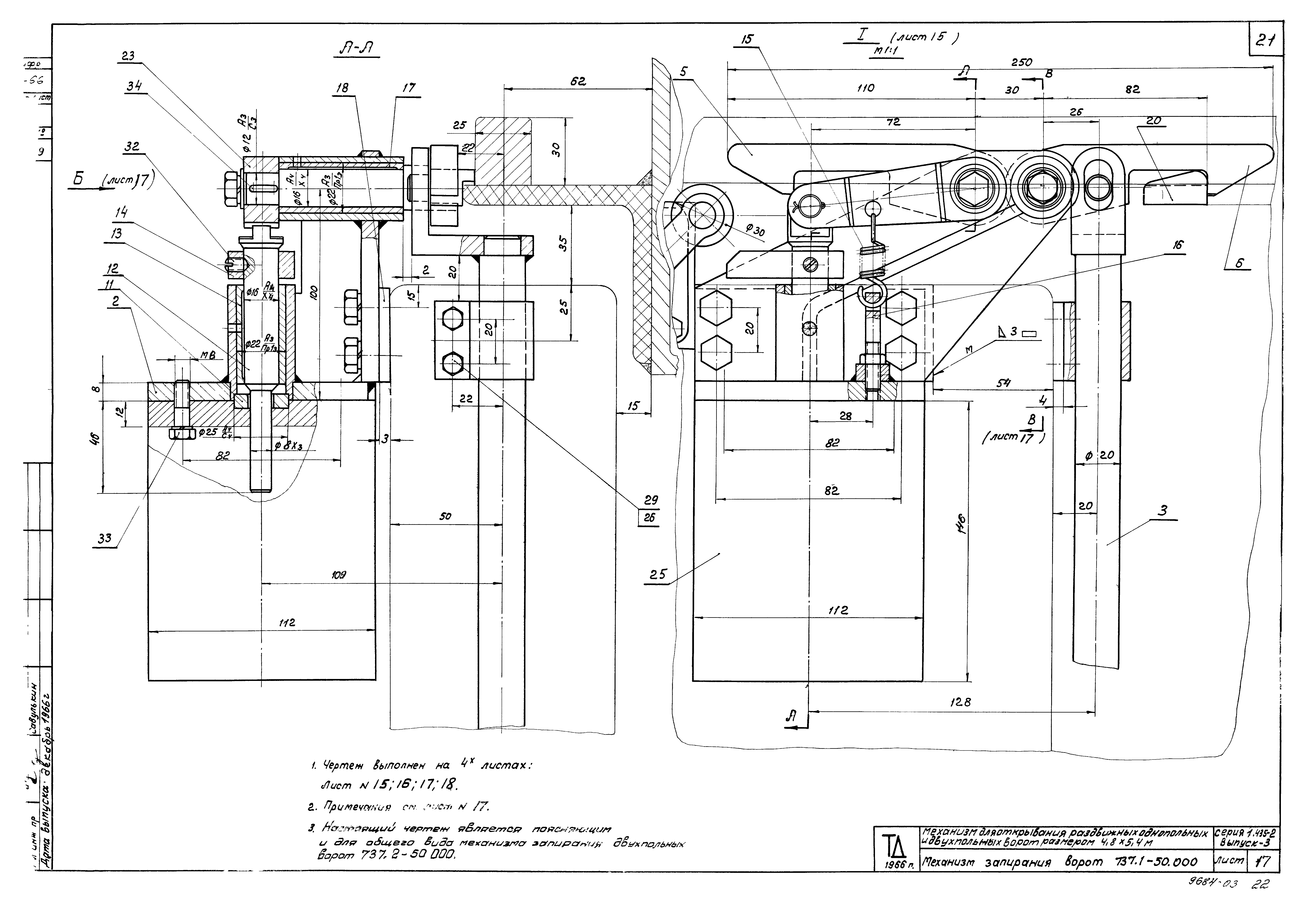
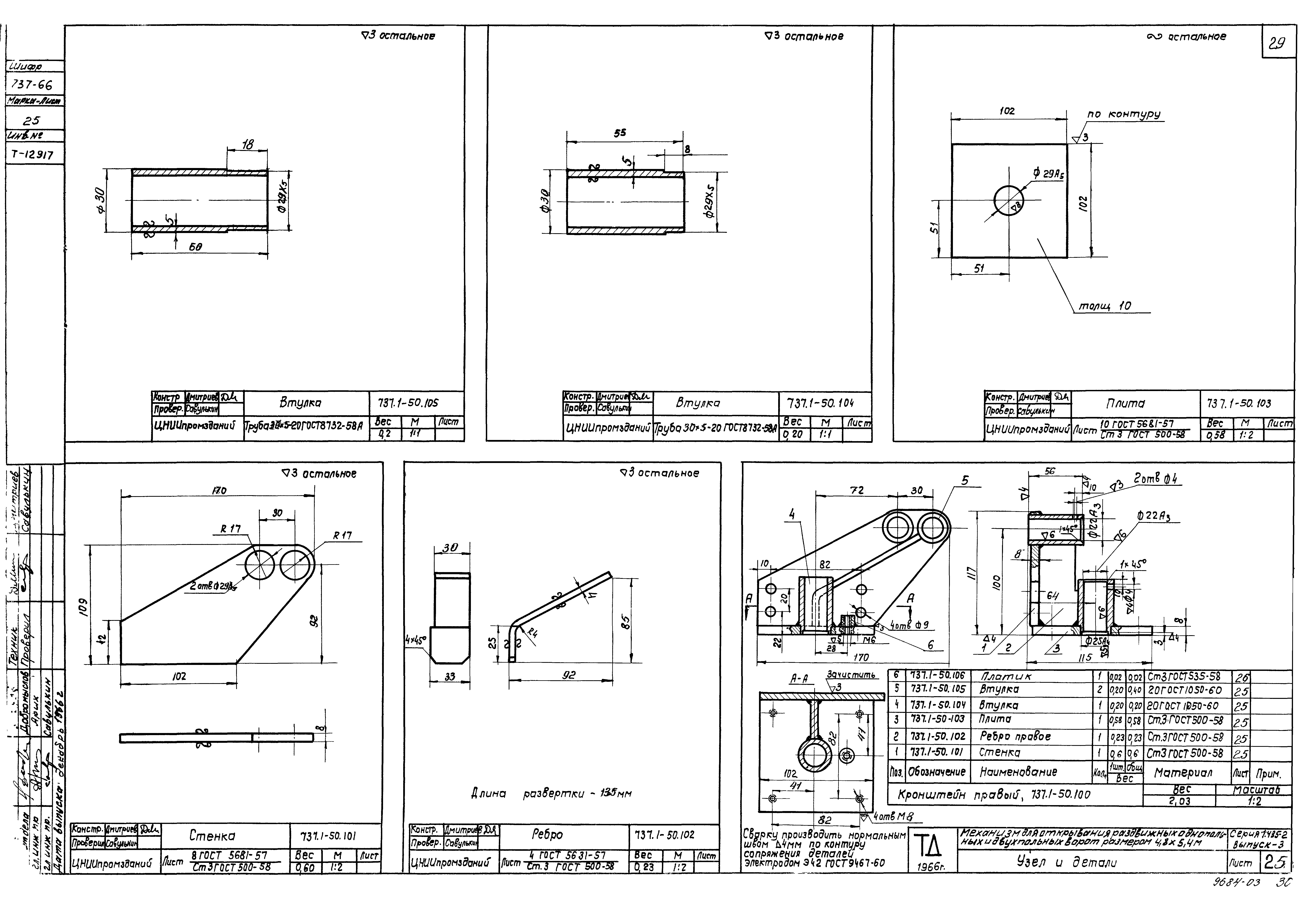
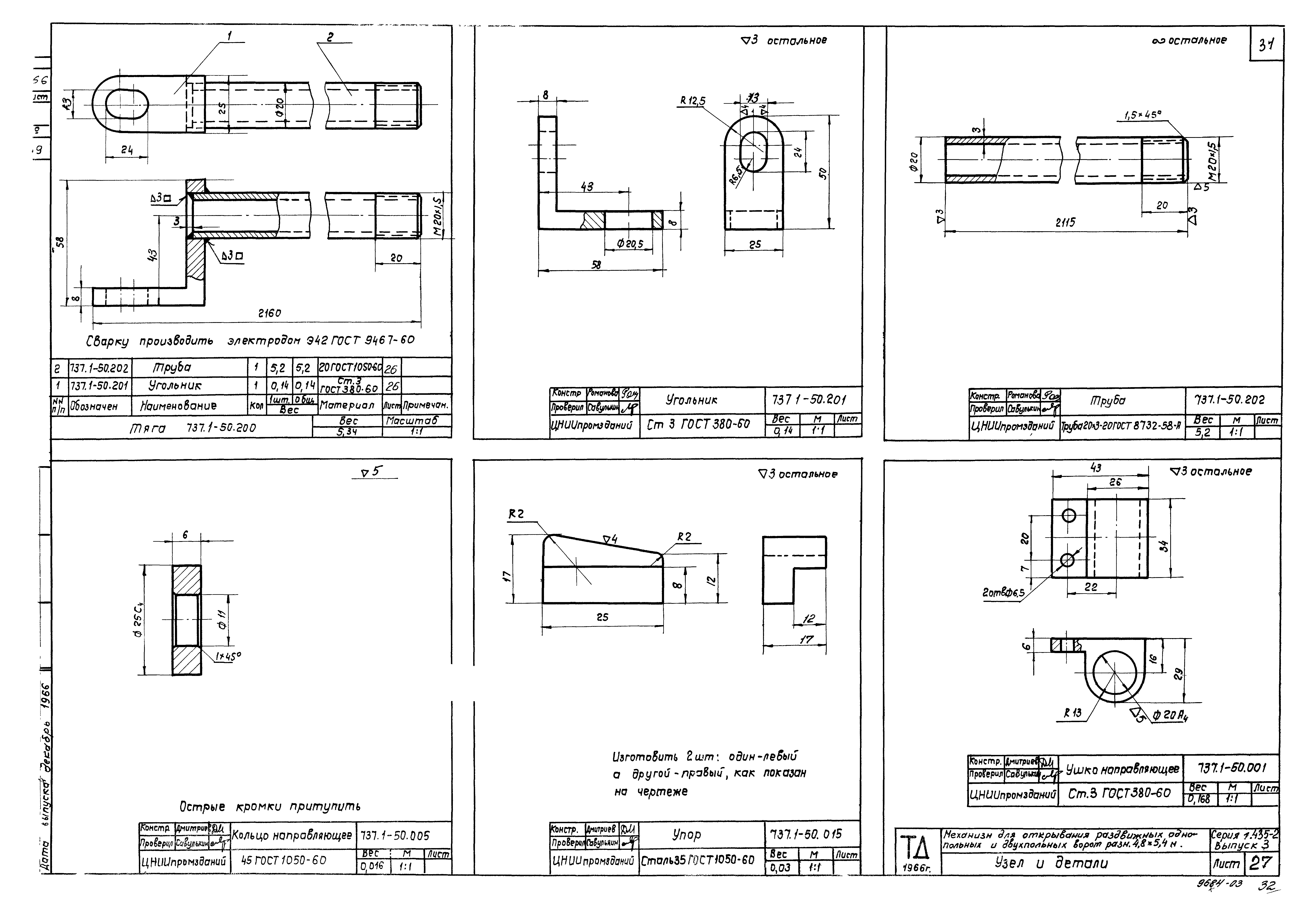
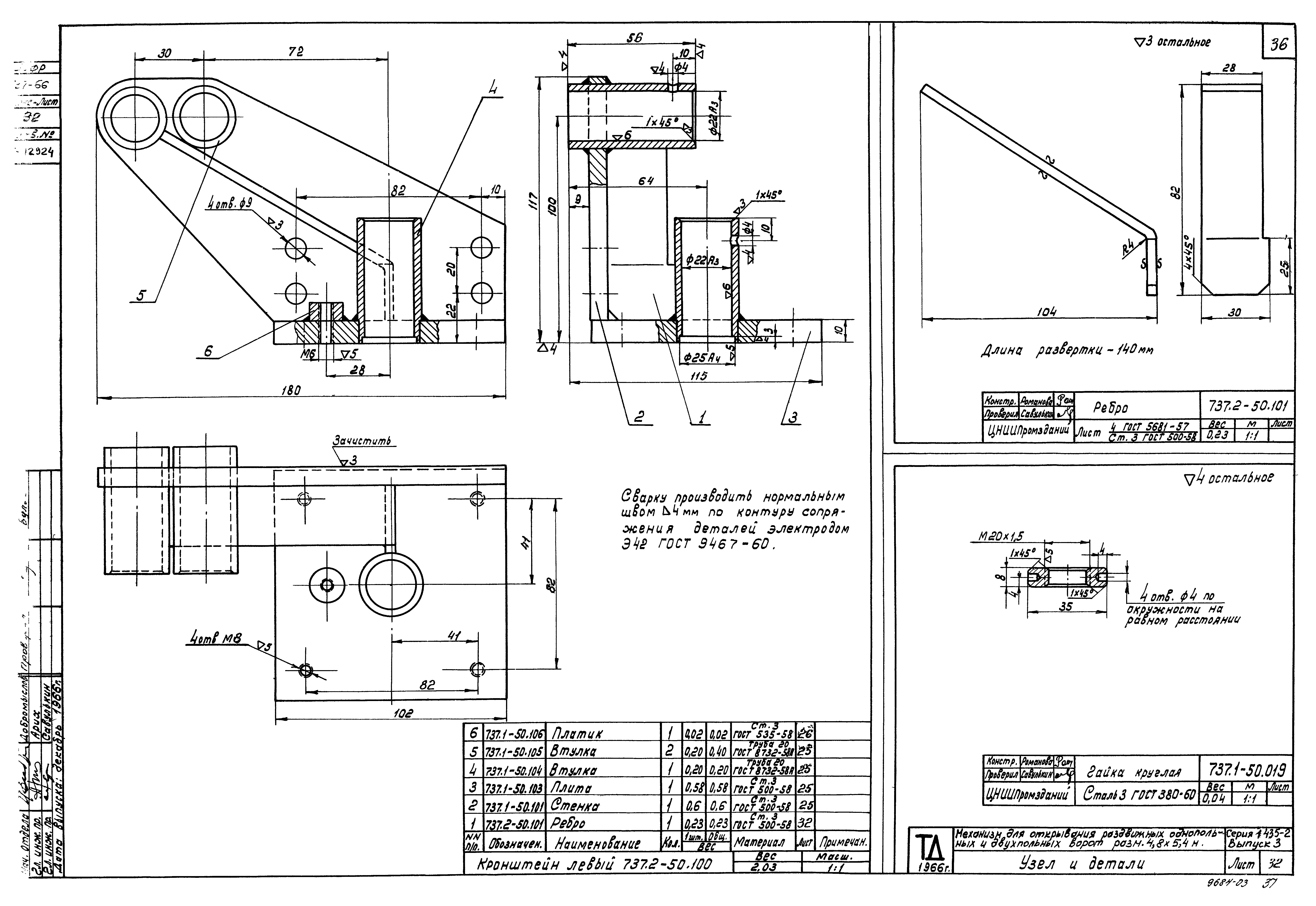
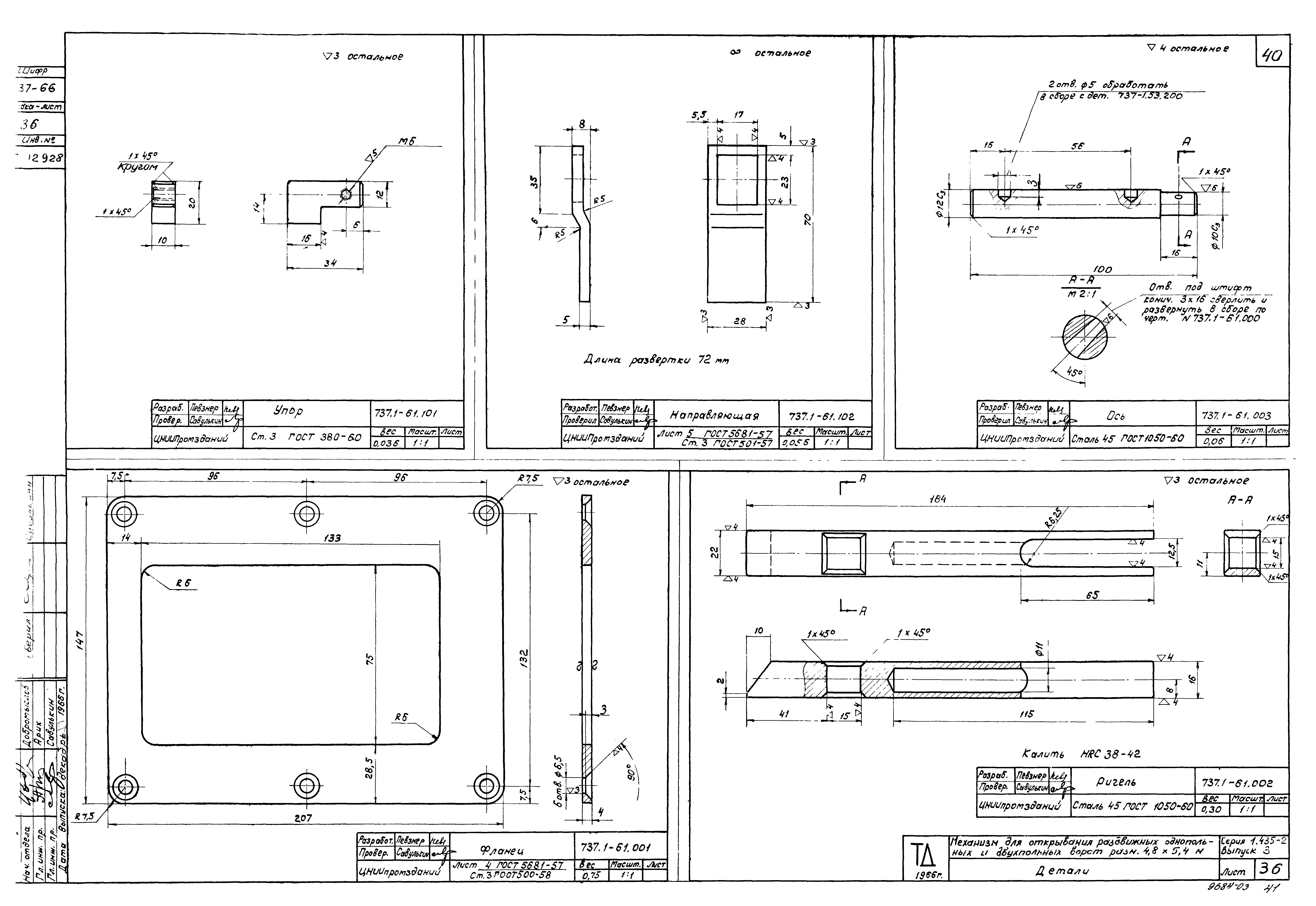
| Оглавление: | Содержание альбома Пояснительная записка Общий вид 737.1-00.000 Общий вид 737.2-00.000 Общий вид 737.1-00.000 Общий вид 737.1-20.000 Направляющая. Общий вид 737.2-20.000 Тележка с электродвигателем. Общий вид 737.1-30.000 Узлы Узлы и детали Детали Узлы и детали Тележка. Общий вид 737.1-40.000 Узлы и детали Механизм запирания ворот 737.1-50.000 Механизм запирания ворот 737.2-50.000 Механизм запирания ворот 737.1-50.000 Замок правый 737.1-50.000 Замок левый 737.2-51.000 Узлы и детали Детали Узел и детали Детали Узел и детали Фурнитура калитки 737.1-60.000 Замок 737.1-61.000 Узел Детали Подвеска кабеля 737.1-70.000 Подвеска кабеля 737.2-70.000 Узел и детали Детали Узлы и детали Детали |
| Разработан: | ЦНИИпромзданий |
| Утверждён: | 25.04.1969 Госстрой СССР (Государственный комитет Совета Министров СССР по делам строительства) (USSR Gosstroy 55) |



















































