Скачать Типовой проект 407-3-644.94 Альбом 3. Строительные чертежи. Отопление и вентиляция. Водопровод и канализацияДата актуализации: 01.01.2021
|
| Обозначение: | Типовой проект 407-3-644.94 |
| Обозначение англ: | 407-3-644.94 |
| Статус: | не определен законодательством |
| Название рус.: | Альбом 3. Строительные чертежи. Отопление и вентиляция. Водопровод и канализация |
| Дата добавления в базу: | 01.09.2013 |
| Дата актуализации: | 01.01.2021 |
| Дата введения: | 22.08.1994 |
| Дата окончания срока действия: | 30.06.2003 |
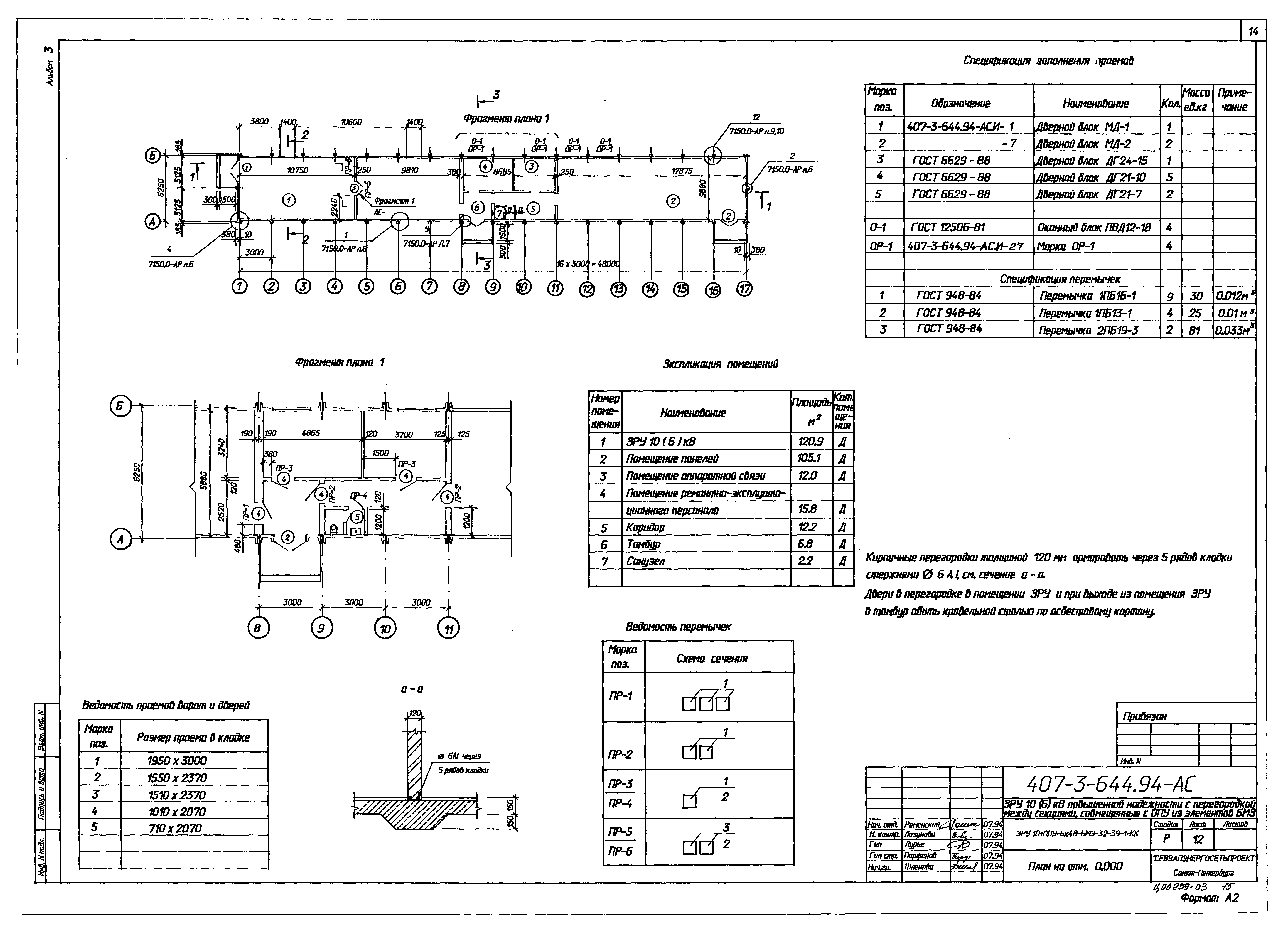
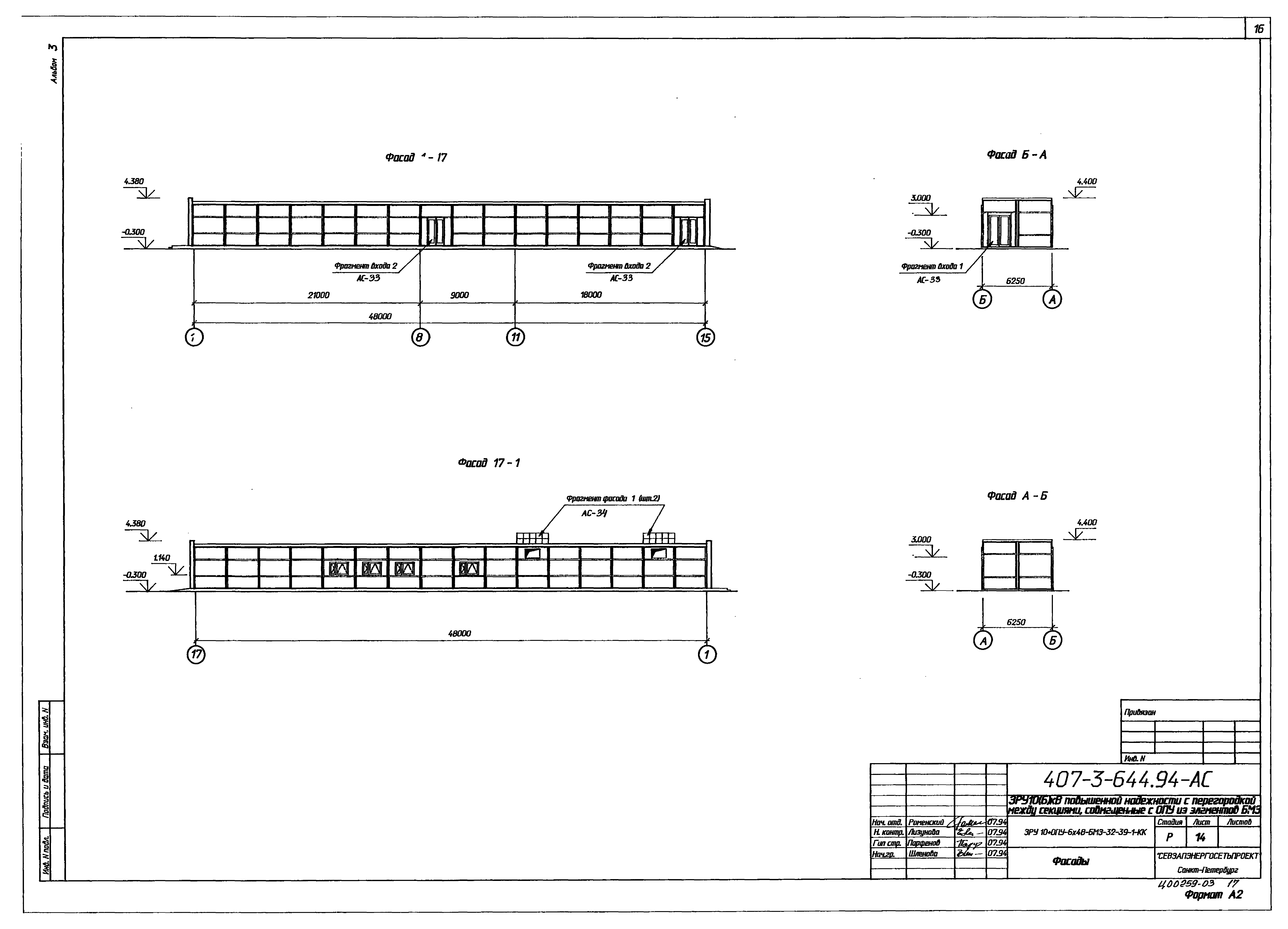
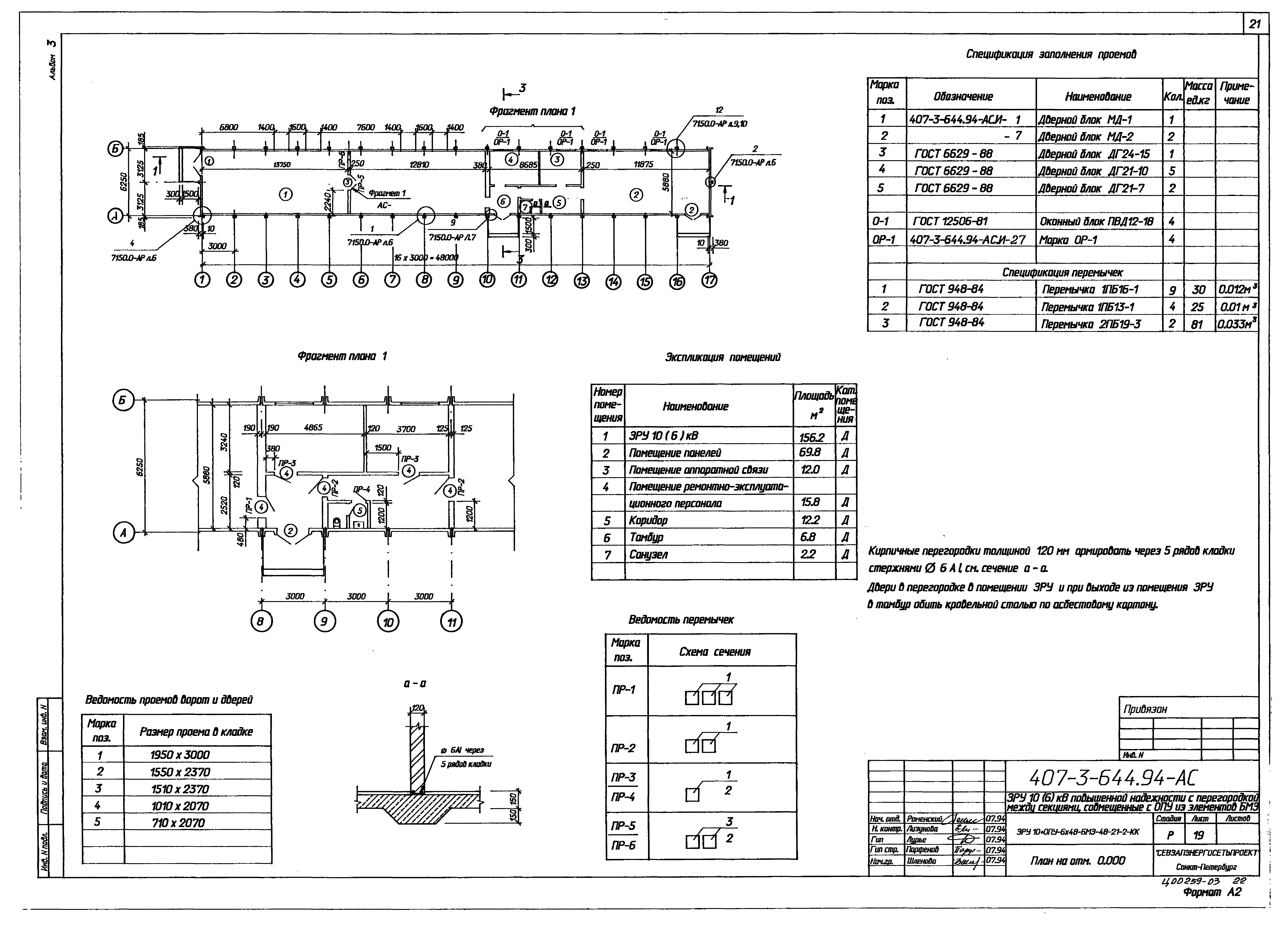
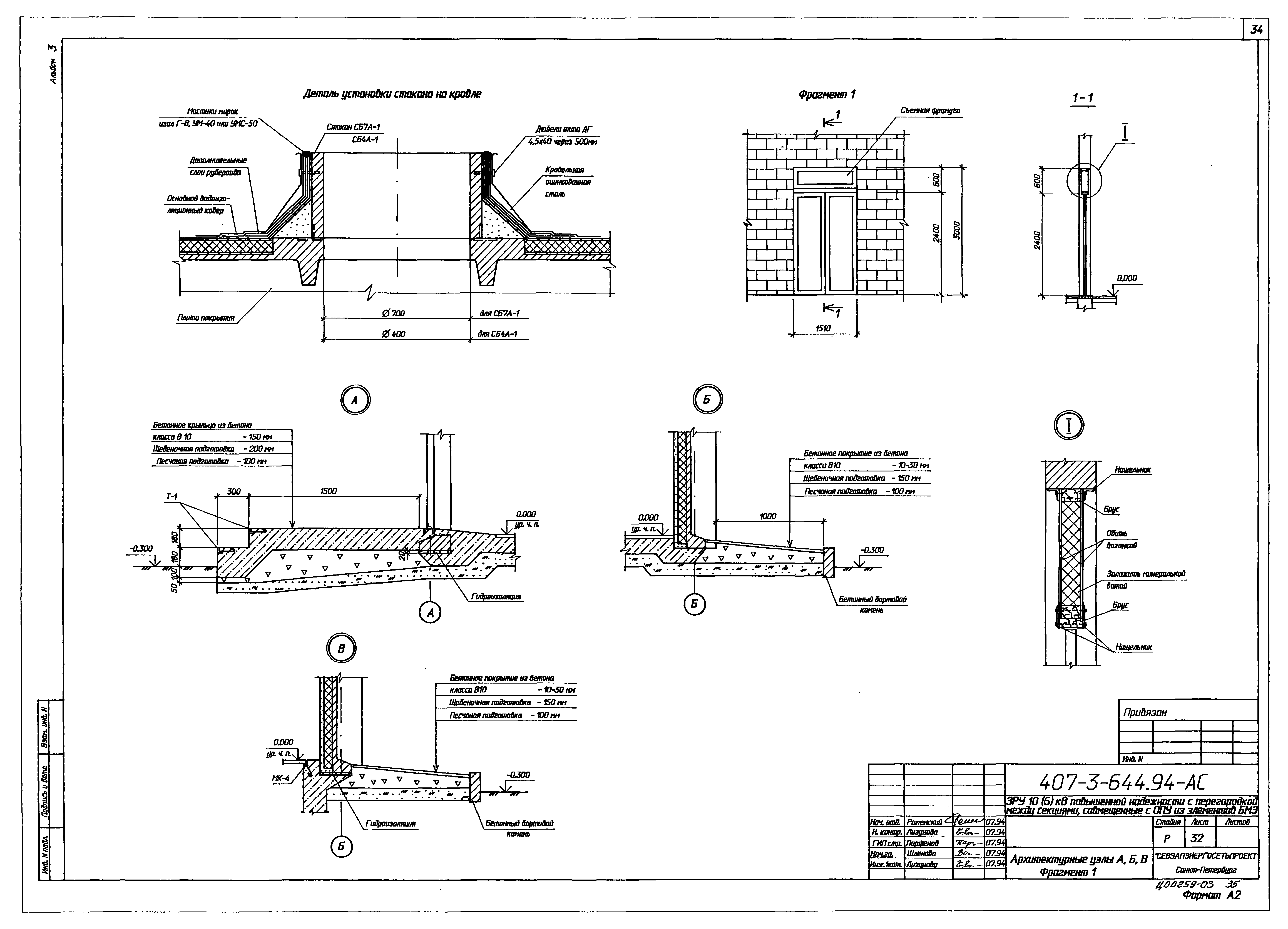
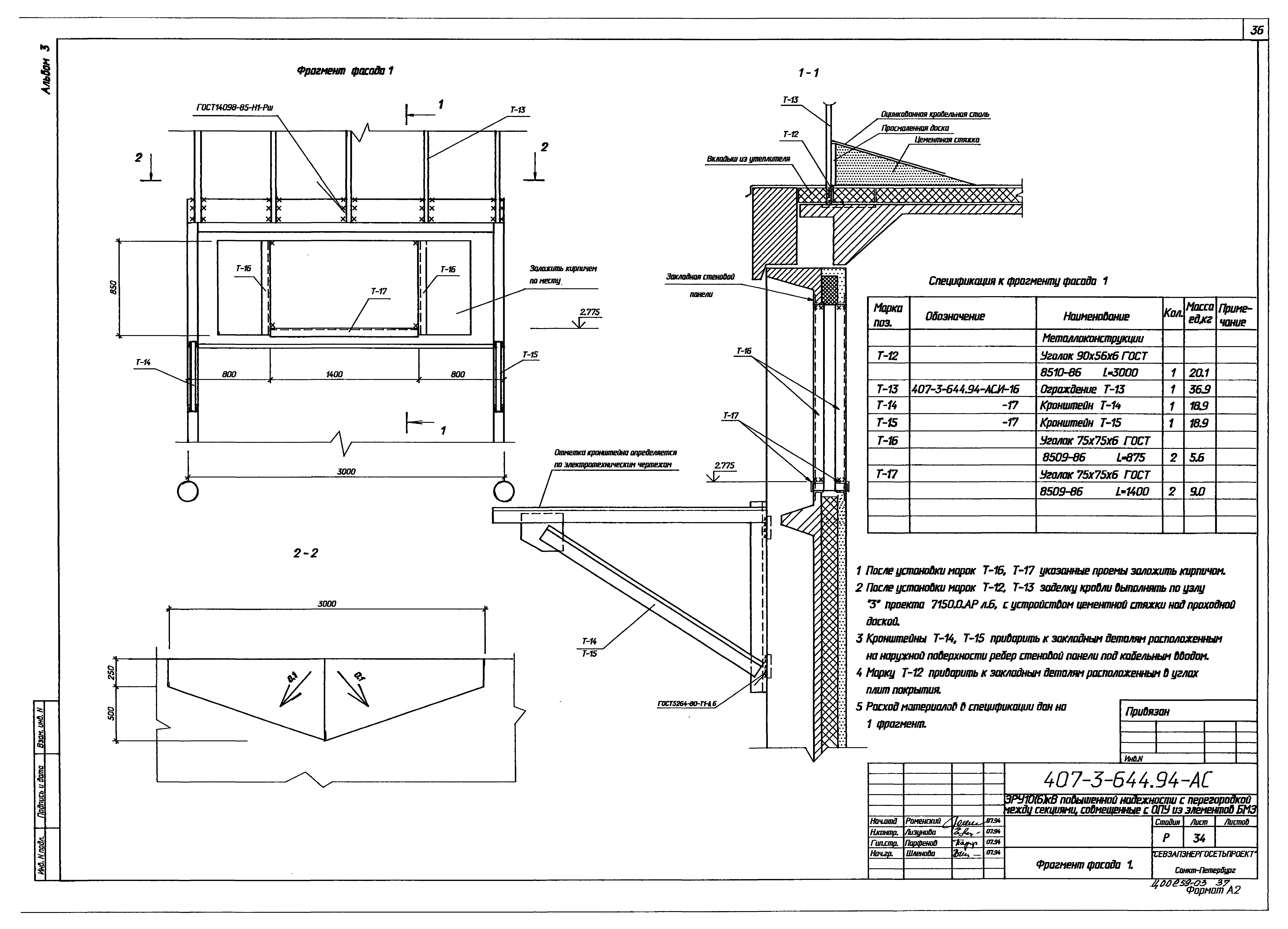
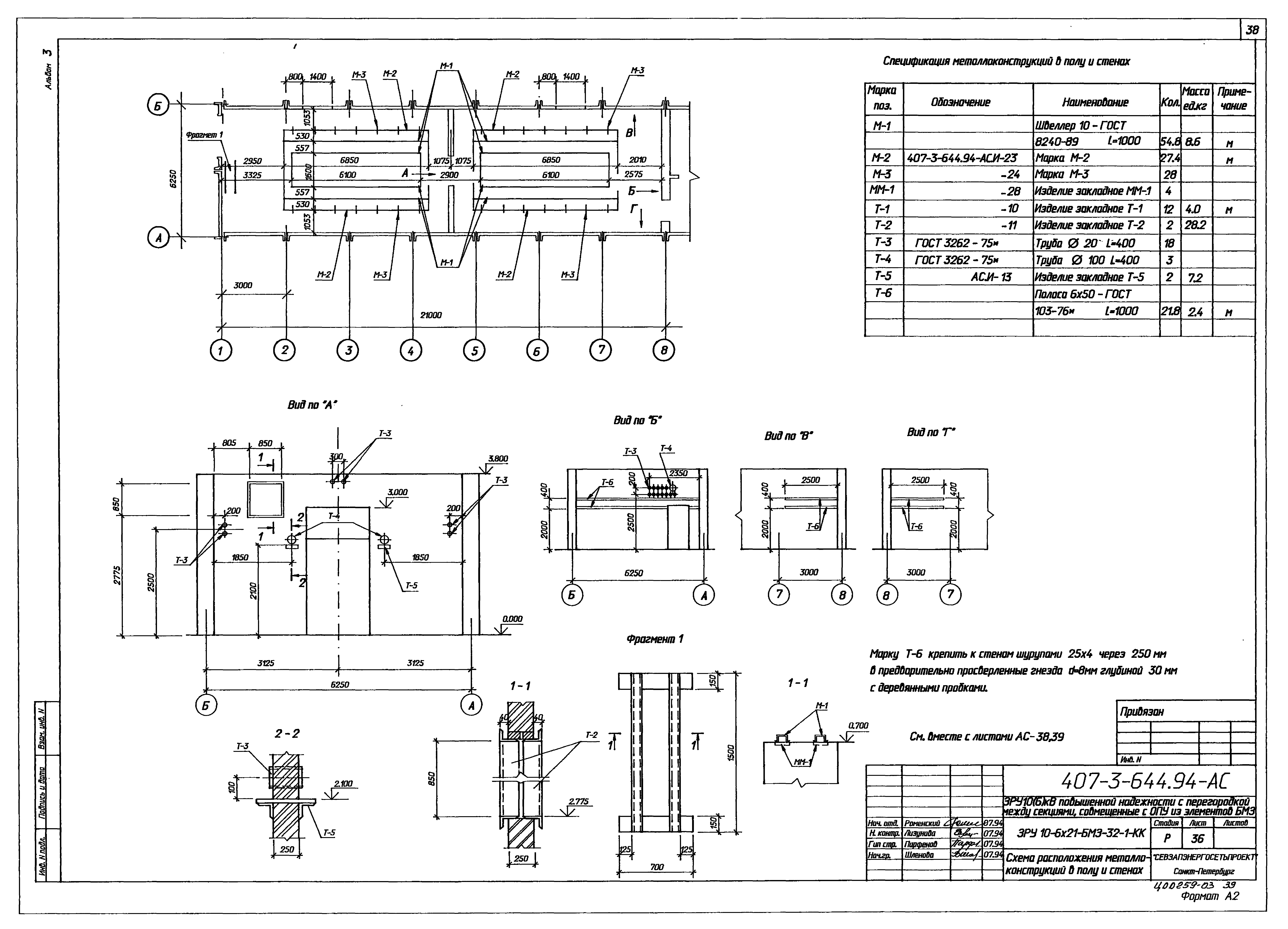
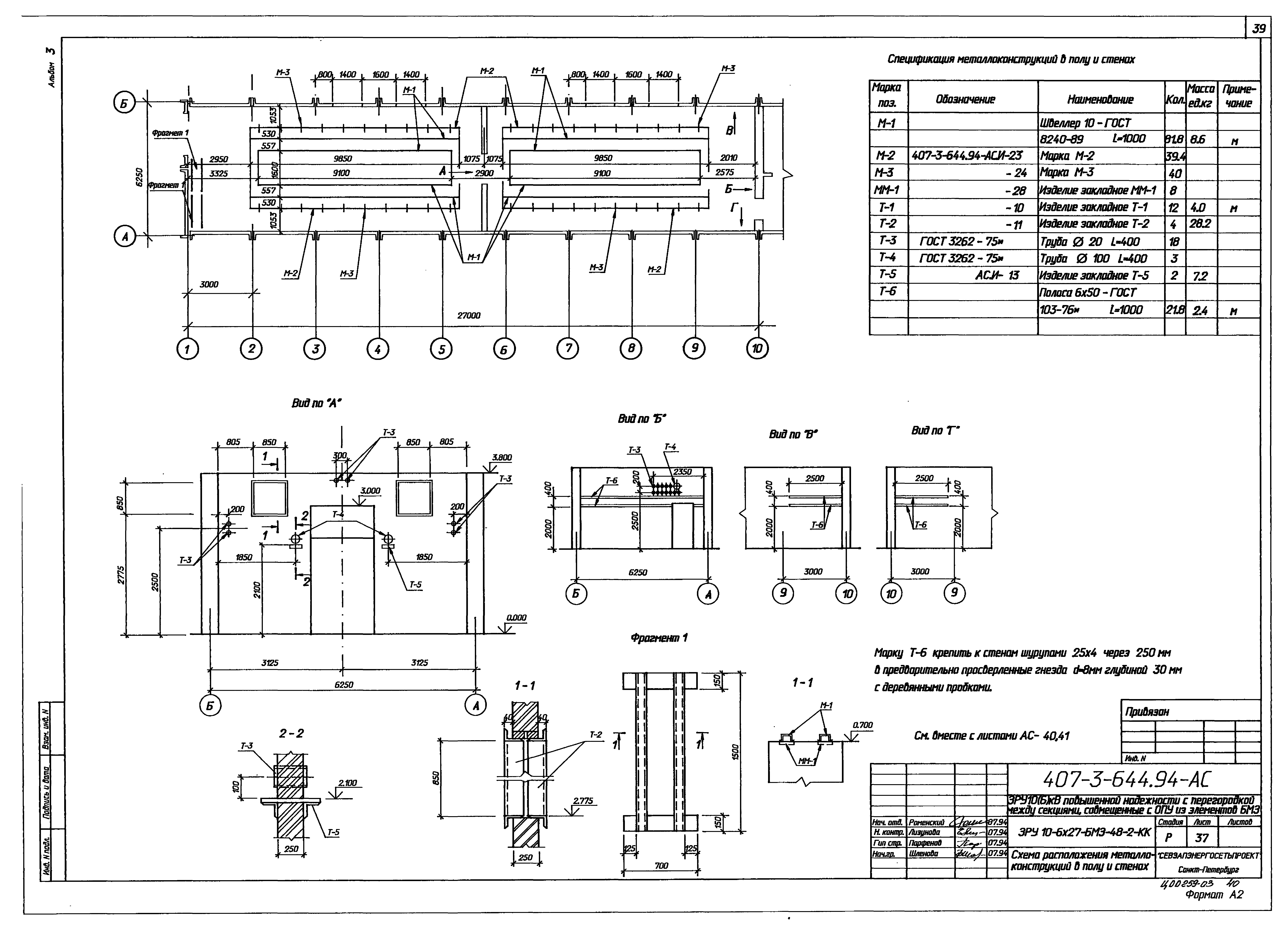
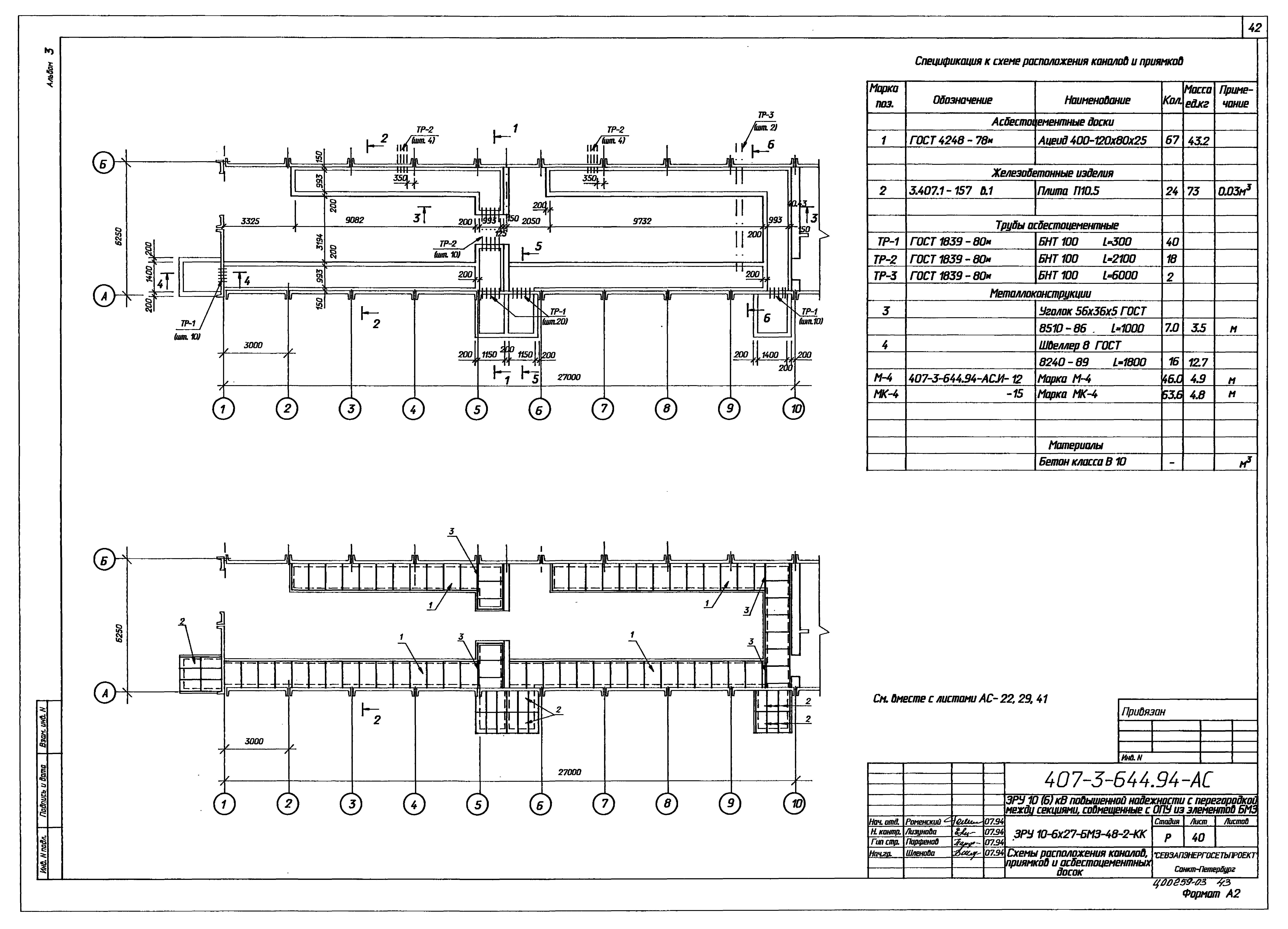
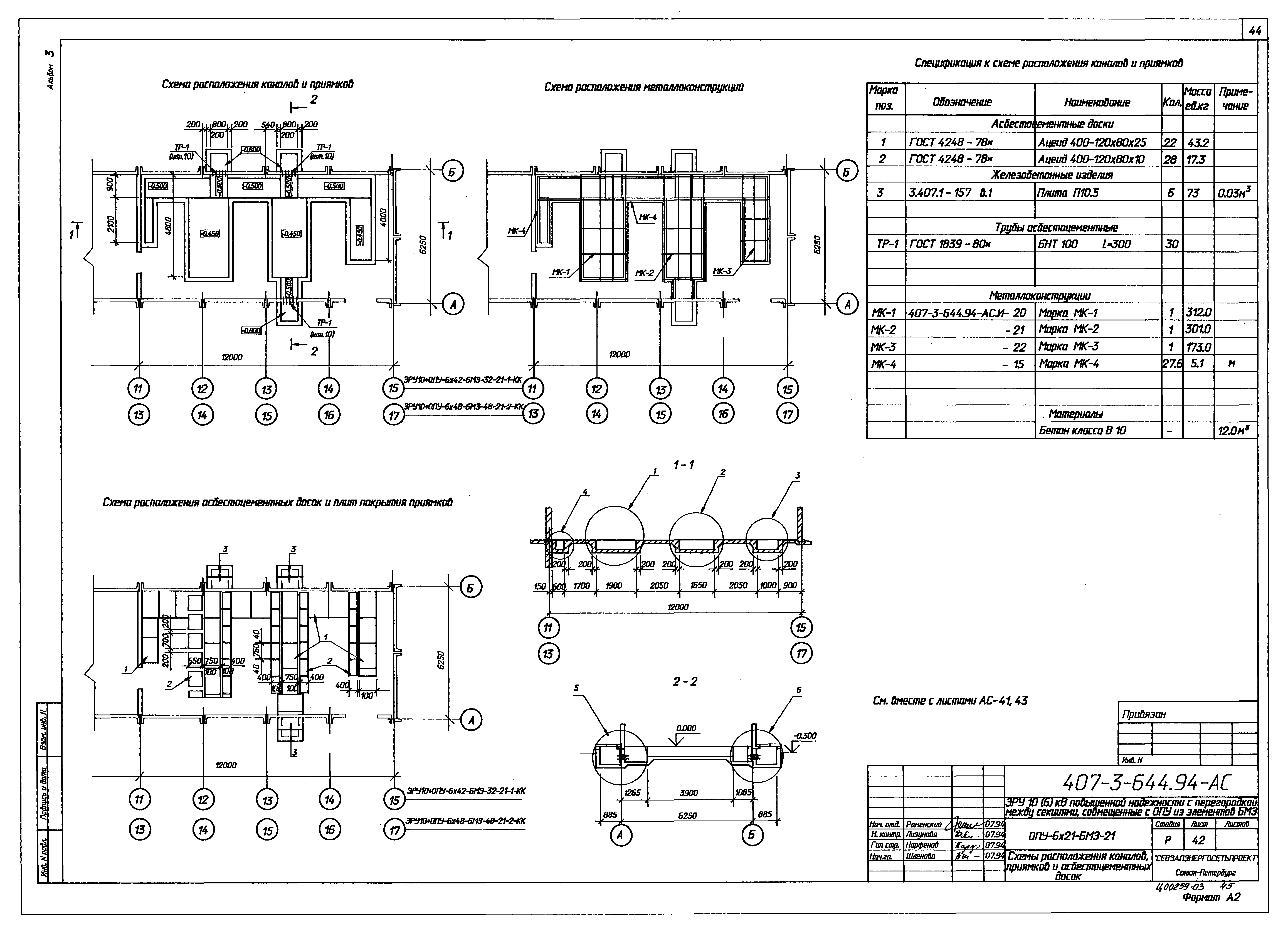
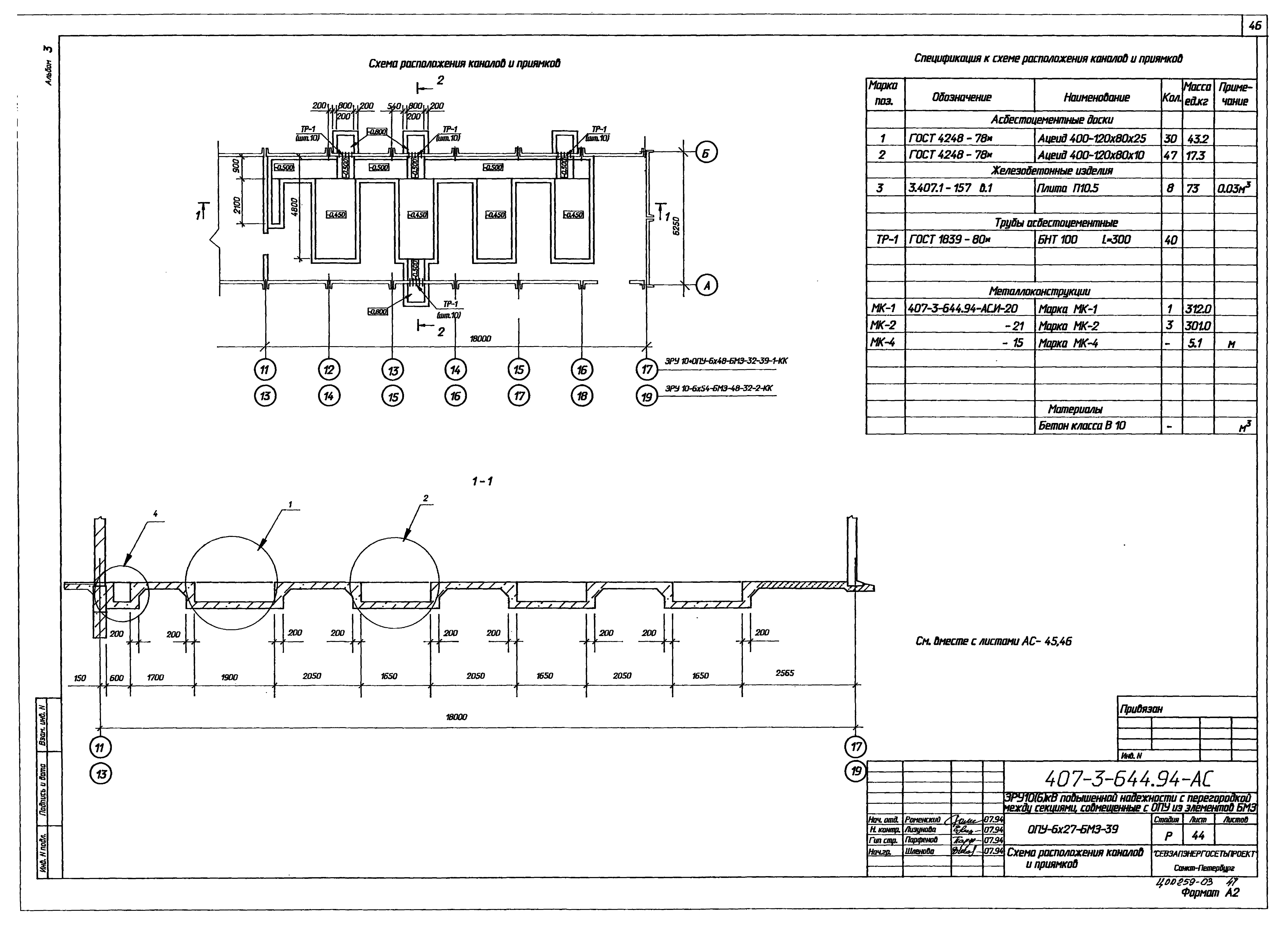
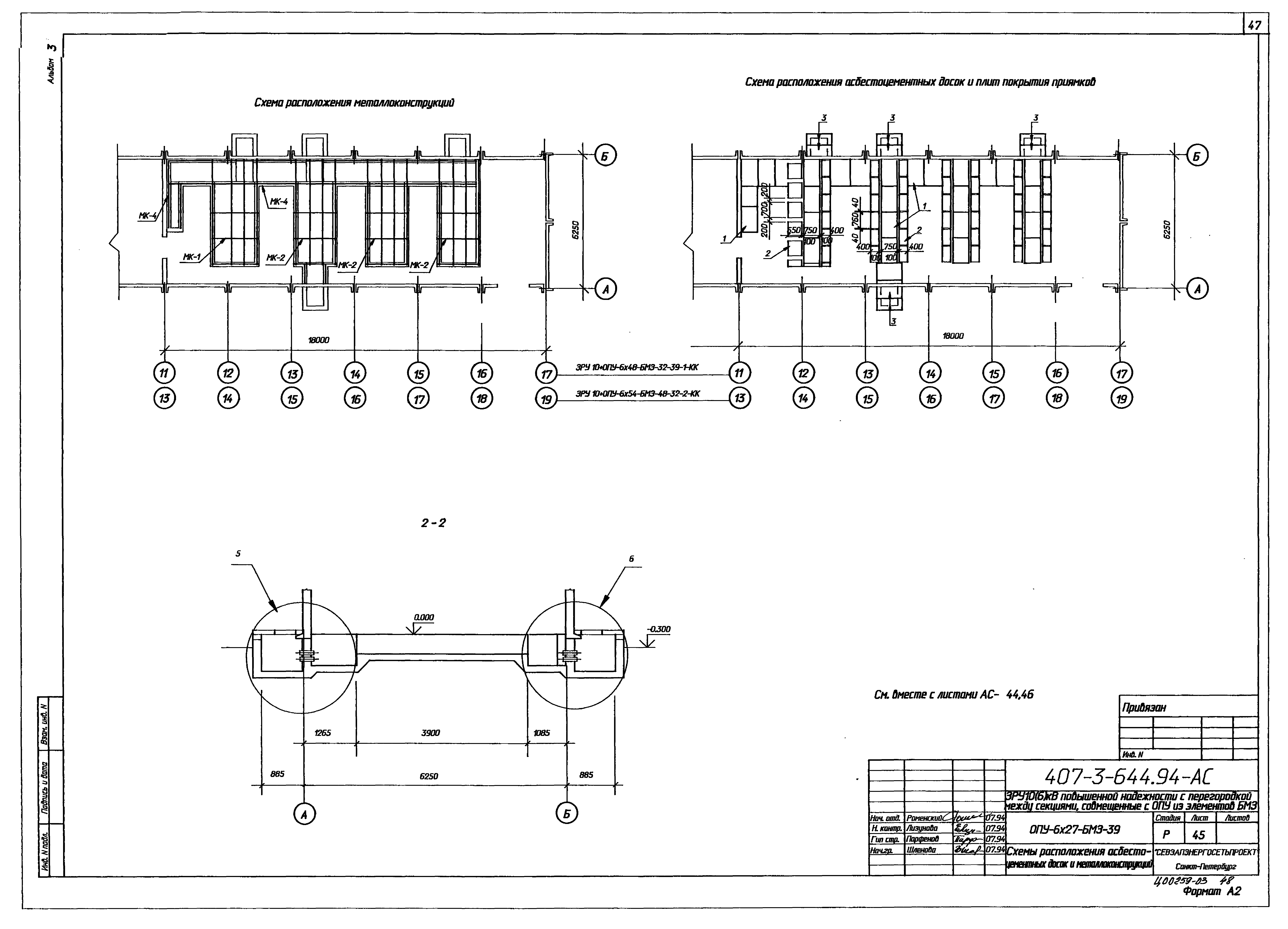
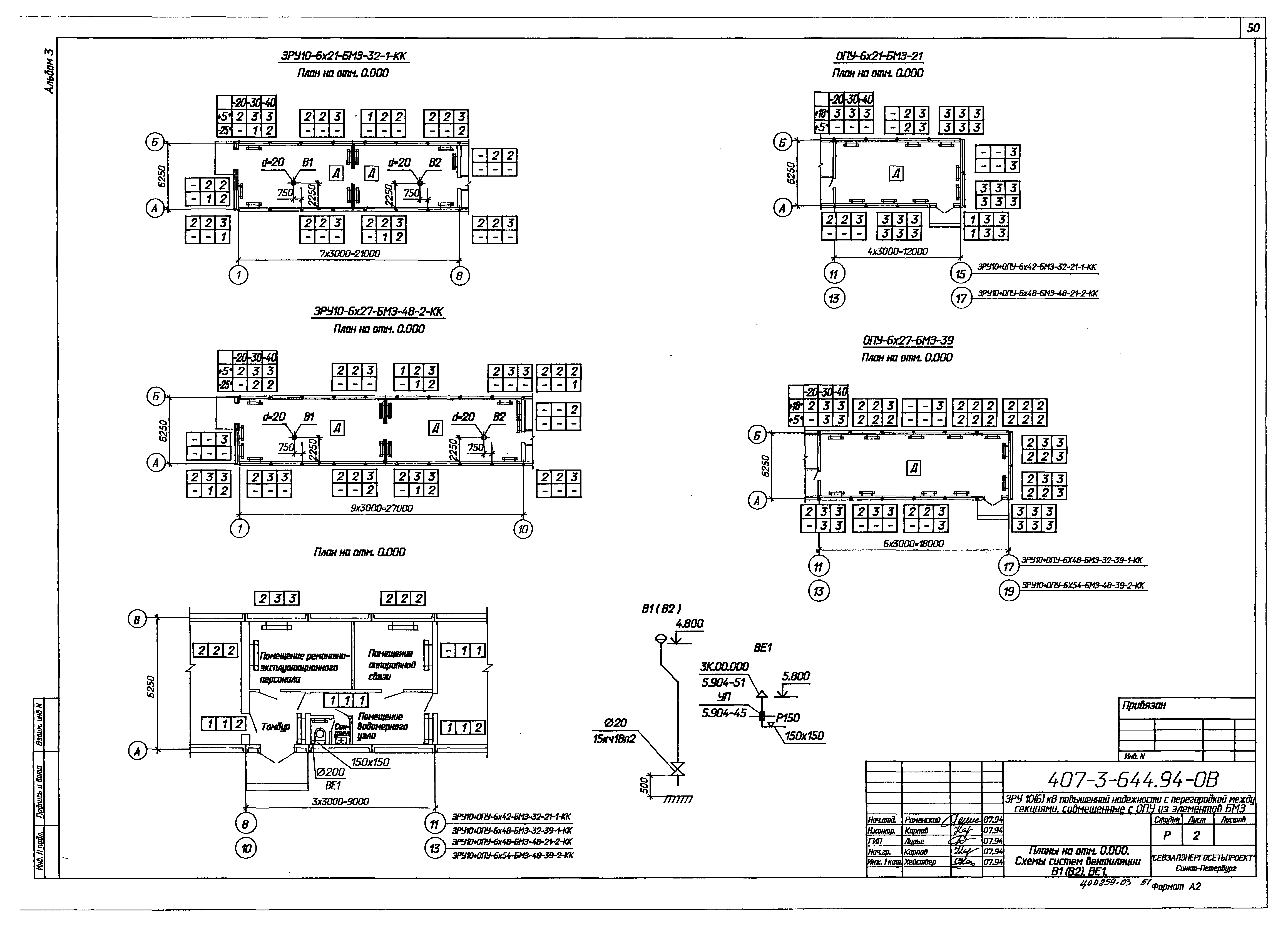
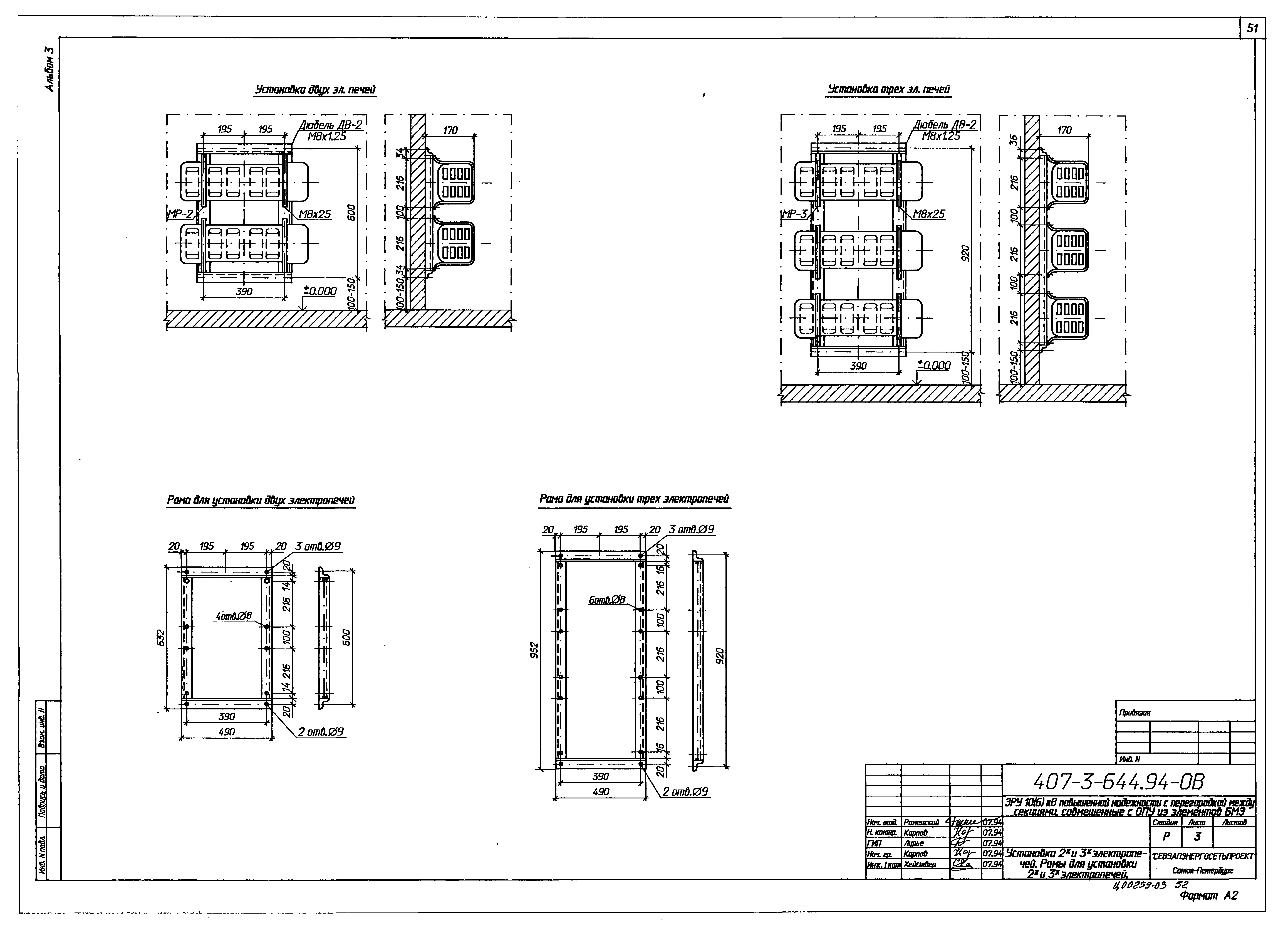
| Оглавление: | Строительные чертежи Общие данные ЗРУ10хОПУ-6х42-БМЗ-32-21-1-КК План и экспликация полов. Ведомость отделки помещений План на отм. 0.000 Разрезы 1-1…3-3 Фасады Схема расположения фундаментов Схема расположения плит покрытия Схема расположения стеновых панелей ЗРУ10хОПУ-6х48-БМЗ-32-39-1-КК План и экспликация полов. Ведомость отделки помещений План на отм. 0.000 Разрезы 1-1…3-3 Фасады Схема расположения фундаментов Схема расположения плит покрытия Схема расположения стеновых панелей ЗРУ10хОПУ-6х48-БМЗ-48-21-2-КК План и экспликация полов. Ведомость отделки помещений План на отм. 0.000 Разрезы 1-1…3-3 Фасады Схема расположения фундаментов Схема расположения плит покрытия Схема расположения стеновых панелей ЗРУ10хОПУ-6х54-БМЗ-48-39-2-КК План и экспликация полов. Ведомость отделки помещений План на отм. 0.000 Разрезы 1-1…3-3 Фасады Схема расположения фундаментов Схема расположения плит покрытия Схема расположения стеновых панелей Архитектурные узлы А, Б, В. Фрагмент 1 Фрагменты входа 1 и хода 2 Фрагмент фасада 1 Схемы расположения фундаментов. Узлы1…3, сечения ЗРУ10-6х21-БМЗ-32-1-КК. Схема расположения металлоконструкций в полу и стенах ЗРУ10-6х27-БМЗ-48-2-КК. Схема расположения металлоконструкций в полу и стенах ЗРУ10-6х21-БМЗ-32-1-КК. Схемы расположения каналов, приямков и асбестоцементных досок ЗРУ10-6х21-БМЗ-32-1-КК. Схемы расположения каналов и приямков. Разрезы, сечения ЗРУ10-6х27-БМЗ-48-2-КК. Схемы расположения каналов, приямков и асбестоцементных досок ЗРУ10-6х27-БМЗ-48-2-КК. Схемы расположения каналов и приямков. Разрезы, сечения ОПУ-6х21-БМЗ-21. Схемы расположения каналов, приямков и асбестоцементных досок ОПУ-6х21-БМЗ-21. Схемы расположения каналов, приямков и плит покрытия. Узлы 1…6 ОПУ-6х27-БМЗ-39. Схема расположения каналов и приямков ОПУ-6х27-БМЗ-39. Схемы расположения асбестоцементных досок и металлоконструкций ОПУ-6х27-БМЗ-39. Схемы расположения каналов, приямков и плит покрытия. Узлы 1, 2, 4, 5 Отопление и вентиляция Общие данные Планы на отм. 0.000. Схемы систем вентиляции В1(В2), ВЕ1 Установка 2-х и 3-х электропечей. Рамы для установки 2-х и 3-х электропечей Водопровод и канализация Общие данные План на отм. 0.000. Схема систем В1 и К1 |
| Разработан: | Севзапэнергосетьпроект |
| Утверждён: | 22.08.1994 Департамент электроэнергетики Минтопэнерго России (5) |
| Издан: | ГУП ЦПП (CPP GUP 1998 г. ) |





















































