Скачать Типовой проект 901-3-24 Альбом I. Часть 1. Здание очистной станции. Архитектурно-строительная часть. Стены - панельные, емкости - сборныеДата актуализации: 01.01.2021
|
| Обозначение: | Типовой проект 901-3-24 |
| Обозначение англ: | 901-3-24 |
| Статус: | не действует |
| Название рус.: | Альбом I. Часть 1. Здание очистной станции. Архитектурно-строительная часть. Стены - панельные, емкости - сборные |
| Дата добавления в базу: | 01.09.2013 |
| Дата актуализации: | 01.01.2021 |
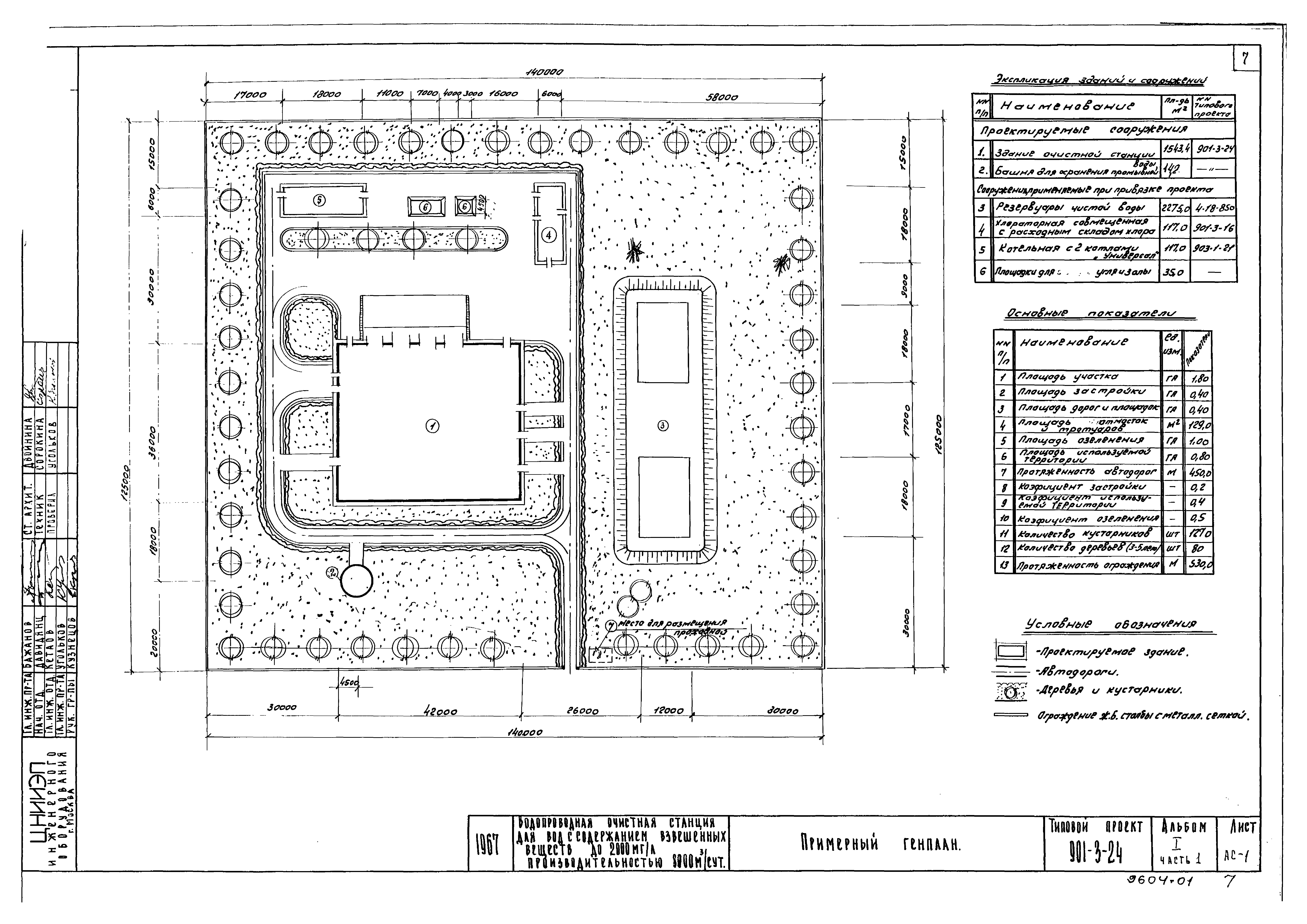
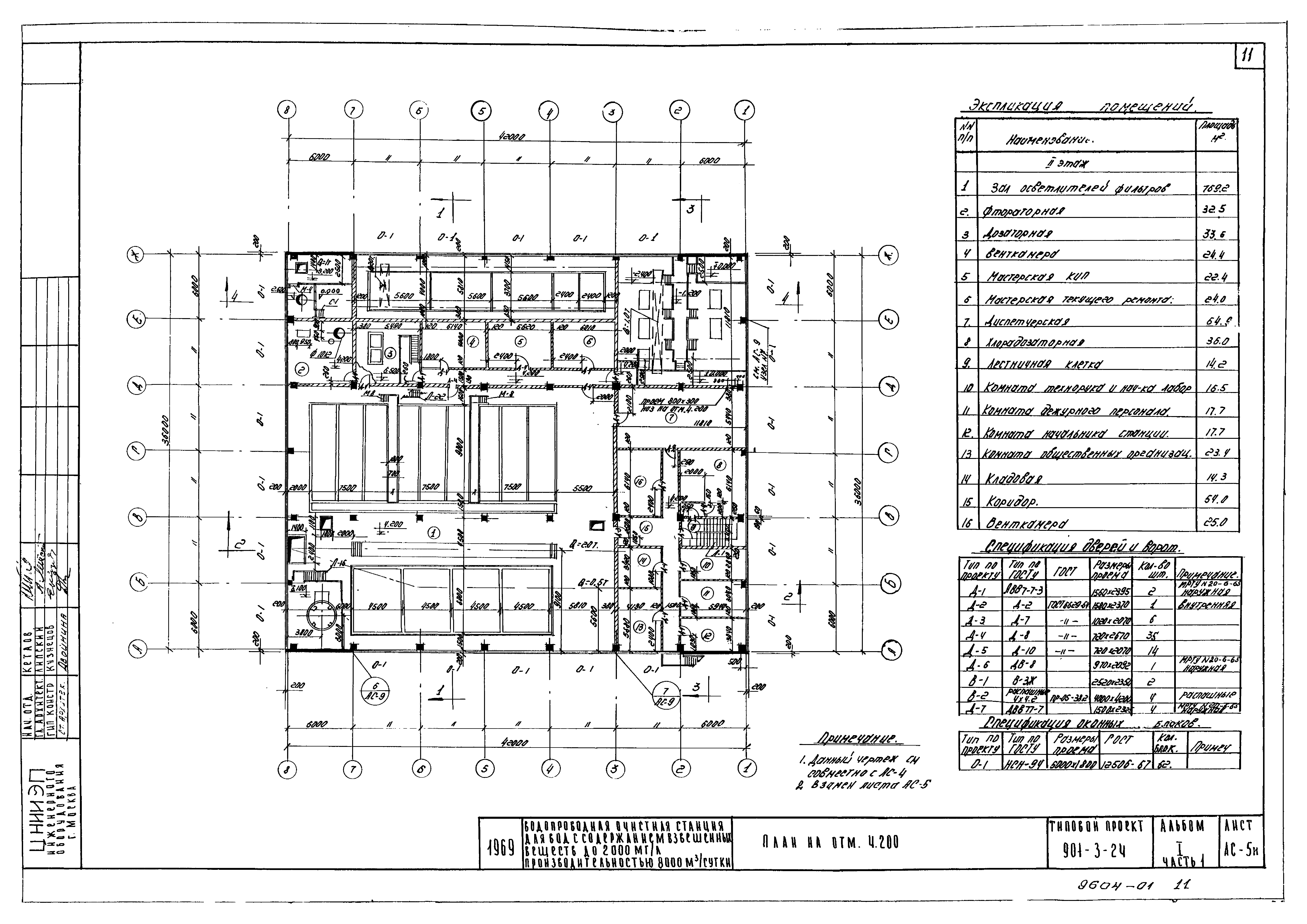
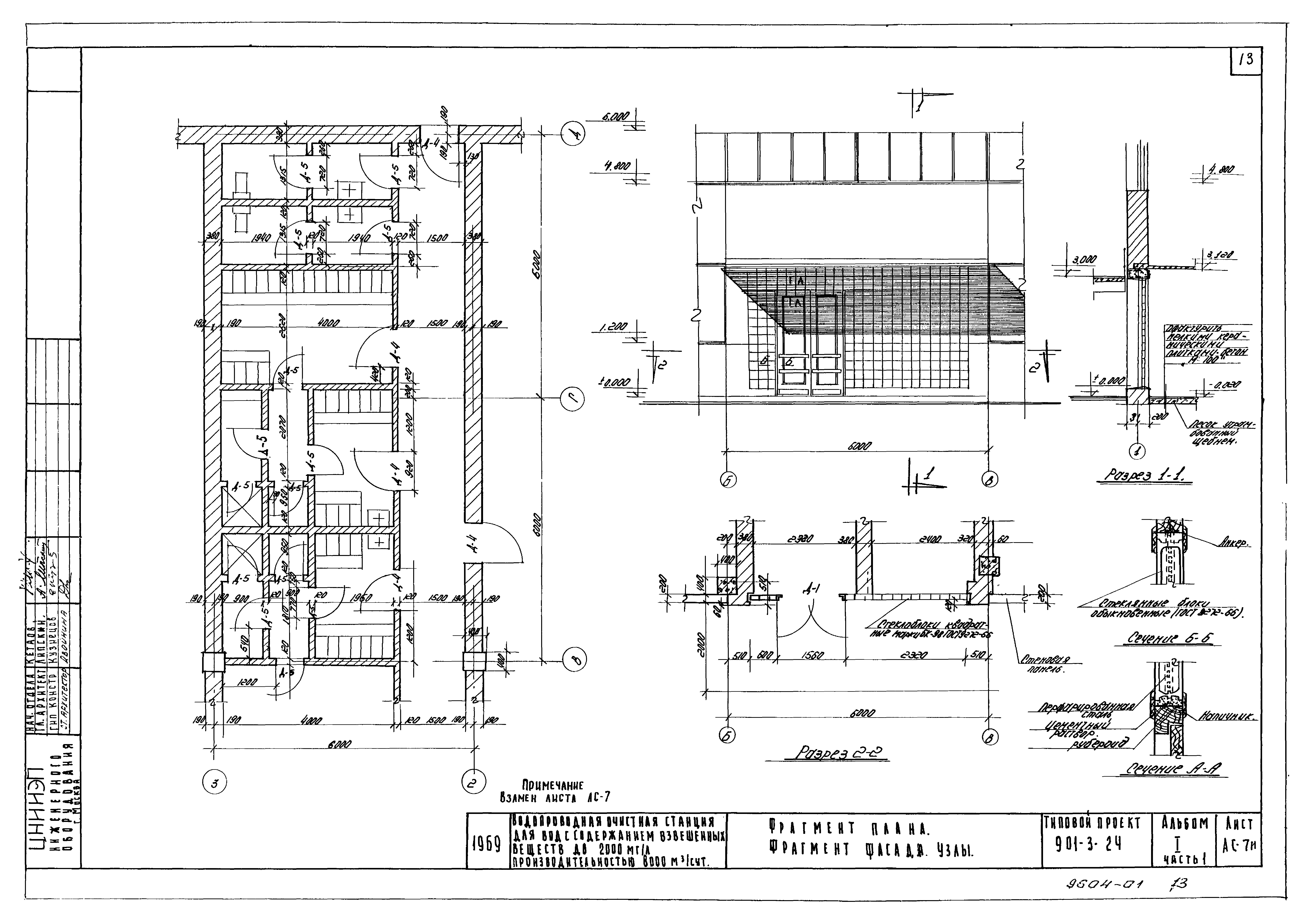
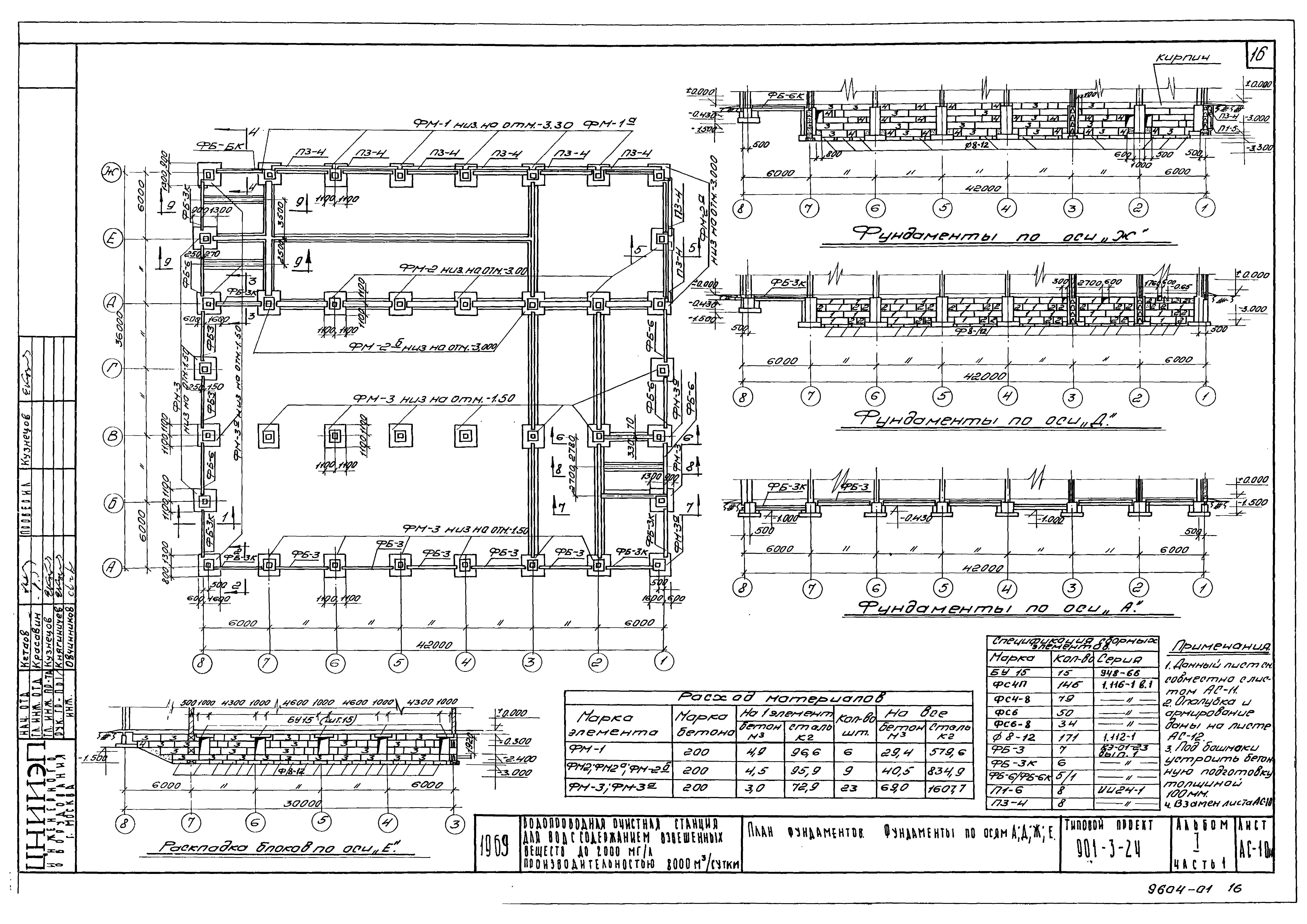
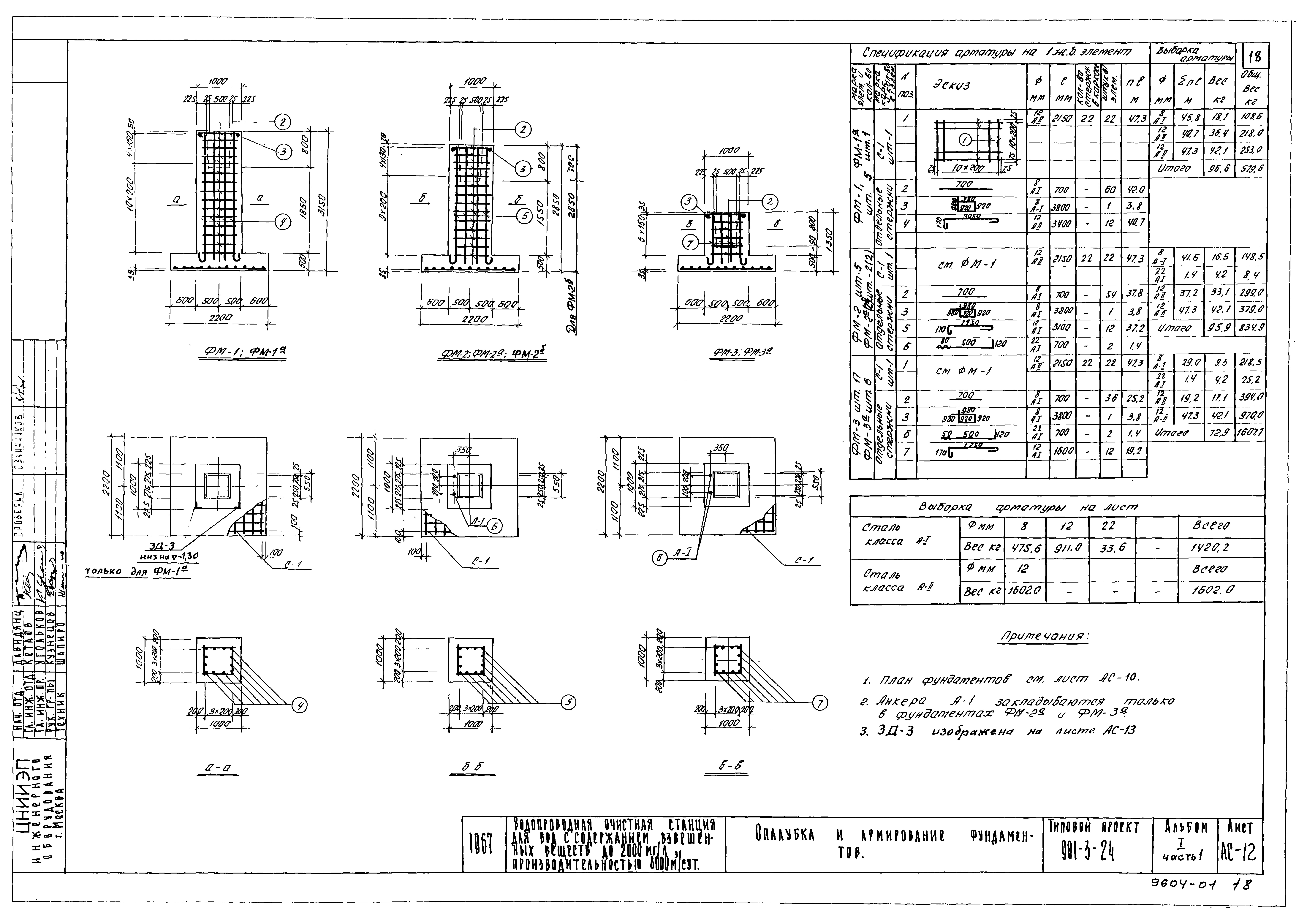
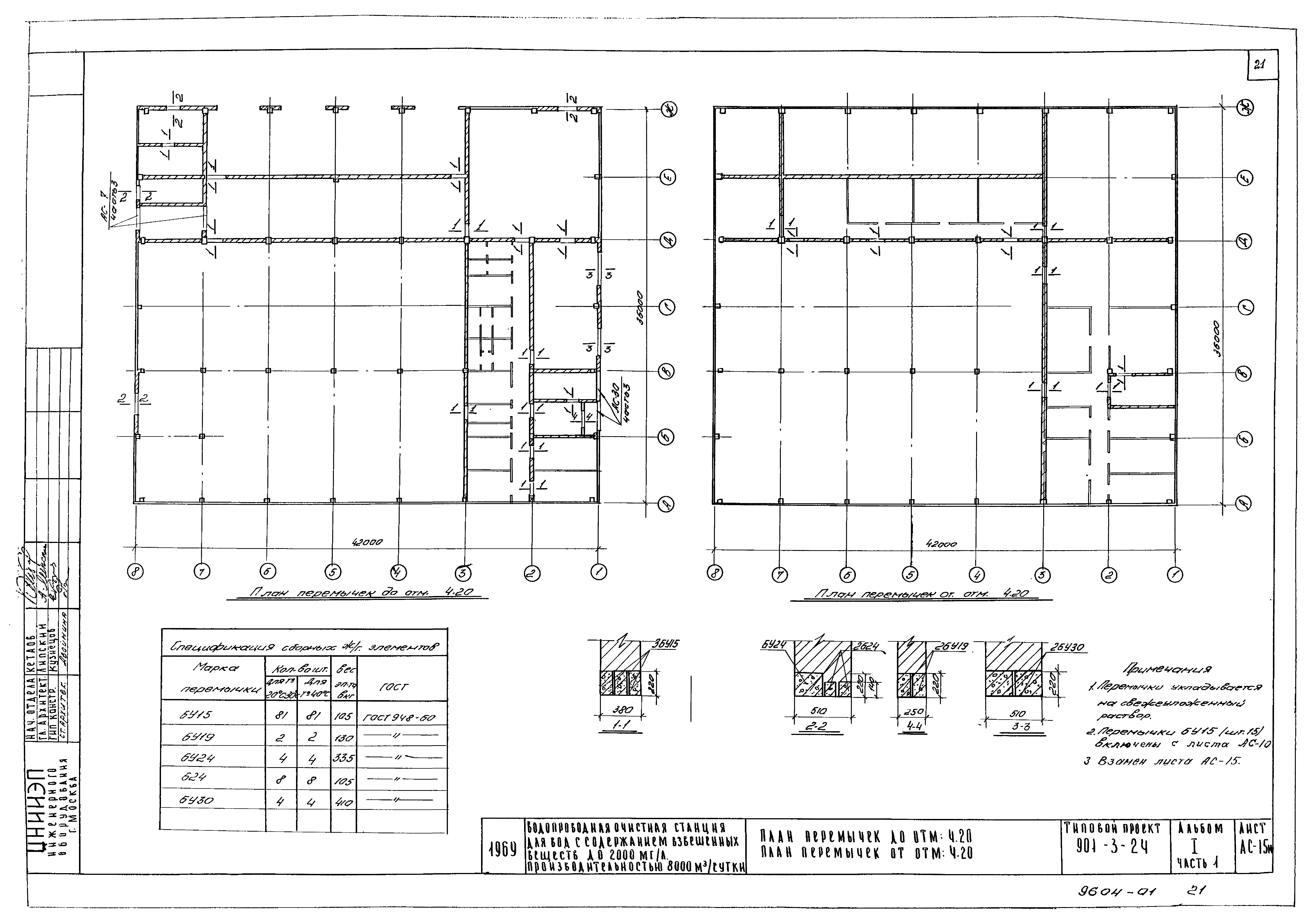
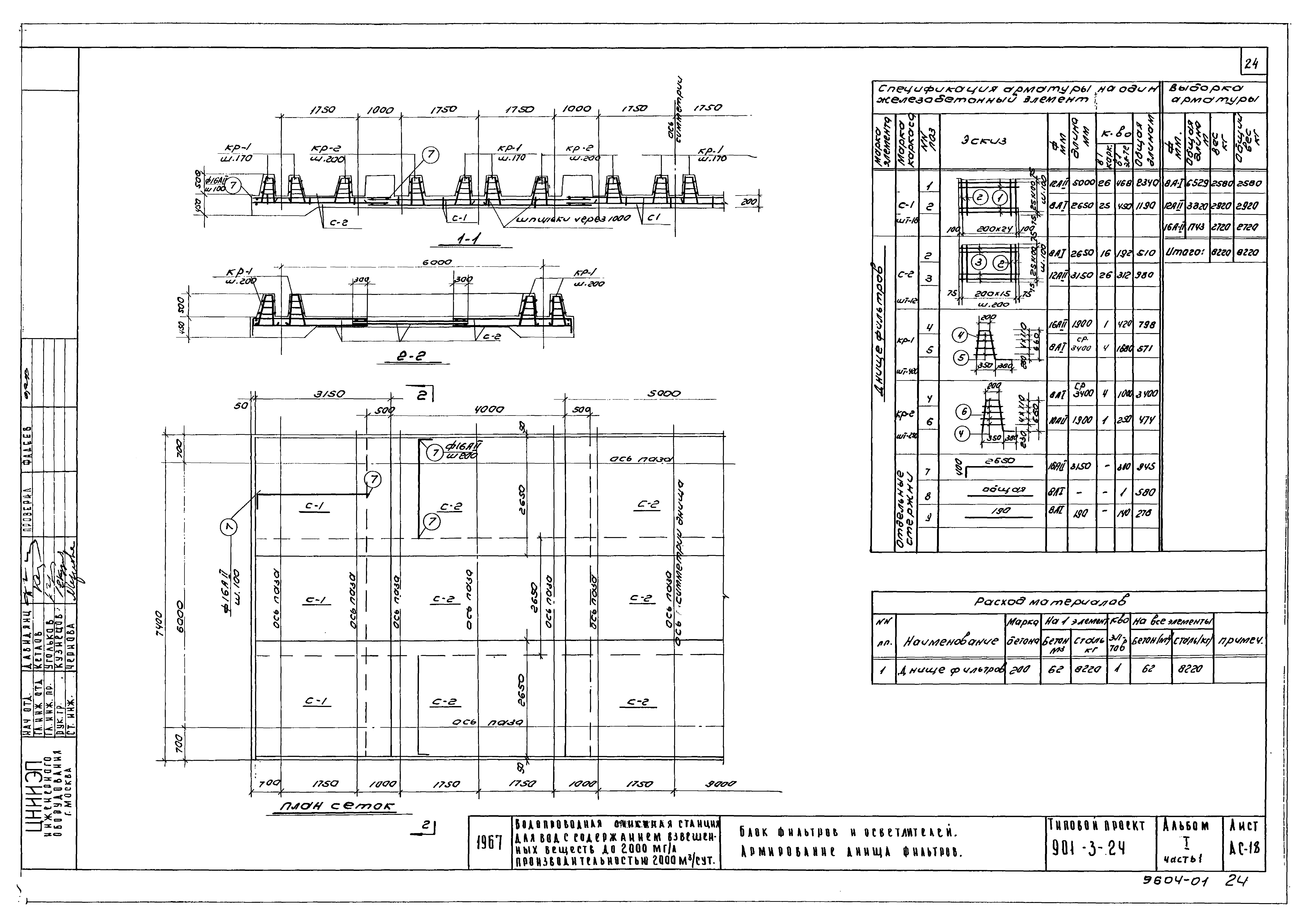
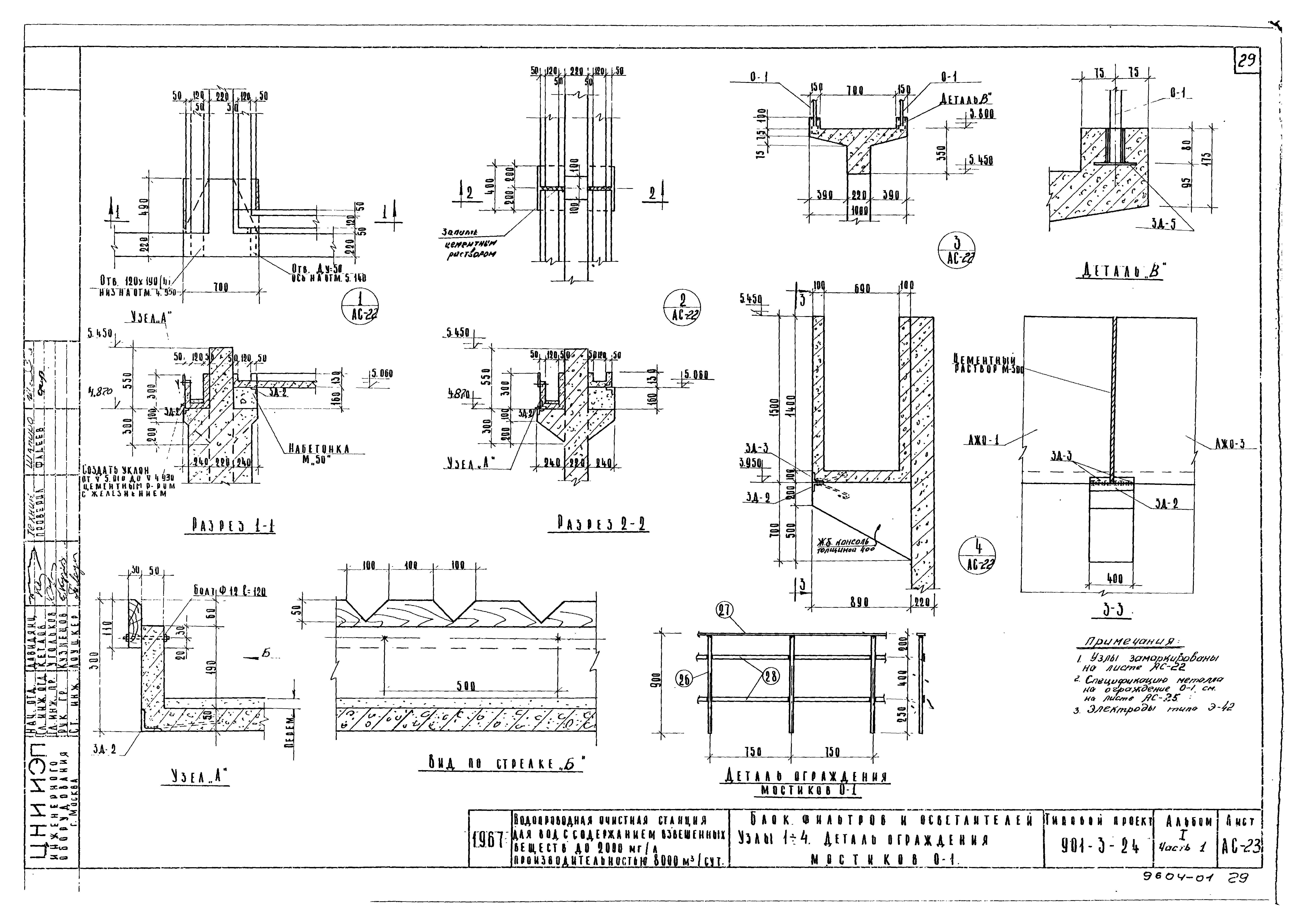
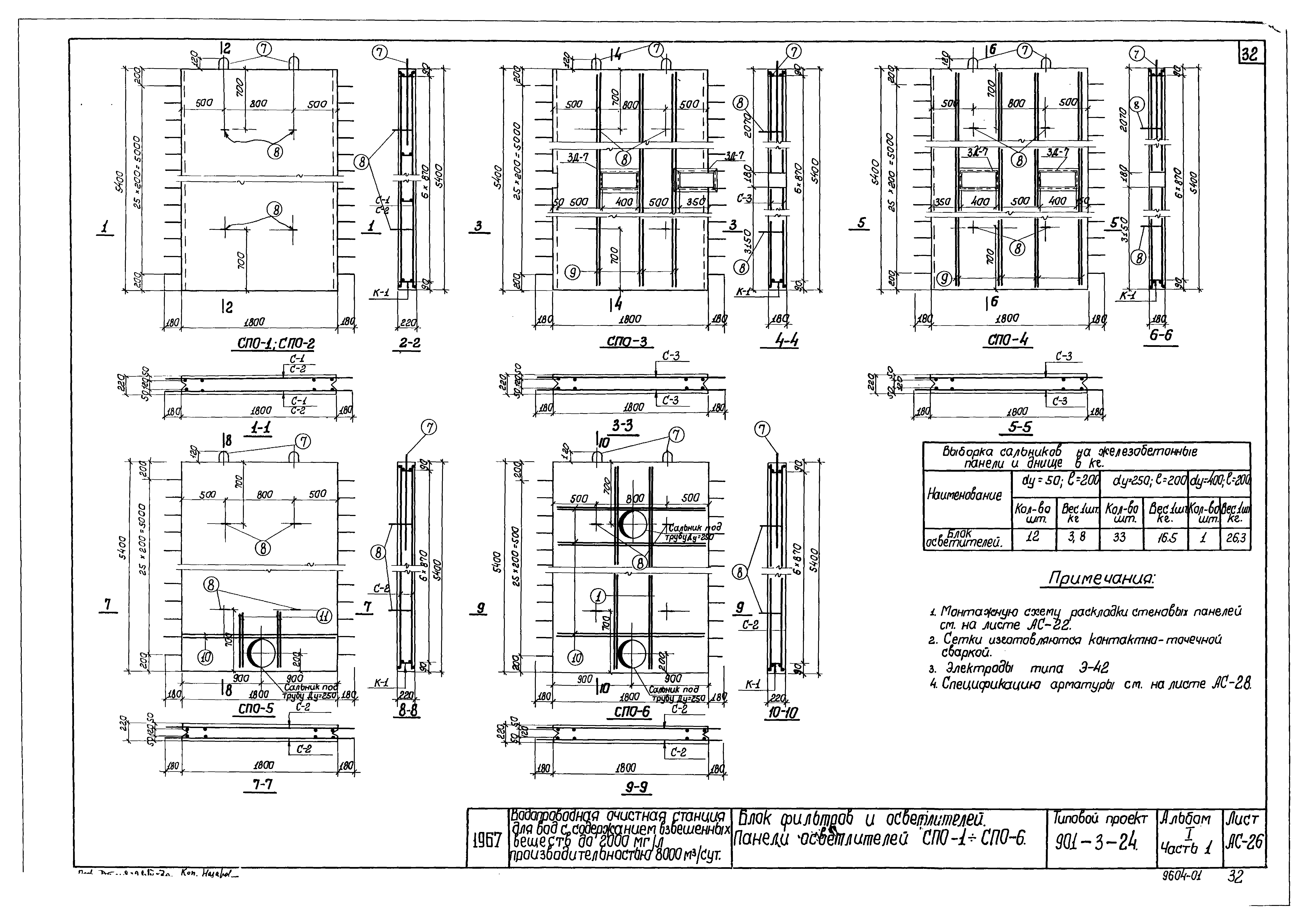
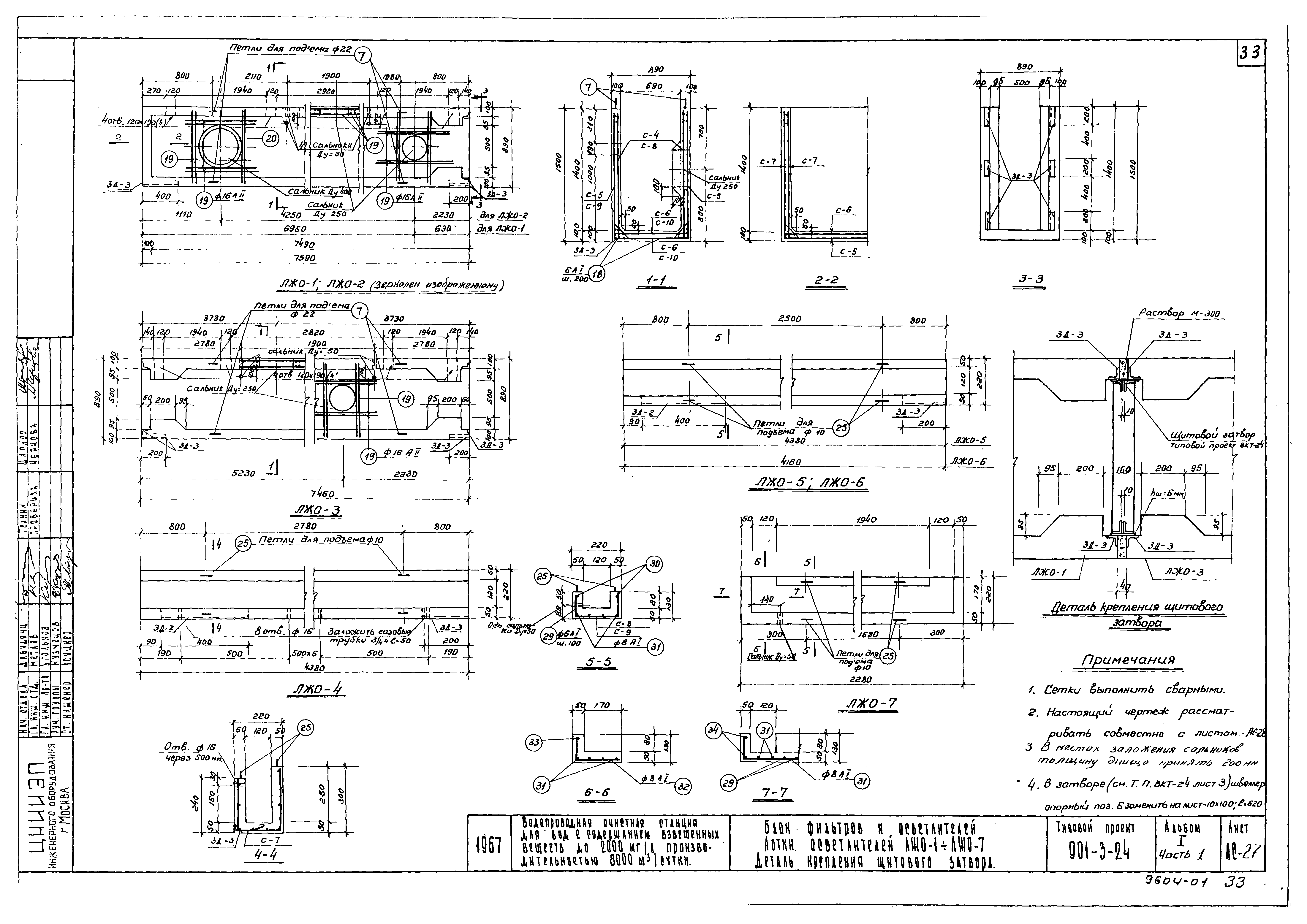
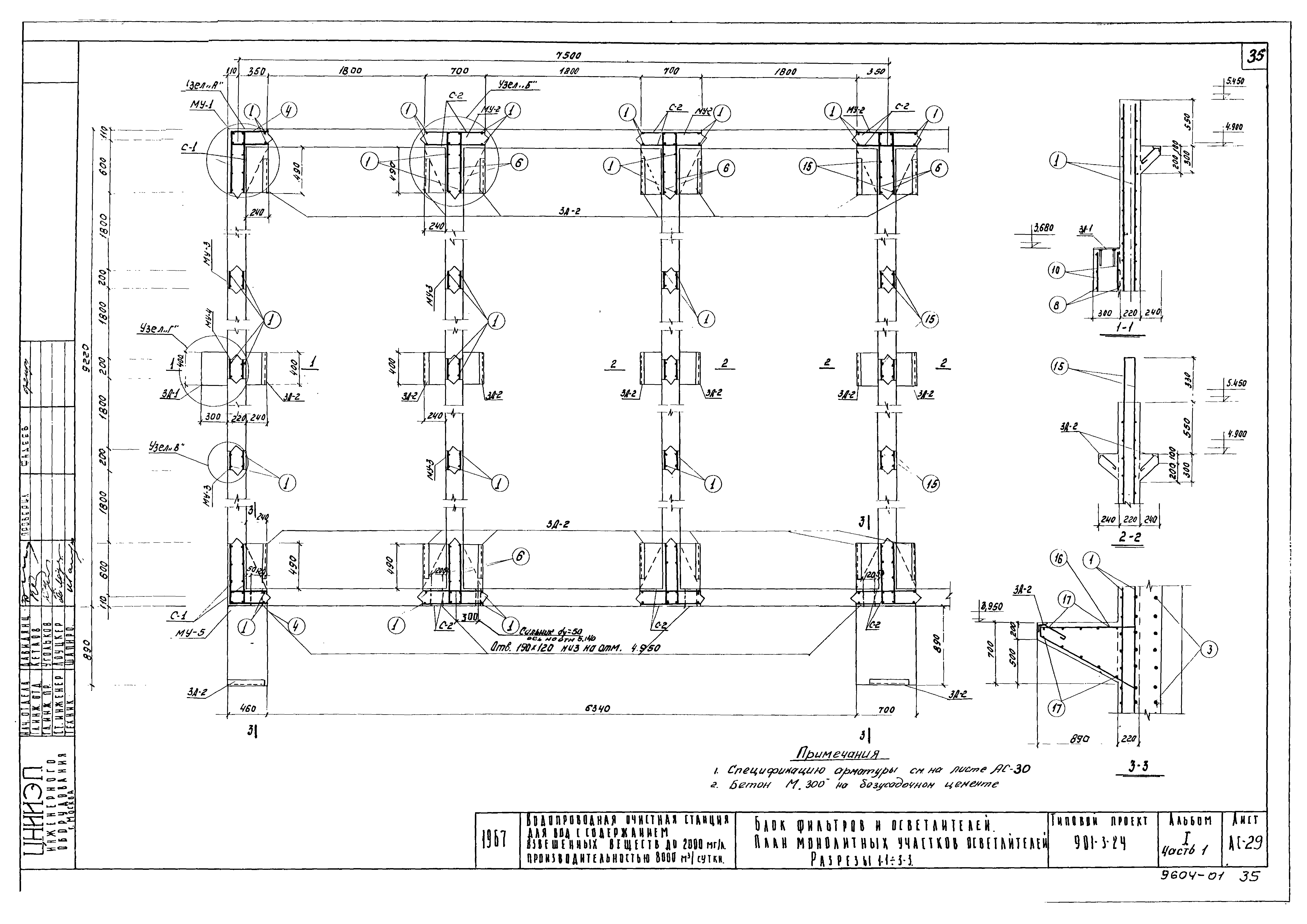
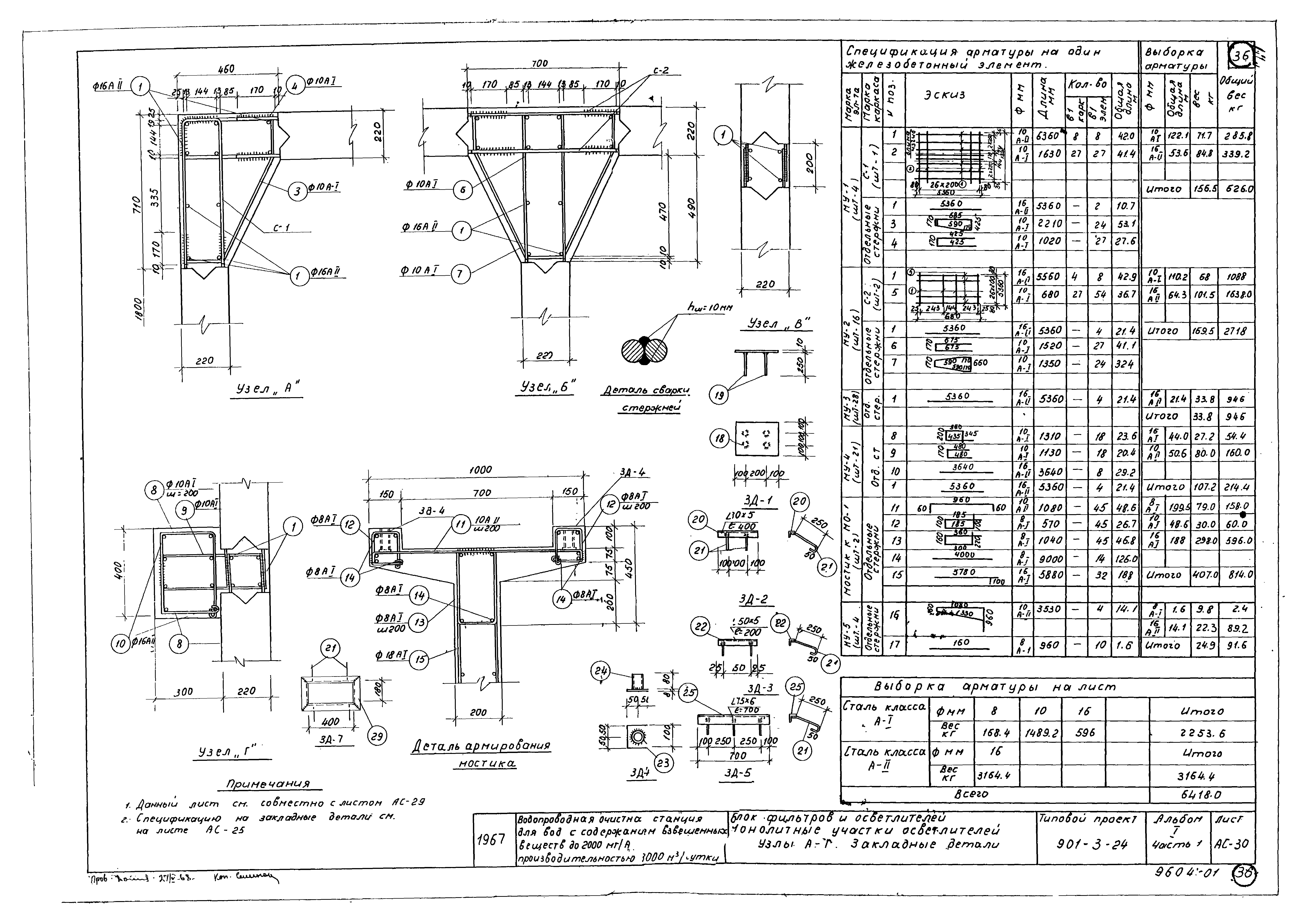
| Оглавление: | Обложка Титульный лист Содержание альбома Заглавный лист Пояснительная записка Примерный генплан Фасады А - Ж; Ж - А; 8 - 1; 1 - 8 Конструкция полов. Ведомость внутренней отделки помещений. Таблица толщин стен и утеплителя и привязок кирпичных вставок План I этажа План на отм. 4.200 Разрезы 1-1, 2-2, 3-3, 4-4 Фрагмент плана. Фрагмент фасада. Узлы Устройство внутреннего водостока. Спецификация металла. Железобетонная лестница Узлы 1 - 9 План фундаментов. Фундаменты по осям "А", "Д", "Ж", "Е" Фундаменты по осям 1, 2, 3, 7, 8. Сечения 1-1, 2-2, 3-3, 4-4, 5-5, 6-6, 7-7, 8-8, 9-9 Опалубка и армирование фундаментов Монтажная схема раскладки стеновых панелей Детали разрезов. Спецификация План перемычек до отм. 4.200. План перемычек от отм. 4.200 Блок фильтров и осветлителей. Общий вид фильтров. План 1-1, 2-2, 3-3 Блок фильтров и осветлителей. План и разрезы днища фильтров. Спецификация арматуры на монолитные участки Блок фильтров и осветлителей. Армирование днища фильтров Блок фильтров и осветлителей. Стеновые панели фильтров ПСФ-1, ПСФ-2, ПСФ-3, ПСФ-4, ПСФ-5, ПСФ-6 - ПСФ-9 Блок фильтров и осветлителей. Спецификация арматуры стеновых панелей фильтров Блок фильтров и осветлителей. Армирование монолитных участков фильтров Блок фильтров и осветлителей. Монтажная схема раскладки стеновых панелей осветлителей. Разрезы 1-1, 2-2 Блок фильтров и осветлителей. Узлы 1 - 4. Деталь ограждения мостиков 0 - 1 Блок фильтров и осветлителей. Арматурно-опалубочный чертеж днища осветлителей. План раскладки сеток Блок фильтров и осветлителей. Спецификация на монолитное железобетонное днище осветлителей Блок фильтров и осветлителей. Панели осветлителей СП01 - СП06 Блок фильтров и осветлителей. Лотки осветлителей ЛЖО-1 - ЛЖО-7. Деталь крепления щитового затвора Блок фильтров и осветлителей. Спецификация панелей осветлителей СПО-1 - СПО-6 и лотка ЛЖО-1 - ЛЖО-7 Блок фильтров и осветлителей. План монолитных участков осветлителей. Разрезы 1-1 - 3-3 Блок фильтров и осветлителей. Монолитные участки осветлителей. Узлы А - Г. Закладные детали |
| Разработан: | ЦНИИЭП инженерного оборудования Госгражданстроя |
| Утверждён: | 20.12.1967 ЦНИИЭП инженерного оборудования (TsNIIEP of Building Service Equipment 121) |



































