Скачать Типовой проект 901-3-24 Альбом I. Часть 3. Здание очистной станции. Архитектурно-строительная часть. Чертежи к частям 1 и 2Дата актуализации: 01.01.2021
|
| Обозначение: | Типовой проект 901-3-24 |
| Обозначение англ: | 901-3-24 |
| Статус: | не действует |
| Название рус.: | Альбом I. Часть 3. Здание очистной станции. Архитектурно-строительная часть. Чертежи к частям 1 и 2 |
| Дата добавления в базу: | 01.09.2013 |
| Дата актуализации: | 01.01.2021 |
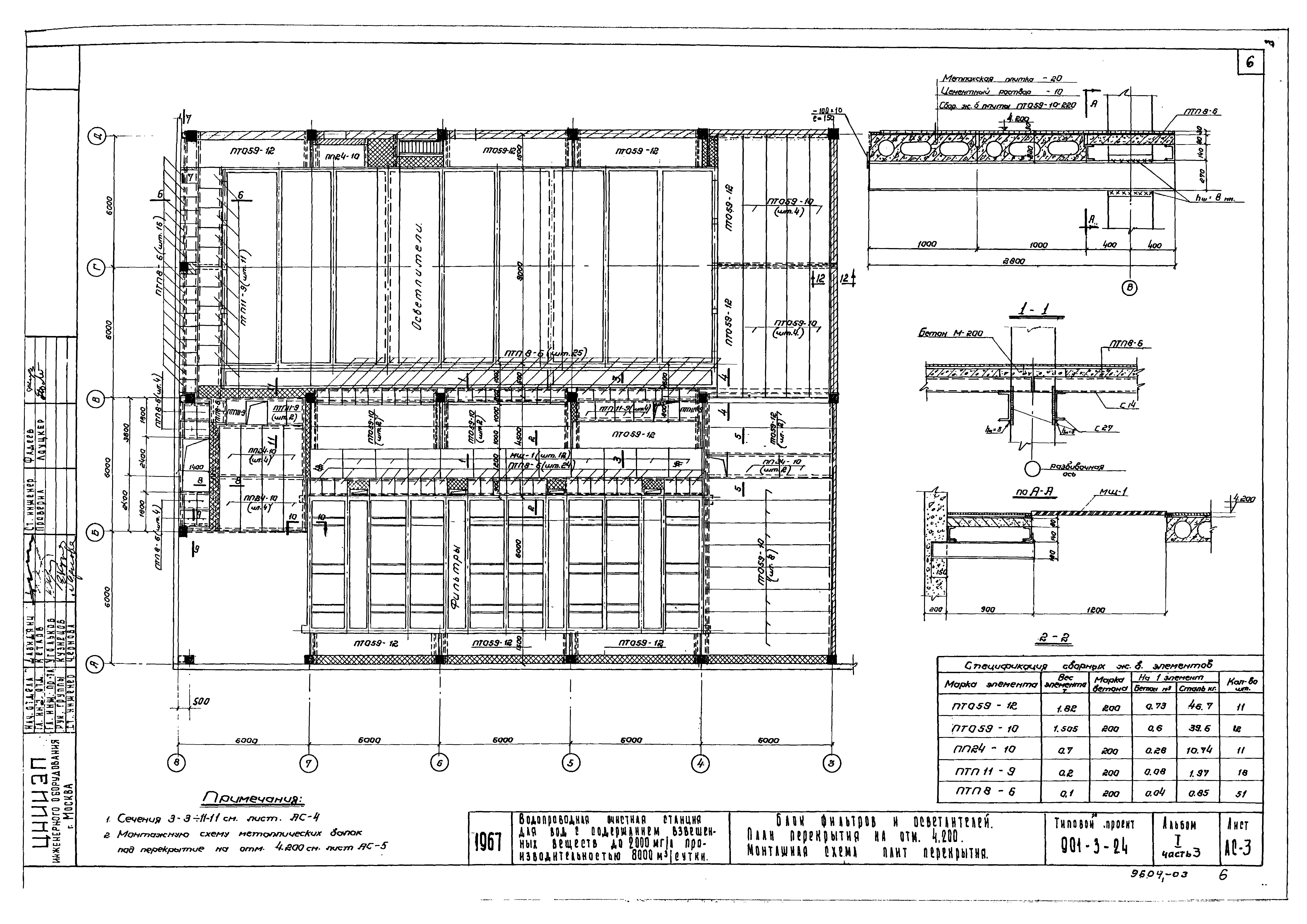
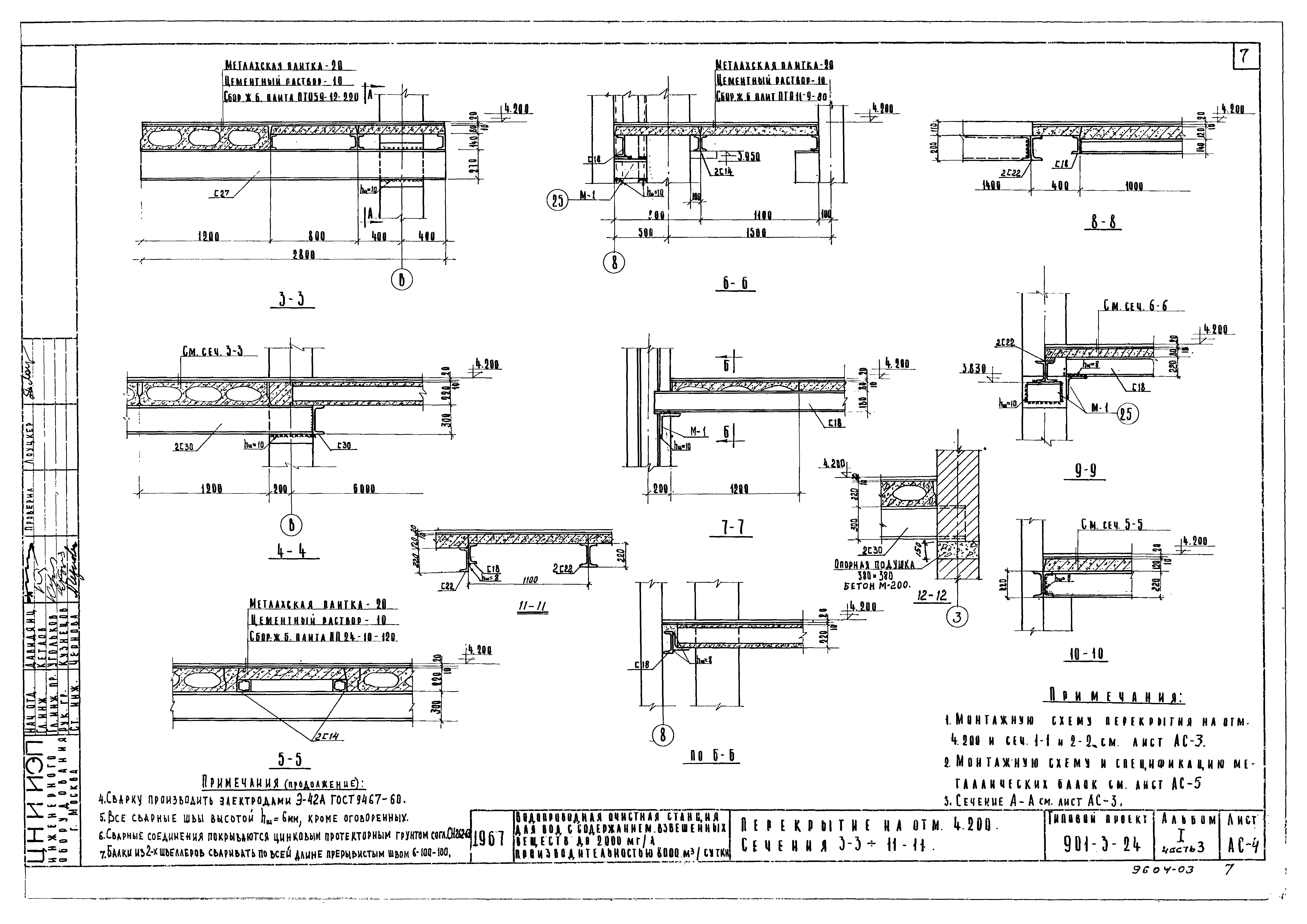
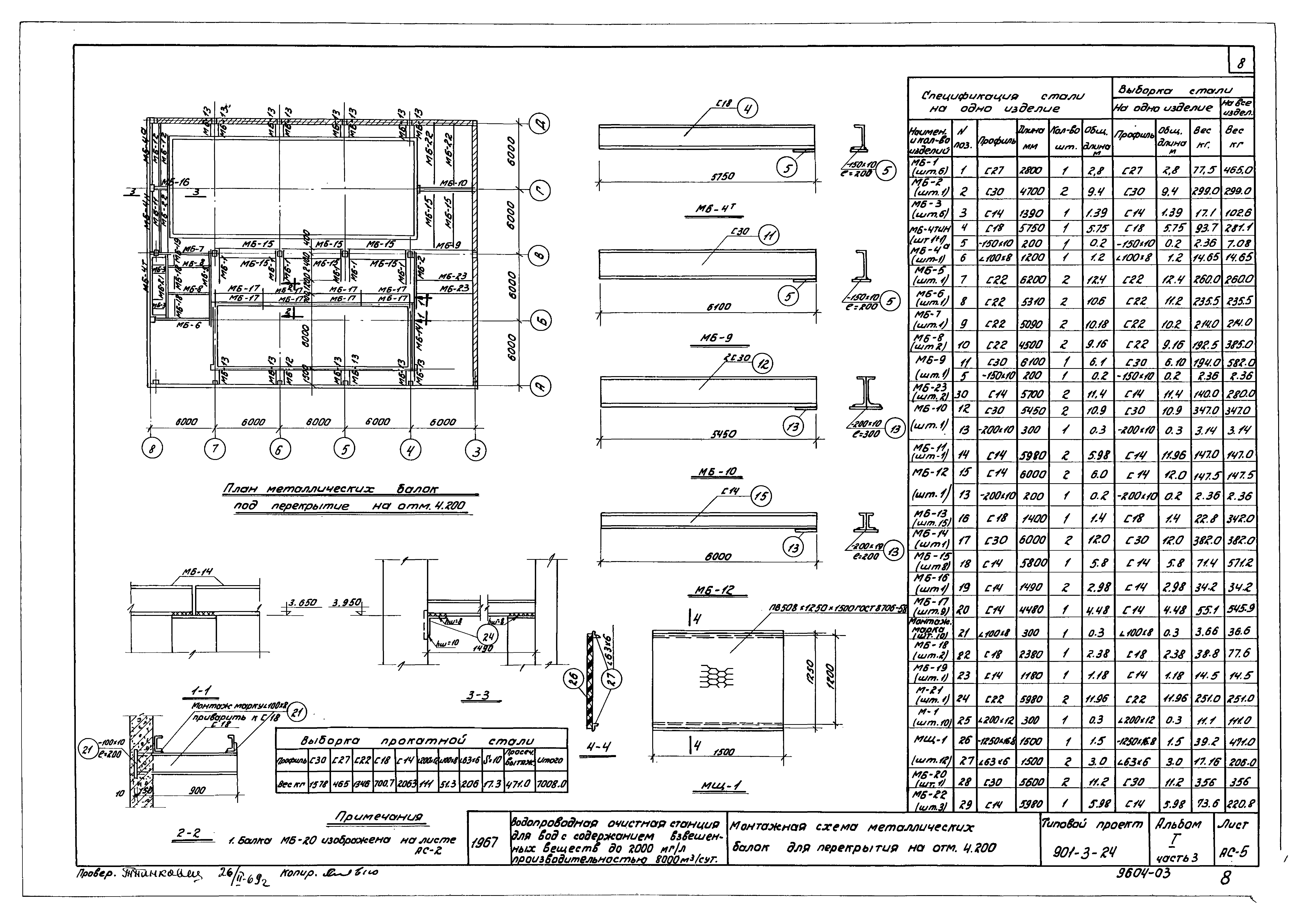
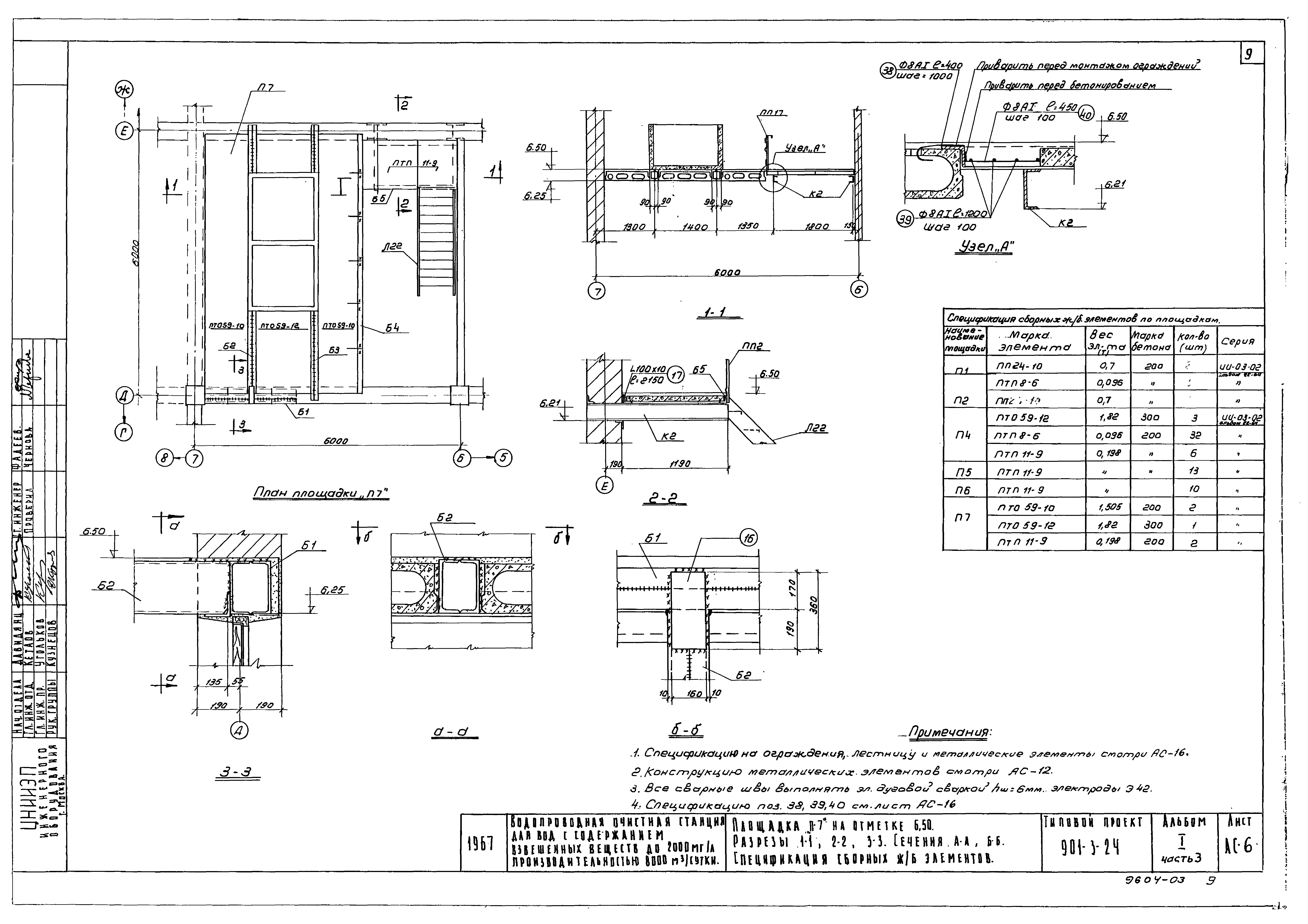
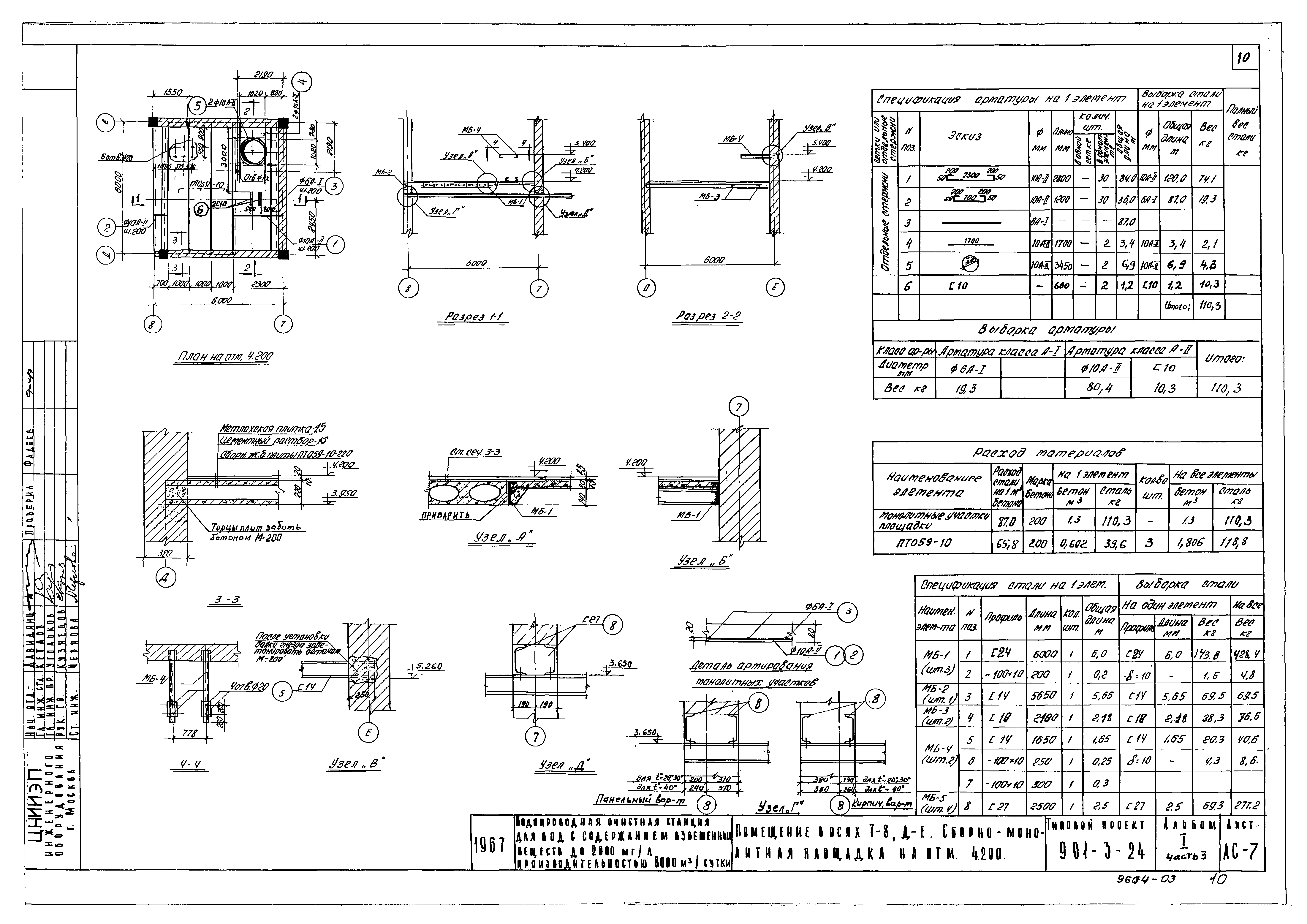
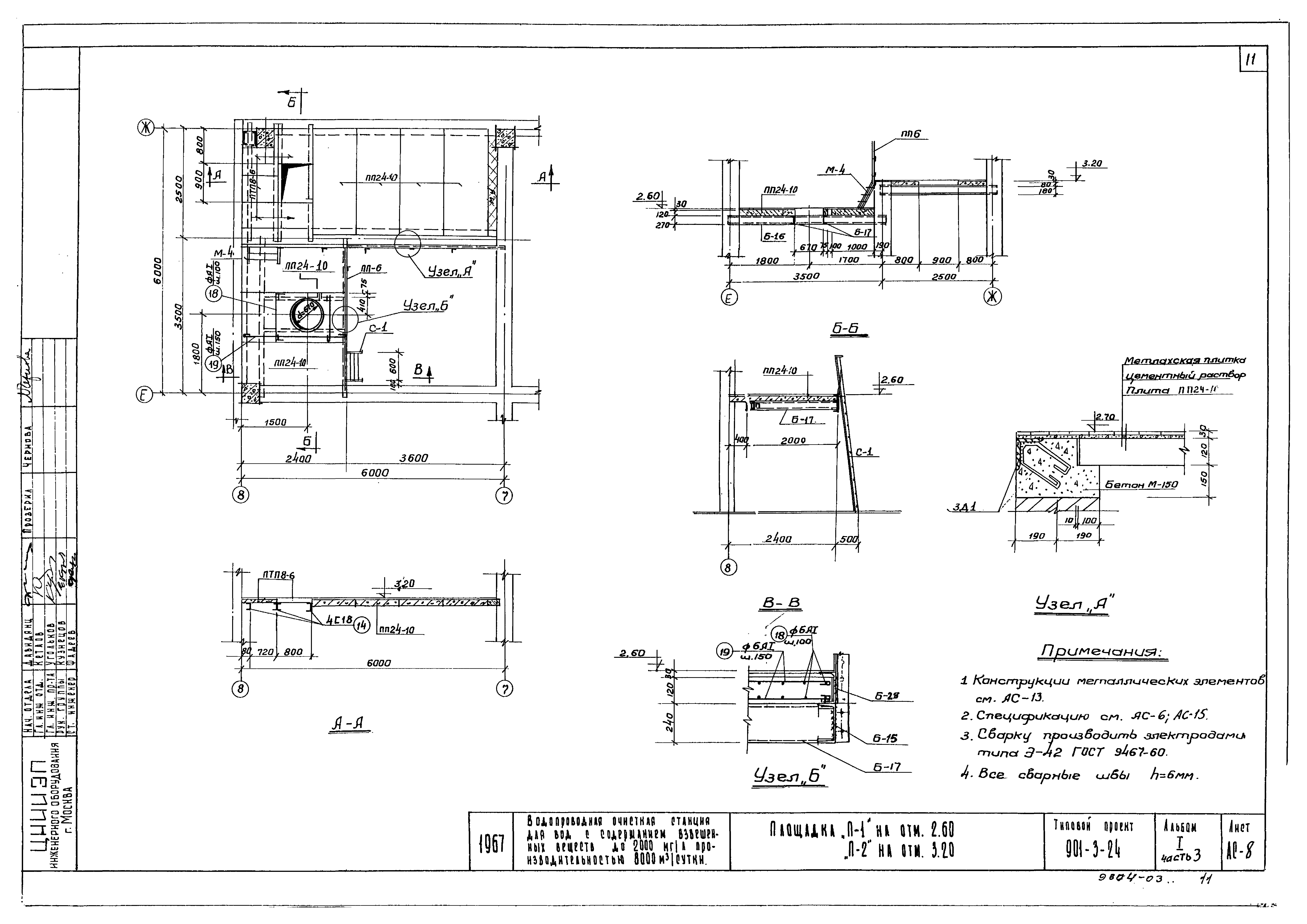
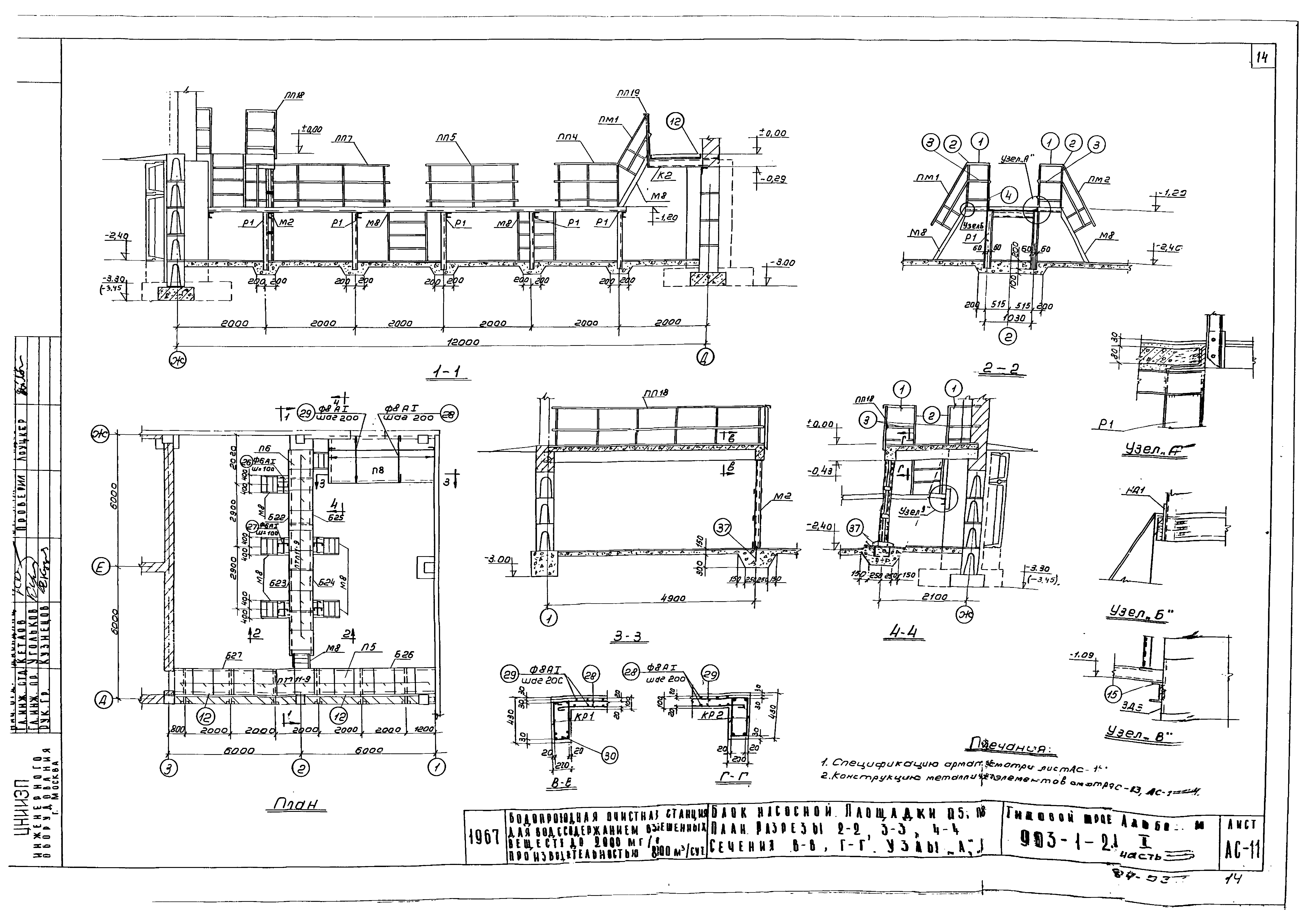
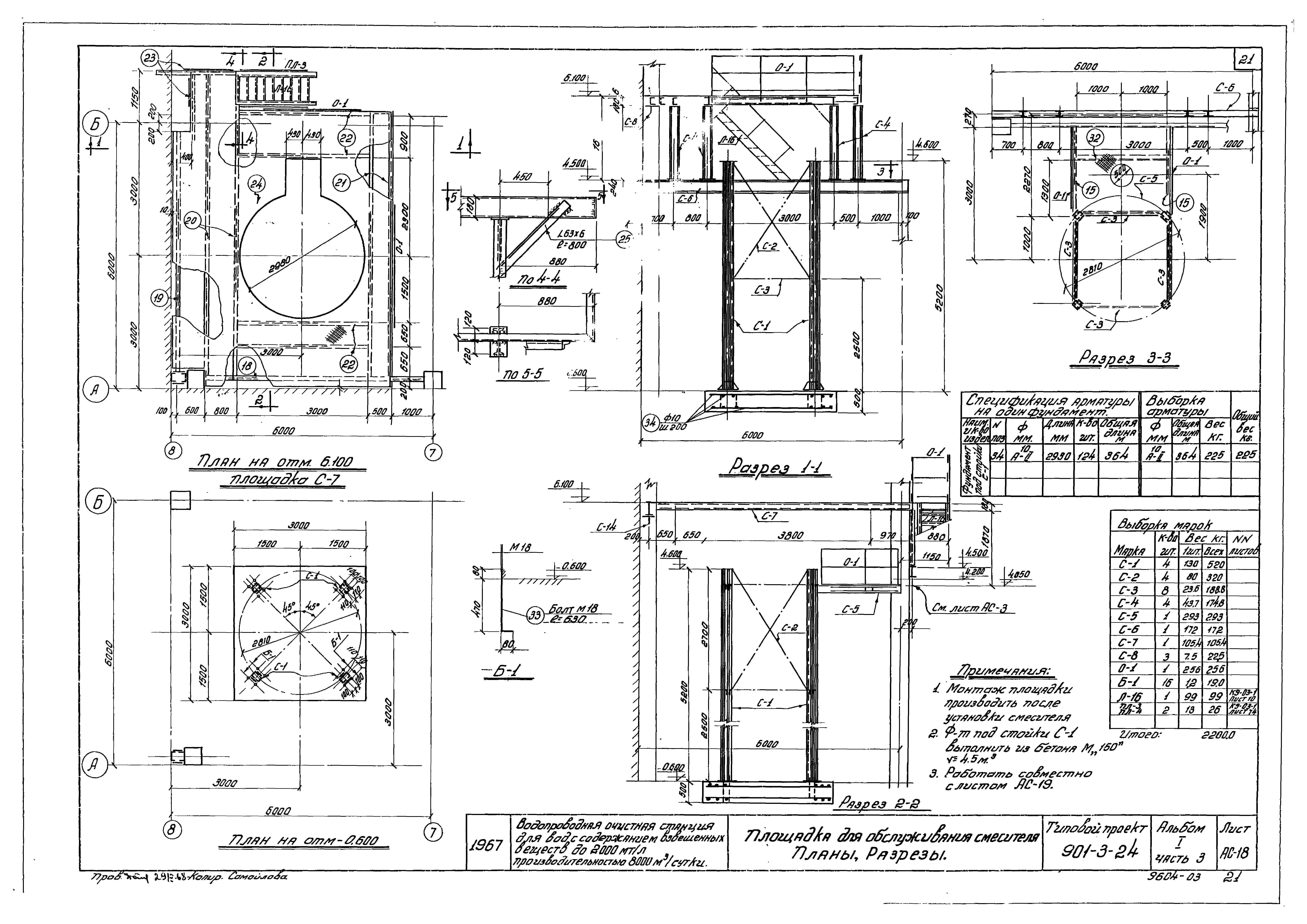
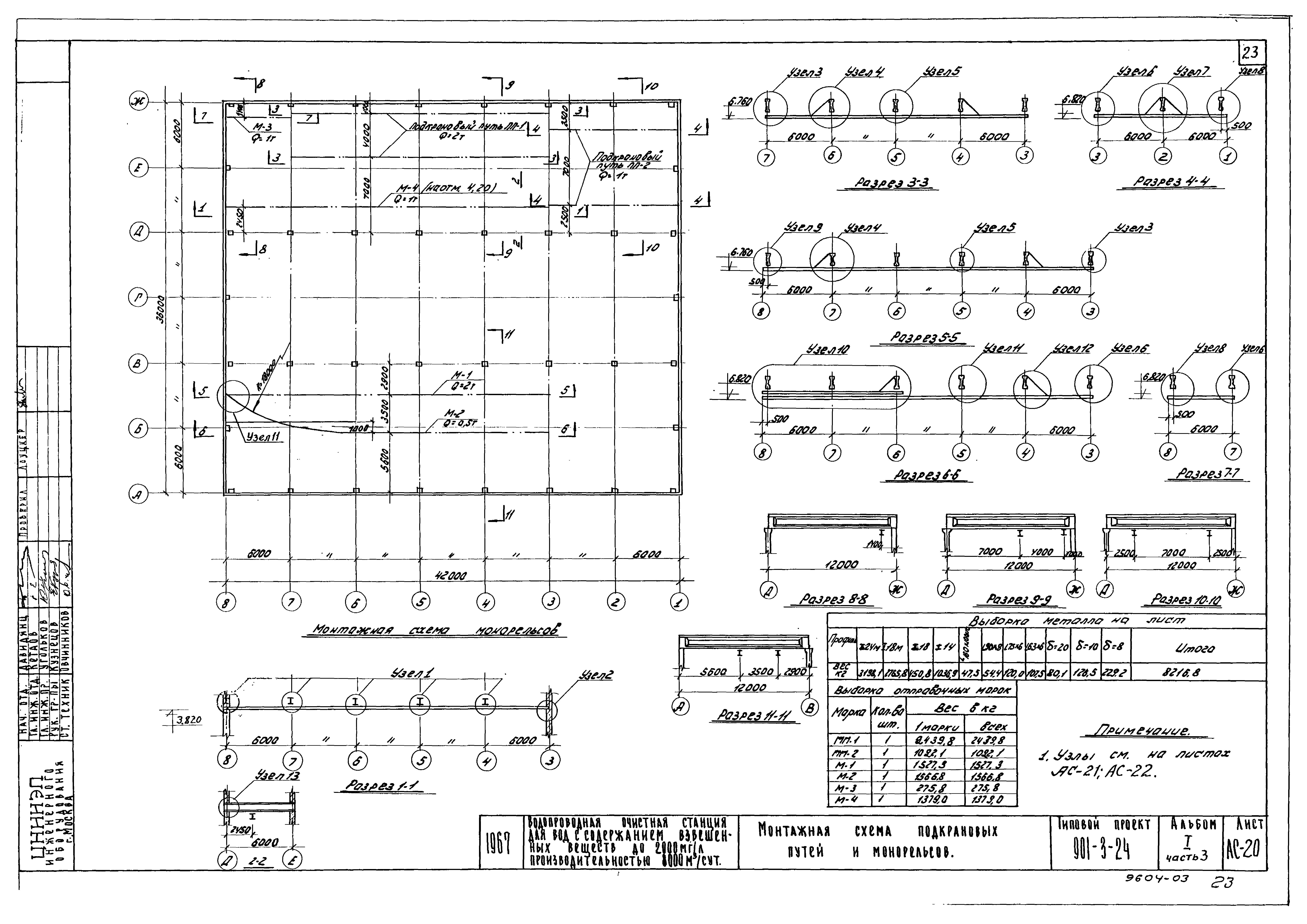
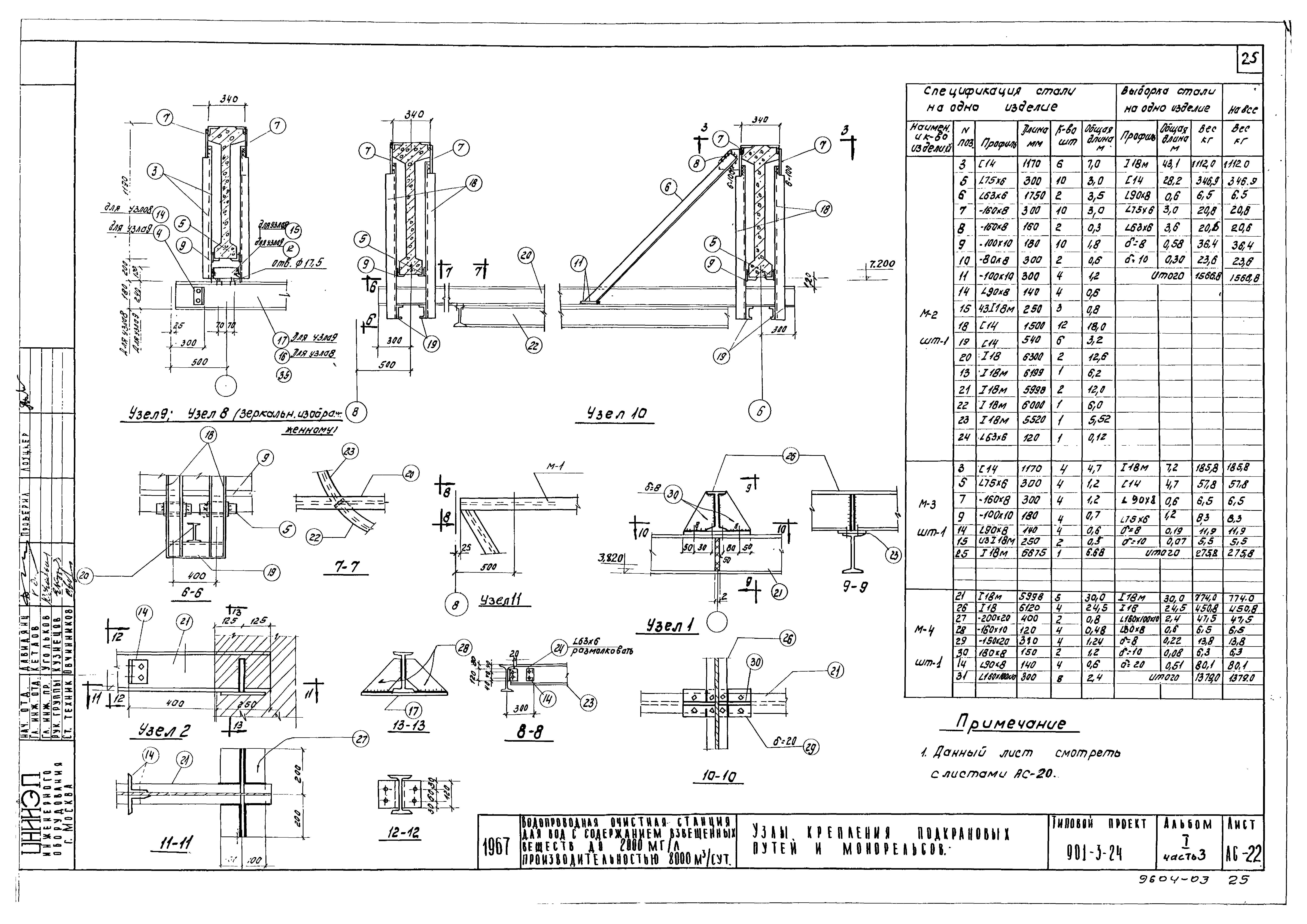
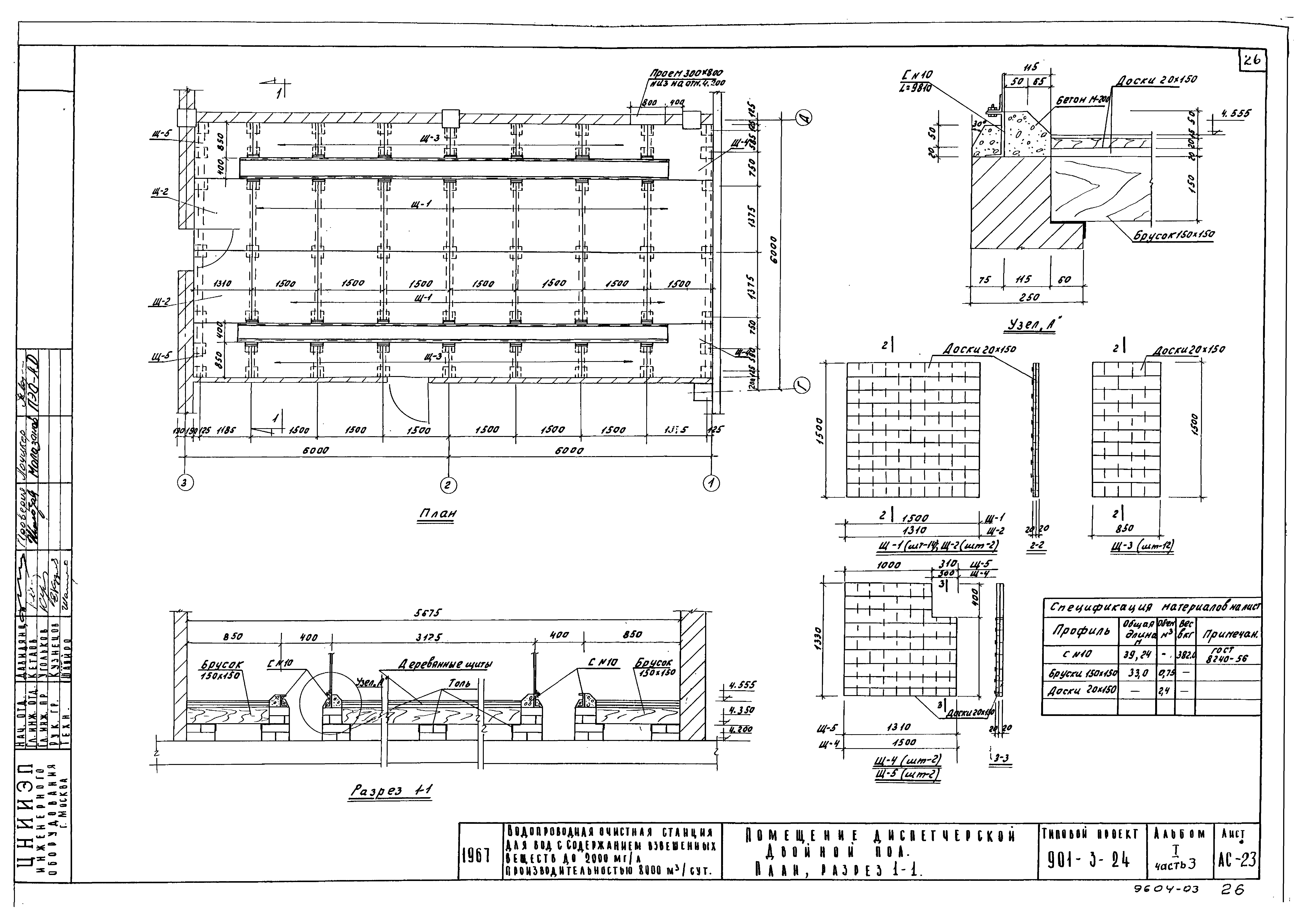
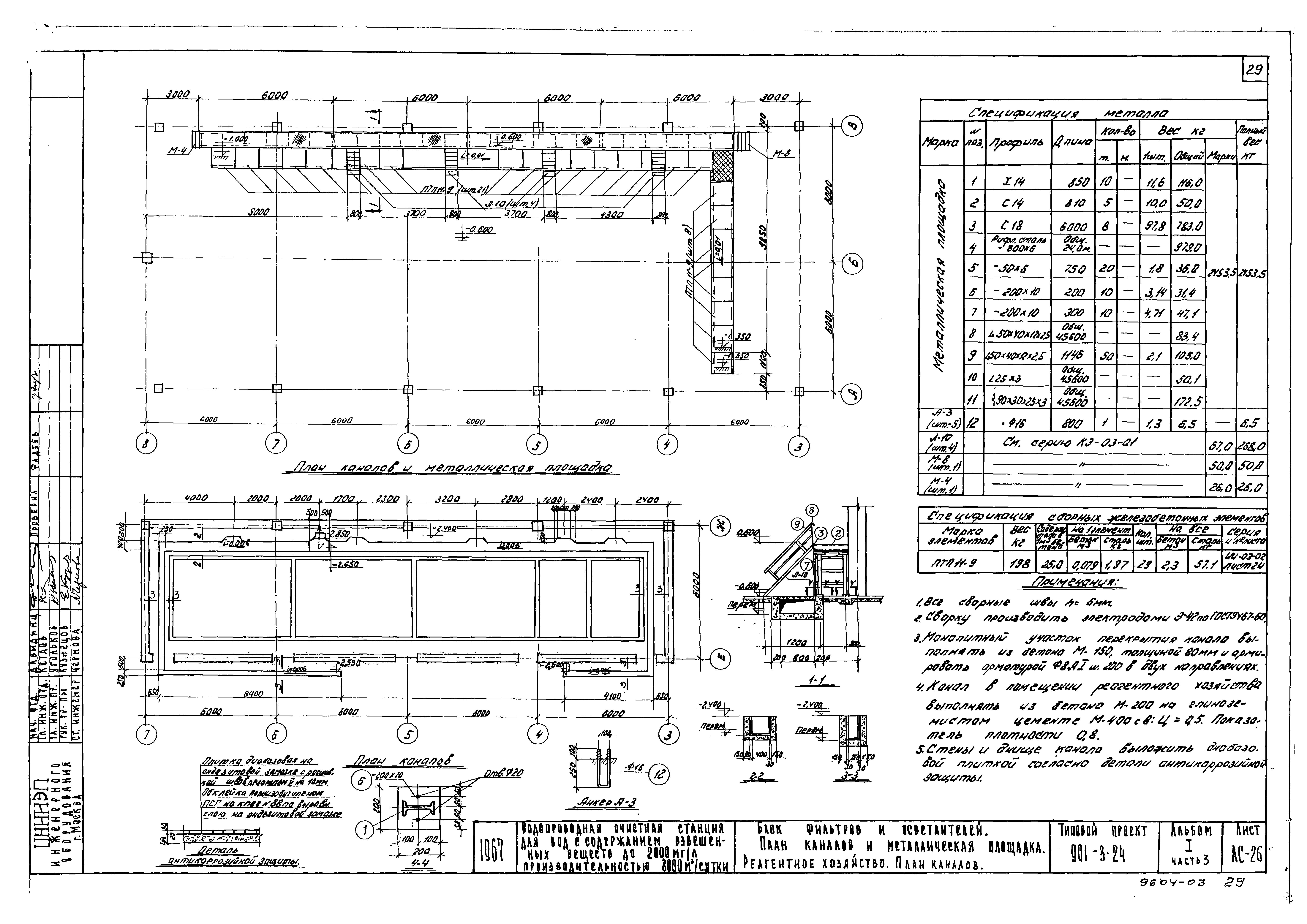
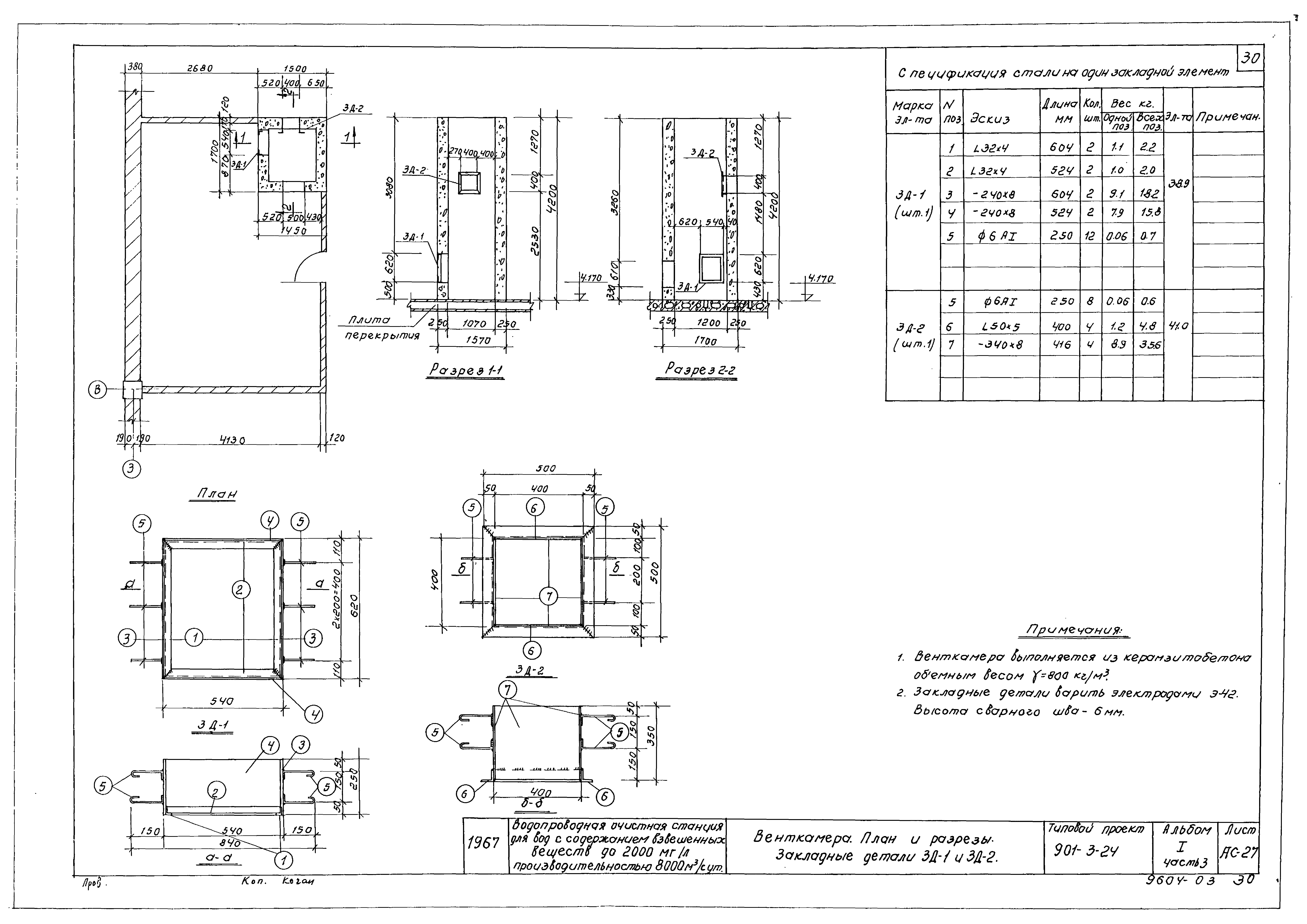
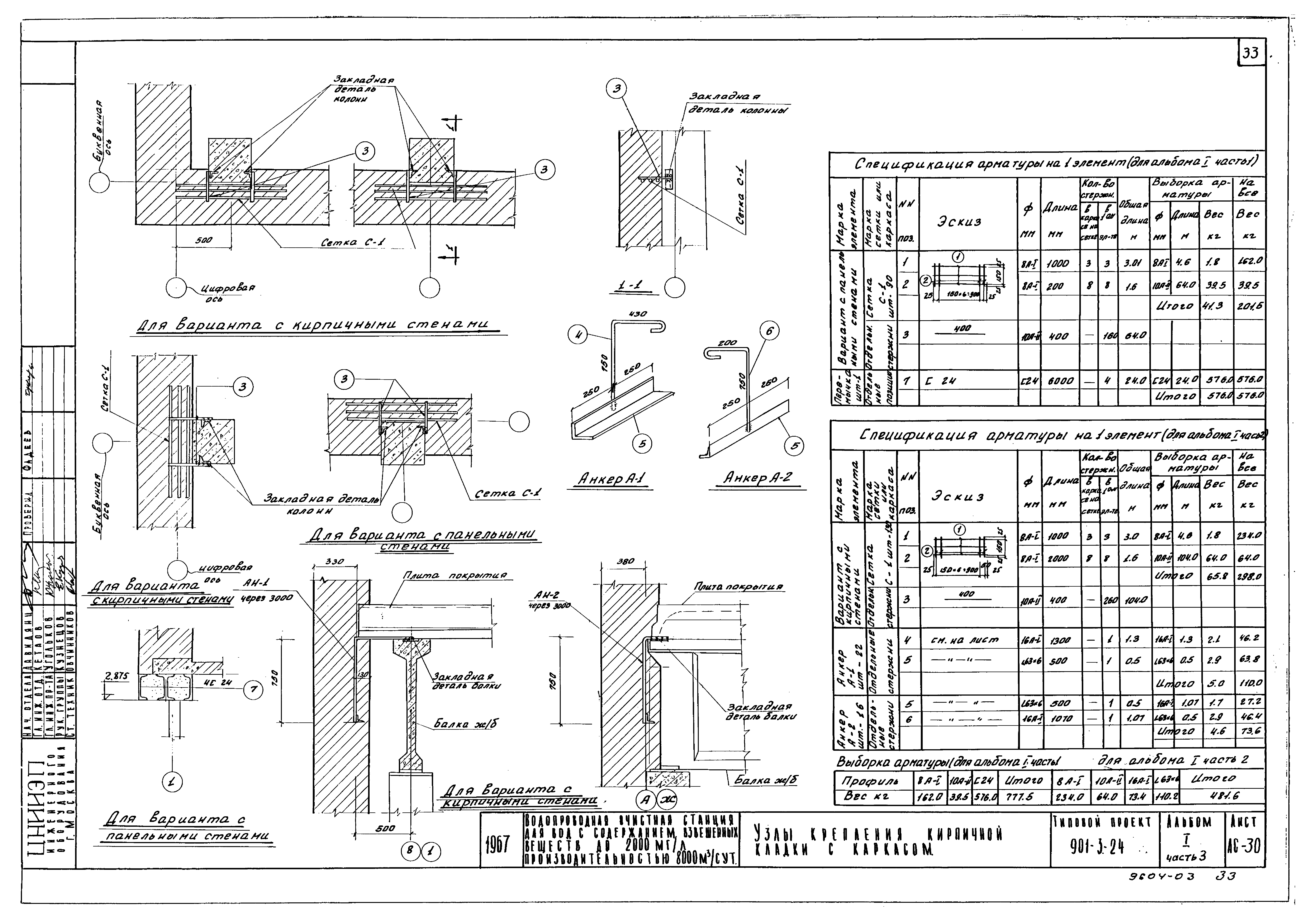
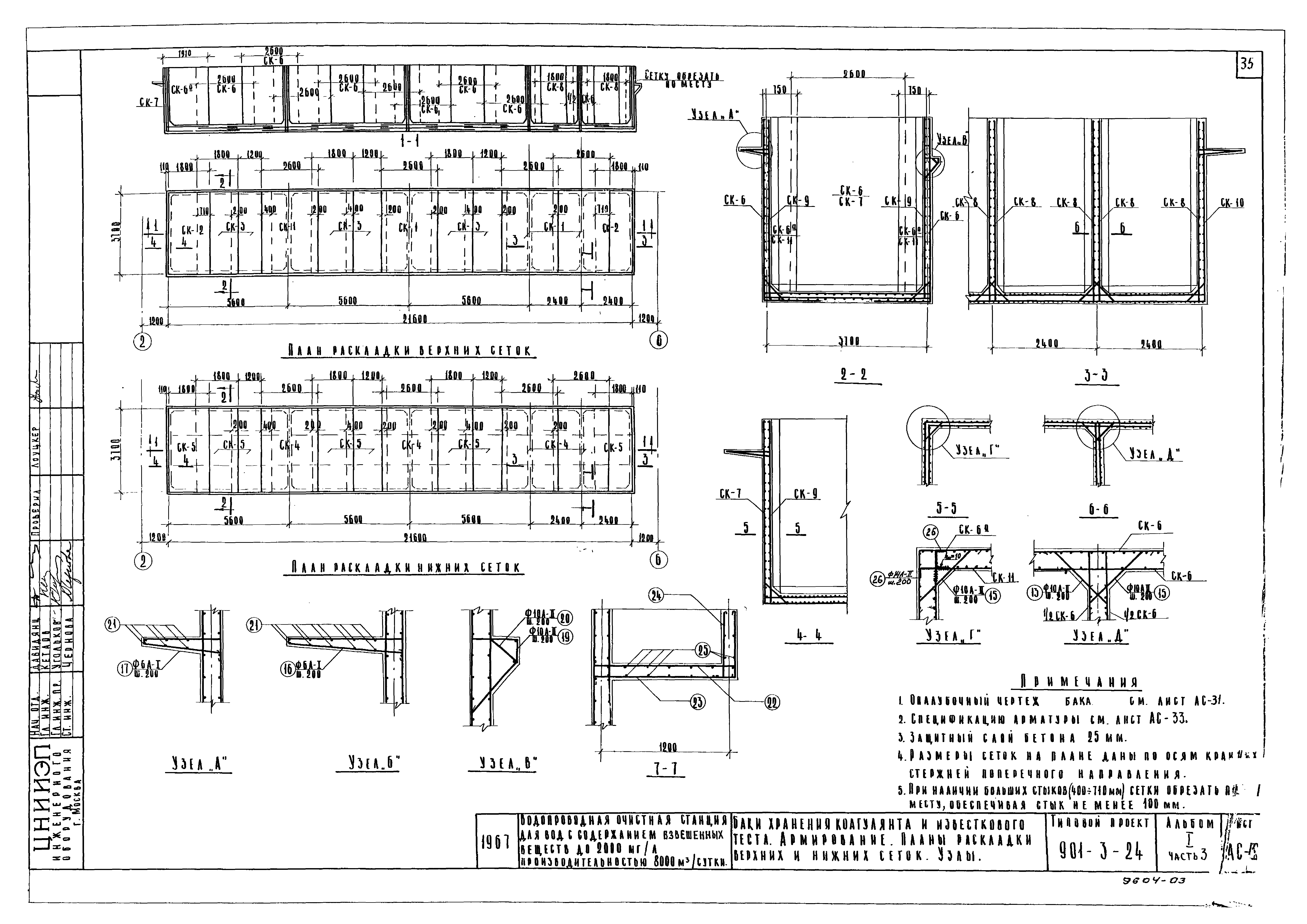
| Оглавление: | Обложка Титульный лист Содержание альбома Монтажная схема каркаса. План. Разрезы 1-1, 2-2. Спецификация План перекрытия и покрытия Блок фильтров и осветлителей. План перекрытия на отм. 4.200. Монтажная схема плит перекрытия Перекрытия на отм. 4.200. Сечения 3-3 - 11-11 Монтажная схема металлических балок для перекрытия на отм. 4.200 Площадка П-7 на отм. 6.500. Разрезы 1-1, 2-2, 3-3. Сечения А-А, Б-Б. Спецификация сборных ж/б элементов Помещение в осях 7 - 8, Д - Е. Сборно-монолитная площадка на отм. 4.200 Площадки П-1 на отм. 2.600, П-2 на отм. 3.200 Площадка П-4 на отм. 0.000. План. Разрез 2-2. Сечения "а-а", "б-б", "в-в" Площадка П-4 на отм. 0.000. Разрез 1-1. Сечение Г-Г. Узлы "А", "Б", "В", "Г" Блок насосный. Площадки П-5, П-6, П-8. План. Разрезы 2-2, 3-3, 4-4. Сечение В-В, Г-Г. Узлы "А", "Б", "В" Балки площадок "Б-1 - Б-14". Консоли "К-1 - К-5". Накладные детали НД-1, НД-2 Балки площадок "Б-15 - Б-21". Рама "Р-1". Стойки "М-1", "М-2". Закладные детали ЗД-1, ЗД-2, ЗД-3 Балки площадок "Б-22 - Б-27". Площадка П-3. Накладные детали НД-3, НД-4 Спецификация на изделия "Б-1 - Б-27", П-3, П-3А, Р-1, М-1, М-2, "К-1 - К-5", ЗД1 - ЗД3 Спецификация типовых металлических изделий. Спецификация стали по площадкам Блок фильтров и осветлителей. Крепление трубопроводов. Монтажный план опор. Металлические опоры МО-1, МО-2, МО-3 Площадка для обслуживания смесителя. Планы, разрезы Площадка для обслуживания смесителя С-1 - С-8 Монтажная схема подкрановых путей и монорельсов Узлы, крепления подкрановых путей и монорельсов Помещение диспетчерской. Двойной пол. План. Разрез 1-1 Помещение КТП и ЩСУ. Подземное хозяйство. План. Разрезы Насосная станция II подъема. Фундаменты под насосы Блок фильтров и осветлителей. Планы каналов и металлическая площадка. Реагентное хозяйство. План каналов Венткамера. План и разрезы. Закладные детали ЗД-1 и ЗД-2 Опалубка колонн Опалубка плит и балок. Закладные детали Узлы крепления кирпичной кладки с каркасом Баки хранения коагулянта и известкового теста. План. Разрезы 1-1, 2-2. Узлы Баки хранения коагулянта и известкового теста. Армирование. Планы раскладки верхних и нижних сеток. Узлы Баки хранения коагулянта и известкового теста. Армирование. Спецификация. Выборка арматуры. Расход материалов Баки хранения коагулянта и известкового теста. Деревянная колосниковая решетка и щелевая перегородка Расходные баки коагулянта. Опалубка. Армирование. Спецификация Баки раствора ПЛА и угольной пульпы Эвакуационная лестница ЭЛ-1 |
| Разработан: | ЦНИИЭП инженерного оборудования Госгражданстроя |
| Утверждён: | 20.12.1967 ЦНИИЭП инженерного оборудования (TsNIIEP of Building Service Equipment 121) |







































